Размещено на портале Архи.ру (www.archi.ru)

30.10.2017

Паркинг светящийся

Дарья Горелова
Объект:
«Automatic for the people». Автоматические парковки – пристройка к жилому дому
Адрес:
Россия, Люберцы. ул.Кирова, мкрн 35Ж
Мастерская:
АБ «Богачкин и Богачкин»
Авторский коллектив:
Руководитель бюро, главный архитектор: Вячеслав Васильевич Богачкин
Главные архитекторы проекта: Александр Евгеньевич Архипов, Никита Вячеславович Богачкин
Архитекторы: Юлия Игоревна Ахлебинина, Татьяна Алексеевна Пашкова, при участии Ольги Якушевой.
Главный инженер: Оксана Викторовна Камышова
Инженер: Наталья Юрьевна Песина

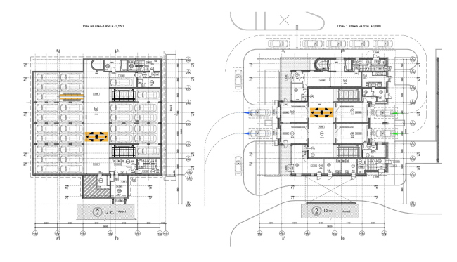
Проект автоматизированных парковок, совмещающих 2 подземных яруса и 10 надземных, а также офисы, кафе и функцию эстетического обогащения района в Люберцах, плотно застроенного жильем в недавние годы.

Общий вид зданий © Архитектурное бюро «Богачкин и Богачкин»
Общий вид зданий © Архитектурное бюро «Богачкин и Богачкин»

Проект надземных автоматизированных паркингов разработан для ЖК «Ареал» в Люберцах и уже был показан на «Зодчестве» 2017. Вместо утопавших в зелени сталинских двухэтажек район за МКАДом сейчас интенсивно и плотно застраивается жилыми комплексами высотой до 22 этажей, «Ареал» – не исключение.

Два симметричных объема автоматизированных парковок архитекторы бюро «Богачкин и Богачкин» спроектировали по заказу девелопера ЖК, для самого длинного корпуса его последней очереди – он называется Первый клубный дом, состоит из семи секций и будет вытянут вдоль улицы Кирова. Парковки помогут освободить двор дома от машин.
Ситуационный план, схема генплана © Архитектурное бюро «Богачкин и Богачкин»
Ситуационный план, схема генплана © Архитектурное бюро «Богачкин и Богачкин»
Схема генплана © Архитектурное бюро «Богачкин и Богачкин»
Схема генплана © Архитектурное бюро «Богачкин и Богачкин»
Продольный разрез © Архитектурное бюро «Богачкин и Богачкин»
Продольный разрез © Архитектурное бюро «Богачкин и Богачкин»
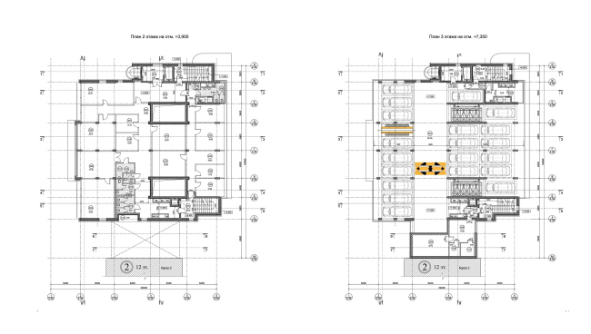
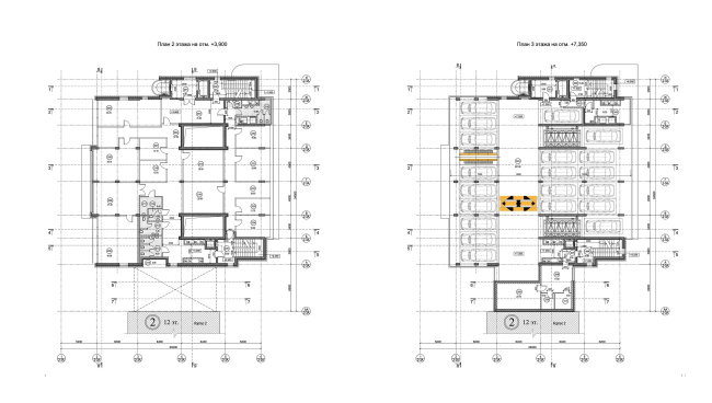
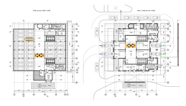
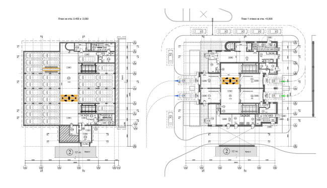
План подземной части автостоянки © Архитектурное бюро «Богачкин и Богачкин»
План подземной части автостоянки © Архитектурное бюро «Богачкин и Богачкин»
Общий вид зданий © Архитектурное бюро «Богачкин и Богачкин»
Общий вид зданий © Архитектурное бюро «Богачкин и Богачкин»

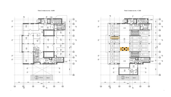
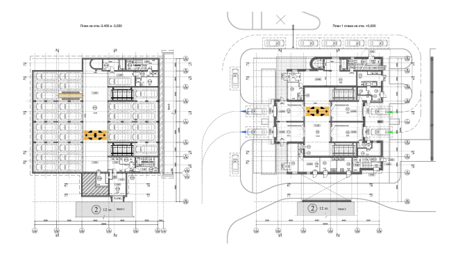
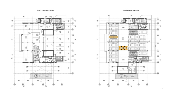
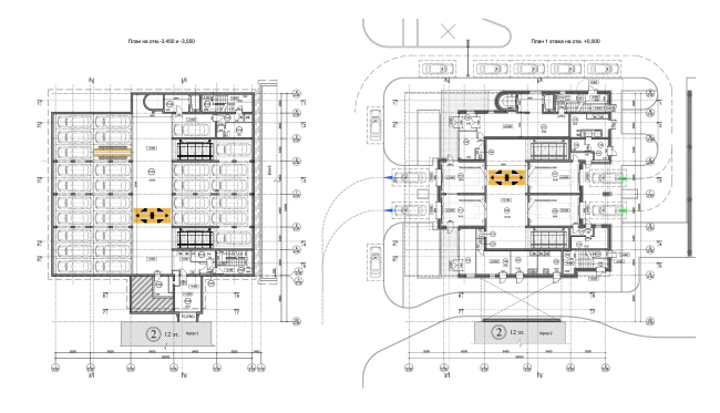
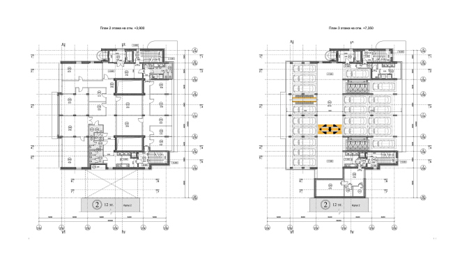
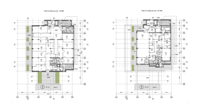
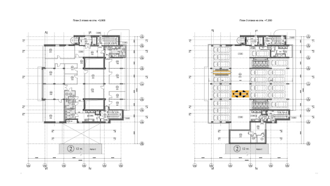
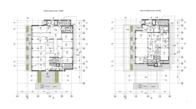
Подземная часть парковок расположена не под домом, а под его двором. Два надземных корпуса симметрично вырастают на краях подземной части по сторонам длинного двора. В них – по десять этажей, причем два из них, восьмой и девятый, заняты офисами, на десятом – кафе с террасой. Этажи с третьего по седьмой заняты автоматической парковкой, которая работает следующим образом:

«Водитель оставляет автомашину в загрузочном модуле 1 этажа на специальной платформе. После того, как люди покидают загрузочный модуль, система в автоматическом режиме с помощью подъемников и роботов – шаттлов, двигающихся по горизонтали на этажах парковки, паркует авто на свободное место. Аналогичным способом происходит получение машины водителем: В помещении клиентской на 1 этаже по карточке RIFD водитель «вызывает» свой автомобиль из парковки. На мониторе высвечивается, в какой из свободных боксов подается машина, открываются ворота бокса, и водитель уезжает. Время выдачи авто не превышает полутора минут. Парковка очень компактна за счет отсутствия проездов и рамп».
Технологическая система паркинга (фото) © BoxParking
Технологическая система паркинга (фото) © BoxParking
Разрезы, Блок А © Архитектурное бюро «Богачкин и Богачкин»
Разрезы, Блок А © Архитектурное бюро «Богачкин и Богачкин»
Разрезы, Блок А © Архитектурное бюро «Богачкин и Богачкин»
Разрезы, Блок А © Архитектурное бюро «Богачкин и Богачкин»
Разрезы, Блок А © Архитектурное бюро «Богачкин и Богачкин»
Разрезы, Блок А © Архитектурное бюро «Богачкин и Богачкин»
Фасады. Блок А © Архитектурное бюро «Богачкин и Богачкин»
Фасады. Блок А © Архитектурное бюро «Богачкин и Богачкин»
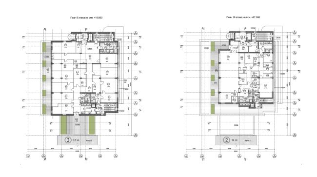
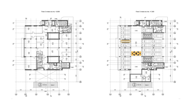
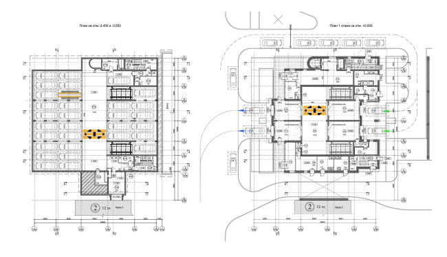
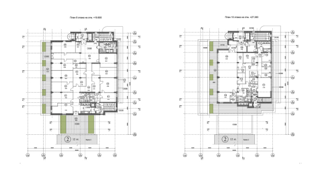
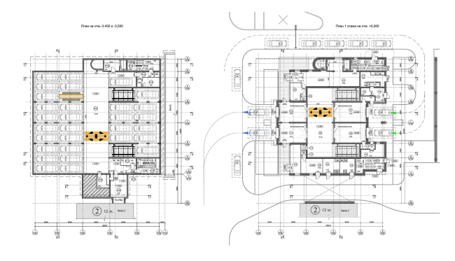
Планы этажей, Блок А © Архитектурное бюро «Богачкин и Богачкин»
Планы этажей, Блок А © Архитектурное бюро «Богачкин и Богачкин»
Планы этажей, Блок А © Архитектурное бюро «Богачкин и Богачкин»
Планы этажей, Блок А © Архитектурное бюро «Богачкин и Богачкин»
Планы этажей, Блок А © Архитектурное бюро «Богачкин и Богачкин»
Планы этажей, Блок А © Архитектурное бюро «Богачкин и Богачкин»

Так как надземные ярусы парковки, в отличие от офисов и кафе не отапливаются, архитекторам пришлось повозиться с вопросами теплоизоляции; зато для инвестора такое решение оказалось выгодным.
Общий вид зданий © Архитектурное бюро «Богачкин и Богачкин»
Общий вид зданий © Архитектурное бюро «Богачкин и Богачкин»
Общий вид зданий © Архитектурное бюро «Богачкин и Богачкин»
Общий вид зданий © Архитектурное бюро «Богачкин и Богачкин»
Общий вид зданий © Архитектурное бюро «Богачкин и Богачкин»
Общий вид зданий © Архитектурное бюро «Богачкин и Богачкин»
Общий вид зданий © Архитектурное бюро «Богачкин и Богачкин»
Общий вид зданий © Архитектурное бюро «Богачкин и Богачкин»
Общий вид зданий. © Архитектурное бюро «Богачкин и Богачкин»
Общий вид зданий. © Архитектурное бюро «Богачкин и Богачкин»
Общий вид зданий © Архитектурное бюро «Богачкин и Богачкин»
Общий вид зданий © Архитектурное бюро «Богачкин и Богачкин»

Впрочем архитекторы смотрят на свои десятиэтажные гаражи-офисы не только технически, но и эстетически, считая их главным акцентом двора. Части, отведенные надземной автоматизированной парковке, прикрыты полупрозрачным стеклопрофилитом; ночью они будут светиться, демонстрируя тени машин, передвигаемых автоматикой; «...калейдоскоп двигающихся автомашин вечером выглядит необычно, разрушая представление о парковке как об утилитарном техническом сооружении», – комментируют свое решение авторы. Эстетику поддерживает желтый экран перед первым этажом и стеклянные козырьки входных групп.
Общий вид зданий © Архитектурное бюро «Богачкин и Богачкин»
Общий вид зданий © Архитектурное бюро «Богачкин и Богачкин»
Фрагмент  © Архитектурное бюро «Богачкин и Богачкин»
Фрагмент © Архитектурное бюро «Богачкин и Богачкин»
Загрузочный модуль (блоки Б,В) © Архитектурное бюро «Богачкин и Богачкин»
Загрузочный модуль (блоки Б,В) © Архитектурное бюро «Богачкин и Богачкин»
Загрузочный модуль (блоки Б,В) © Архитектурное бюро «Богачкин и Богачкин»
Загрузочный модуль (блоки Б,В) © Архитектурное бюро «Богачкин и Богачкин»
Загрузочный модуль (блоки Б,В) © Архитектурное бюро «Богачкин и Богачкин»
Загрузочный модуль (блоки Б,В) © Архитектурное бюро «Богачкин и Богачкин»
© Архитектурное бюро «Богачкин и Богачкин»
© Архитектурное бюро «Богачкин и Богачкин»