Размещено на портале Архи.ру (www.archi.ru)

18.10.2017

Вышивка крестом

Юлия Тарабарина
Объект:
Комплекс апартаментов «Большевик»
Адрес:
Россия, Москва. Ленинградский проспект, д.15 (корпус 9, 28,35)
Мастерская:
IND
Porotherm
Авторский коллектив:
Архитекторы: Амир Идиатулин, Андрей Сидоров, Равиль Мураков, Николай Фанеев
Айдентика и фирменный стиль: Аssembly Studios

В проекте апартаментов «Большевик» IND architects переосмыслили фабричную архитектуру Оскара Дидио и дизайн-код реновации бюро МакАслана в орнаментальном ключе.

Комплекс апартаментов «Большевик», благоустройство внутреннего двора © IND Architects
Комплекс апартаментов «Большевик», благоустройство внутреннего двора © IND Architects

Жилой комплекс, спроектированный IND architects, расположен в глубине территории бизнес-центра «Большевик», наследника одноименной фабрики. Генплан реновации фабричных зданий, частью которого стало открытие пространства БЦ для горожан, сохранение, очистка и проявление орнаментальной стилистики кирпичных корпусов Оскара Дидио 1884 года постройки, также как и строительство частного Музея импрессионизма Бориса Минца – осуществлены архитекторами бюро Джона МакАслана в 2012–2016 годах и стали достаточно заметным событием московской культурной жизни, а в контексте реконструкции промзон – и вовсе знаковым. С самого начала предполагалось, что соседом бизнес-центра станет жилой комплекс; его проект в рамках генплана и дизайн-кода МакАслана сделали IND architects.
Комплекс апартаментов «Большевик» © IND Architects
Комплекс апартаментов «Большевик» © IND Architects

Три корпуса жилых апартаментов расположены в центре территории, между Музеем импрессионизма и атриумом делового центра, и окружают собой небольшой прямоугольный двор. Часть фасадов сохранена – вероятно, сохранили то, что было возможно сохранить: по словам авторов, фасады 9 корпуса «остались практически неизменными». Их большие окна объединены в вертикали, а кирпичные поверхности украшены орнаментом белого цвета. Он отличается от несколько более классичного декора остальных корпусов преобладанием немотивированной орнаментальности вышитого полотенца – и, подхватив и несколько геометризовав мотив, IND architects распространили его на элементы новых вкраплений. «Вышивка крестом» украсила подсвеченные поверхности козырьков над входами всех трех зданий, потолки лобби, металлические ограждения лестниц и верхних этажей, размножая русофильскую идею француза Дидио и превращая ее в вариант актуальной орнаментальности. Самым ярким элементом своего решения архитекторы считают забранную в стеклянный кожух металлическую лестницу, примкнувшую со стороны двора к 9 корпусу: по ночам она будет светиться все тем же рисунком фасадной вышивки.
Комплекс апартаментов «Большевик»
Комплекс апартаментов «Большевик»
© IND Architects
Комплекс апартаментов «Большевик», в процессе реализации
Комплекс апартаментов «Большевик», в процессе реализации
© IND Architects
Комплекс апартаментов «Большевик», входная группа © IND Architects
Комплекс апартаментов «Большевик», входная группа © IND Architects
Комплекс апартаментов «Большевик», входная группа © IND Architects
Комплекс апартаментов «Большевик», входная группа © IND Architects
Комплекс апартаментов «Большевик», входная группа © IND Architects
Комплекс апартаментов «Большевик», входная группа © IND Architects
Комплекс апартаментов «Большевик» © IND Architects
Комплекс апартаментов «Большевик» © IND Architects
Комплекс апартаментов «Большевик», фрагмент фасада и лестница © IND Architects
Комплекс апартаментов «Большевик», фрагмент фасада и лестница © IND Architects
Комплекс апартаментов «Большевик», фрагмент благоустройства внутреннего двора © IND Architects
Комплекс апартаментов «Большевик», фрагмент благоустройства внутреннего двора © IND Architects
Комплекс апартаментов «Большевик», благоустройство внутреннего двора © IND Architects
Комплекс апартаментов «Большевик», благоустройство внутреннего двора © IND Architects

Напротив – более спокойные и очевидно более современные фасады 28 корпуса; его окна меньше, чем у корпуса XIX века, и чередуются в шахматном порядке; черного цвета нижний этаж модернистки «отрывает» основной объем от земли от земли.
Комплекс апартаментов «Большевик»
Комплекс апартаментов «Большевик»
Фотография: предоставлена IND architects
Комплекс апартаментов «Большевик», фрагмент фасада © IND Architects
Комплекс апартаментов «Большевик», фрагмент фасада © IND Architects

Все здания надстроены «шапками» пентхаусов из стекла темного металла: по 1-2 этажа, с небольшим отступом, образующим террасы; здесь, на верхних этажах, окна «в пол» образуют эфемерную границу между гостиной, окружающим ее балконом и городской панорамой за кадками цветов. Террасы побольше задуманы на кровле трехэтажного 35 корпуса, террас и какой-то зелени, особенно модных злаков и полевых цветов, здесь в принципе много, а кровля въезда в подземную парковку целиком занята газоном.
Комплекс апартаментов «Большевик» © IND Architects
Комплекс апартаментов «Большевик» © IND Architects
Комплекс апартаментов «Большевик», обустройство балкона © IND Architects
Комплекс апартаментов «Большевик», обустройство балкона © IND Architects
Комплекс апартаментов «Большевик» © IND Architects
Комплекс апартаментов «Большевик» © IND Architects
Комплекс апартаментов «Большевик», озелененная кровля © IND Architects
Комплекс апартаментов «Большевик», озелененная кровля © IND Architects
Комплекс апартаментов «Большевик», обустройство террасы © IND Architects
Комплекс апартаментов «Большевик», обустройство террасы © IND Architects
Комплекс апартаментов «Большевик», озелененная кровля © IND Architects
Комплекс апартаментов «Большевик», озелененная кровля © IND Architects
Комплекс апартаментов «Большевик», фрагмент благоустройства внутреннего двора © IND Architects
Комплекс апартаментов «Большевик», фрагмент благоустройства внутреннего двора © IND Architects
Комплекс апартаментов «Большевик» © IND Architects
Комплекс апартаментов «Большевик» © IND Architects

Архитекторы разработали не только проекты жилых корпусов, благоустройства двора и интерьеры вестибюлей, но и несколько вариантов интерьеров квартир, кафе и ресторан, приняли участие в работе над фирменным стилем.
Комплекс апартаментов «Большевик», интерьер холла © IND Architects
Комплекс апартаментов «Большевик», интерьер холла © IND Architects
Комплекс апартаментов «Большевик», фрагмент интерьера общественных зон © IND Architects
Комплекс апартаментов «Большевик», фрагмент интерьера общественных зон © IND Architects
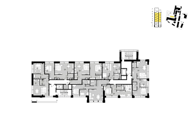
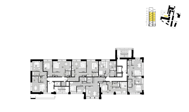
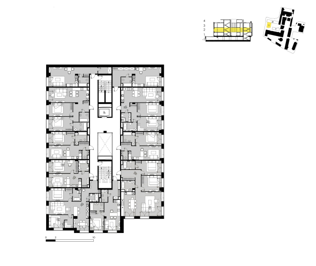
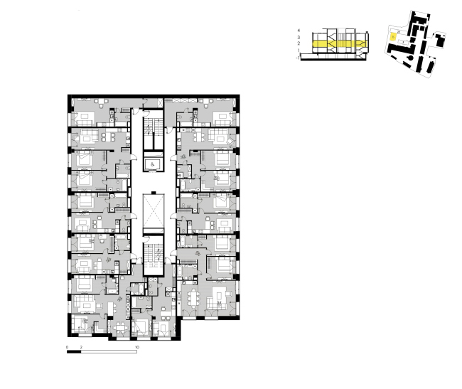
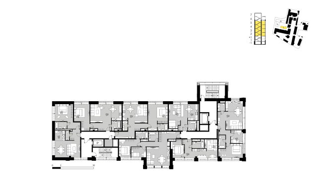
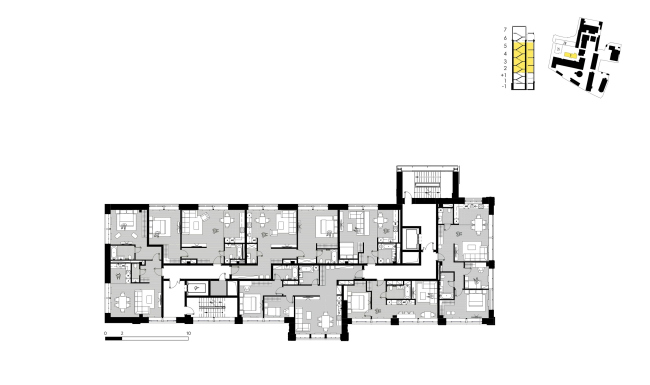
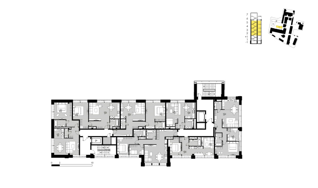
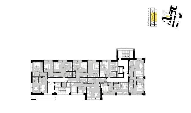
Комплекс апартаментов «Большевик», план этажа корпуса 28 © IND Architects
Комплекс апартаментов «Большевик», план этажа корпуса 28 © IND Architects
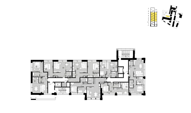
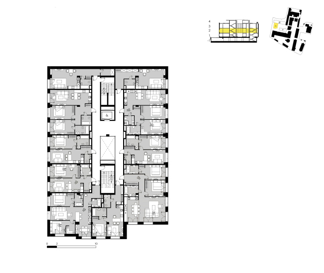
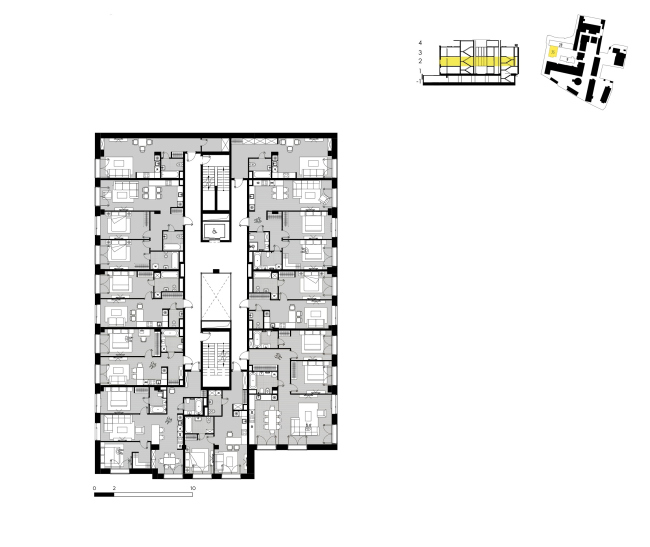
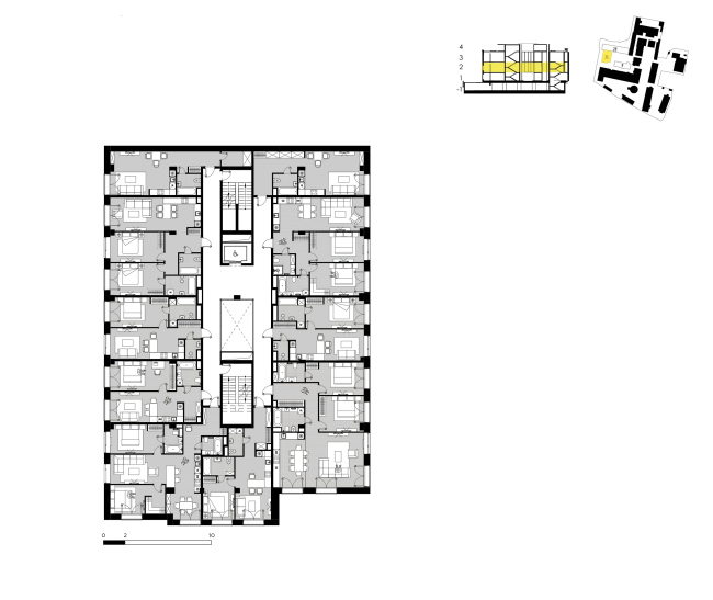
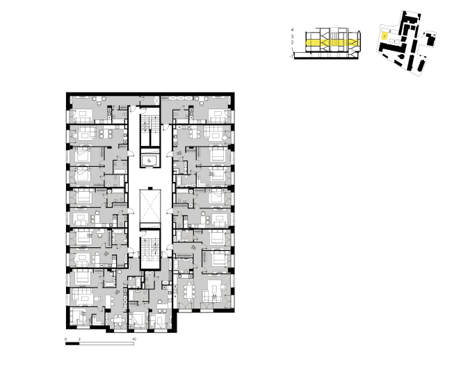
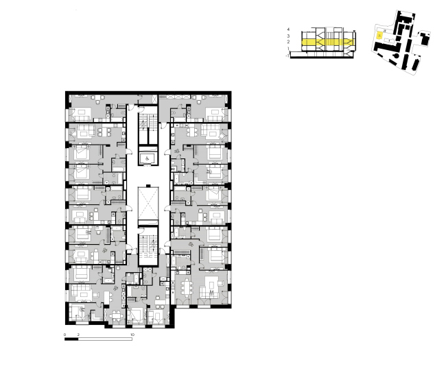
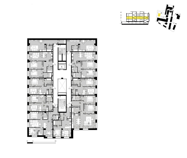
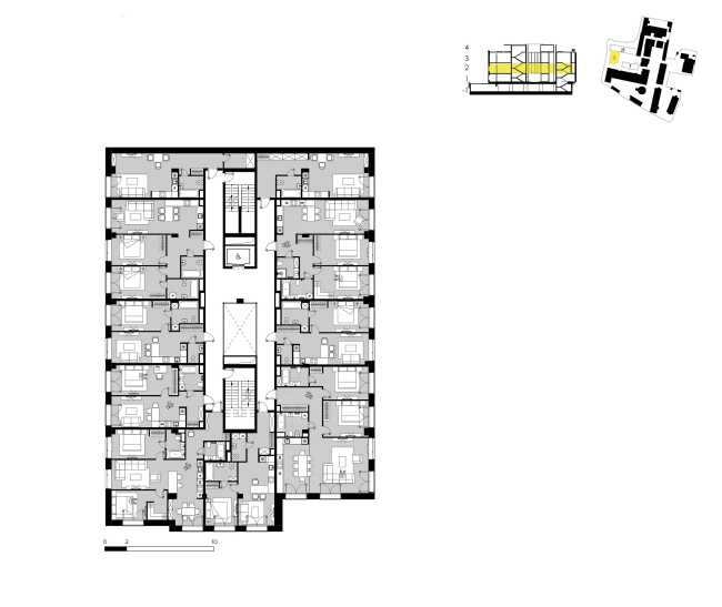
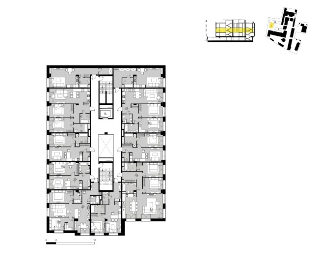
Комплекс апартаментов «Большевик», план этажа корпуса 9 © IND Architects
Комплекс апартаментов «Большевик», план этажа корпуса 9 © IND Architects
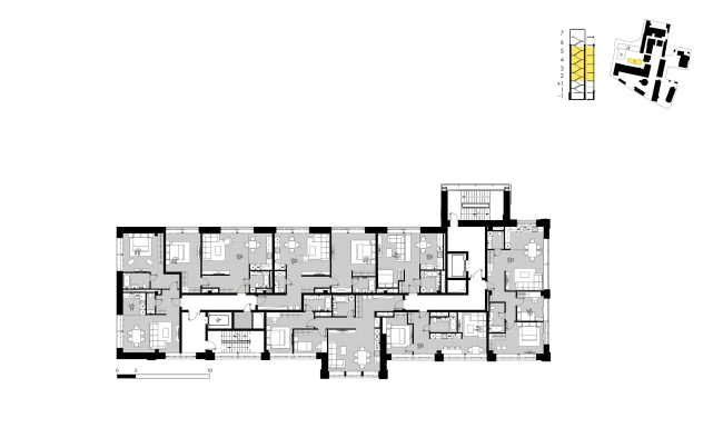
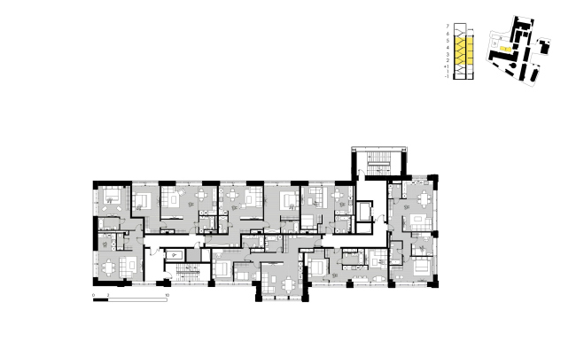
Комплекс апартаментов «Большевик», план этажа корпуса 35 © IND Architects
Комплекс апартаментов «Большевик», план этажа корпуса 35 © IND Architects
Комплекс апартаментов «Большевик», интерьер © IND Architects
Комплекс апартаментов «Большевик», интерьер © IND Architects
Комплекс апартаментов «Большевик», интерьер © IND Architects
Комплекс апартаментов «Большевик», интерьер © IND Architects

Квартирография разнообразна: от 35 м2 за 9 млн до 230 м2 за примерно 66 млн р.; встречаются двухкомнатные квартиры по 70 м2, и двухкомнатные же по 120 м2 – что определенно рассчитано на широкий спектр предложений, включая рекламно-недорогое, и призвано привлечь разных покупателей, от одиночек до состоятельных, безусловно, семей. Работы идут полным ходом, ключи обещают выдавать в декабре 2017.
 
Комплекс апартаментов «Большевик» © IND Architects
Комплекс апартаментов «Большевик» © IND Architects
Комплекс апартаментов «Большевик». Материалы © IND Architects
Комплекс апартаментов «Большевик». Материалы © IND Architects
Комплекс апартаментов «Большевик». Фасады © IND Architects
Комплекс апартаментов «Большевик». Фасады © IND Architects
Комплекс апартаментов «Большевик». Фасады © IND Architects
Комплекс апартаментов «Большевик». Фасады © IND Architects
Комплекс апартаментов «Большевик». Фасады © IND Architects
Комплекс апартаментов «Большевик». Фасады © IND Architects
Комплекс апартаментов «Большевик». Фасады © IND Architects
Комплекс апартаментов «Большевик». Фасады © IND Architects
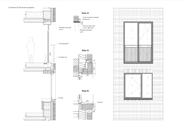
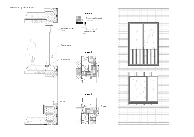
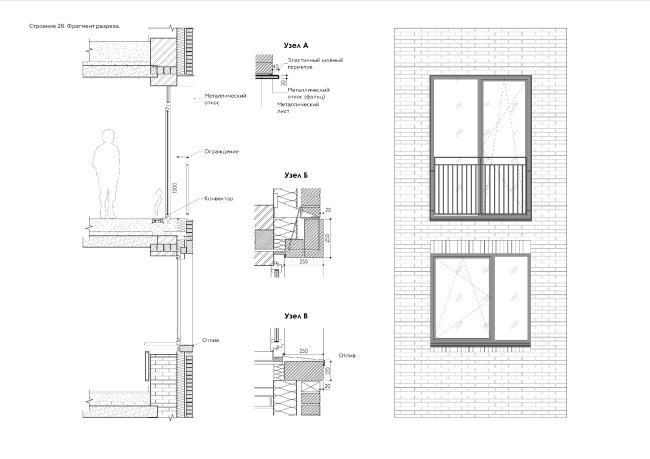
Комплекс апартаментов «Большевик». Фрагмент разреза © IND Architects
Комплекс апартаментов «Большевик». Фрагмент разреза © IND Architects
Комплекс апартаментов «Большевик». Сечение по металлическим фасадам © IND Architects
Комплекс апартаментов «Большевик». Сечение по металлическим фасадам © IND Architects
Комплекс апартаментов «Большевик». Разрез © IND Architects
Комплекс апартаментов «Большевик». Разрез © IND Architects