Размещено на портале Архи.ру (www.archi.ru)

02.10.2017

Зимние сады за кирпичными фасадами

Нина Фролова
Объект:
Корпус Германа Тейрлинка
Адрес:
Бельгия, None, Брюссель.
Мастерская:
Neutelings Riedijk

Главное здание для правительства Фландрии в Брюсселе по проекту Neutelings Riedijk Architecten.

Корпус Германа Тейрлинка © Filip Dujardin
Корпус Германа Тейрлинка © Filip Dujardin

Новый корпус, носящий имя бельгийского литератора Германа Тейрлинка, писавшего на фламандском языке, появился в бывшей промышленной зоне Тур-э-Такси (Tour & Taxis), ныне переживающей трансформацию: на 12 га появляются новое жилье, новаторские офисные здания (об одном из них мы писали здесь), большой парк, под новые способы использования приспосабливаются исторические Королевский склад, почтамт, таможня и т.д.
 
Корпус Германа Тейрлинка © Filip Dujardin
Корпус Германа Тейрлинка © Filip Dujardin

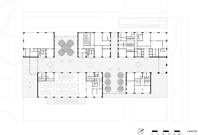
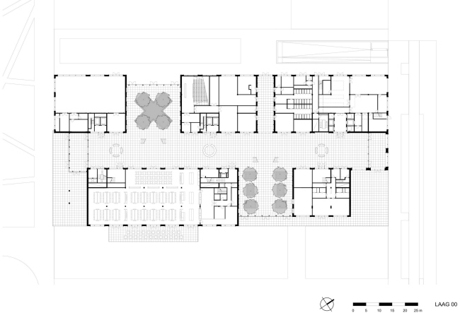
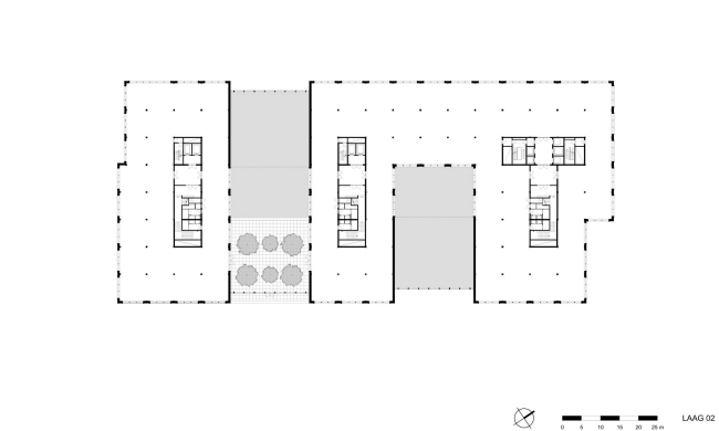
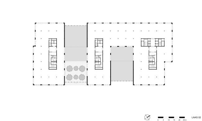
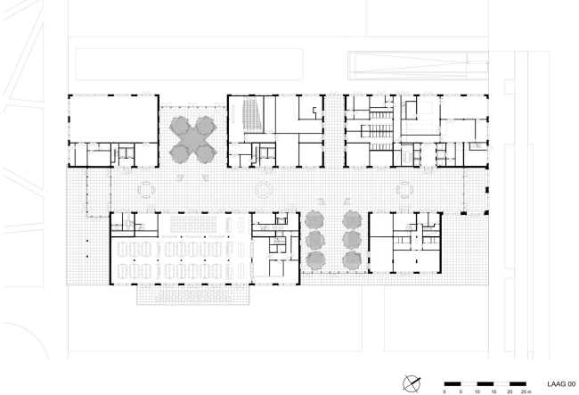
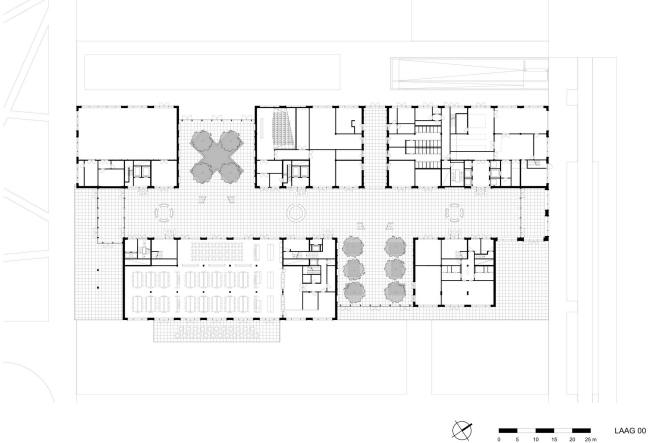
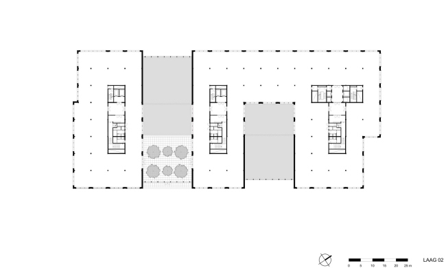
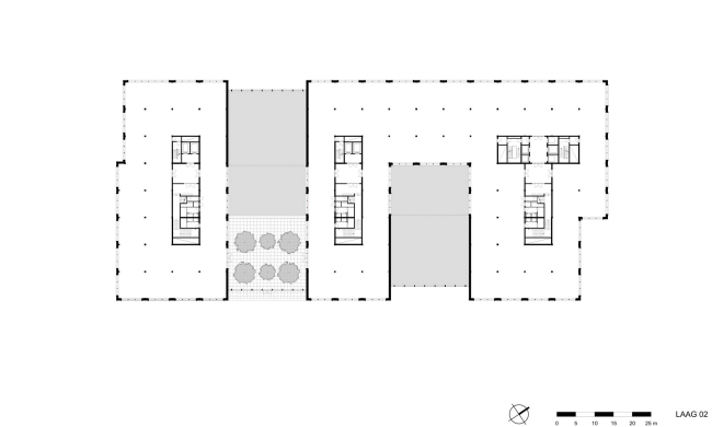
Корпус Германа Тейрлинка расположен рядом с Королевским складом – они служат своего рода воротами Тур-э-Такси – и потому по своей высоте ориентируется на него: в нем шесть этажей, что позволило создать более сложный план, чем в высотном здании. Однако доминанта в виде 13-этажной башни (60 метров) тоже есть.
 
Корпус Германа Тейрлинка © Filip Dujardin
Корпус Германа Тейрлинка © Filip Dujardin

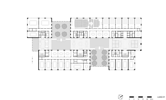
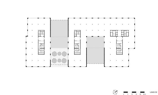
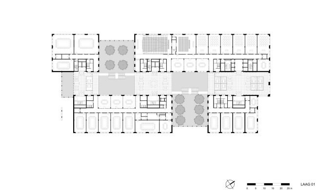
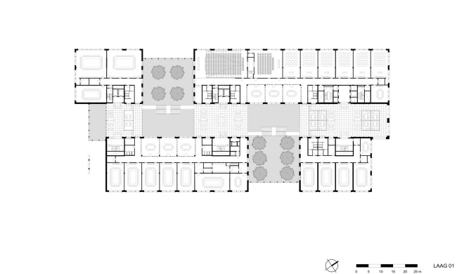
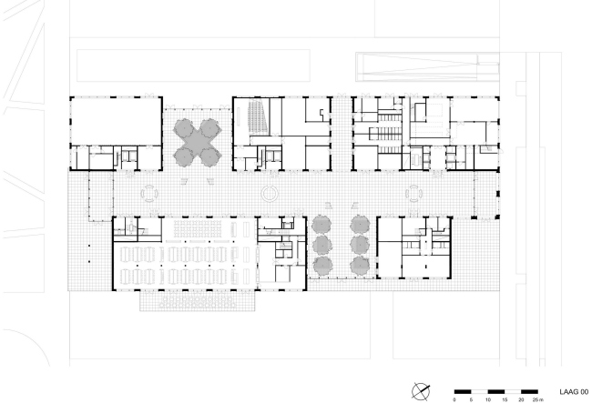
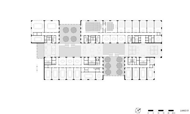
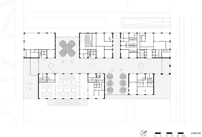
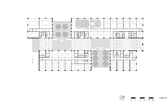
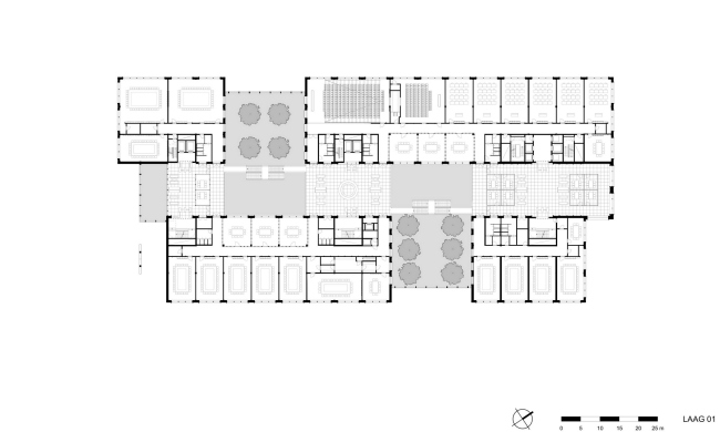
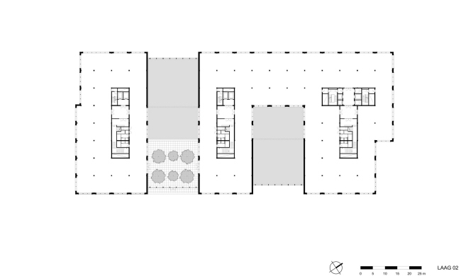
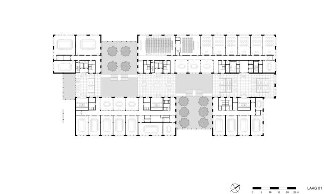
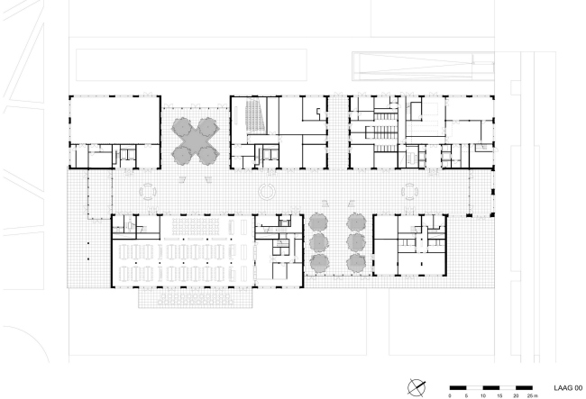
Напоминающий меандр план позволил разместить в здании не только 2600 сотрудников, но и просторные зимние сады, играющие также роль атриумов – источников естественного света, термических буферов и рекреационных зон. Кроме того, еще один зимний сад помещен на верхнем этаже башни. Офисные части шириной в 21 метр вмещают рабочие места ближе к краям, а по центру – лестнично-лифтовые и санитарные узлы, кофейные зоны. Проект разрабатывался в тесном сотрудничестве с правительством Фландрии и учитывает его текущие и будущие нужды, т.к. рассчитан на трансформацию. План основан на модуле в 7,2 м.
 
Корпус Германа Тейрлинка © Filip Dujardin
Корпус Германа Тейрлинка © Filip Dujardin

«Улица» на первом этаже объединяет общественные зоны – такое планировочное решение позаимствовано у Королевского склада. Вдоль нее находятся ресторан, столовая, аудитории, стойки портье, выставочное пространство, спортзал. На втором этаже вокруг центральных балконов, куда ведут парадные лестницы, помещены переговорные.
 
Корпус Германа Тейрлинка © Filip Dujardin
Корпус Германа Тейрлинка © Filip Dujardin

Среди эко-компонентов проекта, кроме зимних садов и естественного освещения – высокоэффективная изоляция оболочки, использование при строительстве вторсырья, ограничение площадей остекления, геотермальная система отопления и система охлаждения помещений, встроенная в железобетонные перекрытия, сбор дождевой воды и солнечные батареи. Все в целом делает корпус Германа Тейрлинка самым крупным «пассивным» офисным зданием в Бельгии (66 500 м2).
 
Корпус Германа Тейрлинка © Filip Dujardin
Корпус Германа Тейрлинка © Filip Dujardin

Особая тема – интеграция в проект произведений искусства: график Анри Якобс (Henri Jacobs) выполнил бетонные рельефы для наличников и перил лестниц в интерьере, Софи Нейс (Sophie Nys), Питер Вермерс (Pieter Vermeersch) и Аглая Конрад (Aglaia Konrad) оформили десять больших круглых плафонов растительными и минералогическими мотивами. Поэтесса Шарлотте Ван дер Брук (Charlotte Van den Broeck) сочинила стихотворение для фасада здания.
Корпус Германа Тейрлинка © Filip Dujardin
Корпус Германа Тейрлинка © Filip Dujardin
Корпус Германа Тейрлинка © Neutelings Riedijk Architects
Корпус Германа Тейрлинка © Neutelings Riedijk Architects
Корпус Германа Тейрлинка © Neutelings Riedijk Architects
Корпус Германа Тейрлинка © Neutelings Riedijk Architects
Корпус Германа Тейрлинка © Neutelings Riedijk Architects
Корпус Германа Тейрлинка © Neutelings Riedijk Architects
Корпус Германа Тейрлинка © Neutelings Riedijk Architects
Корпус Германа Тейрлинка © Neutelings Riedijk Architects
Корпус Германа Тейрлинка © Neutelings Riedijk Architects
Корпус Германа Тейрлинка © Neutelings Riedijk Architects
Корпус Германа Тейрлинка © Neutelings Riedijk Architects
Корпус Германа Тейрлинка © Neutelings Riedijk Architects
Корпус Германа Тейрлинка © Neutelings Riedijk Architects
Корпус Германа Тейрлинка © Neutelings Riedijk Architects
Корпус Германа Тейрлинка © Neutelings Riedijk Architects
Корпус Германа Тейрлинка © Neutelings Riedijk Architects
Корпус Германа Тейрлинка © Neutelings Riedijk Architects
Корпус Германа Тейрлинка © Neutelings Riedijk Architects
Корпус Германа Тейрлинка © Neutelings Riedijk Architects
Корпус Германа Тейрлинка © Neutelings Riedijk Architects
Корпус Германа Тейрлинка © Neutelings Riedijk Architects
Корпус Германа Тейрлинка © Neutelings Riedijk Architects
Корпус Германа Тейрлинка © Neutelings Riedijk Architects
Корпус Германа Тейрлинка © Neutelings Riedijk Architects
Корпус Германа Тейрлинка © Neutelings Riedijk Architects
Корпус Германа Тейрлинка © Neutelings Riedijk Architects
Корпус Германа Тейрлинка © Neutelings Riedijk Architects
Корпус Германа Тейрлинка © Neutelings Riedijk Architects
Корпус Германа Тейрлинка © Neutelings Riedijk Architects
Корпус Германа Тейрлинка © Neutelings Riedijk Architects
Корпус Германа Тейрлинка © Neutelings Riedijk Architects
Корпус Германа Тейрлинка © Neutelings Riedijk Architects
Корпус Германа Тейрлинка © Neutelings Riedijk Architects
Корпус Германа Тейрлинка © Neutelings Riedijk Architects
Корпус Германа Тейрлинка © Neutelings Riedijk Architects
Корпус Германа Тейрлинка © Neutelings Riedijk Architects