Размещено на портале Архи.ру (www.archi.ru)

09.10.2017

Блестящий экс-корт

Юлия Шишалова
Объект:
ЖК Capital towers
Адрес:
Россия, Москва. Краснопресненская набережная, вл. 14, стр. 1
Архитектор:
Сергей Скуратов
Мастерская:
Сергей Скуратов ARCHITECTS
Авторский коллектив:
Руководитель мастерской, авторского коллектива, автор проекта – Сергей Скуратов;
ГАП проекта, автор проекта – Иван Ильин;
авторы проекта, архитекторы: Дмитрий Холодов, Игорь Дошлыгин, Ярослав Акимов, Семен Морозов;
при участии: Наталья Алексеева, Николай Гай, Иван Матвеев, Елена Помигуева, Дарья Терехина; при участии на АК: Антон Котляров, Игорь Голубев.
Конструктор – Михаил Кельман.
Инженер – Александр Колубков.

Известные всем любителям большого тенниса корты на Краснопресненской набережной бюро Сергея Скуратова прячет внутри живописного парка и «наращивает» пластинами жилых небоскребов.

ЖК с подземной автостоянкой на Краснопресненской набережной © Сергей Скуратов ARCHITECTS
ЖК с подземной автостоянкой на Краснопресненской набережной © Сергей Скуратов ARCHITECTS

Место между территорией «Экспоцентра», ММДЦ «Москва-Сити», Краснопресненской набережной и парком «Красная Пресня» и впрямь в своем роде культовое: Сергей Скуратов рассказывает, что туда по выходным приходили с ракетками многие его друзья. К счастью, владельцы участка не планировали отказываться от этой функции и попросили архитектора спроектировать здесь современный теннисный центр и… высотный комплекс с элитным жильем.

Расчет девелопера Capital Group был логичным: площадка сама по себе «центровая», а расположенному по соседству комплексу «Москва-сити» полноценного жилья явно не хватало. На первой презентации архитекторы представили 20 вариантов будущего небоскреба – результат исследований, что в принципе можно построить в этом месте с точки зрения формообразования. «Нам хотелось максимально дистанцировать здание от «Москва-Сити», – вспоминает Сергей Скуратов. – Во-первых, мы собирались построить его в абсолютно другой стилистике. Во-вторых, хотелось ориентировать его больше на парк и набережную. И в-третьих, проверив видовые точки и условия инсоляции, мы определили некий угол по отношению к деловому центру, под которым поставили это здание. Получилось, что угол очень похож на тот, под которым Третье транспортное кольцо пересекает Москву-реку. Там в центре получается такой большой и почти равносторонний треугольник».
Визуальный анализ © Сергей Скуратов ARCHITECTS
Визуальный анализ © Сергей Скуратов ARCHITECTS
Схема видовых перспектив. ЖК с подземной автостоянкой на Краснопресненской набережной © Сергей Скуратов ARCHITECTS
Схема видовых перспектив. ЖК с подземной автостоянкой на Краснопресненской набережной © Сергей Скуратов ARCHITECTS

Среди вариантов, продуцируемых на тот момент при высотном ограничении в 200 метров, были и «рамы», и «лестницы», и «ежи». А тот, что Скуратов предлагал как основной, представлял собой пластину с супертехнологичными фасадами – рельефными, «зыбкими», со сложной системой внутренних связей. Все это многообразие заказчика одновременно и напугало, и впечатлило. Напугало – потому что возникало ощущение, что ничто из этого никогда не согласовать и не построить. Впечатлило – глубиной подхода, масштабом мышления, бурей креатива.
Варианты и поиск темы. ЖК с подземной автостоянкой на Краснопресненской набережной © Сергей Скуратов ARCHITECTS
Варианты и поиск темы. ЖК с подземной автостоянкой на Краснопресненской набережной © Сергей Скуратов ARCHITECTS
ЖК с подземной автостоянкой на Краснопресненской набережной. Эскизы © Сергей Скуратов ARCHITECTS
ЖК с подземной автостоянкой на Краснопресненской набережной. Эскизы © Сергей Скуратов ARCHITECTS
Варианты и поиск темы. ЖК с подземной автостоянкой на Краснопресненской набережной © Сергей Скуратов ARCHITECTS
Варианты и поиск темы. ЖК с подземной автостоянкой на Краснопресненской набережной © Сергей Скуратов ARCHITECTS
Варианты и поиск темы. ЖК с подземной автостоянкой на Краснопресненской набережной © Сергей Скуратов ARCHITECTS
Варианты и поиск темы. ЖК с подземной автостоянкой на Краснопресненской набережной © Сергей Скуратов ARCHITECTS
ЖК с подземной автостоянкой на Краснопресненской набережной. Варианты. Силуэтная схема
ЖК с подземной автостоянкой на Краснопресненской набережной. Варианты. Силуэтная схема
© Сергей Скуратов ARCHITECTS

Поиски формы продолжились, и вместо одной пластины появилось три – еще более изящных и тонких от того, что их высоту удалось «вытянуть» с 200 до 267 метров: итоговая «толщина» корпусов – 21 метр, что для небоскреба очень немного.
ЖК с подземной автостоянкой на Краснопресненской набережной © Сергей Скуратов ARCHITECTS
ЖК с подземной автостоянкой на Краснопресненской набережной © Сергей Скуратов ARCHITECTS

«Суперстройные» башни – вообще модный тренд: сейчас такими застраивают Манхеттен. Противоестественная «худоба» – их главная фишка: ты будто постоянно бросаешь вызов природе, живя в здании, которое, кажется, вот-вот рухнет. Это как балансировать на краю пропасти – удовольствие для богатых и сильных мира сего. Один из таких небоскребов по заказу Five Points Development проектирует в Нью-Йорке бюро «Меганом».

Впрочем, надо отметить, что в варианте Скуратова «стройность» – не экстремальная и даже комфортная. Башни, установленные на «зеленый» подиум, связывающий воедино общественные пространства комплекса, ориентированы на парк и узкими, торцевыми фасадами выходят точно на воду. Они не спорят между собой и не заслоняют друг друга. Их взаимное расположение можно было бы счесть простым, если бы не выверенные расстояния с точки зрения композиции, видов, инсоляции. «Первая башня стоит на оси первой линии «Москва-сити», вторая – на оси той улицы, которая разделяет первую линию и “Афимолл”, а дальняя башня – по оси “Афимолла”», – объясняет Сергей.
ЖК с подземной автостоянкой на Краснопресненской набережной. Композиционные оси «Москва Сити»
ЖК с подземной автостоянкой на Краснопресненской набережной. Композиционные оси «Москва Сити»
© Сергей Скуратов ARCHITECTS

Размещение корпусов отчасти определило и направление динамики фасадов: как это всегда бывает у Скуратова, материи, которыми он оперирует, – гораздо тоньше и глубже, чем кажутся. Вверх и вперед к воде поверхности из высокотехнологичного стекла (прямо в них интегрированы клапаны приточной вентиляции, солнце- и теплозащита) постепенно «истончаются» и растворяются. Реалистичности эффекта способствует использование особого осветленного стекла («Мои небоскребы будут самыми светлыми из всего окружения!» – утверждает архитектор). А при движении вглубь участка – напротив, фасады становятся более материальными благодаря все четче проступающим и заявляющим о себе алюминиевым ламелям, которые как раз закрывают собой вентиляционные решетки.
ЖК с подземной автостоянкой на Краснопресненской набережной. Ламели © Сергей Скуратов ARCHITECTS
ЖК с подземной автостоянкой на Краснопресненской набережной. Ламели © Сергей Скуратов ARCHITECTS
ЖК с подземной автостоянкой на Краснопресненской набережной. Ламели © Сергей Скуратов ARCHITECTS
ЖК с подземной автостоянкой на Краснопресненской набережной. Ламели © Сергей Скуратов ARCHITECTS
ЖК с подземной автостоянкой на Краснопресненской набережной. Ламели © Сергей Скуратов ARCHITECTS
ЖК с подземной автостоянкой на Краснопресненской набережной. Ламели © Сергей Скуратов ARCHITECTS

В пластике фасадных объемов есть еще одна особенность – М-образные «выемки» с тех торцов, которые обращены к реке. И если консольный «вырез» в ближайшей к воде башне сделан специально, чтобы не перекрыть вид на «Москва-сити» тем, кто прогуливается по набережной, то для «выемок» функционального резона нет. Сам Скуратов размышляет об образе «сжатого» фасада, который принимает на себя давление пустоты пространства Москва-реки. Кому-то привидятся аллюзии на кремлевскую стену, намек на «московскость» этих объектов – и они тоже окажутся недалеки от истины.
ЖК с подземной автостоянкой на Краснопресненской набережной © Сергей Скуратов ARCHITECTS
ЖК с подземной автостоянкой на Краснопресненской набережной © Сергей Скуратов ARCHITECTS
ЖК с подземной автостоянкой на Краснопресненской набережной © Сергей Скуратов ARCHITECTS
ЖК с подземной автостоянкой на Краснопресненской набережной © Сергей Скуратов ARCHITECTS
ЖК с подземной автостоянкой на Краснопресненской набережной © Сергей Скуратов ARCHITECTS
ЖК с подземной автостоянкой на Краснопресненской набережной © Сергей Скуратов ARCHITECTS

Достаточно очевидно, что проект развивался от вариативного и насыщенного – к тонкому и, вероятно, единственно возможному лаконичному решению, через отсечение лишнего. Ближайший контекст башен составляет группа небоскребов Москва-Сити, так что здесь нельзя было ошибиться – Сергей Скуратов рассказывает, что некоторое время он даже сомневался в том, нужны ли в этом месте небоскребы вообще... Но так или иначе, соседство леса башен предъявляет к выросшему поблизости «дереву» немалые требования: нужно поддержать планку, быть не хуже, а желательно – лучше всех. Поэтому выбрано светлое стекло, сталь, современные материалы и в то же время – легкая, простая форма.

Впрочем, назвать башни «простыми» никак нельзя – как любое 200-метровое сооружение, они крайне сложны в инженерном отношении, из-за высоты и тонкого силуэта, необходимости бороться с парусностью – этими проблемами в бюро занимается Михаил Кельман. Кроме того разработана уникальная для России система вентиляции и обогрева: она использует тонкие щели, расположенные в квартирах перед фасадами и допускает индивидуальные настройки для каждой квартиры, – эту систему разработал Александр Колубков.

Сложность задачи также была обусловлена и смешанной функцией: помимо того, что башни стоят на пятиярусной подземной парковке, а стилобат вмещает двухъярусное общественное пространство с ритейлом, собственно башни совмещают жилье и офисы. Одна из них, стоящая дальше других от реки – полностью жилая, в другой офисы занимают нижнюю часть, в третьей верхнюю – все они снабжены отдельными входами, лобби и лифтами, в том числе скоростными.
ЖК с подземной автостоянкой на Краснопресненской набережной. Схема распределения функций небоскребов © Сергей Скуратов ARCHITECTS
ЖК с подземной автостоянкой на Краснопресненской набережной. Схема распределения функций небоскребов © Сергей Скуратов ARCHITECTS

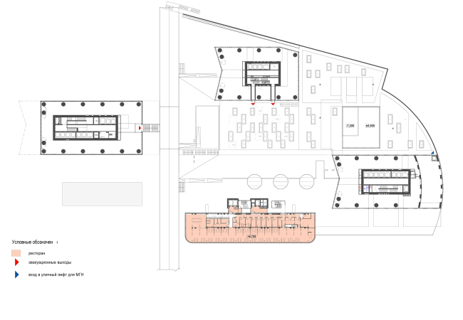
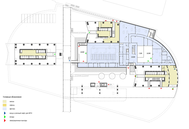
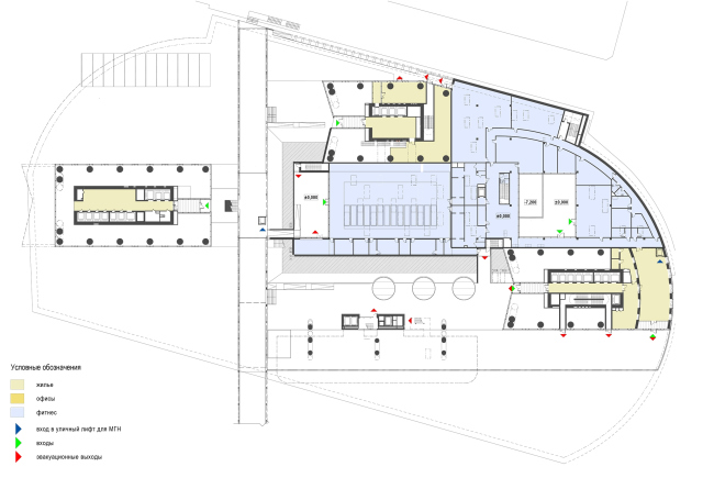
Вторую, не менее важную составляющую genius loci проекта определяют соседство парка и воспоминание о старых кортах, которым в составе комплекса наследует, как мы помним, полуподземная теннисная часть с развитым пространственным сюжетом. Кортам отведена восточная часть территории – треугольник рядом с границей краснопресненского парка, отделенной от башен безымянным проездом; здесь нельзя было строить, но разместить спортивную инфраструктуру с зеленой кровлей – можно. Один из кортов – открытый – занимает лужайку со стороны входного прозрачного павильона. Через него открывается доступ в большой общественный центр с фитнес-клубом, бассейном, супермаркетом, кафе, рестораном и пятиуровневой подземной автостоянкой. Приподнимая поверхность участка на высоту чуть больше 4 метров, зеленая кровля павильона становится «трамплином» для организации здесь амфитеатра с живописным видом на набережную.
ЖК с подземной автостоянкой на Краснопресненской набережной. Подземные теннисные корты. Перспектива 2 © Сергей Скуратов ARCHITECTS
ЖК с подземной автостоянкой на Краснопресненской набережной. Подземные теннисные корты. Перспектива 2 © Сергей Скуратов ARCHITECTS
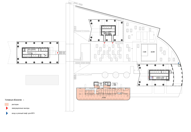
ЖК с подземной автостоянкой на Краснопресненской набережной. Подземные теннисные корты. План цокольного этажа на отметке 0,000 © Сергей Скуратов ARCHITECTS
ЖК с подземной автостоянкой на Краснопресненской набережной. Подземные теннисные корты. План цокольного этажа на отметке 0,000 © Сергей Скуратов ARCHITECTS
ЖК с подземной автостоянкой на Краснопресненской набережной. Подземные теннисные корты. Схема конструкции 1 © Сергей Скуратов ARCHITECTS
ЖК с подземной автостоянкой на Краснопресненской набережной. Подземные теннисные корты. Схема конструкции 1 © Сергей Скуратов ARCHITECTS
ЖК с подземной автостоянкой на Краснопресненской набережной. Подземные теннисные корты. Подземные теннисные корты. Разрезы © Сергей Скуратов ARCHITECTS
ЖК с подземной автостоянкой на Краснопресненской набережной. Подземные теннисные корты. Подземные теннисные корты. Разрезы © Сергей Скуратов ARCHITECTS
ЖК с подземной автостоянкой на Краснопресненской набережной. Подземные теннисные корты. Схема конструкции 3,4 © Сергей Скуратов ARCHITECTS
ЖК с подземной автостоянкой на Краснопресненской набережной. Подземные теннисные корты. Схема конструкции 3,4 © Сергей Скуратов ARCHITECTS

Основная же часть кортов спрятаны под землей – 7 спортивных залов отделены друг от друга звуконепроницаемыми стеклянными перегородками и скомпонованы вокруг центрального пространства, зияющего в зеленой «крыше» треугольным вырезом. Через него просматривается почти все внутреннее пространство кортов. А из них, в свою очередь, видны холм и зелень. В теплое время года верхние витражи перегородок можно открыть, впустив внутрь не только свет, но и воздух. Таких кортов с заглублением под землю почти на 16 метров до Скуратова, кажется, никто не делал.
ЖК с подземной автостоянкой на Краснопресненской набережной. Подземные теннисные корты. Перспектива 1 © Сергей Скуратов ARCHITECTS
ЖК с подземной автостоянкой на Краснопресненской набережной. Подземные теннисные корты. Перспектива 1 © Сергей Скуратов ARCHITECTS
ЖК с подземной автостоянкой на Краснопресненской набережной © Сергей Скуратов ARCHITECTS
ЖК с подземной автостоянкой на Краснопресненской набережной © Сергей Скуратов ARCHITECTS
ЖК с подземной автостоянкой на Краснопресненской набережной. Подземные теннисные корты. Перспектива 9 © Сергей Скуратов ARCHITECTS
ЖК с подземной автостоянкой на Краснопресненской набережной. Подземные теннисные корты. Перспектива 9 © Сергей Скуратов ARCHITECTS
ЖК с подземной автостоянкой на Краснопресненской набережной. Подземные теннисные корты. Перспектива 6 © Сергей Скуратов ARCHITECTS
ЖК с подземной автостоянкой на Краснопресненской набережной. Подземные теннисные корты. Перспектива 6 © Сергей Скуратов ARCHITECTS
ЖК с подземной автостоянкой на Краснопресненской набережной. Подземные теннисные корты. Перспектива 9 © Сергей Скуратов ARCHITECTS
ЖК с подземной автостоянкой на Краснопресненской набережной. Подземные теннисные корты. Перспектива 9 © Сергей Скуратов ARCHITECTS
ЖК с подземной автостоянкой на Краснопресненской набережной. Подземные теннисные корты. Перспектива 7 © Сергей Скуратов ARCHITECTS
ЖК с подземной автостоянкой на Краснопресненской набережной. Подземные теннисные корты. Перспектива 7 © Сергей Скуратов ARCHITECTS

Кроме амфитеатра и «теннисного окна» уютный зеленый «двор» на крыше павильона дополнит искусственный пруд и детская площадка. Здесь же на наклонных консолях «подвесят» объем еще одного видового ресторана.
ЖК с подземной автостоянкой на Краснопресненской набережной © Сергей Скуратов ARCHITECTS
ЖК с подземной автостоянкой на Краснопресненской набережной © Сергей Скуратов ARCHITECTS

Но главной архитектурной доминантой (не считая «растворившихся» где-то в вышине башен) станет пешеходный мост, переброшенный через дорогу между набережной и Красногвардейским проездом и соединяющий жилые корпуса со смотровой площадкой над парком. Этот «мост в никуда» на самом деле приведет прямиком в эпицентр культурной жизни: в перспективе его планируется дополнительно остеклить, утеплить и в итоге превратить в просторную арт-галерею (недаром ширина моста 4 метра, а длина – более 100).
ЖК с подземной автостоянкой на Краснопресненской набережной © Сергей Скуратов ARCHITECTS
ЖК с подземной автостоянкой на Краснопресненской набережной © Сергей Скуратов ARCHITECTS
ЖК с подземной автостоянкой на Краснопресненской набережной © Сергей Скуратов ARCHITECTS
ЖК с подземной автостоянкой на Краснопресненской набережной © Сергей Скуратов ARCHITECTS
ЖК с подземной автостоянкой на Краснопресненской набережной © Сергей Скуратов ARCHITECTS
ЖК с подземной автостоянкой на Краснопресненской набережной © Сергей Скуратов ARCHITECTS
ЖК с подземной автостоянкой на Краснопресненской набережной © Сергей Скуратов ARCHITECTS
ЖК с подземной автостоянкой на Краснопресненской набережной © Сергей Скуратов ARCHITECTS
ЖК с подземной автостоянкой на Краснопресненской набережной / проект
ЖК с подземной автостоянкой на Краснопресненской набережной / проект
© Сергей Скуратов ARCHITECTS
ЖК с подземной автостоянкой на Краснопресненской набережной © Сергей Скуратов ARCHITECTS
ЖК с подземной автостоянкой на Краснопресненской набережной © Сергей Скуратов ARCHITECTS
ЖК с подземной автостоянкой на Краснопресненской набережной © Сергей Скуратов ARCHITECTS
ЖК с подземной автостоянкой на Краснопресненской набережной © Сергей Скуратов ARCHITECTS
ЖК с подземной автостоянкой на Краснопресненской набережной © Сергей Скуратов ARCHITECTS
ЖК с подземной автостоянкой на Краснопресненской набережной © Сергей Скуратов ARCHITECTS
ЖК с подземной автостоянкой на Краснопресненской набережной © Сергей Скуратов ARCHITECTS
ЖК с подземной автостоянкой на Краснопресненской набережной © Сергей Скуратов ARCHITECTS
ЖК с подземной автостоянкой на Краснопресненской набережной © Сергей Скуратов ARCHITECTS
ЖК с подземной автостоянкой на Краснопресненской набережной © Сергей Скуратов ARCHITECTS

Строительство комплекса уже началось и закончится по плану в 2020 году. Гораздо раньше на участке появится спроектированный бюро Скуратова офис продаж. Это будет мини-версия одной из башен – шестиэтажный стеклянный объем. Внутри представят шесть же вариантов стилистики и отделки для интерьеров, которые разработает Антонио Читтерио. Он берет на себя все квартиры и пентхаусы, а вот высоченные 20-метровые вестибюли Скуратов и итальянец будут делать вместе. Интересно посмотреть, как стильную простоту первого оттенит нарочитая буржуазность второго.
ЖК с подземной автостоянкой на Краснопресненской набережной. Интерьер © Сергей Скуратов ARCHITECTS
ЖК с подземной автостоянкой на Краснопресненской набережной. Интерьер © Сергей Скуратов ARCHITECTS
ЖК с подземной автостоянкой на Краснопресненской набережной. Интерьер © Сергей Скуратов ARCHITECTS
ЖК с подземной автостоянкой на Краснопресненской набережной. Интерьер © Сергей Скуратов ARCHITECTS
ЖК с подземной автостоянкой на Краснопресненской набережной. Интерьер © Сергей Скуратов ARCHITECTS
ЖК с подземной автостоянкой на Краснопресненской набережной. Интерьер © Сергей Скуратов ARCHITECTS

Впрочем, «на виду» окажутся прежде всего сами высотные корпуса – и в этом, по словам Сергея, состоит главный вызов при строительстве небоскреба: здание просматривается со всех сторон, и все твои ошибки и промахи оказываются общественным достоянием. Это гиперответственность перед городом, и, как в любом масштабном проекте, вряд ли удастся обойтись без проблем.

Но Скуратов, как известно, не из пугливых. Он принимает подачу.
 
ЖК с подземной автостоянкой на Краснопресненской набережной. Технические помещения
ЖК с подземной автостоянкой на Краснопресненской набережной. Технические помещения
© Сергей Скуратов ARCHITECTS
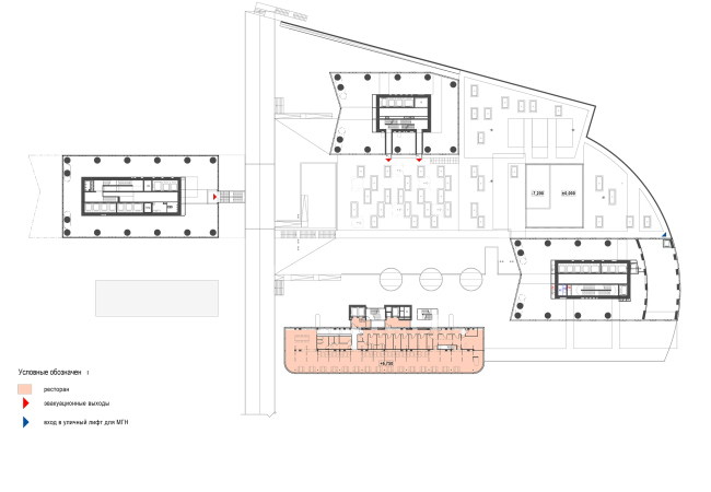
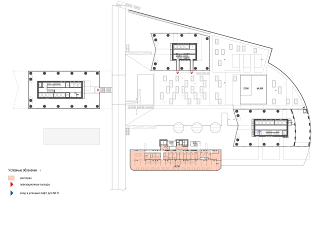
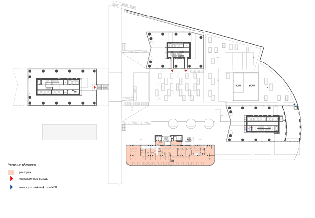
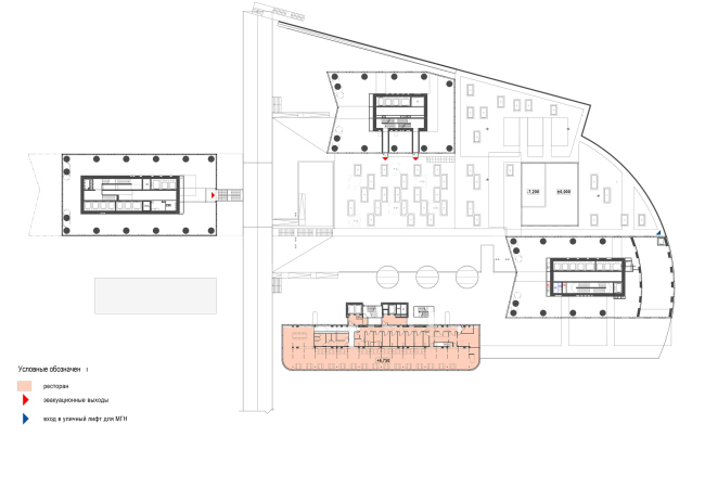
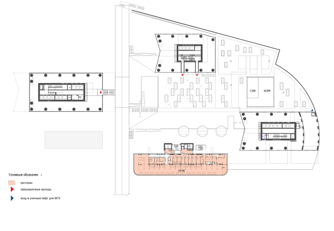
ЖК с подземной автостоянкой на Краснопресненской набережной. 3 этаж на отметке 6,750 © Сергей Скуратов ARCHITECTS
ЖК с подземной автостоянкой на Краснопресненской набережной. 3 этаж на отметке 6,750 © Сергей Скуратов ARCHITECTS
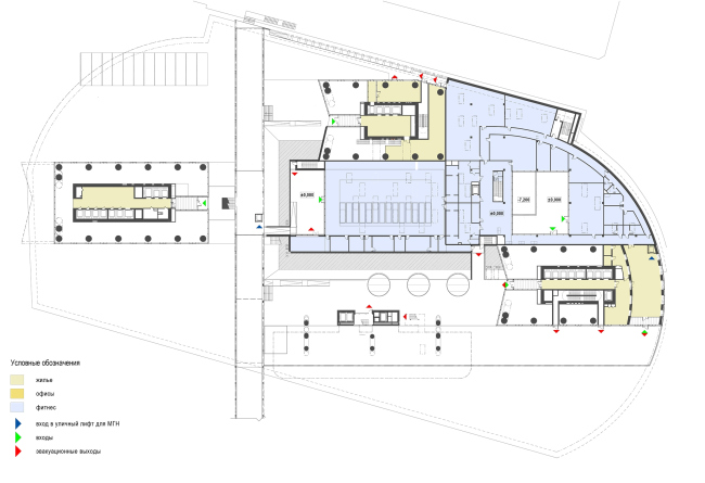
ЖК с подземной автостоянкой на Краснопресненской набережной. 2 этаж на отметке 0,000 © Сергей Скуратов ARCHITECTS
ЖК с подземной автостоянкой на Краснопресненской набережной. 2 этаж на отметке 0,000 © Сергей Скуратов ARCHITECTS
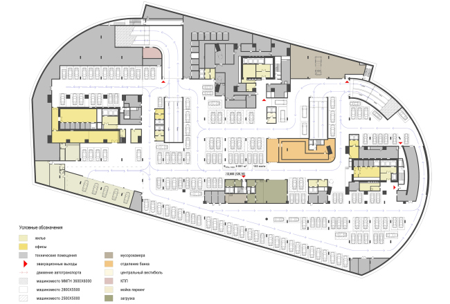
ЖК с подземной автостоянкой на Краснопресненской набережной. 1 этаж на отметке -7,200 © Сергей Скуратов ARCHITECTS
ЖК с подземной автостоянкой на Краснопресненской набережной. 1 этаж на отметке -7,200 © Сергей Скуратов ARCHITECTS
ЖК с подземной автостоянкой на Краснопресненской набережной. -1 этаж на отметке -12,600 © Сергей Скуратов ARCHITECTS
ЖК с подземной автостоянкой на Краснопресненской набережной. -1 этаж на отметке -12,600 © Сергей Скуратов ARCHITECTS
ЖК с подземной автостоянкой на Краснопресненской набережной. -2 этаж на отметке -16,500 © Сергей Скуратов ARCHITECTS
ЖК с подземной автостоянкой на Краснопресненской набережной. -2 этаж на отметке -16,500 © Сергей Скуратов ARCHITECTS
ЖК с подземной автостоянкой на Краснопресненской набережной. -3 этаж на отметке -20,400 © Сергей Скуратов ARCHITECTS
ЖК с подземной автостоянкой на Краснопресненской набережной. -3 этаж на отметке -20,400 © Сергей Скуратов ARCHITECTS
ЖК с подземной автостоянкой на Краснопресненской набережной. -4 этаж на отметке -24,300 © Сергей Скуратов ARCHITECTS
ЖК с подземной автостоянкой на Краснопресненской набережной. -4 этаж на отметке -24,300 © Сергей Скуратов ARCHITECTS
ЖК с подземной автостоянкой на Краснопресненской набережной. -5 этаж на отметке -28,200 © Сергей Скуратов ARCHITECTS
ЖК с подземной автостоянкой на Краснопресненской набережной. -5 этаж на отметке -28,200 © Сергей Скуратов ARCHITECTS
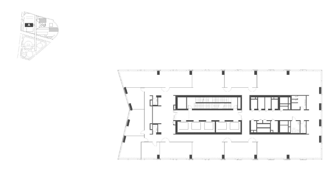
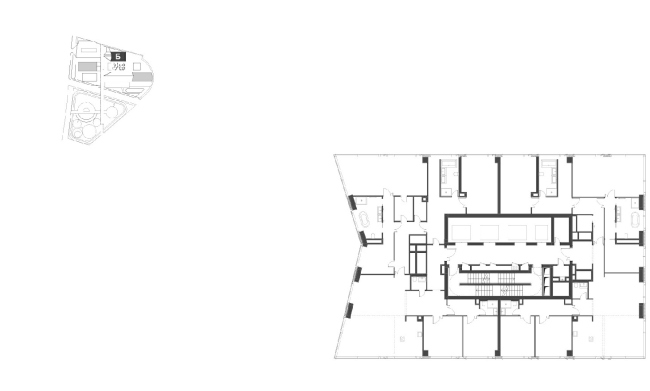
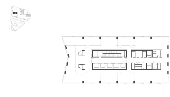
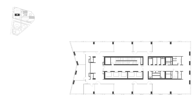
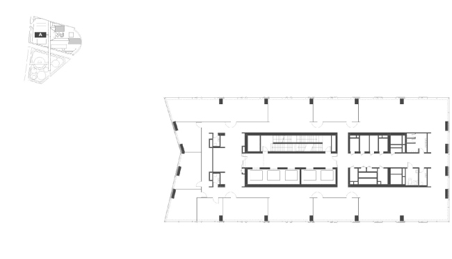
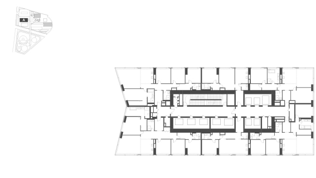
ЖК с подземной автостоянкой на Краснопресненской набережной. Блок «А». 58 этаж (офисный) © Сергей Скуратов ARCHITECTS
ЖК с подземной автостоянкой на Краснопресненской набережной. Блок «А». 58 этаж (офисный) © Сергей Скуратов ARCHITECTS
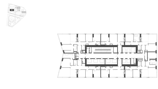
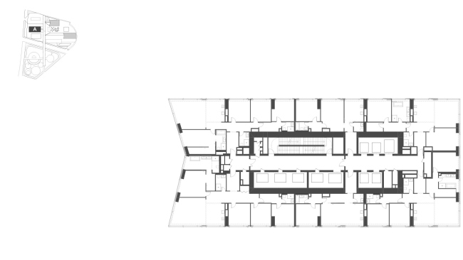
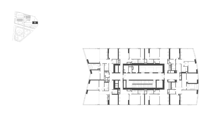
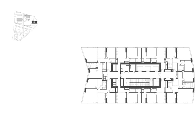
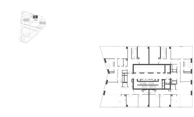
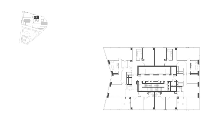
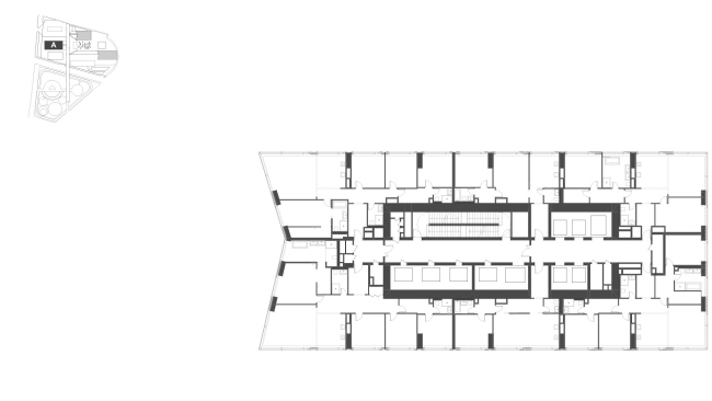
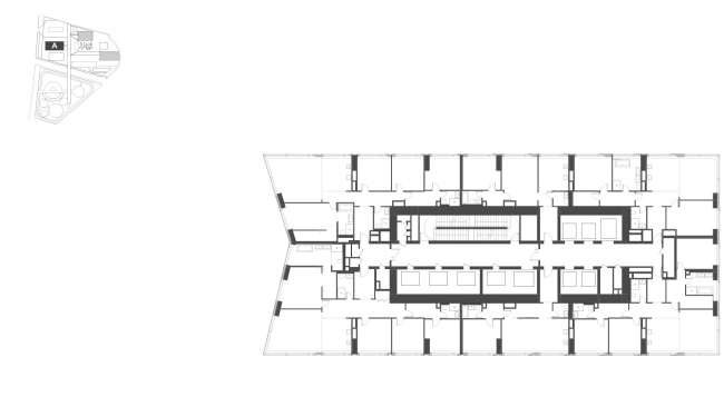
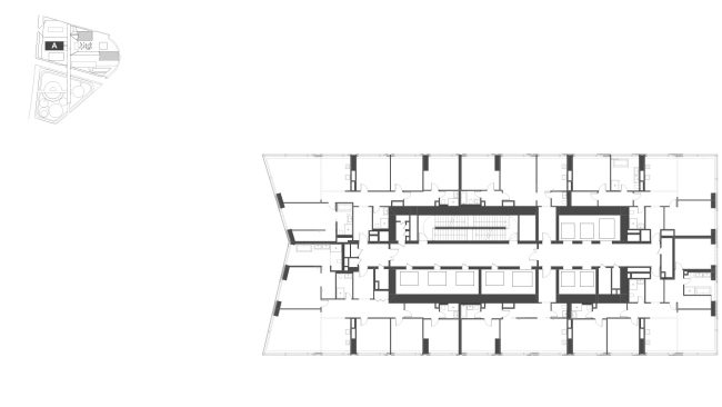
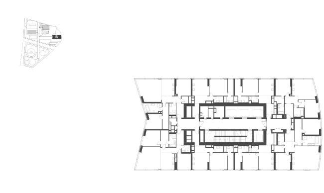
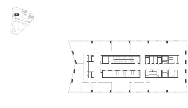
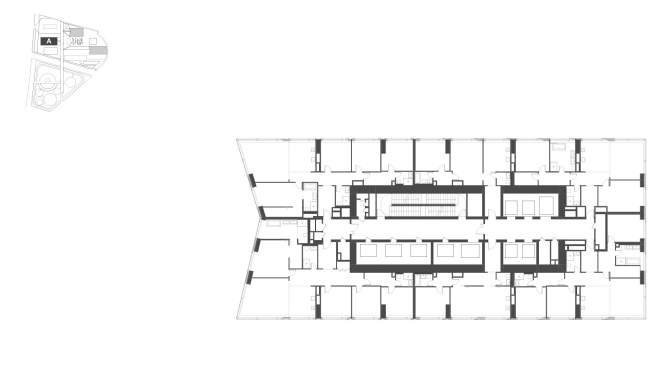
ЖК с подземной автостоянкой на Краснопресненской набережной. Блок «А», 4-16 этаж © Сергей Скуратов ARCHITECTS
ЖК с подземной автостоянкой на Краснопресненской набережной. Блок «А», 4-16 этаж © Сергей Скуратов ARCHITECTS
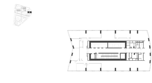
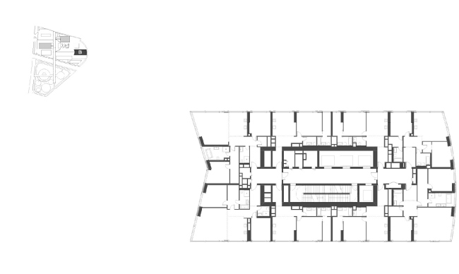
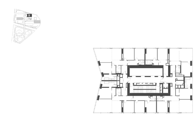
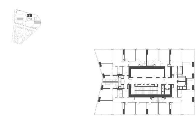
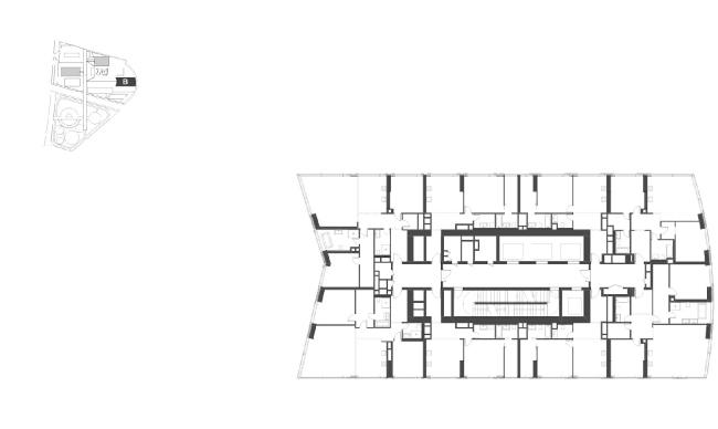
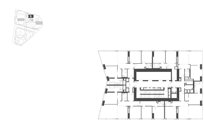
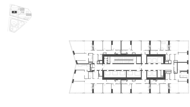
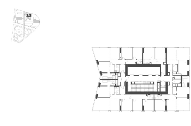
ЖК с подземной автостоянкой на Краснопресненской набережной. Блок «Б». 4-16 этаж © Сергей Скуратов ARCHITECTS
ЖК с подземной автостоянкой на Краснопресненской набережной. Блок «Б». 4-16 этаж © Сергей Скуратов ARCHITECTS
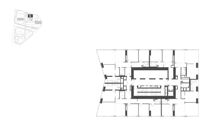
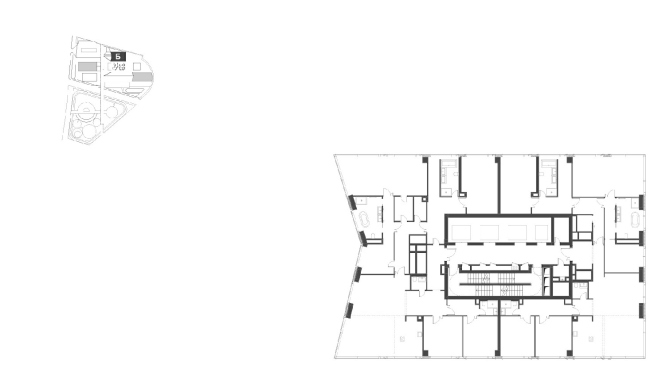
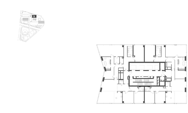
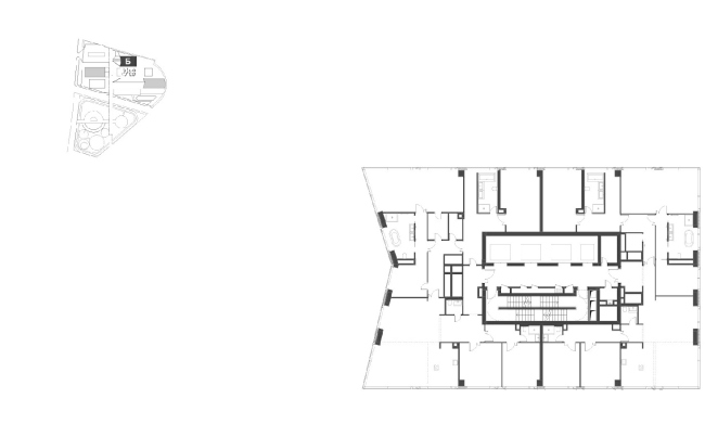
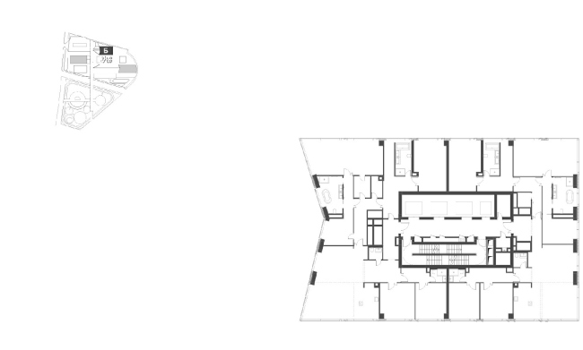
ЖК с подземной автостоянкой на Краснопресненской набережной. Блок «Б». 60 этаж (пентхаус) © Сергей Скуратов ARCHITECTS
ЖК с подземной автостоянкой на Краснопресненской набережной. Блок «Б». 60 этаж (пентхаус) © Сергей Скуратов ARCHITECTS
ЖК с подземной автостоянкой на Краснопресненской набережной. Блок «В». 15-16 этаж (офис) © Сергей Скуратов ARCHITECTS
ЖК с подземной автостоянкой на Краснопресненской набережной. Блок «В». 15-16 этаж (офис) © Сергей Скуратов ARCHITECTS
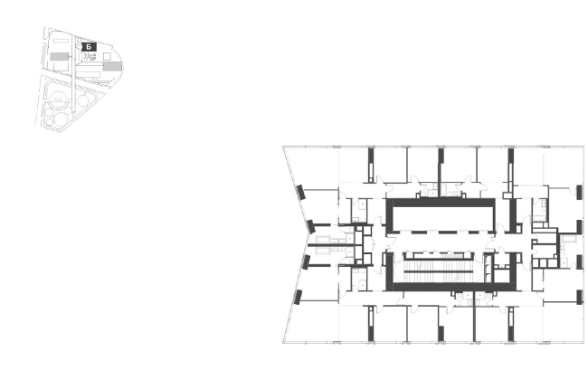
ЖК с подземной автостоянкой на Краснопресненской набережной. Блок «В». 18-23 этаж © Сергей Скуратов ARCHITECTS
ЖК с подземной автостоянкой на Краснопресненской набережной. Блок «В». 18-23 этаж © Сергей Скуратов ARCHITECTS
ЖК с подземной автостоянкой на Краснопресненской набережной. Развертка по проектируемому проезду © Сергей Скуратов ARCHITECTS
ЖК с подземной автостоянкой на Краснопресненской набережной. Развертка по проектируемому проезду © Сергей Скуратов ARCHITECTS
ЖК с подземной автостоянкой на Краснопресненской набережной. Развертка по набережной © Сергей Скуратов ARCHITECTS
ЖК с подземной автостоянкой на Краснопресненской набережной. Развертка по набережной © Сергей Скуратов ARCHITECTS
ЖК с подземной автостоянкой на Краснопресненской набережной. Разрез 1-1 © Сергей Скуратов ARCHITECTS
ЖК с подземной автостоянкой на Краснопресненской набережной. Разрез 1-1 © Сергей Скуратов ARCHITECTS
ЖК с подземной автостоянкой на Краснопресненской набережной. Ситуационный план © Сергей Скуратов ARCHITECTS
ЖК с подземной автостоянкой на Краснопресненской набережной. Ситуационный план © Сергей Скуратов ARCHITECTS