Размещено на портале Архи.ру (www.archi.ru)

06.09.2017

Белая башня для Белого города

Нина Фролова
Объект:
Башня Rothschild Tower
Адрес:
Израиль, None,

Жилой небоскреб Rothschild Tower в Тель-Авиве по проекту бюро Ричарда Майера.

Башня Rothschild Tower © Roland Halbe
Башня Rothschild Tower © Roland Halbe

В Тель-Авиве полностью завершена 154-метровая башня Rothschild Tower на углу бульвара Ротшильда и улицы Алленби: для Ричарда Майера это первый жилой небоскреб за пределами США и первая постройка в Израиле.
 
Башня Rothschild Tower © Roland Halbe
Башня Rothschild Tower © Roland Halbe

Здание с бетонным каркасом закрыто навесным фасадом из прозрачного стекла, снаружи защищенного от солнца легким экраном: это отсылка к традиционным ближневосточным накидкам и вуалям, а также к наружным жалюзи-трисам, характерным для местной жилой застройки.
 
Башня Rothschild Tower © Roland Halbe
Башня Rothschild Tower © Roland Halbe

Характерный для работ Майера белый цвет и «проницаемость» фасадов призваны выделить башню среди других высотных зданий Тель-Авива, как правило, гораздо более массивных. На уровне земли легкость была еще более важна: чтобы не нарушать оживленность первых этажей бульвара Ротшильда, авторы проекта использовали столбы-пилоти, разместили на первом ярусе просторный вестибюль, магазины и сад.
 
Башня Rothschild Tower © Roland Halbe
Башня Rothschild Tower © Roland Halbe

Важной основой для проекта стали здания Белого города, района Тель-Авива, застроенного в 1930-е – 1950-е годы в русле современного движения и ныне включенного в список Всемирного наследия ЮНЕСКО: как раз в его сердце находится Rothschild Tower. Помимо общего духа, в проекте использованы подчеркнутые угловые балконы, характерные для домов того периода.
Башня Rothschild Tower © Roland Halbe
Башня Rothschild Tower © Roland Halbe
Башня Rothschild Tower © Roland Halbe
Башня Rothschild Tower © Roland Halbe
Башня Rothschild Tower © Roland Halbe
Башня Rothschild Tower © Roland Halbe
Башня Rothschild Tower © Roland Halbe
Башня Rothschild Tower © Roland Halbe
Башня Rothschild Tower © Scott Frances
Башня Rothschild Tower © Scott Frances
Башня Rothschild Tower © Scott Frances
Башня Rothschild Tower © Scott Frances
Башня Rothschild Tower © Scott Frances
Башня Rothschild Tower © Scott Frances
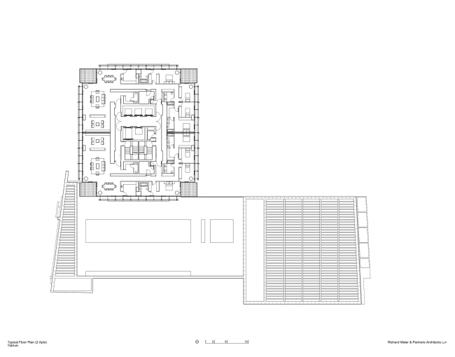
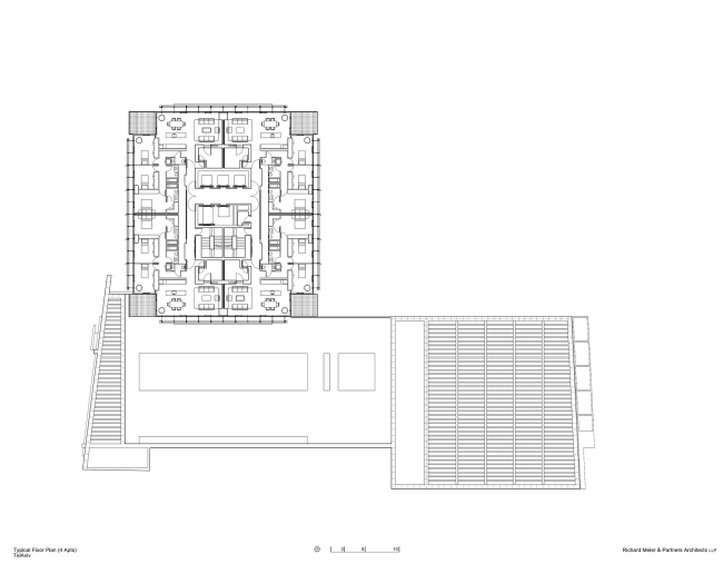
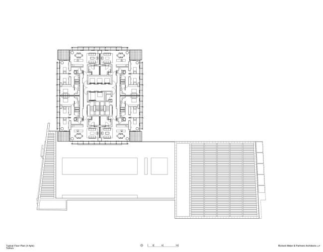
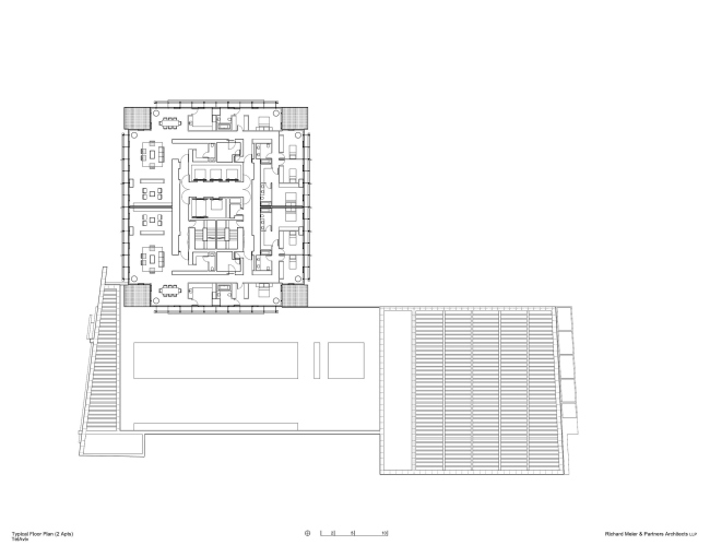
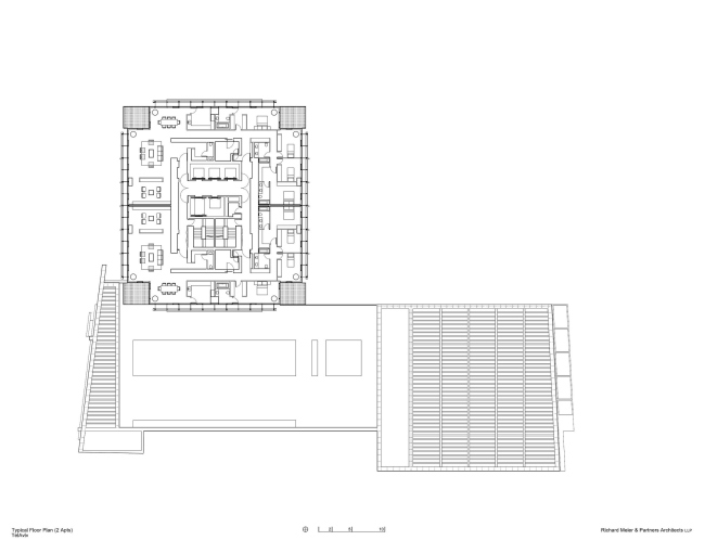
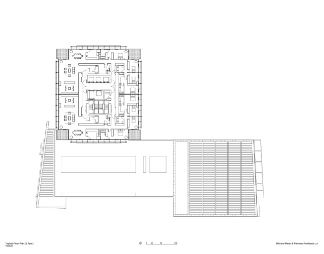
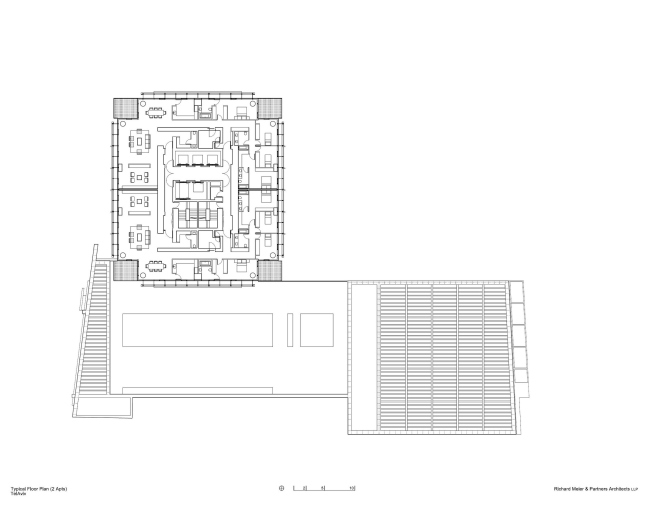
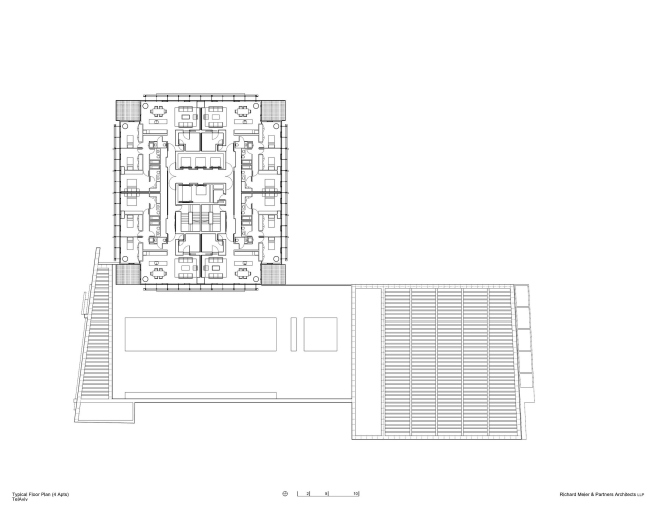
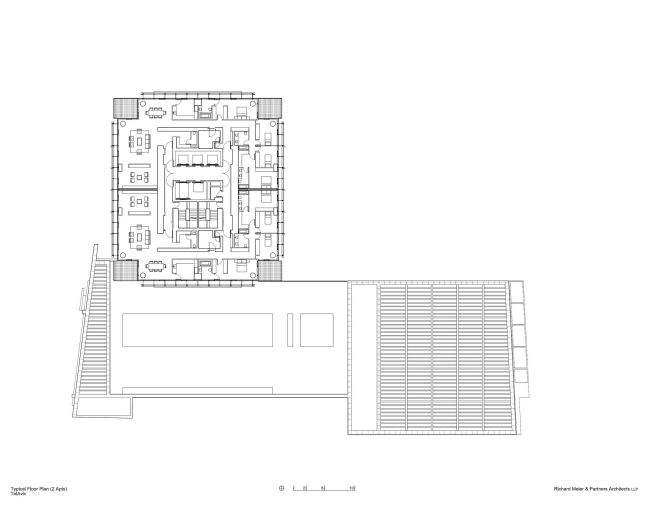
Башня Rothschild Tower © Richard Meier & Partners Architects
Башня Rothschild Tower © Richard Meier & Partners Architects
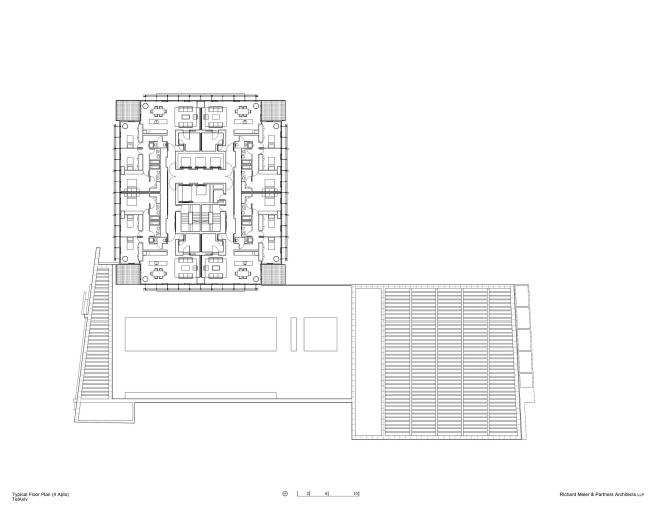
Башня Rothschild Tower © Richard Meier & Partners Architects
Башня Rothschild Tower © Richard Meier & Partners Architects
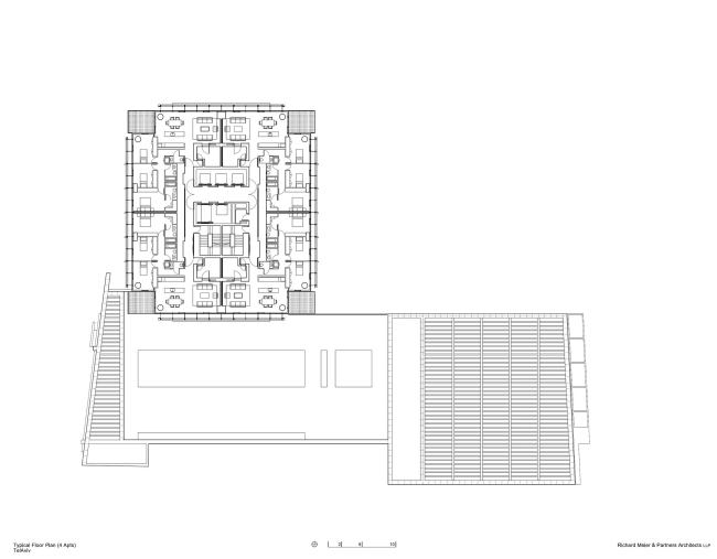
Башня Rothschild Tower © Richard Meier & Partners Architects
Башня Rothschild Tower © Richard Meier & Partners Architects
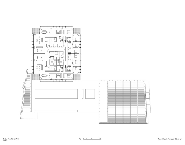
Башня Rothschild Tower © Richard Meier & Partners Architects
Башня Rothschild Tower © Richard Meier & Partners Architects
Башня Rothschild Tower © Richard Meier & Partners Architects
Башня Rothschild Tower © Richard Meier & Partners Architects
Башня Rothschild Tower © Richard Meier & Partners Architects
Башня Rothschild Tower © Richard Meier & Partners Architects
Башня Rothschild Tower © Richard Meier & Partners Architects
Башня Rothschild Tower © Richard Meier & Partners Architects
Башня Rothschild Tower © Richard Meier & Partners Architects
Башня Rothschild Tower © Richard Meier & Partners Architects
Башня Rothschild Tower © Richard Meier & Partners Architects
Башня Rothschild Tower © Richard Meier & Partners Architects
Башня Rothschild Tower © Richard Meier & Partners Architects
Башня Rothschild Tower © Richard Meier & Partners Architects