Размещено на портале Архи.ру (www.archi.ru)

07.09.2017

Зеркала и ёлки

Алла Павликова
Объект:
Многофункциональный комплекс «Ёлки-парк»
Адрес:
Россия, Москва. ул. Нагатинская, 3а
Мастерская:
Четвертое измерение

Новый офисный центр планируется построить на месте бывшего завода по производству антибиотиков, сохранив несколько существующих зданий, а главное – ели, посаженные более полувека назад.

Многофункциональный комплекс «Ёлки-парк» © Четвертое измерение
Многофункциональный комплекс «Ёлки-парк» © Четвертое измерение

Территория бывшего завода по производству антибиотиков располагается на Нагатинской улице в семи минутах ходьбы от метро и 350 метрах по прямой от набережной Москвы-реки. Напротив, через реку – ЗИЛ. Территория выгодная, сейчас она активно развивается, но пока бывший завод, точнее государственный научный центр по антибиотикам (ГНЦА) с двух сторон окружен промзонами: к западу от него, со стороны метро расположился фармацевтический завод «Феррейн», к востоку – швейная фабрика.

Основные здания центра построены в 1953 году, тогда же посажены ели. Производство антибиотиков долгое время было крупнейшим в стране, в 1990-е, когда здания перешли в руки частных собственников, его закрыли; сейчас часть зданий сдают в аренду, другая часть пришла в упадок и пустует. Тем не менее центральный корпус и два флигеля, между которыми разбит еловый сквер, сохранились неплохо. До сих пор легко читается симметричная композиция с внутренним двором, обращенным к Нагатинской улице.
Существующее положение. Здание завода антибиотиков. Предоставлено: Четвертое измерение
Существующее положение. Здание завода антибиотиков. Предоставлено: Четвертое измерение
Встройка. Многофункциональный комплекс «Ёлки-парк» © Четвертое измерение
Встройка. Многофункциональный комплекс «Ёлки-парк» © Четвертое измерение

Идея преобразовать старый завод под современный офисно-торговый центр у владельцев участка возникла в связи с активностью на соседних территориях. Главный импульс дали ЗИЛ и программа развития прибрежных территорий Москвы-реки. Вдоль северо-западной и северо-восточной границ рассматриваемого участка должны появиться новые улицы, что сразу сделает территорию бывшего ГНЦА открытой и проницаемой. На месте соседнего «Феррейна» планируются жилые кварталы. Роль общественного центра этой, пока еще несуществующей, жилой среде возложена на МФК «Ёлки-парк» – именно такое рабочее название предложили проектировщики будущего комплекса.

Один из авторов концепции – архитектор и педагог Оскар Мамлеев. Его предложение стало альтернативой существовавшему ранее проекту, который предполагал снос всех зданий и вырубку деревьев. Мамлеев сумел убедить инвесторов в необходимости сохранить не только ели, представляющие природную и историческую ценность, но и центральное здание с флигелями – они хоть и не имеют охранного статуса, но играют важную градостроительную роль в ансамбле Нагатинской улицы. Новые коммерческие площади Оскар Мамлеев предложил расположить в глубине участка за центральным зданием, сохранив существующую среднюю высотность застройки. Идея вдохновила заказчика, и для дальнейшего проектирования пригласили архитектурное бюро «Четвертое измерение».
Многофункциональный комплекс «Ёлки-парк» © Четвертое измерение
Многофункциональный комплекс «Ёлки-парк» © Четвертое измерение
Многофункциональный комплекс «Ёлки-парк» © Четвертое измерение
Многофункциональный комплекс «Ёлки-парк» © Четвертое измерение

Проект разделен на три важных составляющих: реставрация, реконструкция и новое строительство, – рассказывает один из руководителей бюро Всеволод Медведев. Особенно бережно проектировщики подошли к центральному административному корпусу. Его, несмотря на отсутствие обильного декора, можно отнести к наследию сталинской архитектуры: уравновешенная композиция, пропорции окон, впечатляющие интерьеры с двусветным вестибюлем, колоннами с капителями и широкой парадной лестницей убеждают в том, что здание необходимо сохранить как памятник городской среды 1950-х – подчеркивает архитектор. О научной реставрации в данном случае речи не идет, но восстановление фасадов и ремонт внутренних помещений с приспособлением под новое использование предусматриваются.
Многофункциональный комплекс «Ёлки-парк» © Четвертое измерение
Многофункциональный комплекс «Ёлки-парк» © Четвертое измерение

Четырехэтажные корпуса, фланкирующие двор, по словам Всеволода Медведева, сохранились значительно хуже центрального, а потому потребовали большего вмешательства. В одном из них решено разместить небольшую гостиницу, в другом – офисы. Оба корпуса в результате реконструкции станут выше на один этаж. Кирпичная кладка фасадов сохранится. Ее архитекторы предлагают покрасить в темно-серый цвет, надев поверх «рубашку» из текстильной композитной промышленной ткани. Полупрозрачная оболочка вечерами будет мягко подсвечиваться изнутри, акцентируя открытые галереи по периметру корпусов.
Многофункциональный комплекс «Ёлки-парк» © Четвертое измерение
Многофункциональный комплекс «Ёлки-парк» © Четвертое измерение
Многофункциональный комплекс «Ёлки-парк» © Четвертое измерение
Многофункциональный комплекс «Ёлки-парк» © Четвертое измерение

Территорию парадного двора с растущими там елями предлагается превратить в городское общественное пространство. Вместо высокого забора вдоль Нагатинской улицы появятся небольшие прозрачные павильоны с магазинами, кафе, зонами отдыха и открытыми террасами. Отсюда в благоустроенный сквер сможет попасть любой желающий. Такое решение было особенно важным, учитывая большой поток пешеходов в сторону метро.
Многофункциональный комплекс «Ёлки-парк» © Четвертое измерение
Многофункциональный комплекс «Ёлки-парк» © Четвертое измерение
Многофункциональный комплекс «Ёлки-парк» © Четвертое измерение
Многофункциональный комплекс «Ёлки-парк» © Четвертое измерение

В глубине участка, за главным корпусом, на месте определенных под снос заводских построек запланировано новое строительство. Прямоугольное в плане здание решено в виде широкого монообъёма, плотно примыкающего к реставрируемому центральному корпусу. «Мы сознательно решили современную часть столь лаконично, – объясняет Всеволод Медведев. – В своём проекте мы стремились подчеркнуть достоинства исторического здания. Новая застройка, не превышающая семи этажей, должна была стать для него лишь фоном. Поэтому мы взяли самую простую прямоугольную форму, разрезали ее вдоль и поперек атриумами и раздвинули как пазл».
Многофункциональный комплекс «Ёлки-парк» © Четвертое измерение
Многофункциональный комплекс «Ёлки-парк» © Четвертое измерение
Многофункциональный комплекс «Ёлки-парк» © Четвертое измерение
Многофункциональный комплекс «Ёлки-парк» © Четвертое измерение
Многофункциональный комплекс «Ёлки-парк» © Четвертое измерение
Многофункциональный комплекс «Ёлки-парк» © Четвертое измерение
Многофункциональный комплекс «Ёлки-парк» © Четвертое измерение
Многофункциональный комплекс «Ёлки-парк» © Четвертое измерение

Получилось четыре компактных автономных блока, связанных в уровне первых четырех этажей. Один из атриумов продольно разрезает объем, наполняя внутренние помещения естественным светом и акцентируя главный вход в новый корпус со стороны западного фасада. Центральный атриум пересекает объем с севера на юг, поддерживая направление движения со стороны сквера и исторического здания в новый офисный центр. Связь старого и нового объемов авторы проекта обеспечили с помощью моста-пандуса. Он берет свое начало в сквере, врезается в исторический корпус в уровне второго этажа, проходит его насквозь, проникая в атриум нового здания, раскрывающийся на реку и ЗИЛ, и позволяет покинуть комплекс через северный вход.

Как отмечает Всеволод Медведев, мост не только объединяет комплекс, он также поддерживает важную градостроительную ось. «Мост, появившийся из-за перепада рельефа и необходимости связать историческую и новую части, а также сделать комплекс проницаемым, повторяет направление оси, выходящей на один из бульваров территории ЗИЛ и ее главную высотную доминанту – башню Хани Рашида, – говорит Медведев. – Из атриума нового корпуса будет хорошо видно всю панораму застройки на противоположном берегу реки».

Стремясь сосредоточить всё внимание на исторической части, архитекторы и для фасадов нового корпуса предложили качественное, но сдержанное решение. Для облицовки используется структурное остекление. Западный и северный фасады, обращенные к реке и проектируемым улицам, выглядят чуть более выразительно благодаря моллированному стеклу, создающему мягкие отражения. По всему периметру фасады расчерчены вертикальными желобками-«каннелюрами», из-за чего отражения, преломляясь и искажаясь, получаются очень подвижными, меняют образ здания в зависимости от погоды и освещения.

Очевидно, что главным достоинством «Ёлки-парка», помимо деликатного отношения к истории места, можно назвать его открытость. Все здания легко пройти насквозь или обойти по периметру под навесом уличных галерей. Первые, полностью прозрачные этажи-витрины отданы горожанам под размещение магазинов, кафе, фитнес-центра и бассейна. Вся территория комплекса свободна от машин. Подземный паркинг, способный вместить и сотрудников, и гостей комплекса, предполагается обустроить под новым зданием, не затрагивая территорию сквера и существующих корпусов. Бонус для будущих сотрудников офисов – зеленые террасы и внутренние дворики на эксплуатируемой кровле нового корпуса в уровне четвертого и шестого этажа.

«Елки-парк» – идеальный ответ на вопрос: какой может быть контекстуальная архитектура в том случае, если ближайшее окружение еще не известно, даже не спроектировано: она нейтральна до мимикрии, бликует – не отражает, а растворяет в себе нерешенное пока окружение. Если оно будет хорошим, так она не будет мешать, а если плохим, то и отражать не стоит... На неизвестность реагирует неопределенностью. Зато по отношению ко всему, что известно и ценно, она тверда: сохраняет все, что можно, и здания, и елки; закрепляет лучи зрения, обращенные к известным панорамам, работает над связностью и проницаемостью в противовес закрытости промышленного прошлого. Проект нацелен в будущее, более того, он как будто бы уже идет туда, совмещая известное и неопределенным. 
Многофункциональный комплекс «Ёлки-парк» © Четвертое измерение
Многофункциональный комплекс «Ёлки-парк» © Четвертое измерение
Многофункциональный комплекс «Ёлки-парк». План -2 этажа © Четвертое измерение
Многофункциональный комплекс «Ёлки-парк». План -2 этажа © Четвертое измерение
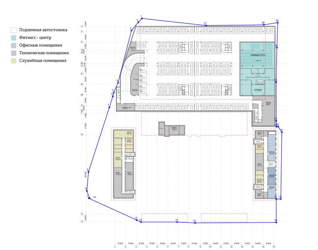
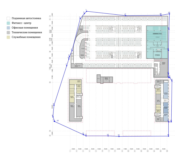
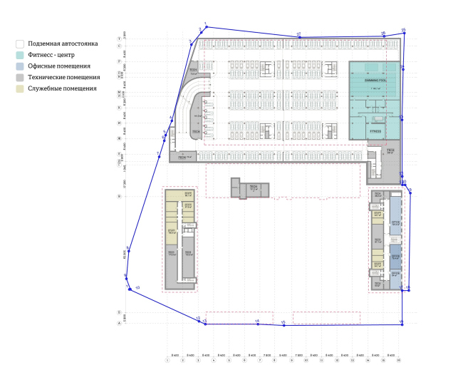
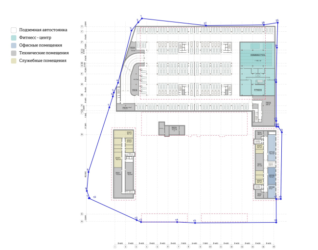
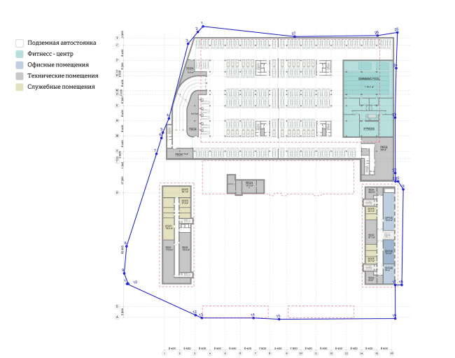
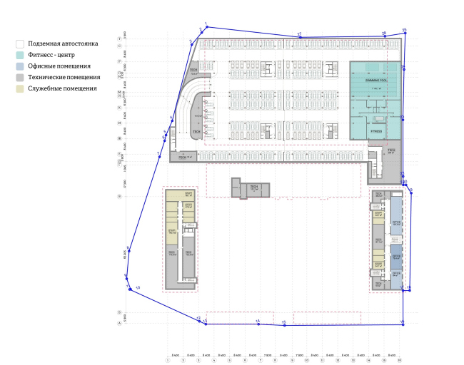
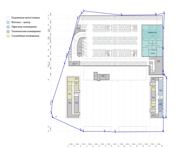
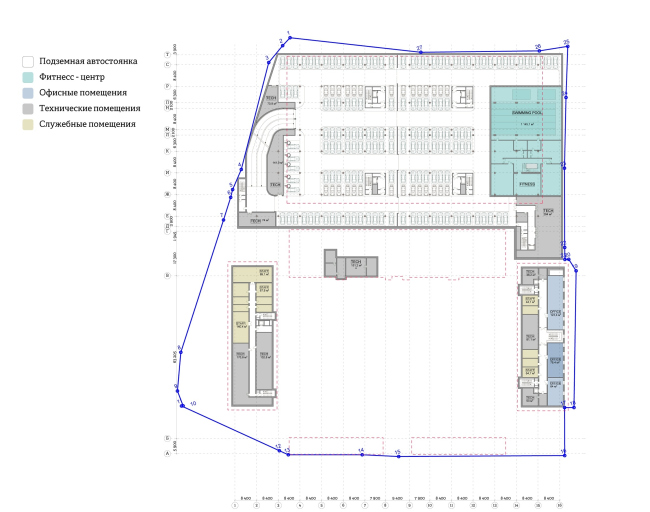
Многофункциональный комплекс «Ёлки-парк». -1 этаж © Четвертое измерение
Многофункциональный комплекс «Ёлки-парк». -1 этаж © Четвертое измерение
Многофункциональный комплекс «Ёлки-парк». План 1 этажа © Четвертое измерение
Многофункциональный комплекс «Ёлки-парк». План 1 этажа © Четвертое измерение
Многофункциональный комплекс «Ёлки-парк». План 2 этажа © Четвертое измерение
Многофункциональный комплекс «Ёлки-парк». План 2 этажа © Четвертое измерение
Многофункциональный комплекс «Ёлки-парк». План 3 этажа © Четвертое измерение
Многофункциональный комплекс «Ёлки-парк». План 3 этажа © Четвертое измерение
Многофункциональный комплекс «Ёлки-парк». План 4 этажа © Четвертое измерение
Многофункциональный комплекс «Ёлки-парк». План 4 этажа © Четвертое измерение
Многофункциональный комплекс «Ёлки-парк». План 5 этажа © Четвертое измерение
Многофункциональный комплекс «Ёлки-парк». План 5 этажа © Четвертое измерение
Многофункциональный комплекс «Ёлки-парк». План 6 этажа © Четвертое измерение
Многофункциональный комплекс «Ёлки-парк». План 6 этажа © Четвертое измерение
Многофункциональный комплекс «Ёлки-парк». План 7 этажа © Четвертое измерение
Многофункциональный комплекс «Ёлки-парк». План 7 этажа © Четвертое измерение
Многофункциональный комплекс «Ёлки-парк». Опорный план © Четвертое измерение
Многофункциональный комплекс «Ёлки-парк». Опорный план © Четвертое измерение
Многофункциональный комплекс «Ёлки-парк». Генеральный план © Четвертое измерение
Многофункциональный комплекс «Ёлки-парк». Генеральный план © Четвертое измерение
Многофункциональный комплекс «Ёлки-парк». Генеральный план с учетом перспективного развития УДС © Четвертое измерение
Многофункциональный комплекс «Ёлки-парк». Генеральный план с учетом перспективного развития УДС © Четвертое измерение