Размещено на портале Архи.ру (www.archi.ru)

13.05.2017

За коллективное жилье

Нина Фролова
Объект:
Жилой комплекс deFlat Kleiburg – реконструкция
Адрес:
Нидерланды, None, Амстердам.
Мастерская:
NL Architects

Премией Мис ван дер Роэ – 2017 отмечена реконструкция огромного модернистского дома в Амстердаме; сопутствующая премия начинающим архитекторам также присуждена социальному проекту – корпусу на 5 квартир в пригороде Брюсселя.

Жилой комплекс deFlat Kleiburg – реконструкция © Marcel van der Burg
Жилой комплекс deFlat Kleiburg – реконструкция © Marcel van der Burg

Архитектурная премия Евросоюза присуждена за реконструкцию многоквартирного дома «Клейбург» в Амстердаме – 11-этажного здания на 500 квартир длиной 400 метров. Теперь он называется deFlat Kleiburg: силами бюро NL Architects (лауреатов премии начинающим архитекторам-2005) и XVW architectuur он превращен в современное доступное жилье с гибкой планировкой и полностью обновленным первым этажом, связавшим прежде отчужденное здание с улицей и ландшафтом. При этом был предпринят минимум мер, что сохранило облик здания и позволило остаться в рамках «социального» бюджета (1200 евро за квадратный метр, квартиры сдаются без отделки).
Жилой комплекс deFlat Kleiburg – реконструкция © Marcel van der Burg
Жилой комплекс deFlat Kleiburg – реконструкция © Marcel van der Burg
Жилой комплекс deFlat Kleiburg – реконструкция © Stijn Spoelstra
Жилой комплекс deFlat Kleiburg – реконструкция © Stijn Spoelstra
Жилой комплекс deFlat Kleiburg – реконструкция © Marcel van der Burg
Жилой комплекс deFlat Kleiburg – реконструкция © Marcel van der Burg
Жилой комплекс deFlat Kleiburg – реконструкция © Marcel van der Burg
Жилой комплекс deFlat Kleiburg – реконструкция © Marcel van der Burg
Жилой комплекс deFlat Kleiburg – реконструкция © Marcel van der Burg
Жилой комплекс deFlat Kleiburg – реконструкция © Marcel van der Burg

Жюри премии отметило проект как ответ на жилищный кризис многих европейских городов, когда каждый год строятся новые дома, но никто не думает о типах жилья, в которых есть потребность. Реконструкция «Клейбурга» демонстрирует возможность изменения, обновления старой типологии в соответствии с нуждами времени, что не менее важно, чем эксперименты с новым строительством. Подробнее о deFlat Kleiburg Архи.ру писал здесь и здесь.
Жилой комплекс deFlat Kleiburg – реконструкция © Marcel van der Burg
Жилой комплекс deFlat Kleiburg – реконструкция © Marcel van der Burg
Жилой комплекс deFlat Kleiburg – реконструкция © Stijn Spoelstra
Жилой комплекс deFlat Kleiburg – реконструкция © Stijn Spoelstra
Жилой комплекс deFlat Kleiburg – реконструкция © Marcel van der Burg
Жилой комплекс deFlat Kleiburg – реконструкция © Marcel van der Burg
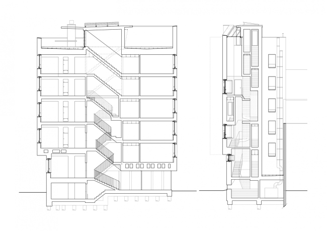
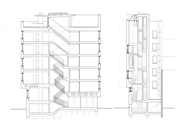
Жилой комплекс Клейбург - реконструкция © NL Architects
Жилой комплекс Клейбург - реконструкция © NL Architects
Многоквартирный дом Navez © Serge Brison / MSA
Многоквартирный дом Navez © Serge Brison / MSA

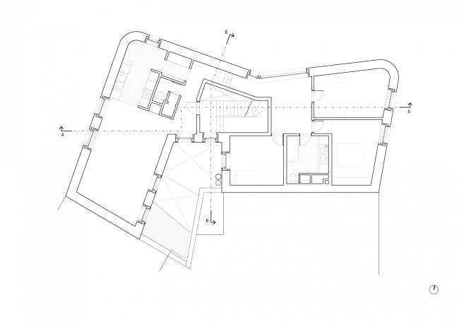
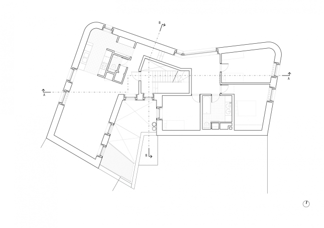
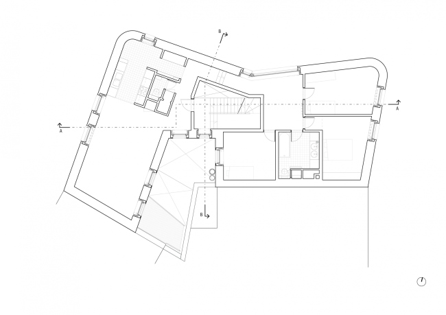
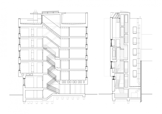
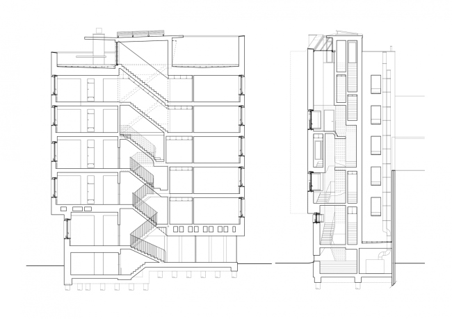
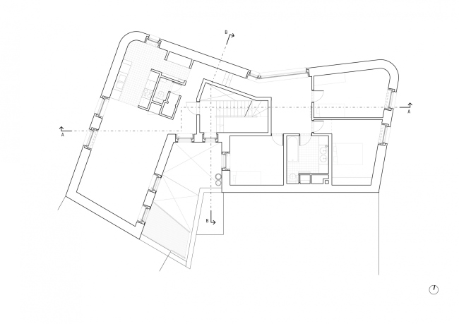
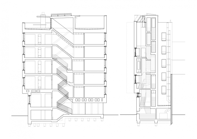
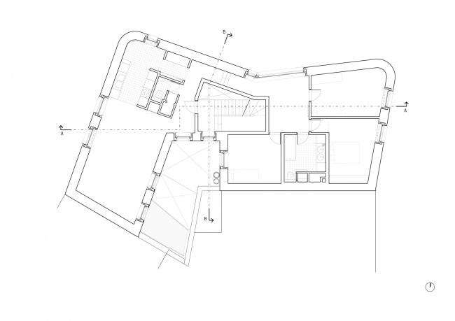
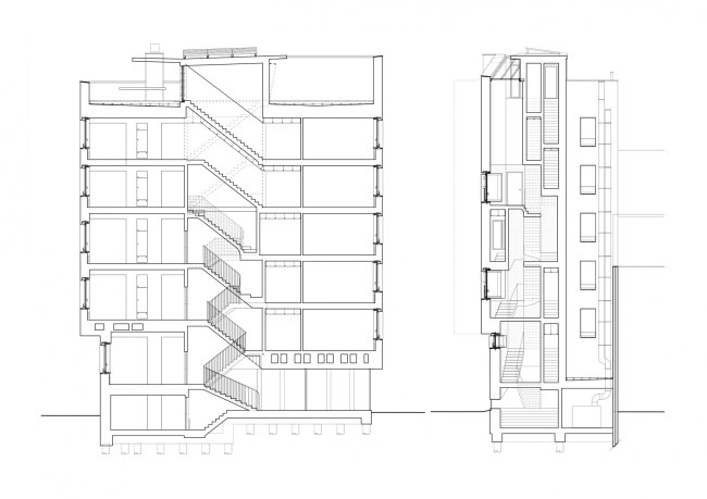
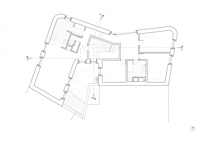
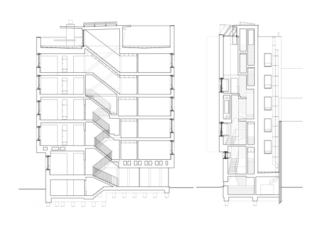
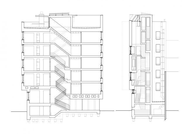
 Премию начинающим архитекторам присудили бюро MSA и V+ за социальный дом Navez в северном пригороде Брюсселя Схарбеке. На площади в 800 м2 там размещены 5 квартир с перепадом уровня для больших семей. Кроме прямой функции, он также служит местной достопримечательностью (к этому стремился заказчик – муниципалитет), выделяясь среди застройки первой половины XX века фасадом узорной кладки из белого кирпича и обтекаемой формой.
Многоквартирный дом Navez © Serge Brison / MSA
Многоквартирный дом Navez © Serge Brison / MSA
Многоквартирный дом Navez © Serge Brison / MSA
Многоквартирный дом Navez © Serge Brison / MSA
Многоквартирный дом Navez © Serge Brison / MSA
Многоквартирный дом Navez © Serge Brison / MSA
Многоквартирный дом Navez © Serge Brison / MSA
Многоквартирный дом Navez © Serge Brison / MSA
Многоквартирный дом Navez © Serge Brison / MSA
Многоквартирный дом Navez © Serge Brison / MSA
Многоквартирный дом Navez © Serge Brison / MSA
Многоквартирный дом Navez © Serge Brison / MSA
Многоквартирный дом Navez © Serge Brison / MSA
Многоквартирный дом Navez © Serge Brison / MSA
Многоквартирный дом Navez © Serge Brison / MSA
Многоквартирный дом Navez © Serge Brison / MSA

Жюри премии отметило высокое качество квартир, несмотря на скромный бюджет: продуманная планировка, виды – и свет – из окон в трех направлениях, защищенность от шума улиц, ресурсоэффективность.
Многоквартирный дом Navez © Serge Brison / MSA
Многоквартирный дом Navez © Serge Brison / MSA
Многоквартирный дом Navez © Serge Brison / MSA
Многоквартирный дом Navez © Serge Brison / MSA
Многоквартирный дом Navez © Serge Brison / MSA
Многоквартирный дом Navez © Serge Brison / MSA
Многоквартирный дом Navez © MSA / V+
Многоквартирный дом Navez © MSA / V+
Многоквартирный дом Navez © MSA / V+
Многоквартирный дом Navez © MSA / V+
Многоквартирный дом Navez © MSA / V+
Многоквартирный дом Navez © MSA / V+
Многоквартирный дом Navez © MSA / V+
Многоквартирный дом Navez © MSA / V+

Лауреатов наградят 26 мая в Барселонском павильоне Людвига Мис ван дер Роэ. Обладатели основной награды получат 60 000 евро, премии начинающим архитекторам – 20 000 евро. Церемонию предварят дни открытых дверей (20–25 мая) в зданиях, отмеченных наградами и вышедших в финал премии.