Размещено на портале Архи.ру (www.archi.ru)

08.06.2017

Дом на Пальме

Наталья Мурадова, Юлия Тарабарина
Объект:
Апарт-отель Пальм Джумейра
Адрес:
ОАЭ, Дубай.
Мастерская:
ГрандПроектСити
Авторский коллектив:
Руководитель проекта: К.В. Сапричян
Главный архитектор проекта: В.И. Березин, И.Н. Силачева
Архитекторы – А.В. Зарубина, Е.А. Сиников, А.О. Калинин, В.А. Калинина

Дом, спроектированный Кареном Сапричяном на искусственном острове Дубая, обладает всеми качествами курортного luxury, и в то же время остается городским, не теряя стройности и демонстрируя размышления о контексте как культурном, так и приморском.

Проект PalmJumairahCommunity. Вид с пляжа © «ГрандПроектСити»
Проект PalmJumairahCommunity. Вид с пляжа © «ГрандПроектСити»

Апарт-отель PalmJumairahCommunity планируется расположить на внешней дуге, защищающей от волн один из двух знаменитых искусственных островов приморской зоны Дубая. Остров Пальма Джумейра расположен в развитой и дорогой части города рядом с мариной и гольф-полями, там, где характерные башни перемежаются со зданиями умеренной высоты и районами дорогих вилл. Сейчас по проекту «ГрандПроектСити» здесь, на материке рядом с мариной, уже строится гостиница CrystalJumerianHotel. От него до нового апарт-отеля недалеко – 20 минут на машине.

Острова-«пальмы» устроены так: на полосках суши внутреннего «листа» расположены частные виллы, а на протяженном острове, образующей наружный контур – отели. Внешний берег, обращенный к Персидскому заливу, укреплен грубым камнем, вдоль него тянется бульвар Кресент-роуд, единственная здесь транспортная артерия. По внутреннему контуру насыпан песок, образующий пляжи отелей. Множество отелей уже построено, часть строится. Многоэтажные корпуса чередуются с домиками-виллами; протяженные территории с парками и гигантскими бассейнами – с участками поменьше.

Участок PalmJumairahCommunity – один из самых маленьких. Он узким пеналом 250х55 м вытянут с севера, от Кресент-роуд, на юг, к песчаному пляжу. Отель, соседний по западной границе, почти готов, сосед с востока еще строится.
Проект PalmJumairahCommunity. Ситуационный план © «ГрандПроектСити»
Проект PalmJumairahCommunity. Ситуационный план © «ГрандПроектСити»

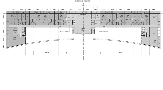
Поскольку участок невелик, дом вместе с внутренними дворами занял его почти целиком. План дома напоминает заглавную букву Е, где срединная перемычка, обращенная к поперечной внутренней улице, служит главным входом и вестибюлем. Высотные отметки 8-этажного здания вписаны в нормативные ограничения острова – 29 м, под землей технический этаж и парковка. Квартиры, согласно желанию заказчика, компании CenturionRealEstate, большие: от 140 до 330 м2, те что поменьше, в нижних этажах, самые большие, по принципу пентхауса, вверху.
Проект PalmJumairahCommunity. Мастерплан © «ГрандПроектСити»
Проект PalmJumairahCommunity. Мастерплан © «ГрандПроектСити»

Размер квартир, также как и расположение на дубайском чудо-острове, придает комплексу, несмотря на малый размер его земельного участка, эмиратскую роскошь. Каковая поддержана рядом архитектурных решений – особенно примечателен бассейн, который занимает среднюю перемычку буквы Е в уровне третьего этажа, вытягиваясь в объемный козырек над входом. Его длина – 30,6 м, площадь 257 м, объем чаши где-то 380 м3. Пол бассейна прозрачный, он опирается на решетку широких «кессонов», в «зеркалах» которых, подняв голову, мы увидим воду и контуры пловцов. Причем в козырьке над входом тоже, что само по себе должно быть достаточно эффектно. Под бассейном, за наполненным водой козырьком главного входа – двусветный вестибюль; над бассейном – 10 м высоты свободного пространства, переходящего в балкон на кровле козырька. Все это довольно смело в техническом отношении, но при современных технологиях реализуемо. А главное – довольно фантастично и роскошно, экстра-курортно прямо в духе Дубая и его искусственных островов. Не имея площади для наземного, райского, как тут принято, сада, Карен Сапричян нашел выход в футуристическом парящем бассейне, откуда купальщики смогут переглядываться с гулящими в лобби соседями.
Проект PalmJumairahCommunity © «ГрандПроектСити»
Проект PalmJumairahCommunity © «ГрандПроектСити»
Проект PalmJumairahCommunity. Входная группа © «ГрандПроектСити»
Проект PalmJumairahCommunity. Входная группа © «ГрандПроектСити»

Второе решение формирует пластику здания. Простой корпус из полосатых или стеклянных этажей, каких тут немало, возможно, был бы чересчур банален и, что важнее, лишен тени. Так что архитекторы поместили здание в крупную объемную решетку. Ее паттерн выстроен согласно модулю деления клеток пополам, так что квадраты чередуются с прямоугольниками, а кое-где – с «аутентичными» ближневосточными, а отчасти даже «метафизическими» на вид арками. Как если бы аркаду де Кирико разобрали на фрагменты, встроив некоторые из них в ортогональную сетку. Верхний слой бетонной решетки архитекторы планируют покрыть алюминиевыми панелями с мелким орнаментом, подсветив их изнутри цветными LED-ами с несколькими динамически меняющимися сценариями. Откосы решетки будут облицованы камнем, а вставки натурального дерева на фасадах должны дополнить сочетание натуральных фактур с современным прорезным алюминием.
Проект PalmJumairahCommunity © «ГрандПроектСити»
Проект PalmJumairahCommunity © «ГрандПроектСити»
Проект PalmJumairahCommunity. Фрагмент фасада © «ГрандПроектСити»
Проект PalmJumairahCommunity. Фрагмент фасада © «ГрандПроектСити»
Проект PalmJumairahCommunity. Фрагмент фасада © «ГрандПроектСити»
Проект PalmJumairahCommunity. Фрагмент фасада © «ГрандПроектСити»
Проект PalmJumairahCommunity. Вид с пляжа © «ГрандПроектСити»
Проект PalmJumairahCommunity. Вид с пляжа © «ГрандПроектСити»

Решетка окружает здание целиком, и снаружи оно будет казаться цельным протяженным объемом с вогнутой дугой главного фасада. На западной стене и на торцах решетка будет маскировать ряды глубоких балконов, а на парадном восточном за ней, помимо входа, расположены два небольших внутренних двора, что тоже вполне в духе местной традиции. С этой стороны структура – совершенно отдельностоящая, напоминает приемы деконструктивизма 1990-х, но в противовес этому сравнению ее края не повисают в воздухе, а рисунок закончен и самодостаточен. Решетка отбрасывает во дворы и на фасады крупную «ажурную» тень – ту самую, которую так любят загорающие.

«Наш проект в своем роде уникальный. На Пальме такого больше нет, потому что там все постройки террасные, южного типа. У нас же на здание одевается «кожура». Она даже скорее декоративная, чем конструктивная, – объясняет глава «ГрандПроектСити» Карен Сапричян. – В процессе работы наша команда предложила 7 вариантов архитектурных решений. Неудивительно, что в конечном счете главным был избран вариант с решеткой, его непосредственно курировал главный архитектор проекта Владимир Березин». Получившаяся архитектура следует современным орнаментальным трендам, в то же время совмещая качества городской и курортной. Она даже привносит в контекст пальмового «райского» окружения элемент структурной собранности или даже культурного бэкграунда, нисколько не утрачивая, впрочем, свойств курортного luxury. Такое здание будет заметно и днем – из-за графичного рисунка светлой решетки с глубокими тенями и ночью – когда ее крупная сетка будет разноцветно светиться, поддерживая приподнято-курортную атмосферу вокруг.
Проект PalmJumairahCommunity. План подземного этажа © «ГрандПроектСити»
Проект PalmJumairahCommunity. План подземного этажа © «ГрандПроектСити»
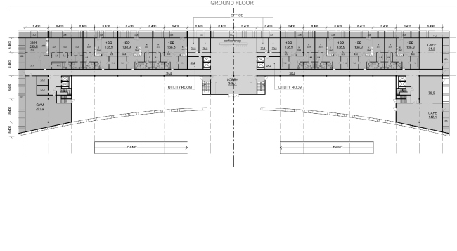
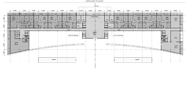
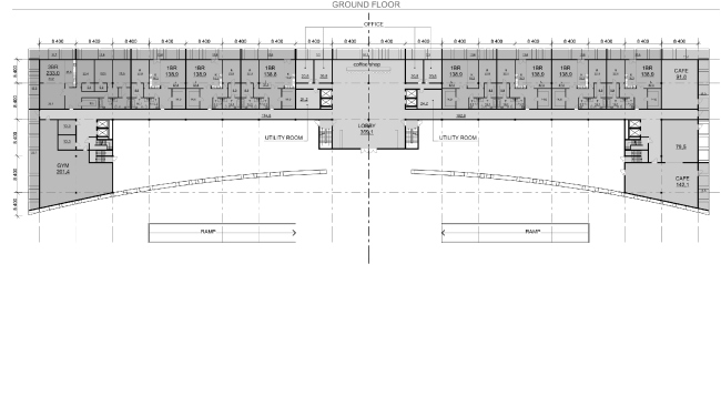
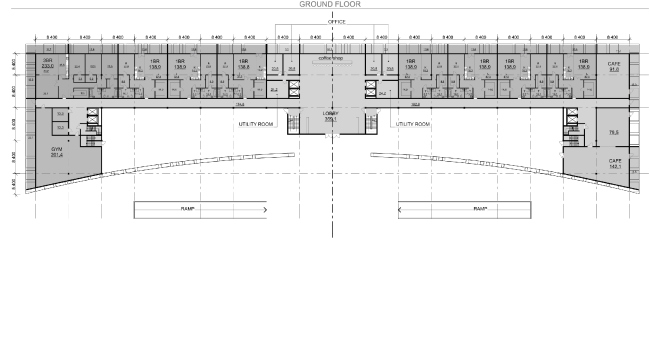
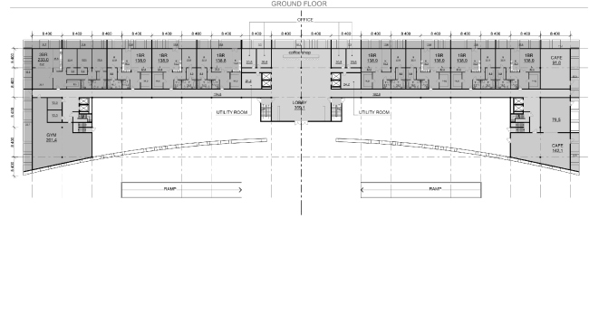
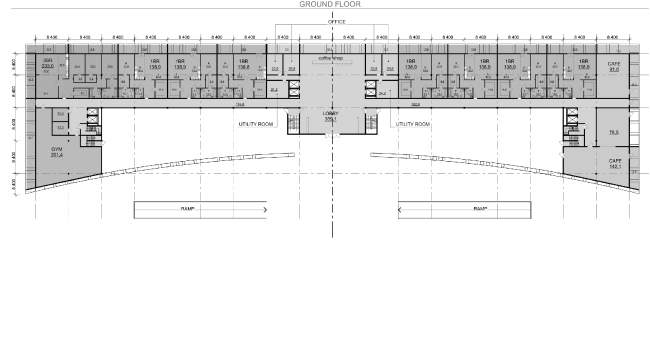
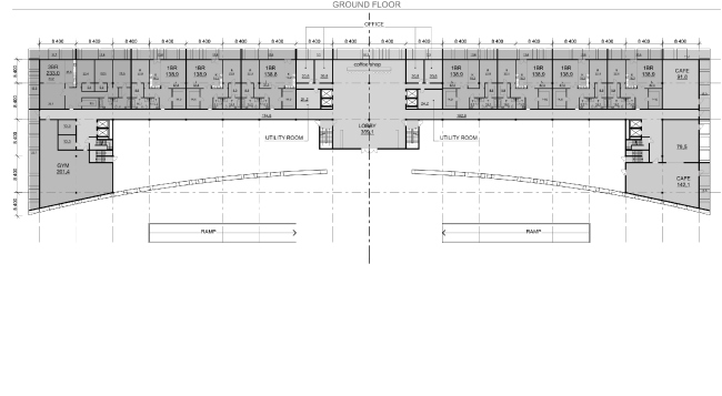
Проект PalmJumairahCommunity. План первого этажа © «ГрандПроектСити»
Проект PalmJumairahCommunity. План первого этажа © «ГрандПроектСити»
Проект PalmJumairahCommunity. План третьего этажа © «ГрандПроектСити»
Проект PalmJumairahCommunity. План третьего этажа © «ГрандПроектСити»
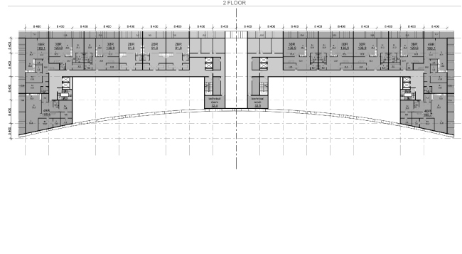
Проект PalmJumairahCommunity. План четвертого этажа © «ГрандПроектСити»
Проект PalmJumairahCommunity. План четвертого этажа © «ГрандПроектСити»