Размещено на портале Архи.ру (www.archi.ru)

24.04.2017

Прадеду правнук

Юлия Тарабарина
Объект:
Реставрация здания газеты «Известия»
Адрес:
Россия, Москва. Пушкинская площадь, д. 5
Архитектор:
Алексей Гинзбург
Наталия Шилова
Мастерская:
Гинзбург Архитектс
Авторский коллектив:
Архитекторы: Гинзбург А.В., Пустовит Р.Е., Тунина И.Б.

Алексей Гинзбург завершил реставрацию здания газеты «Известия» на Пушкинской площади, построенного прадедом Григорием Бархиным. По московским меркам получилась редчайшая редкость – памятник архитектуры авангарда, восстановленный со всей возможной тщательностью.

Реставрация здания газеты «Известия». Реставрация, 2016 © Гинзбург Архитектс, фотография Алексея Князева
Реставрация здания газеты «Известия». Реставрация, 2016 © Гинзбург Архитектс, фотография Алексея Князева

Что бы там ни говорил профессор Преображенский, а «Известия» были первой официальной советской газетой в буквальном смысле – петроградский совет выпустил первый их номер на следующий день после февральской революции. Тогда планировали бороться за Учредительное собрание, но после его разгона и переноса столицы переехали в Москву и стали главным печатным органом исполнительной власти, ЦИК и ВЦИК, в отличие от партийной большевистской «Правды». Что было чуть менее престижно, но тоже почетно. Некоторое время газету издавали в Сытинской типографии у Страстного монастыря. Но для новой власти газеты были важны и достаточно скоро, в 1924–1925, был проведён конкурс на проект здания новой архитектуры. Выиграл Григорий Борисович Бархин, который и построил новый дом для «Известий» поблизости от старой типографии, где-то за полтора года вместе с сыном Михаилом. Григорий Бархин не был в полном смысле архитектором-революционером, он скорее примкнул к конструктивизму (впрочем так делали многие, к примеру тот же Иван Фомин). До революции же Бархин окончил Академию Художеств и вместе с Романом Клейном построил неоклассическое здание московского музея изящных искусств, нынешнего ГМИИ.

Впрочем победивший конкурсный проект, который поначалу намеревались построить западнее, на углу Тверской и Страстного бульвара, представлял собой довольно стремительную двенадцатиэтажную башню, похожую на известный проект «Ленинградской правды» Весниных. Башня должна была спорить с колокольней Страстного монастыря, который в 1925 году сносить вовсе не планировалось. Но по актуальному тогда генплану города «Новая Москва» в районе Страстного действовали, почти как сейчас, высотные ограничения – нельзя было строить выше шести этажей. От башни осталась лишь вынесенная к фасаду вертикаль лестницы с чередой балконов, и небольшая лоджия с часами на углу, обращенном к Тверской. Надпись же – «Известия» – в итоге разместилась горизонтально.
Слева: А. и В. Веснины. Конкурсный проект на здание «Ленинградской правды», 1924. Из кн.: С.О. Хан-Магомедов. Архитектура советского авангарда. М., 1996. Справа Г. Бархин. Конкурсный проект (победивший) здания газеты «Известия» в Москве, 1925. Из кн: Н.Н. Броновицкая. Памятники архитектуры Москвы. Москва 1910-1935 гг. М., 2012.
Слева: А. и В. Веснины. Конкурсный проект на здание «Ленинградской правды», 1924. Из кн.: С.О. Хан-Магомедов. Архитектура советского авангарда. М., 1996. Справа Г. Бархин. Конкурсный проект (победивший) здания газеты «Известия» в Москве, 1925. Из кн: Н.Н. Броновицкая. Памятники архитектуры Москвы. Москва 1910-1935 гг. М., 2012.
Фасады, проект. Здание газеты «Известия», 1925-1927, Г.Б. Бархин, М.Г. Бархин. Предоставлено Гинзбург Архитектс
Фасады, проект. Здание газеты «Известия», 1925-1927, Г.Б. Бархин, М.Г. Бархин. Предоставлено Гинзбург Архитектс
Реставрация здания газеты «Известия». Здание 1925-1927. Г.Б. Бархин, М.Г. Бархин. Съемка 1930-х гг. Предоставлено Гинзбург Архитектс
Реставрация здания газеты «Известия». Здание 1925-1927. Г.Б. Бархин, М.Г. Бархин. Съемка 1930-х гг. Предоставлено Гинзбург Архитектс

«Известия» не стали иконой конструктивизма, и тем не менее здание вошло во все тематические путеводители и хорошо известно как памятник истории авангарда. При этом предмет охраны, как это в наши времена нередко случается, достаточно узок: охраняются фасады, а внутри – только кабинет Бухарина на верхнем этаже (он в течение трёх лет был редактором газеты), плюс та самая выходящая на Пушкинскую площадь лестница, и всё. Счастье, что работать с восстановлением «Известий» пришлось Алексею Гинзбургу, правнуку Григория Бархина и внуку Моисея Гинзбурга, наследнику двух архитектурных династий, одинаково увлеченному современной архитектурой и реставрацией, в том числе памятников авангарда. Алексей Гинзбург занимается кварталом «Известий» уже несколько лет, недавно была закончена реставрация доходного дома Тюляевой на Дмитровке напротив Ленкома, вторыми оказались «Известия», почти завершена работа со зданием Сытинской типографии и двухэтажной усадьбы Долгоруковых-Бобринских на углу бульвара и Дмитровки. «Известия» в этом разношерстном ряду – единственное здание 1920-х, памятник авангарда.
Реставрация здания газеты «Известия». Планы здания 1927 г. Г.Б. Бархин, М.Г. Бархин. Предоставлено Гинзбург Архитектс
Реставрация здания газеты «Известия». Планы здания 1927 г. Г.Б. Бархин, М.Г. Бархин. Предоставлено Гинзбург Архитектс
Вид комплекса «Известий» со стороны Тверской ул. и Пушкинской пл. Гинзбург Архитектс. Реставрация здания газеты «Известия» (1925-1927). 2015-2016. Фотография © Юлия Тарабарина, Архи.ру, 2016
Вид комплекса «Известий» со стороны Тверской ул. и Пушкинской пл. Гинзбург Архитектс. Реставрация здания газеты «Известия» (1925-1927). 2015-2016. Фотография © Юлия Тарабарина, Архи.ру, 2016
Реставрация здания газеты «Известия». Реставрация, 2016 © Гинзбург Архитектс, фотография Алексея Князева
Реставрация здания газеты «Известия». Реставрация, 2016 © Гинзбург Архитектс, фотография Алексея Князева
Дворовый фасад. Гинзбург Архитектс. Реставрация здания газеты «Известия» (1925-1927). 2015-2016. Фотография © Юлия Тарабарина, Архи.ру, 2016
Дворовый фасад. Гинзбург Архитектс. Реставрация здания газеты «Известия» (1925-1927). 2015-2016. Фотография © Юлия Тарабарина, Архи.ру, 2016

Здание сохранилось неплохо и было легко узнаваемо даже перед началом работ. Хотя авангардную надпись довольно скоро заменили на классическую, с засечками; бегущую строку, которая была новшеством для 1920-х, убрали тоже почти сразу. В 1990-е здание сдали в аренду под офисы; таким же образом его планируется использовать и в дальнейшем, также как и соседнее здание газеты, расширившейся в конце 1970-х.
Реставрация здания газеты «Известия». Слева направо: 1927, 2012, 2014. Предоставлено Гинзбург Архитектс
Реставрация здания газеты «Известия». Слева направо: 1927, 2012, 2014. Предоставлено Гинзбург Архитектс
Реставрация здания газеты «Известия». Фасад. 2014-2015 © Гинзбург Архитектс
Реставрация здания газеты «Известия». Фасад. 2014-2015 © Гинзбург Архитектс

Одним из главных искажений авторского замысла стали пробитые входами на улицу витрины ресторанов первого этажа. И хотя теперь здесь разместятся, скорее всего, тоже рестораны, Алексею Гинзбургу удалось вернуть нижним окнам-витринам первоначальный вид: теперь вход один, через главный подъезд. Широкие нижние окна предназначались для освещения нижнего полуподвального этажа столовой работников газеты: идущим вдоль главного фасада сейчас, пока рестораны ещё не заселились, хорошо видно его пространство. Подвал-полуподвал имеется под обоими корпусами, уличным и дворовым; только у главного южного фасада он освещен через широкие окна, выходящие на улицу под потолком, а в бывшем техническом дворовом корпусе, где рельеф повыше – через зенитные фонари.
Главный вход и главный фасад. Нижний ярус окон первого этажа освещает полуподвал, в котором исторически находилась столовая для работников газеты. Реставрация здания газеты «Известия». Реставрация, 2016 © Гинзбург Архитектс, фотография Алексея Князева
Главный вход и главный фасад. Нижний ярус окон первого этажа освещает полуподвал, в котором исторически находилась столовая для работников газеты. Реставрация здания газеты «Известия». Реставрация, 2016 © Гинзбург Архитектс, фотография Алексея Князева
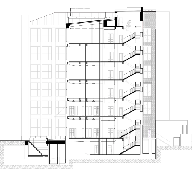
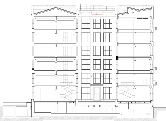
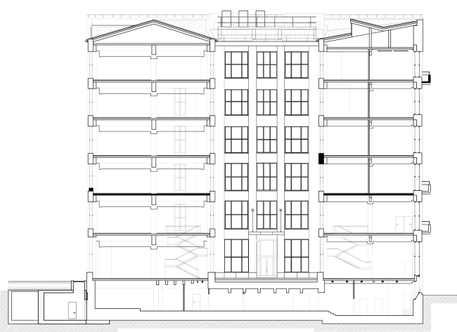
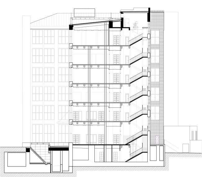
Реставрация здания газеты «Известия». Разрез. Реставрация, 2016 © Гинзбург Архитектс
Реставрация здания газеты «Известия». Разрез. Реставрация, 2016 © Гинзбург Архитектс
Реставрация здания газеты «Известия». Разрез. Реставрация, 2016 © Гинзбург Архитектс
Реставрация здания газеты «Известия». Разрез. Реставрация, 2016 © Гинзбург Архитектс
Реставрация здания газеты «Известия». Дворовый фасад. Реставрация, 2016 © Гинзбург Архитектс
Реставрация здания газеты «Известия». Дворовый фасад. Реставрация, 2016 © Гинзбург Архитектс
Световой фонарь во дворе. Реставрация здания газеты «Известия» (1925-1927). 2015-2016. Фотография © Юлия Тарабарина, Архи.ру, 2016
Световой фонарь во дворе. Реставрация здания газеты «Известия» (1925-1927). 2015-2016. Фотография © Юлия Тарабарина, Архи.ру, 2016

Реставрация, по словам Алексея Гинзбурга, не археолого-историческая, а архитектурная. Поэтому восстановлены не все элементы: к примеру, угловатую конструктивистскую надпись Бархина, как и часы, возродили, а бегущую строку не стали.
Реставрация здания газеты «Известия». Реставрация, 2016 © Гинзбург Архитектс, фотография Алексея Князева
Реставрация здания газеты «Известия». Реставрация, 2016 © Гинзбург Архитектс, фотография Алексея Князева
Реставрация здания газеты «Известия». Реставрация, 2016 © Гинзбург Архитектс,  фотография Алексея Князева
Реставрация здания газеты «Известия». Реставрация, 2016 © Гинзбург Архитектс, фотография Алексея Князева
Реставрация здания газеты «Известия». Реставрация, 2016 © Гинзбург Архитектс, фотография Алексея Князева
Реставрация здания газеты «Известия». Реставрация, 2016 © Гинзбург Архитектс, фотография Алексея Князева

Кроме того, здание получило и несколько современных добавлений, прежде всего новые лифты в срединном переходе. Однако следует помнить, что здание уже было серьёзно перестроено после войны: тогда переход между корпусами расширили к западу просторным вестибюлем, а во дворе, с севера, пристроили дополнительный объем с подвалом. Тогда же были заменены двери – на светло-жёлтые, брежневского вида; был заменён лифт при главной, выходящей на фасад, лестнице. Северную послевоенную пристройку разобрали, сохранив только ее подвальную часть. Пристройку к переходу между корпусами, напротив, сохранили, приведя в порядок поздний вестибюль с эффектными крупными кессонами на потолке.

Однако Алексею Гинзбургу удалось сохранить и восстановить многие важные детали. К примеру, найдя на полах фрагменты метлахской плитки – простой, белой с синеватыми вставками на углах, архитекторы заказали в Германии похожую и восстановили полы вестибюлей и коридоров.
Восстановленная метлахская плитка. Гинзбург Архитектс. Реставрация здания газеты «Известия» (1925-1927). 2015-2016. Фотография © Юлия Тарабарина, Архи.ру, 2016
Восстановленная метлахская плитка. Гинзбург Архитектс. Реставрация здания газеты «Известия» (1925-1927). 2015-2016. Фотография © Юлия Тарабарина, Архи.ру, 2016
Реставрация здания газеты «Известия». Интерьер. Реставрация, 2016 © Гинзбург Архитектс, фотография Алексея Князева
Реставрация здания газеты «Известия». Интерьер. Реставрация, 2016 © Гинзбург Архитектс, фотография Алексея Князева
Реставрация здания газеты «Известия». Интерьер. Реставрация, 2016 © Гинзбург Архитектс, фотография Алексея Князева
Реставрация здания газеты «Известия». Интерьер. Реставрация, 2016 © Гинзбург Архитектс, фотография Алексея Князева

Вместо послевоенных светло-желтых дверей и стеновых панелей подобрали темно-коричневые, также как и подходящие к стилистике 1920-х годов дверные ручки.
Реставрация здания газеты «Известия». Интерьер. Реставрация, 2016 © Гинзбург Архитектс, фотография Алексея Князева
Реставрация здания газеты «Известия». Интерьер. Реставрация, 2016 © Гинзбург Архитектс, фотография Алексея Князева
Реставрация здания газеты «Известия». Интерьер. Реставрация, 2016 © Гинзбург Архитектс, фотография Алексея Князева
Реставрация здания газеты «Известия». Интерьер. Реставрация, 2016 © Гинзбург Архитектс, фотография Алексея Князева
Реставрация здания газеты «Известия». Интерьер. Реставрация, 2016 © Гинзбург Архитектс, фотография Алексея Князева
Реставрация здания газеты «Известия». Интерьер. Реставрация, 2016 © Гинзбург Архитектс, фотография Алексея Князева
Реставрация здания газеты «Известия». Интерьер. Реставрация, 2016 © Гинзбург Архитектс, фотография Алексея Князева
Реставрация здания газеты «Известия». Интерьер. Реставрация, 2016 © Гинзбург Архитектс, фотография Алексея Князева

Особенного внимания заслуживает выходящая на главный фасад лестница – пространство очень светлое, прозрачное, с большими окнами в пол. Она кажется световым хребтом всего здания как снаружи, так и изнутри – неудивительно, что архитекторы уделили ей много внимания и работали ювелирно.
Реставрация здания газеты «Известия». Интерьер. Реставрация, 2016 © Гинзбург Архитектс, фотография Алексея Князева
Реставрация здания газеты «Известия». Интерьер. Реставрация, 2016 © Гинзбург Архитектс, фотография Алексея Князева
Реставрация здания газеты «Известия». Интерьер. Реставрация, 2016 © Гинзбург Архитектс, фотография Алексея Князева
Реставрация здания газеты «Известия». Интерьер. Реставрация, 2016 © Гинзбург Архитектс, фотография Алексея Князева
Лестница. Гинзбург Архитектс. Реставрация здания газеты «Известия» (1925-1927). 2015-2016. Фотография © Юлия Тарабарина, Архи.ру, 2016
Лестница. Гинзбург Архитектс. Реставрация здания газеты «Известия» (1925-1927). 2015-2016. Фотография © Юлия Тарабарина, Архи.ру, 2016
Деталь лестницы. Гинзбург Архитектс. Реставрация здания газеты «Известия» (1925-1927). 2015-2016. Фотография © Юлия Тарабарина, Архи.ру, 2016
Деталь лестницы. Гинзбург Архитектс. Реставрация здания газеты «Известия» (1925-1927). 2015-2016. Фотография © Юлия Тарабарина, Архи.ру, 2016

Вторая лестница, выходящая во двор, решена в духе первой, хотя и лаконичнее – те же перила, тот же бежевый цвет ступенек под ногами.
Реставрация здания газеты «Известия». Интерьер. Реставрация, 2016 © Гинзбург Архитектс, фотография Алексея Князева
Реставрация здания газеты «Известия». Интерьер. Реставрация, 2016 © Гинзбург Архитектс, фотография Алексея Князева

Но особенно сложным оказался процесс восстановления первоначальных металлических переплетов витражей, выходящих на главный фасад. Сохранившиеся подлинные рамы были покрыты очень толстым слоем краски, для того, чтобы отчистить её, понадобился пескоструйный аппарат с керамической крошкой; на полу образовалось огромное количество грязи. «Прямо-таки по колено», – признаётся архитектор. Намного проще было заменить их стеклопакетами, тем более что к предметы охраны переплеты окон отношения не имеют – но Алексею Гинзбургу удалось настоять на грамотной, хотя и трудоемкой, очистке подлинных рам. Часть из них была в плохом состоянии, их заменили, но в основном на верхних этажа. Больше половины подлинных переплётов нижних этажей, тонких и сложных, с заклёпками, удалось сохранить – что очень важно для ощущения подлинности здания.
Деталь подлинных металлических рам. Гинзбург Архитектс. Реставрация здания газеты «Известия» (1925-1927). 2015-2016. Фотография © Юлия Тарабарина, Архи.ру, 2016
Деталь подлинных металлических рам. Гинзбург Архитектс. Реставрация здания газеты «Известия» (1925-1927). 2015-2016. Фотография © Юлия Тарабарина, Архи.ру, 2016
Реставрация здания газеты «Известия». Реставрация, 2016 © Гинзбург Архитектс, фотография Алексея Князева
Реставрация здания газеты «Известия». Реставрация, 2016 © Гинзбург Архитектс, фотография Алексея Князева

Снаружи переплёты покрашены чёрной, внутри – белой краской. На фасадах они формируют тонкую структурирующую решётку, а внутри работают на расширение пространства и усиливают свет. Особенно лестница с её серо-белым метлахом, гигантскими для 1920-х витражами, светло-голубыми стенами, чей цвет восстановлен по найденным фрагментам – кажется очень светлой при взгляде как изнутри, так и снаружи.
Реставрация здания газеты «Известия». Реставрация, 2016 © Гинзбург Архитектс, фотография Алексея Князева
Реставрация здания газеты «Известия». Реставрация, 2016 © Гинзбург Архитектс, фотография Алексея Князева
Реставрация здания газеты «Известия». Реставрация, 2016 © Гинзбург Архитектс, фотография Алексея Князева
Реставрация здания газеты «Известия». Реставрация, 2016 © Гинзбург Архитектс, фотография Алексея Князева
Реставрация здания газеты «Известия». Детали. Реставрация, 2014-2015 © Гинзбург Архитектс
Реставрация здания газеты «Известия». Детали. Реставрация, 2014-2015 © Гинзбург Архитектс

Вторая важная составляющая подлинного фасада – сохранённая и бережно очищенная тёмно-серая терразитовая штукатурка Григория Бархина. Потребовалось довольно долго подбирать гидрофобный раствор для её укрепления: первые составы не подходили, портили цвет, делая его то темнее, то добавляя синий или даже зелёный оттенок, – рассказывает Алексей Гинзбург. В конечном счёте удалось достичь ровного серого цвета, укрепив фасад.
Реставрация здания газеты «Известия». Реставрация, 2016 © Гинзбург Архитектс, фотография Алексея Князева
Реставрация здания газеты «Известия». Реставрация, 2016 © Гинзбург Архитектс, фотография Алексея Князева
Реставрация здания газеты «Известия». Реставрация, 2016 © Гинзбург Архитектс, фотография Алексея Князева
Реставрация здания газеты «Известия». Реставрация, 2016 © Гинзбург Архитектс, фотография Алексея Князева
Реставрация здания газеты «Известия». Реставрация, 2016 © Гинзбург Архитектс, фотография Алексея Князева
Реставрация здания газеты «Известия». Реставрация, 2016 © Гинзбург Архитектс, фотография Алексея Князева

Но тёмно-серый, контрастно подчёркивающий белизну видимых через широкие окна светлых интерьеров, главный фасад был у здания Бархина единственным. По традиции конца XIX – начала XX веков брандмауэры и дворовые фасады оставляли кирпичными, экономя дорогую штукатурку, – поясняет Гинзбург. – Это потом, уже после войны, все их выкрасили масляной краской.
Реставрация здания газеты «Известия». Реставрация, 2016 © Гинзбург Архитектс,  фотография Алексея Князева
Реставрация здания газеты «Известия». Реставрация, 2016 © Гинзбург Архитектс, фотография Алексея Князева
Реставрация здания газеты «Известия». Дворовый фасад. Реставрация, 2016 © Гинзбург Архитектс, фотография Алексея Князева
Реставрация здания газеты «Известия». Дворовый фасад. Реставрация, 2016 © Гинзбург Архитектс, фотография Алексея Князева
Дворовый фасад. Гинзбург Архитектс. Реставрация здания газеты «Известия» (1925-1927). 2015-2016. Фотография © Юлия Тарабарина, Архи.ру, 2016
Дворовый фасад. Гинзбург Архитектс. Реставрация здания газеты «Известия» (1925-1927). 2015-2016. Фотография © Юлия Тарабарина, Архи.ру, 2016
Реставрация здания газеты «Известия». Детали. 2014-2015 © Гинзбург Архитектс
Реставрация здания газеты «Известия». Детали. 2014-2015 © Гинзбург Архитектс

В квартале «Известий» архитектор восстанавливает «историческую справедливость» старых кирпичных фасадов. Так Алексей Гинзбург поступил и с домом Тюляевой, и с соседним особняком; такие же кирпичные стены открылись и в «Известиях», родня произведение авангарда с соседними, и, в сущности, близкими по времени домами начала XX века. Кирпич очищен, покрыт гидрофобным раствором, в высоту вытянулись новенькие алюминиевые трубы вентиляции, неожиданно подчёркивающие брутально-техническое назначение бывшего типографского здания. Только послевоенный западный фасад во дворе получил нейтральную бежевую покраску.
Юго-западный двор. Гинзбург Архитектс. Реставрация здания газеты «Известия» (1925-1927). 2015-2016. Фотография © Юлия Тарабарина, Архи.ру, 2016
Юго-западный двор. Гинзбург Архитектс. Реставрация здания газеты «Известия» (1925-1927). 2015-2016. Фотография © Юлия Тарабарина, Архи.ру, 2016
Козырёк в юго-западном дворе. Гинзбург Архитектс. Реставрация здания газеты «Известия» (1925-1927). 2015-2016. Фотография © Юлия Тарабарина, Архи.ру, 2016
Козырёк в юго-западном дворе. Гинзбург Архитектс. Реставрация здания газеты «Известия» (1925-1927). 2015-2016. Фотография © Юлия Тарабарина, Архи.ру, 2016
Козырек над главным входом. Гинзбург Архитектс. Реставрация здания газеты «Известия» (1925-1927). 2015-2016. Фотография © Юлия Тарабарина, Архи.ру, 2016
Козырек над главным входом. Гинзбург Архитектс. Реставрация здания газеты «Известия» (1925-1927). 2015-2016. Фотография © Юлия Тарабарина, Архи.ру, 2016

Надо сказать, что в экспериментах Алексея Гинзбурга с кирпичными брандмауэрами историческая реконструкция играет, наверное, наименьшую роль – она любопытна как сюжет, не более того. Большинство граждан не заметит. Намного значительнее колористическое значение этого приёма, безо всяких дополнительных усилий превращающего город в жизнерадостное «лоскутное одеяло», где цветные лицевые поверхности фасадов «нашиты», ну, или наложены на общую ярко-терракотовую, живую подоснову, способную объединить двухэтажную московскую усадьбу с чугунными балконами и гламурный дом серебряного века с суровой типографией Советов пролетарского государства. Объединить – и сделать это легко и непосредственно, как, может быть, легко тонкий классик Григорий Бархин освоил язык конструктивизма, каким-то непостижимым образом не изменяя при этом себе и оставаясь скорее «фасадным» архитектором, но талантливым и добросовестным во всем до мелочей.

Словом, эта реставрация – крайне интересный опыт, прежде всего потому, что она досталась «наследственному» архитектору, увлеченному реставрацией и добросовестно, прямо как прадед строил, восстановившему здесь всё, что было возможно в современных обстоятельствах. Ведь в наше время оно как обычно бывает – архитекторы воспринимают памятники скорее как обременение: либо осложнение рабочего процесса, если их требуется-таки сохранить, либо как груз на совести, если требуется возвести муляж. Многие архитекторы поклоняются авангарду, это правда. Но кто-то только перерисовывает, а кто-то норовит создать копию в том же «стиле». Нечасто встречается архитектор, погруженный в проблему так, чтобы, выполнив множество требований заказчика, перепрофилировав, как-никак, здание под иную функцию, сохранил максимум подлинного, а кое-что даже восстановил. Но результат легко прочитывается: в районе Пушкинской усилиями Алексея Гинзбурга потихоньку растёт новая версия Москвы. Город из тех, что мы потеряли. А когда будут благоустроены двор и откроются проходы из арки в арку, вот тогда мы сможем оценить не только восстановленный памятник, но и атмосферу, созданную не километрами штурмовщины, а несколькими годами вдумчивой работы. Чего, впрочем, придётся ещё подождать.
 
О здании «Известий» Г.Б. Бархина см. статью Н.Н. Броновицкой в кн.: Памятники архитектуры Москвы. Москва 1910-1935 гг. М., 2012. С. 238-239. 
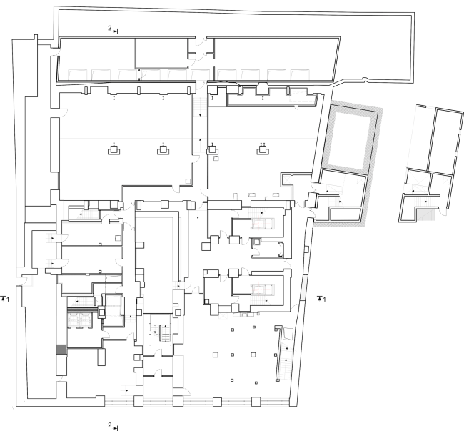
Реставрация здания газеты «Известия». Ситуационный план. 2014-2015 © Гинзбург Архитектс
Реставрация здания газеты «Известия». Ситуационный план. 2014-2015 © Гинзбург Архитектс
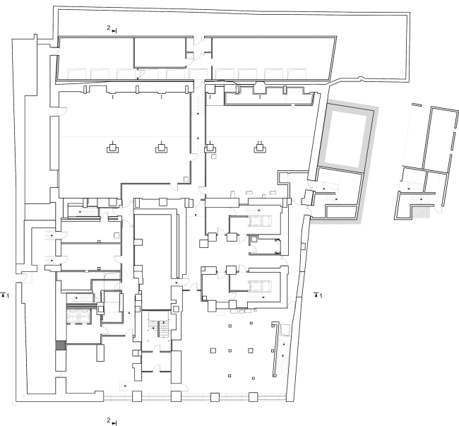
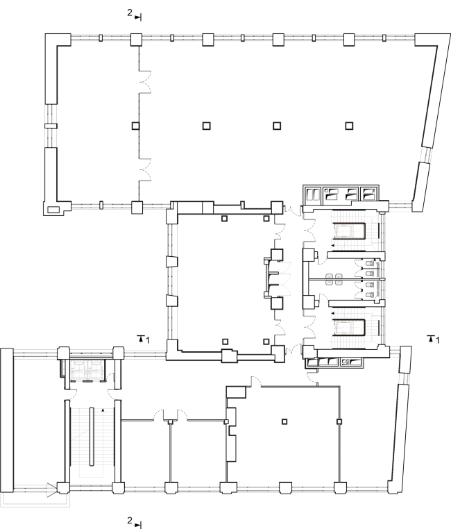
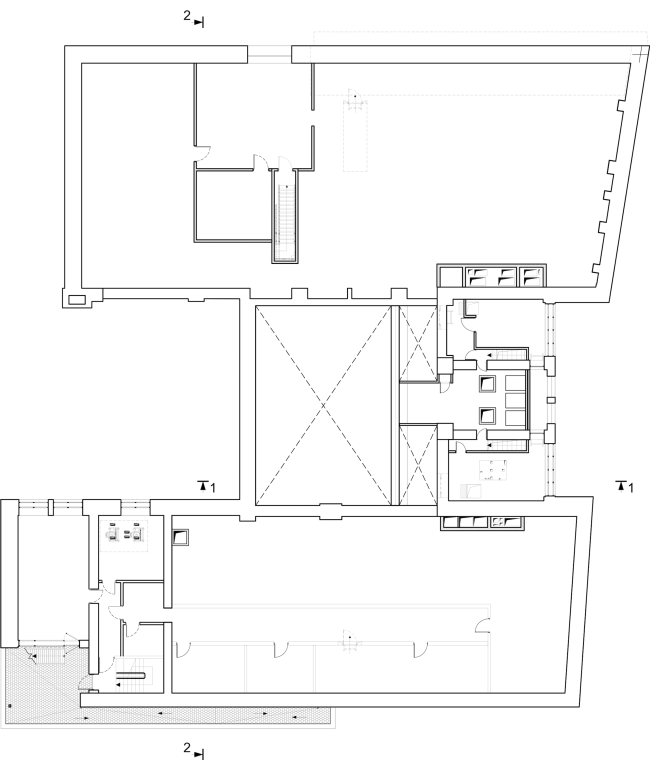
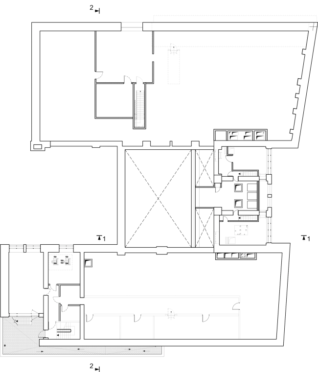
Реставрация здания газеты «Известия». План подвала. 2016 © Гинзбург Архитектс
Реставрация здания газеты «Известия». План подвала. 2016 © Гинзбург Архитектс
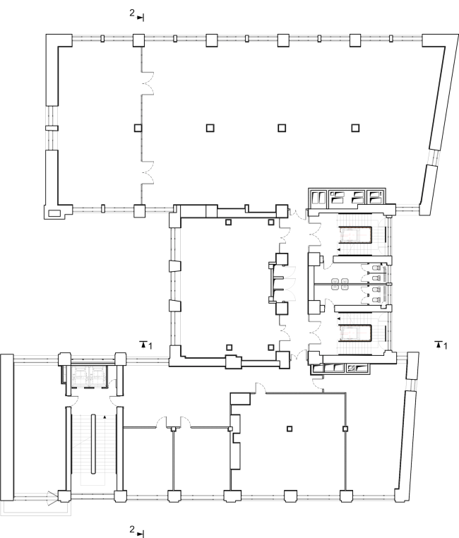
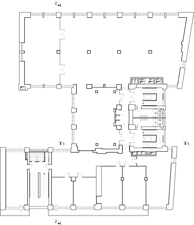
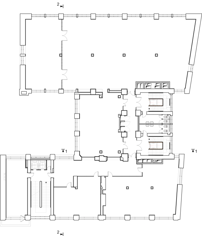
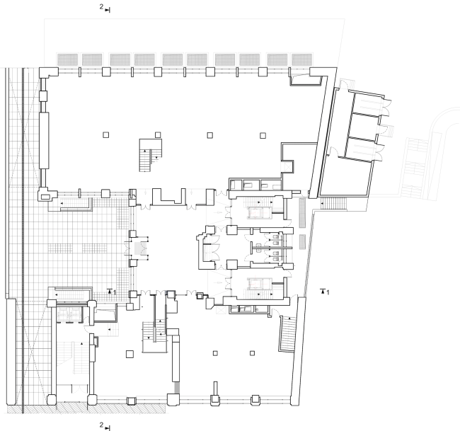
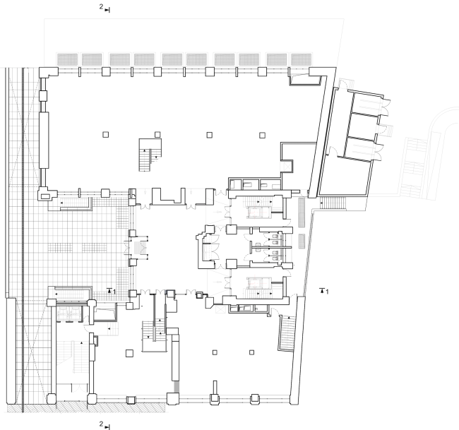
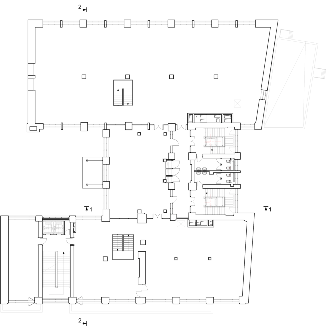
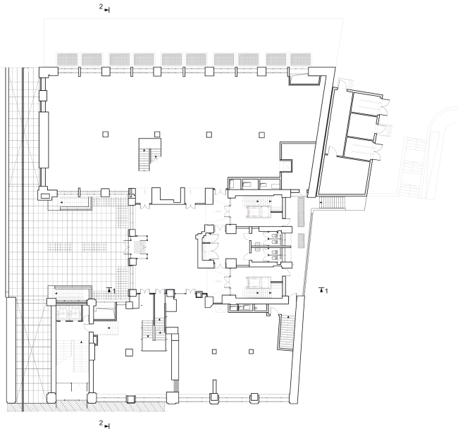
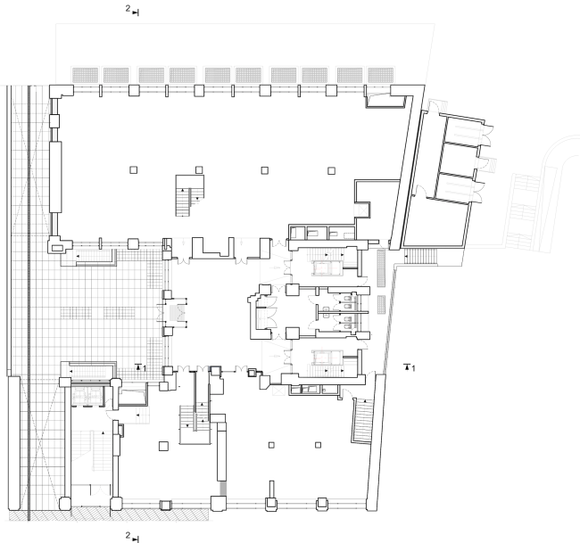
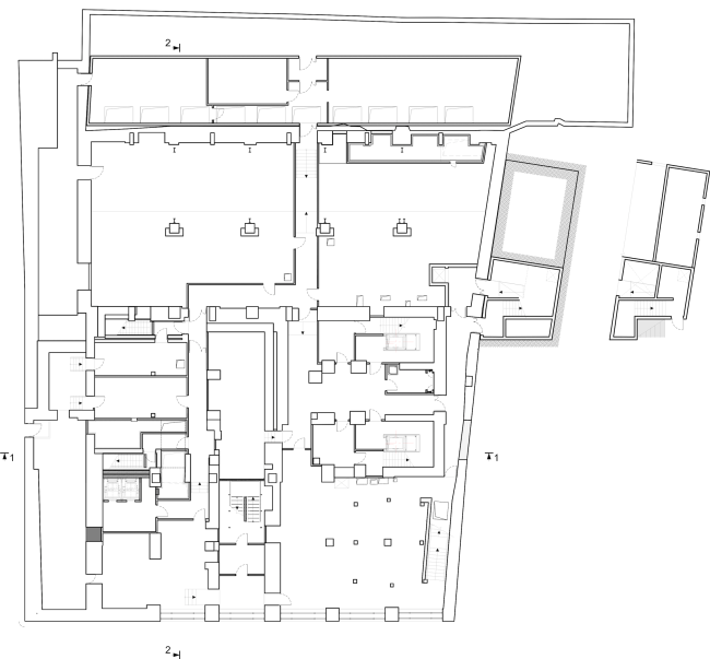
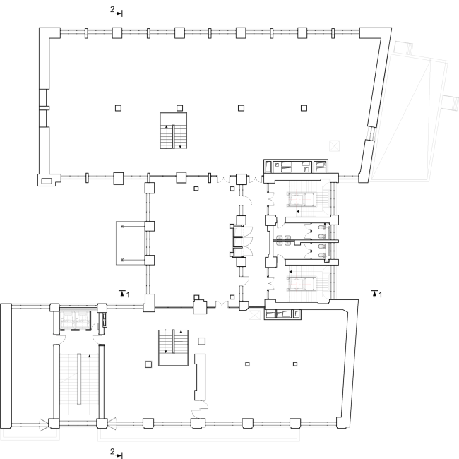
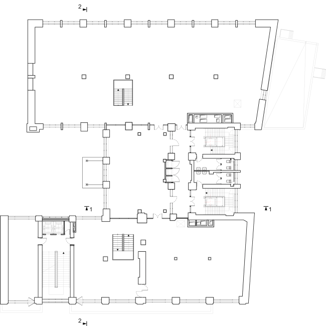
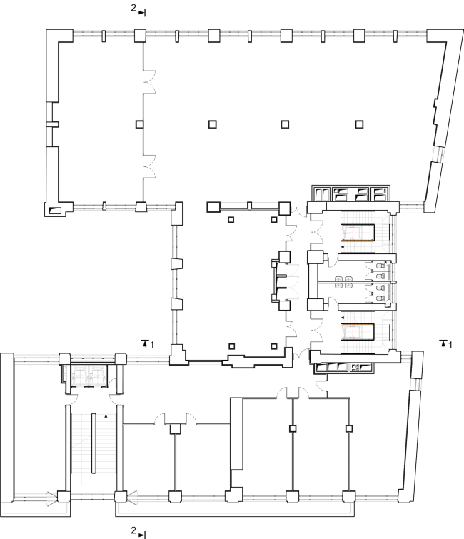
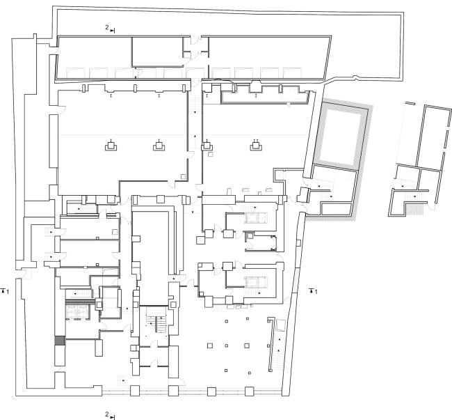
Реставрация здания газеты «Известия». План 1 этажа. 2016 © Гинзбург Архитектс
Реставрация здания газеты «Известия». План 1 этажа. 2016 © Гинзбург Архитектс
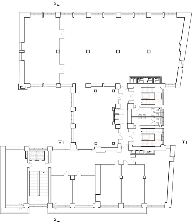
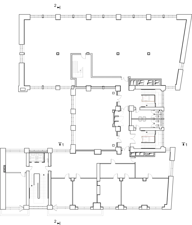
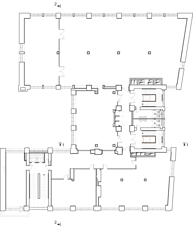
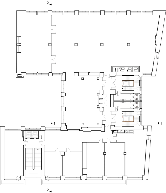
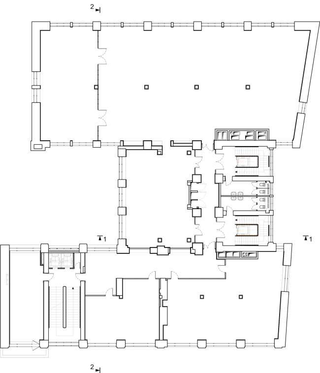
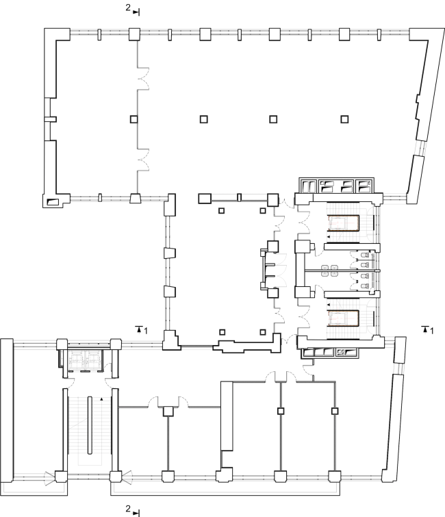
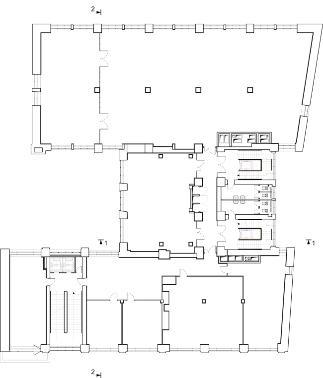
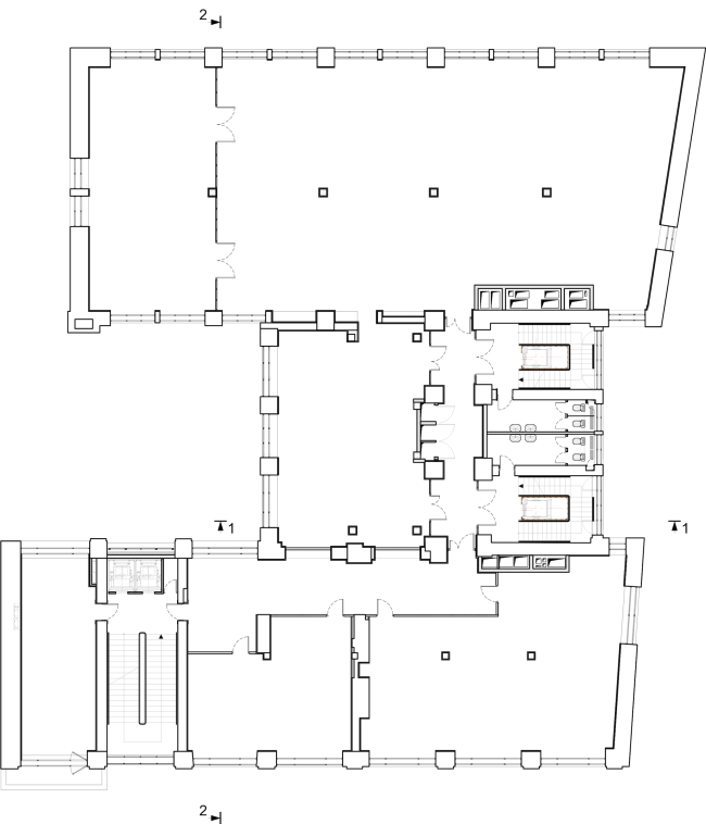
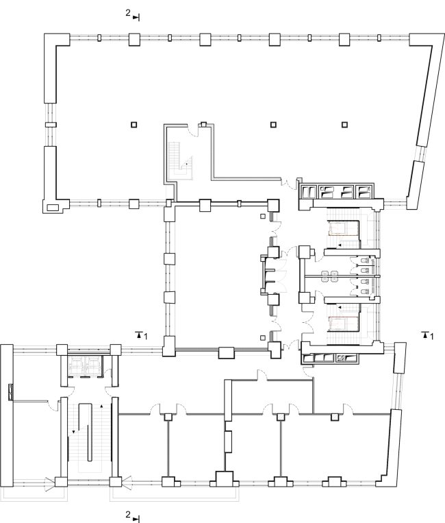
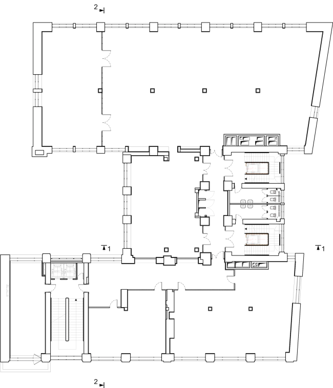
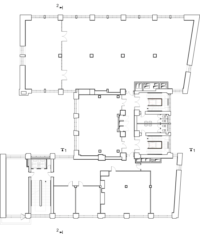
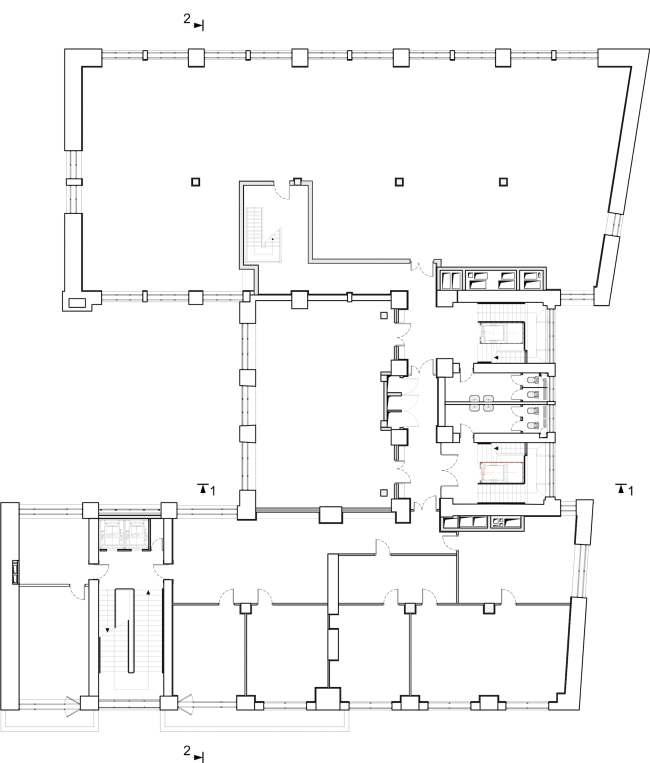
Реставрация здания газеты «Известия». План 2 этажа. 2016 © Гинзбург Архитектс
Реставрация здания газеты «Известия». План 2 этажа. 2016 © Гинзбург Архитектс
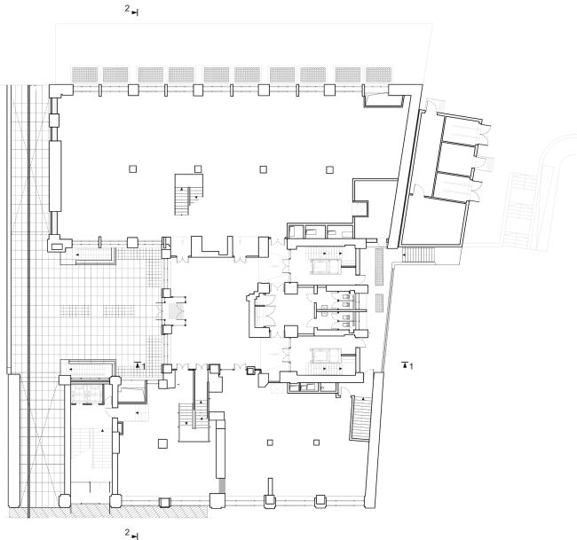
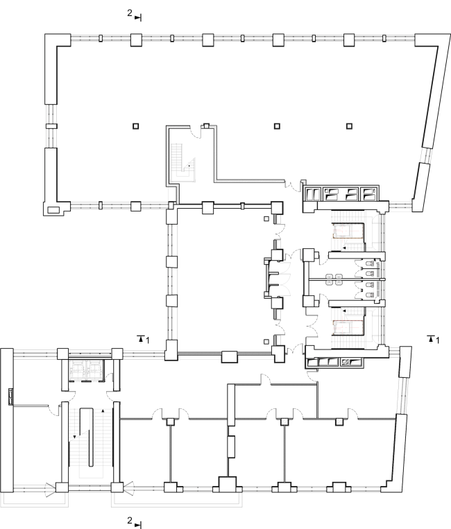
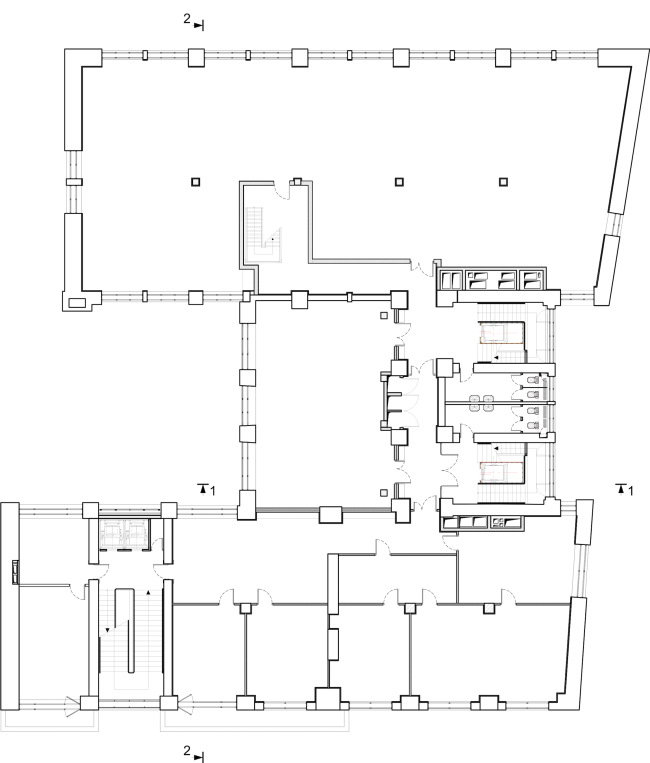
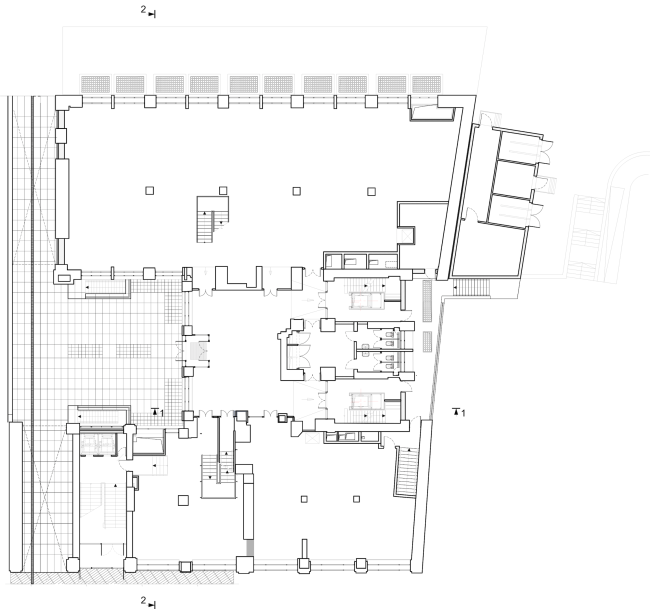
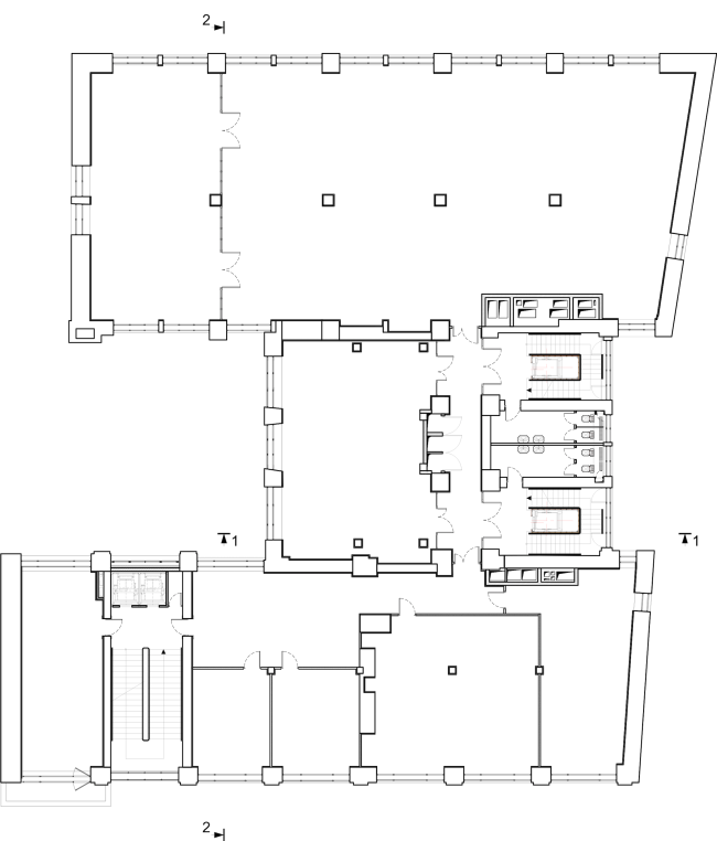
Реставрация здания газеты «Известия». План 3 этажа. Реставрация, 2016 © Гинзбург Архитектс
Реставрация здания газеты «Известия». План 3 этажа. Реставрация, 2016 © Гинзбург Архитектс
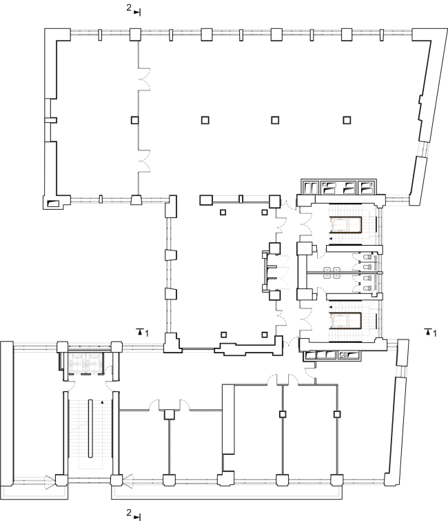
Реставрация здания газеты «Известия». План 4 этажа. 2016 © Гинзбург Архитектс
Реставрация здания газеты «Известия». План 4 этажа. 2016 © Гинзбург Архитектс
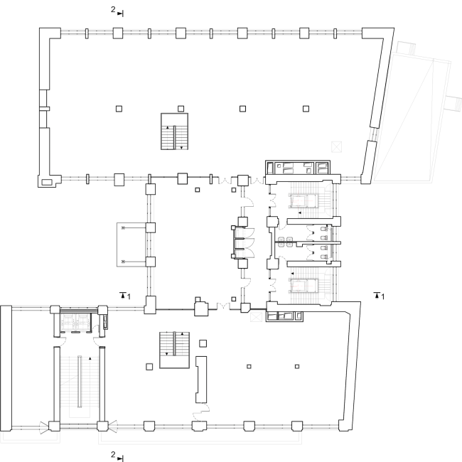
Реставрация здания газеты «Известия». План 5 этажа. 2016 © Гинзбург Архитектс
Реставрация здания газеты «Известия». План 5 этажа. 2016 © Гинзбург Архитектс
Реставрация здания газеты «Известия». План 6 этажа. 2016 © Гинзбург Архитектс
Реставрация здания газеты «Известия». План 6 этажа. 2016 © Гинзбург Архитектс
Реставрация здания газеты «Известия». План  чердака. Реставрация, 2016 © Гинзбург Архитектс
Реставрация здания газеты «Известия». План чердака. Реставрация, 2016 © Гинзбург Архитектс
Реставрация здания газеты «Известия». План  кровли. 2016 © Гинзбург Архитектс
Реставрация здания газеты «Известия». План кровли. 2016 © Гинзбург Архитектс
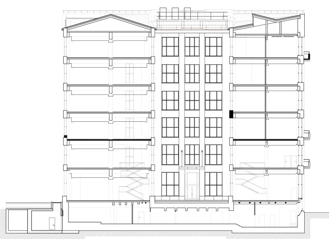
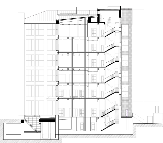
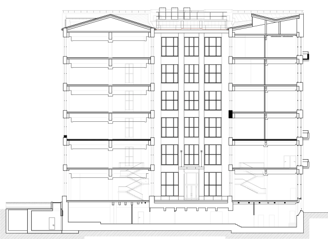
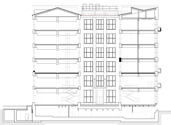
Реставрация здания газеты «Известия». Фасад, разрез. 2014-2015 © Гинзбург Архитектс
Реставрация здания газеты «Известия». Фасад, разрез. 2014-2015 © Гинзбург Архитектс
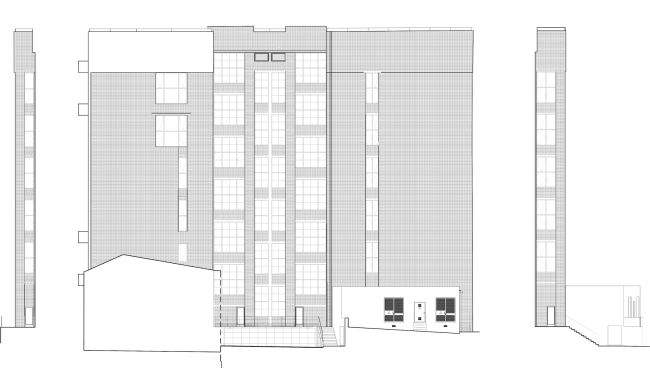
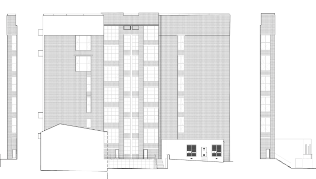
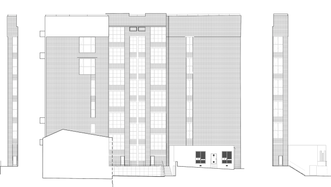
Реставрация здания газеты «Известия». Фасад со стороны Пушкинской площади.  2016 © Гинзбург Архитектс
Реставрация здания газеты «Известия». Фасад со стороны Пушкинской площади. 2016 © Гинзбург Архитектс
Реставрация здания газеты «Известия». Северный фасад. Реставрация, 2016 © Гинзбург Архитектс
Реставрация здания газеты «Известия». Северный фасад. Реставрация, 2016 © Гинзбург Архитектс
Реставрация здания газеты «Известия». Западный фасад. 2016 © Гинзбург Архитектс
Реставрация здания газеты «Известия». Западный фасад. 2016 © Гинзбург Архитектс
Реставрация здания газеты «Известия». Восточный фасад. 2016 © Гинзбург Архитектс
Реставрация здания газеты «Известия». Восточный фасад. 2016 © Гинзбург Архитектс
Реставрация здания газеты «Известия». Детали световых фонарей подвала: архитектурное задание для разработки конструктивных решений. 2016 © Гинзбург Архитектс
Реставрация здания газеты «Известия». Детали световых фонарей подвала: архитектурное задание для разработки конструктивных решений. 2016 © Гинзбург Архитектс
Реставрация здания газеты «Известия». Сечения и узлы стальных витражей на фасаде. Реставрация, 2016 © Гинзбург Архитектс
Реставрация здания газеты «Известия». Сечения и узлы стальных витражей на фасаде. Реставрация, 2016 © Гинзбург Архитектс
Реставрация здания газеты «Известия». Сечения и узлы парадной лестницы. 2016 © Гинзбург Архитектс
Реставрация здания газеты «Известия». Сечения и узлы парадной лестницы. 2016 © Гинзбург Архитектс