Размещено на портале Архи.ру (www.archi.ru)

20.03.2017

Хочешь сделать хорошо – сделай сам

Екатерина Ровнова
Объект:
Жилой дом Patch22
Адрес:
Нидерланды, None, Амстердам.
Мастерская:
Frantzen et al

Голландские архитекторы Frantzen et al, работая по схеме «архитектор=девелопер», реализовали в Амстердаме собственный проект деревянной многоэтажки с гибким функциональным назначением.

Жилой дом Patch22 © Luuk Kramer
Жилой дом Patch22 © Luuk Kramer

Архитектору Тому Францену за пятнадцать лет успешной карьеры не удалось построить ни одного здания без того, чтобы не потерять в процессе часть важных идей и не пойти на компромисс с заказчиком. Силы выносить это естественное для архитектурной профессии положение у него закончились в 2009 году, и он вместе с менеджером строительной сферы Клаусом Усореном создал компанию Lemniskade для ведения и реализации собственных проектов в качестве архитектора и девелопера в одном лице. Их первым воплощенным проектом стало самое высокое в Голландии здание с деревянными несущими конструкциями – Patch 22 в Амстердаме.
 
Жилой дом Patch22 © Luuk Kramer
Жилой дом Patch22 © Luuk Kramer

Patch 22 – вероятно, одно из самых «устойчивых» зданий в мире: не только в контексте взаимоотношений с диоксидом углерода, но и благодаря заложенной в него возможности адаптироваться к изменениям рынка. Пространственные и технические решения позволяют семиэтажному зданию в течение жизненного цикла изменять свою функцию с жилой на офисную – и обратно. Чтобы эта схема работала не только в теории, архитекторы закрепили возможность такого перехода институционально, добившись особой формы соглашения с городскими властями.
 
Жилой дом Patch22 © Luuk Kramer
Жилой дом Patch22 © Luuk Kramer

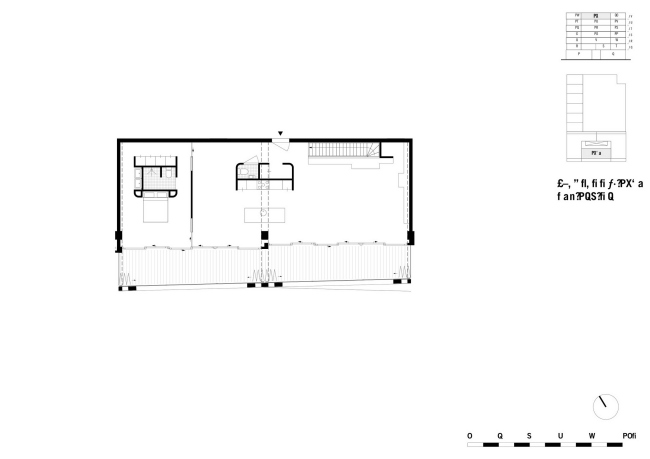
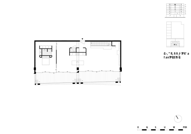
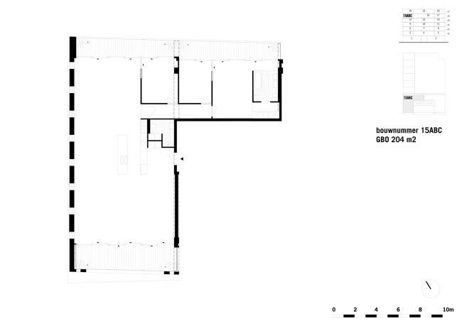
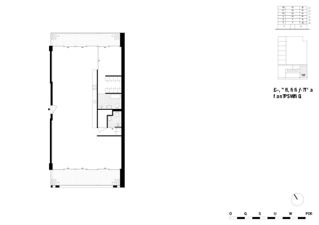
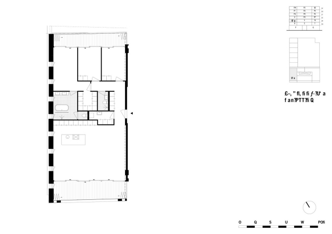
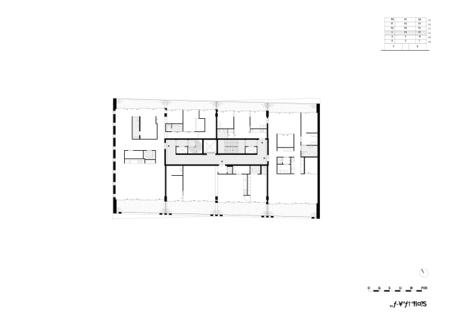
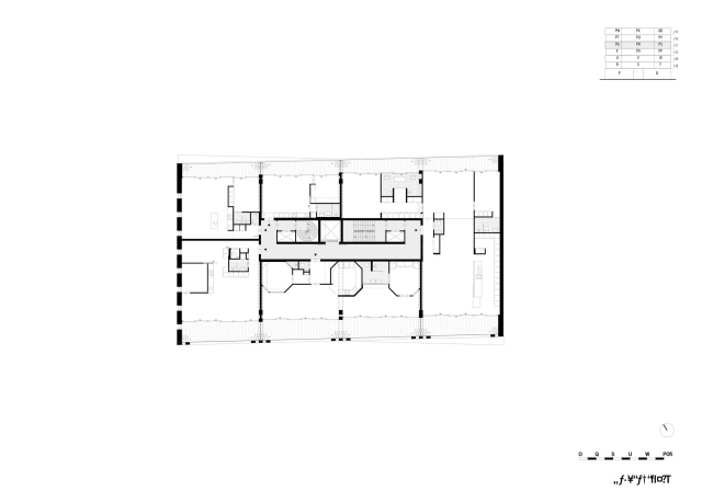
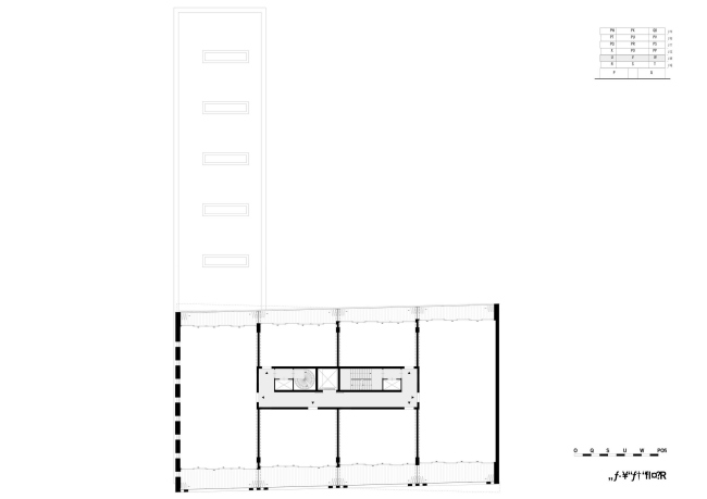
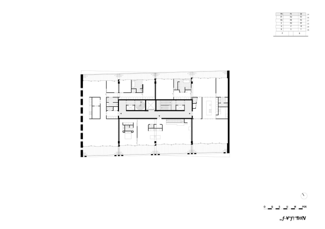
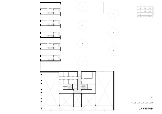
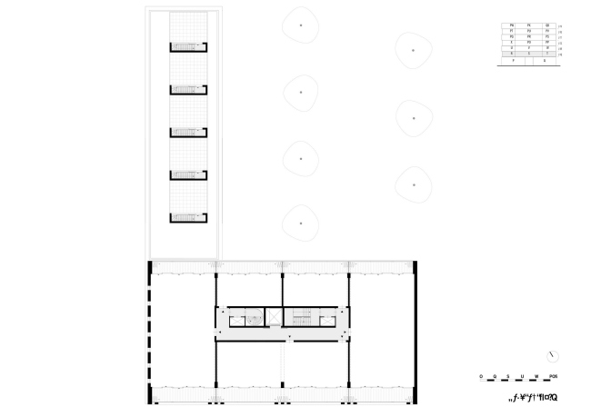
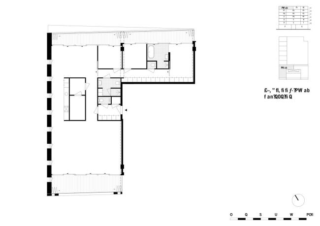
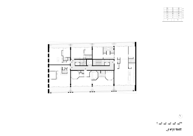
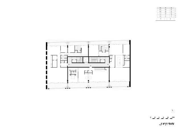
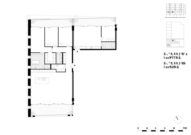
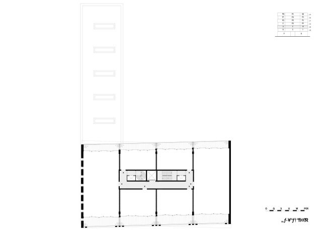
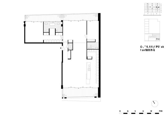
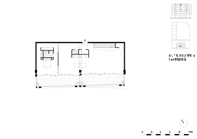
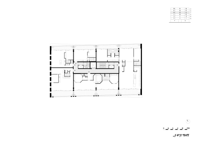
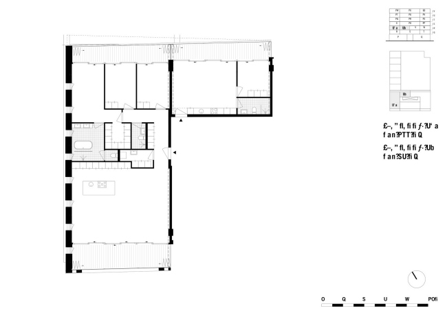
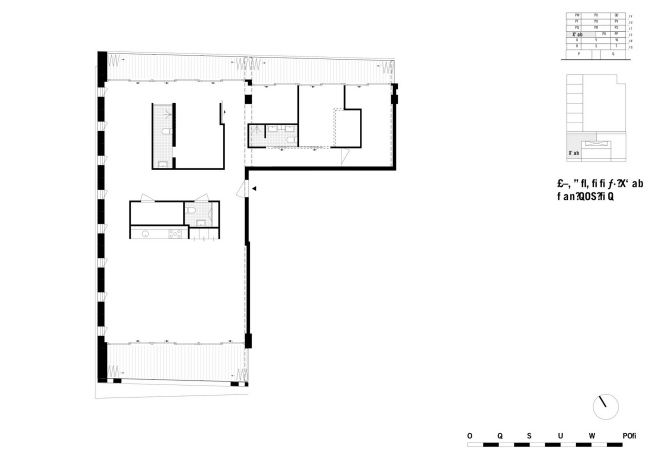
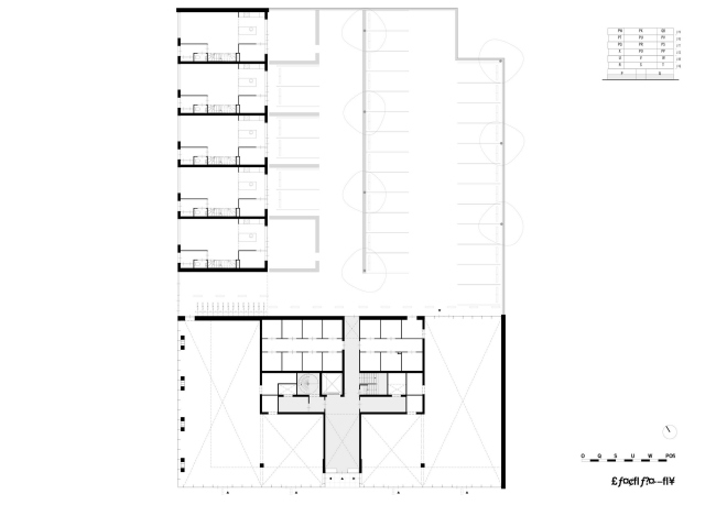
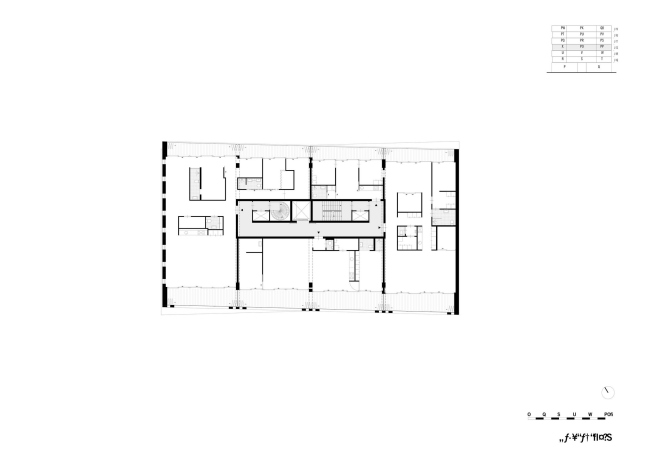
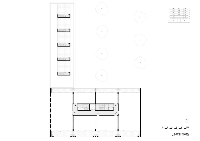
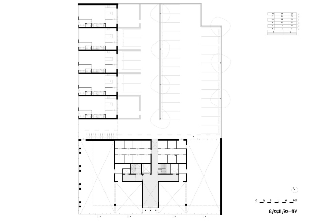
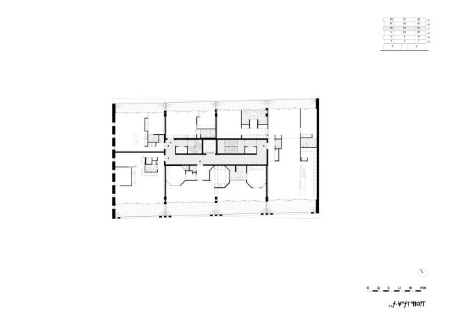
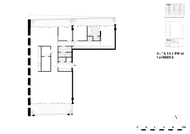
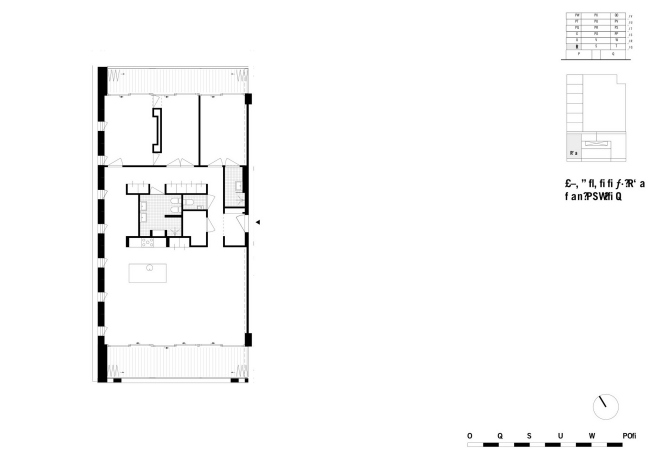
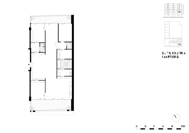
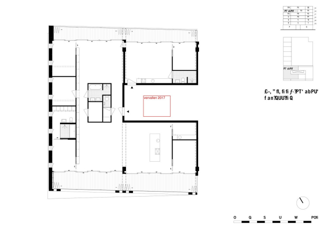
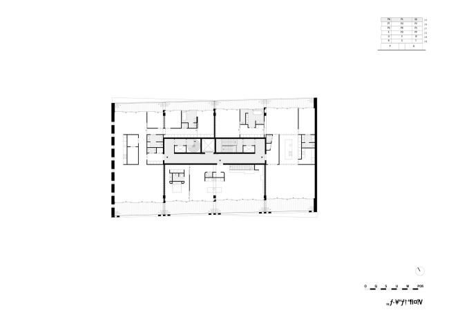
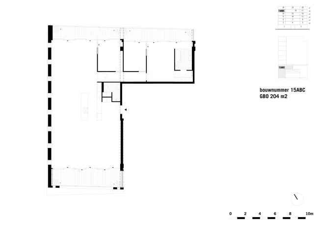
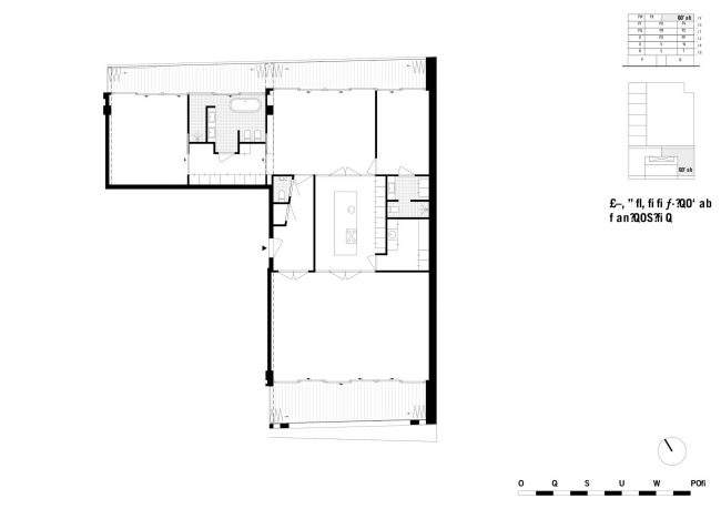
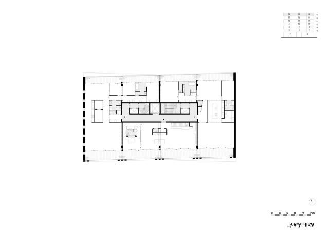
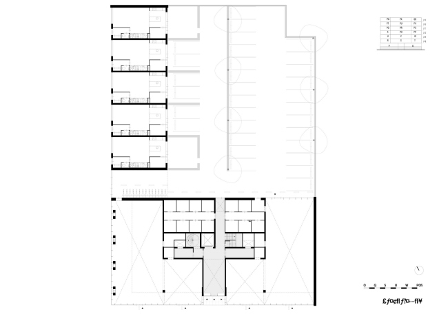
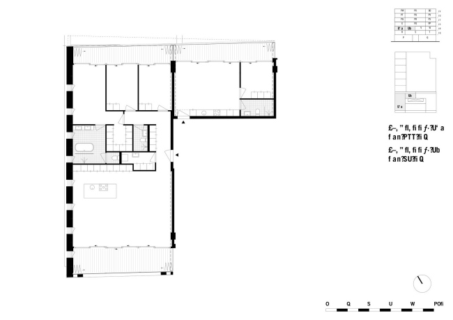
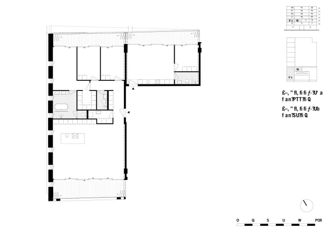
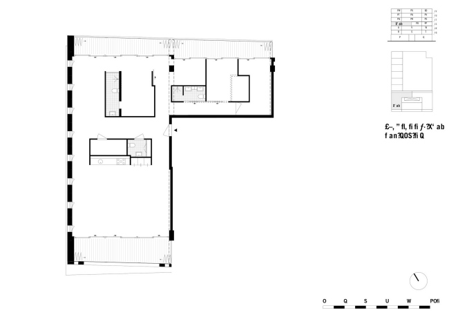
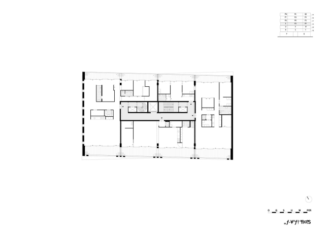
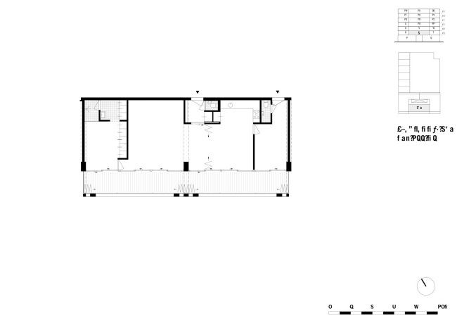
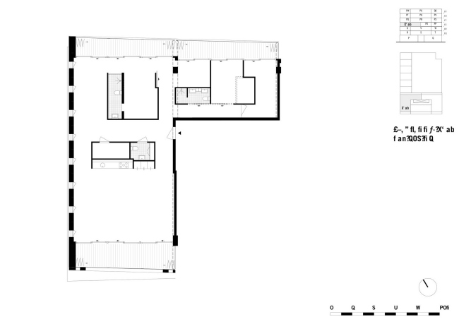
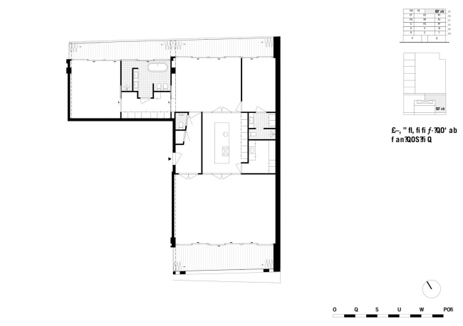
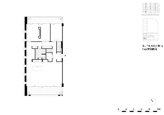
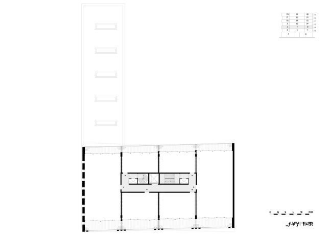
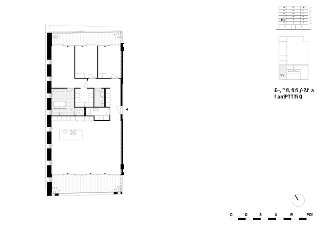
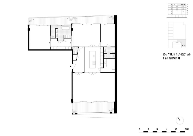
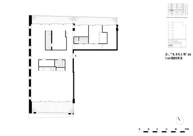
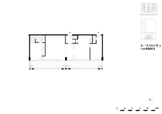
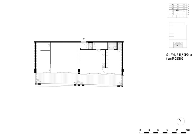
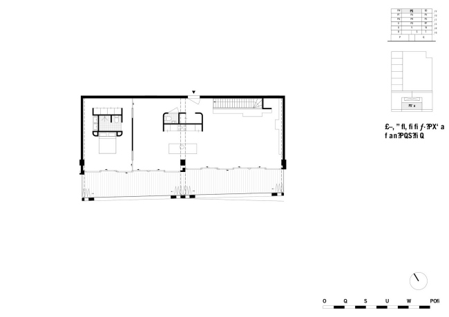
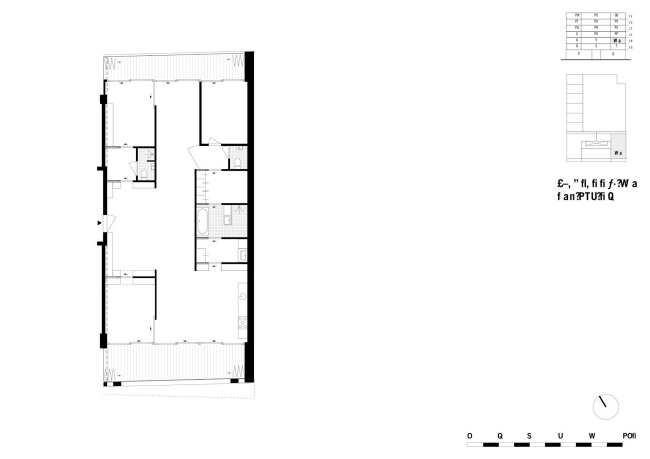
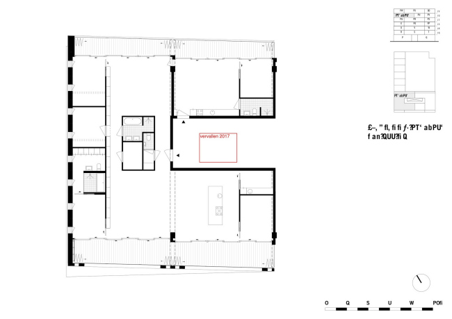
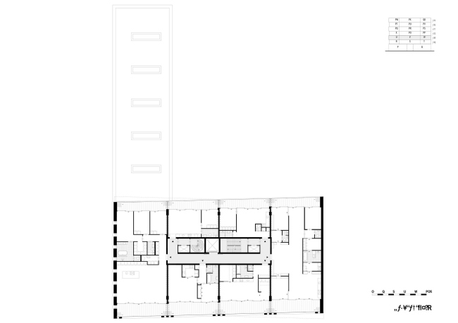
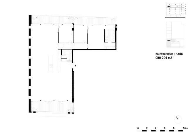
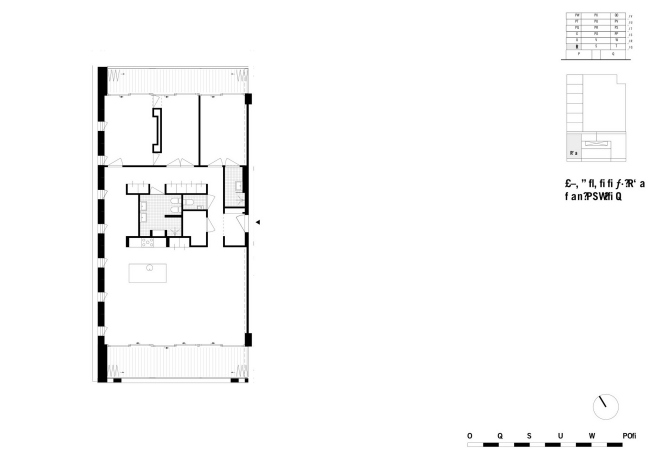
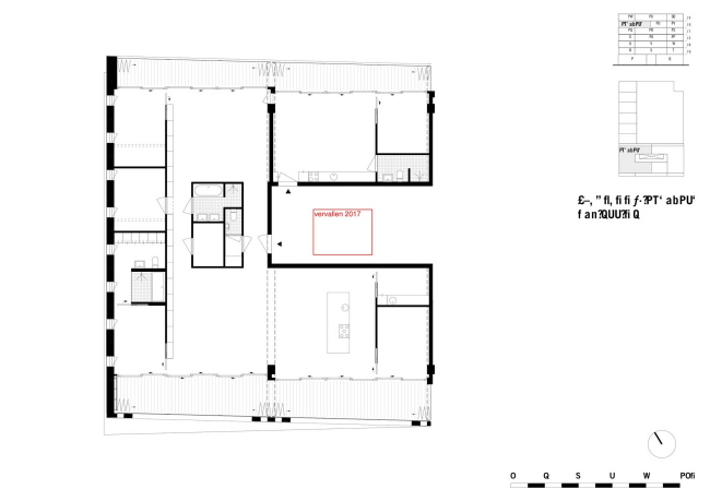
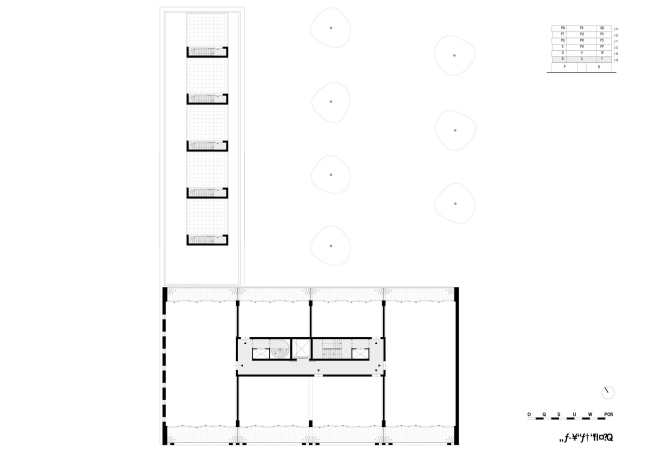
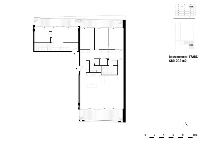
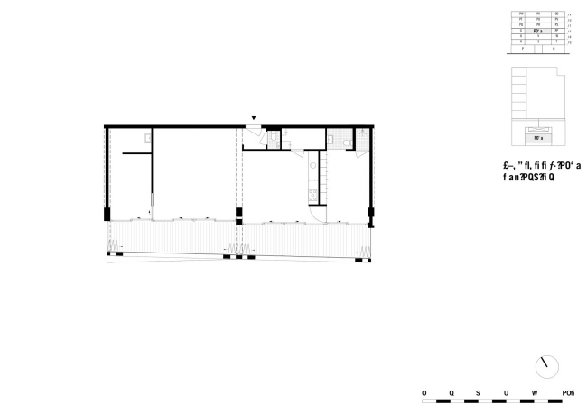
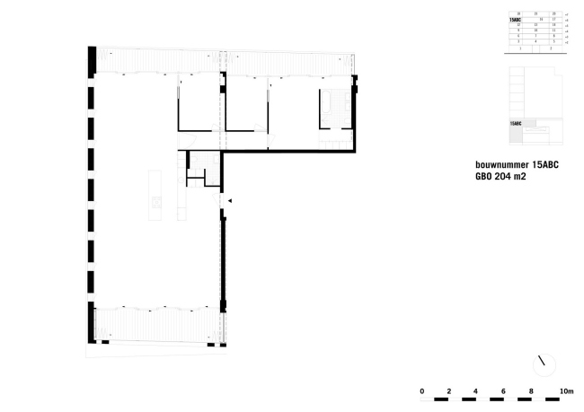
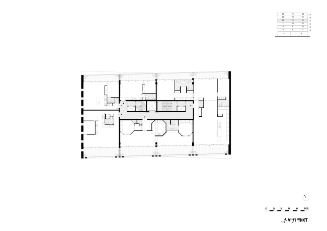
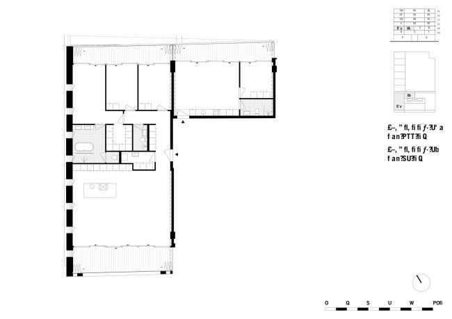
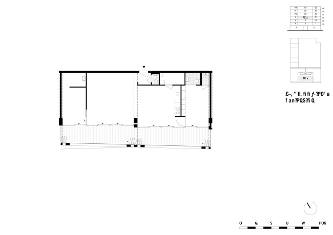
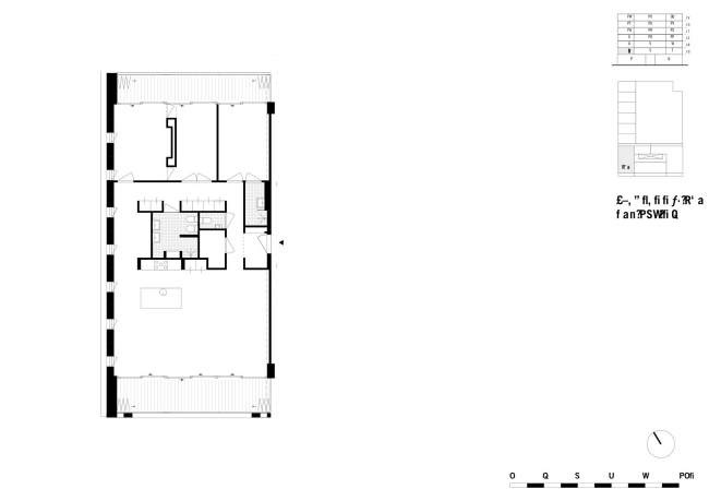
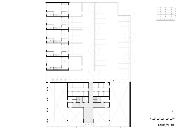
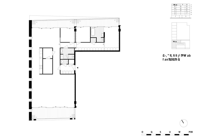
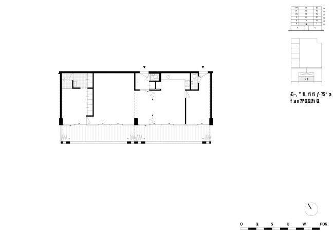
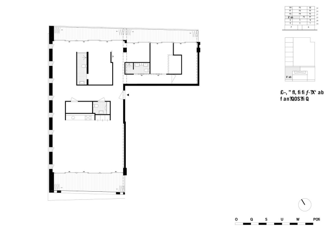
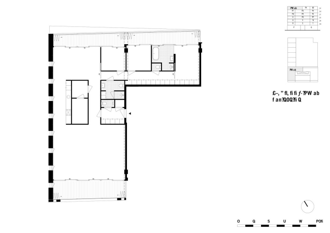
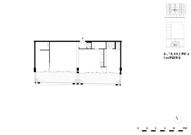
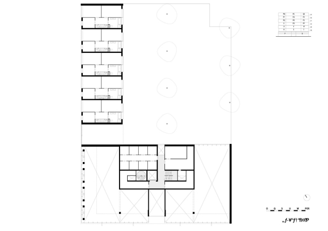
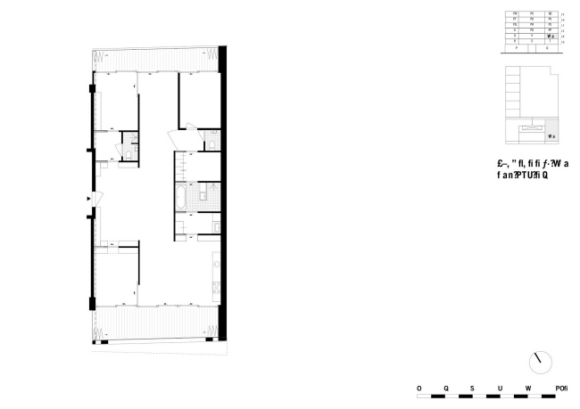
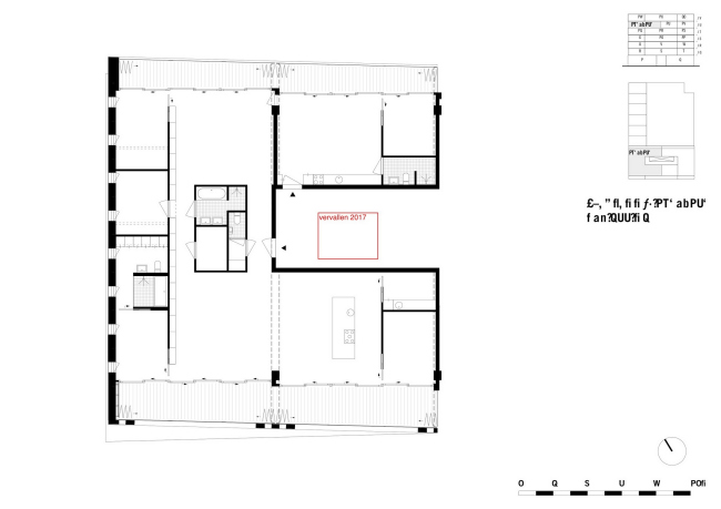
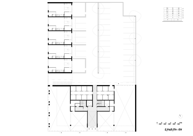
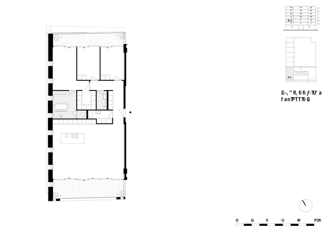
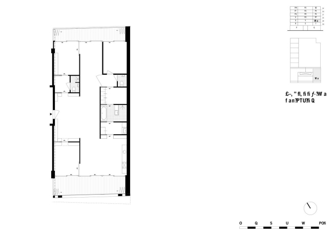
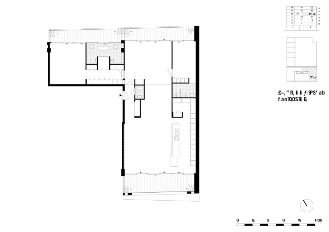
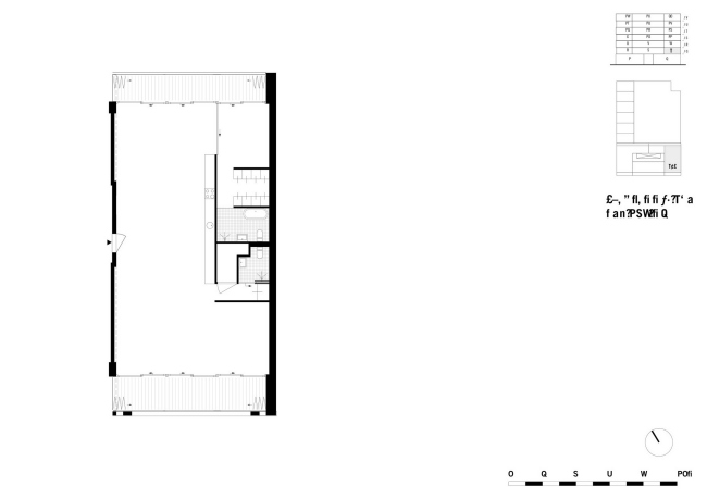
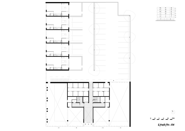
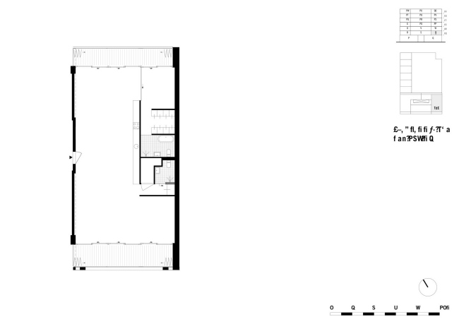
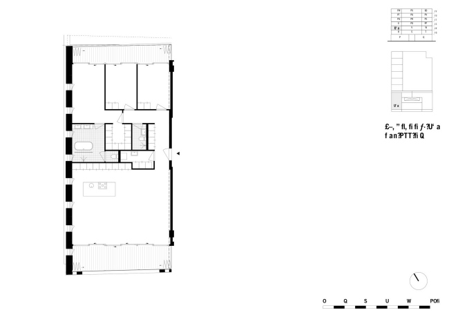
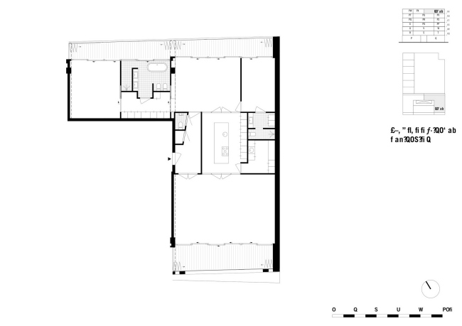
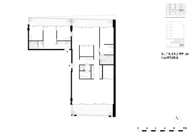
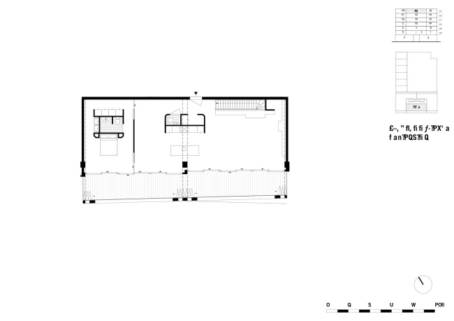
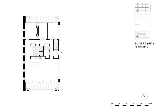
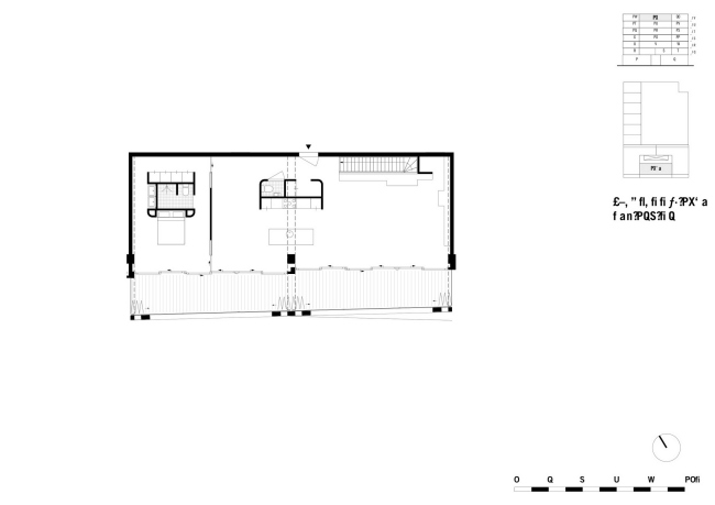
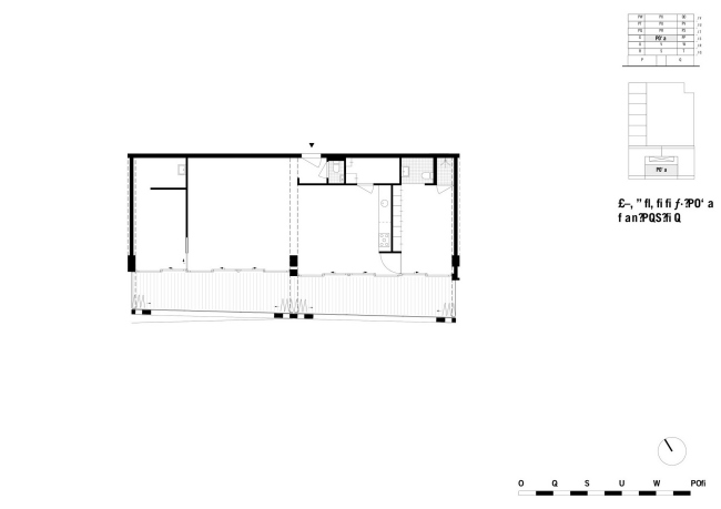
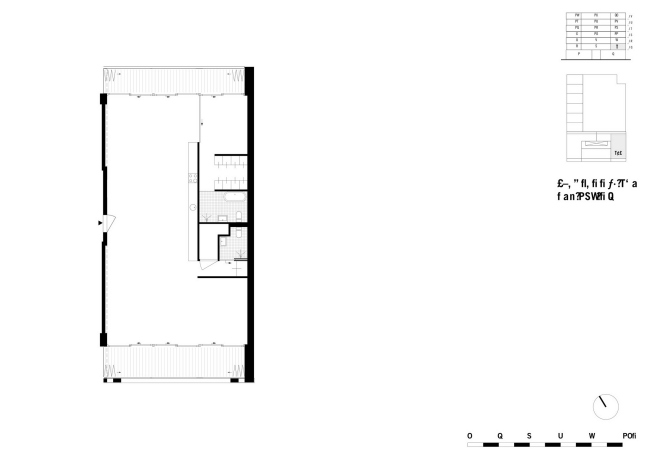
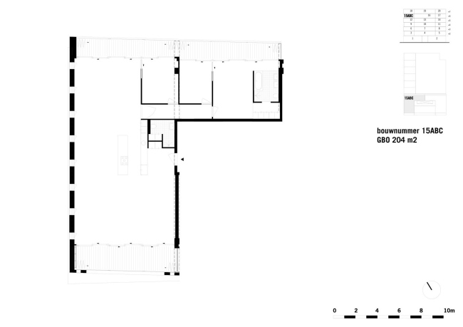
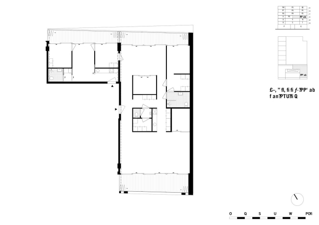
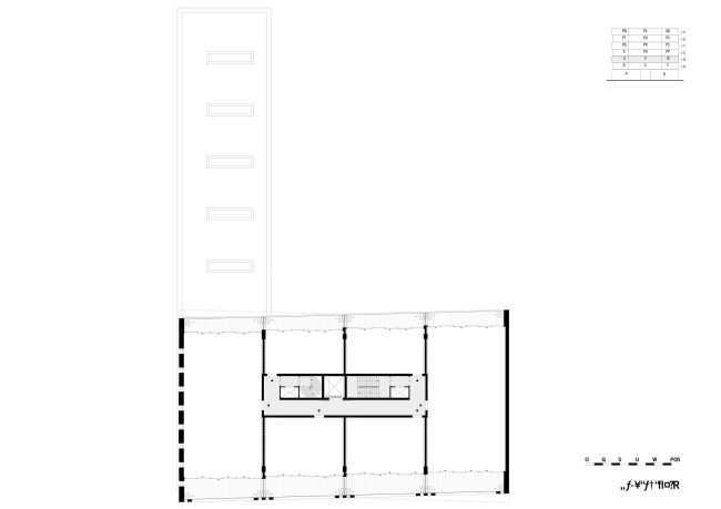
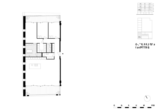
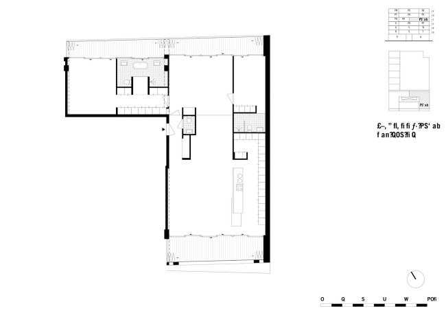
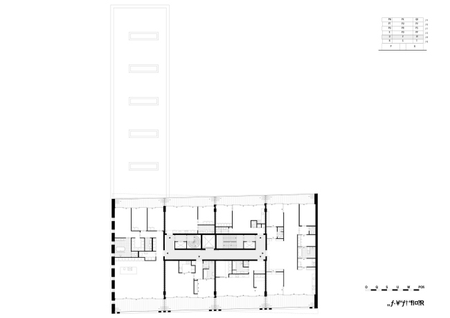
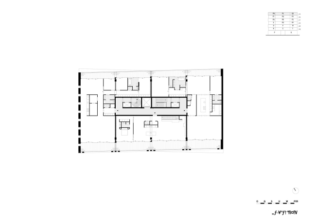
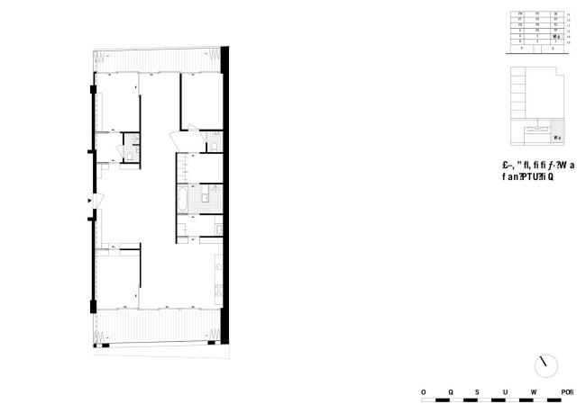
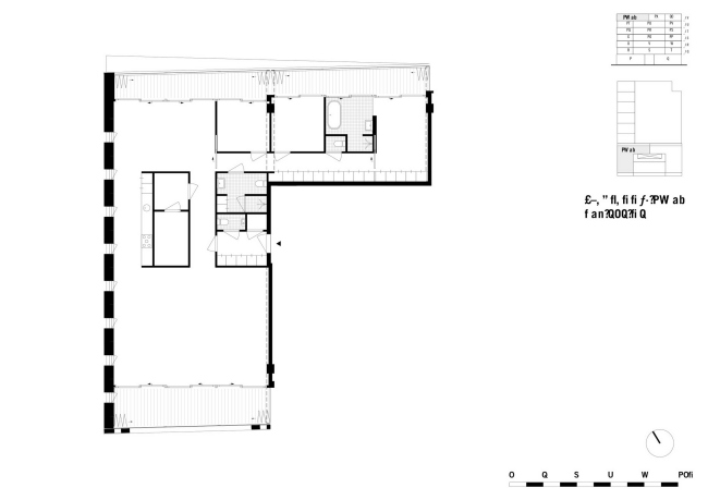
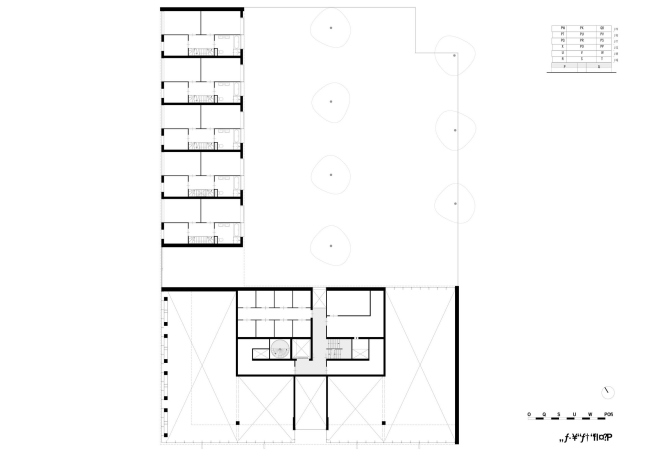
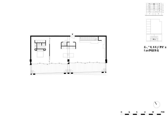
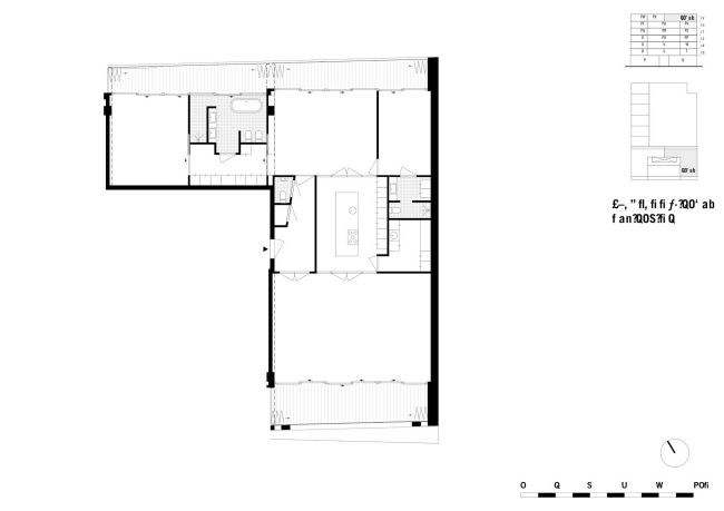
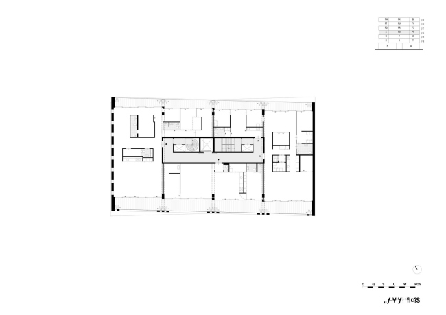
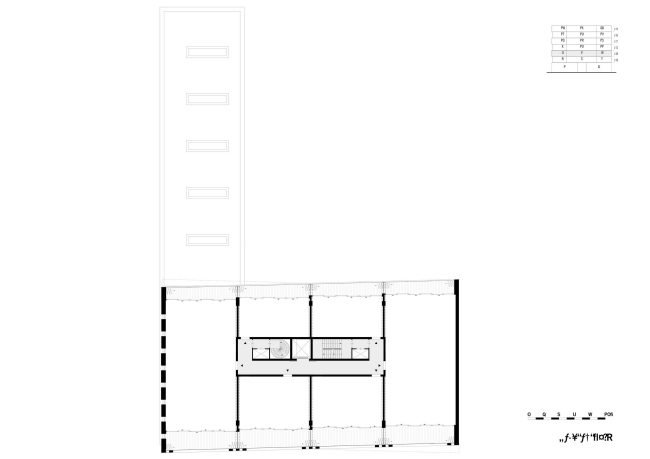
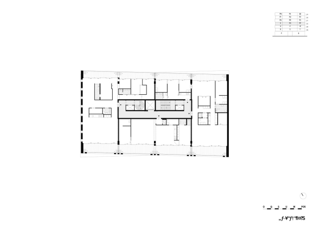
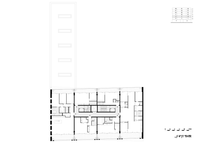
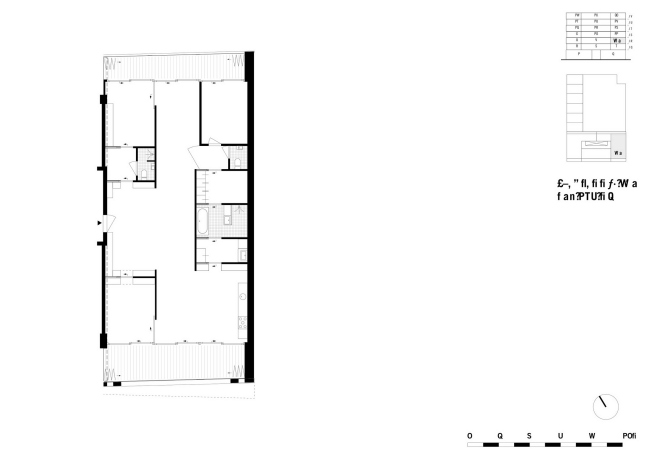
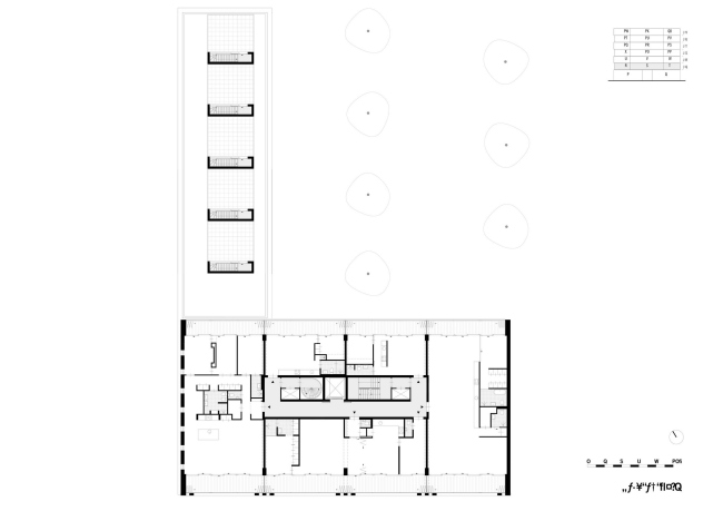
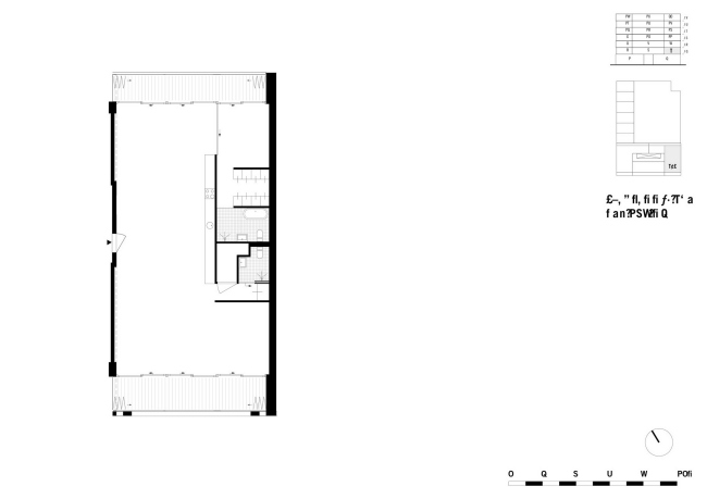
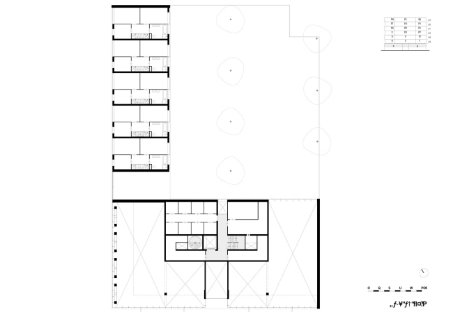
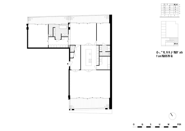
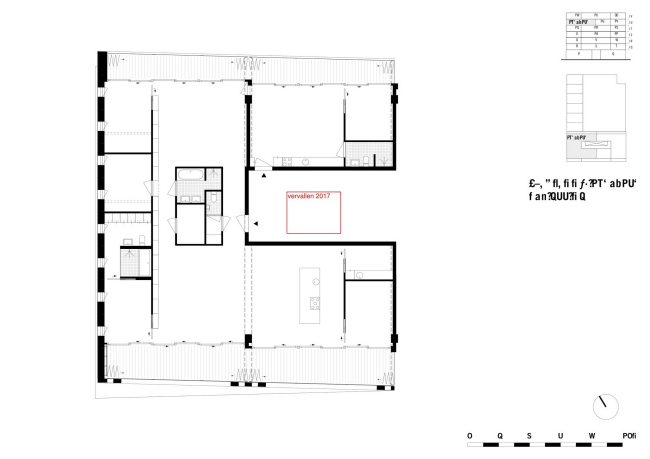
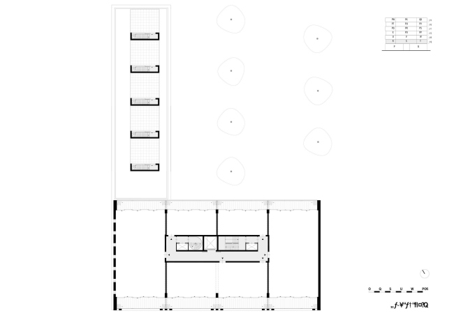
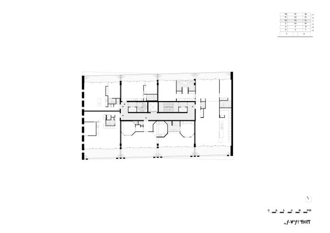
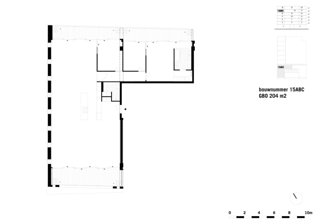
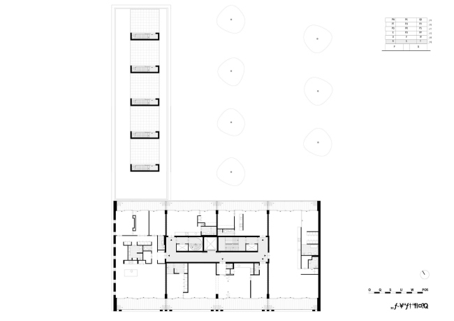
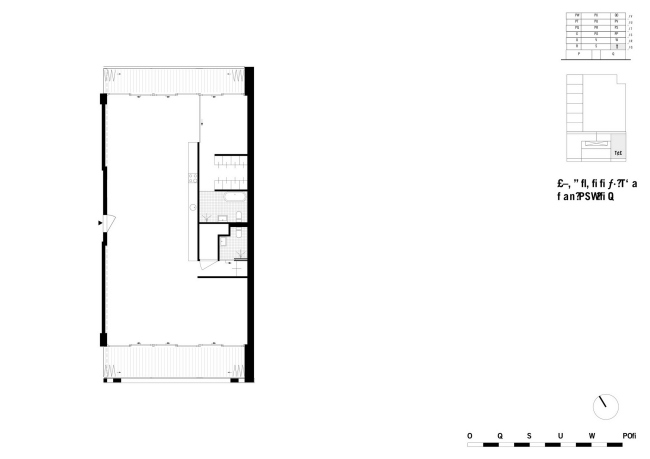
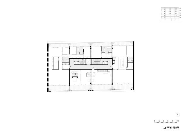
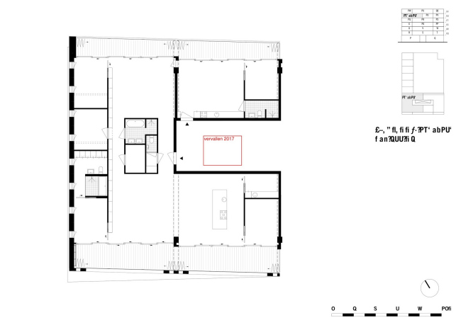
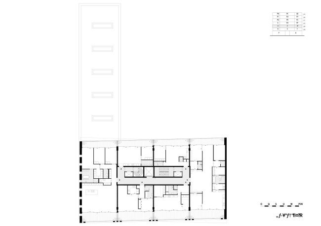
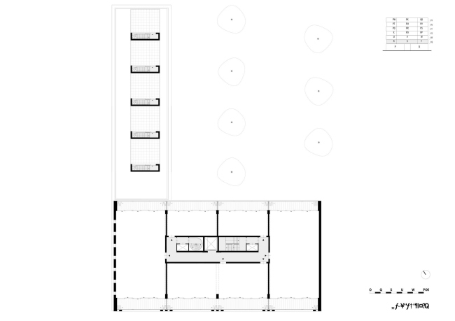
На каждом из шести этажей может располагаться одна просторная квартира площадью до 540 м2 с длинными лоджиями по фасаду, до восьми одно- и двухуровневых апартаментов с индивидуальной планировкой или офисный опен-спейс. Такая свобода возможна благодаря союзу каркасной несущей системы, 4-метровых потолков и особой конструкции перекрытия. На несущие клеёные балки с сечением 800 мм х 450 мм опираются металлические двутавтры, обеспечивающие несущую способность до 4 кН распределённой нагрузки, а в пространство между ними прокладываются коммуникации и электропроводка. По всей видимости, этой высоты (около 400 мм) хватает для обеспечения необходимого уклона сантехническим трубам и отвода их в шахты в центральном ядре: таким образом, стояки не прорезают здание насквозь, обеспечивая возможность самых разнообразных планировок (их варианты и некоторые готовые интерьеры отдельных ячеек можно посмотреть здесь). Первый этаж высотой 6,4 м отведён под коммерческие помещения, а перпендикулярно основному блоку расположены пять двухуровневых блокированных домов с террасами на крыше.
 
Жилой дом Patch22 © Luuk Kramer
Жилой дом Patch22 © Luuk Kramer

Естественная поверхность клеёного стоечно-балочный каркаса и стен оставлена в интерьере без отделки – защитного негорючего покрытия: предел огнестойкости в 120 минут достигается за счёт сильного увеличения площади сечения всех деревянных конструкций (подробнее об обеспечении пожарной безопасности в деревянных зданиях – здесь).
 
Жилой дом Patch22 © Luuk Kramer
Жилой дом Patch22 © Luuk Kramer

Здание получилось энергетически нейтральным: на крыше установлены солнечные батареи, вырабатывающие электроэнергию, имеются солнечные коллекторы, а система сбора дождевой воды обеспечивает Patch 22 технической водой; обогрев осуществляется с помощью печей на пеллетах – топливных гранулах из прессованных отходов. Общий бюджет строительства составила €6 400 000, себестоимость одного квадратного метра – €1209.
 
Жилой дом Patch22 © Luuk Kramer
Жилой дом Patch22 © Luuk Kramer

Patch 22 должен стать катализатором развития для района на севере Амстердама, его маяком и образом будущего. Кажется, эксперимент работы архитектором и девелопером одновременно признан успешным: теперь компания разрабатывает соседний участок, готовя под него проект Top-Up – 30-метровое деревянное здание на железобетонном основании.
Жилой дом Patch22 © Luuk Kramer
Жилой дом Patch22 © Luuk Kramer
Жилой дом Patch22 © Luuk Kramer
Жилой дом Patch22 © Luuk Kramer
Жилой дом Patch22 © Luuk Kramer
Жилой дом Patch22 © Luuk Kramer
Жилой дом Patch22 © Luuk Kramer
Жилой дом Patch22 © Luuk Kramer
Жилой дом Patch22 © Luuk Kramer
Жилой дом Patch22 © Luuk Kramer
Жилой дом Patch22 © Luuk Kramer
Жилой дом Patch22 © Luuk Kramer
Жилой дом Patch22 © Luuk Kramer
Жилой дом Patch22 © Luuk Kramer
Жилой дом Patch22 © Luuk Kramer
Жилой дом Patch22 © Luuk Kramer
Жилой дом Patch22 © Luuk Kramer
Жилой дом Patch22 © Luuk Kramer
Жилой дом Patch22 © Luuk Kramer
Жилой дом Patch22 © Luuk Kramer
Жилой дом Patch22 © Luuk Kramer
Жилой дом Patch22 © Luuk Kramer
Жилой дом Patch22 © Luuk Kramer
Жилой дом Patch22 © Luuk Kramer
Жилой дом Patch22 © Luuk Kramer
Жилой дом Patch22 © Luuk Kramer
Жилой дом Patch22 © Luuk Kramer
Жилой дом Patch22 © Luuk Kramer
Жилой дом Patch22 © Luuk Kramer
Жилой дом Patch22 © Luuk Kramer
Жилой дом Patch22 © Lemniskade Projecten BV & Tom Frantzen et al.
Жилой дом Patch22 © Lemniskade Projecten BV & Tom Frantzen et al.
Жилой дом Patch22 © Lemniskade Projecten BV & Tom Frantzen et al.
Жилой дом Patch22 © Lemniskade Projecten BV & Tom Frantzen et al.
Жилой дом Patch22 © Lemniskade Projecten BV & Tom Frantzen et al.
Жилой дом Patch22 © Lemniskade Projecten BV & Tom Frantzen et al.
Жилой дом Patch22 © Lemniskade Projecten BV & Tom Frantzen et al.
Жилой дом Patch22 © Lemniskade Projecten BV & Tom Frantzen et al.
Жилой дом Patch22 © Lemniskade Projecten BV & Tom Frantzen et al.
Жилой дом Patch22 © Lemniskade Projecten BV & Tom Frantzen et al.
Жилой дом Patch22 © Lemniskade Projecten BV & Tom Frantzen et al.
Жилой дом Patch22 © Lemniskade Projecten BV & Tom Frantzen et al.
Жилой дом Patch22 © Lemniskade Projecten BV & Tom Frantzen et al.
Жилой дом Patch22 © Lemniskade Projecten BV & Tom Frantzen et al.
Жилой дом Patch22 © Lemniskade Projecten BV & Tom Frantzen et al.
Жилой дом Patch22 © Lemniskade Projecten BV & Tom Frantzen et al.
Жилой дом Patch22 © Lemniskade Projecten BV & Tom Frantzen et al.
Жилой дом Patch22 © Lemniskade Projecten BV & Tom Frantzen et al.
Жилой дом Patch22 © Lemniskade Projecten BV & Tom Frantzen et al.
Жилой дом Patch22 © Lemniskade Projecten BV & Tom Frantzen et al.
Жилой дом Patch22 © Lemniskade Projecten BV & Tom Frantzen et al.
Жилой дом Patch22 © Lemniskade Projecten BV & Tom Frantzen et al.
Жилой дом Patch22 © Lemniskade Projecten BV & Tom Frantzen et al.
Жилой дом Patch22 © Lemniskade Projecten BV & Tom Frantzen et al.
Жилой дом Patch22 © Lemniskade Projecten BV & Tom Frantzen et al.
Жилой дом Patch22 © Lemniskade Projecten BV & Tom Frantzen et al.
Жилой дом Patch22 © Lemniskade Projecten BV & Tom Frantzen et al.
Жилой дом Patch22 © Lemniskade Projecten BV & Tom Frantzen et al.
Жилой дом Patch22 © Lemniskade Projecten BV & Tom Frantzen et al.
Жилой дом Patch22 © Lemniskade Projecten BV & Tom Frantzen et al.
Жилой дом Patch22 © Lemniskade Projecten BV & Tom Frantzen et al.
Жилой дом Patch22 © Lemniskade Projecten BV & Tom Frantzen et al.
Жилой дом Patch22 © Lemniskade Projecten BV & Tom Frantzen et al.
Жилой дом Patch22 © Lemniskade Projecten BV & Tom Frantzen et al.
Жилой дом Patch22 © Lemniskade Projecten BV & Tom Frantzen et al.
Жилой дом Patch22 © Lemniskade Projecten BV & Tom Frantzen et al.
Жилой дом Patch22 © Lemniskade Projecten BV & Tom Frantzen et al.
Жилой дом Patch22 © Lemniskade Projecten BV & Tom Frantzen et al.
Жилой дом Patch22 © Lemniskade Projecten BV & Tom Frantzen et al.
Жилой дом Patch22 © Lemniskade Projecten BV & Tom Frantzen et al.
Жилой дом Patch22 © Lemniskade Projecten BV & Tom Frantzen et al.
Жилой дом Patch22 © Lemniskade Projecten BV & Tom Frantzen et al.
Жилой дом Patch22 © Lemniskade Projecten BV & Tom Frantzen et al.
Жилой дом Patch22 © Lemniskade Projecten BV & Tom Frantzen et al.
Жилой дом Patch22 © Lemniskade Projecten BV & Tom Frantzen et al.
Жилой дом Patch22 © Lemniskade Projecten BV & Tom Frantzen et al.
Жилой дом Patch22 © Lemniskade Projecten BV & Tom Frantzen et al.
Жилой дом Patch22 © Lemniskade Projecten BV & Tom Frantzen et al.
Жилой дом Patch22 © Lemniskade Projecten BV & Tom Frantzen et al.
Жилой дом Patch22 © Lemniskade Projecten BV & Tom Frantzen et al.
Жилой дом Patch22 © Lemniskade Projecten BV & Tom Frantzen et al.
Жилой дом Patch22 © Lemniskade Projecten BV & Tom Frantzen et al.
Жилой дом Patch22 © Lemniskade Projecten BV & Tom Frantzen et al.
Жилой дом Patch22 © Lemniskade Projecten BV & Tom Frantzen et al.
Жилой дом Patch22 © Lemniskade Projecten BV & Tom Frantzen et al.
Жилой дом Patch22 © Lemniskade Projecten BV & Tom Frantzen et al.
Жилой дом Patch22 © Lemniskade Projecten BV & Tom Frantzen et al.
Жилой дом Patch22 © Lemniskade Projecten BV & Tom Frantzen et al.
Жилой дом Patch22 © Lemniskade Projecten BV & Tom Frantzen et al.
Жилой дом Patch22 © Lemniskade Projecten BV & Tom Frantzen et al.
Жилой дом Patch22 © Lemniskade Projecten BV & Tom Frantzen et al.
Жилой дом Patch22 © Lemniskade Projecten BV & Tom Frantzen et al.
Жилой дом Patch22 © Lemniskade Projecten BV & Tom Frantzen et al.
Жилой дом Patch22 © Lemniskade Projecten BV & Tom Frantzen et al.
Жилой дом Patch22 © Lemniskade Projecten BV & Tom Frantzen et al.
Жилой дом Patch22 © Lemniskade Projecten BV & Tom Frantzen et al.
Жилой дом Patch22 © Lemniskade Projecten BV & Tom Frantzen et al.
Жилой дом Patch22 © Lemniskade Projecten BV & Tom Frantzen et al.
Жилой дом Patch22 © Lemniskade Projecten BV & Tom Frantzen et al.
Жилой дом Patch22 © Lemniskade Projecten BV & Tom Frantzen et al.
Жилой дом Patch22 © Lemniskade Projecten BV & Tom Frantzen et al.
Жилой дом Patch22 © Lemniskade Projecten BV & Tom Frantzen et al.
Жилой дом Patch22 © Lemniskade Projecten BV & Tom Frantzen et al.
Жилой дом Patch22 © Lemniskade Projecten BV & Tom Frantzen et al.
Жилой дом Patch22 © Lemniskade Projecten BV & Tom Frantzen et al.
Жилой дом Patch22 © Lemniskade Projecten BV & Tom Frantzen et al.
Жилой дом Patch22 © Lemniskade Projecten BV & Tom Frantzen et al.
Жилой дом Patch22 © Lemniskade Projecten BV & Tom Frantzen et al.
Жилой дом Patch22 © Lemniskade Projecten BV & Tom Frantzen et al.
Жилой дом Patch22 © Lemniskade Projecten BV & Tom Frantzen et al.
Жилой дом Patch22 © Lemniskade Projecten BV & Tom Frantzen et al.
Жилой дом Patch22 © Lemniskade Projecten BV & Tom Frantzen et al.
Жилой дом Patch22 © Lemniskade Projecten BV & Tom Frantzen et al.
Жилой дом Patch22 © Lemniskade Projecten BV & Tom Frantzen et al.
Жилой дом Patch22 © Lemniskade Projecten BV & Tom Frantzen et al.
Жилой дом Patch22 © Lemniskade Projecten BV & Tom Frantzen et al.
Жилой дом Patch22 © Lemniskade Projecten BV & Tom Frantzen et al.
Жилой дом Patch22 © Lemniskade Projecten BV & Tom Frantzen et al.
Жилой дом Patch22 © Lemniskade Projecten BV & Tom Frantzen et al.
Жилой дом Patch22 © Lemniskade Projecten BV & Tom Frantzen et al.
Жилой дом Patch22 © Lemniskade Projecten BV & Tom Frantzen et al.
Жилой дом Patch22 © Lemniskade Projecten BV & Tom Frantzen et al.
Жилой дом Patch22 © Lemniskade Projecten BV & Tom Frantzen et al.
Жилой дом Patch22 © Lemniskade Projecten BV & Tom Frantzen et al.
Жилой дом Patch22 © Lemniskade Projecten BV & Tom Frantzen et al.
Жилой дом Patch22 © Lemniskade Projecten BV & Tom Frantzen et al.
Жилой дом Patch22 © Lemniskade Projecten BV & Tom Frantzen et al.
Жилой дом Patch22 © Lemniskade Projecten BV & Tom Frantzen et al.
Жилой дом Patch22 © Lemniskade Projecten BV & Tom Frantzen et al.
Жилой дом Patch22 © Lemniskade Projecten BV & Tom Frantzen et al.
Жилой дом Patch22 © Lemniskade Projecten BV & Tom Frantzen et al.
Жилой дом Patch22 © Lemniskade Projecten BV & Tom Frantzen et al.
Жилой дом Patch22 © Lemniskade Projecten BV & Tom Frantzen et al.
Жилой дом Patch22 © Lemniskade Projecten BV & Tom Frantzen et al.
Жилой дом Patch22 © Lemniskade Projecten BV & Tom Frantzen et al.
Жилой дом Patch22 © Lemniskade Projecten BV & Tom Frantzen et al.
Жилой дом Patch22 © Lemniskade Projecten BV & Tom Frantzen et al.
Жилой дом Patch22 © Lemniskade Projecten BV & Tom Frantzen et al.
Жилой дом Patch22 © Lemniskade Projecten BV & Tom Frantzen et al.
Жилой дом Patch22 © Lemniskade Projecten BV & Tom Frantzen et al.
Жилой дом Patch22 © Lemniskade Projecten BV & Tom Frantzen et al.
Жилой дом Patch22 © Lemniskade Projecten BV & Tom Frantzen et al.
Жилой дом Patch22 © Lemniskade Projecten BV & Tom Frantzen et al.
Жилой дом Patch22 © Lemniskade Projecten BV & Tom Frantzen et al.
Жилой дом Patch22 © Lemniskade Projecten BV & Tom Frantzen et al.
Жилой дом Patch22 © Lemniskade Projecten BV & Tom Frantzen et al.
Жилой дом Patch22 © Lemniskade Projecten BV & Tom Frantzen et al.
Жилой дом Patch22 © Lemniskade Projecten BV & Tom Frantzen et al.
Жилой дом Patch22 © Lemniskade Projecten BV & Tom Frantzen et al.
Жилой дом Patch22 © Lemniskade Projecten BV & Tom Frantzen et al.
Жилой дом Patch22 © Lemniskade Projecten BV & Tom Frantzen et al.
Жилой дом Patch22 © Lemniskade Projecten BV & Tom Frantzen et al.
Жилой дом Patch22 © Lemniskade Projecten BV & Tom Frantzen et al.
Жилой дом Patch22 © Lemniskade Projecten BV & Tom Frantzen et al.
Жилой дом Patch22 © Lemniskade Projecten BV & Tom Frantzen et al.
Жилой дом Patch22 © Lemniskade Projecten BV & Tom Frantzen et al.
Жилой дом Patch22 © Lemniskade Projecten BV & Tom Frantzen et al.
Жилой дом Patch22 © Lemniskade Projecten BV & Tom Frantzen et al.
Жилой дом Patch22 © Lemniskade Projecten BV & Tom Frantzen et al.
Жилой дом Patch22 © Lemniskade Projecten BV & Tom Frantzen et al.
Жилой дом Patch22 © Lemniskade Projecten BV & Tom Frantzen et al.
Жилой дом Patch22 © Lemniskade Projecten BV & Tom Frantzen et al.
Жилой дом Patch22 © Lemniskade Projecten BV & Tom Frantzen et al.
Жилой дом Patch22 © Lemniskade Projecten BV & Tom Frantzen et al.
Жилой дом Patch22 © Lemniskade Projecten BV & Tom Frantzen et al.
Жилой дом Patch22 © Lemniskade Projecten BV & Tom Frantzen et al.
Жилой дом Patch22 © Lemniskade Projecten BV & Tom Frantzen et al.
Жилой дом Patch22 © Lemniskade Projecten BV & Tom Frantzen et al.
Жилой дом Patch22 © Lemniskade Projecten BV & Tom Frantzen et al.
Жилой дом Patch22 © Lemniskade Projecten BV & Tom Frantzen et al.
Жилой дом Patch22 © Lemniskade Projecten BV & Tom Frantzen et al.
Жилой дом Patch22 © Lemniskade Projecten BV & Tom Frantzen et al.
Жилой дом Patch22 © Lemniskade Projecten BV & Tom Frantzen et al.
Жилой дом Patch22 © Lemniskade Projecten BV & Tom Frantzen et al.
Жилой дом Patch22 © Lemniskade Projecten BV & Tom Frantzen et al.
Жилой дом Patch22 © Lemniskade Projecten BV & Tom Frantzen et al.