Размещено на портале Архи.ру (www.archi.ru)

30.03.2017

На берегу очень тихой реки

Юлия Тарабарина
Объект:
ЖК «ТЭЦ на Великой»
Адрес:
Россия, Псков. Участок между ул. Советской – ул. Детской – наб. реки Великой
Архитектор:
Никита Явейн
Мастерская:
Студия 44
Авторский коллектив:
Архитекторы: Н. И. Явейн, Г. В. Иванов, В. А. Романцев, У. В. Сулимова, Е. М. Богомаз, Е.С. Фёдорова;
Конструкторы: И. Н. Ляшко, Н. В. Просветова, С. С. Богданов

ЖК, спроектированный Никитой Явейном для Пскова – прямо проект-мечта: тут и реставрация конструктивизма, и лофт у реки, и малоэтажное жильё, и современная архитектура. Он объединяет идеал тихой жизни среднерусского города с идеей комфортного-оживлённого городского пространства современной урбанистики.

ЖК «ТЭЦ на Великой»
ЖК «ТЭЦ на Великой»
© Студия 44

ТЭЦ-18 расположена в самом центре Пскова, рядом с Мстиславской башней Окольного города. В 1920-е для того, чтобы её построить, разобрали прясло средневековой стены; теперь здание ТЭЦ – объект культурного наследия регионального значения. Здание не типовое, авторское, его построил ленинградский архитектор Андрей Оль. Но охранный статус электростанция получила вовсе не за принадлежность архитектуре конструктивизма, а потому, что во время войны здесь функционировала антифашистская ячейка Степана Никифорова и Михаила Семёнова. В 1960-е электростанцию перестраивали, в 2000-е забросили, и она, обмотанная колючей проволокой, долго гнила прямо на набережной. Затем набережную благоустроили, а про ТЭЦ долго ходили разные слухи. И вот наконец представлен проект: она должна превратиться в недешёвое жильё для творческих людей; специализированные СМИ уже определили, что такое жильё подойдёт для состоятельных людей из Москвы и Петербурга.
ЖК «ТЭЦ на Великой»
ЖК «ТЭЦ на Великой»
© Студия 44

Выбор петербургского архитектора Никиты Явейна для работы с таким проектом надо признать точным решением. Во-первых, он обладает опытом реконструкций памятников уровня Главного штаба, во-вторых, его отец Игорь Явейн – один из мастеров ленинградского авангарда; Явейнов смело можно считать известной архитектурной династией XX века. Кому ещё работать с реконструкцией памятника авангарда, пусть и регионального, а не федерального значения, да и ещё и расположенного на северо-востоке, в «зоне влияния» Петербурга.

Место и впрямь ответственное. Несмотря на то, что Псков город фрагментированный и контрастный, одновременно музейный и промышленный, в своей старой части он сохраняет остатки исторической среды, и, как минимум, в основном двухэтажен. Поблизости, к северу – церковь Одигитрии на Печерском подворье, странный для Пскова памятник конца XVII века, впрочем ужасно заброшенный. Также совсем рядом – Псковский госуниверситет в «дворцовом» здании бывшей духовной семинарии. В двух шагах знаменитые церкви Николы со Усохи и Василия на Горке, XVI века, последняя окружена обильно заросшим сквером Красных партизан; рядом детский парк. Вот и зелень для будущих жильцов. Прекрасное место, крайне привлекательная территория для элитного жилья: и древности, и река, и окружено зеленью. И тихо.
Вид с высоты птичьего полета. ЖК «ТЭЦ на Великой»
Вид с высоты птичьего полета. ЖК «ТЭЦ на Великой»
© Студия 44

Не вся территория бывшей ТЭЦ отведена под жилой комплекс: примерно треть юго-восточной части, с мелкими постройками (среди домик Жуковского в стиле модерн), архитекторы не рассматривают. В их распоряжении – здание старой ТЭЦ и вся незастроенная часть территории вокруг. Она ближе к реке, что хорошо. Её северная часть, за башней, прикрыта сохранившимся пряслом стены, что романтично. В сторону же, противоположную реке, к Советской улице тянется узкий перешеек – в проекте он заканчивается КПП и служит восточным входом-въездом на территорию.
Ситуационный план. ЖК «ТЭЦ на Великой»
Ситуационный план. ЖК «ТЭЦ на Великой»
© Студия 44

К реке комплекс раскрыт небольшой площадью между зданием ТЭЦ и Мстиславской башней; она начинается от променада и ориентирована на ось существующей лестницы спуска к реке. Эта площадь – его главное общественное пространство, «городская» часть. Здесь задуманы кафе, стоящая посередине сохранённая труба электростанции добавит актуального шика, свойственного реорганизуемым промзонам. Контрастное мощение штрихами черного-серого камня и кубические скамейки-табуретки предваряют широкую лестницу – выпрямленный амфитеатр, чьи широкие ступени располагают к тому, чтобы сидеть на них и наблюдать за площадью и рекой.
ЖК «ТЭЦ на Великой»
ЖК «ТЭЦ на Великой»
© Студия 44

«Его можно использовать и для импровизированных представлений», – поясняет Никита Явейн. Вход на мини-площадь с набережной обрамляют справа здание ТЭЦ, слева бывший корпус администрации, в 1930-е годы поставленный прямо впритык к древней башне. Его поздний верхний этаж разберут и оставят 4 конструктивистских этажа. Навесной переход 1960-х между ТЭЦ и административным зданием разберут и заменят похожим, но стеклянно-металлическим. Что, с одной стороны, позволит сохранить исторические характеристики места, а с другой стороны – оформить вход на площадь: он получит горизонтальную перемычку, сопоставимую с элементом крупного техногенного портала (такие горизонтальные балки с фермами – один из любимых приёмов Никиты Явейна, но здесь он дан, скажем так, в миниатюре). Площадь, таким образом, не будет очень-то открытой, она больше похожа на крупный портал и для гуляющих по набережной будет скорее закоулком, куда, вероятно, можно зайти.
ЖК «ТЭЦ на Великой»
ЖК «ТЭЦ на Великой»
© Студия 44

Второй вход со стороны набережной и вторая миниплощадь расположились южнее: здесь перед фасадом ТЭЦ тоже появляется чёрно-серая вымостка, а правее вдоль здания вверх ведёт протяжённый «ступопандус». Вглубь территории можно подняться по диагонали, и, миновав гостевую парковку в самой середине, выйти через КПП на Советскую улицу. Так у комплекса образуется сквозная пешеходная ось, ведущая от реки в город. Впрочем её доступность для горожан – вопрос, который ещё дискутируется. Пока что на презентации проекта прозвучало, что внутрь территории комплекса горожан будут «иногда пускать». Но если раскрытие территории действительно состоится, то появление такого ЖК-не-за-забором в центре Пскова действительно сможет оживить его набережную и станет небольшим шагом к окультуриванию этого города, пока ещё довольно пыльного и неуютного в туристическом смысле.

Вторая ось – внутренняя автомобильная улица – пересекает территорию продольно, связывая обрывки улиц, 80 лет назад разорванные промышленной территорией электростанции.

Но вернемся к зданию ТЭЦ – собственно предмету реставрации и реконструкции, корпусу №1 будущего ЖК. На схемах архитекторы подробно показали два основных строительных периода.
Схема. ЖК «ТЭЦ на Великой»
Схема. ЖК «ТЭЦ на Великой»
© Студия 44

К разборке намечены 2-3 низкоэтажные пристройки 1960-х годов; остальное сохраняется и реставрируется. И вот ещё что интересно: угловой, самый заметный сейчас с набережной, объём – поздний, хотя и был в 1960-е, по-видимому, немного стилизован под авангард. Он, как и все другие элементы 1960-х, будет покрыт серо-коричневым кирпичом со вставками керамических изразцов. И кирпич, и изразцы – ручной работы и местного псковского производства – рифмуются с камнем городской стены и средневековой архитектурой города в целом (забегая вперёд скажу, что такие же отделочные материалы используются и на фасадах новых домов). По отношению к поздним пристройкам ТЭЦ архитекторы позволяют себе и другие вольности: их окна обрамлены выступающими чёрными металлическими рамками, внизу появилось круглое окно, угловой выступ получил выступающий стеклянный эркер – несложно заметить, что все вносимые «правки» приближают объемы 1960-х к стилистике авангарда. Возникает любопытный парадокс: дилетант, скорее всего, уж точно сочтёт всё здание памятником авангарда. С другой стороны, всё сделано по канонам Венецианской хартии: разновременные части, как минимум, размежёваны цветом.
ЖК «ТЭЦ на Великой»
ЖК «ТЭЦ на Великой»
© Студия 44
Фасад. ЖК «ТЭЦ на Великой»
Фасад. ЖК «ТЭЦ на Великой»
© Студия 44
ЖК «ТЭЦ на Великой»
ЖК «ТЭЦ на Великой»
© Студия 44
Фасад. ЖК «ТЭЦ на Великой»
Фасад. ЖК «ТЭЦ на Великой»
© Студия 44

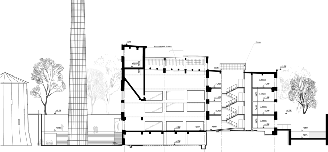
Итак, здание ТЭЦ стало жилым домом. Главный печной зал архитекторы превратили в просторный атриум высотой около 15 метров. Свет попадает внутрь через исторические шедовые фонари и через большие окна в северной стене, куда прямое солнце проникнет только летом на закате. Зато вечером светящиеся изнутри окна гигантского вестибюля приятно подсветят площадь. Внутри образуется эффектный, благодаря конструкциям 1930-х, крытый внутренний двор, внутри которого архитекторы запланировали даже деревья.
Жилой комплекс с реставрацией и приспособлением для современного использования объекта культурного наследия «Электростанция тепловая (ТЭЦ)». Интерьер. Проект, 2016 © Студия 44
Жилой комплекс с реставрацией и приспособлением для современного использования объекта культурного наследия «Электростанция тепловая (ТЭЦ)». Интерьер. Проект, 2016 © Студия 44
Интерьер. ЖК «ТЭЦ на Великой»
Интерьер. ЖК «ТЭЦ на Великой»
© Студия 44
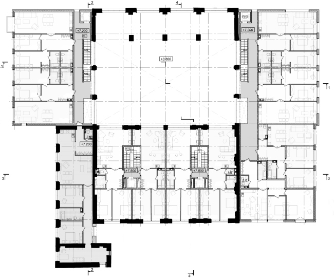
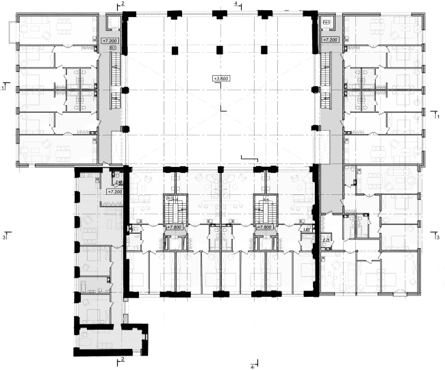
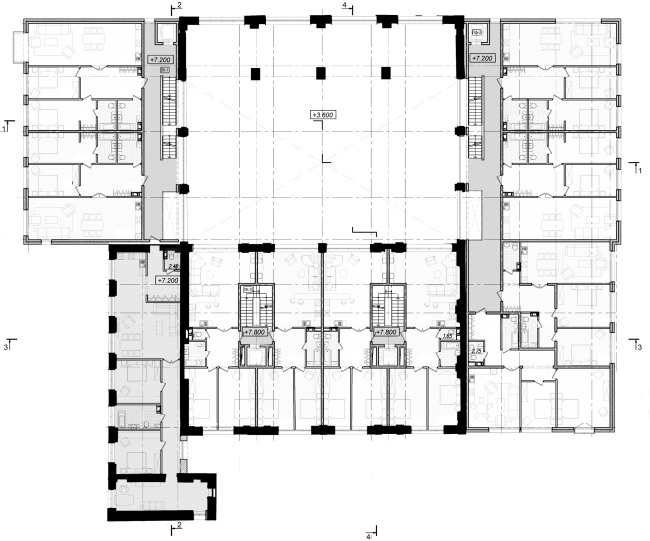
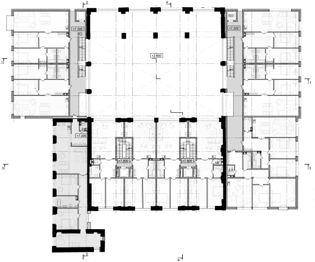
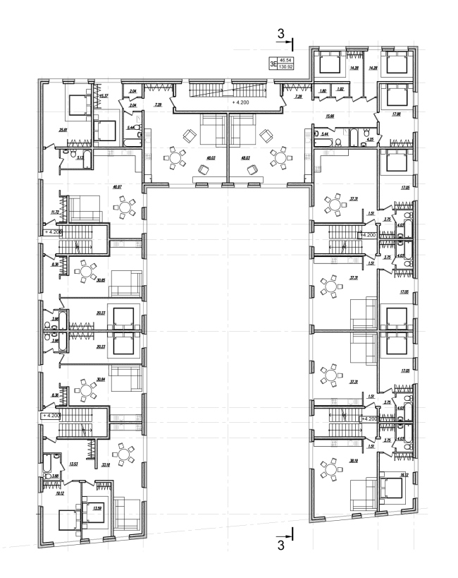
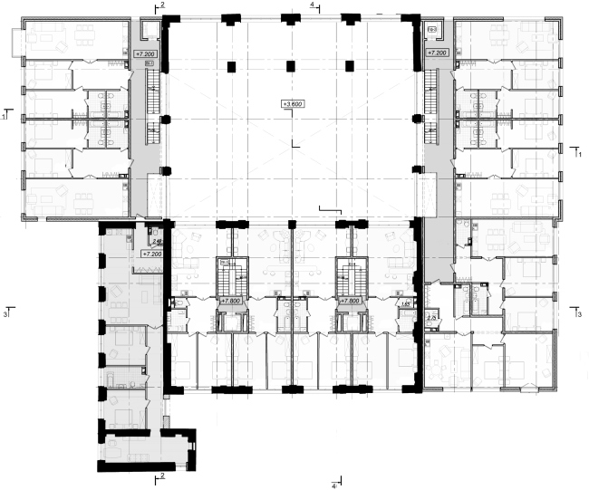
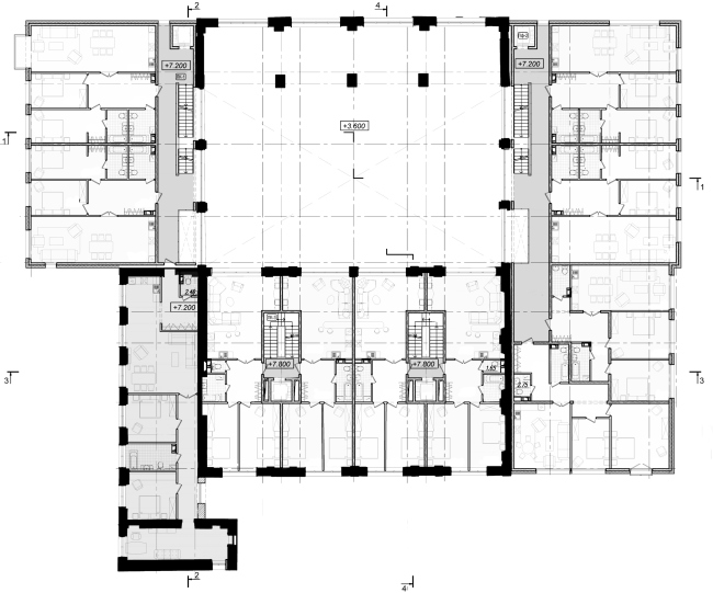
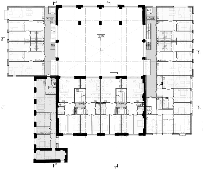
План 3 этажа дома 2. ЖК «ТЭЦ на Великой»
План 3 этажа дома 2. ЖК «ТЭЦ на Великой»
© Студия 44

В атриум, почти как на улицу, выходят окна гостиных квартир южной части здания – решение нечастое, обычно во внутренние световые колодцы обращают лестницы. Но вестибюль достаточно светел, чтобы осветить гостиные, и достаточно интересен для того, чтобы туда смотреть из окна. Эффект такого взгляда будет непривычным – это будет взгляд из окна не на улицу, а в промежуточное пространство вестибюля.
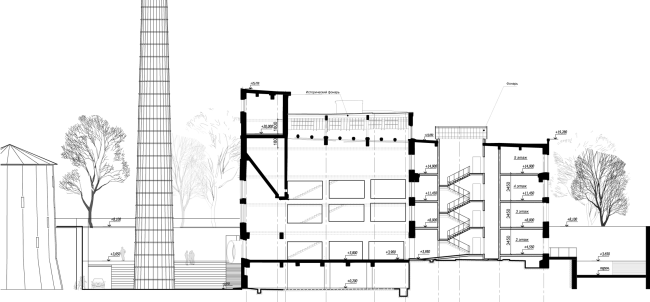
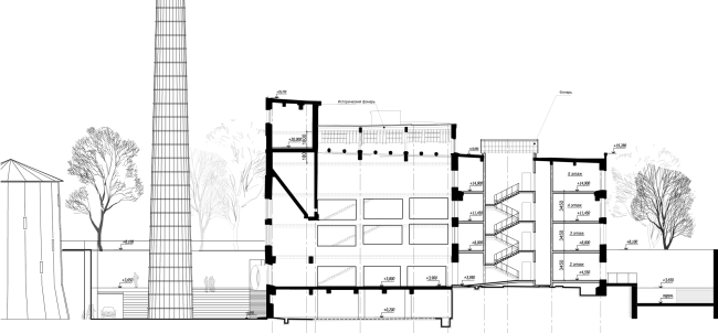
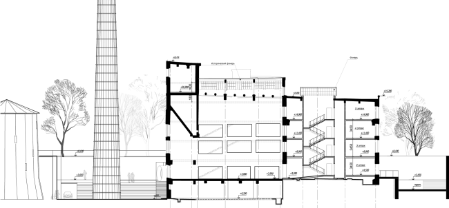
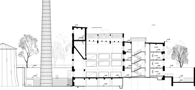
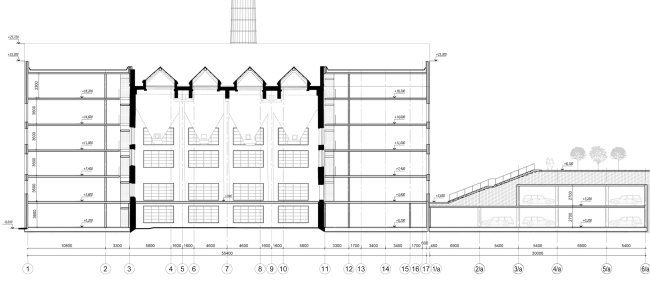
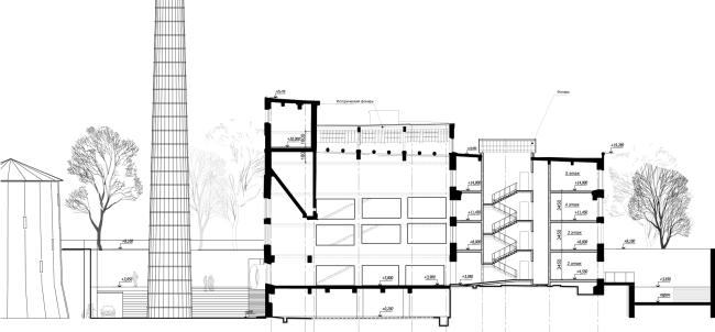
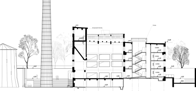
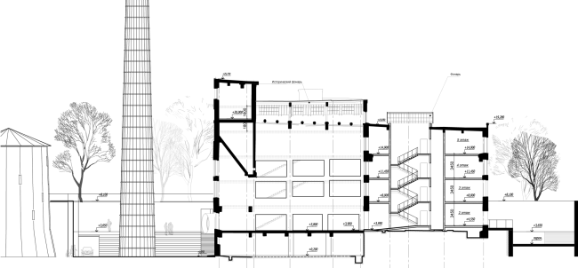
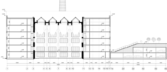
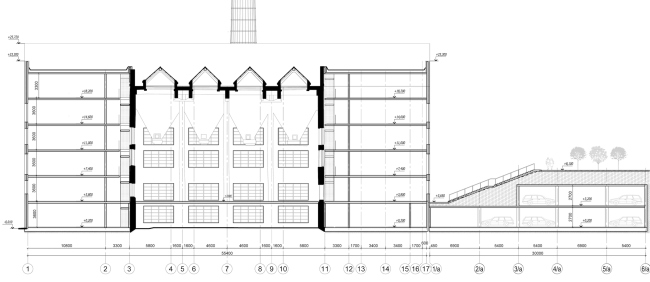
Разрез. ЖК «ТЭЦ на Великой»
Разрез. ЖК «ТЭЦ на Великой»
© Студия 44
Разрез. ЖК «ТЭЦ на Великой»
Разрез. ЖК «ТЭЦ на Великой»
© Студия 44
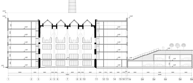
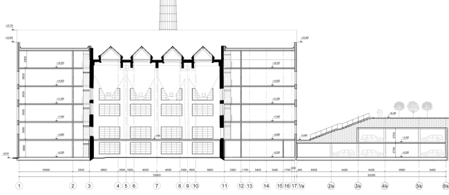
Сечение. ЖК «ТЭЦ на Великой»
Сечение. ЖК «ТЭЦ на Великой»
© Студия 44

Вдоль восточной и западной стен атриума размещены лестницы; их будет хорошо видно через большие окна, а запланированные рядом лоджии позволят любоваться двором сверху. Лифты спрятаны в северных концах коридоров; и еще два лестнично-лифтовых блока встроены в середину южной половины конструктивистского здания. Ни один фасад и ни одна старая перемычка здания не пострадали от лифтов – уверяют архитекторы. Квартиры в здании ТЭЦ почти все трёхкомнатные, 2 спальни и гостиная. Только в узком объёме-пенале 1930-х годов постройки, вытянутом в юго-западной части вдоль набережной, уместилась одна четырехкомнатная квартира с множеством окон на реку. Зато потолки повсеместно – 3,8 м, очень высокие. Промышленные здания, как правило, обеспечивают простор устроенным в них квартирам.

Участок расположен на высоком берегу реки Великой, не зря здесь построили крепость. Перепад высот – около 8 м, так что в западной части первый этаж корпуса №1 полностью открыт к набережной: именно в нём могут появиться кафе. Первый этаж восточного фасада полностью поглощён склоном. Зато дальше архитекторы запланировали двухъярусную парковку внутри холма: её нижний ярус расположен в уровне первого этажа дома-ТЭЦ, так что из парковки можно будет войти в дом.
Сечение. ЖК «ТЭЦ на Великой»
Сечение. ЖК «ТЭЦ на Великой»
© Студия 44
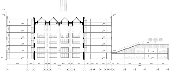
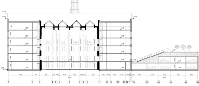
Корпус №3. Жилой комплекс с реставрацией и приспособлением для современного использования объекта культурного наследия «Электростанция тепловая (ТЭЦ)». Проект, 2016 © Студия 44
Корпус №3. Жилой комплекс с реставрацией и приспособлением для современного использования объекта культурного наследия «Электростанция тепловая (ТЭЦ)». Проект, 2016 © Студия 44

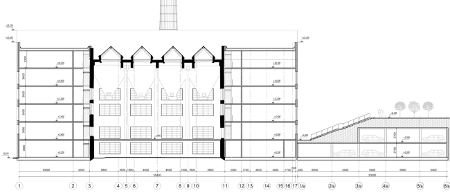
ТЭЦ дополнят два совершенно новых трёхэтажных жилых дома: один расположился в глубине, восточнее парковки и представляет собой узкое каре, «смотрящее» на реку (чуть наискосок, через площадь). Второй дом, квадратный и с совершенно замкнутым внутренним двором, спрятался за пряслом стены и Мстиславской башней. Они похожи: оба напоминают дом, построенный «Студией 44» в Кронштадте и продолжают поиски в области недоступного большинству россиян идеала – малоэтажного жилья. Лифтов нет. Зато в подвале есть кладовки и вход в них снаружи. Это вариант тихой полугородской жизни, которая так хорошо подходит центру Пскова, ведь она и ушла оттуда ещё не окончательно, несмотря на усилия промышленных окраин. ЖК ТЭЦ-18 возрождает этот почти утраченный образ жизни на новом современном уровне, заново прививает его городу, который сто лет назад весь именно так и жил.
ЖК «ТЭЦ на Великой»
ЖК «ТЭЦ на Великой»
© Студия 44
Корпус №3.Фасад, разрез дома 2. ЖК «ТЭЦ на Великой»
Корпус №3.Фасад, разрез дома 2. ЖК «ТЭЦ на Великой»
© Студия 44
Корпус №3. План 2 этажа дома 1 (курдонер). ЖК «ТЭЦ на Великой»
Корпус №3. План 2 этажа дома 1 (курдонер). ЖК «ТЭЦ на Великой»
© Студия 44
Корпус №3. Жилой комплекс с реставрацией и приспособлением для современного использования объекта культурного наследия «Электростанция тепловая (ТЭЦ)». Проект, 2016 © Студия 44
Корпус №3. Жилой комплекс с реставрацией и приспособлением для современного использования объекта культурного наследия «Электростанция тепловая (ТЭЦ)». Проект, 2016 © Студия 44
Корпус №2. ЖК «ТЭЦ на Великой»
Корпус №2. ЖК «ТЭЦ на Великой»
© Студия 44

Между современностью и историческими аллюзиями в архитектуре двух домов намечена игра. Квадратный дом напоминает пирамиду со срезанной вершиной и крестообразно прорезанными на четыре стороны входами во двор. Внутри перистиль: в первом этаже вокруг двора обходит крытая галерея на столбах. Такая монументальная даже в сравнительно малом объёме стереометрия – часть авторского языка Никиты Явейна, вполне современного. Разнокалиберные окна – тоже актуальный приём архитектуры конца XX и начала XXI века, сейчас они встречаются реже, а в данном случае мотивированы историческим контекстом: ведь известно, что в современной архитектуре их нередко ассоциируют с древней псковской архитектурой, со средневековыми палатами и стенами (хотя, конечно, никакая средневековая стена не проявляла такой степени вольности и не могла позволить себе столько окон, так что приём, скорее – стилизация в квадрате, отклик на наши представления о средневековой архитектуре, а не на неё саму).
Корпус №2. Фасад, разрез дома 1. ЖК «ТЭЦ на Великой»
Корпус №2. Фасад, разрез дома 1. ЖК «ТЭЦ на Великой»
© Студия 44
Корпус №2. План 2 этажа дома 1 (патио). ЖК «ТЭЦ на Великой»
Корпус №2. План 2 этажа дома 1 (патио). ЖК «ТЭЦ на Великой»
© Студия 44
Корпус №2. ЖК «ТЭЦ на Великой»
Корпус №2. ЖК «ТЭЦ на Великой»
© Студия 44
ЖК «ТЭЦ на Великой»
ЖК «ТЭЦ на Великой»
© Студия 44
ЖК «ТЭЦ на Великой»
ЖК «ТЭЦ на Великой»
© Студия 44

Лишённые карниза простенки в верхнем этаже П-образного корпуса похожи на крепостные зубцы, что созвучно стене и даже как будто бы восполняет собой – при взгляде издали, с реки – её утраченное прясло. А вот скатные кровли и вентвыходы, оформленные в виде труб – скажем так, служат для того, чтобы вписаться в силуэт старого города. Издали они сольются с контурами вальмовых кровель, о которых так много говорят градозащитники.

Вообще говоря, такой дом, вернее жилой комплекс – мечта во многих отношениях. Жить в древнем городе, в 10 минутах от Кремля и множества памятников, у реки, прямо за стеной XVI века, да еще и в старой конструктивистской электростанции. С точки зрения архитектора это тоже мечта: исполнить многие заветы правильной реставрации, а может быть, во многом даже «раскрыть» для людей здание 1930-х, подать его, подчеркнуть. «Закрутить» вокруг него некий узел пространства набережной, добавить городу то, чего у него не было минимум несколько веков – полуплощадь, полудвор с кафе, с амфитеатром ступеней на склоне. Предложить старой ТЭЦ новую сценографию жизни и взаимодействия с городом. Все эти интереснейшие задачи здесь решены комплексно, умно и деликатно. Да ещё и малоэтажное жильё – просто-таки редкость, почти никто из архитекторов в России не работает с ним всерьёз. А у Никиты Явейна – уже как минимум второй пример в портфолио.