Размещено на портале Архи.ру (www.archi.ru)

20.03.2017

Комета ЗИЛ

Юлия Тарабарина
Объект:
«Дом у причала» (лот №1 и лот №2)
Адрес:
Россия, Москва. ул. Автозаводская, вл. 23, участок №1
Архитектор:
Сергей Скуратов
Мастерская:
Сергей Скуратов ARCHITECTS
Авторский коллектив:
С.А. Скуратов – руководитель авторского коллектива;
Александр Панёв – главный архитектор проекта, стадии АК, П, РД;
Иван Ильин – стадии АК, П;
Марина Кирьянова – стадии АК, П, РД;
Антон Чурадаев, Алексей Коньков, Юлия Левина, Наталья Овсянникова, Антон Терентьев – стадии П, РД; Анжелика Горобец, Джелил Гемеджи, Евгений Тирских \– стадия РД.

При творческом и техническом участии:
Егор Королёв, Виктор Обвинцев, Сергей Безверхий, Станислав Субботин, Екатерина Семернина, Марина Пиглова, Валентина Рыжкова, Кристина Ухина, Игорь Голубев.

Два первых лота жилого комплекса ЗилАрт, спроектированные Сергеем Скуратовым, совмещают контекстуальный сюжет, апеллирующий к истории завода, с эмоциональной, артистической насыщенностью фактуры и деталей. Не зря они служат урбанистической заставкой – городским «фасадом» первой очереди комплекса.

Жилой комплекс «Полуостров Зил» © Сергей Скуратов ARCHITECTS
Жилой комплекс «Полуостров Зил» © Сергей Скуратов ARCHITECTS

В составе первой очереди ЗилАрта Сергею Скуратову достался самый ответственный участок – в северо-восточном углу территории, напротив Новоданиловского проезда: множество машин, сворачивающих с Варшавского шоссе к набережной, также как и все, кто едет по набережной из центра, в перспективе увидят прежде всего дома Скуратова. Так что в некотором смысле они – фасад проекта, или как минимум одна из его важных точек. Недаром он и называется первым: лот №1.

Впрочем так было не всегда. Поначалу глава компании ЛСР Андрей Молчанов планировал поручить первый лот какому-нибудь известному голландскому бюро, а второй, соседний по набережной – Сергею Скуратову. Оценив местность и значение обоих «заглавных» участков, Скуратов решил, что для столь важного в градостроительном отношении должен работать российский архитектор, погружённый в проблематику города. И предложил Андрею Молчанову нарисовать для первого участка что-то выразительное и интересное. В чём архитектора поддержал автор дизайн-кода ЗилАрта, победитель конкурса на концепцию преобразования территории ЗИЛ Юрий Григорян. Получившаяся в итоге концепция понравилась заказчику – и Сергей Скуратов получил в своё распоряжение два соседних лота и подчинил их проекты одному сюжету.

К слову сказать, здания на двух участках уже почти построены в бетоне, так что оценить градостроительное значение можно и сейчас: дома действительно заметны, едешь и ясно: о, да это строится новый ЗИЛ.
Вид на строящийся комплекс с Новоданиловской набережной, с юго-запада. Фотография © Александр Панёв, Сергей Скуратов architects, 2017
Вид на строящийся комплекс с Новоданиловской набережной, с юго-запада. Фотография © Александр Панёв, Сергей Скуратов architects, 2017
Жилой комплекс «Полуостров Зил». Ситуационный план © Сергей Скуратов ARCHITECTS
Жилой комплекс «Полуостров Зил». Ситуационный план © Сергей Скуратов ARCHITECTS

В архитектурном решении единственного дома первого лота Сергей Скуратов использовал, по его собственному признанию, конструктивистский приём. Пластина дома вытянута с востока на запад, к Москве-реке и на речном торце циркульно скруглена. Это, действительно, любимейший приём архитекторов авангарда, и в данном случае он работает прежде всего контекстуально: достаточно одного взгляда на план ДК ЗИЛ Весниных, чтобы обнаружить в его танцевальном зале контуры дома Скуратова. Снаружи здания совершенно разные, в ротонде Весниных есть широта и лёгкость, а направленного полёта нет, так что сходство планов остаётся умозрительным ребусом, а форма здания апеллирует к другим примерам «аэродинамических» проектов архитектуры авангарда.
 
План Скуратова:
Жилой комплекс «Полуостров Зил». План 1 этажа © Сергей Скуратов ARCHITECTS
Жилой комплекс «Полуостров Зил». План 1 этажа © Сергей Скуратов ARCHITECTS

Примеры архитектуры авангарда: 
А.А., В.А. и Л.А. Веснины. ДК ЗИЛ, 1930-1937. План 2 этажа, 1930. Из кн.: Н.Н. Броновицкая. Архитектура Москвы 1910-1935 гг. Памятники архитектуры Москвы. М., 2012. С. 311.
А.А., В.А. и Л.А. Веснины. ДК ЗИЛ, 1930-1937. План 2 этажа, 1930. Из кн.: Н.Н. Броновицкая. Архитектура Москвы 1910-1935 гг. Памятники архитектуры Москвы. М., 2012. С. 311.
Г.М. Данкман. Общежитие Коммунистического университета национальных меньшинств Запада им. Мархлевского. Перспектива. 1929 г. Из кн.: Н.Н. Броновицкая. Архитектура Москвы... С. 204.
Г.М. Данкман. Общежитие Коммунистического университета национальных меньшинств Запада им. Мархлевского. Перспектива. 1929 г. Из кн.: Н.Н. Броновицкая. Архитектура Москвы... С. 204.
М.О. Барщ и М.И. Синявский. Центральный оптово-розничный рынок на Болотной пл. в Москве. Дипломный проект, ВХУТЕМАС, мастерская Веснина. 1926 г. Из кн.: С.О. Хан-Магомедов.  Архитектура советского авангарда. Кн. 1. Проблемы формообразования. Мастера и течения. М., 1996. С. 464.
М.О. Барщ и М.И. Синявский. Центральный оптово-розничный рынок на Болотной пл. в Москве. Дипломный проект, ВХУТЕМАС, мастерская Веснина. 1926 г. Из кн.: С.О. Хан-Магомедов. Архитектура советского авангарда. Кн. 1. Проблемы формообразования. Мастера и течения. М., 1996. С. 464.

Сергей Скуратов уподобил дом комете, подчеркнув свою идею рядом нюансов. Скруглённый торец почти полностью стеклянный, вертикальные перемычки здесь как будто бы сдуло ветром на продольные стены. Белые горизонтальные рёбра балконов, напротив, выдвигаются вперёд с каждым ярусом, подчёркивая скошенным выносом устремлённость движения вперёд, и связывая ленточный ритм линий с аллюзиями на авангард.
Жилой комплекс «Полуостров Зил» © Сергей Скуратов ARCHITECTS
Жилой комплекс «Полуостров Зил» © Сергей Скуратов ARCHITECTS
Жилой комплекс «Полуостров Зил» © Сергей Скуратов ARCHITECTS
Жилой комплекс «Полуостров Зил» © Сергей Скуратов ARCHITECTS
Жилой комплекс «Полуостров Зил». Эскиз © Сергей Скуратов ARCHITECTS
Жилой комплекс «Полуостров Зил». Эскиз © Сергей Скуратов ARCHITECTS

Боковые фасады плавно включаются в игру. Выступ вертикальных рёбер становится глубже, открывая ярко-белые плоскости откосов, рассчитанные на оптическую игру. Её подхватывает чередование французских балконов с лоджиями: стекло первых прозрачное, вторых слегка зеркальное. Цвет же с запада на восток градиентно темнеет: дом как будто обугливается, – говорит Сергей Скуратов. Неудивительно, что в восточной части сквозь кирпичную решетку, как будто из глубины, «прорастают» поверхности кортеновой стали – они обозначают «горящий хвост» кометы. Сразу скажу, кортеновая сталь здесь задумана не брутально-ржавой, тёмно-коричневой, а оранжевой, огненной, и её сюжет, по словам архитектора, – именно огонь, поэтому для заржавливания стали будет использоваться специальный состав.
Жилой комплекс «Полуостров Зил». План секции 5 © Сергей Скуратов ARCHITECTS
Жилой комплекс «Полуостров Зил». План секции 5 © Сергей Скуратов ARCHITECTS
Жилой комплекс «Полуостров Зил» © Сергей Скуратов ARCHITECTS
Жилой комплекс «Полуостров Зил» © Сергей Скуратов ARCHITECTS

«Болид» дома со стороны его воображаемого ядра блестит стеклом и белизной, расплавленным металлом ядра кометы, затем начинает дымиться серым пеплом, который постепенно темнеет до угольной окалины, и наконец прорывается огнем. Но этого мало. Если мы посмотрим на план лота №1, то его восточный торец, в противовес круглому западному, решён асимметричным зигзагом – на плане получается знаковый «хвост» кометы. Внешне же «огненный хвост» полностью кортеновый и больше не содержит никаких намёков на огонь. Другой бы архитектор, придумав дом-комету, изрисовал бы её хвост в огонёк, но не таков Сергей Скуратов: он останавливается на пороге изобразительного, выжимает из идеи весь фактурный, цветовой и эмоциональный потенциал, но грани буквализма не переходит. Дом остаётся домом.
Натурный образец фасада лота №1, установленный сейчас на стройке. Жилой комплекс «Полуостров Зил» © Сергей Скуратов ARCHITECTS
Натурный образец фасада лота №1, установленный сейчас на стройке. Жилой комплекс «Полуостров Зил» © Сергей Скуратов ARCHITECTS
Жилой комплекс «Полуостров Зил» © Сергей Скуратов ARCHITECTS
Жилой комплекс «Полуостров Зил» © Сергей Скуратов ARCHITECTS
Жилой комплекс «Полуостров Зил» © Сергей Скуратов ARCHITECTS
Жилой комплекс «Полуостров Зил» © Сергей Скуратов ARCHITECTS
Жилой комплекс «Полуостров Зил» © Сергей Скуратов ARCHITECTS
Жилой комплекс «Полуостров Зил» © Сергей Скуратов ARCHITECTS
Жилой комплекс «Полуостров Зил» © Сергей Скуратов ARCHITECTS
Жилой комплекс «Полуостров Зил» © Сергей Скуратов ARCHITECTS
Жилой комплекс «Полуостров Зил». Фрагмент фасада © Сергей Скуратов ARCHITECTS
Жилой комплекс «Полуостров Зил». Фрагмент фасада © Сергей Скуратов ARCHITECTS

Поэтому комета не единственное сравнение, которое может прийти на ум. Автомобилестроительный ЗИЛ был в том числе сталелитейным предприятием, так что «комету» можно понять как последнюю искру металла остановленной домны. А кортен как материал, из которого помимо хвоста «кометы» здесь выполнены ещё и все стилобаты, служит своего рода историческим основанием – как будто дома выросли на ржавых остатках старого заводского металла.

Если кортен прошлое, то кирпич – будущее. Сейчас это популярный материал жилого строительства, а в данном случае не только любимый материал Сергея Скуратова, но ещё и дань девелоперу: ЗилАрт строит компания ЛСР, крупный производитель кирпича. Заводы ЛСР специально для проекта выпустили семь оттенков кирпича, от белого до почти чёрного. Кирпич на всех фасадах планируется выложить не только сложносочиненным паттерном-градиентом, но и рельефно: часть кирпичей будет выдвинута на 1-2 см и дополнит плоскость игрой светотени.
Жилой комплекс «Полуостров Зил». Фрагмент фасада © Сергей Скуратов ARCHITECTS
Жилой комплекс «Полуостров Зил». Фрагмент фасада © Сергей Скуратов ARCHITECTS
Жилой комплекс «Полуостров Зил» © Сергей Скуратов ARCHITECTS
Жилой комплекс «Полуостров Зил» © Сергей Скуратов ARCHITECTS

Дом-комета – главный образный узел; остальные корпуса развивают тему. Лот №2 ближе квартальной планировке, хотя и рассчитан так, чтобы легко пропускать ветер с реки. Во всяком случае, во двор. Четыре 14-этажные башни выстроены в ряд вдоль западного речного фасада.
Жилой комплекс «Полуостров Зил» © Сергей Скуратов ARCHITECTS
Жилой комплекс «Полуостров Зил» © Сергей Скуратов ARCHITECTS

Они не одинаковы, но очень похожи и могут напомнить выстроенные в ряд какие-нибудь металлические слябы, что тоже отсылает к истории завода. На продольных фасадах, соседствующих довольно плотно, преобладают кирпичные плоскости; северные стены почти глухие. Западные фасады четырёх корпусов, напротив, почти целиком стеклянные, но фасады оживлены вставками лоджий. Причем каждая составлена из трёх треугольных эркеров «с секретом»: плоскость, обращённая на северо-запад, стеклянная (через это стекло внутрь будут попадать последние лучи летнего заката), а соседняя плоскость, смотрящая на юго-запад, откуда закатные лучи приходят ещё горячими, – покрыта белым кирпичом. И поскольку стекло зеркальное, кирпич отражается и снаружи будет казаться, что пятно лоджии – рельефное, но глухое. Так на фасаде возникает светлая поблёскивающая гармошка, похожая на слом-срез металлической чушки.
Жилой комплекс «Полуостров Зил». Фрагмент фасада © Сергей Скуратов ARCHITECTS
Жилой комплекс «Полуостров Зил». Фрагмент фасада © Сергей Скуратов ARCHITECTS
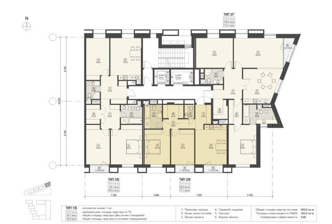
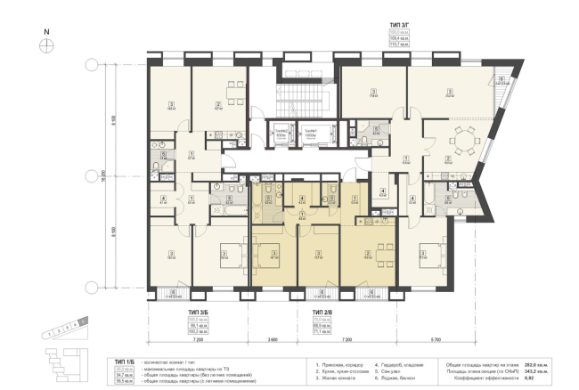
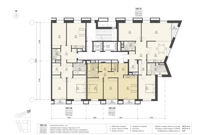
Жилой комплекс «Полуостров Зил». Корпуса В, Г. План 14 этажа © Сергей Скуратов ARCHITECTS
Жилой комплекс «Полуостров Зил». Корпуса В, Г. План 14 этажа © Сергей Скуратов ARCHITECTS

Тем более что стилобат выстроен диагонально, вдоль границы участка, а дома расставлены под углом к его объему, так что их углы нависают крупными треугольными консолями – точь-в-точь блоки металла, выставленные на поддоне.
Жилой комплекс «Полуостров Зил» © Сергей Скуратов ARCHITECTS
Жилой комплекс «Полуостров Зил» © Сергей Скуратов ARCHITECTS
Жилой комплекс «Полуостров Зил» © Сергей Скуратов ARCHITECTS
Жилой комплекс «Полуостров Зил» © Сергей Скуратов ARCHITECTS
Жилой комплекс «Полуостров Зил» © Сергей Скуратов ARCHITECTS
Жилой комплекс «Полуостров Зил» © Сергей Скуратов ARCHITECTS
Жилой комплекс «Полуостров Зил» © Сергей Скуратов ARCHITECTS
Жилой комплекс «Полуостров Зил» © Сергей Скуратов ARCHITECTS

За видовыми стеклянными фасадами – лучшие квартиры, пятикомнатные; квартиры ещё роскошнее – только в скруглении «дома-кометы», там тоже 5 комнат (4 плюс гостиная), но есть ещё и дугообразный витраж с панорамой реки и небольшим треугольником врезанной лоджии. В остальном квартирография – достаточно разнообразная, до двух комнат. Площадь квартир, заданную в ТЗ, архитекторам удалось на 1-2 метра увеличить за счёт лоджий, которые здесь есть, кажется, у всех.
Жилой комплекс «Полуостров Зил». Секция 1. План типового этажа © Сергей Скуратов ARCHITECTS
Жилой комплекс «Полуостров Зил». Секция 1. План типового этажа © Сергей Скуратов ARCHITECTS
Жилой комплекс «Полуостров Зил». План. Концепция 2014 года © Сергей Скуратов ARCHITECTS
Жилой комплекс «Полуостров Зил». План. Концепция 2014 года © Сергей Скуратов ARCHITECTS

В восточной части лота №2 разместились ещё два дома – фасады одного из них, почти параллельного «дому-комете», ­– целиком кортеновые и решены в тех же приёмах, что и «хвост» дома-кометы. Зигзагооборазная форма его северной помогает уловить больше солнца, развернув окна по диагонали: каждая гостиная получает по 2 таких окна, одна на северо-запад, другое на северо-восток. Квартиры сквозные, вторая стена южная.
Жилой комплекс «Полуостров Зил». План секции Д © Сергей Скуратов ARCHITECTS
Жилой комплекс «Полуостров Зил». План секции Д © Сергей Скуратов ARCHITECTS
Жилой комплекс «Полуостров Зил». Фрагмент фасада © Сергей Скуратов ARCHITECTS
Жилой комплекс «Полуостров Зил». Фрагмент фасада © Сергей Скуратов ARCHITECTS
Жилой комплекс «Полуостров Зил». Фрагмент фасада © Сергей Скуратов ARCHITECTS
Жилой комплекс «Полуостров Зил». Фрагмент фасада © Сергей Скуратов ARCHITECTS

Дом служит ярким цветовым и скульптурным акцентом. С противоположной стороны двора он расчерчен решёткой швеллеров, а рыжий зигзаг отражается в окнах «кометы», между ними возникают цветовые переклички и даже эмоциональное напряжение, помогающее объединить оба лота.
Жилой комплекс «Полуостров Зил» © Сергей Скуратов ARCHITECTS
Жилой комплекс «Полуостров Зил» © Сергей Скуратов ARCHITECTS
Жилой комплекс «Полуостров Зил» © Сергей Скуратов ARCHITECTS
Жилой комплекс «Полуостров Зил» © Сергей Скуратов ARCHITECTS
Жилой комплекс «Полуостров Зил» © Сергей Скуратов ARCHITECTS
Жилой комплекс «Полуостров Зил» © Сергей Скуратов ARCHITECTS
Жилой комплекс «Полуостров Зил» © Сергей Скуратов ARCHITECTS
Жилой комплекс «Полуостров Зил» © Сергей Скуратов ARCHITECTS

Если кортеновый дом несколько провокационен, то архитектура соседнего с ним корпуса, вытянутого вдоль восточной границы лота №2, ощутимо примирительна. Здесь встречаются два цвета: светлый кирпич и кортеновые вставки; чередование лоджий и балконов становится живописно-шахматным, но фасады скорее орнаментальны. Здесь в стилобат встроен детский сад.
Жилой комплекс «Полуостров Зил» © Сергей Скуратов ARCHITECTS
Жилой комплекс «Полуостров Зил» © Сергей Скуратов ARCHITECTS
Жилой комплекс «Полуостров Зил» © Сергей Скуратов ARCHITECTS
Жилой комплекс «Полуостров Зил» © Сергей Скуратов ARCHITECTS
Жилой комплекс «Полуостров Зил». Фрагмент фасада © Сергей Скуратов ARCHITECTS
Жилой комплекс «Полуостров Зил». Фрагмент фасада © Сергей Скуратов ARCHITECTS

В остальном оба квартала устроены согласно современным правилам комфортного города. Оба стилобата стоят на двухуровневых подземных парковках, а в подземных этажах лота №1 нашлось даже место для супермаркета с наземной и подземной парковкой для внешних покупателей, освещенного через зенитный фонарь в стилобате. Жители же, возвращаясь домой, смогут въехать сразу на своё парковочное место, затем зайти за продуктами и подняться на лифте, не выходя на улицу. В первых этажах протяжённых фасадов лота №1 устроены галереи, причём как снаружи, так и изнутри, со стороны двора: из них можно будет попасть как в вестибюли секций, так и в кафе и магазины. В обращённом к набережной стилобате лота №2 чередуются магазины и кафе, которые работают на пространство внешнего променада. На кровлях стилобатов запланированы приватные дворы для жильцов с геопластикой и крупномерными деревьями.
Жилой комплекс «Полуостров Зил». Схема расположения общественных зон © Сергей Скуратов ARCHITECTS
Жилой комплекс «Полуостров Зил». Схема расположения общественных зон © Сергей Скуратов ARCHITECTS
Жилой комплекс «Полуостров Зил». Разрез. Концепция 2014 года © Сергей Скуратов ARCHITECTS
Жилой комплекс «Полуостров Зил». Разрез. Концепция 2014 года © Сергей Скуратов ARCHITECTS
Жилой комплекс «Полуостров Зил». Схема функционального зонирования (лот 1) © Сергей Скуратов ARCHITECTS
Жилой комплекс «Полуостров Зил». Схема функционального зонирования (лот 1) © Сергей Скуратов ARCHITECTS
Жилой комплекс «Полуостров Зил» © Сергей Скуратов ARCHITECTS
Жилой комплекс «Полуостров Зил» © Сергей Скуратов ARCHITECTS
Жилой комплекс «Полуостров Зил» © Сергей Скуратов ARCHITECTS
Жилой комплекс «Полуостров Зил» © Сергей Скуратов ARCHITECTS

Но всё это вещи обязательные, джентльменский набор. Важнее то, что город в проекте осмыслен с очень разных сторон, микро и макро, пропущен через разные точки зрения, начиная с тех людей, которые будут там жить и смотреть из окна, соседей, которые зайдут в магазин и заканчивая теми, кто проедет мимо по набережной на другой стороне реки. Но это не просто хорошая, тщательно сделанная архитектура, это ещё и архитектура, насыщенная мотивированной образностью. Одно то, что дом-комета в своём полёте не только обугливается, но и ржавеет, то есть уходит корнями в прошлое завода и одновременно летит в будущее – сильный образ. Сергей Скуратов вновь показал себя архитектором не только вдумчивым, внимательным к контексту, но ещё и очень поэтичным архитектором-художником, способным сделать свой дом квинтэссенцией места и «узловой точкой» городского пространства.
 
См. больше чертежей на странице объекта