Размещено на портале Архи.ру (www.archi.ru)

27.03.2017

Филармония света

Юлия Тарабарина
Объект:
Концертный зал «Зарядье»
Адрес:
Россия, Москва. ул. Варварка, вл. 6
Архитектор:
Владимир Плоткин
Мастерская:
ТПО «Резерв»
Авторский коллектив:
Сергей Кузнецов, Владимир Плоткин – руководители авторского коллектива.

Архитекторы: С.Гусарев (рук. архит. мастерской №4 в ТПО «Резерв»), А.Травкин (ГАП), А.Пономарев (ГАП – архитектура главного зала), Ю.Фадеев; С.Алексанин, А.Гаврюшина, Д.Галлямова, К.Диас Москера Клео, С.Дудукин, Р.Князев, Е.Ковшель, А.Кузнецов, Ю.Литвиненко, М.Малеин, Д.Масаков, Е.Михайлова, А.Орехова, А.Раменский, Е.Солонкина, Е.Шорникова;
3D-визуализация, фасадные и интерьерные решения: Д.Чернов (рук. мастерской интерьера и дизайна), Д.Кириллова, П.Назарова, М.Фунтикова, Н.Чехун, Р.Шумаев

Инженеры: С.Щербина (главный инженер), А.Квык (ГИП), В.Корнеев (ГИП), Е.Карасева (ГИП), В.Андреев (рук. отдела строит. конструкций), И.Барабаш (главный конструктор), П.Балашов (рук. отдела ВК), Т.Говорова (рук. отдела вертикальной планировки), М.Дачкина (рук. отдела ЭО), Г.Виноградов (рук. отдела технологического проектирования), П.Колосов (рук. отдела ОВ), Г.Кочанова (рук. отдела вертикальной планировки), Н.Черепухина (рук. отдела СС); Я.Анюшина, М.Гладких, Е.Глупова, М.Дубинчук, Д.Зотов, Т.Ивашнева, А.Киселева, Е.Куликова, Е.Матвиенко, А.Микутис, С.Милешина, А.Никитин, М.Новичкова, А.Полубояринов, Ж.Пузырева, Е.Рыбнова, И.Самсонова, И.Тарасов, Р.Тумасян, Ю.Умнов, М.Цыганкова, К.Шишкин
 

Проект московской филармонии, который реализуется сейчас в Зарядье, обещает быть одним из первых, если не первым ярким общественным зданием «звёздной» архитектуры, построенным в Москве без купюр. В то же время оно отдает дань авторским предпочтениям и истории места, будучи поверено образностью классического модернизма шестидесятых.

Филармония в парке «Зарядье». Проект, 2016
Филармония в парке «Зарядье». Проект, 2016
© ТПО «Резерв»

Парк Зарядье – наверное, один из самых звучных московских проектов последних лет. Сейчас его строительство идёт полным ходом, а объём здания филармонии – единственной крупной постройки парка, расположенной в его крайней восточной части, рядом с Китайгородским проездом – уже хорошо виден как из-за забора, так и на спутниковой съемке, где можно разглядеть гигантскую подковообразную чашу зрительного зала.


Масштабное – 23 800 м2 общей площади – здание обещано Валерию Гергиеву, который считается его куратором и уже назвал филармонию «залом XXI или даже XXII века». Проект филармонии был представлен Сергеем Кузнецовым и Валерием Гергиевым на Санкт-Петербургском международном культурном форуме в 2016 году. Его, в общем-то, уже не раз показывали на различных всероссийских конференциях, так что его параметры хорошо известны: открыть филармонию планируется в 2018 году; акустикой занимается японский инженер, знаменитость Ясухиса Тойота; в его портфолио полсотни музыкальных залов, он работал для Эльбской филармонии Херцога и де Мерона и для парижской Жана Нувеля, также как и для Мариинского театра. Здание предстаёт как некое техночудо.

Об архитектуре же новой филармонии сказано исчезающе мало, а ведь это едва ли не первое в стране действительно свежее и современное общественное здание за последние двадцать, если не больше, лет.

Проект филармонии разработан Владимиром Плоткиным и ТПО «Резерв» при непосредственном участии главного архитектора Москвы Сергея Кузнецова. Собственно, у авторского коллектива два руководителя – Кузнецов и Плоткин; а Сергей Кузнецов в данном случае выступает одновременно как руководитель двух коллективов проектировщиков: парка «Зарядье» и филармонии. Проект потребовал трёх лет кропотливой работы с множеством едва ли не еженедельных согласований, уточнений, доработок и с десятками нюансированных вариантов.
Филармония в парке «Зарядье». Общий вид.  Проект, 2016
Филармония в парке «Зарядье». Общий вид. Проект, 2016
© ТПО «Резерв»

Здание филармонии встроено в состав парка Зарядье, который сейчас строится по проекту консорциума Diller Scofidio+Renfro, Hargreaves Jones и Citymakers с сопровождением Александра Асадова (см. конкурсные проекты 2013). Консорциум в рамках необязательной части конкурсного проекта 2013 года предложил включить объем филармонии в рельеф парка, создав над ней зелёный холм, и накрыть его «стеклянной корой». Что позволило подчинить объём филармонии общественному пространству парка. «Любое отдельностоящее, не контекстуальное здание могло бы превратить Зарядье в сквер перед филармонией», – уверены представители консорциума. (Напомним, что в занявшем второе место конкурсном проекте «Резерва» филармония была отдельным зданием).

Итак, филармония подчинена концепции парка по двум основным параметрам. Во-первых, с западной стороны здание предстаёт «закопанным», продолжая возвышенность «Псковской горки». Горка ненастоящая, большую часть старой горки срыли после 1812 года, сейчас внутри «возрождённого» холма разместится подземная парковка, что удобно для филармонии, поскольку к парковке будет примыкать её спрятанная в искусственном рельефе западная стена – с этой стороны, в частности, устроен VIP-вход в концертный зал, для тех, кто подъезжает на лимузинах.

Одного взгляда на профиль парка достаточно, чтобы понять: воспоминание о горке только повод, цель искусственного рельефа вовсе не реконструкция исторической местности, холмы становятся частью довольно энергичной пластики, которая ближе к нелинейной архитектуре, чем к садовым затеям. Так что кровля филармонии не столько врыта в холм, сколько встроена в объёмную сценографию парка, подчинена её волнам.

Второй элемент, унаследованный зданием филармонии от концепции консорциума Diller Scofidio+Renfro – изогнутый стеклянный навес, так называемая «стеклянная кора», приподнятая над зелёной кровлей на ветвистых металлических опорах по краям на 5, а в центре на 10 метров. Под корой должен образоваться климат чуть умереннее московского – за счёт энергоэффективных решений компании Transsolar, которые помимо солнечных батарей включают сложный проект естественной вентиляции: летом фрамуги стеклянного навеса будут открываться, улавливая прохладу в том числе за счёт его кривизны, зимой же «кора» должна аккумулировать тепло; всё это – часть погодных аттракционов будущего парка Зарядье. Высота верхней точки изгиба коры – где-то 27 м, она доходит до яблока креста церкви Георгия на Псковской горке. «Кора» вторит изгибу кровли и усиливает его, она становится стеклянной частью холмистого рельефа и находит поддержку в других элементах ландшафта, не дающих забыть о рукотворности парка. «Стеклянная кора» – лишь самая крупная из подобных ей конструкций, своего рода апогей, и не только по высоте. Чем-то она похожа на гребешок накатывающейся на берег волны, или наоборот, на приморское возвышение где-то в Шотландии или Нормандии, где холм растёт, растёт – и вдруг останавливается, подмытый морем. Высота среза – где-то 18-19 метров, примерно вровень с соседними шестиэтажными доходными домами, так что «обрыв» фасада филармонии в то же время образует отрезок улицы, спрятанный за восстановленной китайгородской стеной.
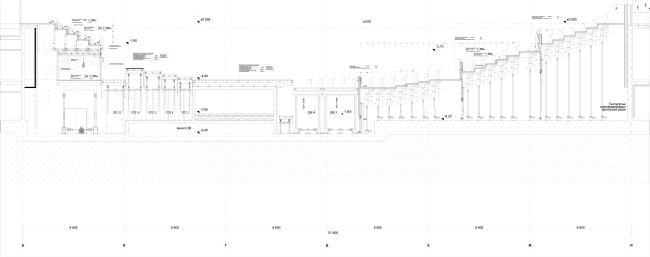
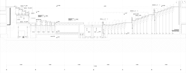
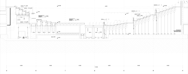
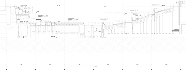
Филармония в парке «Зарядье». Разрез 1-1
Филармония в парке «Зарядье». Разрез 1-1
© ТПО «Резерв»

Итак, казалось бы, мы имеем здание-гору, нечто из области скульптурно-геологических поисков современной архитектуры. Но на срезе, там где начинаются собственно фасады здания, обращённые к улице, к проезду и к городу, оно становится другим: лёгким, прозрачным, льдистым. И рациональным, экономным в выразительных средствах. В основе объёма легко прочитывается стеклянный параллелепипед с разгранкой стеклянными ламелями, далее – каждый вырез, уступ и выступ тщательно мотивированы. Здание чутко реагирует на тонкости участка и окружения, но стремится привести их к точному, лаконичному высказыванию, что делает его математическим или даже алгебраическим – это плод работы линейки и циркуля, чистого просвещенческого ratio.
Филармония в парке «Зарядье». Проект, 2016
Филармония в парке «Зарядье». Проект, 2016
© ТПО «Резерв»

Реакцией на город стала дугообразная площадь главного входа на северо-восточном углу. Её ось смотрит строго на арки в стене Китай-города, через которые будут входить посетители от ближайшей и одноименной станции метро. Через те же арки могут въехать и машины с Китайгородского проезда – для них перед входом устроен разворотный круг, откуда можно въехать в подземную парковку Зарядья, или, развернувшись и высадив пассажиров, проехать вдоль отрезка китайгородской стены и затем вернуться на проезд. Газон внутри автомобильного круга – геометрический центр дуги фасада, который, таким образом, раскрыт прямо к посетителям. Далее, дуга поделена по оси ровно пополам: в левой половине стеклянный объем верха выступает над входом консолью, в правой выступа нет, но есть балкон вдоль фасада, по которому, согласно замыслу архитекторов, посетители могли бы входить из парка, с горки и с кровли, прямо на второй этаж фойе филармонии. «Если администрация поддержит эту идею», – оговариваются архитекторы. Так или иначе, у здания появился альтернативный вход, с внешнего балкона на внутренний, театральный балкон.

Пластически же получилось похоже на шкаф со сдвижной дверцей, где одну половинку сдвинули влево. Белая полоса бетонного пола балкона продолжается правее в сторону холма, под ним расположен взъезд в парковку, рядом – лестница на холм. Строго говоря, даже если вход на второй этаж не откроют, балкон может быть местом прогулок и другого взгляда на площадь перед филармонией – сверху. А ещё он напоминает об истории места. Думаю, для многих личным воспоминанием о гостинице «Россия» остались её пандусы: приходилось ходить по ним и под ними, и это было не то чтобы очень приятно, потому что холодно, но запоминалось. Очень странно было видеть, перегнувшись через парапет, темноватое пространство бывшего Зарядья. Это были, наверное, одни из самых первых навесных пандусов в Москве – часть образности архитектуры шестидесятых, вдохновлённая стрелой летящей автострады. Так вот, участок, отведенный филармонии, раньше был занят парой восточных пандусов, их и разобрали-то только перед строительством. Балкон филармонии, и даже сама дуга фасада – кажутся воспоминанием о тех пандусах, данью genius loci – но неожиданно они напоминают не о том Зарядье, о котором традиционно грустят градозащитники, а о другом, которое ещё пока никому не жалко – о Зарядье шестидесятых. К слову сказать, навесные пешеходные мосты к реке от Diller Scofidio+Renfro поддерживают ту же тему: в балконе филармонии можно увидеть и пространственное продолжение этих мостов.
Филармония в парке «Зарядье». Проект, 2016
Филармония в парке «Зарядье». Проект, 2016
© ТПО «Резерв»

На делении дуги пополам расчёты главной площади не заканчиваются. Самый эффектный её элемент – пучок трёх заострённых кверху металлических опор, поддерживающих решетку «коры» над площадью, этакий антипортик, похожий на часть механического крыла – он установлен ровно на линии четверти дуги фасада. Левая половина дуги поделена пополам и на этой оси установлена опора. На первый взгляд кажется, что опора произвольно сдвинута поближе к променаду, а вот нет.

Группа дверей главного входа тоже сдвинута ближе к проезду, но едва-едва, только чтобы избежать строго-центрального расположения. Дуга поделена на 12 секторов, и поскольку число чётное, то центрального сектора нет и двери сдвигаются на шаг влево, сторонясь центральной точки и не споря с парной симметрией верхней части. Получается аклассично, как портик с нечётным числом колонн, но зато намечена некоторая подвижность всех элементов композиции, организованных наподобие игры в пятнашки, где любая часть может быть сдвинута по направляющим, но строго в рамках сетки. Идя по улице в филармонию или мимо, прохожий не поймет, что здесь что-то симметрично, наоборот, внешне композиция кажется произвольной; фасад же постоянно меняет свои свойства в зависимости от угла зрения.

Если первая ось – дуги фасада, – определена градостроительно и связывает здание с потоком зрителей, то вторая идёт изнутри. Это ось симметрии главного зрительного зала; надо ли говорить, что внешняя ось встречается с внутренней ровно в той самой точке середины дуги, которая оказывается умозрительным узлом всех построений.

Дальше построение развивается так. Сетка колонн главного вестибюля подчинена дуге фасада – вестибюль веером раскрывается перед входящим, его пространство кажется подчеркнуто широким. Что усилено обилием света, в изобилии проникающего через стеклянные стены, благо пространство трёхсветное.
Филармония в парке «Зарядье». План -1 этажа
Филармония в парке «Зарядье». План -1 этажа
© ТПО «Резерв»
Филармония в парке «Зарядье». План 1 этажа
Филармония в парке «Зарядье». План 1 этажа
© ТПО «Резерв»

Южнее, в основной части здания пересекаются две ортогональные сетки: одна, с шагом 8,6 м, параллельна оси главного зала и определяет восточную часть здания, вторая помельче, с шагом 7,2 м, параллельна западной стене (той самой, примыкающей к парковке), на ней основано построение сосредоточенных в этой части служебных помещений. Между тем линия восточного фасада продиктована извне – параллельна Китайгородскому проезду. Угол между ней и осью главного зала – 10°, и именно так срезан первый этаж перед юго-восточным, вторым входом, обращенным в сторону набережной. Этот излом фасада ненавязчиво ведёт пешехода к малому внешнему амфитеатру, предлагает свернуть. В то же время он отражает вовне реальное расположение зрительного зала. Над головой идущего плавно вырастает треугольная консоль, построенная по тому же принципу, что и консоль в недавно завершенном здании ТПО «Резерв» на улице Красина.
Филармония в парке «Зарядье». План 2 этажа
Филармония в парке «Зарядье». План 2 этажа
© ТПО «Резерв»

Южная стена строго перпендикулярна оси главного зала. С этой стороны зал ближе всего подходит к внешнему контуру, здесь с внутренней стороны установлен орган, а снаружи – медийный экран для трансляций. Экран окружен объёмной рамой – её форма могла бы быть произвольной, но она также мотивирована изнутри: слева сеткой служебных помещений, которая как мы помним, повернута под углом (26°) к главной оси; выход этой сетки на фасад превращается в широкий откос, единственный каменный элемент фасада. Справа от экрана ему вторит откос стеклянного объема: здесь внутри спрятана пологий пандус, ведущий с первого этажа на второй, изогнутый вдоль фасада и открывающий виды на реку и ТЭЦ-1, памятник конструктивизма.
Филармония в парке «Зарядье». Проект, 2016
Филармония в парке «Зарядье». Проект, 2016
© ТПО «Резерв»
Филармония в парке «Зарядье». Проект, 2016
Филармония в парке «Зарядье». Проект, 2016
© ТПО «Резерв»

Снаружи стеклянный угол получается заострённым и даже слегка вздёрнутым «носом»-консолью над юго-восточным входом. Его контуры в южной проекции напоминают силуэт Монреальского павильона и попадают с резонанс с шестидесятническими ассоциациями, вызванными пандусом северного фасада – здание как будто прорисовывает в себе вещи, о которых хочет помнить, формирует для себя некий культурный ряд.
Филармония в парке «Зарядье». Проект, 2016
Филармония в парке «Зарядье». Проект, 2016
© ТПО «Резерв»

Аллюзии поддержаны строгой штриховкой стеклянных ламелей, помещённых в стыках стёкол – этот распространённейший приём классического модернизма, также как и прозрачность, и ряд редких колонн, видимый сквозь стекло фасада, и огранка фасадов простыми, строго мотивированными поверхностями – складываются в образ «оттепельной» архитектуры, и провоцируют к размышлениям о том, что вот снесли гостиницу, а «грибница» от неё осталась и младший, впрочем намного более деликатный и благовоспитанный, родственник «пророс» из-под земли в восточной части парка. Недаром же Владимир Плоткин – автор дизайна экспозиции большой выставки «Оттепель», которая открыта сейчас в Манеже.

Но здание отнюдь не ретроспективно, скорее оно настроено на диалог современности с идеями классического модернизма. Актуальное проявляется в нём по-разному: в контекстуальном тонкачестве плана, в разнообразии фасадов, рассчитанных на взгляд из города. И в орнаментальной шелкографии белых полупрозрачных ромбов на стекле основного объёма, помогающей отчасти «развеществить» объём, растворить его в пространстве, и, с другой стороны, собрать, подчеркнуть цельность формы, замаскировав межэтажные перекрытия. Этот орнамент, как и рисунок плит пола, унаследован от вымостки парка и формы его скамеек, и призван подчеркнуть связь здания филармонии с Зарядьем в целом.

Не менее современно обилие общественных пространств разного рода, окружающих филармонию плотным кольцом. В концепции DS + R амфитеатр размещался к северу, на месте дугообразной площади. Его заменили собственно площадь с «сухим фонтаном» (фонтан без чаши – прим. ред.), балкон второго этажа и ведущая на него лестница. Теперь это парадный, торжественный комплекс входа, в отличие от располагающего к релаксу амфитеатра.

От площади начинается широкий тротуар – пешеходный променад вдоль главного восточного фасада филармонии. Стеклянная стена первого этажа здесь, как впрочем и с других сторон, совершенно прозрачна, безо всякой зеркальности. Архитекторы специально подыскивали стекло высокой прозрачности, а пол вестибюля внутри и тротуар снаружи находятся на совершенно одном и том же уровне и даже спускаются по уклону рельефа под одним углом (здесь примерно метр перепада к реке). «Мы хотели сделать границу между внутренним и внешним пространством, насколько это возможно, почти невидимой, – рассказывает Владимир Плоткин. – Сделать пластику вестибюля хорошо видимой снаружи, и превратить её, таким образом, во «второй фасад» здания, отделённый от городского пространства прозрачной тонкой стеной. Чтобы между внешним и внутренним почти не было преграды, и люди там и здесь находились практически в одном пространстве».

Действительно, скульптурный рельеф интерьеров, в противовес строгости стеклянных поверхностей внешних фасадов, очень активен – о нём чуть позже, но интересна сама идея «двойного фасада», озвученная архитектором. Издали интерьер тоже должен быть виден, просвечивать и интриговать, несмотря на орнаментальную шелкографию. Может быть, это будет похоже на ледяную глыбу – в них всегда видны какие-то пузыри и потоки. Скульптурная пластика оказывается в таком случае как будто бы частью витрины, этого ключевого понятия Новейшего времени. А всегдашняя роль любого театрального фойе как промежуточного пространства-прослойки между городом и собственно залом, ядром здания, становится особенно выразительной. Надо сказать, идеей осмыслить зал как некое ядро в коробке стеклянных стен архитекторы «болеют» с тех пор, как остекление стало достаточно качественным, но в Москве эта идею не воплощали ещё ни разу. Идея хорошая, она обогащает одновременно и город, и филармонию, к тому же инстинкт подглядывания в окна и разглядывания витрин – один из базовых, он здорово обогащает эмоции горожанина. Словом теперь, идя вдоль фасада, мы будем почти внутри.

Променад же ведёт к построенной в середине XVI века церкви Зачатия Анны и к ещё одной площади – собственно Углу Китай-города. Именно в этой, южной части, где требовалось деликатно оформить переход к участку церкви Анны, появляется первый, небольшой амфитеатр, как будто переехавший с севера на юг. Он рассчитан на 150 человек и обращён к медийному экрану южного фасада филармонии. Слева этот мини-амфитеатр продублирован пандусом спуска-подъема на стрелу пешеходной тропы, висящей над набережной. А вот площадь перед амфитеатром, плавно переходящая в площадь Угла, вместит до 1000 человек, которые смогут слушать концерты стоя.
Филармония в парке «Зарядье». Проект, 2016
Филармония в парке «Зарядье». Проект, 2016
© ТПО «Резерв»

Главный амфитеатр запланирован на западном склоне зелёной кровли, куда его предложили переместить архитекторы консорциума DS + R, поскольку за решение кровли, поскольку она – часть парка, отвечает консорциум. Амфитеатр – дополнительный концертный зал под открытым небом, сцена которого расположена на склоне Псковской горки. Хотя вид отсюда на закат и кремлёвские башни будет изумительным и безо всякого концерта. Неровные строчки скамей напоминают древнегреческие театры – особенно те, что были затронуты землетрясениями, сместившими часть камней с их мест. Подобие театра-руины должно, вероятно, не только усилить впечатление от травянистой кровли, но и обозначить собой образ некоего «пра»-театра. Только всё наоборот: «руина» на крыше, суперсовременный зал под землёй.
Ситуационный план, на котором хорошо видно расположение скамей атриума на кровле. Филармония в парке «Зарядье». Проект, 2016 © ТПО «Резерв»
Ситуационный план, на котором хорошо видно расположение скамей атриума на кровле. Филармония в парке «Зарядье». Проект, 2016 © ТПО «Резерв»

Зал и впрямь углублён в землю довольно сильно: пол сцены находится на 4 метра ниже нулевой отметки, под ним – ещё 4,8 м технических субструкций. Зал, безусловно, очень сложен, не зря его рекламируют как чудо техники. Весь партер вместе со сценой может механически трансформироваться в плоский сценический пол – в этом случае наблюдать за представлением можно будет с балконов, вытянутых по двум длинным сторонам коробки. С другой стороны, оркестровая яма может быть опущена ниже плоскости сцены. Сама сцена может быть плоской или выстроиться амфитеатром, своего рода синтроном для музыкантов. За сценой тоже амфитеатр для слушателей, впрочем для современных филармонических залов такое круговое построение зрительских мест – скорее правило. Высота пространства главного зала – около 20 метров, плюс ещё метров 5-6 занимают фермы конструкций под потолком. Зал спроектирован в расчете на естественную акустику. Есть ещё один репетиционный зал, способный служить также для представлений – на 400 мест; он расположен в северном углу здания. Плюс амфитеатр на кровле: в общей сложности филармония сможет принять больше 2000 зрителей.
Филармония в парке «Зарядье». Схема механизации главного зала © ТПО «Резерв»
Филармония в парке «Зарядье». Схема механизации главного зала © ТПО «Резерв»

Интерьер, в противовес «хрустальным» лаконично-прозрачным, и уж позволю себе это определение, шестидесятническим фасадам – текуч и гибок, в чём следует за новейшими тенденциями проектирования зрелищных театральных зданий. Попадая в трёхсветный вестибюль, зритель оказывается как будто внутри потока линий и света, которые можно понять как метафору течения музыки (даже страшно вспоминать здесь про застывшую музыку, ибо банальность, но эффект довольно близок). Плавные белые ленты кориановых балконов и лестниц, обильно освещёны сквозь сплошные витражи фасадов, и подчёркнуты линиями света, образуют просторный каркас вместе с редкими белыми колоннами. Внутрь впущен не только дневной свет, но и элементы фасада: стеклянные ламели и орнаментальная шелкография, подчёркивающие переходный характер пространства вестибюля: с одной стороны, мы уже внутри, с другой – от улицы отделяет лишь тонкая стеклянная мембрана. Удлинённые шестигранники плит пола, восходящие к паттерну мощения парка, тоже призваны обозначить цельность пространства, связать его с парком.
Филармония в парке «Зарядье». Вестибюль. Проект, 2016
Филармония в парке «Зарядье». Вестибюль. Проект, 2016
© ТПО «Резерв»
Филармония в парке «Зарядье». Вестибюль. Проект, 2016
Филармония в парке «Зарядье». Вестибюль. Проект, 2016
© ТПО «Резерв»
Филармония в парке «Зарядье». Вестибюль. Проект, 2016
Филармония в парке «Зарядье». Вестибюль. Проект, 2016
© ТПО «Резерв»
Филармония в парке «Зарядье». Вестибюль. Проект, 2016
Филармония в парке «Зарядье». Вестибюль. Проект, 2016
© ТПО «Резерв»
Филармония в парке «Зарядье». Вестибюль. Проект, 2016
Филармония в парке «Зарядье». Вестибюль. Проект, 2016
© ТПО «Резерв»
Филармония в парке «Зарядье». Вестибюль. Проект, 2016
Филармония в парке «Зарядье». Вестибюль. Проект, 2016
© ТПО «Резерв»

Тему течения внутреннего пространства, подобного потокам воздуха, усиливает специфика организации потоков и лестниц. При входе нас встречают две симметричные лестницы, прижатые к краям главного зала и ведущие на второй ярус. Их белые кориановые объёмы со скошенными парапетами похожи на струи молока, льющиеся спиралью, как это бывает в рекламных роликах: лестница «стекает» вниз, закругляется, и внизу выращивает из себя скамью. Конечно же, они воспринимаются как скульптуры – растянутые в пространстве наследницы корбюзеанских лестниц.
Филармония в парке «Зарядье». Вестибюль. Проект, 2016
Филармония в парке «Зарядье». Вестибюль. Проект, 2016
© ТПО «Резерв»

Второй атриум, поменьше, образован в юго-восточном углу. Здесь вдоль стен закручены две системы пандусов: одна прижата к южной стене и залу, другая вытянута вдоль восточного фасада. Причём эта вторая группа мотивирована рельефом: как мы помним, он здесь немного понижается в сторону реки, с севера на юг. Поверхность спускающегося тротуара внутри продолжена таким же спуском, внутренний променад отделён от тротуара только прозрачной стеной, так что люди, прогуливающиеся там и тут, будут двигаться в одной плоскости. Но внутри наклон пола встроен в систему спуска-подъёма, связывающую между собой гардероб в -1 этаже и второй этаж – получается, что она «сцеплена» с рельефом и в то же время играет независимую роль внутри. Это ещё один способ исподволь связать между собой внешнее и внутреннее пространство, дополнить прозрачность стены логикой организации потоков.

К тому же множество пандусов, предназначенных для прогулок перед концертом, вызывает в памяти римский музей MAXXI Захи Хадид – там вообще все построено на перемещении по пандусам; даже горизонтальные прорези вентиляции, прочерчивающие потолки, похожи.
Филармония в парке «Зарядье». Вестибюль. Проект, 2016
Филармония в парке «Зарядье». Вестибюль. Проект, 2016
© ТПО «Резерв»
Филармония в парке «Зарядье». Вестибюль. Проект, 2016
Филармония в парке «Зарядье». Вестибюль. Проект, 2016
© ТПО «Резерв»
Филармония в парке «Зарядье». Концертный зал. Проект, 2016
Филармония в парке «Зарядье». Концертный зал. Проект, 2016
© ТПО «Резерв»
Филармония в парке «Зарядье». Концертный зал. Проект, 2016
Филармония в парке «Зарядье». Концертный зал. Проект, 2016
© ТПО «Резерв»
Филармония в парке «Зарядье». Малый концертный зал (репетиционный). Проект, 2016
Филармония в парке «Зарядье». Малый концертный зал (репетиционный). Проект, 2016
© ТПО «Резерв»

Но это совершенно не Заха Хадид, и даже не вполне нелинейная архитектура. Здесь нет избыточности формообразования, погони за формой. Изгибу разрешено стать «вишенкой на торте», и то изредка, не более; вся пластика поставлена в рамки и что характерно – не слишком скульптурна, а скорее развеществлена светом, белым цветом основных элементов, множеством линий и ахроматической тональностью в целом (из цвета – только естественный коричневый цвет дерева). Плоскость и линия преобладают над объёмом, массой и пластикой, а будучи засвечены дневным светом от стеклянных стен, превращаются в проекцию, в графику более, чем скульптуру. Словом, правила архитектуры шоу, для современной филармонии, надо думать, почти неизбежные – иначе не поймут, здесь рассмотрены через призму убеждений архитектора-рационалиста. Вычищены, очищены, дематериализованы настолько, насколько возможно; поверены правилами классического модернизма: и пандусы-то, положа руку на сердце, напоминают больше Ле Корбюзье в Центросоюзе, чем Заху.

Двойственность формы и плоскости, пластики и линии отражена в интерьерах концертных залов: главный зал становится квинтэссенцией «текучести» вестибюлей – что логично, он их пространственный и смысловой центр, кружение белых лент в зале нарастает.
Филармония в парке «Зарядье». Концертный зал. Проект, 2016
Филармония в парке «Зарядье». Концертный зал. Проект, 2016
© ТПО «Резерв»

Репетиционные залы традиционно проще: здесь вместо изгибов – асимметричные «алмазные» грани с акустической функцией.

А получается вот что. В семидесятые-восьмидесятые годы сложилось два образа театрального здания: театр-завиток с барочной формой и брутальной массой, который восходит, наверное, к райтовскому музею Гуггенхайма и Сиднейской опере. И театр-храм, с сеткой колонн, как правило крайне вытянутых, до состояния ткацкой основы, белый, лёгкий, почти нематериальный. Обе типологии живы до сих пор, соревнуются и взаимодействуют с переменным успехом. К примеру филармония Нувеля в Париже – представитель первой, а филармония Портзампарка в Люксембурге – второго. Кстати сказать у последней с московским зданием обнаруживается множество перекличек: и главный ракурс с носом козырька, и белый цвет, и вьющиеся внутри лестницы. Довольно очевидно, что московская филармония склоняется, исходя из предпочтений авторов, ко второму типу, условно говоря, храмовому, но отдает дань первому, особенно внутри и возможно потому, что этому эфемерному зданию пришлось вырасти из брутального объема холма… Это случай встречи двух подходов, их разумного соединения, надо думать, к общей пользе.