Размещено на портале Архи.ру (www.archi.ru)

19.12.2016

Вчера и сегодня

Екатерина Ровнова
Объект:
Офисное здание T3
Адрес:
США, None, Миннеаполис.

Майкл Грин покоряет США: в Миннеаполисе построено первое в стране высотное офисное здание с несущими конструкциями из инженерной древесины.

Офисное здание T3 © Ema Peter
Офисное здание T3 © Ema Peter

Говорят, век стали и бетона сменяется веком древесины: первое в США деревянное многоэтажное офисное здание Т3 – «Timber, Technology, Transit» – реализовано канадским бюро Michael Green Architecture в сотрудничестве с местными архитекторами из DLR Group, инженерами из Magnusson Klemencic Associates и специалистами по конструктивной древесине Structure Craft.
 
Офисное здание T3 © Ema Peter
Офисное здание T3 © Ema Peter
Офисное здание T3 © Ema Peter
Офисное здание T3 © Ema Peter

Заказчик – девелоперская компания Hines – хотел создать уникальный офис, который привлёк бы внимание компаний креативного и высокотехнологичного секторов. По мысли создателей, здание должно было совмещать «надёжность», характерную для исторических строений, с инновационностью, экологичностью, устойчивостью, светлыми опен-спейсами и общими пространствами для резидентов. Поэтому, в отличие от претендующих на вау-эффект современных зданий из древесины (предыдущей офисной постройки Майкла Грина в Ванкувере или, например, штаб-квартиры Sky в Лондоне), на фасадах Т3 нет пресловутых «окон в разбежку» или больших остеклённых поверхностей, только строгая геометрия, копирующая привычные для американской архитектуры XIX – первой половины ХХ века формы. Время иронично переставляет местами слагаемые: древнегреческий эксперимент по отражению былой деревянной конструкции в каменной декорации отзывается эхом в попытке деревянных конструкций XXI века имитировать визуальный ряд, свойственный традиционным материалам прошлых столетий.
 
Офисное здание T3 © Ema Peter
Офисное здание T3 © Ema Peter
Офисное здание T3 © Ema Peter
Офисное здание T3 © Ema Peter

Здание площадью 20 810 кв. м было возведено в рекордно короткие сроки со скоростью около 2780 кв. м площади в неделю. 16 720 кв. м несущего каркаса были собраны за 9,5 недель усилиями Structure Craft, отвечавших за разработку деревянных конструкций, их производство и установку на строительном участке (анимированный процесс строительства – здесь).
 
Офисное здание T3 © Ema Peter
Офисное здание T3 © Ema Peter
Офисное здание T3 © Ema Peter
Офисное здание T3 © Ema Peter

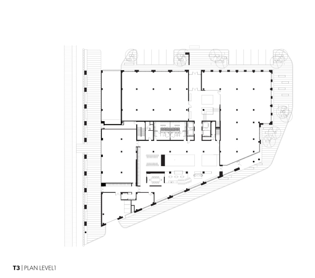
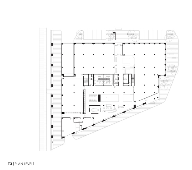
Стоечно-балочный каркас с сеткой клеёных еловых колонн 6х7 опирается на железобетонные конструкции первого этажа, а вышележащие перекрытия собраны из NLT-панелей (вот так шёл процесс сборки). Выбор пал на NLT (Nail Laminated Tiber) – панели из клеёных брусьев, соединённых между собой металлическими нагелями – из-за меньшей стоимости их производства и, как ни странно, «традиционности». Существующие строительные кодексы как США, так и Канады (IBC 602.4.6.1 и NBCC 3.1.4.6 4b/6b) разрешают использование этого материала для перекрытий, тогда как для строений из CLT чиновники пока не переписали свои требования, и для строительства очередного высотного здания каждый раз делают специальное исключение из правил.
 
Офисное здание T3 © Ema Peter
Офисное здание T3 © Ema Peter
Офисное здание T3 © Ema Peter
Офисное здание T3 © Ema Peter
Офисное здание T3 © Ema Peter
Офисное здание T3 © Ema Peter

Общий вес получившейся конструкции оказался на 30% меньше альтернативной стальной системы и на 60% – железобетонной: эта разница не только увеличила скорость возведения и упростила процесс сборки (не нужны мощные башенные краны), но и уменьшила объём фундаментной части, что значительно сэкономило средства. По стоимости этот деревянный каркас близок к стальному, но при этом не требует дополнительной противопожарной защиты: огнестойкость здания составляет более трех часов благодаря свойству деревянных изделий большого сечения не терять несущую способность продолжительное время после возгорания.
 
Офисное здание T3 © Ema Peter
Офисное здание T3 © Ema Peter
Офисное здание T3 © Ema Peter
Офисное здание T3 © Ema Peter
Офисное здание T3 © Ema Peter
Офисное здание T3 © Ema Peter
Офисное здание T3 © Ema Peter
Офисное здание T3 © Ema Peter
Офисное здание T3 © Ema Peter
Офисное здание T3 © Ema Peter

В интерьерах шести офисных этажей деревянные конструкции сияют светлыми поверхностями: по замыслу авторов, сквозь бурые фасады кортеновской стали прямоугольники окон должны светиться как городской маяк, а внутреннее пространство, из-за отсутствия обработки, – быть тёплым, «своим». Бруски NLT-панелей изготовлены из деревьев, погибших от поражения горным сосновым лубоедом – эпидемии, изменяющей ландшафт североамериканских лесов. Поражённая этим жуком древесина местами покрывается голубой плесенью, которая хоть и является одной из причин смерти растения, не оказывает влияния на технико-эксплуатационные характеристики вовремя собранного и высушенного материала и не опасна для человека. Эти несовершенства, так присущие естественности, придают особый характер пространству, говорят архитекторы проекта.
 
Офисное здание T3 © Ema Peter
Офисное здание T3 © Ema Peter
Офисное здание T3 © Michael Green Architecture
Офисное здание T3 © Michael Green Architecture
Офисное здание T3 © Michael Green Architecture
Офисное здание T3 © Michael Green Architecture
Офисное здание T3 © Michael Green Architecture
Офисное здание T3 © Michael Green Architecture
Офисное здание T3 © Michael Green Architecture
Офисное здание T3 © Michael Green Architecture
Офисное здание T3 © Michael Green Architecture
Офисное здание T3 © Michael Green Architecture



В Michael Green Architecture заявляют, что Т3 – первое возведённое в США за последние сто лет высотное строение из древесины, но не стоит забывать о чуть более ранней истории. Буквально на соседней улице расположился офисный корпус Butler Square Building. Это 9-этажное здание площадью 46 450 кв. м было построено в 1906 как склад, и за его тяжёлым кирпичным фасадом скрывается мощный деревянный стоечно-балочный каркас с сеткой 4х5. Этому остову из массива древесины дугласовой пихты как раз перевалило за сотню лет.

Т3, делая реверанс в сторону местного исторического наследия и локальных традиций, вливается в сложившуюся застройку, не подавая вида, что он таки из непредсказуемого будущего. Задача производить впечатление «надёжности» решена. Well done, Mr. Tall Wood.
Историческое здание на деревянном каркасе Butler Square Building. 1906. Фото с сайта www.mnpreservation.org
Историческое здание на деревянном каркасе Butler Square Building. 1906. Фото с сайта www.mnpreservation.org
Историческое здание на деревянном каркасе Butler Square Building. 1906. Фото с сайта butlersquare.com
Историческое здание на деревянном каркасе Butler Square Building. 1906. Фото с сайта butlersquare.com
Историческое здание на деревянном каркасе Butler Square Building. 1906. Фото с сайта butlersquare.com
Историческое здание на деревянном каркасе Butler Square Building. 1906. Фото с сайта butlersquare.com
Историческое здание на деревянном каркасе Butler Square Building. 1906. Фото: McGhiever via Wikimedia Commons. Лицензия Creative Commons Attribution-Share Alike 4.0 International
Историческое здание на деревянном каркасе Butler Square Building. 1906. Фото: McGhiever via Wikimedia Commons. Лицензия Creative Commons Attribution-Share Alike 4.0 International