Размещено на портале Архи.ру (www.archi.ru)

19.12.2016

ДНК аг: «Нам интересно взаимодействие архитектуры с людьми»

Юлия Тарабарина
Архитектор:
Даниил Лоренц
Наталья Сидорова
Константин Ходнев
Мастерская:
DNK ag

Бюро ДНК аг исполнилось 15 лет. Говорим с его основателями об исследовании, контексте, творчестве, опыте, преподавании – а также о том, что именно движет мыслью архитектора.

Константин Ходнев, Наталья Сидорова, Даниил Лоренц. Фотография © Ирина Кайдалина, 2016
Константин Ходнев, Наталья Сидорова, Даниил Лоренц. Фотография © Ирина Кайдалина, 2016

Архи.ру:
– Вы работаете вместе 15 лет. Что изменилось за это время, к чему вы пришли?

Константин Ходнев:
– Мы стали лучше разбираться во многих вещах. Пятнадцать лет назад у нас не было опыта руководства бюро, прошедшие годы были временем его накопления. А также изучения самих себя – ведь важно понимать, чем именно нам интересно заниматься. Сейчас, я думаю, мы достаточно хорошо владеем организационной стороной архитектуры и в то же время приблизились к пониманию главных задач – тех, которые собственно и должна решать архитектура.

– А как изменились ощущения?

К.Х.: Первичным было то, что нам интересно заниматься архитектурой. Нам казалось, что в рамках собственного бюро мы просто сможем работать более концентрированно, поскольку больше вещей будет зависеть непосредственно от нас. В основе лежал интерес, так что мы относились и относимся к этому как к приключению, получаем от работы удовольствие.

Наталья Сидорова:
– Мы всё же не с нуля начали, после института мы проработали по семь лет в разных бюро. Шаг-то был осознанный. Я бы сказала, что теперь пришло ощущение уверенности; мы уверены в том, что предлагаем, и в том, что решения, которые мы отстаиваем, действительно правильные. Хотя сомнения тоже полезны.

– Если поделить прошедшее время приблизительно на две части: до и после финансового кризиса, как для вас различаются эти два периода?

К.Х.: Конечно, тогда поменялась экономика, заказчики, изменился формат задач. К 2008 мы подошли с большими и очень разноформатными проектами в портфолио, и все они, особенно крупные проекты, в одночасье исчезли или остановились. Затем отношения с заказчиками пришлось выстраивать заново. Но в результате получилось так, что за последние пять лет мы вышли на гораздо больший масштаб задач и круг проектов.

– О каких проектах нового масштаба идёт речь?

К.Х.: Если до 2008 года речь скорее шла об отдельных домах, то сейчас появились проекты комплексной застройки. Другой сегмент – редевелопмент, он тоже связан с темой города, но иначе: там требуется переформатировать промышленную территорию, превратив её в часть городской ткани.

Н.С.: Речь о проектах градостроительного масштаба, где мы занимались всем – от концепции развития территории до отдельных домов: это «Река-река», посёлок на 50 гектарах; Звенигород – мини-город на 500 000 м2 жилья; район Горки на Каширском шоссе. Работа с территорией – многопрофильная задача, здесь нужно работать на разных стадиях: начиная с предпроектных исследований совместно с командой консультантов по девелопменту, бизнес-моделированию и функционалу, связанных с анализом эффективности, сценариев использования территорий. Нередко работа по проекту и заканчивается на таких предварительных исследованиях.
Поселок «Река-Река», г. Звенигород, 2013, в процессе строительства © ДНК аг
Поселок «Река-Река», г. Звенигород, 2013, в процессе строительства © ДНК аг
Жилой район в г. Звенигороде, 2014 © ДНК аг
Жилой район в г. Звенигороде, 2014 © ДНК аг
Жилой район Горки, 2015, в процессе строительства © ДНК аг
Жилой район Горки, 2015, в процессе строительства © ДНК аг
Жилой район «Северный», первая очередь, 2015, в процессе строительства © ДНК аг
Жилой район «Северный», первая очередь, 2015, в процессе строительства © ДНК аг

К.Х.: Я думаю, вот что ещё случилось за прошедшее время – мы стали ровесниками заказчиков. Если до 2008 года заказчики были старше, то теперь мы сровнялись, а иногда заказчики даже моложе нас. Что тоже изменило отношения в лучшую сторону.

– Вы сейчас работаете с проектами частных домов?

Н.С.: Мы продолжаем работать, меньше, чем раньше, – ситуация изменилась, элитного частного жилья, вилл стало не так много.

К.Х.: Но мы и никогда не делали их «пачками». Загородные дома – отдельное направление в нашей работе. В ней есть определенная психологическая сложность, так как она подразумевает прямое общение с заказчиком. Но эта работа позволяет сделать всё практически по-максимуму, на пределе технических возможностей, материалов, элементов, деталей. То, что в городе редко бывает возможно: там иные бюджеты, требования, отношения с клиентами… Загородные дома для нас – ещё и лаборатория по созданию архитектуры максимально высокого качества.
Вилла «LD», 2007. Фотография © Ю. Пальмин
Вилла «LD», 2007. Фотография © Ю. Пальмин
«Дом у воды», 2011. Фотография © А. Народицкий
«Дом у воды», 2011. Фотография © А. Народицкий
Вилла «Четыре двора», 2008. Фотография © Ю. Пальмин
Вилла «Четыре двора», 2008. Фотография © Ю. Пальмин
Вилла «Два брата», 2014 © ДНК аг
Вилла «Два брата», 2014 © ДНК аг

Н.С.: Мы благодарны своим заказчикам – у нас получается хорошее сотрудничество, они очень внимательно относятся к архитектуре и с интересом к результату.

Сейчас идёт вторая волна: появилось несколько небольших работ по реконструкции вилл, построенных нами где-то лет 10 назад. В одном из домов нужно было увеличить площадь, в другом – трансформировать пространство. Пожелания связаны с течением времени, изменением состава семьи и тому подобными вещами. Расширение одного из домов мы уже реализовали, это произошло очень органично; как нам показалось, участок ждал этого прибавления. Этот опыт нам позволил представить архитектуру как живой, не застывший организм. Вообще время – очень важный для архитектуры критерий, интересно наблюдать, как твои объекты живут.

– Позитивный отчёт получается… А самокритики не возникает? Ведь десять лет прошло, мог измениться взгляд на форму, приём, материал.

К.Х.: Максимальное недовольство возникает тогда, когда дом построен. К этому моменту ты перерастаешь проект, кажется, что какие-то вещи можно было сделать по-другому. А с течением времени начинаешь оценивать дом так, как ты его изначально задумывал. Решения, которые мы закладываем, работают, желания переделать полностью – нет. Может быть потому, что они не были связаны с какой-то модой или журналами. Это абсолютно органичные для нас вещи, эти дома – продолжение нас, а мы не изменились как личности на 180 градусов. Со временем только начинаешь ценить удачные решения. Смотришь и поражаешься: надо же, как давно сделано, а как хорошо получилось. Уж не знаю, будем ли мы с течением времени учиться у самих себя… [все трое смеются].

– По отношению к вашим городским зданиям – галерее Аэропорт, зданию на улице Вавилова – происходит то же самое? Не хочется потом что-то изменить?

Н.С. Недавно на круглом столе «Фасады и смыслы», организованном «Проектом Балтия», мы рассказывали о здании на улице Вавилова: его пример был воспринят петербургскими архитекторами с большим энтузиазмом, из-за своего, скажем так, абстрактно-концептуального и вневременного подхода. Он самодостаточен и поэтому не потерял актуальности и свежести до сих пор.
Офисное здание на ул.Вавилова, 2005. Концептуальная схема © ДНК аг
Офисное здание на ул.Вавилова, 2005. Концептуальная схема © ДНК аг
Офисное здание на ул.Вавилова, 2005. Фотография © Я. Пиндора
Офисное здание на ул.Вавилова, 2005. Фотография © Я. Пиндора
Офисное здание на ул.Вавилова, 2005. Фотография © Я. Пиндора
Офисное здание на ул.Вавилова, 2005. Фотография © Я. Пиндора

К.Х.: Мы стараемся смотреть на несколько слоёв глубже. В случае в галереей «Аэропорт» была задача построить торговый центр, но мы посмотрели шире. Исследовали потоки, масштабы, отношение между зданиями на этой площади и то, как они изменятся. Мы рассматривали ТЦ как фрагмент города, анализировали потоки людей, соответственно проложили маршруты, организовали некий каскад уникальных пространств, начиная от накрытого нами выхода из метро через площадь Тельмана, которая стала компактнее; добавили уровень второго этажа, откуда можно смотреть на площадь сверху. Кроме того, здание отделило от Ленинградки и сделало тихим благоустроенный по проекту сквер в глубине квартала. Мы дали гораздо больше, потому что учитывали не только интересы заказчика, но и интересы города, жителей. Благодаря чему проект оказался успешным и с коммерческой точки зрения, и как часть среды. В этом проекте мы задействовали все темы: благоустройство общественного пространства, здание, интерьер. Такой комплексный подход стал мейнстримом только в последнее время.
ТЦ «Галерея Аэропорт», совместно с СКиП, 2003. Фотография © А. Русов
ТЦ «Галерея Аэропорт», совместно с СКиП, 2003. Фотография © А. Русов
ТЦ «Галерея Аэропорт», совместно с СКиП, 2003. Фотография © А. Русов
ТЦ «Галерея Аэропорт», совместно с СКиП, 2003. Фотография © А. Русов
ТЦ «Галерея Аэропорт», совместно с СКиП, 2003. Фотография © А. Русов
ТЦ «Галерея Аэропорт», совместно с СКиП, 2003. Фотография © А. Русов
ТЦ «Галерея Аэропорт», совместно с СКиП, 2003. Фотография © ДНК аг
ТЦ «Галерея Аэропорт», совместно с СКиП, 2003. Фотография © ДНК аг

Н.С. Несмотря на смену парадигм торговли за 15 лет он не устаревает, по-прежнему успешно функционирует, и эстетически не устарел, на наш взгляд. Решение фасадов с одной стороны современное, а с другой достаточно нейтральное, чтобы пережить всплески разных мод.

– Это ведь не единственный пример, когда вы, скажем так, опередили популярный тренд. В здании на улице Вавилова вы задумали использовать цельную кирпичную «кожу» в 2002 году, когда кирпич чаще использовался как декоративная вставка, чем как основной материал.

Н.С. Да, это потрясающе, но чем больше проходит времени и чем больше появляется популярных тем, тем больше мы обнаруживаем их у себя в старых проектах. Так, когда мы в 2011 делали конкурс на реновацию кинотеатра «Пушкинский» (нынешний кинотеатр «Россия»), то главной темой сделали его «включение» в городскую жизнь через формирование новых общественных пространств и благоустройство, столь модное сейчас. А когда делали в 2010 году проект по Бирюлево, то не было ни темы Бирюлево, ни темы периферии, которой был посвящен Урбан Форум 2015, ни темы редевелопмента и уплотнения территорий. А это был ответ на то, как надо заниматься районами, насыщать их; размышление на тему компактного города. Можно сказать, что если кто-то из девелоперов хочет быть на пике тренда, надо почаще прислушиваться к нашим идеям и проектам [смеется].
Реконструкция  кинотеатра «Пушкинский», конкурсный проект, short list, 2011 © ДНК аг
Реконструкция кинотеатра «Пушкинский», конкурсный проект, short list, 2011 © ДНК аг
Реконструкция  кинотеатра «Пушкинский», конкурсный проект, short list, 2011 © ДНК аг
Реконструкция кинотеатра «Пушкинский», конкурсный проект, short list, 2011 © ДНК аг

– Да, я помню, проект был посвящен тактике последовательного преображения микрорайонов Бирюлево в компактный город, там на последней стадии от выстроенных звёздочками домов-пластин оставались пруды с эффектными контурами. Для чего вы тогда его делали?

Даниил Лоренц:
– Для Арх Москвы, для выставки на тему «Москва через 50 лет», курируемой Еленой Гонсалес. Это был отклик на программу «Большой Париж». Нужно было в нескольких картинках продемонстрировать наше видение. Нам хотелось, чтобы это стало высказыванием, и получилось на мой взгляд так, что в каждом кадре оно абсолютно актуально. Мы считаем, что это не просто манифест, а программа, которой город должен следовать.
Концепция «Замещение» в рамках проекта «Будущее мегаполиса. Проект Москва». 2010 Московская биеннале архитектуры © ДНК аг
Концепция «Замещение» в рамках проекта «Будущее мегаполиса. Проект Москва». 2010 Московская биеннале архитектуры © ДНК аг
Концепция «Замещение» в рамках проекта «Будущее мегаполиса. Проект Москва». 2010 Московская биеннале архитектуры © ДНК аг
Концепция «Замещение» в рамках проекта «Будущее мегаполиса. Проект Москва». 2010 Московская биеннале архитектуры © ДНК аг
Концепция «Замещение» в рамках проекта «Будущее мегаполиса. Проект Москва». 2010 Московская биеннале архитектуры © ДНК аг
Концепция «Замещение» в рамках проекта «Будущее мегаполиса. Проект Москва». 2010 Московская биеннале архитектуры © ДНК аг
Концепция «Замещение» в рамках проекта «Будущее мегаполиса. Проект Москва». 2010 Московская биеннале архитектуры © ДНК аг
Концепция «Замещение» в рамках проекта «Будущее мегаполиса. Проект Москва». 2010 Московская биеннале архитектуры © ДНК аг

– Хорошо, а как вы оцениваете источники ваших высказываний, откуда они происходят? Подобные взгляды высказывались в России школой Гутнова в 1970-е – 1980-е. Сейчас то же самое приходит из западных источников, происходит некое наложение смыслов, многократное повторение. Как вы сами считаете, откуда у вас вот эти, скажем так, опережающие идеи?

К.Х.: Собственно, Гутнов и Глазычев говорили о том, что нужно переосмыслить город. К 1980 году экономика в СССР абсолютно превалировала над психологическими и социальными аспектами жизни. Они пытались найти пути, как сделать город более человечным. У нас тоже подход скорее гуманистический. Да, мы во многом, наверное, повторяли то, о чём говорили наши предшественники, но об этом же говорил и много кто ещё. Смена градостроительных приоритетов довольно активно происходила уже в 50-е – 60-е годы, когда появился Кевин Линч. Про Джейн Дейжкобс и вообще можно не упоминать. И у нас эта теория была донесена стараниями Глазычева.

– Если говорить о людях. Есть два подхода архитекторов к последующей жизни своих зданий: подход Аравены, изложенный в его знаменитом Elemental Monterrey, где всё рассчитано на то, что люди будут всё достраивать и перестраивать…

К.Х.: Половину.

– Но эта половина там главная, смыслообразующая. Противоположный подход – когда архитектор воплотил свой проект и потом не дай бог прикрутить кондиционер или застеклить лоджию – проект сразу испорчен. Из этих двух полюсов какой вам ближе?

К.Х.: У Аравены сама концепция, форма предусматривает достройку – изменчивость, момент неопределенности уже включены в проект как одно из его условий. Но если мы говорим о незапланированных изменениях, то понятно, что реакция архитектора будет негативной. Поскольку он является автором всего проекта целиком, то искажение первоначального образа здания – это как минимум нарушение авторских прав.

Н.С.: Нам везло, наши здания не часто изменяли: ни заказчик в процессе строительства, ни жильцы. У нас даже есть интерьер, который с 1997 года почти не претерпел изменений. Это оружейный магазин, мы его начинали в ABD, потом делали в ДНК для него один из дополнительных залов.

Д.Л.: Я бы хотел сказать по поводу изменчивости здания даже без желания на то архитектора – это очень хорошо видно в городах по первым этажам зданий: там всё время что-то меняется, один магазин уезжает, другой приезжает, дизайн первого этажа всегда меняется. Для города это нормально. И если здание, как объект недвижимости или как объект творчества при этом сильно не страдает – это вопрос качества здания. Мы что-то поменяли, а он всё равно тот же. Пусть не тот же – но узнаваем. Изначальная продуманность, гармоничное, вневременное решение позволяет объекту жить долго. Делать архитектуру такого качества достаточно сложно, но это одна из задач, которая перед нами стоит.

К.Х.: Проектируя, мы должны устанавливать зоны, где изменения возможны, и зоны неизменные по определению. Просчитывать все возможные варианты изменений. Если заложенные решения не позволяют людям комфортно использовать здание, то решение недостаточно совершенно. С другой стороны, случается и так, что архитектор всё предусмотрел, а люди поступают по-своему – это уже вопрос культуры потребителя. Так что архитектор должен просчитывать, а владелец – относиться к постройке с максимальным уважением. Тогда мы получим нормальную городскую среду с нормальными фасадами.

– Как вы анализируете контекст для того, чтобы сделать проект «гуманным»? Ваши западные коллеги много говорят о том, как они взаимодействуют с населением, изучают запрос жителей. Понятно, что все смотрят интернет, изучают карты… Есть ли у вас какие-то подходы, методы, в чём они состоят?

К.Х.: Хороший вопрос. Скажем так, анализ больших данных применим скорее к совсем крупным градостроительным задачам. В масштабах жилого района, как у нас, польза от этих данных намного меньше, хотя нам это интересно и мы исследуем такую информацию.

Опросы – отдельная вещь, как мне кажется, их значение для генерации решений преувеличено. Во многих случаях они носят характер терапии общественного мнения для того, чтобы люди смирились с тем, что рядом с ними что-то новое будет построено и воспринимали это менее болезненно. Если же говорить о том, как мы моделируем человеческую часть потребностей – ну, во-первых, мы обладаем достаточной степенью воображения и можем представить себе жизнь в квартале, районе… Мы постоянно наблюдаем и анализируем. И в Москве, и за границей – не просто ходим и фотографируем, но исследуем, пытаемся понять, почему здесь хорошо, – или почему плохо.

Это касается не только градостроительства, а материалов, фасадов, дизайна скамеек – чего угодно.
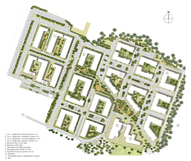
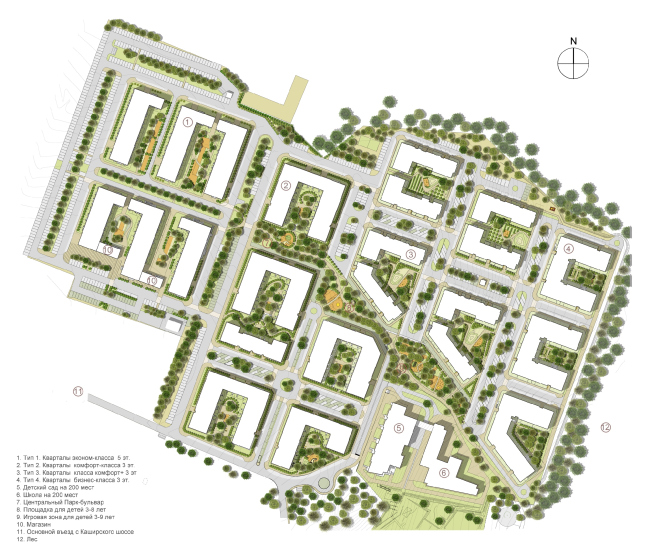
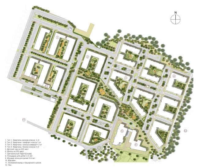
Жилой район Горки, 2015. Концептуальная схема © ДНК аг
Жилой район Горки, 2015. Концептуальная схема © ДНК аг
Жилой район Горки, 2015. Генеральный план © ДНК аг
Жилой район Горки, 2015. Генеральный план © ДНК аг

Д.Л.: Если говорить про людей, то мы же не сторонние наблюдатели – мы те же люди, у нас тот же опыт и тот же самый здравый смысл. Чувственное восприятие – базовая вещь, необходимая в нашей профессии. Чтобы понять, что нужно другому человеку, достаточно понять, что нужно тебе.

Н.С. Кроме того, в проекте, если это серьезный проект, участвует довольно большая команда – консультанты, маркетологи, и выполняется необходимое исследование, если это нужно заказчику.

Что касается наших наработок – мы, например, обязательно используем так называемые «протопы» – тропинки, и в Горках, и в Тельмана, и в Звенигороде. Мы закрепляем маршруты, след, оставленный человеком – потом они оказываются востребованными, даже становятся градостроительной осью посёлков.

– Всё это хорошо, а как же красивая, ёмкая, иконическая форма? Ведь не то чтобы её у вас нет.

К.Х.: Мы не стараемся создавать архитектуру как скульптуру ради формы. Нам интересно её взаимодействие с живыми людьми и с окружением, и со множеством факторов. Архитектура успешна, если не противопоставляет себя человеку, а включает его в себя: с его трактовками, подсознанием, это не просто вхождение и нахождение внутри, но и дальнейшее осмысление… Хорошо, если и человек пытается как-то её трактовать, и она эмоционально на него воздействует. Мы же всегда закладываем, зашифровываем тоже и эмоциональную составляющую. Интересно, если архитектура не будет раскрываться вся сразу, если будут какие-то вещи, которые надо будет копать глубже.
Музей Гуггенхайма в Хельсинки, конкурсный проект, 2014. Общий вид © ДНК аг
Музей Гуггенхайма в Хельсинки, конкурсный проект, 2014. Общий вид © ДНК аг
Музей Гуггенхайма в Хельсинки, конкурсный проект, 2014. Вид с набережной © ДНК аг
Музей Гуггенхайма в Хельсинки, конкурсный проект, 2014. Вид с набережной © ДНК аг
Музей Гуггенхайма в Хельсинки, конкурсный проект, 2014. Интерьер © ДНК аг
Музей Гуггенхайма в Хельсинки, конкурсный проект, 2014. Интерьер © ДНК аг

Н.С. Костя упомянул скульптуру, я хочу зацепиться за это слово. Ряд объектов, над которыми мы в последнее время поработали, относятся к более концептуальным формам: я говорю о Сколково, бассейне Лужники, музее Гуггенхайма – которые также включены в нашу идеологию, связанную с человеком, удобством и функцией и так далее. Они одновременно яркие, образные, но и совершенно реальные, проработаны достаточно глубоко по конструкциям, технологиям и бюджету. Сколково уже прошло экспертизу. Они стали новой ступенькой в нашем, скажем так, творчестве, поскольку это по-настоящему уникальные объекты.
Реконструкция бассейна «Лужники», Финалист конкурса, 2014. Вид с метромоста © ДНК аг
Реконструкция бассейна «Лужники», Финалист конкурса, 2014. Вид с метромоста © ДНК аг
Реконструкция бассейна «Лужники», Финалист конкурса, 2014. Вид галереи © ДНК аг
Реконструкция бассейна «Лужники», Финалист конкурса, 2014. Вид галереи © ДНК аг
Реконструкция бассейна «Лужники», Финалист конкурса, 2014. Интерьер спортивного бассейна © ДНК аг
Реконструкция бассейна «Лужники», Финалист конкурса, 2014. Интерьер спортивного бассейна © ДНК аг
Реконструкция бассейна «Лужники», Финалист конкурса, 2014. Трехмерное продольное сечение © ДНК аг
Реконструкция бассейна «Лужники», Финалист конкурса, 2014. Трехмерное продольное сечение © ДНК аг

– Кстати об образности. Правильно ли я понимаю, что у вас декларативно нет узнаваемого языка. Вместо почерка у вас получается диапазон: от иконических проектов, как Гуггенхайм до латентной классики, как на Вавилова или в «Рассвете».

К.Х.: Мы стараемся подходить к проекту без всяких предубеждений, у нас нет никакого устоявшегося мнения о том, каким он должен быть. Это приходит в процессе понимания задачи, идеи и сценария, в который начинает разворачиваться проект. А то, что здание выглядит тем или иным образом – это просто ответ на вопрос об этом здании, проекте.
Квартал 01 района D2 инновационного центра «Сколково», 2015. Макет © ДНК аг
Квартал 01 района D2 инновационного центра «Сколково», 2015. Макет © ДНК аг
Квартал 01 района D2 инновационного центра «Сколково», 2015. Фрагмент © ДНК аг
Квартал 01 района D2 инновационного центра «Сколково», 2015. Фрагмент © ДНК аг

Н.С.: В частных домах – ответ на вопрос о заказчиках, частично проекция личности заказчика. На больших объектах участвует другие факторы: контекст, градостроительная задача или форма, как в Сколково. Это может быть выражено в двух-трех словах. К примеру: современность, поле и круг; или историческое окружение. «Рассвет» и Вавилова, кстати – абсолютно разные здания для нас, их роднит только кирпич. Вавилова – абстрактная идея и форма, академическая задача решения формы, оболочки и их взаимодействия. «Рассвет» вещь более контекстуальная.
РАССВЕТ  LOFT*STUDIO, 2014, в процессе реновации © ДНК аг
РАССВЕТ LOFT*STUDIO, 2014, в процессе реновации © ДНК аг
РАССВЕТ  LOFT*STUDIO, 2014, в процессе реновации © ДНК аг
РАССВЕТ LOFT*STUDIO, 2014, в процессе реновации © ДНК аг

Д.Л.: В то же время он ещё произрастает изнутри. Суть в том, какие изначальные факторы и условия мы имеем на каждом объекте. Мы, грубо говоря, начинаем с чистого листа, собираем ингредиенты. Если у вас есть авокадо, то салат будет из авокадо. А если морковка, то будет другое блюдо. Притом что готовить будет один повар, у него есть подходы и решения, какие-то заправки. Но будет, или не будет хрустеть в зубах – зависит от того, какие ингредиенты.

– Из всего, что вы сейчас рассказали, получается такая странная ассоциация. Вы отодвигаете вашу творческую личность куда-то вглубь, за параметры. Наталья произносит слово творчество и тут же оговаривается – вроде бы этого не говорила. В развернутых и глубоких рассуждениях вы прячете себя, подчеркиваете свою роль посредника, как иконописец, который не подписывает икон, потому что он только доносит божественный образ. У вас получается похоже: есть множество факторов, вы на них реагируете и в результате получается некий продукт. Где тогда ваша творческая личность, она заключена собственно в посредничестве или есть что-то ещё?

Д.Л.: Я бы сказал, что ваше предположение перевернуто ровно наоборот. Потому что в нашей деятельности отсутствует канон. Иконописание – это канон, там не может быть личности.

То, что мы делаем – это чистое творчество. Оно ничем не ограничено. Это не значит, что мы придумываем какую-то «утку» и стремимся ее воплотить. Наше творчество в работе с материалом. Мы не всегда знаем, чем процесс может закончиться. И это интересно, это зажигает.

Ощущение того, что мы как будто прячемся, может происходить оттого, что наша работа коллективна. Мы не задаем себе вопрос: это моё? его? или её? Нам важно получить вещь, которая была бы уместной и интересной, ответила бы на все вопросы. Интересно прийти к результату.

– Упомянутая вами коллективность происходит от того, что бюро – не «моно», вас трое руководителей. В чем плюс такой работы?

К.Х.: Мне кажется, из-за того, что нас трое, что мы должны как-то аргументировать любое решение – мы самоозадачиваем друг друга.

– Тогда ещё немного о методе: какова схема вашей работы? С чего вы начинаете, есть ли вообще какая-то последовательность действий, которую вы назвали бы своим методом?

К.Х.: Самый сложный вопрос. Всё зависит от задачи и времени, отведенного на решение. Где-то в первую очередь надо анализировать объем, где-то градостроительную ситуацию, инсоляцию или программу. Важно– правильно понять ограничения и работать с ними. На уровне концепции могут быть разные, даже полярные способы решения одной и той же задачи.

Н.С.: Иногда у кого-то рождается эскиз, который сразу дальше идет в работу, иногда слово, подхваченное в общей дискуссии, бывает, что даже с другим смыслом. Мы втроем принимаем непосредственное участие в каждом проекте. Сидим, рисуем эскизы, параллельно рисуют сотрудники, делаем макеты. Но в какой-то момент возникает вопрос выбора. Одна из самых сложных вещей – принять решение, понять, что идёт дальше в работу.

К.Х.: После анализа начинается синтез и это довольно трудно описать, потому что это спонтанная, интуитивная история. Вдруг, на уровне внутреннего ощущения, понимаешь, что вот оно, вот это уже правильно.

Н.С.: К слову, из того, что изменилось с течением времени: мы научились делегировать задачи, больше доверять. Поначалу мы очень многое жёстко контролировали и делали сами. Сейчас мы научились передавать ответственность, сохраняя качество конечного результата.

– У вас стабильный состав мастерской?

Н.С.: Есть сотрудники, которые работают больше десяти лет. Конечно, коллектив меняется, но тем не менее достаточно стабильный.

– Какими качествами надо обладать, чтобы с вами работать?

Н.С.: Универсальными. Каждый член команды должен быть универсален, мобилен и иметь возможность переключаться с одной задачи на другую, а также решать задачу от начала до конца, от концепции до реализации с соответственным уровнем креативности – когда нет стилистического шаблона. Каждый раз выдавать оригинальную идею.
Мы стараемся организовать работу эффективно. Небольшой состав бюро таким образом позволяет делать масштабные проекты – до целых мини-городов. Многие удивляются, когда мы говорим, что и рабочку часто делаем сами.

К.Х.: Мы прикладываем довольно много усилий для того, чтобы люди прошли все этапы от концепции до рабочей документации: рассказываем, обучаем – это помогает создать эффективную команду. Потому что сроки на решение задач, если мы говорим о тенденциях, сейчас совсем уж сильно сжимаются, что признают и сами заказчики. Умение реагировать на это, сохраняя качество архитектуры – тоже непросто.

– Но это и конкурентное преимущество: если вы уже создали команду, способную «работать под давлением» – к примеру, хорошо и быстро, вы уже обладаете неким запасом прочности.

К.Х.: Пожалуй, да. В таких условиях это, наверное, единственный способ: чтобы сотрудники обладали определенной степенью самостоятельности. Чтобы каждый был супер-профессионалом.

Н.С. Тем более что мы позволяем себе отвлекаться на образовательные проекты. В прошлом году мы семестр преподавали в МАРШе, Константин и Даниил вели дипломников в МАРХи несколько выпусков, периодически проводим мастер-классы и воркшопы в разных городах. Мы считаем обязательной частью профессии передачу опыта как необходимое связующее между одним поколением и другим. Ведь мы практики, мы можем поделиться конкретными примерами с молодым поколением.

– Какие стройки вы сейчас ведёте?

Н.С.: У нас 2016 год богат на стройки. Горки наполовину построены, в «Северном» достраивается первая очередь – два огромных квартала, первое из зданий «РАССВЕТ LOFT*STUDIO» уже почти готово.
Жилой район Горки, 2015, в процессе строительства © ДНК аг
Жилой район Горки, 2015, в процессе строительства © ДНК аг
Жилой район Горки, 2015, в процессе строительства © ДНК аг
Жилой район Горки, 2015, в процессе строительства © ДНК аг

– И всё это стройки с рабочкой и минимальными искажениями проекта?

Н.С.: Пожалуй, да. Понятно, что предела совершенству нет и у нас могут быть вопросы к качеству, но в целом это тоже умение – понимать, как реализовать проект так, чтобы замысел не пострадал. Уже на этапе концепции правильно оценить бюджетный уровень проекта и спланировать концептуальные «зазоры», чтобы даже если при реализации произойдёт искажение некоторых деталей – концепция сохранилась. В Сколково наша изначальная конкурсная задумка как была, так и сохранилась в проекте, уже согласованном экспертизой. Как на «Рассвете» наша первая эскизная картинка, показанная заказчику была, так он и построился. Это тоже даётся с опытом.
Жилой район «Северный», г.Москва, первая очередь, 2015, в процессе строительства © ДНК аг
Жилой район «Северный», г.Москва, первая очередь, 2015, в процессе строительства © ДНК аг
Жилой район «Северный», г.Москва, первая очередь, 2015, в процессе строительства © ДНК аг
Жилой район «Северный», г.Москва, первая очередь, 2015, в процессе строительства © ДНК аг
Жилой район «Северный», г.Москва, первая очередь, 2015, в процессе строительства © ДНК аг
Жилой район «Северный», г.Москва, первая очередь, 2015, в процессе строительства © ДНК аг

– Если говорить о сверхзадаче – в какую сторону вы хотите развиваться?

Н.С.:
Объем накопленного на сегодняшний день опыта, знаний передовых инженерных технологий, материалов, и разноплановый архитектурной опыт – позволяет решать комплексные задачи, их в общем-то и хочется решать, развиваться в этом направлении, делать более совершенные проекты, применять знания. Мы нацелены на масштабные и сложные задачи, способные позитивно менять среду, а значит ­– и жизнь людей. 
беседовала: Юлия Тарабарина