Размещено на портале Архи.ру (www.archi.ru)

28.02.2017

Архиматика: спальным районам пора просыпаться

Дарья Горелова
Объект:
Жилой комплекс на улице Стрыйской в г. Львове
Адрес:
Украина, Львов. ул. Стрыйская, д. 195
Архитектор:
Александр Попов
Мастерская:
Архиматика
Авторский коллектив:
Архитекторы: Васильев Д., Гнатиенко В., Горпенюк Р., Лысенко Р., Морозов Н., Оначук Е., Додонов А., Науменко Е.

Объединив образность и пространственную типологию исторического города с изобилием зелени «города-сада», бюро «Архиматика» предложило для периферийного, но активно развивающегося района Львова кусочек городской среды нового типа, рассчитанной на иное качество ощущений.

Жилой комплекс на улице Стрыйской в г. Львов. Парк. Проект, 2016 © Архиматика
Жилой комплекс на улице Стрыйской в г. Львов. Парк. Проект, 2016 © Архиматика

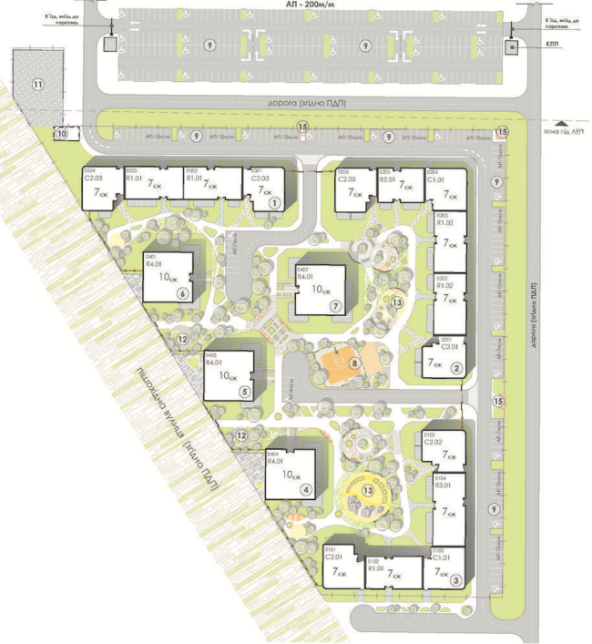
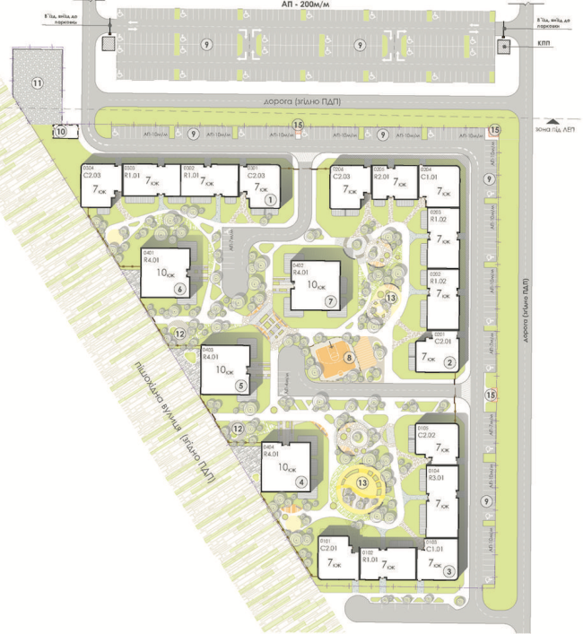
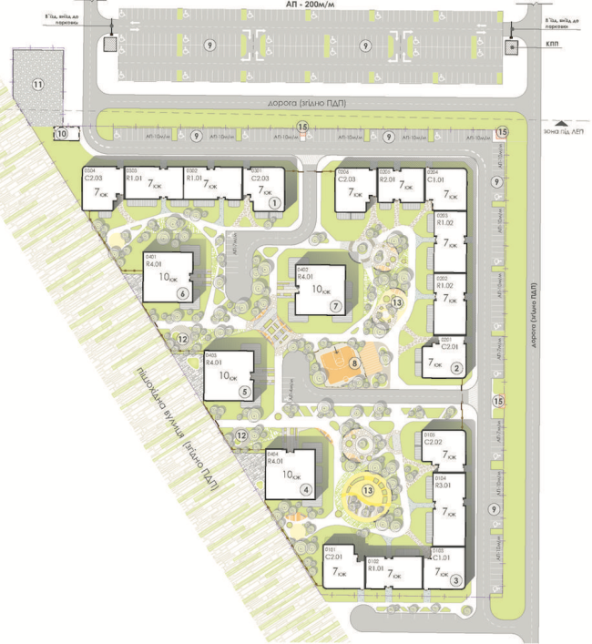
Исторический центр Львова сравнительно невелик – около 120 га. Один из протуберанцев городской территории, который касается кольца, вытянут на юг и примыкает к Стрыйской улице, оживлённой городской трассе. В самом начале, у одноимённого парка, эта улица может похвастаться штукатурными фасадами эклектики и мелкой «римской» брусчаткой. Южнее, почти сразу, начинаются рабочие посёлки, а далее – микрорайоны и промзоны.

Территория нового ЖК «Леополь Таун» (см. сайт проекта) находится между заводом и ипподромом, недалеко от объездной дороги. Три гектара занимают угол заброшенного питомника по выращиванию рассады деревьев для городского хозяйства, который превратился в подобие леса. Окружение – достаточно перспективное: в пяти минутах пешком – главный городской автовокзал, рядом ипподром, чуть дальше, в двух километрах к югу – футбольная «Арена Львов», построенная к европейскому чемпионату 2012. Рядом несколько парков и за чертой города небольшие села: с востока и с запада. Сейчас городской район между селами к востоку от автовокзала активно застраивается новыми жилыми комплексами, рассчитывая на соседство Арены и планы города по обновлению двух трасс: улица Вернадского должна превратиться в магистраль-хорду, а направленный на север безымянный аппендикс – в проспект Красной калины. У «Леополь Тауна» есть ещё минимум четыре соседа разной степени завершённости стройки, от 5 до 10 этажей.

Комплекс, спроектированный «Архиматикой», вписан в те же высотные отметки, он не вырастает ни над советскими девятиэтажками, ни над новыми ЖК по соседству. Обширный – три гектара, участок и не слишком большой объём требуемой площади жилья – всего 43 300 м2, позволили не превысить разумный масштаб. В то же время он довольно ощутимо отличается от соседей, и не только от типовых.

Во-первых, авторы уделили много внимания изучению контекста, участка и живо отреагировали на все их особенности. Прямоугольная территория бывшего питомника растений, срезанная на северо-восточном углу, образует треугольник. По катетам участка подходят будущие оживленные улицы – поэтому с этой стороны расположились вместительные наземные парковки (подземных здесь нет). Дома на месте теплиц образуют контур-рамку квартального типа, как будто защищают участок от города, но их фронт разорван на три отрезка, обеспечивая свободные проходы внутрь и избегая эффекта дома-стены. По внешней стороне гипотенузы, разумеется, нет никаких парковок, – здесь проходит пешеходный бульвар, который должен соединить автовокзал и автобусную остановку на улице Вернадского с будущей улицей Красной Калины, ведущей к ипподрому и Арене. Бульвар – тоже одно из правил хорошего тона современных жилых комплексов, и в то же время то, что он оказался не внутри, а снаружи, делает «Леополь Таун» более открытым и городу, и лесу. Он рассчитан не только на жильцов – транзитный поток пешеходов также мог бы питать кафе и магазины первых этажей.
Жилой комплекс на улице Стрыйской в г. Львов. Генеральный план © Архиматика
Жилой комплекс на улице Стрыйской в г. Львов. Генеральный план © Архиматика

Внутри же архитекторы постарались сохранить старые липы и осины настолько, насколько это было возможно: тщательно искали свободные места для спортивных и детских площадок, минимизировали пожарные проезды до допустимых пределов. Въезд во двор будет разрешён только экстренным службам и маломобильным группам населения, и во дворе получился благоустроенный парк-лес. К тому же для жителей первых этажей запланированы небольшие, около 3 м2, палисадники во внутреннем контуре. Этот крайне актуальный приём современной архитектуры – кусочек личного пространства в общественном благоустройстве, позволяющий вывести людей во двор в разном их качестве – в данном случае неожиданно перекликается с сельским окружением фрагмента растущего нового города. В пятнадцати минутах ходьбы люди, условно говоря, сидят на завалинке собственных частных домов, ну или пьют чай на террасах, а тут – будут осваивать модный палисадник. Первые этажи внешнего контура планируется отдать кафе, магазинам и прочему ритейлу.

Говоря о сохранении старых деревьев и получившемся внутреннем лесе, архитекторы упоминают принцип ‘invite nature in’ – и действительно, если посмотреть на окружение, здесь «лес» не просто сохраняют, огораживая: он «входит внутрь», поскольку границу между комплексом и внешней частью одичавшего питомника авторы сделали максимально проницаемой. Проще всего было оградить территорию со всех сторон домом-стеной, получив замкнутый квартал – рассказывают авторы; но они подошли к решению гибко и со стороны леса заменили дома-стены башнями, ориентированными строго по сторонам света, а значит, обращенным к границе-гипотенузе углами, широко раскрывая проходы внутрь и наружу. Так что и люди, и, условно говоря, деревья «входят» во двор: граница между ним и лесом прозрачна и получается похоже на какой-то из вариантов города-сада; равно как и на санаторий или на университетский кампус, где корпуса расставлены среди зарослей. Впрочем, здесь застройка плотнее и деревья не только приятны, но и полезны: помогают избежать взгляда окна-в-окна. Типология получилась смешанной: три секционных 7-этажных дома по внешним контурам и четыре 10-этажных башни внутри.
Жилой комплекс на улице Стрыйской в г. Львов. Схемы © Архиматика
Жилой комплекс на улице Стрыйской в г. Львов. Схемы © Архиматика
Жилой комплекс на улице Стрыйской в г. Львов. Парк. Проект, 2016 © Архиматика
Жилой комплекс на улице Стрыйской в г. Львов. Парк. Проект, 2016 © Архиматика
Жилой комплекс на улице Стрыйской в г. Львов. Двор. Проект, 2016 © Архиматика
Жилой комплекс на улице Стрыйской в г. Львов. Двор. Проект, 2016 © Архиматика

Надо сказать, что авторы не только уделили внимание проницаемости, или пористости своего квартала – возможности свободно пересечь его пешком в любом направлении – они также обосновали эту особенность теоретически, обратившись к прообразам центра города. Архитекторы проанализировали историческую часть Львова по двум параметрам: «отношение плотности застройки к пространствам улиц» и числа сквозных проходов с одной улицы на другую, позволяющих пройти город насквозь через арки, подворотни и проулки. И применили полученные характеристики к планировке своего, совершенно нового комплекса. Получается, что проект реагирует не только на нынешние и будущие особенности территории – архитекторы также прививают новому комплексу имманентные правила старого города, подобные урбанистическому генокоду, пересаживая их с центра на окраины. Вычисленные и заимствованные у охраняемого ЮНЕСКО, знаменитого исторического центра Львова особенности объемно-пространственного построения делают новый комплекс, строящийся по ту сторону советских микрорайонов, причастным старому городу неким скрытым образом. Генокод в данном случае удачное слово, поскольку архитекторы, говоря об использовании урбанистической подосновы, превращают свой ЖК в каком-то смысле в нового родственника исторического города.
Жилой комплекс на улице Стрыйской в г. Львов. Вид с высоты птичьего полета. Проект, 2016 © Архиматика
Жилой комплекс на улице Стрыйской в г. Львов. Вид с высоты птичьего полета. Проект, 2016 © Архиматика

Впрочем, параллели проведены не только скрытым текстом. Со старым городом перекликается также парцелляция застройки: не больше 20 м от подъезда до подъезда, разнообразие высот и фасадов квартально-секционной части. Фасады секций, которые будут выстроены одновременно, имитируют плотную естественную застройку городского центра – тоже современный приём, позволяющий, раздробив фронт фасада, сделать его соразмерным человеку. «Мы хотели, чтобы получилась своего рода мелкодисперсная система, которая отчасти напоминала бы историческую застройку и была бы сомасштабной, дробной и мелкой, но при этом современной», – рассказывает главный архитектор проекта Дмитрий Васильев.

Но авторы идут дальше актуального приема, выстраивая целую цепочку намеков на образность исторического Львова. К примеру, непринужденные вариации высоты секций – в полэтажа – напоминают силуэт зданий, обрамляющих туристическую площадь Рынок, где скаты кровель также ориентированы продольно, а ступеньки, образованные небольшими вариациями высоты домов на соседних владениях, близки по пропорциям к тому, что мы видим в «Леополь Тауне». Не то чтобы подобных ступенек не было в других местах и городах – но в данном случае сходство именно со Львовом подчеркивают мелочи: рисунок мансардных окон напоминает слуховые окна площади Рынка. Холодный зелёный цвет окисла меди и тёмно-бежевый известняк фасадов с полосатыми деревянными ставнями тоже напоминают центр города. Светлые фасады добавляют колористическую ноту, которая в данном случае завершает тему, напоминая, что в старом городе тёмно-каменные фасады чередуются со светлыми штукатурными. Один из завершающих штрихов – трубы, вернее намеренно похожие на них удлиненные выходы вентиляционных шахт. Вместе с мелкой брусчаткой благоустройства они завершают мизансцену параллелей с историческим Львовом, старательно балансирующую на грани узнаваемости прообраза, не переходя грань стилизации.
Жилой комплекс на улице Стрыйской в г. Львов. Двор. Проект, 2016 © Архиматика
Жилой комплекс на улице Стрыйской в г. Львов. Двор. Проект, 2016 © Архиматика
Жилой комплекс на улице Стрыйской в г. Львов. Террасы. Проект, 2016 © Архиматика
Жилой комплекс на улице Стрыйской в г. Львов. Террасы. Проект, 2016 © Архиматика

К реальности и современности нас возвращает множество актуальных приемов: сдвоенный ритм этажей, тяготеющая к holland wall живописная композиция окон, «обёртывание» башен оболочкой скатного силуэта, а также вставки травянисто-зелёных панелей и горизонтальные полоски тёмного камня, напоминающие дерево – они устанавливают образные связи уже не со Старым городом, а с ближайшим растительным окружением. И конечно же, признак современности – выступающие вперёд вертикали лестнично-лифтовых блоков с плоскими кровлями, также как и плоскости террас перед пентхаусами – в отличие от исторической застройки, где под скатами были чердаки, которые, как известно, сохраняют тепло, здесь треугольники верхних объёмов занимают двухэтажные квартиры.
Жилой комплекс на улице Стрыйской в г. Львов. Вид с высоты птичьего полета. Проект, 2016
Жилой комплекс на улице Стрыйской в г. Львов. Вид с высоты птичьего полета. Проект, 2016
© Архиматика
Жилой комплекс на улице Стрыйской в г. Львов. Проект, 2016 © Архиматика
Жилой комплекс на улице Стрыйской в г. Львов. Проект, 2016 © Архиматика

Среди предварительных вариантов проекта были и плоские, и скатные кровли. Но когда заказчики показали проекты фокус-группе, почти 99% опрошенных поддержали именно щипцовые силуэты как более уютные и «похожие на дом». «Мы не в первый раз строим здания со скатной кровлей. Но впервые я увидел, насколько по-разному люди реагируют на современные формы и на скатные кровли», – резюмирует Дмитрий Васильев. Другой, уже почти реализованный проект «Архиматики» со скатными кровлями – жизнерадостно раскрашенный «Комфорт Таун» в Киеве.

Сходство между ним и львовским «Леополь Тауном» достаточно ощутимы. В то же время, если архитектура киевского комплекса эмоционально рассчитана на образ «Европы вообще», то Львовский вытягивает из темы контекстуальные зацепки, привязывает свой романтический настрой к гению места, одновременно сохраняя некоторую «святочноть» целого – не зря все картинки зимние. Архитекторы рассматривают этот проект как попытку предложить городу не только очередной новый ЖК, но и определённую стратегию развития окружающей среды для полноценной жизни. Спальным районам пора просыпаться, в XXI веке они могут конкурировать качеством архитектуры с историческим центром города.