Размещено на портале Архи.ру (www.archi.ru)

02.12.2016

Большая «Ч» для Челябинска

Дарья Горелова
Объект:
Гостиничный комплекс и медиа-центр в Челябинске
Адрес:
Россия, Челябинск. ул. Братьев Кашириных
Мастерская:
ГрандПроектСити
Авторский коллектив:
Руководитель проекта: Сапричян К.В.
Архитекторы: Березин В., Зарубина А., Калинин А., Калинина В., Силачева И., Сиников Е.

Предложение Карена Сапричяна для Archchel 2020.

Гостиничный комплекс и медиа-центр в Челябинске. Проект, 2016 © ГрандПроектСити
Гостиничный комплекс и медиа-центр в Челябинске. Проект, 2016 © ГрандПроектСити

Проект бюро ГрандПроектСити Карена Сапричяна участвовал в открытом международном конкурсе Archchel 2020, результаты которого были объявлены недавно, 30 ноября. Всего на участие поступило 350 заявок. В итоге организаторы получили порядка 120 работ, посвященных трём темам: реконструкции городского аэропорта, благоустройству набережной реки Миасс и проекту строительства на её берегу конгресс-центра – в 2020 году он должен принять саммит стран Шанхайской организации сотрудничества, который планируется провести в Челябинске.

Бюро Карена Сапричяна работало над проектом конгресс-центра. Площадка, где он должен разместиться – пятно зелени между зданием цирка и мостом-развязкой через реку, продолжающим улицу братьев Кашириных. Исторический Челябинск – на другой стороне реки, а здесь, в основном, территория торговых комплексов и крупноватого постсоветского жилья.
Гостиничный комплекс и медиа-центр в Челябинске. Ситуационный план. Проект, 2016 © ГрандПроектСити
Гостиничный комплекс и медиа-центр в Челябинске. Ситуационный план. Проект, 2016 © ГрандПроектСити
Гостиничный комплекс и медиа-центр в Челябинске. Генеральный план. Проект, 2016 © ГрандПроектСити
Гостиничный комплекс и медиа-центр в Челябинске. Генеральный план. Проект, 2016 © ГрандПроектСити

Согласно ТЗ, в состав конгресс-центра должны были войти, помимо зала на 2500 мест, большая гостиница, офисы и медиа-центр – последний архитекторы ГрандПроектСити предложили разместить над водой, продублировав изгиб соседнего автомобильного моста широким серпом крытого общественного пространства, фактически – пешеходным мостом, переброшенным на «Остров-сад», с библиотекой, медиатекой и двусветным выставочным пространством внутри. Он ограждён несущей металлической фермой, а на изогнутом фасаде, обращенном к юго-западу, реке и парковому центру города, задумана открытая галерея. На острове от медиатеки начинается предложенный авторами проекта пешеходный маршрут: тонкий мост проходит вначале над водой, затем по противоположному берегу – примерно полкилометра до Кировского моста, и гуляющий возвращается на площадь конгресс-центра, пройдя под застеклёнными галереями окружающих её по периметру протяженных двухэтажных зданий.
Гостиничный комплекс и медиа-центр в Челябинске. Функциональная схема. Проект, 2016 © ГрандПроектСити
Гостиничный комплекс и медиа-центр в Челябинске. Функциональная схема. Проект, 2016 © ГрандПроектСити
Медиа-центр – мост. Гостиничный комплекс и медиа-центр в Челябинске. Проект, 2016 © ГрандПроектСити
Медиа-центр – мост. Гостиничный комплекс и медиа-центр в Челябинске. Проект, 2016 © ГрандПроектСити
Пешеходный мост, начинающийся от медиа-центра. Гостиничный комплекс и медиа-центр в Челябинске. Проект, 2016 © ГрандПроектСити
Пешеходный мост, начинающийся от медиа-центра. Гостиничный комплекс и медиа-центр в Челябинске. Проект, 2016 © ГрандПроектСити
Гостиничный комплекс и медиа-центр в Челябинске. Проект, 2016 © ГрандПроектСити
Гостиничный комплекс и медиа-центр в Челябинске. Проект, 2016 © ГрандПроектСити

Юго-западная часть зданий-галерей отдана офисам, восточная парковке, а ближе к медиа-мосту контур замыкает объём зимнего сада, который служит крытой общественной площадью, дополняющей в три раза более просторную открытую площадь. Вместе с мостом здания-галереи образуют в плане букву «Ч» – символический отклик на имя города, а фасады-фермы, по словам архитекторов, стали реакцией на полупромышленное окружение.
Гостиничный комплекс и медиа-центр в Челябинске. Вид с высоты птичьего полета. Проект, 2016 © ГрандПроектСити
Гостиничный комплекс и медиа-центр в Челябинске. Вид с высоты птичьего полета. Проект, 2016 © ГрандПроектСити
Гостиничный комплекс и медиа-центр в Челябинске. Вид с ул. Братьев Кашириных. Проект, 2016 © ГрандПроектСити
Гостиничный комплекс и медиа-центр в Челябинске. Вид с ул. Братьев Кашириных. Проект, 2016 © ГрандПроектСити

Собственно конгресс-холл в проекте занял северный угол территории: его оформленные крупным частоколом белых пластин разноуровневые скругления служат главным пластическим акцентом из оформляющих внутреннюю площадь.
Гостиничный комплекс и медиа-центр в Челябинске. Проект, 2016 © ГрандПроектСити
Гостиничный комплекс и медиа-центр в Челябинске. Проект, 2016 © ГрандПроектСити
Гостиничный комплекс и медиа-центр в Челябинске. Проект, 2016 © ГрандПроектСити
Гостиничный комплекс и медиа-центр в Челябинске. Проект, 2016 © ГрандПроектСити

Фасады 35-этажной башни гостиницы – тоже в основном белые, они состоят в основном из крупной белой сетки с широкими скосами, вертикальных пропорций, объединяющей по два этажа. Впрочем башня – не просто призма; она состоит из двух явно апеллирующих к фантазиям авангарда высоким и узким пластинам, повернутым на 180º друг относительно друга: один торец циркульно скруглен, другой прямоугольный. Башни соединены широкой стеклянной перемычкой, внизу на углах появляются крупные стеклянные «вырезы», – всё это делает башню стройной, похожей на маяк и – тоже – на букву «Ч».
Гостиничный комплекс и медиа-центр в Челябинске. Проект, 2016 © ГрандПроектСити
Гостиничный комплекс и медиа-центр в Челябинске. Проект, 2016 © ГрандПроектСити
Гостиничный комплекс и медиа-центр в Челябинске. Двор. Проект, 2016 © ГрандПроектСити
Гостиничный комплекс и медиа-центр в Челябинске. Двор. Проект, 2016 © ГрандПроектСити
Гостиничный комплекс и медиа-центр в Челябинске. Проект, 2016 © ГрандПроектСити
Гостиничный комплекс и медиа-центр в Челябинске. Проект, 2016 © ГрандПроектСити

Проект не вошёл в число призёров. «На мой взгляд к конкурсу вопросов больше, чем ответов, – говорит Карен Сапричян. – Главный вопрос: как жюри за несколько дней смогло рассмотреть такое количество проектов и согласовать своё общее решение».

Видео проекта:

Гостиничный комплекс и медиа-центр в Челябинске. Разрез и план 1 этажа гостиницы. Проект, 2016 © ГрандПроектСити
Гостиничный комплекс и медиа-центр в Челябинске. Разрез и план 1 этажа гостиницы. Проект, 2016 © ГрандПроектСити
Гостиничный комплекс и медиа-центр в Челябинске. План 2 этажа гостиницы. Проект, 2016 © ГрандПроектСити
Гостиничный комплекс и медиа-центр в Челябинске. План 2 этажа гостиницы. Проект, 2016 © ГрандПроектСити
Гостиничный комплекс и медиа-центр в Челябинске. План типового этажа гостиницы. Проект, 2016 © ГрандПроектСити
Гостиничный комплекс и медиа-центр в Челябинске. План типового этажа гостиницы. Проект, 2016 © ГрандПроектСити
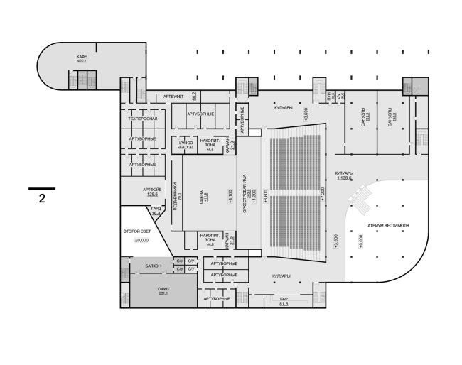
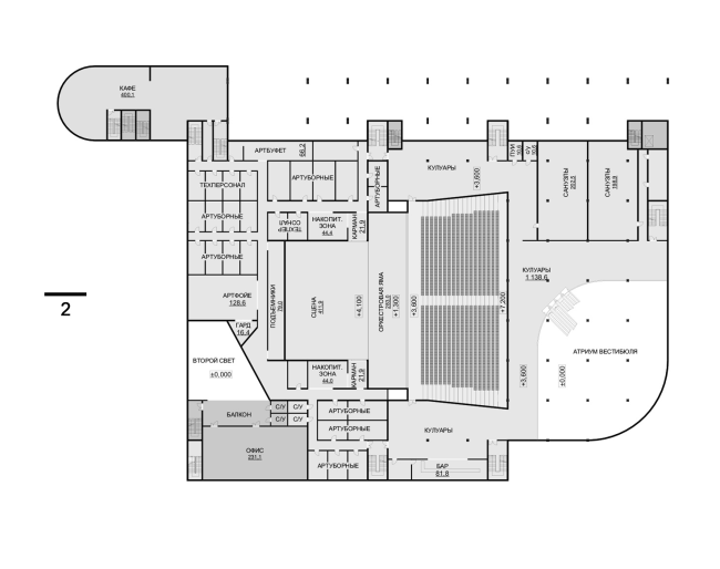
Гостиничный комплекс и медиа-центр в Челябинске. План 2 этажа медиа-центра. Проект, 2016 © ГрандПроектСити
Гостиничный комплекс и медиа-центр в Челябинске. План 2 этажа медиа-центра. Проект, 2016 © ГрандПроектСити
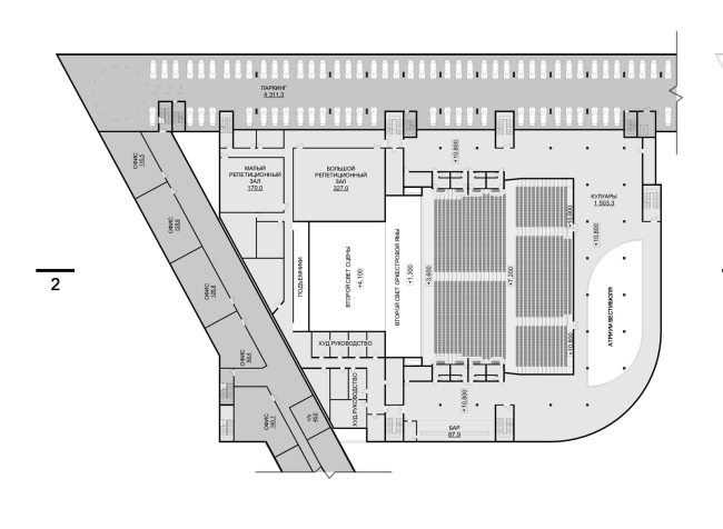
Гостиничный комплекс и медиа-центр в Челябинске. План 3 этажа медиа-центра. Проект, 2016 © ГрандПроектСити
Гостиничный комплекс и медиа-центр в Челябинске. План 3 этажа медиа-центра. Проект, 2016 © ГрандПроектСити
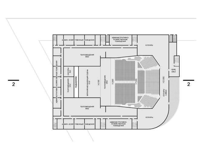
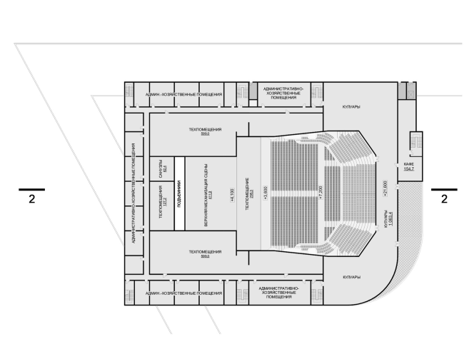
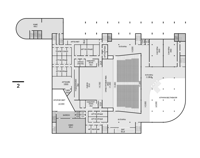
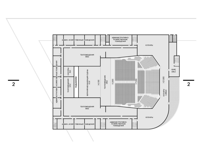
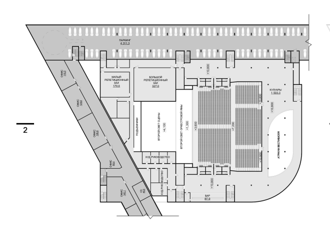
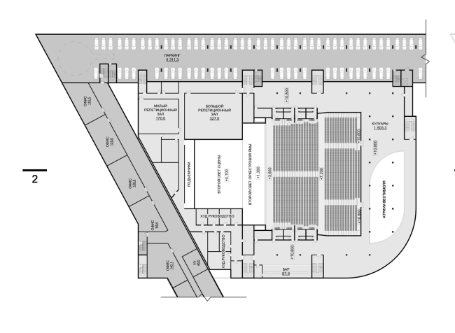
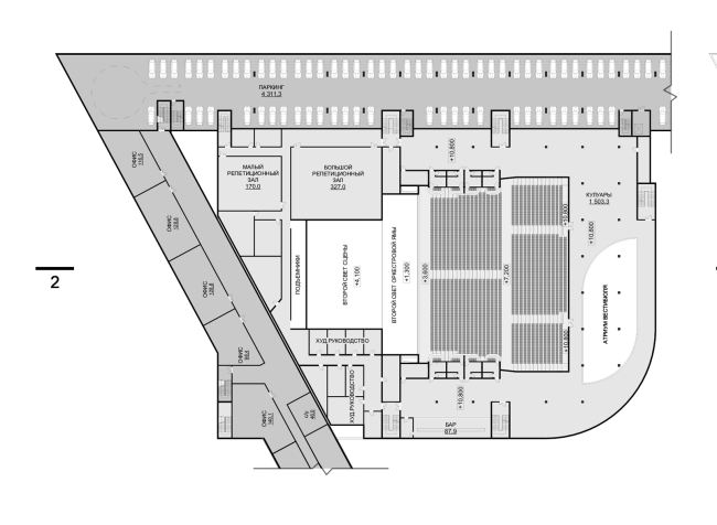
Гостиничный комплекс и медиа-центр в Челябинске. Разрез и план 1 этажа конгресс-холла. Проект, 2016 © ГрандПроектСити
Гостиничный комплекс и медиа-центр в Челябинске. Разрез и план 1 этажа конгресс-холла. Проект, 2016 © ГрандПроектСити
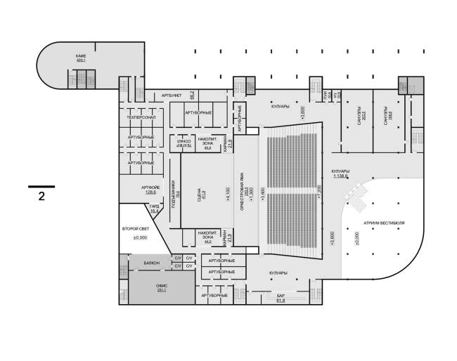
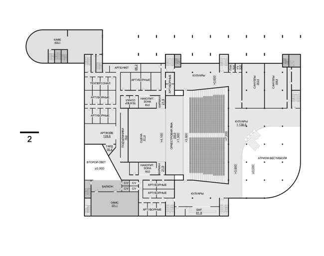
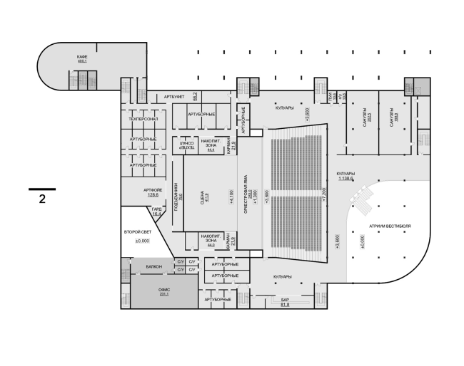
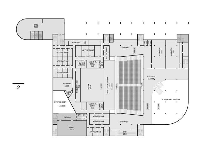
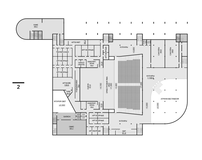
Гостиничный комплекс и медиа-центр в Челябинске. План 2 этажа конгресс-холла. Проект, 2016 © ГрандПроектСити
Гостиничный комплекс и медиа-центр в Челябинске. План 2 этажа конгресс-холла. Проект, 2016 © ГрандПроектСити
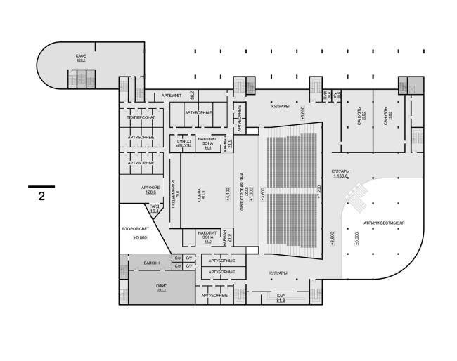
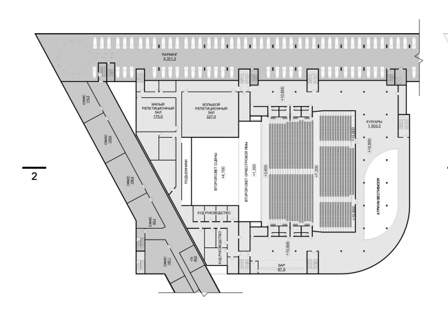
Гостиничный комплекс и медиа-центр в Челябинске. План 3 этажа конгресс-холла. Проект, 2016 © ГрандПроектСити
Гостиничный комплекс и медиа-центр в Челябинске. План 3 этажа конгресс-холла. Проект, 2016 © ГрандПроектСити
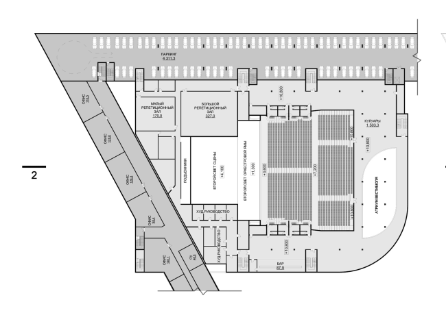
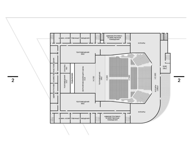
Гостиничный комплекс и медиа-центр в Челябинске. План 4 этажа конгресс-холла. Проект, 2016 © ГрандПроектСити
Гостиничный комплекс и медиа-центр в Челябинске. План 4 этажа конгресс-холла. Проект, 2016 © ГрандПроектСити