Размещено на портале Архи.ру (www.archi.ru)

30.11.2016

Под углом 8°

Юлия Тарабарина
Объект:
Деловой центр на улице Красина
Адрес:
Россия, Москва. улица Красина д. 3 стр. 1, 3, 4, 6, 7
Архитектор:
Владимир Плоткин
Мастерская:
ТПО «Резерв»
Авторский коллектив:
Архитекторы: В. Плоткин, А. Бородушкин, А. Чалов, М. Хазанов, О. Колбас, К. Толкачев, А. Лимаренко
Инженеры: И.Курносенко, В.Андреев, А.Уцеров

 

Новое здание на улице Красина легко и ясно организует как самого себя, так и пространство вокруг, непринуждённо играя с углами и отражениями.

Деловой центр на улице Красина; вид с противоположной стороны улицы. Фотография © Алексей Народицкий, 2016
Деловой центр на улице Красина; вид с противоположной стороны улицы. Фотография © Алексей Народицкий, 2016

Офисное здание на улице Красина видно из машины, едущей по внешней стороне Садового кольца напротив Патриарших: графичная решётка фасада хорошо, хотя мимолётно, читается в створе улицы. Его появлению предшествовал проведённый заказчиком закрытый конкурс и споры относительно сноса конструктивистского здания склада, построенного архитектором Николаем Тихомировым, автором путеводителя по русским усадьбам, в 1930 году для фабрики «Союз». Вопрос дважды выносили на московские комиссии и в 2013 с небольшим перевесом голосов 10 к 7 решение о сносе приняли. «Когда меня позвали участвовать в конкурсе, я сразу же отказался, поскольку знал, что на участке стоит конструктивистский дом, – рассказывает Владимир Плоткин. – Но потом мне показали список участников, где было много уважаемых коллег, и разрешение на снос, подписанное, в том числе, и градозащитниками. В конце концов мы решили поучаствовать в конкурсе, предложили проект и как-то быстро выиграли. Даже не могу сказать, что я этому рад, поскольку обвинения в разрушении здания 1930-х достались мне, хотя протоколов я и не подписывал». Тут сложно примкнуть к какой-либо позиции: с одной стороны, здание Тихомирова было сложено из шлакоблоков, к тому же это был склад, и в нём производили копирку, а это, по словам инвестора, вредное производство. Достаточно очевидно, что памятник конструктивизма не был самым ярким его представителем, хотя конструктивизм сам по себе ценен; с другой стороны, винить во всем только архитекторов, как-то – очень уж прямолинейно, что ли. К тому же это не первый конкурс на участок с конструктивистским домом: был, к примеру, конкурс для Белорусской площади, в нём участвовало много именитых архитекторов. А новое здание вписалось в контекст довольно удачно, и мы сейчас рассматриваем то, что получилось, а не предшествующий сюжет.

Участок в плане похож на силуэт тряпичного ветроуловителя: тонкая короткая ножка уходит вглубь квартала, а треугольный, заострённый на конце «флажок» вытянут вдоль улицы. Во дворе «под флажком» почти вплотную к границам стоят два жилых дома, бывших доходных начала XX века – следовательно, параметры инсоляции и требования пожарных проездов довольно жёстко определили границы пятна застройки: тоже Г-образные, с уступом на углу снаружи и небольшим утолщением в его пазухе внутри двора.
Деловой центр на улице Красина. Генплан © ТПО «Резерв»
Деловой центр на улице Красина. Генплан © ТПО «Резерв»
Деловой центр на улице Красина. Генплан с анализом ситуации © ТПО «Резерв»
Деловой центр на улице Красина. Генплан с анализом ситуации © ТПО «Резерв»

На устроенный заказчиком конкурс архитекторы ТПО «Резерв» предложили несколько очень разных вариантов, но победил и был в итоге реализован почти без изменений самый первый, простой, строгий и ясный. Здание состоит из двух объёмов: один, восьмиэтажный и определённо главный, вытянут вдоль улицы. Сдвоенный ритм его окон превращает фасад в четырёхярусный, условно наследуя таким образом ритмику конструктивистского здания – а оно было четырёхэтажным – и в то же время перекликаясь с двухчастными окнами соседнего дома на углу Садовой-Кудринской, построенного в 1997, но интерпретирующего соседний фасад дома начала XX века.
Деловой центр на улице Красина; вид с противоположной стороны Садового кольца. ТПО «Резерв», реализация, 2016. Фотография © Юлия Тарабарина, Архи.ру
Деловой центр на улице Красина; вид с противоположной стороны Садового кольца. ТПО «Резерв», реализация, 2016. Фотография © Юлия Тарабарина, Архи.ру

Главная тема уличного фасада – рельефный, сантиметров 30 в глубину, рисунок тонких межоконных простенков и столь же тонких горизонталей межэтажных тяг. Проёмы получаются очень вертикальными, узкими – так, что в перспективе улицы мы почти даже не видим стёкол между каменными рёбрами. Объёмный рисунок этих рёбер, с одной стороны, проявляет, а точнее – рисует, изображает глубину окон, приятную для измученных плоскими фасадами глаз наших современников и попадающую в резонанс с глубиной, принятой в соседних домах столетней давности. Но здесь – с одной стороны, толщина стены реальная и объемная, а с другой стороны все перемычки тонкокостные, стены как таковой почти нет, а есть частый штакетник с очень жёсткой, почти иофановской, да простят мне это сравнение, геометрией. Строгая штриховка каменных рёбер заставляет собраться, сконцентрироваться даже при взгляде на неё – не чета своеобычной вольности московской пластики, этот фасад несёт в себе сильнейший дисциплинирующий потенциал. Как будто расчерчивает воздух перед собой на стройные, строгие ячейки. Тем же пропорциям подчинены три других фасада: два торцевых и тыльный, но они не столь объёмны и поддерживают тот же ритм проще и графичнее, подчёркивая своё подчинённое положение.
Деловой центр на улице Красина; вид со стороны Зоологической улицы вечером. Фотография © Алексей Народицкий, 2016
Деловой центр на улице Красина; вид со стороны Зоологической улицы вечером. Фотография © Алексей Народицкий, 2016
Деловой центр на улице Красина; вид со стороны Садового кольца. Фотография © Алексей Народицкий, 2016
Деловой центр на улице Красина; вид со стороны Садового кольца. Фотография © Алексей Народицкий, 2016
Деловой центр на улице Красина; дворовый фасад и выезд. Фотография © Алексей Народицкий, 2016
Деловой центр на улице Красина; дворовый фасад и выезд. Фотография © Алексей Народицкий, 2016
Деловой центр на улице Красина; уго-восточный угол, обращенный к Садовому кольцу. ТПО «Резерв», реализация, 2016. Фотография © Юлия Тарабарина, Архи.ру
Деловой центр на улице Красина; уго-восточный угол, обращенный к Садовому кольцу. ТПО «Резерв», реализация, 2016. Фотография © Юлия Тарабарина, Архи.ру

Но, задав строжайший модуль, Владимир Плоткин не был бы собой, если бы не начал оживлённый разговор в его рамках. Во-первых, лента верхнего яруса выше остальных, она захватывает и пол седьмого этажа, и потолок восьмого – это рассчитано на взгляд снизу, аттик должен быть выше остальных этажей, чтобы не казаться маленьким из-за перспективного сокращения. Далее, не вся сетка фасада равномерна. Часть окон объединена по два – так возникают пятна большей проницаемости; три вертикальных проёма глухие – как будто нажаты три клавиши на фортепьяно или даже точнее – выбиты три знака на перфокарте. Глубокая, хотя и узкая прорезь над входом становится главным акцентом в лаконичном оживлении фасада.
Деловой центр на улице Красина; вид со стороны Садового кольца. ТПО «Резерв», реализация, 2016. Фотография © Юлия Тарабарина, Архи.ру
Деловой центр на улице Красина; вид со стороны Садового кольца. ТПО «Резерв», реализация, 2016. Фотография © Юлия Тарабарина, Архи.ру
Деловой центр на улице Красина; вид со стороны Зоологической улицы. ТПО «Резерв», реализация, 2016. Фотография © Юлия Тарабарина, Архи.ру
Деловой центр на улице Красина; вид со стороны Зоологической улицы. ТПО «Резерв», реализация, 2016. Фотография © Юлия Тарабарина, Архи.ру

Хотя не последним. Фасад решён в двух цветах камня: светлого, почти белого цвета слоновой кости – и тёмного, чей цвет архитекторы, по их собственному признанию, планировали как более глубокий и контрастный, чем получившийся в итоге серый. Решётка центральной части фасада тёмная, а главный угол здания, обращённый к Садовому кольцу, – светлый, от его широкой вертикали начинается лента обрамления, которая опоясывает тёмное пятно, окружает его как плоская рамка, заворачиваясь над входом в угловатый знак вопроса, похожий на элемент пиксельной графики.

Далее. Решётка главного фасада строгая, но не прямая. Улица Красина перед юго-восточным углом здания немного поворачивает к востоку: архитекторы «поймали» угол поворота – 8 градусов, и повернули под тем же углом южную часть главного фасада, отреагировав на особенность окружения, а точнее даже прорастив её в объеме здания. Разумеется, этого можно было не делать – но таковы особенности архитектуры, реагирующей на контекст: она отслеживает все возможные «ниточки» окружения, делая их предметом размышления, выращивая из них собственную пластику. Дом вполне мог быть прямым, но стал домом на повороте. Теперь даже мимолётного взгляда со стороны Садового кольца достаточно, чтобы понять: улица здесь поворачивает, а здание оформляет поворот как подобие кулис.
Деловой центр на улице Красина; вид с противоположной стороны Садового кольца. Фотография © Алексей Народицкий, 2016
Деловой центр на улице Красина; вид с противоположной стороны Садового кольца. Фотография © Алексей Народицкий, 2016
Деловой центр на улице Красина; вид с Малой Бронной. Фотография © Алексей Народицкий, 2016
Деловой центр на улице Красина; вид с Малой Бронной. Фотография © Алексей Народицкий, 2016

Но и поворачивает оно не то чтобы равномерно. Первые семь метров от угла выстроены вдоль оси, ведущей к Садовому, на всю высоту. Светлый камень нижнего этажа образует глухую стену – цоколь, чем-то, возможно, похожий на белокаменные цоколи московского ампира; а может быть и нет. Смотрим дальше вдоль улицы: вся верхняя часть фасада поворачивает и выстраивается уже вдоль следующей оси, а два нижних, цокольных этажа – нет, они продолжают углубляться по косой, плавно врезаясь в объём, и на срезе образуется ряд стройных пилонов – поверхность более проницаемая, поскольку между опорами стекло, и в то же время ведущая нас ко входу, предлагая свернуть вдоль строя опор левее. Так как верхние этажи уже следуют другой оси, то над головой идущего образуется плавно расширяющаяся треугольная консоль: от дождя она не может защитить, но едва уловимый эффект защищенности, принадлежности этого небольшого участка зданию или даже микро-площади перед ним – даёт. Кроме того под консолью образуется тень углубления, прорастающее затем вверх вырезом-лоджией над входом.
Деловой центр на улице Красина; вход, вид со стороны Садового кольца. Фотография © Алексей Народицкий, 2016
Деловой центр на улице Красина; вход, вид со стороны Садового кольца. Фотография © Алексей Народицкий, 2016

Ряд пилонов светлого камня, подводящий нас ко входу, имеет пару с противоположной стороны, во дворе: здесь объём скруглён и образует в нижних этажах острый нос практического назначения: он расширяет раструб для выезда машин. Данный «нос» для прохожих будет почти не заметен, но образует красивый лепесток на плане, наводит на мысли о конструктивистских прообразах, и делает эту часть здания, в целом, по-видимому, внутри очень светлого из-за обилия окон, почти прозрачной на просвет.
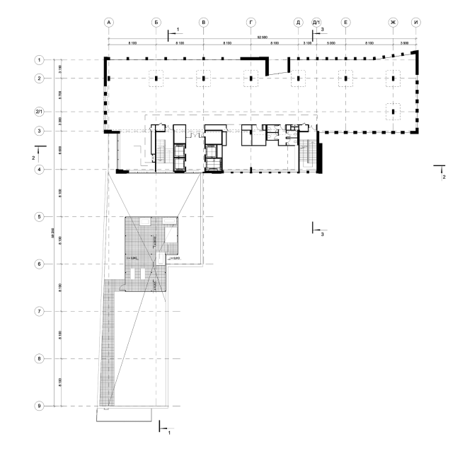
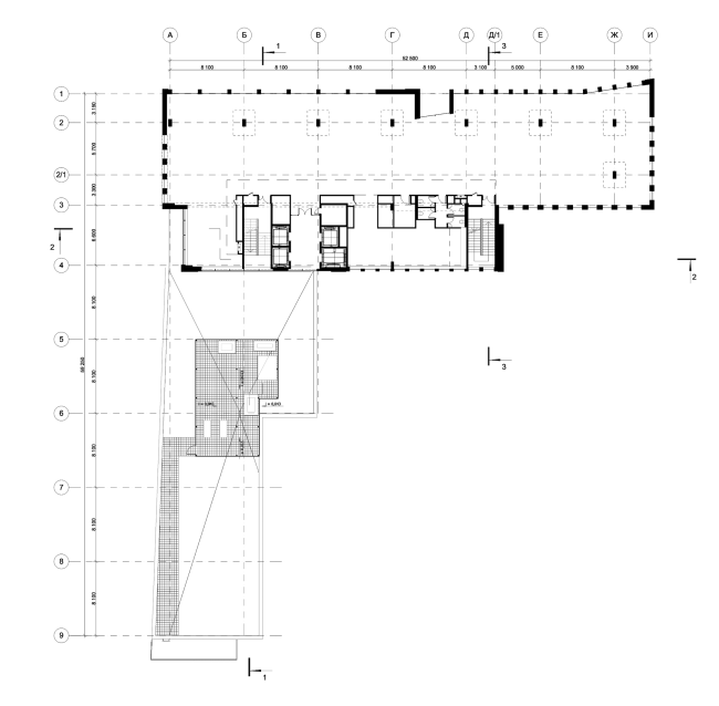
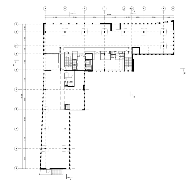
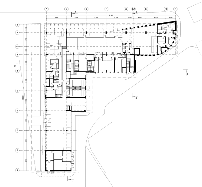
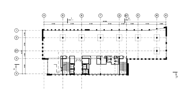
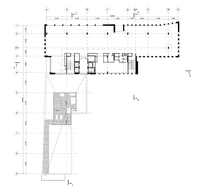
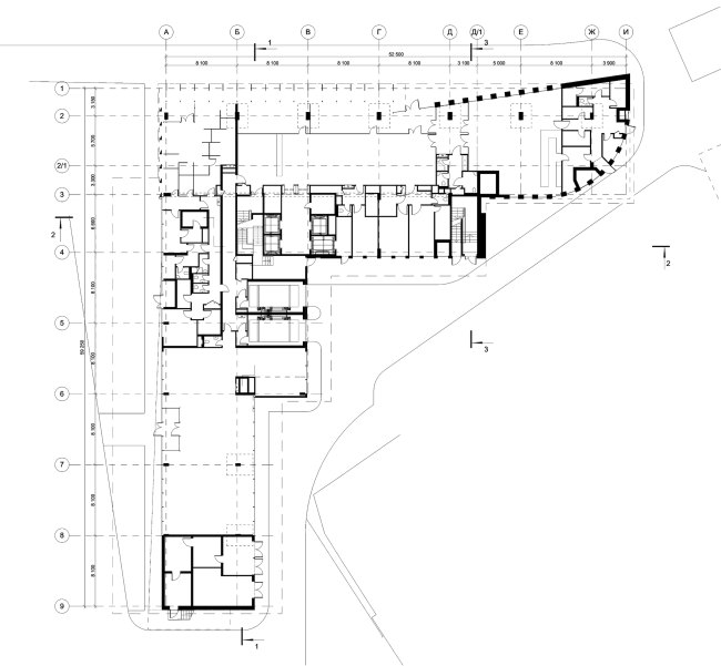
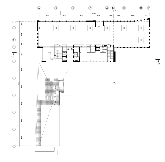
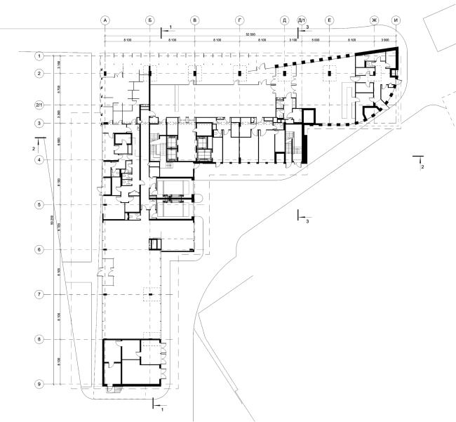
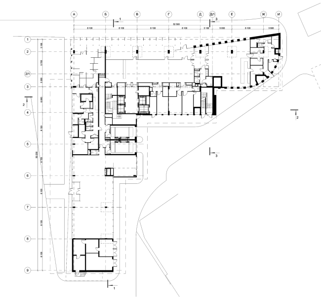
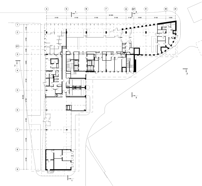
Деловой центр на улице Красина. План 1 этажа © ТПО «Резерв»
Деловой центр на улице Красина. План 1 этажа © ТПО «Резерв»
Деловой центр на улице Красина; торцевой фасад и выезд. Фотография © Алексей Народицкий, 2016
Деловой центр на улице Красина; торцевой фасад и выезд. Фотография © Алексей Народицкий, 2016
Деловой центр на улице Красина; пилоны перед входом. ТПО «Резерв», реализация, 2016. Фотография © Юлия Тарабарина, Архи.ру
Деловой центр на улице Красина; пилоны перед входом. ТПО «Резерв», реализация, 2016. Фотография © Юлия Тарабарина, Архи.ру

Но вернемся и пойдём дальше вдоль главного фасада. За узкой и высокой, как всё здесь, нишей входа начинается самое интересное: здесь вдоль тротуара устроена пешеходная галерея, которая опирается на ряд плоских металлических столбов, облицованных зелёным стеклом. Столбы широкие и узкие, их оси направлены перпендикулярно фасаду и получается, что внутри галереи мы идём за широкой завесой травянисто-зелёного – попадание в цвет хорошей газонной травы очень точное – стекла. Улица за чередой зелёных пластин почти не ощущается, хотя выйти наружу можно в любой момент. Более того. С другой стороны – стекло вестибюля, в нём отражается и стекло колонн, и даже гранитные квадратики вымостки. Из-за отражения галерея кажется шире, во всяком случае исчезает чувство стеснённости.
Деловой центр на улице Красина; галерея, взгляд в сторону Садового кольца. Фотография © Алексей Народицкий, 2016
Деловой центр на улице Красина; галерея, взгляд в сторону Садового кольца. Фотография © Алексей Народицкий, 2016
Деловой центр на улице Красина; галерея, взгляд в сторону Зоологиеской улицы. Фотография © Алексей Народицкий, 2016
Деловой центр на улице Красина; галерея, взгляд в сторону Зоологиеской улицы. Фотография © Алексей Народицкий, 2016
Деловой центр на улице Красина. ТПО «Резерв», реализация, 2016. Фотография © Юлия Тарабарина, Архи.ру
Деловой центр на улице Красина. ТПО «Резерв», реализация, 2016. Фотография © Юлия Тарабарина, Архи.ру

Идея уличной галереи, подобной античному портику и парижской улице Риволи, не нова – больше того, это одна из больных тем архитектуры, и не только московской, примерно с 1980-х, «после Бофилла». Однако не везде и не всем её удается сделать хорошо. Бывает, что получается темно, низковато и не везде выберешься, поскольку снаружи, бывает, устанавливают парапет. А если магазины не вселятся и витрины не зажгутся так и вообще беда. Здесь всё иначе – будучи едва построенной и без подсветки эта галерея высока, светла, прозрачна и просторна. Взгляд же с противоположной стороны, условно говоря, со стороны Зоологической улицы, позволяет оценить перспективную интригу: ряды стеклянных колонн завершаются белыми, каменными пилонами, чей ряд поворачивает влево, замыкая даль, но позволяя оценить графичный ритм множества вертикалей, похожих на натянутые струны.

Зелёная галерея – главный акцент, свежий штрих, искупающий нейтральность серого цвета и жестковатость ритма. Она как камень на перстне: может быть, может не быть, но с ним лучше. Конечно, галерея – урбанистический приём. Но вот что интересно: участок тесен и проекте почти нет дополнительного благоустройства: скамеек, фонарей, высаженных деревьев и кустов. Но вот небольшая деталь – кусочек портика вдоль улицы, даже не на всю длину фасада – закрывает тему; пилонады и галереи вполне достаточно для того, чтобы здание взаимодействовало с городом на уровне пешехода. К тому же зелёное стекло прекрасно перекликается со сквером вдоль улицы напротив и с газоном по соседству, связывает их в единый смысловой узел.
Деловой центр на улице Красина; галерея и вход. Фотография © Алексей Народицкий, 2016
Деловой центр на улице Красина; галерея и вход. Фотография © Алексей Народицкий, 2016

Нечто похожее, и в то же время другое наблюдаем, завернув за угол. Здесь в глубину квартала уходит уже не восьми-, а трёхэтажный корпус. В отличие от главного фасада, в вертикализме, сдвоенных окнах и урбанистических штрихах котором хорошо ощутимы тенденции современности, этот длинный корпус остро напоминает о классике модернизма, прежде всего 1980-х. Здесь больше стекла, разделённого вертикалями треугольного сечения из тёмной разновидности камня, который здесь почему-то приобретает тёплый оттенок. Такие рёбра, немного похожие на зубья механизма или на лёгкие, тонкие контрфорсы – любимый приём модернизма, наводящий почему-то на мысли о здании ИНИОНа. А ведь и строй пилонады-галереи главного фасада тоже напоминает решение нижнего этажа здания Института информации. Уж не примелькался ли в новостях в период проектирования? Ммм... или авторы зашифровали в своём здании память об ИНИОНе, а ключом работает тот самый вопросительный знак на фасаде? Впрочем, приёмы – базовые, их можно встретить в разных зданиях 1980-х, и для проектов Владимира Плоткина они в целом характерны.
Деловой центр на улице Красина; вид с противоположной стороны улицы. Фотография © Алексей Народицкий, 2016
Деловой центр на улице Красина; вид с противоположной стороны улицы. Фотография © Алексей Народицкий, 2016
Деловой центр на улице Красина; дворовый фасад. ТПО «Резерв», реализация, 2016. Фотография © Юлия Тарабарина, Архи.ру
Деловой центр на улице Красина; дворовый фасад. ТПО «Резерв», реализация, 2016. Фотография © Юлия Тарабарина, Архи.ру
Деловой центр на улице Красина; стыковка 8-этажного и дворового корпусов. ТПО «Резерв», реализация, 2016. Фотография © Юлия Тарабарина, Архи.ру
Деловой центр на улице Красина; стыковка 8-этажного и дворового корпусов. ТПО «Резерв», реализация, 2016. Фотография © Юлия Тарабарина, Архи.ру
Деловой центр на улице Красина; дворовый фасад. ТПО «Резерв», реализация, 2016. Фотография © Юлия Тарабарина, Архи.ру
Деловой центр на улице Красина; дворовый фасад. ТПО «Резерв», реализация, 2016. Фотография © Юлия Тарабарина, Архи.ру
Деловой центр на улице Красина; дворовый фасад. ТПО «Резерв», реализация, 2016. Фотография © Юлия Тарабарина, Архи.ру
Деловой центр на улице Красина; дворовый фасад. ТПО «Резерв», реализация, 2016. Фотография © Юлия Тарабарина, Архи.ру
Деловой центр на улице Красина; треугольные пилоны дворового фасада. ТПО «Резерв», реализация, 2016. Фотография © Юлия Тарабарина, Архи.ру
Деловой центр на улице Красина; треугольные пилоны дворового фасада. ТПО «Резерв», реализация, 2016. Фотография © Юлия Тарабарина, Архи.ру
Деловой центр на улице Красина; треугольные пилоны дворового фасада. ТПО «Резерв», реализация, 2016. Фотография © Юлия Тарабарина, Архи.ру
Деловой центр на улице Красина; треугольные пилоны дворового фасада. ТПО «Резерв», реализация, 2016. Фотография © Юлия Тарабарина, Архи.ру
Деловой центр на улице Красина; вид на дворовый фасад с юго-запада. Фотография © Алексей Народицкий, 2016
Деловой центр на улице Красина; вид на дворовый фасад с юго-запада. Фотография © Алексей Народицкий, 2016
Деловой центр на улице Красина; дворовый фасад и трехэтажный корпус (слева). Фотография © Алексей Народицкий, 2016
Деловой центр на улице Красина; дворовый фасад и трехэтажный корпус (слева). Фотография © Алексей Народицкий, 2016

Верхние этажи длинного корпуса повторяют сюжет с консолью главного фасада, но на всю длину: вынос расширяется вглубь, оставляя на мостовой длинный незаснеженный треугольник. Углы немного варьируются: угол каменных вертикалей больше, чем на главном фасаде – 15º, а угол консоли совсем маленький – 2,5º, хотя её вынос доходит до приблизительно двух метров, что почти равно выступу над главным входом. На боковом фасаде тоже возникает игра с перспективой и отражениями: при взгляде с улицы заострённые каменные вертикали сливаются в монолит, который при движении вдоль живо раскрывается, дробится на тонкие полосы. Если же идти из глубины двора, то треугольная форма консоли усиливает перспективу, а стёкла первого этажа в бесснежное время отражают траву газонов – такую же яркую, как стекло галереи; между живой травой и травянистым стеклом возникает не только цветовая, но и неожиданная зазеркальная связь, как театр теней. К тому же в стекле длинного корпуса отражаются и неряшливые, но стилистически родственные окна Биомеда. Мы как будто попадаем в пространство модернистского города – тогда как пространство вдоль улицы обладает более традиционными характеристиками.
Деловой центр на улице Красина; вид из двора на здание Биомеда зимой. ТПО «Резерв», реализация, 2016. Фотография © Юлия Тарабарина, Архи.ру
Деловой центр на улице Красина; вид из двора на здание Биомеда зимой. ТПО «Резерв», реализация, 2016. Фотография © Юлия Тарабарина, Архи.ру
Деловой центр на улице Красина; вид из двора на здание Биомеда осенью. ТПО «Резерв», реализация, 2016. Фотография © Юлия Тарабарина, Архи.ру
Деловой центр на улице Красина; вид из двора на здание Биомеда осенью. ТПО «Резерв», реализация, 2016. Фотография © Юлия Тарабарина, Архи.ру

Поначалу здание выглядит строгим и простым, но содержит множество нюансов. Игра перспектив, линий, плоскостей и отражений, все эти тонкости – определённо главная часть проекта, наделённая акварельной эфемерностью, подвижностью прочтений, предназначенная для тех, кто готов замечать и разглядывать. Может быть даже жёсткость фасадной решётки главного корпуса нужна для того, чтобы удержать все эти нюансированные сюжеты в рамках. Сетка и вереницы скосов, прозрачность, плоскостность и объём, серьёзный серый цвет и легкомысленная живая зелень взаимодействуют как «сырое и варёное», придавая архитектуре офисного здания пластический смысл, который ему с прагматической точки зрения не нужен, но с эстетической полезен.
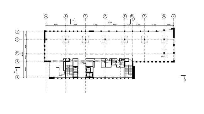
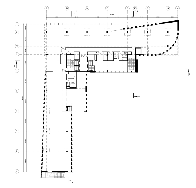
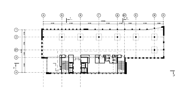
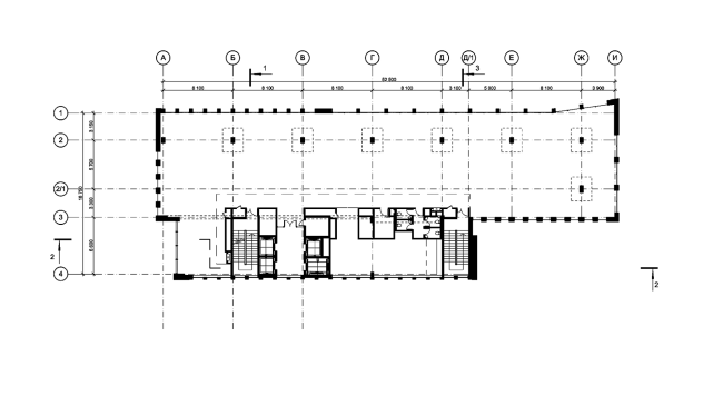
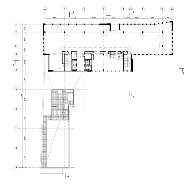
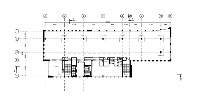
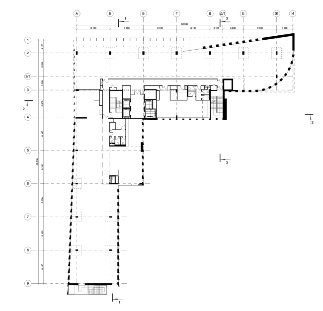
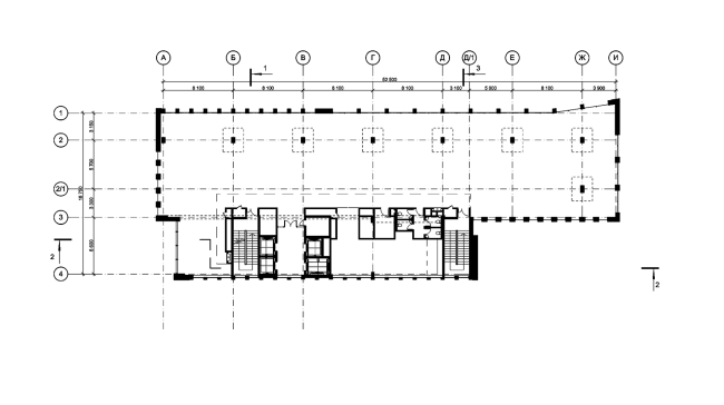
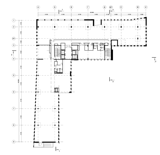
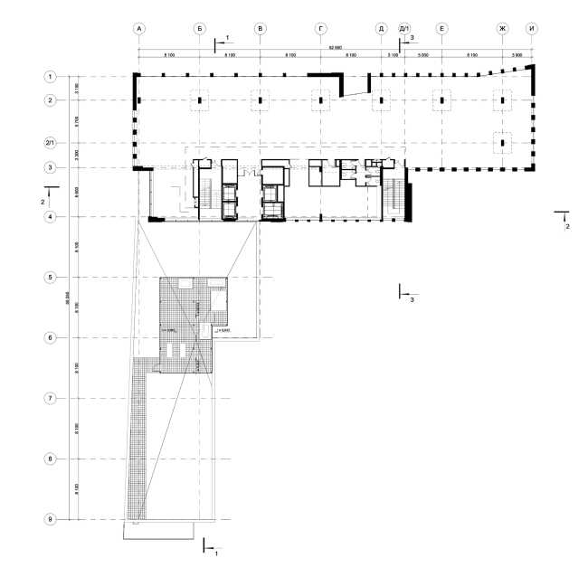
Деловой центр на улице Красина. План 2 этажа © ТПО «Резерв»
Деловой центр на улице Красина. План 2 этажа © ТПО «Резерв»
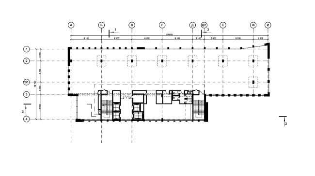
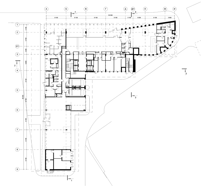
Деловой центр на улице Красина. План 3 этажа © ТПО «Резерв»
Деловой центр на улице Красина. План 3 этажа © ТПО «Резерв»
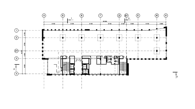
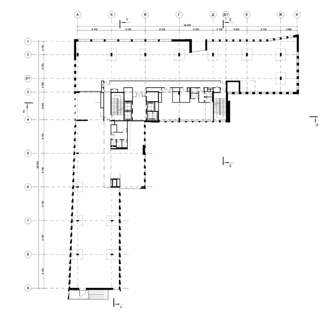
Деловой центр на улице Красина. План 4 этажа © ТПО «Резерв»
Деловой центр на улице Красина. План 4 этажа © ТПО «Резерв»
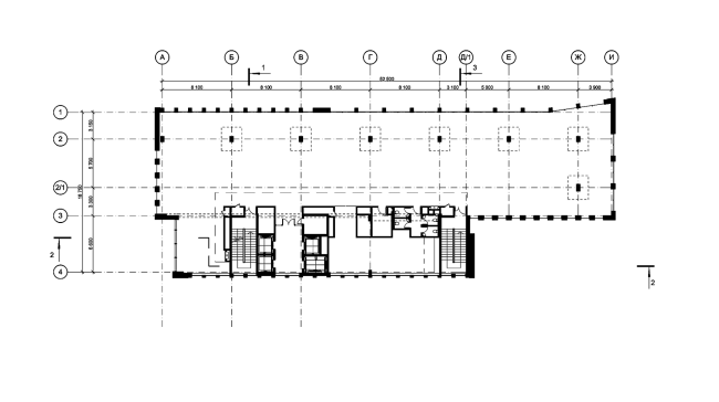
Деловой центр на улице Красина. План 8 этажа © ТПО «Резерв»
Деловой центр на улице Красина. План 8 этажа © ТПО «Резерв»
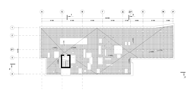
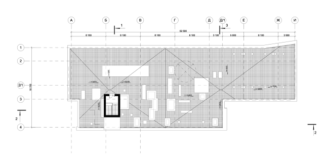
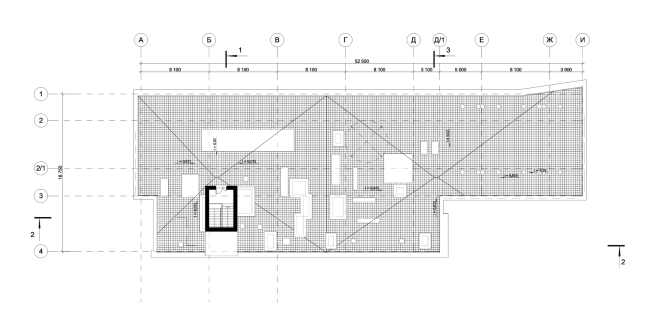
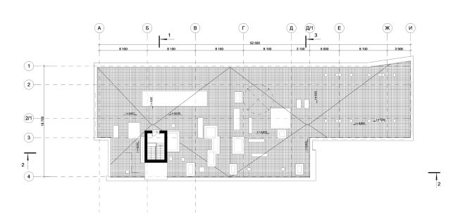
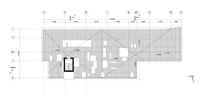
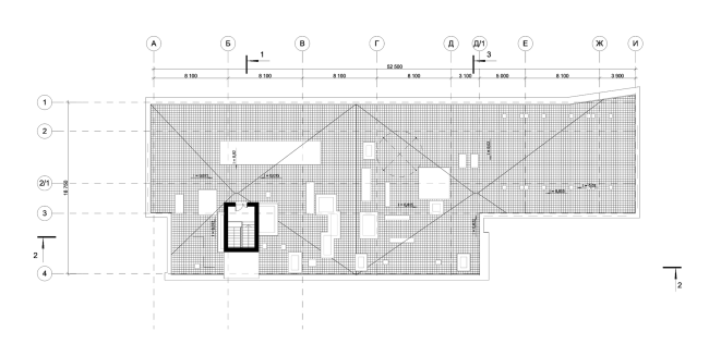
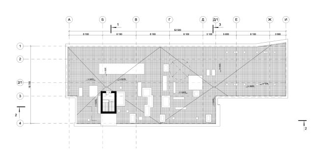
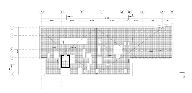
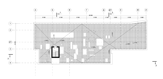
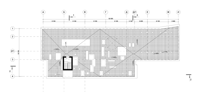
Деловой центр на улице Красина. План кровли © ТПО «Резерв»
Деловой центр на улице Красина. План кровли © ТПО «Резерв»
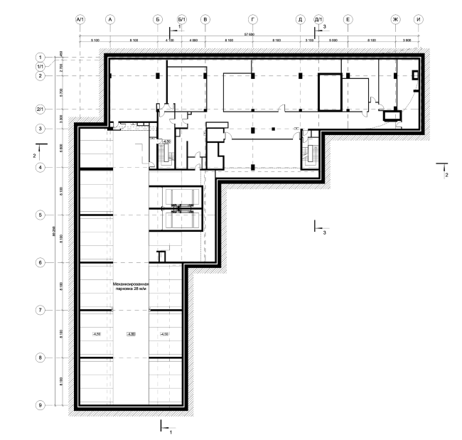
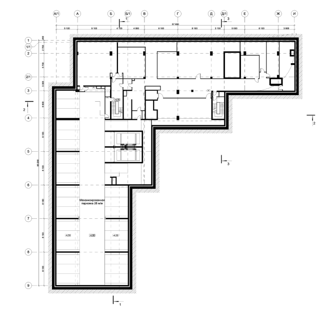
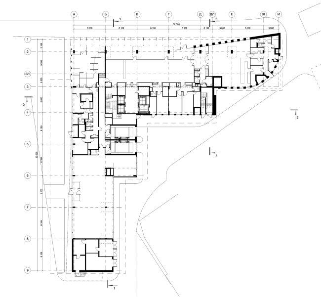
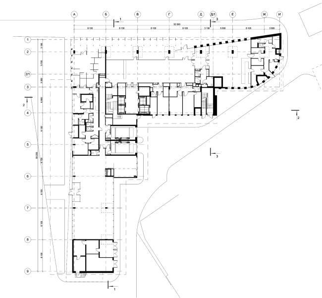
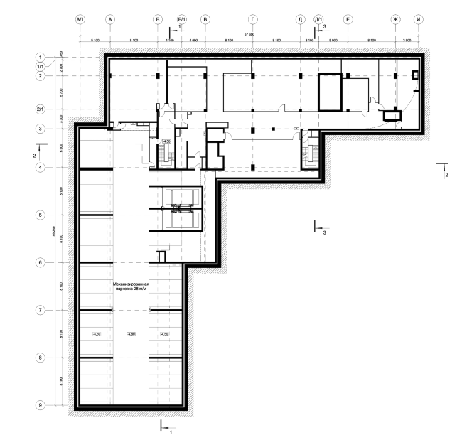
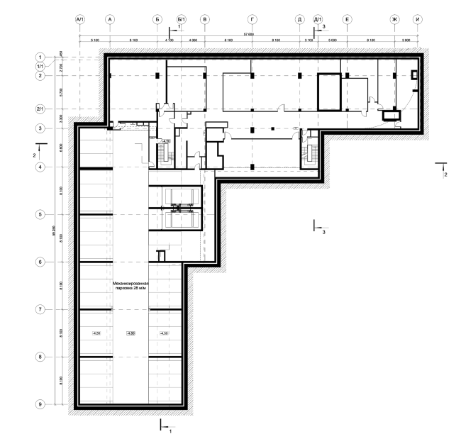
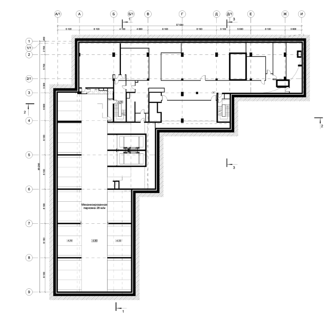
Деловой центр на улице Красина. План -1 этажа © ТПО «Резерв»
Деловой центр на улице Красина. План -1 этажа © ТПО «Резерв»
Деловой центр на улице Красина. Разрез © ТПО «Резерв»
Деловой центр на улице Красина. Разрез © ТПО «Резерв»
Деловой центр на улице Красина. Разрез © ТПО «Резерв»
Деловой центр на улице Красина. Разрез © ТПО «Резерв»
Деловой центр на улице Красина. Разрез © ТПО «Резерв»
Деловой центр на улице Красина. Разрез © ТПО «Резерв»