Размещено на портале Архи.ру (www.archi.ru)

08.12.2016

Подвижные башни

Алла Павликова
Объект:
Жилой дом на Борисовской улице (ЖК Измайлово Lane)
Адрес:
Россия, Москва. улица Борисовская, д. 4
Архитектор:
Андрей Асадов
Александр Асадов
Мастерская:
АБ ASADOV
Авторский коллектив:
Авторы: А.Р. Асадов, А.А. Асадов, Т. Чернова, Е. Дидоренко, при участии: О. Григорьева, Н. Пушкина, Е. Колобаева, Е. Синкевич

Архитектура дома на Борисовской улице хотя и не подчинена одному яркому жесту, но отчётливо-скульптурна: два дома-брата «делят» между собой образные приёмы соответственно характеру и контексту.

Жилой дом на Борисовской улице. Постройка, 2016 © Архитектурное бюро Асадова
Жилой дом на Борисовской улице. Постройка, 2016 © Архитектурное бюро Асадова

Молодая и амбициозная компания «Мангазея Девелопмент» обратилась в бюро Асадова с просьбой разработать качественный архитектурный проект ЖК «Измайлово Lane» при достаточно ограниченном бюджете. Дом, который удалось построить всего за три года, расположен на Борисовской улице, в тихом районе между метро Семёновская и Измаловский парк; сам парк совсем рядом, но отделён северо-восточной хордой. Вокруг, в основном – невысокие послевоенные кварталы, но есть и кирпичные многоэтажки постсоветского периода – одна из них, красно-оранжевого кирпича, расположилась как раз напротив нового дома. Участок был невелик – 0,4 га, и затеснён со всех сторон: с севера офисное здание, с юга жилой дом, позади детский сад. Под землёй проходит ветка метро, срезая угол и делая его непригодным для строительства – в итоге территория стала похожей на угловатую восьмёрку; к улице она выходит одним из узких торцов.
Жилой дом на Борисовской улице. Генеральный план © Архитектурное бюро Асадова
Жилой дом на Борисовской улице. Генеральный план © Архитектурное бюро Асадова
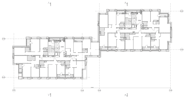
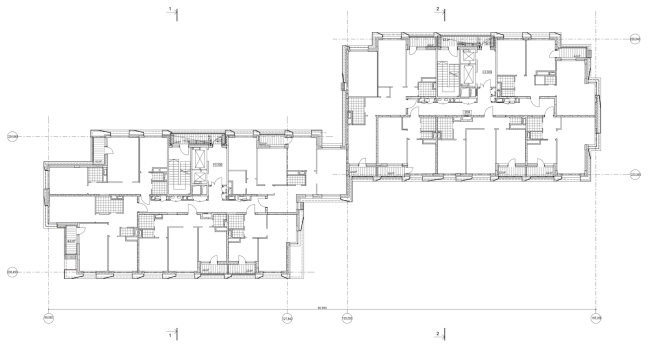
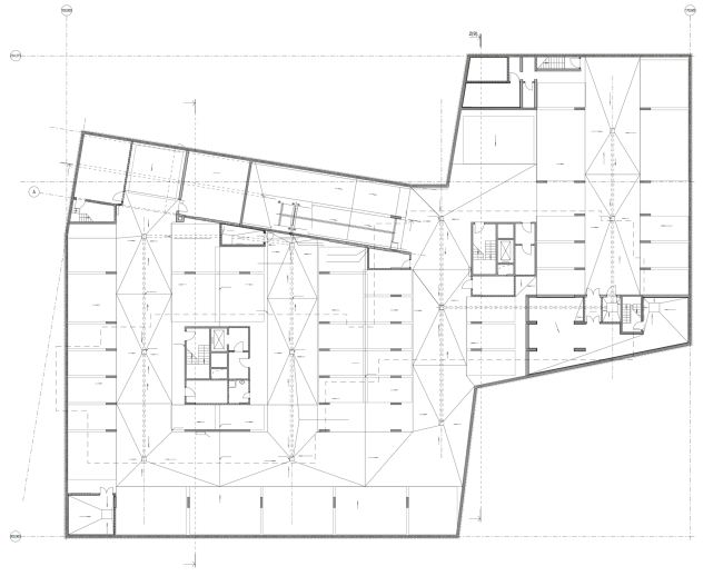
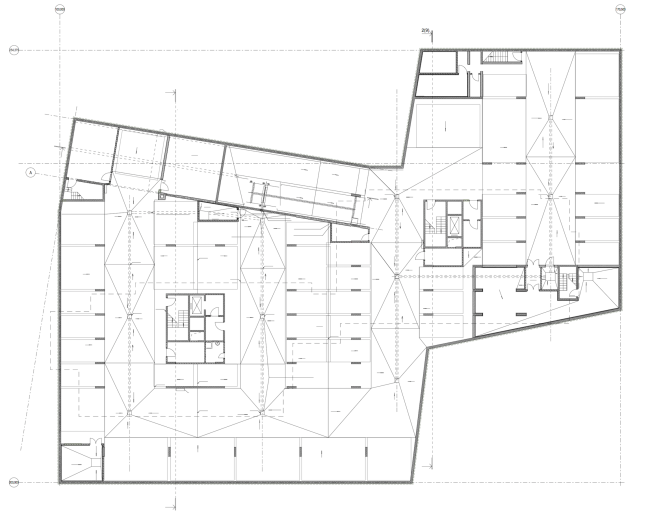
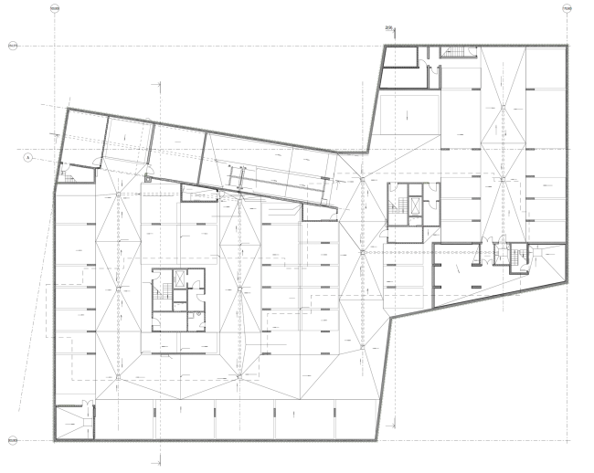
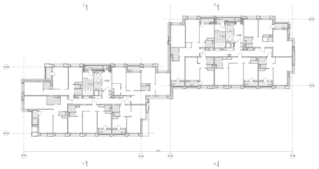
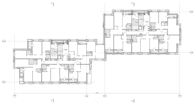
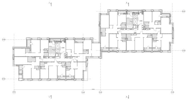
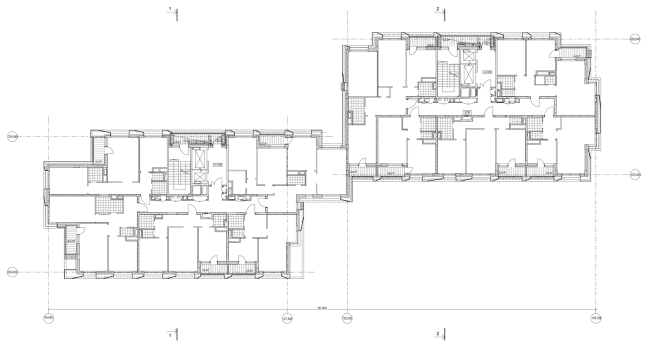
Жилой дом на Борисовской улице. План 2 этажа © Архитектурное бюро Асадова
Жилой дом на Борисовской улице. План 2 этажа © Архитектурное бюро Асадова

Контуры участка определили композицию. Поначалу вариантов было много: начиная от здания, вытянутого по косой, до экстравагантного эллипсоида. Но оптимальным оказалось классическое модернистское решение из двух 15-этажных, почти 50-метровых секций, поставленных с диагональным смещением и соединённых угловой «перемычкой», в которой тоже расположены жилые комнаты.

«Корпуса решены по-разному, но задуманы как две половинки одного целого, как Инь и Янь», – говорит Андрей Асадов. Действительно, корпуса похожи, почти равновелики – тыльный немного меньше – и даже используют одни и те же облицовочные материалы: керамогранит. Но не простой, к которому все чересчур привыкли, а – крупноформатный и заказанный на испанской фабрике Porcelanosa Grupo в трёх видах: гладкий светло-бежевый, глянцевый серый, в простенках между окнами, и рельефный, волнистый коричневый, напоминающий керамические панно 1970-х, но в то же время каким-то образом, непрямо, но созвучный простому кирпичу соседнего сталинского дома. Плиты волнистого керамогранита были изготовлены на заказ для этого дома: как правило подобные фактуры используют в интерьере, а здесь потребовалось фасадное качество. Авторы не прогадали – фактура замаскировала швы и надоедливые «лапки», на солнце она блестит почти как майолика.
Жилой дом на Борисовской улице. Постройка, 2016 © Архитектурное бюро Асадова
Жилой дом на Борисовской улице. Постройка, 2016 © Архитектурное бюро Асадова
Жилой дом на Борисовской улице. Постройка, 2016 © Архитектурное бюро Асадова
Жилой дом на Борисовской улице. Постройка, 2016 © Архитектурное бюро Асадова
Жилой дом на Борисовской улице. Постройка, 2016 © Архитектурное бюро Асадова
Жилой дом на Борисовской улице. Постройка, 2016 © Архитектурное бюро Асадова

Тыльный корпус почти полностью покрыт рельефными плитами, обращённая к улице башня – светлее, рельефнее и подвижнее, она уверенно берёт на себя роль парадного акцента, представляя дом городу. Но тема наложения нескольких видов материи – общая для обеих секций. Начав со сдвижки двух объемов, архитекторы активно развили тему на фасадах: спокойные плоскости мы найдем разве что на восточном торце дворовой секции. Все остальное превращено в крупную рельефную решетку, достаточно сильно выступающую вперёд от оконных плоскостей, разделённых тёмно-серыми алюминиевыми горизонталями широких межэтажных полос – пересекаясь с лестнично-лифтовыми вертикалями, то есть там, где стеклить не будут, полосы превращаются в открытые лоджии с прозрачными стеклянными бордюрами. На уровне квартир кое-где появляются решётчатые балкончики, они же ящики для кондиционеров. Это внутренняя структура дома, стеклянно-металлическая.
Жилой дом на Борисовской улице. Постройка, 2016 © Архитектурное бюро Асадова
Жилой дом на Борисовской улице. Постройка, 2016 © Архитектурное бюро Асадова

Внешняя напоминает экзоскелет – не то чтобы она сильно артикулирована, но вынесена наружу достаточно ощутимо, метра на полтора. Окна разделены между собой крупными вертикалями и собраны в стройные группы – даже не по два, а по три. Многие простенки снабжены широкими откосами контрастного цвета: белые штрихи оживляют массив коричневого корпуса, темные скосы берут на себя роль теней, артикулирующих светлый каркас объема, обращённого к улице. Кроме того, коричневый корпус получил светлый стилобат – архитекторы решили нижний ярус цельно в расчете на ближнее восприятие. Светлые стройные пилоны удерживают однотонную темно-коричневую пластину внутреннего корпуса.
Жилой дом на Борисовской улице. Постройка, 2016 © Архитектурное бюро Асадова
Жилой дом на Борисовской улице. Постройка, 2016 © Архитектурное бюро Асадова

Но на этом игра не заканчивается. Если вертикали дворового корпуса уверенно-статично собирают окна в крупные вертикали, то ритм парадного объёма намеренно сбит, подчинён крупному, в масштабе от одного до трёх этажей, зигзагу. На северном фасаде он скорее графичен, а на солнечном южном превращается в скульптуру: лента «зигзага» продолжена на гладкой стене уступа – как будто гигантские пальцы, лепя, перемещая, сдвигая объемы, деля их на пластины, оставили свои отпечатки. Это совершенно театральный приём, рассчитанный на «ах!» пешехода, идущего по улице и вдруг поднявшего глаза; словом, он выделяет дом в привычном окружении, превращает его в этакий восклицательный знак. Хотя контекстуальные ноты в нём тоже есть: как мы помним, тыльные фасады отдалённо, но перекликаются с кирпичом соседнего дома; светлый керамогранит в свою очередь перекликается с банковским зданием.
Жилой дом на Борисовской улице. Постройка, 2016 © Архитектурное бюро Асадова
Жилой дом на Борисовской улице. Постройка, 2016 © Архитектурное бюро Асадова
Жилой дом на Борисовской улице. Постройка, 2016 © Архитектурное бюро Асадова
Жилой дом на Борисовской улице. Постройка, 2016 © Архитектурное бюро Асадова
Жилой дом на Борисовской улице. Постройка, 2016 © Архитектурное бюро Асадова
Жилой дом на Борисовской улице. Постройка, 2016 © Архитектурное бюро Асадова
Жилой дом на Борисовской улице. Постройка, 2016 © Архитектурное бюро Асадова
Жилой дом на Борисовской улице. Постройка, 2016 © Архитектурное бюро Асадова
Жилой дом на Борисовской улице. Постройка, 2016 © Архитектурное бюро Асадова
Жилой дом на Борисовской улице. Постройка, 2016 © Архитектурное бюро Асадова

В игре поиска равновесия между углублёнными и выступающими частями легко угадывается приём, любимый архитекторами бюро Асадова. Стоит, к примеру, вспомнить недавно реализованный проект жилого комплекса на Нахимовском проспекте, напоминающий летучий корабль с многочисленными смещенными друг относительно друга палубами. В случае с домом на Борисовской смещение не столь утрировано, но пересечение идей и их эволюция очевидны.

Квартирография комплекса умеренная: от 45 до 90 м2, от одной до трёх комнат, никаких студий или квартир побольше, хотя каркасная конструкция без несущих внутренних стен позволяет объединять квартиры на этаже. В то же время взаимное смещение корпусов и их непростые контуры позволили устроить, к примеру, в перемычке, которой уличная секция примыкает к дворовой, гостиную со сквозным светом – с окнами на двух противоположных стенах комнаты. Угловые юго-западные окна, хоть их и немного, ловят весь спектр лучей солнца, клонящегося к закату: с верхних этажей отсюда будет, вероятно, видна Вокресенская церковь в Семеновском сквере. Два других стеклянных угла – выступы зигзагообразных стен гостиных – обращены к парку и Измайловскому острову с его собором, соседним теремом и уже старому комплексу высотных гостиниц. Каждая квартира получила застеклённую лоджию – небольшие, снаружи они выглядят почти как окна, и к ним же, в основном, прилагаются внешние ящики для кондиционеров. В коридорах – а на каждом этаже по 4 квартиры – устроены кладовки для жильцов. В одном, пятиметровой высоты ярусе подземной парковки разместилась двухуровневая электрогидравлическая система Liftparker Mobil немецкой фирмы Nussbaum, рассчитанная на 140 машин.

С не меньшим вниманием архитекторы, сопровождавшие проект на всех его стадиях, подошли и к решению дворовой территории. Двора как такового здесь нет – лишь свободное пространство вокруг башен, чуть больше перед продольными фасадами. Но каждый метр досконально продуман, а потому, несмотря на то, что дом достроили только в конце лета, двор уже выглядит обжитым. У подъездов – зелёные газоны и скамейки встроены в белые параллелепипеды клумб, отчего цветы оказываются почти на уровне глаз. По периметру крупномерные деревья. Широкая, полосато мощёная дорожка вокруг дома служит для прогулок и по совместительству пожарным проездом. Скамейки с её внешней стороны встроены в зелёную обваловку, которая отделяет участок от соседей – кажется, что они врезаны в склон холма. Детская площадка разместилась в углу, ближе к детскому саду, и обнесена живой изгородью. Даже на кровле въезда в подземную парковку архитекторы устроили альпийскую горку с беседкой – своего рода второй уровень двора.
Жилой дом на Борисовской улице. Постройка, 2016 © Архитектурное бюро Асадова
Жилой дом на Борисовской улице. Постройка, 2016 © Архитектурное бюро Асадова
Жилой дом на Борисовской улице. Постройка, 2016 © Архитектурное бюро Асадова
Жилой дом на Борисовской улице. Постройка, 2016 © Архитектурное бюро Асадова
Жилой дом на Борисовской улице. Постройка, 2016 © Архитектурное бюро Асадова
Жилой дом на Борисовской улице. Постройка, 2016 © Архитектурное бюро Асадова

«Заказчик смело поддерживал идеи и предложения архитекторов, – рассказывает Андрей Асадов, руководитель бюро и один из авторов проекта. – В итоге проект удалось реализовать всего за три года – причём в точном соответствии с авторским замыслом».
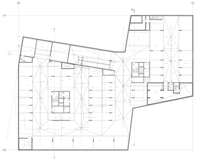
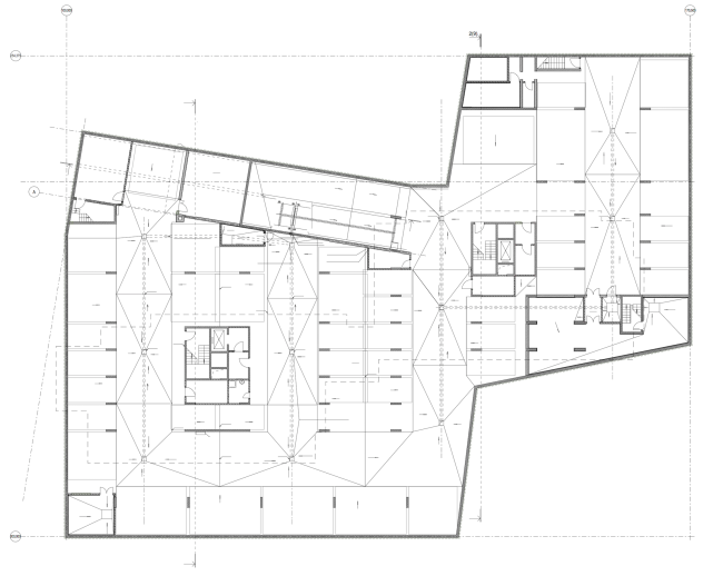
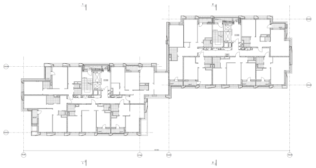
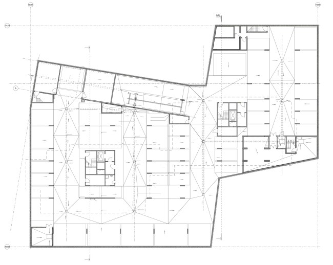
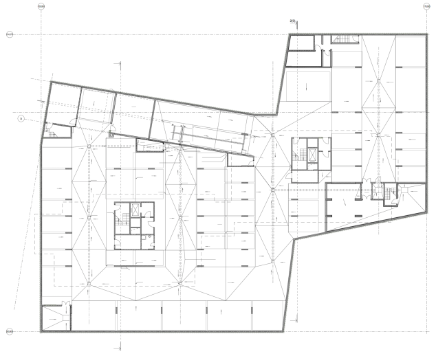
Жилой дом на Борисовской улице. План -1 этажа © Архитектурное бюро Асадова
Жилой дом на Борисовской улице. План -1 этажа © Архитектурное бюро Асадова
Жилой дом на Борисовской улице. Разрез © Архитектурное бюро Асадова
Жилой дом на Борисовской улице. Разрез © Архитектурное бюро Асадова