Размещено на портале Архи.ру (www.archi.ru)

05.12.2016

Кирпичная оболочка Skuratov House

Дарья Горелова
Объект:
Жилой дом на улице Бурденко
Адрес:
Россия, Москва. ул. Бурденко, 11
Архитектор:
Сергей Скуратов
Мастерская:
АО «Фирма «КИРИЛЛ»
Сергей Скуратов ARCHITECTS
Авторский коллектив:
Скуратов С.А., Чернышова А.С., Чернышов Д.А., Левина Ю.Б.

О том, как Сергей Скуратов полностью «обернул» дом кирпичом, найдя подходящую серию-сортировку в Германии на заводе Hagemeister, в самом дальнем углу склада, – и дав ей новую жизнь.

Жилой дом на ул. Бурденко © Михаил Розанов
Жилой дом на ул. Бурденко © Михаил Розанов

Одна из самых заметных особенностей дома, построенного Сергеем Скуратовым на улице Бурденко в Хамовниках – кирпичная оболочка, которая обволакивает все его внешние поверхности настолько тщательно, что воспринимается как своего рода «кожа» здания. Кирпич здесь повсюду: не только основные плоскости стен, но и откосы окон, сандрики, подоконники, рамки, а также и горизонтальные поверхности, в том числе и нижние поверхности консолей и пол террас– выложены из кирпича, что позволило подчеркнуть глубину стен и скульптурную лепку объема. Издали кажется, что дом вырублен из кирпичной глыбы.
Жилой дом  на ул. Бурденко. Фотография © Михаил Розанов
Жилой дом на ул. Бурденко. Фотография © Михаил Розанов
Жилой дом на ул. Бурденко. Фотография © Михаил Розанов
Жилой дом на ул. Бурденко. Фотография © Михаил Розанов
Жилой дом на ул. Бурденко. Фотография © Михаил Розанов
Жилой дом на ул. Бурденко. Фотография © Михаил Розанов
Терраса на кровле стилобата. Жилой дом на ул. Бурденко. Фотография © Михаил Розанов
Терраса на кровле стилобата. Жилой дом на ул. Бурденко. Фотография © Михаил Розанов

На самом деле это не так. Внешняя оболочка состоит из мелкого кирпича ручной работы, меняющего цвет от темно-вишнёвого и серовато-металлического до почти желтой охры. Пёстрый ковёр на первый взгляд может показаться естественным или даже хаотичным – но нет, раскладка кирпичей прорисована в деталях для каждой части стены. Зачем это делать, если можно просто перемешать разноцветные бруски? – Ответ довольно прост, к слову, во всех проектах Скуратова любые растяжки цвета всегда прорисовываются до мельчайших подробностей. Если этого не сделать, велика вероятность случайного повторения узора, что может парадоксальным образом лишить фасад его продуманной естественности.
Жилой дом на ул. Бурденко. Фотография © Сергей Скуратов architects
Жилой дом на ул. Бурденко. Фотография © Сергей Скуратов architects

Разнообразие тона дополнено рельефным рисунком кирпичей, которые на части плоскостей немного выступают из плоскости стены, также складываясь в продуманно-хаотичный рисунок, особенно эффектный при солнечном свете и резких тенях.
Жилой дом с подземной автостоянкой на ул. Бурденко © Михаил Розанов
Жилой дом с подземной автостоянкой на ул. Бурденко © Михаил Розанов
Жилой дом на ул. Бурденко. Фотография © Юлия Тарабарина, Архи.ру
Жилой дом на ул. Бурденко. Фотография © Юлия Тарабарина, Архи.ру
Размер кирпича невелик. Жилой дом на ул. Бурденко. Фотография © Юлия Тарабарина, Архи.ру
Размер кирпича невелик. Жилой дом на ул. Бурденко. Фотография © Юлия Тарабарина, Архи.ру
Кирпичная кладка стен визуально разделена вертикальными резиновыми вставками, поблескивающими на солнце; их цель – снять пафос «полностью кирпичного» дома, показать его современную техногенность. Первоначально полосы задумывались металлическими. Жилой дом на ул. Бурденко. Фотография © Юлия Тарабарина, Архи.ру
Кирпичная кладка стен визуально разделена вертикальными резиновыми вставками, поблескивающими на солнце; их цель – снять пафос «полностью кирпичного» дома, показать его современную техногенность. Первоначально полосы задумывались металлическими. Жилой дом на ул. Бурденко. Фотография © Юлия Тарабарина, Архи.ру

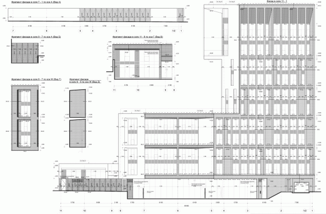
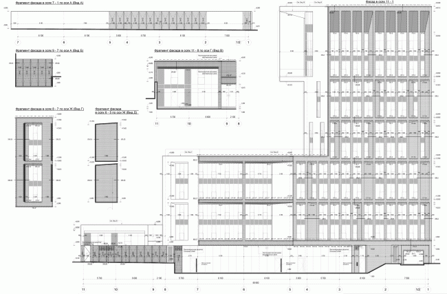
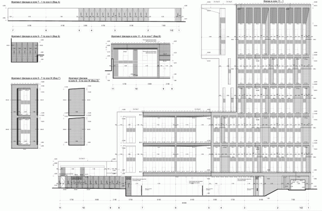
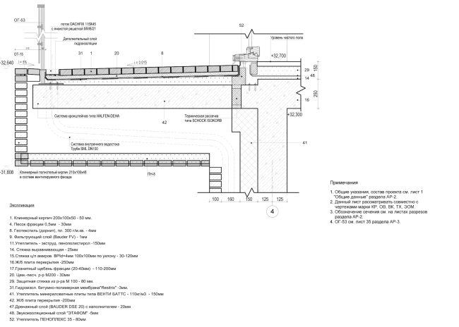
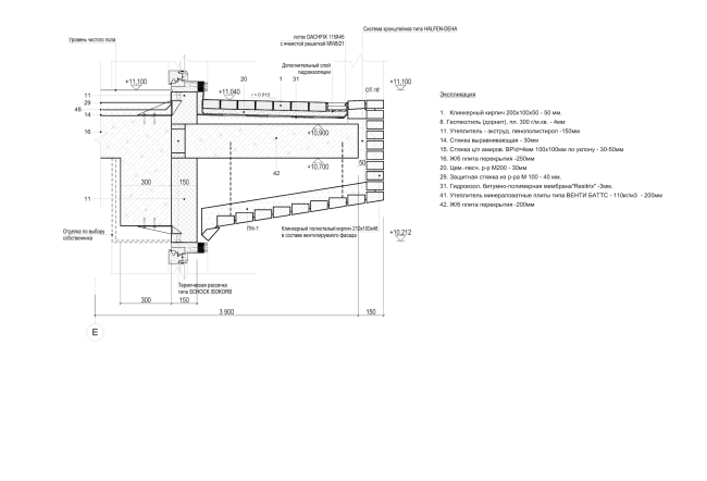
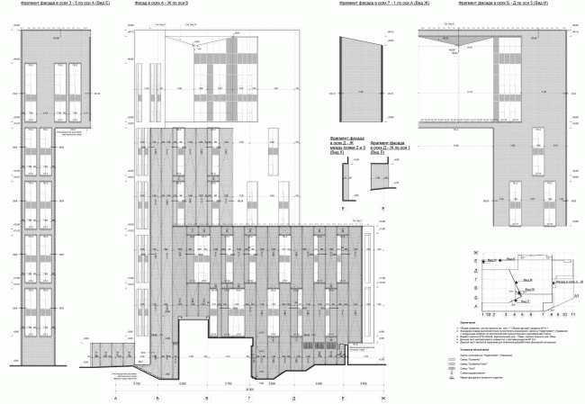
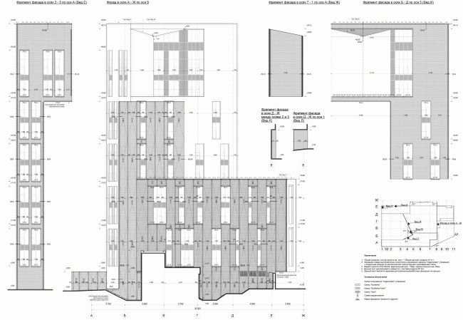
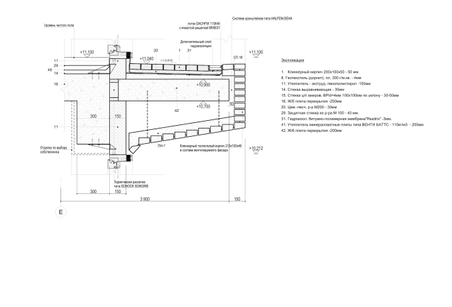
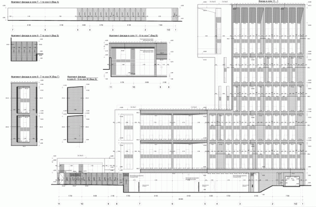
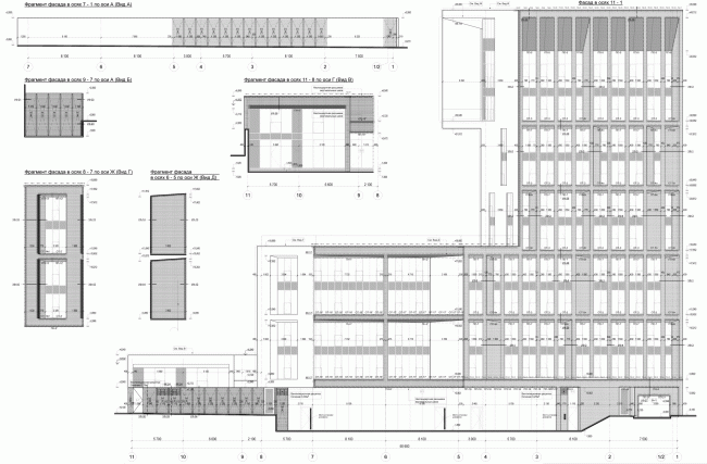
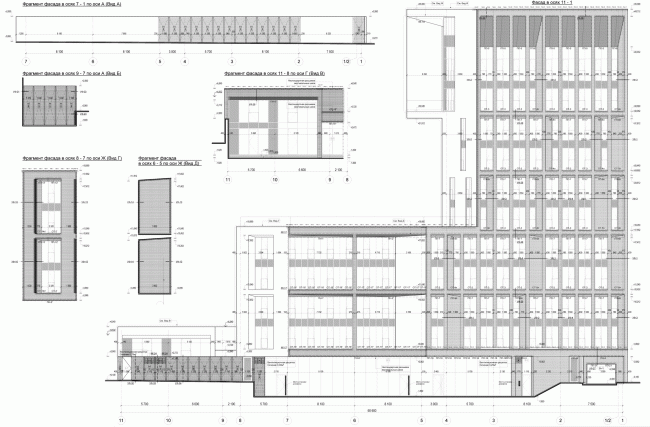
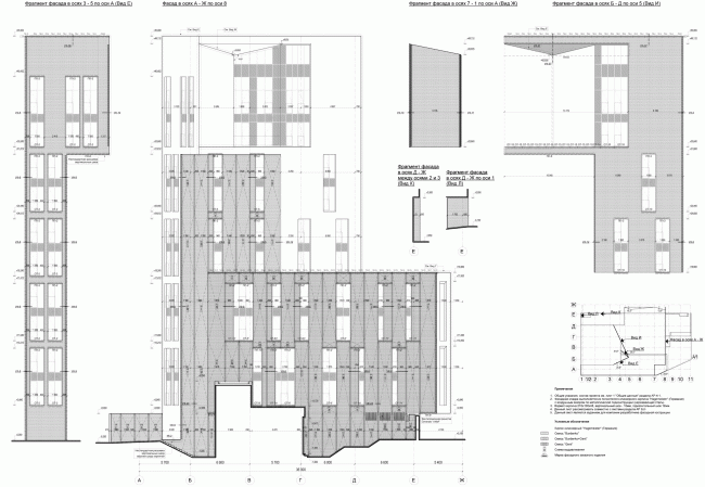
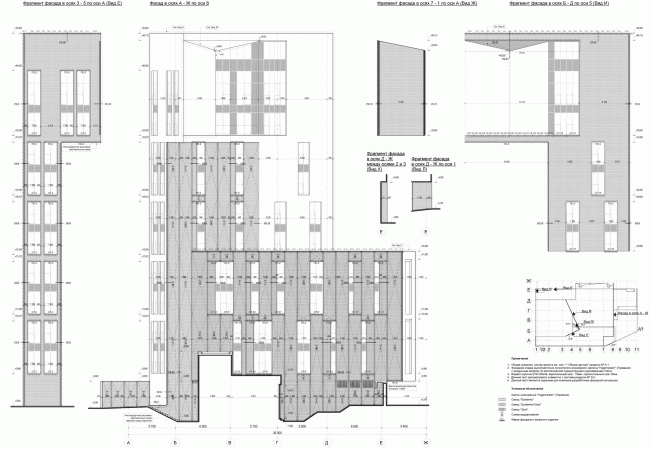
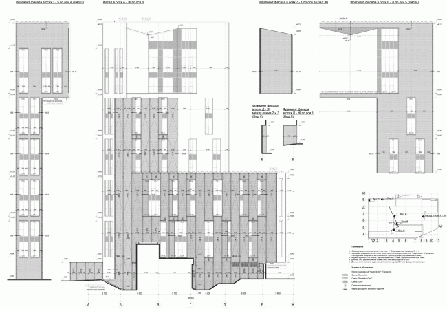
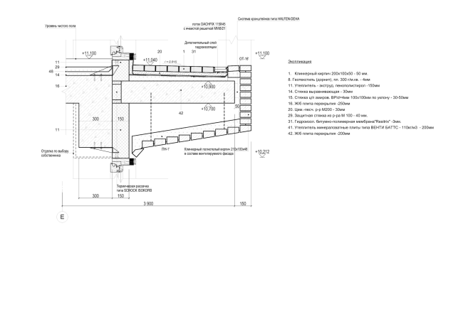
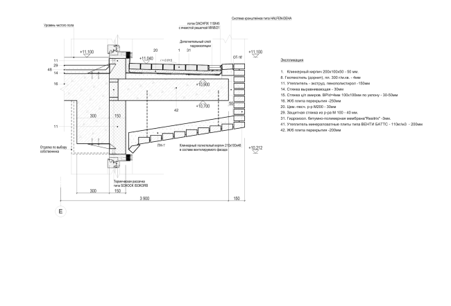
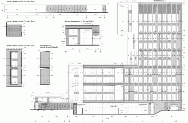
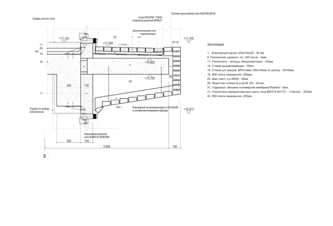
Но вернемся к деталям. Всячески стремясь избежать эффекта инертной плоскости, связать поверхность с объёмом, Скуратов использует множество нетиповых вариантов кирпича, изготовленных по чертежам по специальному заказу. Это, прежде всего, угловые кирпичи: здесь встречаются углы всех видов, от широких «тупых» до привычных прямых и красивых острых с различным градусом. Это и кирпичи рельефной решётки северного фасада, и подоконники, где кирпичные тычки поставлены в ряд. Все нетиповые кирпичи были посчитаны и прорисованы. Проект кирпичной оболочки стал разновидностью чертёжного узла, принципиально важного для качества строительства данного здания.
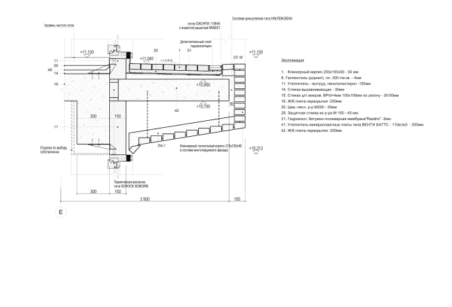
Жилой дом с подземной автостоянкой на ул. Бурденко. Фасадные узлы © Сергей Скуратов ARCHITECTS
Жилой дом с подземной автостоянкой на ул. Бурденко. Фасадные узлы © Сергей Скуратов ARCHITECTS
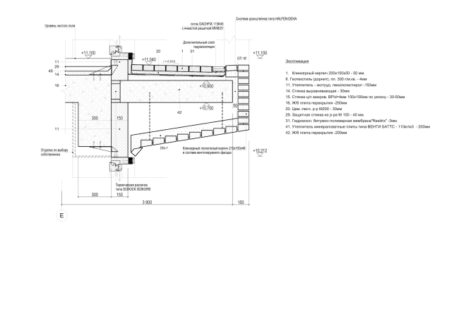
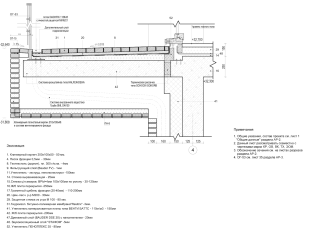
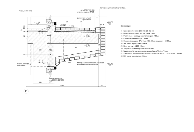
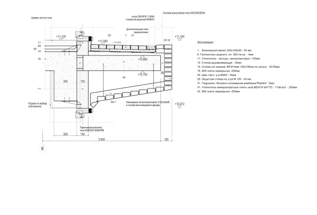
Жилой дом с подземной автостоянкой на ул. Бурденко. Узлы © Сергей Скуратов ARCHITECTS
Жилой дом с подземной автостоянкой на ул. Бурденко. Узлы © Сергей Скуратов ARCHITECTS
Жилой дом с подземной автостоянкой на ул. Бурденко. Узлы © Сергей Скуратов ARCHITECTS
Жилой дом с подземной автостоянкой на ул. Бурденко. Узлы © Сергей Скуратов ARCHITECTS
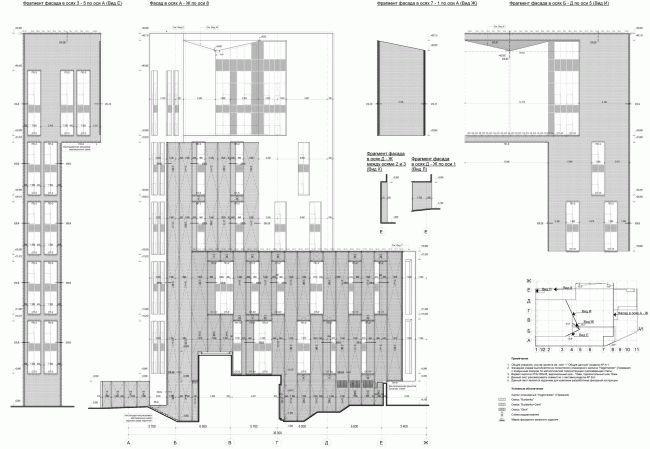
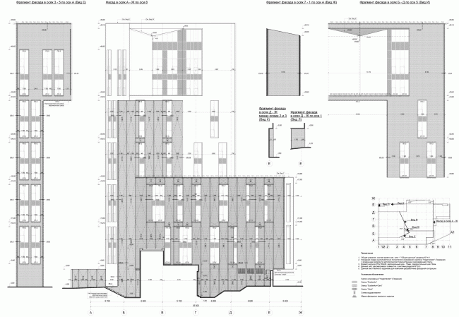
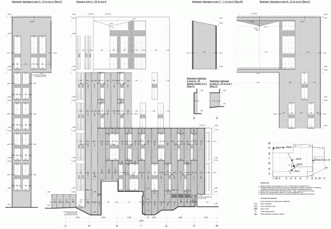
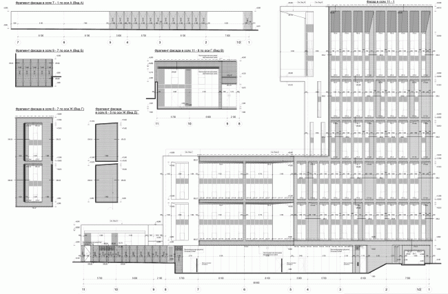
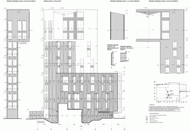
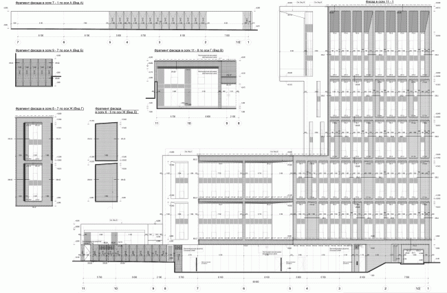
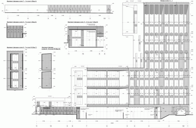
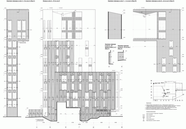
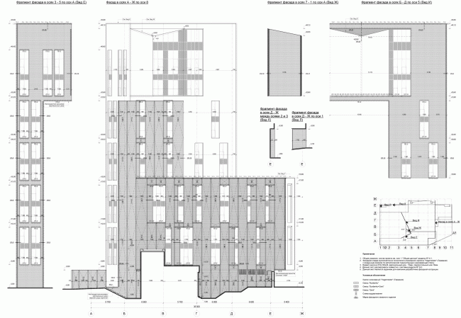
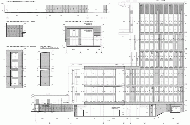
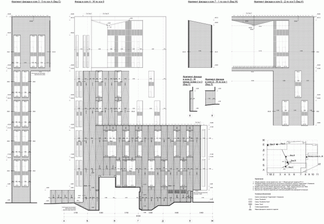
Жилой дом с подземной автостоянкой на ул. Бурденко. Фасады © Сергей Скуратов ARCHITECTS
Жилой дом с подземной автостоянкой на ул. Бурденко. Фасады © Сергей Скуратов ARCHITECTS
Жилой дом с подземной автостоянкой на ул. Бурденко. Фасады © Сергей Скуратов ARCHITECTS
Жилой дом с подземной автостоянкой на ул. Бурденко. Фасады © Сергей Скуратов ARCHITECTS

Такие нетиповые, индивидуальные требования к главному фасадному материалу – кирпичу сможет выполнить далеко не каждый, даже европейский, завод. В данном случае архитекторам помогли в компании Hagemeister, где смогли не только найти нужные по цветовой гамме сортировки кирпича, но и изготовить всю нетиповую номенклатуру.

«В здании на улице Бурденко использован микс двух сортировок кирпича нашей фабрики: Gent и Burdenko, – рассказывает директор по продажам в России компании Hagemeister Анастасия Ланграф. –Вторая сортировка, как видим, носит название здания, поскольку и названа в его честь. До дома на улице Бурденко у этой сортировки не было названия, а с его появлением связана следующая история. Мы: Сергей Александрович Скуратов, Кристиан Хагемайстер и я, долго искали сортировку, подходящую проекту Скуратова. И как водится, вместе с Сергеем Александровичем нашли её где-то в самом дальнем углу склада. Стояла она, повернутая лицевой стороной к стене. Эту панель-образец сделали уже давно для какого-то другого проекта, там она не была использована и стояла, дожидаясь своего счастливого часа, пока её не нашел Сергей Александрович Скуратов. Мы её вытащили – как говорится, на свет божий – побежали на улицу, долго бегали вокруг, смотрели под разным освещением, пока Скуратов не воскликнул: «Да, эта сортировка подойдет». Так что панель переехала из пыльного угла склада на фасад одного из самых интересных домов в Москве.
Жилой дом на ул. Бурденко, вид от 2-го Неопалимовского переулка. Фотография © Юлия Тарабарина, Архи.ру
Жилой дом на ул. Бурденко, вид от 2-го Неопалимовского переулка. Фотография © Юлия Тарабарина, Архи.ру
***
Генеральный партнер заводов Hagemeister в России - компания АО «Фирма «КИРИЛЛ». «Кирилл» – ведущий поставщик облицовочного и строительного кирпича, а также керамической черепицы, клинкера, клинкерной плитки. В ассортименте компании представлено более 1000 различных по цвету и фактуре вариантов кирпича. Недавно компании Hagemeister и «Фирма «КИРИЛЛ» начали реализацию совместной программы «Региональных представительств».