Размещено на портале Архи.ру (www.archi.ru)

20.10.2016

Москва-Берлин

Юлия Тарабарина
Объект:
Апартаментный комплекс «Гороховский, 12»
Адрес:
Россия, Москва. Гороховский пер, д. 12 стр. 5
Архитектор:
Андрей Романов
Екатерина Кузнецова
Мастерская:
ADM

Клубный дом Гороховский’12 – пример лаконичного и цельного, хотя не минималистичного и не бедного архитектурного решения, которое его архитектор считает в чём-то берлинским. Прививка удалась, поскольку и московское в доме тоже есть.

Клубный дом в Гороховском переулке. Реализация, 2016 © ADM architects
Клубный дом в Гороховском переулке. Реализация, 2016 © ADM architects

С участком в Гороховском переулке’12 архитекторы ADM работали больше десяти лет: это был один из первых их заказов после создания собственного бюро в 2006 году. Первоначально здание планировалось офисным, а фасады, по желанию заказчика – штукатурными. После 2008 оно стало жилым клубным домом, состоящим из апартаментов. Изменилось всё: функция план, объём, вид фасадов. Прежним осталось разве что местоположение.

Дом, чьё строительство началось в 2014 и завершилось весной 2016 года, расположен в глубине квартала за посольством Эквадора, на месте, где до 2000-х находилось заброшенное здание интерната, довольно долго пугавшее прохожих выбитыми окнами. Ещё раньше, в начале XX века, когда в расположенной чуть западнее гимназии имени Фон Дервиз училась Марина Цветаева, половина участка принадлежала гимназическому саду, там разводили прекрасные розы. Ну а в 1980-е, проходя мимо насквозь к улице Казакова, можно было ненароком обнаружить штабели орлёных кирпичей-большемеров XVII века – кто-то собирал себе, видимо, на дачу. Теперь таких вольностей, конечно, нет. А вот район – старинный, на границе между Басманной и Немецкой слободами, до яузских дворцов петровских сподвижников отсюда пешком минут пятнадцать, до «Золотого дома» Ивана Демидова, шедевра московского классицизма или, к примеру, до путевого дворца Ивана III – пять минут лёгкой прогулки. Район старый, хотя сильно испорченный вкраплениями советских пластин и башен. Его историческая среда фрагментарна и дискретна, так что новый клубный дом, предлагающий своим жителям тишину московского почти-центра-сразу-за-Садовым, целостности среды не нарушил: всего-то в нём семь этажей. Напротив, красиво поблёскивая из-за двухэтажных особняков, он достаточно деликатно заполняет собой ненужную в этом месте цезуру.
Гороховский переулок, вид с востока. Слева особняк крестьянина Морозова, справа посольство Эквадора, в центре клубный дом Гороховский′12. Фотография © Юлия Тарабарина, Архи.ру
Гороховский переулок, вид с востока. Слева особняк крестьянина Морозова, справа посольство Эквадора, в центре клубный дом Гороховский′12. Фотография © Юлия Тарабарина, Архи.ру
Гороховский переулок, вид с запада. Слева посольство Эквадора, справа бывшая гимназия фон Дервиз, школа Карбышева. В центре клубный дом Гороховский′12. Фотография © Юлия Тарабарина, Архи.ру
Гороховский переулок, вид с запада. Слева посольство Эквадора, справа бывшая гимназия фон Дервиз, школа Карбышева. В центре клубный дом Гороховский′12. Фотография © Юлия Тарабарина, Архи.ру

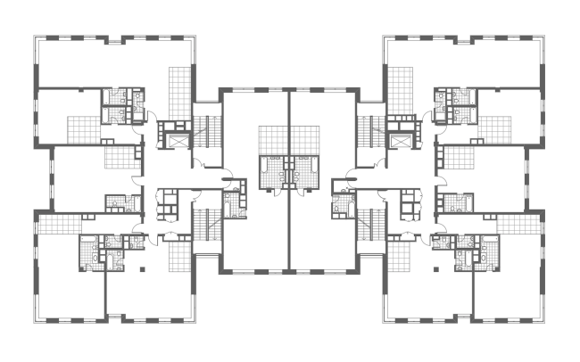
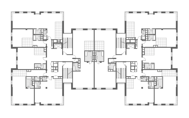
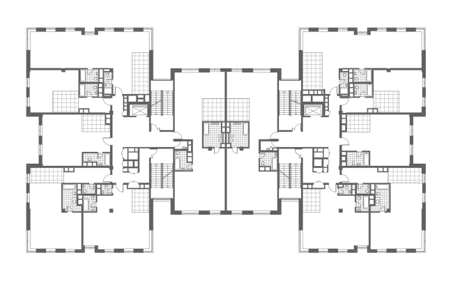
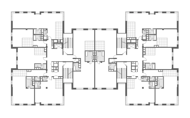
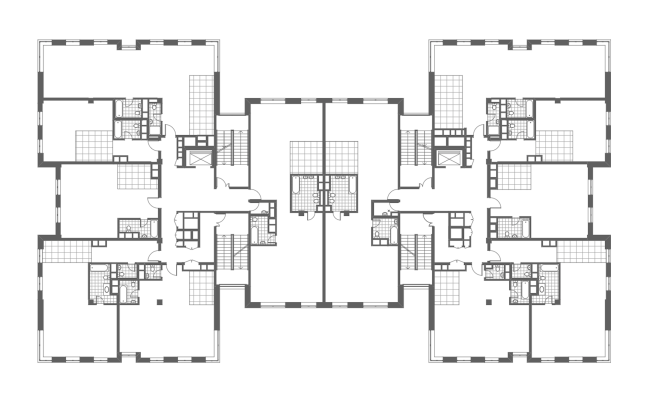
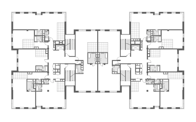
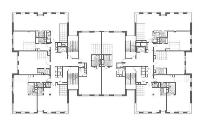
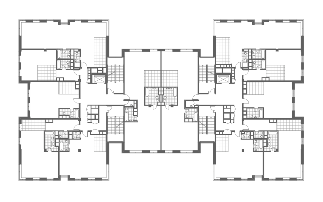
В плане дом напоминает букву Н с симметричными объёмами ризалитов, глубоко выступающих по краям двух продольных фасадов. Компактный и рациональный, даже изящный в своей разумности план – почти квинтэссенция осевой симметрии. Вход утоплен, перед ним небольшая площадь, даже мини-сквер с парой скамеек. Внутри, «в самой середине дома», – ресепшн, по сторонам симметрично – четыре стеклянных вертикали лестниц, которые одновременно углублены в объем, но легко находимы и хорошо освещены. Снаружи лестницы выглядят стеклянными «перемычками» между ризалитами и центральной частью. Такими вертикальными перемычками-уступами объём, что хорошо видно на макете, раздроблен повсеместно: «буква Н» прорезана на торцах – за вырезами разместились самые маленькие квартиры. На продольных фасадах ризалитов тоже обнаруживаются тонкие углублённые вертикали. План, таким образом, становится больше похож на очень стилизованный квадрифолий – четыре секции примыкают к общей середине. Всё – в строгом соответствии с планировками квартир.
Клубный дом в Гороховском переулке. Макет © ADM architects
Клубный дом в Гороховском переулке. Макет © ADM architects
Клубный дом в Гороховском переулке. Мини-площадь перед входом. Реализация, 2016 © ADM architects
Клубный дом в Гороховском переулке. Мини-площадь перед входом. Реализация, 2016 © ADM architects

Квартиры довольно большие, от 50 до 130 м2, хотя их можно объединять до 400 м2. В перемычке – по две самые большие квартиры, выходящие на юг и на север, в них предусмотрен даже кабинет. В каждом ризалите по пять квартир. Внизу один ярус парковки.
Клубный дом в Гороховском переулке. План 3 этажа, 2016 © ADM architects
Клубный дом в Гороховском переулке. План 3 этажа, 2016 © ADM architects
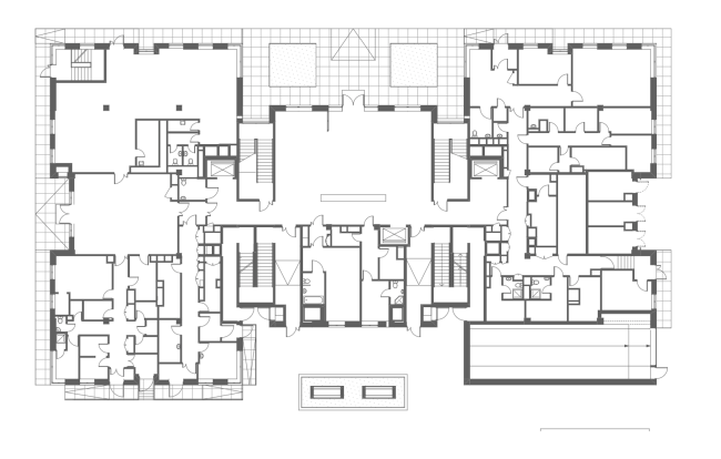
Клубный дом в Гороховском переулке. План 1 этажа, 2016 © ADM architects
Клубный дом в Гороховском переулке. План 1 этажа, 2016 © ADM architects

Снаружи дом столь же рационален. Фасады состоят из равномерно расставленных вертикалей, столь же аккуратно пересеченных широкими междуэтажными горизонталями керамических лент, имитирующих известняк в обвязке металлических выступов того же цвета сверху и снизу. Вертикали же состоят из чередующихся полос стекла окон и простенков терракотовой плитки с глазурью похожего на фризы, но чуть более тёмного бежевого цвета. Глазурь двух оттенков – потемнее и посветлее – образует в пятнистую фактуру, которая напоминает белокаменную кладку и стены «сталинских» домов, но здесь рисунок мельче и лишён интенсивной пятнистости, что делает его ощутимо более деликатным. Плитка особенная: с правой стороны у неё терракотовый выступ-углубление образует шов толщиной приблизительно полсантиметра, по горизонтали есть такой же уступ, но глубокий – всё это обеспечивает ровную графику кладки без необходимости штукатурить, затирать и подкрашивать швы. Довольно удобно и выглядит чисто, а рисунок швов хорошо акцентирован.
Клубный дом в Гороховском переулке. Реализация, 2016 © ADM architects
Клубный дом в Гороховском переулке. Реализация, 2016 © ADM architects
Клубный дом в Гороховском переулке. Реализация, 2016 © ADM architects
Клубный дом в Гороховском переулке. Реализация, 2016 © ADM architects
Клубный дом в Гороховском переулке. Реализация, 2016. Плитки облицовки. Фотография © Юлия Тарабарина, Архи.ру
Клубный дом в Гороховском переулке. Реализация, 2016. Плитки облицовки. Фотография © Юлия Тарабарина, Архи.ру
Клубный дом в Гороховском переулке. Реализация, 2016 © ADM architects
Клубный дом в Гороховском переулке. Реализация, 2016 © ADM architects
Клубный дом в Гороховском переулке. Реализация, 2016 © ADM architects
Клубный дом в Гороховском переулке. Реализация, 2016 © ADM architects

Вертикали стёкол на протяженных фасадах – приблизительно той же ширины, что и простенки, именно поэтому они выглядят не столько окнами, проёмами, сколько элементом общего ритма. На углах стеклянные вертикали смыкаются и их становится больше, что даёт квартирам больше света и ощутимо облегчает объём, поскольку углы фиксированы не камнем, а окном, прозрачным на просвет или, в зависимости от ракурса, тёмным, и немного утопленным, уступающим место межэтажным рёбрам фризов, которые на углах выходят вперёд, проявляя каркас здания.
Клубный дом в Гороховском переулке. Реализация, 2016 © ADM architects
Клубный дом в Гороховском переулке. Реализация, 2016 © ADM architects
Клубный дом в Гороховском переулке. Реализация, 2016 © ADM architects
Клубный дом в Гороховском переулке. Реализация, 2016 © ADM architects
Клубный дом в Гороховском переулке. Реализация, 2016 © ADM architects
Клубный дом в Гороховском переулке. Реализация, 2016 © ADM architects
Клубный дом в Гороховском переулке. Реализация, 2016 © ADM architects
Клубный дом в Гороховском переулке. Реализация, 2016 © ADM architects

Роль окон несколько сложнее. Все они обрамлены тонкой тёмно-коричневой металлической рамкой; из такого же металла сделаны перемычки остекления. Сами же окна – деревянные стеклопакеты близкого оттенка, но чуть теплее. Строгий набор оживлён зеленоватым стеклом ограждений французских балконов: высокие, в пол, окна можно открыть изнутри. Прозрачная зелень балконов, поддержанная таким же стеклом козырьков над входами, добавляет стеклянным вертикалям тот же сдержанный род живописности, что и разный тон плиток – простенкам.
Клубный дом в Гороховском переулке. Реализация, 2016 Северный фасад, фрагмент. Фотография © Юлия Тарабарина, Архи.ру
Клубный дом в Гороховском переулке. Реализация, 2016 Северный фасад, фрагмент. Фотография © Юлия Тарабарина, Архи.ру

«Я вижу в этом доме что-то берлинское, – говорит Андрей Романов. – Стеклянные углы, рациональное построение, плитка на фасадах. В целом мы довольны тем решением, к которому удалось прийти в конечном счете, работая с этим участком».

Берлин или не Берлин, а московского в этом доме тоже можно найти немало. Угловые окна – любимый прием как немецкого Баухауза, так и русского конструктивизма. А в бежевой плитке можно увидеть многое, но у меня она ассоциируется с фасадами модерна, Сытинской типографией и множеством московских зданий начала XX века. Ближайший пример такой глазурованной поверхности – церковь Поморской общины, построенная Ильей Евграфовичем Бондаренко в 1908 и спрятанная в соседних дворах (хотя об этом архитекторы могли не знать, плитку-то сняли с фасадов лет десять назад). Никакой стилизации в новом доме ADM не ощущается, но благодаря плитке он не выглядит чужеродным в историческом, хотя и изрядно побитом советской властью, окружении. Каким-то неясным образом он перекликается со зданием Школы акварели, ближайшим заметным зданием, полузамком, построенным в конце XIX века для Евангелического приюта (Немецкая слобода была ещё и местом развития неправославных конфессий в Москве). Есть что-то созвучное между жёлтыми плитами тротуара перед Школой акварели и разнообразной вымосткой территории клубного дома за старыми, больше чем столетней давности, воротами.
Клубный дом в Гороховском переулке. Реализация, 2016 © ADM architects
Клубный дом в Гороховском переулке. Реализация, 2016 © ADM architects
Клубный дом в Гороховском переулке. Реализация, 2016 © ADM architects
Клубный дом в Гороховском переулке. Реализация, 2016 © ADM architects
Клубный дом в Гороховском переулке. Реализация, 2016 © ADM architects
Клубный дом в Гороховском переулке. Реализация, 2016 © ADM architects

Кстати эти ворота сохранились, надо думать, со времен гимназии Фон Дервиз или даже более раннего. Покрашенные в бежевый цвет, они открыты, нет даже створок и на территорию дома можно свободно войти и даже пройти дальше насквозь вглубь квартала: здесь и раньше можно было пройти, было бы неправильным перекрыть пешеходные связи. Собственный забор дома – символическая низенькая ограда, что делает ближайшую детскую площадку, к примеру, доступной и соседней. И в целом – делясь своей территорией с пешеходами (но не с машинами – для них шлагбаум) дом расширяет собственные городские горизонты, получает больше «воздуха», без чрезмерной замкнутости и ограничений. Здесь тихо, но и спокойно: я ходила по территории полчаса и меня никто не выгнал, даже не поинтересовался личностью; по-видимому, территория охраняется ненавязчиво. Такое friendly-настроение тоже подкупает.
Клубный дом в Гороховском переулке. Генеральный план благоустройства © ADM architects
Клубный дом в Гороховском переулке. Генеральный план благоустройства © ADM architects
Клубный дом в Гороховском переулке. Реализация, 2016 © ADM architects
Клубный дом в Гороховском переулке. Реализация, 2016 © ADM architects

Окружение дома, как это принято у ADM, тщательно ухожено. Сохранены старые липы, они встречают входящих и даже образуют пешеходную аллею с несколькими скамейками и фонарями, ведущую прямо ко входу. Вымостка – множества видов: металлические плиты вдоль дома, квадратики красного и серого бетона вокруг, дерево перед скамейками, красная и бордовая на проезжей части, черно-белые квадратики в резиновых сетках на месте пожарной стоянки. Перед цоколем в вымостку вмонтированы редкие полоски подсветки. Перед переходами в мостовую вмонтированы рельефные металлические полоски. Эта земля никогда раньше не знала ничего, кроме асфальта, да и его не везде. А тут такое изобилие. Слева от выхода на улицу обнаруживается подпорная стенка из темного дизайнерского кирпича. Вентшахты парковки, расположенные с северной стороны, выглядят как принадлежащие саду прямоугольные скульптуры. Трава зелена, а множество кустарников выровнены по росту с невысокими фонарями – примерно по колено. Впрочем, фонарей тоже три вида, есть и высокие. Словом, если смотреть под ноги, фактура даже разнообразнее, чем не фасадах.
Клубный дом в Гороховском переулке. Реализация, 2016 © ADM architects
Клубный дом в Гороховском переулке. Реализация, 2016 © ADM architects
Клубный дом в Гороховском переулке. Реализация, 2016 © ADM architects
Клубный дом в Гороховском переулке. Реализация, 2016 © ADM architects
Клубный дом в Гороховском переулке. Реализация, 2016. Фрагмент вымостки и оконного обрамления первого этажа. Фотография © Юлия Тарабарина, Архи.ру
Клубный дом в Гороховском переулке. Реализация, 2016. Фрагмент вымостки и оконного обрамления первого этажа. Фотография © Юлия Тарабарина, Архи.ру
Клубный дом в Гороховском переулке. Реализация, 2016. Фрагмент вымостки с подсветкой.  Фотография © Юлия Тарабарина, Архи.ру
Клубный дом в Гороховском переулке. Реализация, 2016. Фрагмент вымостки с подсветкой. Фотография © Юлия Тарабарина, Архи.ру
Клубный дом в Гороховском переулке. Реализация, 2016 © ADM architects
Клубный дом в Гороховском переулке. Реализация, 2016 © ADM architects
Клубный дом в Гороховском переулке. Реализация, 2016 © ADM architects
Клубный дом в Гороховском переулке. Реализация, 2016 © ADM architects

Фасады же подкупают простотой решения: они не так многослойны, как во многих других домах ADM, в них ощущается благородный какой-то лаконизм, очищение. Позволившее архитекторам, кроме прочего, совместить необходимую для дорогого жилья респектабельность бежевого цвета, не сбившись в суету и не поступившись цельностью решения, с отчётливой современностью технологии. Это один из признанных современных трендов, особенно при строительстве в историческом городе: балансировать на грани традиционного материала и нескрытой технологичности. К тому же дом, если мы вернёмся к теме Москвы и не-Москвы – по-старомосковски стоит в глубине участка, выстраивает вокруг себя сад, и в свою липовую аллею не запрещает войти никому. Сколько бы ни было в нём Берлина, пожалуй, дом прижился на своём месте. В Гороховском переулке, где жил Рокотов и училась Цветаева.