Размещено на портале Архи.ру (www.archi.ru)

18.10.2016

Скуратов-хаус

Юлия Тарабарина
Объект:
Жилой дом на улице Бурденко
Адрес:
Россия, Москва. ул. Бурденко, 11
Архитектор:
Сергей Скуратов
Мастерская:
АО «Фирма «КИРИЛЛ»
Сергей Скуратов ARCHITECTS
Авторский коллектив:
Скуратов С.А., Чернышова А.С., Чернышов Д.А., Левина Ю.Б.

Дом на улице Бурденко – не очень новая, но заметная постройка. Она продолжает и развивает любимые темы Сергея Скуратова: дом фактурно-скульптурный, с шершавым и разнотоновым кирпичным фасадом. На городское окружение он смотрит столь же разносторонне, и впитывая, и отдавая эмоции.

Жилой дом с подземной автостоянкой на ул. Бурденко. Фотография © Михаил Розанов
Жилой дом с подземной автостоянкой на ул. Бурденко. Фотография © Михаил Розанов

Увлекательную историю создания дома, который получил от владельцев гордое название Skuratov house и был достроен в 2014 году, мы уже рассказывали. Буквально в двадцати шагах на углу Второго Неопалимовского переулка стоит ещё один дом, построенный Скуратовым больше десяти лет назад в 2001 году, когда архитектор ещё работал ГАПом в составе мастерской Сергея Киселёва. Как нередко бывает в таких случаях, два дома получились разными и похожими, рассматривать их, крутя головой на улице Бурденко – своего рода академическое удовольствие. Тут можно понять и вектор развития авторской позиции, и ощутить степень устойчивости её основных принципов. В частности немаловажно, что два скуратовских дома, оказавшись рядом по чистой случайности, успешно решают задачу гуманизации городского пространства вокруг себя – несмотря пестроту, если не сказать экзальтированность ближайшего окружения.



Жилой дом с подземной автостоянкой на ул. Бурденко. Ситуационный план © Сергей Скуратов ARCHITECTS
Жилой дом с подземной автостоянкой на ул. Бурденко. Ситуационный план © Сергей Скуратов ARCHITECTS

Здесь, за Садовым кольцом, на «задворках» магистрали Большой Пироговкой улицы, город говорит на очень разные голоса. Сильнейшее давление исходит от здания Счётной палаты РФ, 1993 года постройки, с его золотым стеклом и керамогранитом. Она совсем рядом, подходит к восточной границе участка. Впрочем гигантизм был привит месту намного раньше Академией имени Фрунзе Льва Руднева, сочетающей по-своему изумительную архитектуру с немалым красноармейским размахом. Так и повелось: деревянные особняки – а один такой стоит как раз напротив дома Сергея Скуратова, соседствуют с гигантами разной архитектуры, а иногда и без архитектуры вовсе. Всё едва разбавлено умеренностью доходных домов начала XX века. Городская атмосфера получается напряжённой, контрастной на грани нервного срыва.

В такой обстановке неудивительно желание закопаться, зарыться в землю. Что новый дом Скуратова отчасти и делает: он «посажен» в широкий приямок ниже уровня тротуара на высоту человеческого роста – на 1,8 метра. Это позволило не только увеличить высоту потолков цокольного этажа до «парадных» 5,5 м против тоже немалых 3,6 м жилых этажей дома – но и создать перед фасадом особенное пространство, отделённое от улицы пластикой склона, равно как и скульптурностью лестниц и пандусов. И тремя молодыми липами; они тут прямо как «три тополя», благо Плющиха рядом. Сюда, вниз, может спуститься кто угодно, но пространство ощущается как полу-приватное, тихое даже по сравнению с улицей Бурденко, где нечасто ездят машины. Оказавшись внизу, перед витринами, мы видим только ноги прохожих, и то едва-едва; к тому же пространство заботливо прикрыто от дождя крупной консолью: глубокой, с выносом около трёх метров, – и высокой, на четыре этажа вверх. Получается почти «пещера», хотя точнее – аналог портика без опор.
Мини-площадь перед входом. Фотография © Сергей Скуратов architects
Мини-площадь перед входом. Фотография © Сергей Скуратов architects
Спуск с тротуара улицы  ко входу в здание
Спуск с тротуара улицы ко входу в здание
Фотография © Юлия Тарабарина, Архи.ру
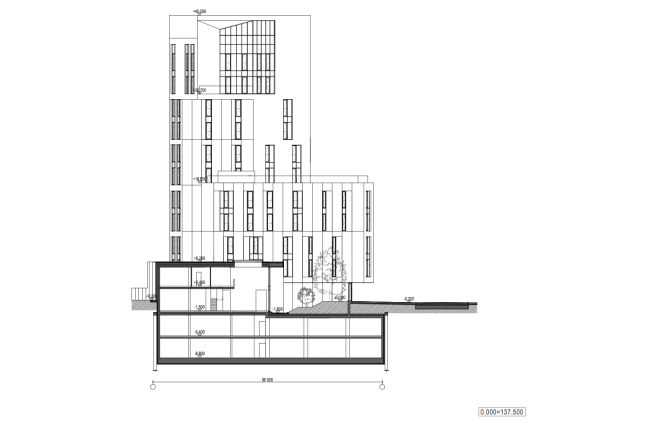
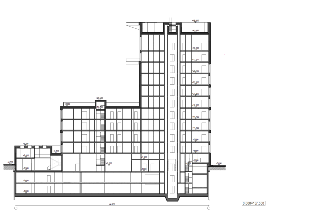
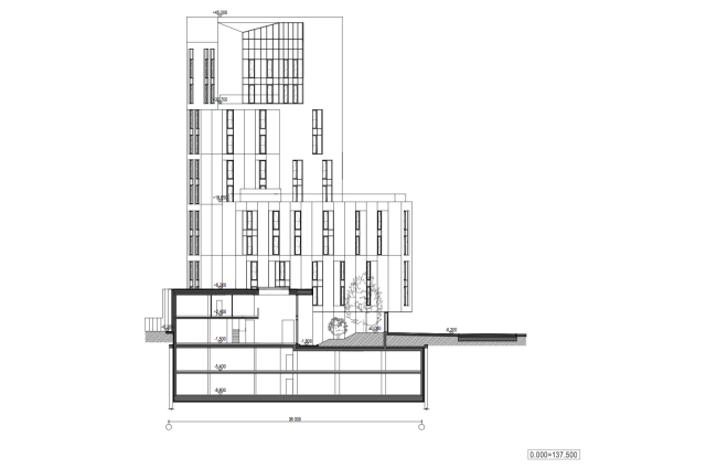
Жилой дом с подземной автостоянкой на ул. Бурденко. Разрез © Сергей Скуратов ARCHITECTS
Жилой дом с подземной автостоянкой на ул. Бурденко. Разрез © Сергей Скуратов ARCHITECTS

Что-то подобное чувствуешь, стоя в археологическом раскопе или, к примеру, обнаруживая церковь Святого Виталия в Риме: почти под ногами прохожего на улице Национале. Идёшь по шумному тротуару, и вдруг – ступеньки, какой-то иной мир, из другого слоя, внеположного современному городу.



Надо сказать, что этот эффект «культурного слоя», имитацию ощущений от древнего города Сергей Скуратов использовал уже в нескольких проектах жилых домов, отделяя перепадом высот внешнее пространство от внутреннего, организуя вход как «погружение» в дом. Кажется, первым таким опытом был Art House на Серебрянической набережной.



Что важно, пространство первого яруса больше чем наполовину – общественное: здесь обустроились салон красоты и очаровательное миникафе-кулинария с говорящим названием «Ку-ка» (от первых слогов слов «кулинария» и «кафе»). Войдя в кафе, мы можем пройти дом насквозь и посмотреть во двор: выйти туда нельзя, двор только для жильцов дома, но видно, что с противоположной стороны – такой же приямок со ступеньками, как и со стороны улицы. Во дворе – три липы, пандан выстроившимся вдоль улицы, и клён, старое дерево с роскошной кроной, которое архитектор сохранил, усложнив для этого силуэт дома и организовав под его кроной ядро двора. У Сергея Скуратова, надо сказать, вообще особые отношения с деревьями – в начале 2000-х, когда тема вовсе не была звучной, он не только сохранил прекрасный дуб у стены дома в Зубовском проезде, но и сделал его важной частью композиции.

Зубовский проезд, дуб у северного фасада: 


Скуратов-хаус:
Кафе под консолью, вид с улицы. Фотография © Юлия Тарабарина, Архи.ру
Кафе под консолью, вид с улицы. Фотография © Юлия Тарабарина, Архи.ру
Сад: липы, клён и кирпичная вымостка в приватном дворе Skuratov house
Сад: липы, клён и кирпичная вымостка в приватном дворе Skuratov house
Фотография © Юлия Тарабарина, Архи.ру

Но вернемся к Скуратов-хаусу. И его углублённая мини-площадь перед витринами, и внутренний двор выложены кирпичом, также как и часть тротуара вдоль уличного фасада. Надо сказать, что это сейчас, в наши дни в центре Москвы можно найти какую угодно вымостку, от гранита до жёлтого кирпича из сказки, а два года назад, когда достраивался дом на улице Бурденко, борьба с асфальтом находилась ещё только в своей первой, плиточной фазе. Так что здесь Сергей Скуратов выступил в некоторой степени законодателем мод, предложив не плитку и даже не гранит, а выстилку из кирпича на плашку, продолжающую главную тему дома. От этого дом кажется «проросшим» в город, распространившим вокруг себя кирпичные «корни» или даже пятно земли иного качества. Во всяком случае мимоидущий прохожий, даже глядя только себе под ноги, увидев под ногами этот неожиданно-церковный пол из терракотовых прямоугольников тёплого оттенка, может быть, удивится, поднимет глаза, или даже спустится в кафе. Кирпичный тротуар – казалось бы, деталь – служит важным ключом, соединяющим дом с городом.
Вид на северный фасад с улицы. Жилой дом на ул. Бурденко © Сергей Скуратов architects
Вид на северный фасад с улицы. Жилой дом на ул. Бурденко © Сергей Скуратов architects

Так же, кирпичом, выстлан пол на террасах, которые занимают эксплуатируемые кровли на трёх ярусах. На кровле башни – частная терраса; на пятиэтажном объёме – общественная, открытая для всех жителей дома, Сергей Скуратов даже разместил там барную стойку с кофе-машиной. Нижняя терраса – на крыше цокольного этажа на высоте трёх метров от уровня земли, выходящие сюда люди оказываются почти над головами у прохожих. И в целом террасы последовательно растут вверх, делая объём незамкнутым – дом становится подобен не замкнутой коробке, что для Москвы обычно, а обитаемой горе. Словом, он встроен в городское пространство несколько иначе, работает с этим пространством многоуровнево и разномасштабно.
Терраса на кровле стилобата. Жилой дом на ул. Бурденко. Фотография © Михаил Розанов
Терраса на кровле стилобата. Жилой дом на ул. Бурденко. Фотография © Михаил Розанов

Что происходит прежде всего от вдумчивого отношения к контексту и творческой реакции на множество ограничений, от высотных до требований инсоляции. Дом стоит на двухъярусной подземной парковке, но состоит из трех разных объемов – каждый из которых обозначает или реагирует на один из типов окружающих зданий. 11-этажная башня подхватывает крупный масштаб, но делает всё для того, чтобы показаться при этом изящной – высокой и стройной. Середина дома – пятиэтажная, она «ловит» масштаб доходных домов и стоящего рядом дома 1959 года постройки. И наконец, на границе со Счётной палатой, где невозможно было построить ничего высокого из-за инсоляции, появилась встроенная в дом городская вилла, роскошь нашего времени, crème de crème риэлторских предложений. Пара подобных вилл известны в Молочном и Коробейниковом переулках. В данном случае примкнувший к дому двухэтаный особняк с садом за плотным кирпичным забором, с геопластикой и марсианскими красными деревьями внутри – это не только эксклюзивный лот, но и градостроительная реакция, пара-пандан деревянного дома Смирнова-Лопатиной, стоящего на улице напротив. И в целом – память о допетровской Москве, состоявшей из садов за заборами и дома в глубине.

Впрочем внешне дом не делится на части, а скорее пытается завязаться узлом, поскольку у него две головы. Одна – консоль-«телевизор» пятиэтажной части, нависает над улицей, глядит строго на север, хотя слегка поворачивает стекла к западу, навстречу прохожим, идущим в сторону Садового кольца. Что совершенно ломает образное представление о выстроенном вдоль улицы пятиэтажном блоке – он кажется скорее поперечным, чем продольным. Вторая «голова» – у башни, это тоже большой, трёхэтажной высоты «телевизор», он смотрит на восток, но немного поворачивается к северу, в створ улицы, избегая окон Счётной палаты. В первых вариантах проекта вместо кирпича Скуратов рассматривал и зелёного цвета медные фасады, и ржавые кортеновые – если бы прижился один из них, то сходство с фантастическим, но в то же время ретро-, роботом, каким-нибудь Valli, было бы совершенно несомненным. Дом заметным образом «смотрит» по сторонам, с настороженным любопытством разглядывает окружение, как будто бы из перископа. Город смотрит на дом, но и дом смотрит на город. «Взгляды» консолей-телевизоров служат и фасадами, лицами, намёком на личность дома. Самый яркий скульптурный образ – от Садового кольца, точнее от 2-го Неопалимовского. Отсюда же больше всего удивляешься – насколько дом всё же, при всей брутальности шершавого тёмного кирпича – маленькое, даже хрупкое существо. Помнится, похожий эффект существа, мифологического животного был описан Григорием Ревзиным в отношении дома Скуратова на Мосфильмовской.
Жилой дом на ул. Бурденко, вид от 2-го Неопалимовского переулка. Фотография © Юлия Тарабарина, Архи.ру
Жилой дом на ул. Бурденко, вид от 2-го Неопалимовского переулка. Фотография © Юлия Тарабарина, Архи.ру
Жилой дом с подземной автостоянкой на ул. Бурденко. Фотография © Михаил Розанов
Жилой дом с подземной автостоянкой на ул. Бурденко. Фотография © Михаил Розанов
Жилой дом на улице Бурденко. Архитекор Сергей Скуратов полностью «обернул» дом кирпичом. Кирпич здесь повсюду: не только основные плоскости стен, но и откосы окон, сандрики, подоконники, рамки, а также и горизонтальные поверхности, в том числе и нижние поверхности консолей и пол террас– выложены из кирпича. Поставщик кирпича и клинкера Hagemeister в России – Фирма Кирилл
Жилой дом на улице Бурденко. Архитекор Сергей Скуратов полностью «обернул» дом кирпичом. Кирпич здесь повсюду: не только основные плоскости стен, но и откосы окон, сандрики, подоконники, рамки, а также и горизонтальные поверхности, в том числе и нижние поверхности консолей и пол террас– выложены из кирпича. Поставщик кирпича и клинкера Hagemeister в России – Фирма Кирилл
Фотография © Михаил Розанов
Жилой дом на ул. Бурденко. Фотография © Михаил Розанов
Жилой дом на ул. Бурденко. Фотография © Михаил Розанов
Жилой дом на ул. Бурденко. Фотография © Михаил Розанов
Жилой дом на ул. Бурденко. Фотография © Михаил Розанов
Жилой дом на ул. Бурденко. Поиск образа © Сергей Скуратов architects
Жилой дом на ул. Бурденко. Поиск образа © Сергей Скуратов architects

Противовес скульптурным «головам» – ровный срез ребристой кирпичной сетки фасада вдоль улицы. Он начинается на пятиярусном объёме сразу за консолью, и быстро вырастает башней. Вся плоскость, действительно, кажется результатом сечения объема – во-первых, здесь «вырезали» нижнюю террасу, отступив от края и открыв вид на стену издали, без чрезмерного задирания головы. Во-вторых, кажется проявленной – раскрытой, как на срезе горной породы, внутренняя структура дома. Впрочем, с поправками: окна объединены по два по вертикали и складываются в обманчивый ритм, заставляющий нас принять дом за пятиэтажный. В московской архитектуре недавнего времени много примеров борьбы пропорций с масштабом, но в данном случае задача исполнена мастерски – благодаря перспективному сокращению и паузе, образованной террасой, со стороны улицы дом и впрямь воспринимается как пятиярусный, и вовсе не одиннадцатиэтажный. То есть образующий пару именно доходным домам.
Жилой дом на ул. Бурденко. Фотография © Юлия Тарабарина, Архи.ру
Жилой дом на ул. Бурденко. Фотография © Юлия Тарабарина, Архи.ру
Жилой дом на ул. Бурденко. Фотография © Михаил Розанов
Жилой дом на ул. Бурденко. Фотография © Михаил Розанов

На уличном фасаде больше всего окон – ими заполнены почти все прямоугольники между рельефных рёбер. Другие фасады – намного скульптурнее. Окон здесь меньше, их широкие пологие откосы делают стену ощутимо-скульптурной, состоящей из плоскостей, сопоставленных под разными углами. Углы откосов попадают в резонанс со скосами объемов и рамками консолей – все это делает дом огранённым, похожим на болванку скульптора, который только вот начал отсекать лишнее.
Жилой дом на ул. Бурденко. Фотография © Юлия Тарабарина, Архи.ру
Жилой дом на ул. Бурденко. Фотография © Юлия Тарабарина, Архи.ру
Жилой дом на ул. Бурденко © Михаил Розанов
Жилой дом на ул. Бурденко © Михаил Розанов
Жилой дом с подземной автостоянкой на ул. Бурденко © Михаил Розанов
Жилой дом с подземной автостоянкой на ул. Бурденко © Михаил Розанов

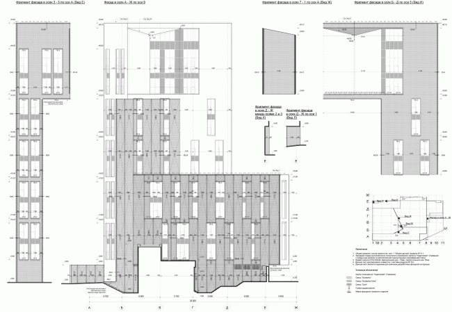
Кроме того, как мы помним, дом целиком кирпичный, кирпичная фактура служит в нём сильнейшим средством обобщения формы. Строго говоря, он покрыт корой из мелкого, шершавого и разноцветного – от тёмно-коричневого до желтого Hagemeister-a, за которым вентилируемая пустота, утеплитель, и уже потом крупный кирпич основных стен. Но вот сделана эта «кора», как принято в бюро Сергея Скуратова, добросовестно: прорисованы и исполнены по чертежам все мелочи: углы широкие и острые, подоконники, сандрики, нижние поверхности консолей – потребовалось множество кирпичей нетиповой формы, но дом покрыт кирпичом как кожей, сверху донизу, и всерьёз рельефен. Учитывая, что технология изготовления современных фасадов тяготеет скорее к наложению плоскостей, очевидно, что создание толщин, приятных глазу, говорящих подсознанию о надежной массивности стен – это тоже элемент ретро в противовес хай-теку – принуждения современной архитектуры к тому, чтобы выглядеть несколько более консервативно, чем она могла бы. Однако нет в современной архитектуре тенденции более актуальной, чем эта. Современная архитектура поняла наконец, что не все технологические новинки радуют глаз, что о человеческом уюте, даже визуальном, следует заботиться – только в этом случае здания начинают «говорить» и получать отклик своих зрителей, частых и редких. Так что Сергей Скуратов здесь более чем в тренде.
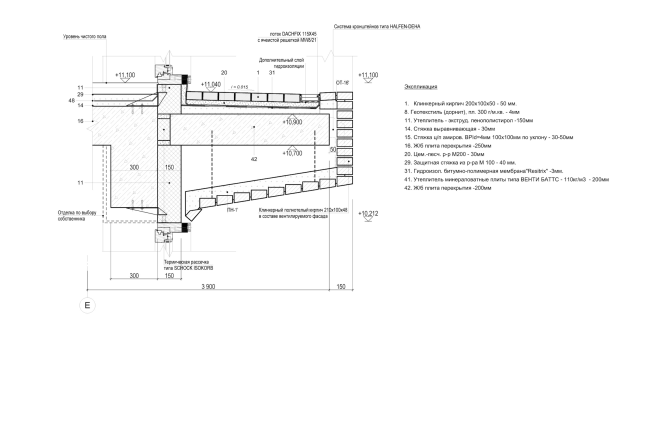
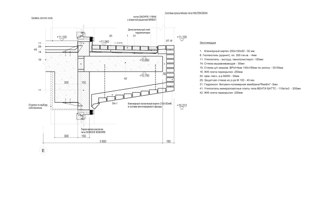
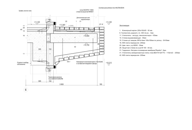
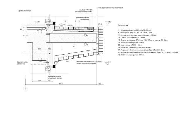
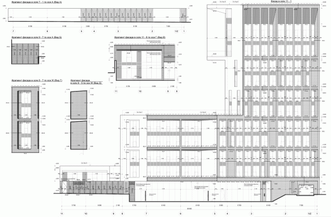
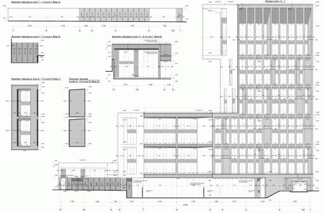
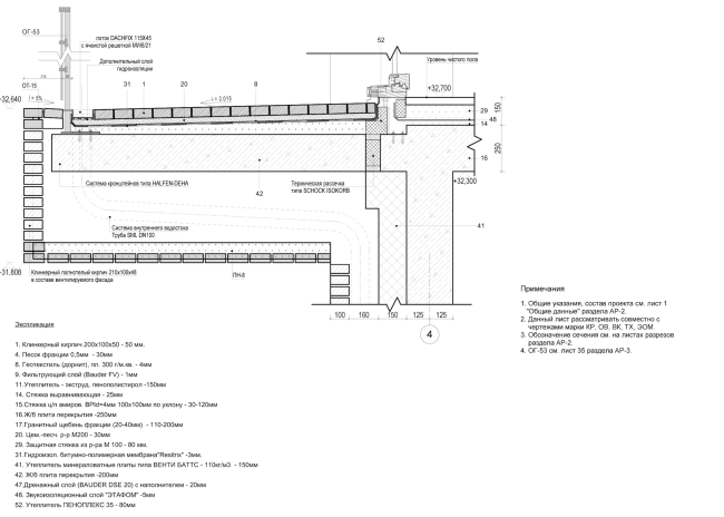
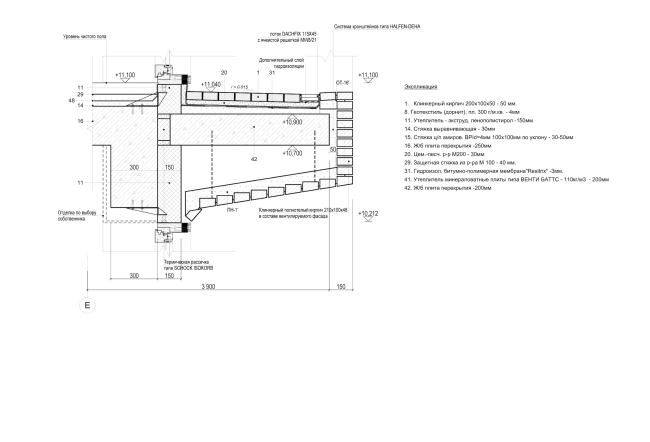
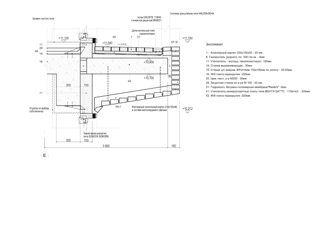
Жилой дом с подземной автостоянкой на ул. Бурденко. Фасадные узлы © Сергей Скуратов ARCHITECTS
Жилой дом с подземной автостоянкой на ул. Бурденко. Фасадные узлы © Сергей Скуратов ARCHITECTS
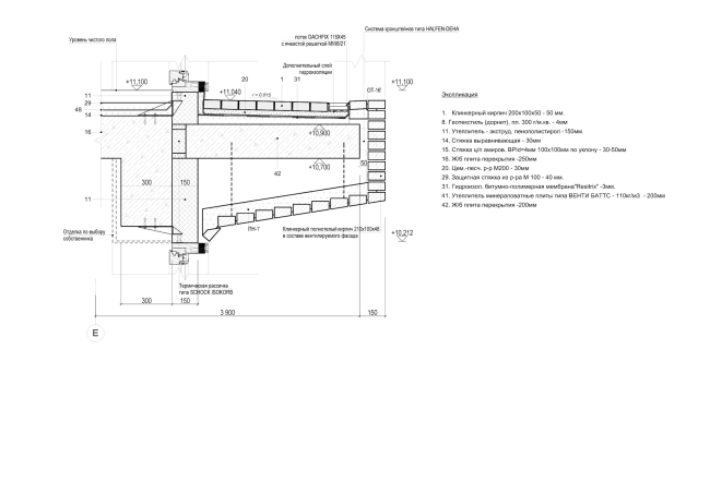
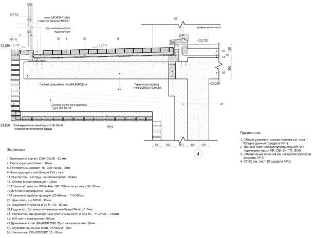
Жилой дом с подземной автостоянкой на ул. Бурденко. Узлы © Сергей Скуратов ARCHITECTS
Жилой дом с подземной автостоянкой на ул. Бурденко. Узлы © Сергей Скуратов ARCHITECTS
Жилой дом с подземной автостоянкой на ул. Бурденко. Узлы © Сергей Скуратов ARCHITECTS
Жилой дом с подземной автостоянкой на ул. Бурденко. Узлы © Сергей Скуратов ARCHITECTS
Жилой дом с подземной автостоянкой на ул. Бурденко. Подвесной элемент © Сергей Скуратов ARCHITECTS
Жилой дом с подземной автостоянкой на ул. Бурденко. Подвесной элемент © Сергей Скуратов ARCHITECTS
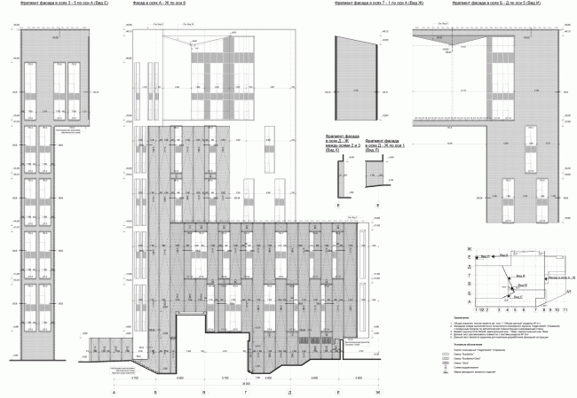
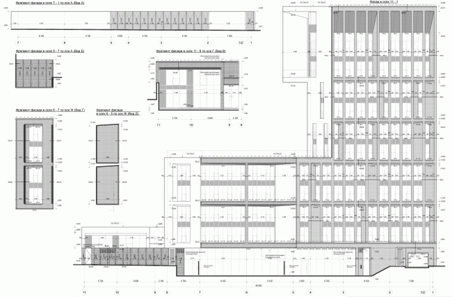
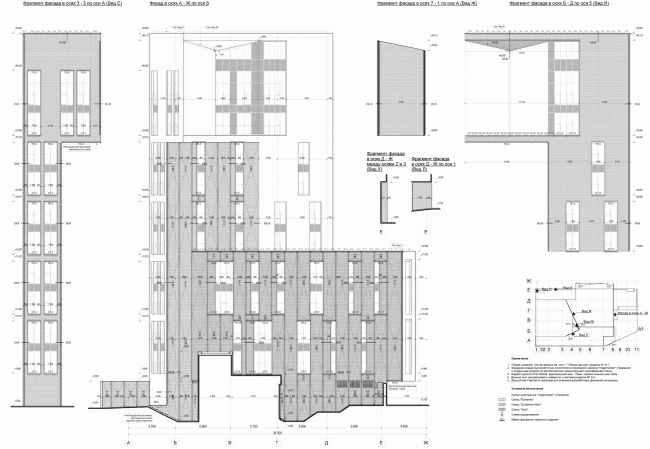
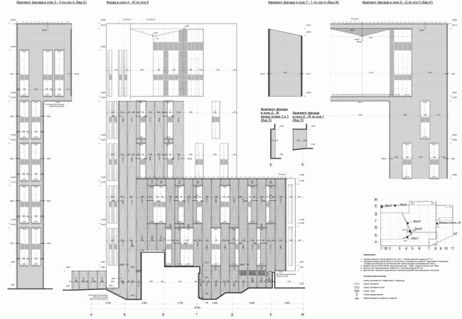
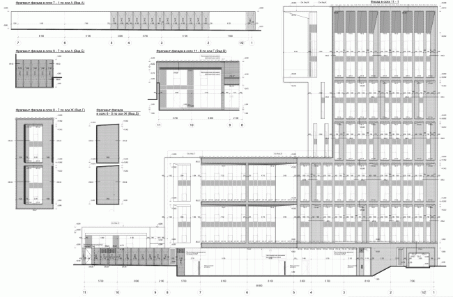
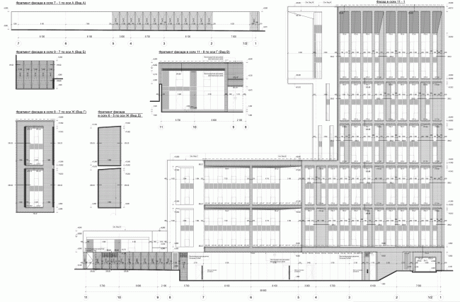
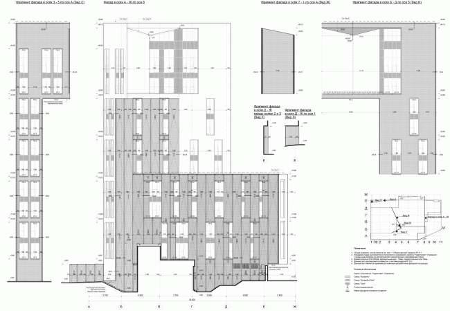
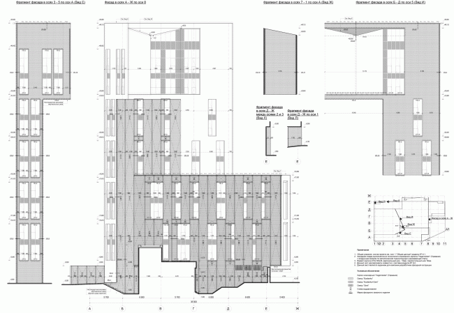
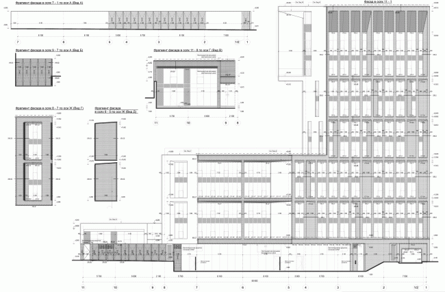
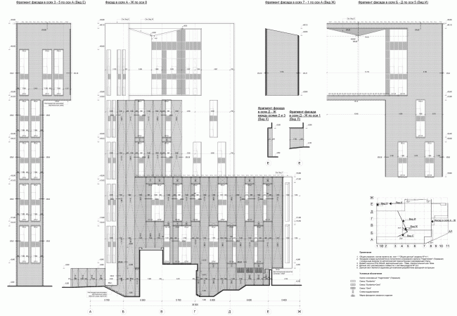
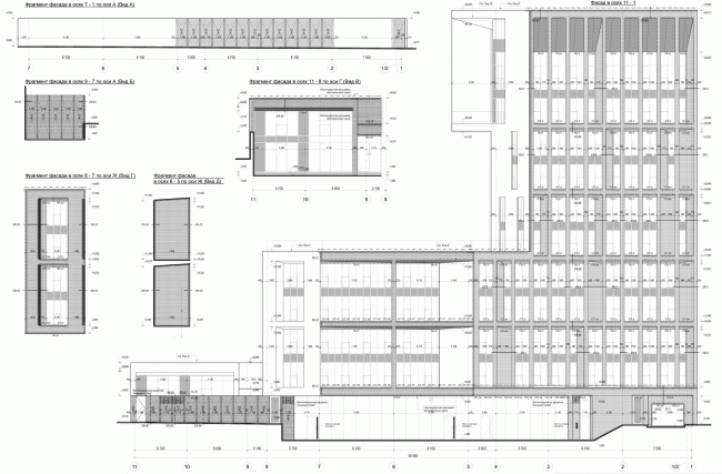
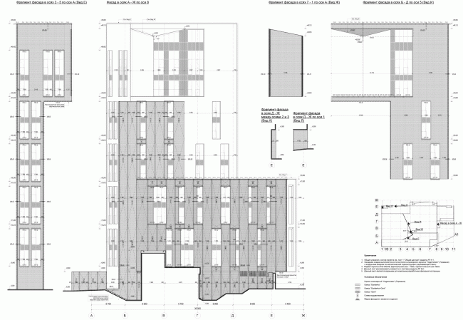
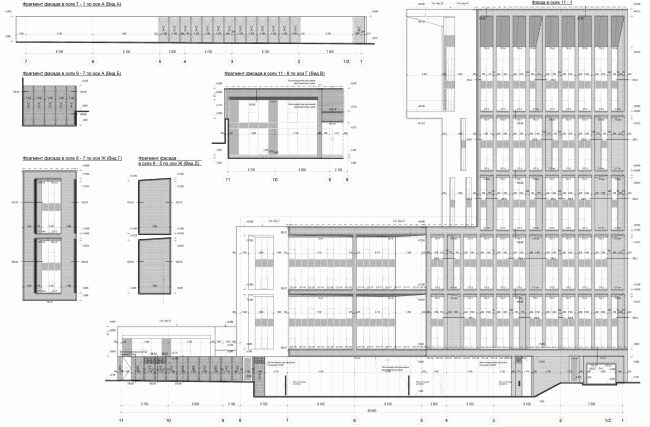
Жилой дом с подземной автостоянкой на ул. Бурденко. Фасады © Сергей Скуратов ARCHITECTS
Жилой дом с подземной автостоянкой на ул. Бурденко. Фасады © Сергей Скуратов ARCHITECTS
Жилой дом с подземной автостоянкой на ул. Бурденко. Фасады © Сергей Скуратов ARCHITECTS
Жилой дом с подземной автостоянкой на ул. Бурденко. Фасады © Сергей Скуратов ARCHITECTS

Ещё один элемент, скажем так, историзации: часть кирпичей на внешних плоскостях стен выдвинута на два-три сантиметра, что добавляет рельефа и теневых штрихов, особенно в косых лучах вечернего солнца, к примеру, на западной стене. На откосах выступов нет, из-за чего они тоже кажутся своего рода срезами, сечениями массы стены. И раскладка рельефных кирпичей, и растяжка пёстрого, но тёмного цвета, прорисованы поштучно. Цвет может показаться темноватым, но и здесь есть секрет – луч солнца делает его красновато-золотым, червонным, что довольно живописно.
Кирпичная кладка стен визуально разделена вертикальными резиновыми вставками, поблескивающими на солнце; их цель – снять пафос «полностью кирпичного» дома, показать его современную техногенность. Первоначально полосы задумывались металлическими. Жилой дом на ул. Бурденко. Фотография © Юлия Тарабарина, Архи.ру
Кирпичная кладка стен визуально разделена вертикальными резиновыми вставками, поблескивающими на солнце; их цель – снять пафос «полностью кирпичного» дома, показать его современную техногенность. Первоначально полосы задумывались металлическими. Жилой дом на ул. Бурденко. Фотография © Юлия Тарабарина, Архи.ру
Жилой дом на ул. Бурденко. Фотография © Михаил Розанов
Жилой дом на ул. Бурденко. Фотография © Михаил Розанов
Жилой дом на ул. Бурденко. Фотография © Сергей Скуратов architects
Жилой дом на ул. Бурденко. Фотография © Сергей Скуратов architects
Жилой дом на ул. Бурденко. Фотография © Сергей Скуратов architects
Жилой дом на ул. Бурденко. Фотография © Сергей Скуратов architects

В некоторых ракурсах дом похож на крепостную башню. Хотя воспоминание о соседстве Земляного города, четвертого кольца московских стен, будет натянутым – укрепления там были в основном деревянные и другие. Дом Скуратова больше похож на башню флорентийского семейства какого-нибудь XI века, полукрепость с донжоном. И многоцветный тон стен, и окна, местами похожие на бойницы – многое указывает на известный, хотя не лишенный тонкачества приём «прививания» местности отзвука истории, которой у неё не было. Впрочем это лишь одно из лиц дома, и Сергей Скуратов, дав намёк на нечто древнее, тут же затушёвывает его, снимает маску, подчёркивая современность здания блеском стекла ограждений, тонким металлом оконных переплётов, или хотя бы тем, что разбивает кирпичный массив тонкими блестящими швами. Похожим образом архитектор действовал и в Art House, помещая на торцевом фасаде каркасы металлических балконов – компенсировал едва намеченный пафос древности, превращая его в серьёзную, но игру.

Скуратов-хаус кажется немаловажным штрихом в портфолио архитектора, недаром так пафосно называется. Он попал в тот створ возможностей, когда ювелирная отделка деталей, многосоставная работа с поэтикой материала, объема и пространства уже накладывалась на пристальное внимание к городскому окружению, к той среде, которую дом создает вокруг себя. Неудивительно, что здесь несколько раз упомянут Art House, предшествующий на несколько лет дом-брат, хотя и не близнец дома на улице Бурденко: они разрабатывают близкие темы, по-разному, но насыщенно, плотно, не оставляя длиннот и пустот. В этом смысле оба дома артистичны, заявляют о себе как о произведениях искусства: впитывают всю возможную информацию об окружении, перерабатывают её, пропускают через собственный узнаваемый, по-своему очень яркий пластический язык, превращают в опыт осмысления и города, и пространства, и материала как «архитектурной материи». 
Жилой дом на ул. Бурденко. Эскиз Сергея Скуратова © Сергей Скуратов architects
Жилой дом на ул. Бурденко. Эскиз Сергея Скуратова © Сергей Скуратов architects
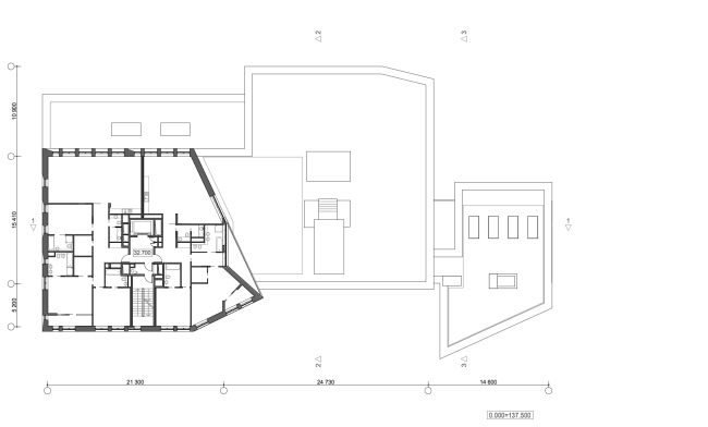
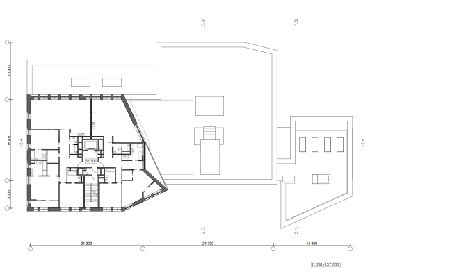
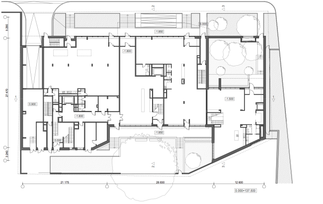
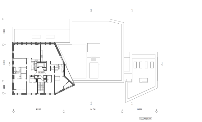
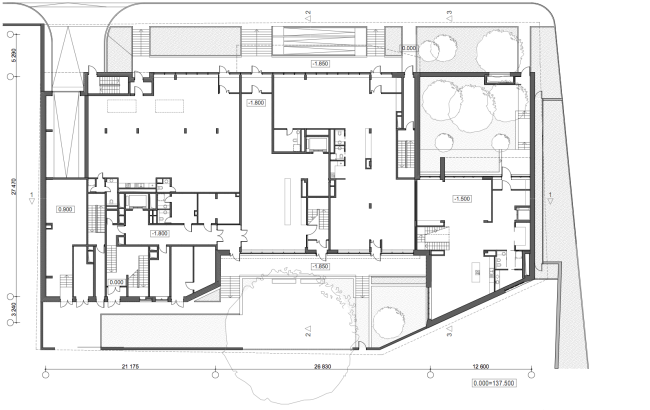
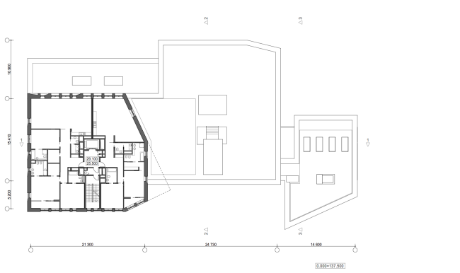
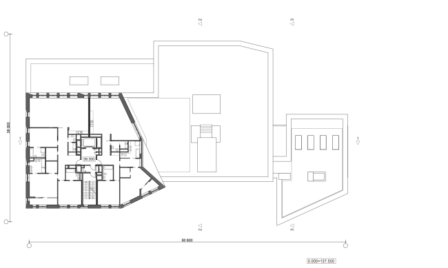
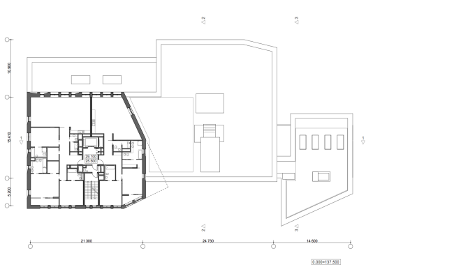
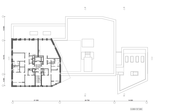
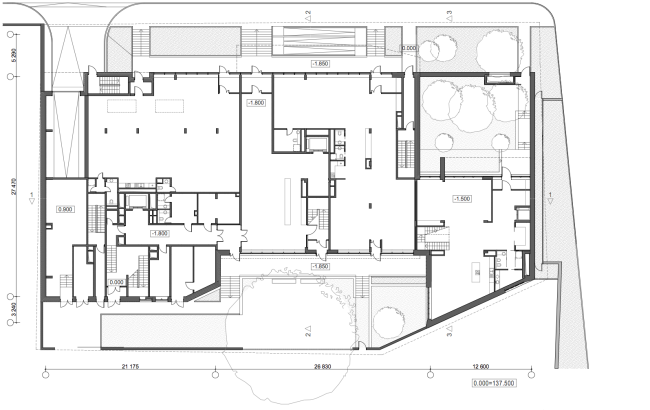
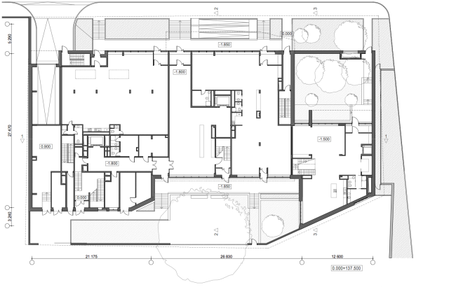
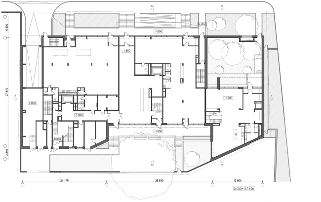
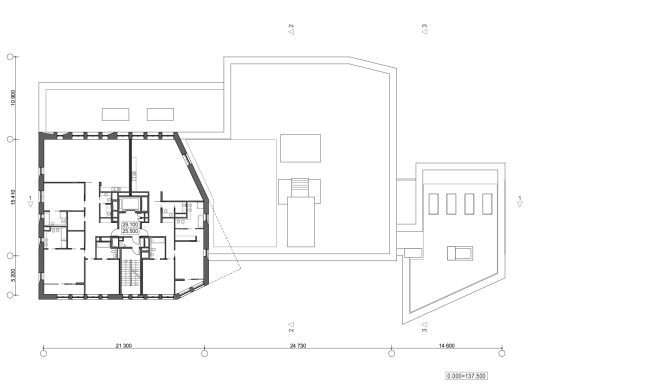
Жилой дом с подземной автостоянкой на ул. Бурденко. План стилобата © Сергей Скуратов ARCHITECTS
Жилой дом с подземной автостоянкой на ул. Бурденко. План стилобата © Сергей Скуратов ARCHITECTS
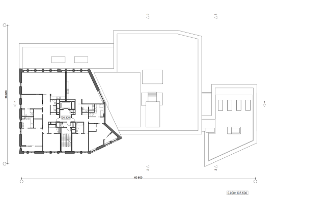
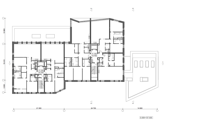
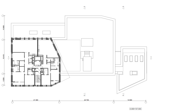
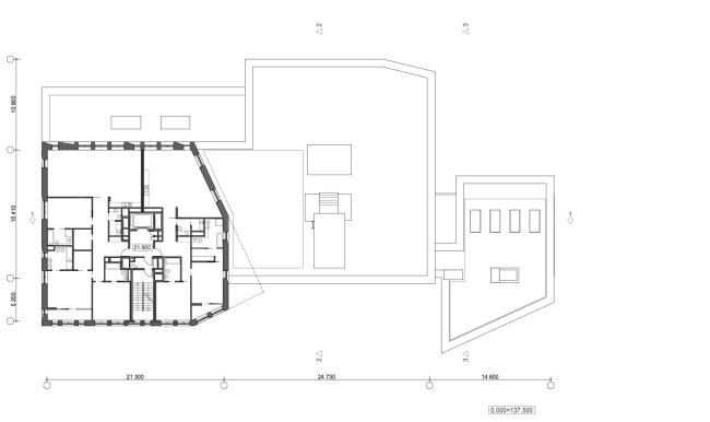
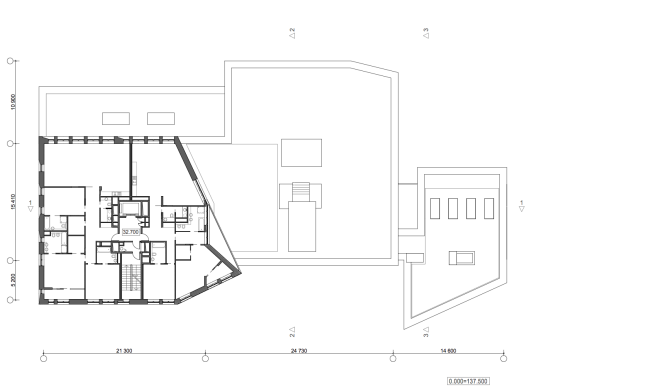
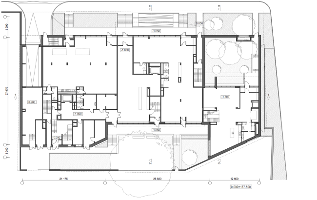
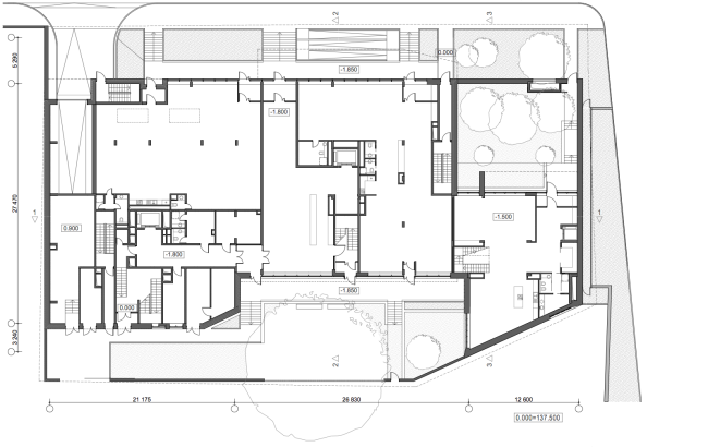
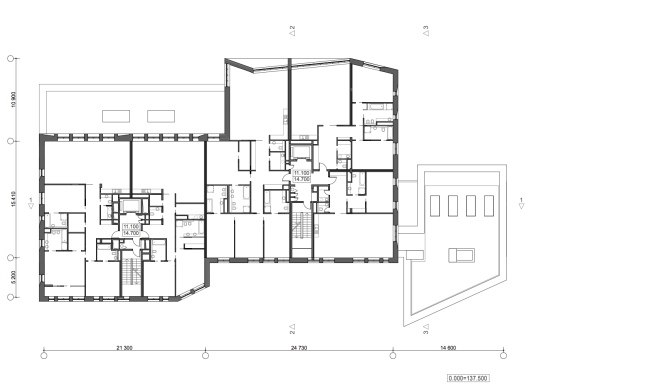
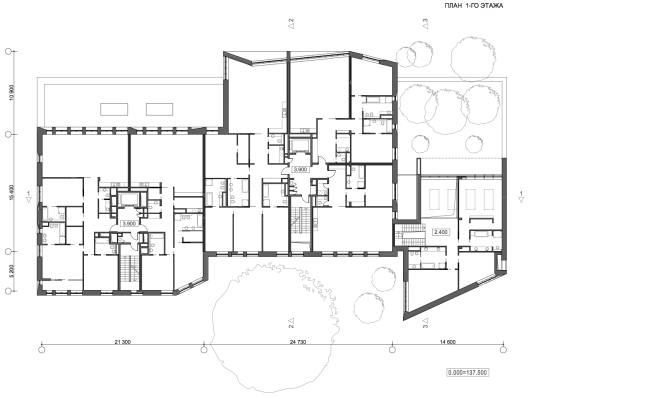
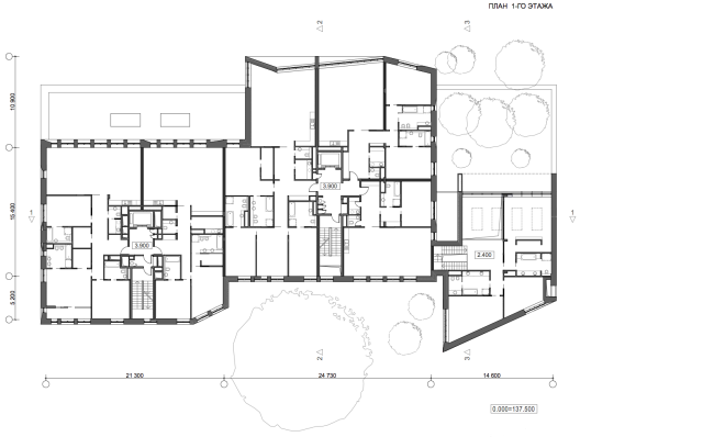
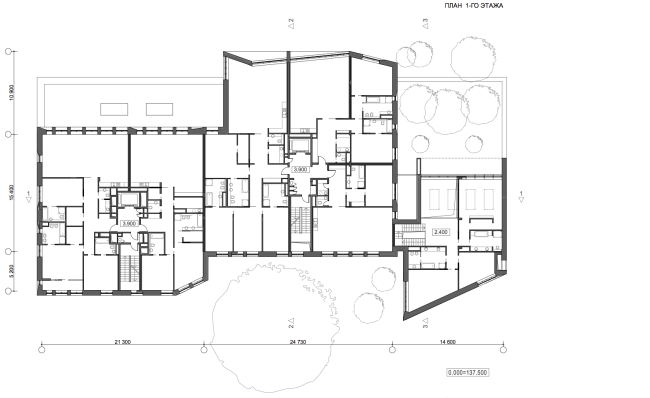
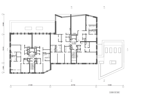
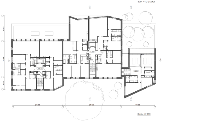
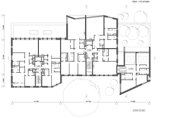
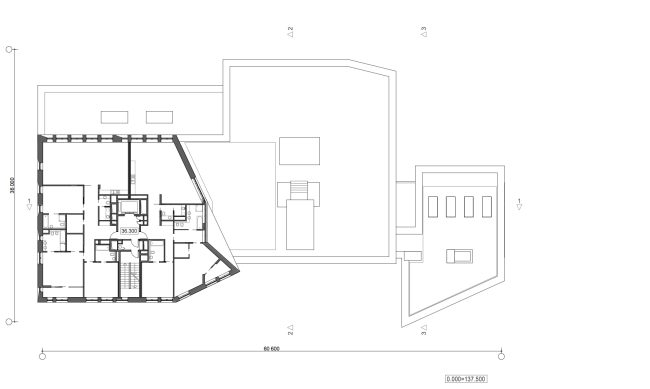
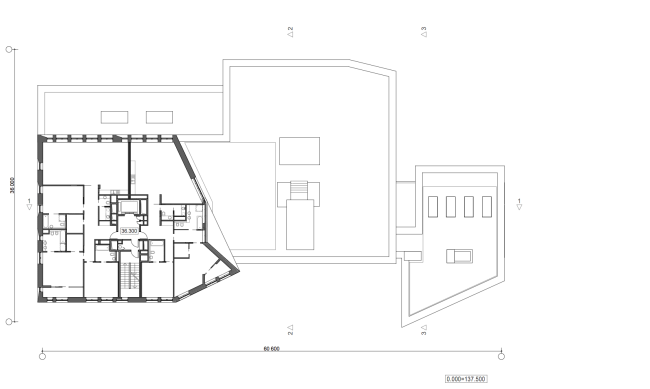
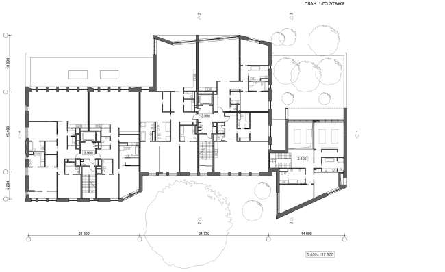
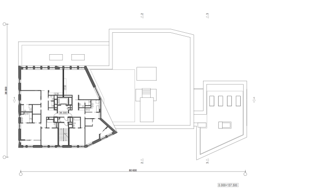
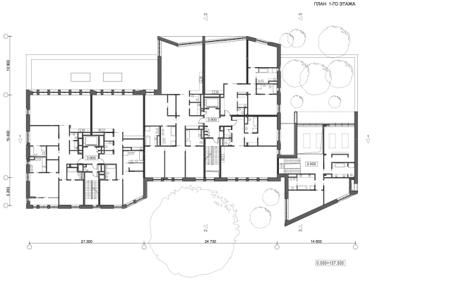
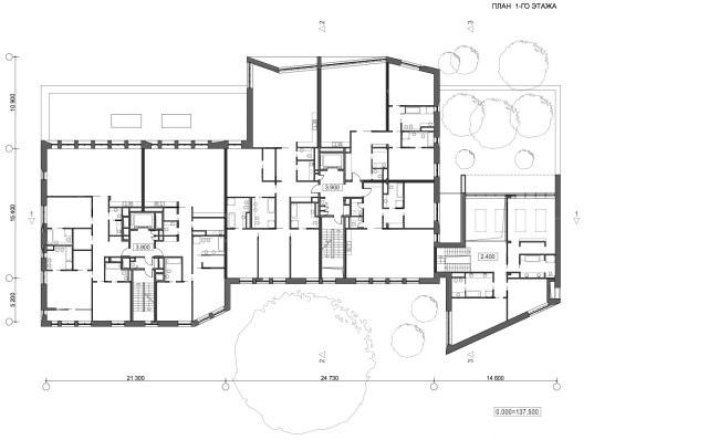
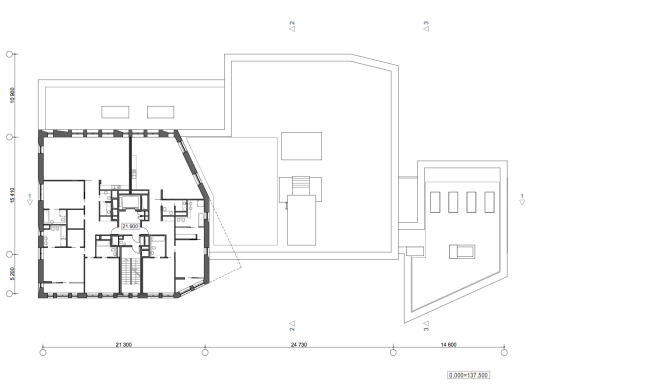
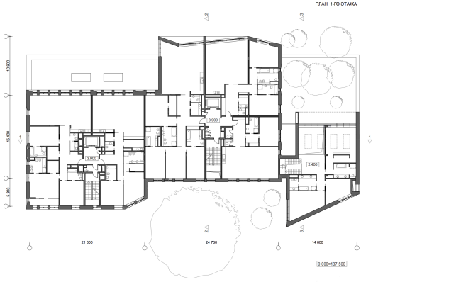
Жилой дом с подземной автостоянкой на ул. Бурденко. План 1 этажа © Сергей Скуратов ARCHITECTS
Жилой дом с подземной автостоянкой на ул. Бурденко. План 1 этажа © Сергей Скуратов ARCHITECTS
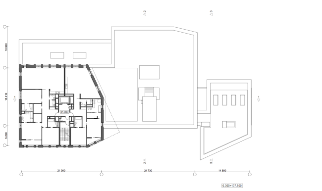
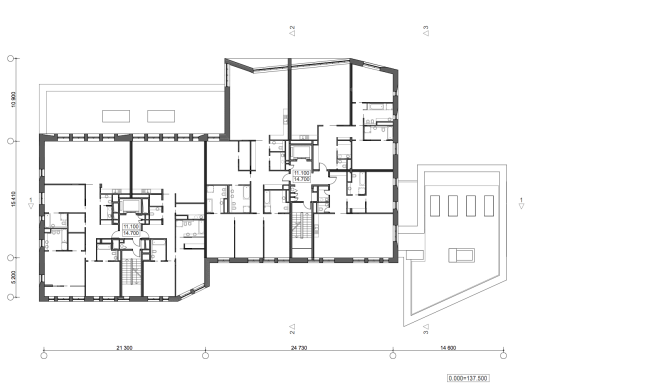
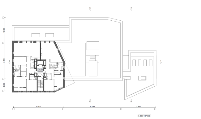
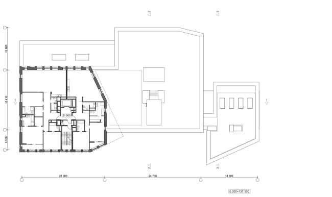
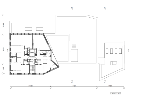
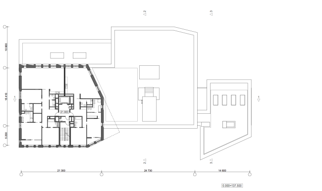
Жилой дом с подземной автостоянкой на ул. Бурденко. План 2 этажа © Сергей Скуратов ARCHITECTS
Жилой дом с подземной автостоянкой на ул. Бурденко. План 2 этажа © Сергей Скуратов ARCHITECTS
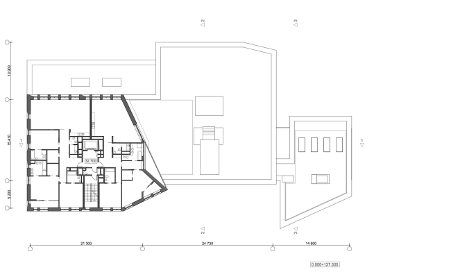
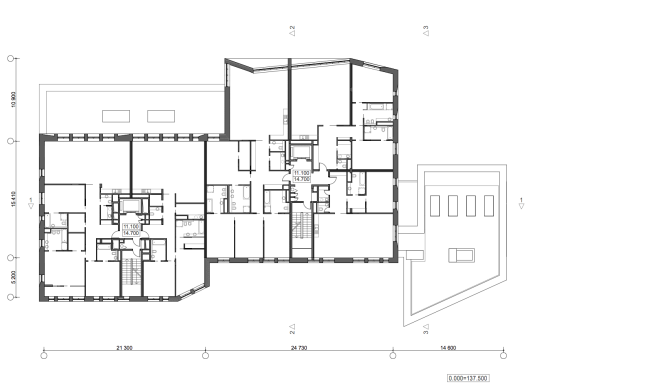
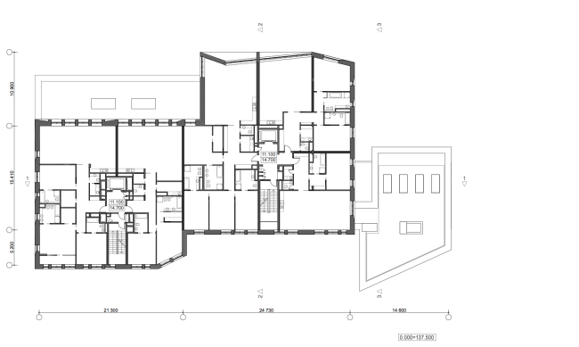
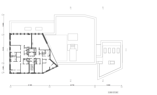
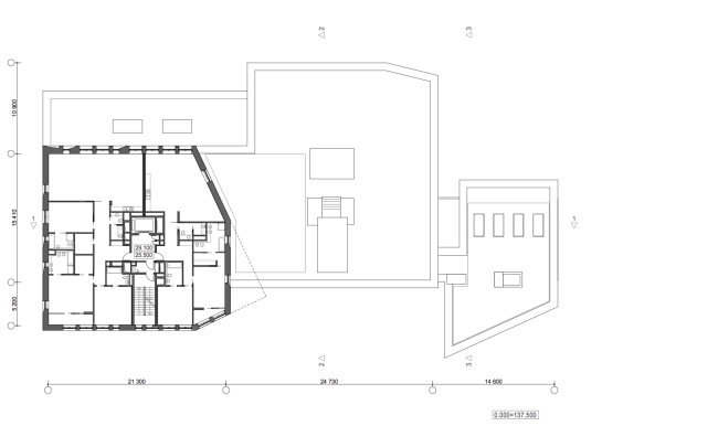
Жилой дом с подземной автостоянкой на ул. Бурденко. План 3-4 этажей © Сергей Скуратов ARCHITECTS
Жилой дом с подземной автостоянкой на ул. Бурденко. План 3-4 этажей © Сергей Скуратов ARCHITECTS
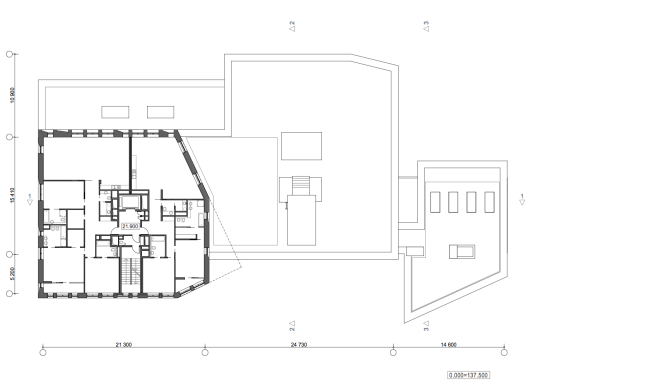
Жилой дом с подземной автостоянкой на ул. Бурденко. План 5 этажа © Сергей Скуратов ARCHITECTS
Жилой дом с подземной автостоянкой на ул. Бурденко. План 5 этажа © Сергей Скуратов ARCHITECTS
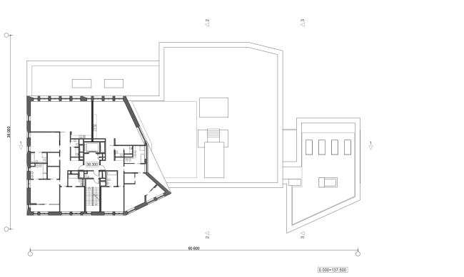
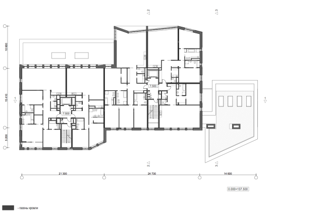
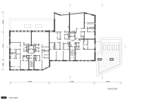
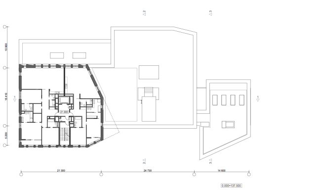
Жилой дом с подземной автостоянкой на ул. Бурденко. План 6 этажа © Сергей Скуратов ARCHITECTS
Жилой дом с подземной автостоянкой на ул. Бурденко. План 6 этажа © Сергей Скуратов ARCHITECTS
Жилой дом с подземной автостоянкой на ул. Бурденко. План 7-8 этажей © Сергей Скуратов ARCHITECTS
Жилой дом с подземной автостоянкой на ул. Бурденко. План 7-8 этажей © Сергей Скуратов ARCHITECTS
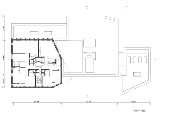
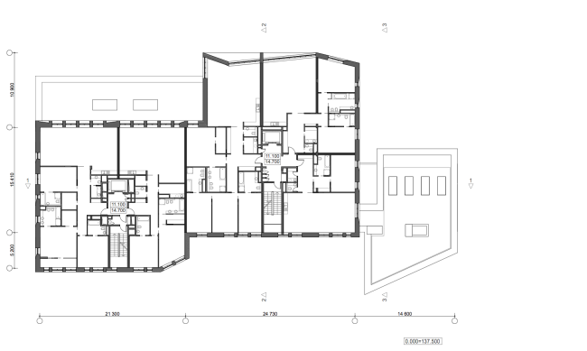
Жилой дом с подземной автостоянкой на ул. Бурденко. План 9 этажа © Сергей Скуратов ARCHITECTS
Жилой дом с подземной автостоянкой на ул. Бурденко. План 9 этажа © Сергей Скуратов ARCHITECTS
Жилой дом с подземной автостоянкой на ул. Бурденко. План 10 этажа © Сергей Скуратов ARCHITECTS
Жилой дом с подземной автостоянкой на ул. Бурденко. План 10 этажа © Сергей Скуратов ARCHITECTS
Жилой дом с подземной автостоянкой на ул. Бурденко. Технический этаж © Сергей Скуратов ARCHITECTS
Жилой дом с подземной автостоянкой на ул. Бурденко. Технический этаж © Сергей Скуратов ARCHITECTS
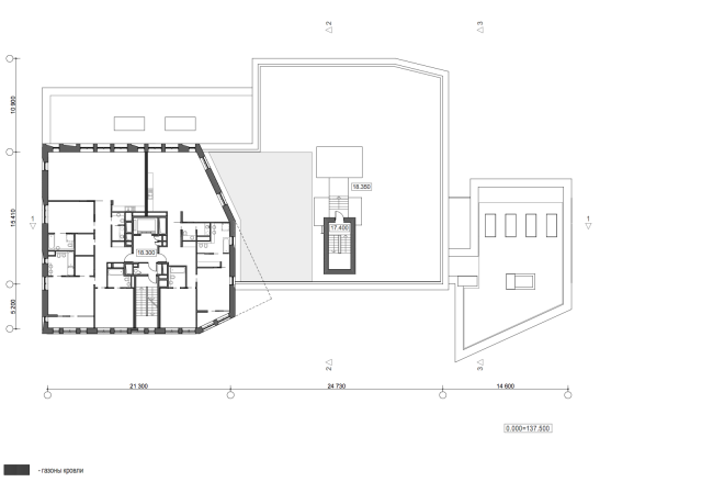
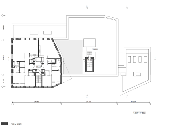
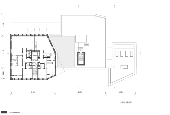
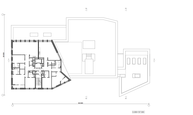
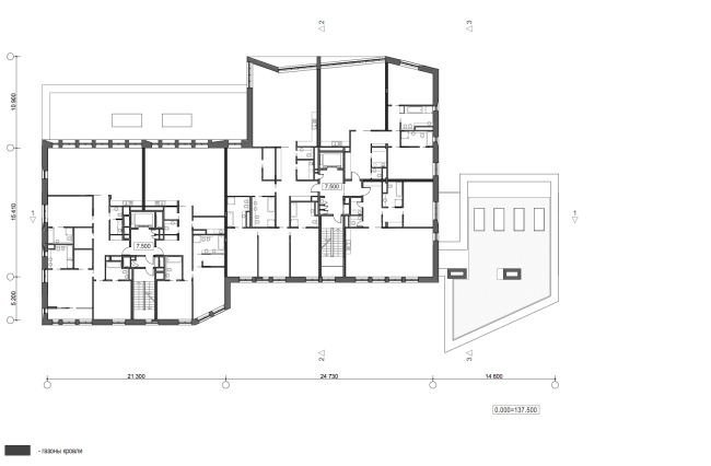
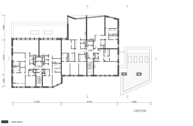
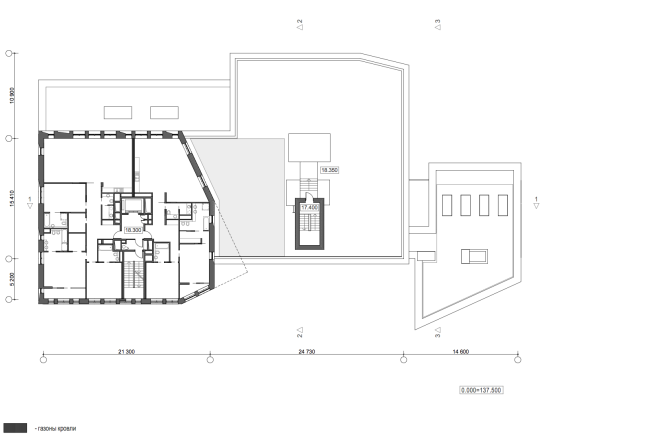
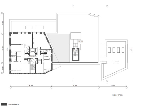
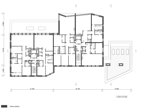
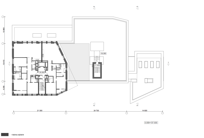
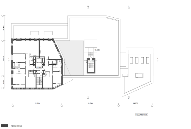
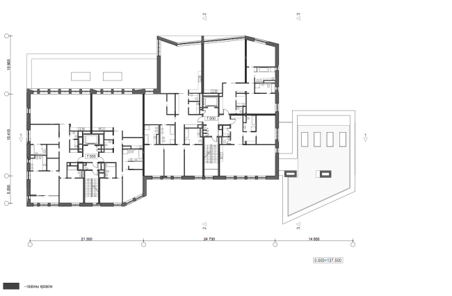
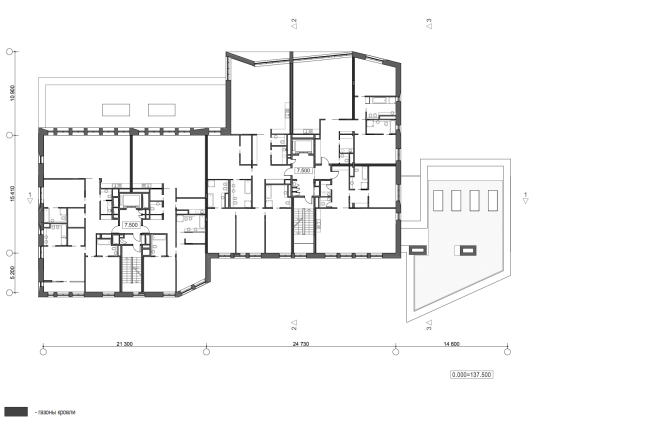
Жилой дом с подземной автостоянкой на ул. Бурденко. План кровли © Сергей Скуратов ARCHITECTS
Жилой дом с подземной автостоянкой на ул. Бурденко. План кровли © Сергей Скуратов ARCHITECTS
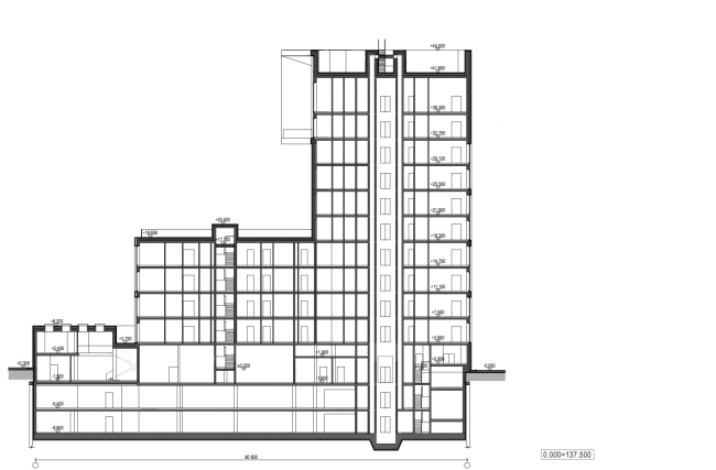
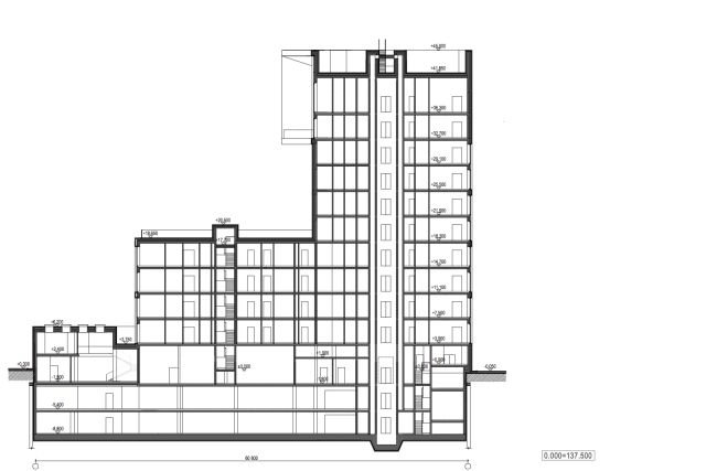
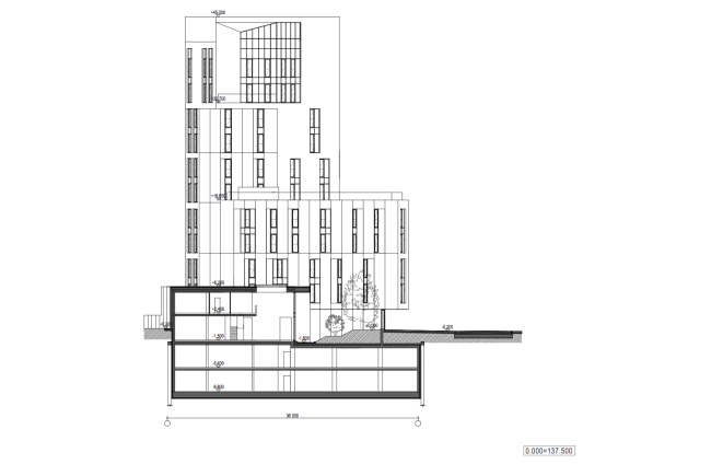
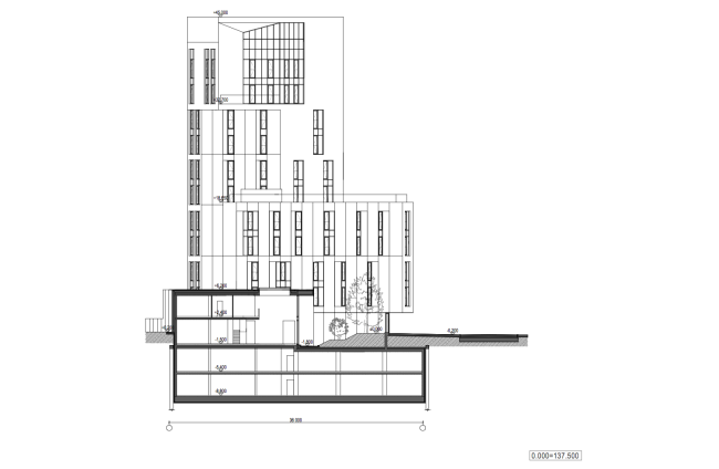
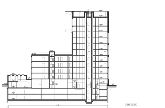
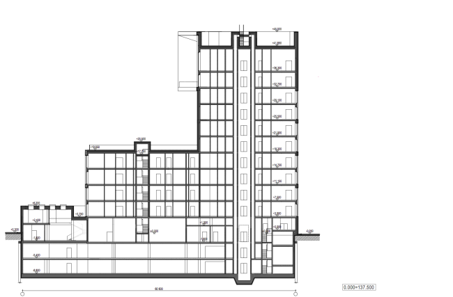
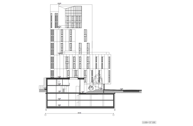
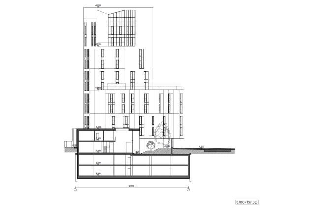
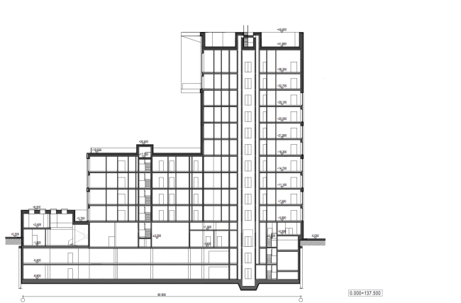
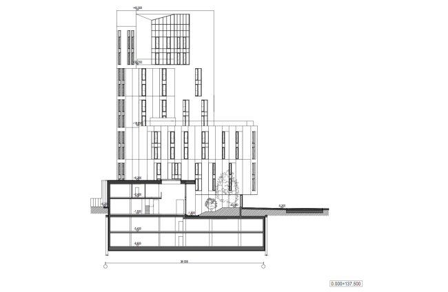
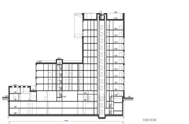
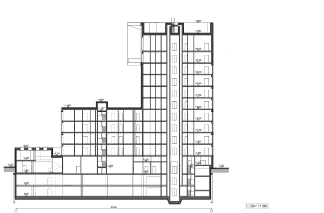
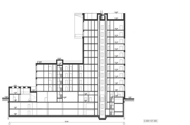
Жилой дом с подземной автостоянкой на ул. Бурденко. Разрез © Сергей Скуратов ARCHITECTS
Жилой дом с подземной автостоянкой на ул. Бурденко. Разрез © Сергей Скуратов ARCHITECTS
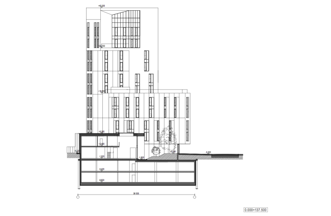
Жилой дом с подземной автостоянкой на ул. Бурденко. Разрез © Сергей Скуратов ARCHITECTS
Жилой дом с подземной автостоянкой на ул. Бурденко. Разрез © Сергей Скуратов ARCHITECTS