Размещено на портале Архи.ру (www.archi.ru)

30.09.2016

Парк имени советской промышленности

Иван Костин
Объект:
«Волковская»
Адрес:
Россия, Санкт-Петербург.
«Екатерингоф»
Адрес:
Россия, Санкт-Петербург.
Проект «Французский Ковш»
Адрес:
Россия, Санкт-Петербург.
Мастерская:
Евгений Герасимов и партнеры
Tchoban Voss Architekten
Transborder Studio
Helin & Co
МЛА+
АБ Рождественка
Земцов, Кондиайн и партнеры
Студия 44
ТПО «Резерв»
«Яузапроект»
Авторский коллектив:
Анна Кутилина, Анастасия Лакрисенко

Девять участников конкурса «Серый пояс. Преобразования» предложили создать на индустриальных окраинах Петербурга парковую зону.

Серый пояс. Преобразование. Фотография © Иван Костин, 2016
Серый пояс. Преобразование. Фотография © Иван Костин, 2016

Выставка «Серый пояс. Преобразования» открылась в эрмитажном корпусе Генштаба 26 сентября. В небольшую экспозицию вошли конкурсные проекты российских и зарубежных мастерских, посвященные градостроительному переосмыслению бывших промышленных территорий на юге Петербурга. Открытие прошло в рамках II международного «Форума пространственного развития», в программу которого входило множество докладов и пленарных заседаний, посвященных модной ныне теме «комфортной городской среды». Ученые-урбанисты, архитекторы, философы и государственные чиновники два дня усиленно обсуждали судьбу и «глобальную миссию» российских городов. Выставка «Серый пояс. Преобразования» стала одним из мероприятий форума, далеко не центральным. Только визит губернатора Георгия Полтавченко и директора Эрмитажа Михаила Пиотровского придал мероприятию особый вес.
Серый пояс. Преобразование. Фотография © Иван Костин, 2016
Серый пояс. Преобразование. Фотография © Иван Костин, 2016

Проблема «серого пояса» давно обсуждается в городе. Рабочие окраины начала XX века, превратившиеся после революции в гигантские промышленные районы, ставят серьезные вопросы перед властями. Не совсем понятно, что делать с целыми кварталами цехов, складов, проектных институтов и прочим наследием ленинградской промышленности.
Серый пояс. Преобразование. Фотография © Иван Костин, 2016
Серый пояс. Преобразование. Фотография © Иван Костин, 2016

КГА объявил закрытый конкурс в мае этого года. Авторы должны были «предложить концепцию пространственного развития территории в границах около 4000 га на западе от реки Екатерингофки и до Невы на востоке, от Обводного канала на севере и до кварталов жилых районов на юге, а также проиллюстрировать возможности выполнения концепции на примере преобразования одной из «пилотных» территорий». Между архитектурными бюро, отобранными жюри по портфолио, с помощью жребия распределили задачи. Пилотные проекты для территории «Волковская» согласно жеребьевке проектировали финкое «Helin&Co», «Студия 44», голландцы MLA+ и петербургская «Студия 44». «Екатерингоф» достался москвичам: ТПО «Резерв», «Рождественке» и «Яузапроекту». А территорию «Французского ковша» отдали норвежской Transborder Studio, бюро Земцов-Кондиайн и группе Евгения Герасимова и Сергея Чобана.

Французский ковш
Чобан & Герасимов / Петербург-Москва
Евгений Герасимов & Сергей Чобан, Петербург-Москва. Концепция развития «Серого пояса» © Евгений Герасимов и партнеры, nps tchoban voss
Евгений Герасимов & Сергей Чобан, Петербург-Москва. Концепция развития «Серого пояса» © Евгений Герасимов и партнеры, nps tchoban voss

Консорциум Евгения Герасимова и Сергея Чобана разработал проект, согласно которому около половины территории должны занять парки городского и районного значения. Непосредственные авторы проекта Анна Кутилина и Анастасия Лакрисенко сообщили: их основной идеей было создание «второго легкого» для Санкт-Петербурга, призванного дополнить Крестовский остров. Следовательно, архитекторы предложили озеленить бывшие промышленные территории на юге города. Проект предполагает также вынесение в преобразованный «серый пояс» городских больниц, которые сейчас занимают исторические здания в центре города. Освобожденные здания можно было бы отдать под гостиницы – считают авторы. Вдоль Обводного канала мог бы раскинуться ансамбль «музейного ожерелья». Архитекторы также предложили обустроить на реконструируемой территории новый зоопарк, а на месте Кировского завода – инновационный центр.
Концепция преобразования «Серого пояса». Консорциум трех архитектурных мастерских © Евгений Герасимов и партнеры,  SPEECH, nps tchoban voss
Концепция преобразования «Серого пояса». Консорциум трех архитектурных мастерских © Евгений Герасимов и партнеры, SPEECH, nps tchoban voss
Евгений Герасимов & Сергей Чобан, Петербург-Москва. Концепция развития «Серого пояса» © Евгений Герасимов и партнеры, nps tchoban voss
Евгений Герасимов & Сергей Чобан, Петербург-Москва. Концепция развития «Серого пояса» © Евгений Герасимов и партнеры, nps tchoban voss
Концепция преобразования «Серого пояса». Консорциум трех архитектурных мастерских © Евгений Герасимов и партнеры,  SPEECH, nps tchoban voss
Концепция преобразования «Серого пояса». Консорциум трех архитектурных мастерских © Евгений Герасимов и партнеры, SPEECH, nps tchoban voss
Евгений Герасимов & Сергей Чобан, Петербург-Москва. Концепция развития «Серого пояса» © Евгений Герасимов и партнеры, nps tchoban voss
Евгений Герасимов & Сергей Чобан, Петербург-Москва. Концепция развития «Серого пояса» © Евгений Герасимов и партнеры, nps tchoban voss
Евгений Герасимов & Сергей Чобан, Петербург-Москва. Концепция развития «Серого пояса» © Евгений Герасимов и партнеры, nps tchoban voss
Евгений Герасимов & Сергей Чобан, Петербург-Москва. Концепция развития «Серого пояса» © Евгений Герасимов и партнеры, nps tchoban voss
Евгений Герасимов & Сергей Чобан, Петербург-Москва. Концепция развития «Серого пояса». Планшет © Евгений Герасимов и партнеры, nps tchoban voss
Евгений Герасимов & Сергей Чобан, Петербург-Москва. Концепция развития «Серого пояса». Планшет © Евгений Герасимов и партнеры, nps tchoban voss


Земцов, Кондиайн и партнёры / Петербург
Земцов, Кондиайн и партнёры, Петербург. Концепция развития «Серого пояса» © Земцов, Кондиайн и партнёры
Земцов, Кондиайн и партнёры, Петербург. Концепция развития «Серого пояса» © Земцов, Кондиайн и партнёры

Предложили создать в «сером поясе» новый бизнес-район, который мог бы сократить пульсирующую миграцию. Создание «промежуточного» пояса бизнес-активности между центром и спальными районами юга укоротит ежедневное движение горожан и разгрузит транспортную систему. Результатом должна стать новая для петербургской агломерации «полицентрическая модель развития», которая бы сделала города-спутники и спальные районы «самодостаточными центрами цивилизации».
Земцов, Кондиайн и партнёры, Петербург. Концепция развития «Серого пояса» © Земцов, Кондиайн и партнёры
Земцов, Кондиайн и партнёры, Петербург. Концепция развития «Серого пояса» © Земцов, Кондиайн и партнёры
Земцов, Кондиайн и партнёры, Петербург. Концепция развития «Серого пояса» © Земцов, Кондиайн и партнёры
Земцов, Кондиайн и партнёры, Петербург. Концепция развития «Серого пояса» © Земцов, Кондиайн и партнёры
Земцов, Кондиайн и партнёры, Петербург. Концепция развития «Серого пояса» © Земцов, Кондиайн и партнёры
Земцов, Кондиайн и партнёры, Петербург. Концепция развития «Серого пояса» © Земцов, Кондиайн и партнёры
Земцов, Кондиайн и партнёры, Петербург. Концепция развития «Серого пояса» © Земцов, Кондиайн и партнёры
Земцов, Кондиайн и партнёры, Петербург. Концепция развития «Серого пояса» © Земцов, Кондиайн и партнёры
Земцов, Кондиайн и партнёры, Петербург. Концепция развития «Серого пояса» © Земцов, Кондиайн и партнёры
Земцов, Кондиайн и партнёры, Петербург. Концепция развития «Серого пояса» © Земцов, Кондиайн и партнёры
Земцов, Кондиайн и партнёры, Петербург. Концепция развития «Серого пояса». Планшет © Земцов, Кондиайн и партнёры
Земцов, Кондиайн и партнёры, Петербург. Концепция развития «Серого пояса». Планшет © Земцов, Кондиайн и партнёры


Transborder Studio / Норвегия
Transborder Studio, Норвегия. Концепция развития «Серого пояса» © Transborder Studio
Transborder Studio, Норвегия. Концепция развития «Серого пояса» © Transborder Studio

Цель проекта – использование в качестве инструментов устойчивого развития существующих ресурсов «серого» пояса, а именно зеленых и синих (водных) элементов ландшафта, индустриального наследия и существующих систем общественной инфраструктуры. Концепция Transborder Studio включает в себя ландшафтную стратегию создания высокоэффективных экосистем, стратегию обустройства экологичных производственных территорий вдоль транспортных коридоров и стратегию хабов – эпицентров повышенной плотности вокруг станций метрополитена. Эти стратегии закладывают фундамент для «зеленого» будущего не только «серого» пояса, но и всего Санкт-Петербурга.

Ландшафтная стратегия проекта – «Четыре больших парка» (Приморский парк Екатерингоф, Линейный парк, парк реки Волковки и парк Невской набережной): их экосистемы дадут городу очищение воздуха и почвы, сбор и фильтрацию дождевой воды, рост биоразнообразия и производство энергии.

«Буфер продуктивности» – это стратегия расположения индустриальных зон «серого» пояса, включающих крупные производства, зоны логистики и ремонта в соответствии с принципами устойчивого развития. Стратегия направлена на активную эксплуатацию пространств вокруг загрязненных строений и элементов инфраструктуры и предусматривает их превращение в эффективные промышленные зоны и инновационные ландшафты.

«Десять историй «серого» пояса» – стратегия, направленная на устройство десяти центров с плотной застройкой смешанной функции. Эти хабы включают в себя офисы для «интеллектуального» бизнеса, культурно-образовательные, торговые и общественные учреждения, жилье. Авторы проекта предлагают сконцентрировать рост вокруг существующих и планируемых станций метро «cерого» пояса, чтобы развивать там «транзит-ориентированную» застройку и инфраструктуру.
Transborder Studio, Норвегия. Концепция развития «Серого пояса» © Transborder Studio
Transborder Studio, Норвегия. Концепция развития «Серого пояса» © Transborder Studio
Transborder Studio, Норвегия. Концепция развития «Серого пояса» © Transborder Studio
Transborder Studio, Норвегия. Концепция развития «Серого пояса» © Transborder Studio
Transborder Studio, Норвегия. Концепция развития «Серого пояса» © Transborder Studio
Transborder Studio, Норвегия. Концепция развития «Серого пояса» © Transborder Studio
Transborder Studio, Норвегия. Концепция развития «Серого пояса» © Transborder Studio
Transborder Studio, Норвегия. Концепция развития «Серого пояса» © Transborder Studio
Transborder Studio, Норвегия. Концепция развития «Серого пояса» © Transborder Studio
Transborder Studio, Норвегия. Концепция развития «Серого пояса» © Transborder Studio
Transborder Studio, Норвегия. Концепция развития «Серого пояса» © Transborder Studio
Transborder Studio, Норвегия. Концепция развития «Серого пояса» © Transborder Studio
Transborder Studio, Норвегия. Концепция развития «Серого пояса» © Transborder Studio
Transborder Studio, Норвегия. Концепция развития «Серого пояса» © Transborder Studio
Transborder Studio, Норвегия. Концепция развития «Серого пояса» © Transborder Studio
Transborder Studio, Норвегия. Концепция развития «Серого пояса» © Transborder Studio
Transborder Studio, Норвегия. Концепция развития «Серого пояса» © Transborder Studio
Transborder Studio, Норвегия. Концепция развития «Серого пояса» © Transborder Studio
Transborder Studio, Норвегия. Концепция развития «Серого пояса» © Transborder Studio
Transborder Studio, Норвегия. Концепция развития «Серого пояса» © Transborder Studio
Transborder Studio, Норвегия. Концепция развития «Серого пояса». Планшет, пересъемка Ивана Костина, 2016
Transborder Studio, Норвегия. Концепция развития «Серого пояса». Планшет, пересъемка Ивана Костина, 2016
***

Екатерингоф
ТПО «Резерв» / Москва

ТПО «Резерв», Москва. Концепция развития «Серого пояса» © ТПО «Резерв»
ТПО «Резерв», Москва. Концепция развития «Серого пояса» © ТПО «Резерв»

Московское бюро также предлагает превратить «серый пояс» в зелёный, впрочем, создав в новых районах ограниченные кластеры комфортной застройки. Отличительная черта проекта – концепция «островов»: обособленных прямоугольных кварталов, размещённых в озеленённом пространстве. Их соединяет продуманная транспортная система, состоящая из больших магистралей и нескольких развязок районного масштаба. Пилотный проект Екатерингофского парка предполагает умеренную трансформацию его в более комфортный и крупный центр городского досуга.
ТПО «Резерв», Москва. Концепция развития «Серого пояса» © ТПО «Резерв»
ТПО «Резерв», Москва. Концепция развития «Серого пояса» © ТПО «Резерв»
ТПО «Резерв», Москва. Концепция развития «Серого пояса» © ТПО «Резерв»
ТПО «Резерв», Москва. Концепция развития «Серого пояса» © ТПО «Резерв»
ТПО «Резерв», Москва. Концепция развития «Серого пояса» © ТПО «Резерв»
ТПО «Резерв», Москва. Концепция развития «Серого пояса» © ТПО «Резерв»
ТПО «Резерв», Москва. Концепция развития «Серого пояса» © ТПО «Резерв»
ТПО «Резерв», Москва. Концепция развития «Серого пояса» © ТПО «Резерв»
ТПО «Резерв», Москва. Концепция развития «Серого пояса». Планшет © ТПО «Резерв»
ТПО «Резерв», Москва. Концепция развития «Серого пояса». Планшет © ТПО «Резерв»


«Яуза-проект» / Москва
«Яузапроект», Москва. Концепция развития «Серого пояса» © Яузапроект
«Яузапроект», Москва. Концепция развития «Серого пояса» © Яузапроект

Также сфокусировались на садово-парковой теме, но с сильным туристическим уклоном, предлагая вынести «Адмиралтейские верфи» и создать единую большую набережную от Летнего сада до парка «Екатерингоф». В остальном, по проекту бюро, в «серый пояс» умеренно вкрапляются парки, жилые и деловые зоны. «Яуза-проект» предлагает одно из самых лёгких, по сравнению с коллегами, вторжений в сложившуюся застройку района.
«Яузапроект», Москва. Концепция развития «Серого пояса» © Яузапроект
«Яузапроект», Москва. Концепция развития «Серого пояса» © Яузапроект
«Яузапроект», Москва. Концепция развития «Серого пояса» © Яузапроект
«Яузапроект», Москва. Концепция развития «Серого пояса» © Яузапроект
«Яузапроект», Москва. Концепция развития «Серого пояса» © Яузапроект
«Яузапроект», Москва. Концепция развития «Серого пояса» © Яузапроект
«Яузапроект», Москва. Концепция развития «Серого пояса». Планшет © Яузапроект
«Яузапроект», Москва. Концепция развития «Серого пояса». Планшет © Яузапроект


«Рождественка» / Москва
АБ Рождественка, Москва. Концепция развития «Серого пояса» © АБ Рождественка
АБ Рождественка, Москва. Концепция развития «Серого пояса» © АБ Рождественка

Проект предусматривает поэтапное расширение Обводного канала – архитекторы предложили сделать его судоходным и превратить в рекреационную зону. Также преложено развитие легкорельсового транспорта на основе железнодорожных путей: в частности, запуск экспресса от Пулково до Балтийского вокзала. Планируется транспортный хаб по дороге из Москвы в Хельсинки. На месте Кировского завода появляется петербургский «Сити».
АБ Рождественка, Москва. Концепция развития «Серого пояса» © АБ Рождественка
АБ Рождественка, Москва. Концепция развития «Серого пояса» © АБ Рождественка
АБ Рождественка, Москва. Концепция развития «Серого пояса» © АБ Рождественка
АБ Рождественка, Москва. Концепция развития «Серого пояса» © АБ Рождественка
АБ Рождественка, Москва. Концепция развития «Серого пояса» © АБ Рождественка
АБ Рождественка, Москва. Концепция развития «Серого пояса» © АБ Рождественка
АБ Рождественка, Москва. Концепция развития «Серого пояса». Планшет © АБ Рождественка
АБ Рождественка, Москва. Концепция развития «Серого пояса». Планшет © АБ Рождественка
***

Волковская
Helin & Co. / Финляндия

Helin & Co, Финляндия. Концепция развития «Серого пояса» © Helin & Co
Helin & Co, Финляндия. Концепция развития «Серого пояса» © Helin & Co

Также развивает экологическую тему, но делает акцент на деревянной архитектуре. На месте бывших фабрик и железных дорог возникает полноценный эко-город. Застройка – смешанная, сочетает жилые и деловые кварталы. Доминировать же будет озелененное пространство. Только Кировский завод в проекте сохраняется – как важный промышленный объект.
Helin & Co, Финляндия. Концепция развития «Серого пояса» © Helin & Co
Helin & Co, Финляндия. Концепция развития «Серого пояса» © Helin & Co
Helin & Co, Финляндия. Концепция развития «Серого пояса» © Helin & Co
Helin & Co, Финляндия. Концепция развития «Серого пояса» © Helin & Co
Helin & Co, Финляндия. Концепция развития «Серого пояса» © Helin & Co
Helin & Co, Финляндия. Концепция развития «Серого пояса» © Helin & Co
Helin & Co, Финляндия. Концепция развития «Серого пояса» © Helin & Co
Helin & Co, Финляндия. Концепция развития «Серого пояса» © Helin & Co
Helin & Co, Финляндия. Концепция развития «Серого пояса» © Helin & Co
Helin & Co, Финляндия. Концепция развития «Серого пояса» © Helin & Co
Helin & Co, Финляндия. Концепция развития «Серого пояса» © Helin & Co
Helin & Co, Финляндия. Концепция развития «Серого пояса» © Helin & Co
Helin & Co, Финляндия. Концепция развития «Серого пояса» © Helin & Co
Helin & Co, Финляндия. Концепция развития «Серого пояса» © Helin & Co
Helin & Co, Финляндия. Концепция развития «Серого пояса» © Helin & Co
Helin & Co, Финляндия. Концепция развития «Серого пояса» © Helin & Co
Helin & Co, Финляндия. Концепция развития «Серого пояса» © Helin & Co
Helin & Co, Финляндия. Концепция развития «Серого пояса» © Helin & Co
Helin & Co, Финляндия. Концепция развития «Серого пояса». Планшет, пересъемка Ивана Костина, 2016
Helin & Co, Финляндия. Концепция развития «Серого пояса». Планшет, пересъемка Ивана Костина, 2016


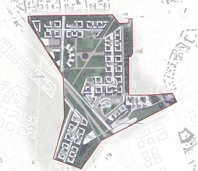
«Студия 44» / Петербург
«Студия 44», Петербург. Концепция развития «Серого пояса» © Студия 44
«Студия 44», Петербург. Концепция развития «Серого пояса» © Студия 44

Проект мастерской «Студия 44» Никиты Явейна в наибольшей степени предлагает развитие того, что уже имеется на территории. Вдоль существующей железной дороги южного полукольца возникает автомагистраль, попутно создаются «зелёные пути» для пешеходов, велосипедистов и альтернативных видов транспорта. Как сообщил сам архитектор, «основной идеологией» проекта является «преобразование» индустриального района – проект «не предусматривает выселение промышленности и её уничтожение». Впрочем, к уже существующим промышленным постройкам примкнут и жилые кварталы различного класса.
«Студия 44», Петербург. Концепция развития «Серого пояса» © Студия 44
«Студия 44», Петербург. Концепция развития «Серого пояса» © Студия 44
«Студия 44», Петербург. Концепция развития «Серого пояса» © Студия 44
«Студия 44», Петербург. Концепция развития «Серого пояса» © Студия 44
«Студия 44», Петербург. Концепция развития «Серого пояса» © Студия 44
«Студия 44», Петербург. Концепция развития «Серого пояса» © Студия 44
«Студия 44», Петербург. Концепция развития «Серого пояса» © Студия 44
«Студия 44», Петербург. Концепция развития «Серого пояса» © Студия 44
«Студия 44», Петербург. Концепция развития «Серого пояса» © Студия 44
«Студия 44», Петербург. Концепция развития «Серого пояса» © Студия 44
«Студия 44», Петербург. Концепция развития «Серого пояса» © Студия 44
«Студия 44», Петербург. Концепция развития «Серого пояса» © Студия 44
«Студия 44», Петербург. Концепция развития «Серого пояса» © Студия 44
«Студия 44», Петербург. Концепция развития «Серого пояса» © Студия 44
«Студия 44», Петербург. Концепция развития «Серого пояса» © Студия 44
«Студия 44», Петербург. Концепция развития «Серого пояса» © Студия 44
«Студия 44», Петербург. Концепция развития «Серого пояса» © Студия 44
«Студия 44», Петербург. Концепция развития «Серого пояса» © Студия 44
«Студия 44», Петербург. Концепция развития «Серого пояса» © Студия 44
«Студия 44», Петербург. Концепция развития «Серого пояса» © Студия 44
«Студия 44», Петербург. Концепция развития «Серого пояса». Планшет © Студия 44
«Студия 44», Петербург. Концепция развития «Серого пояса». Планшет © Студия 44


MLA+ / Нидерланды
MLA+, Голландия. Концепция развития «Серого пояса» © MLA+
MLA+, Голландия. Концепция развития «Серого пояса» © MLA+

Близок к подходу «Студии 44» проект «Maccreanor Lavington Architects – MLA+», который также нацелен на сохранение промышленного наследия. Впрочем, делается это с полной утратой изначальной индустриальной функции: фабрики и железнодорожные развязки сохраняются, но в виде лофтов или общественных пространств. Перед нами типичная «джентрификация» в стиле западных мегаполисов.
MLA+, Голландия. Концепция развития «Серого пояса» © MLA+
MLA+, Голландия. Концепция развития «Серого пояса» © MLA+
MLA+, Голландия. Концепция развития «Серого пояса» © MLA+
MLA+, Голландия. Концепция развития «Серого пояса» © MLA+
MLA+, Голландия. Концепция развития «Серого пояса» © MLA+
MLA+, Голландия. Концепция развития «Серого пояса» © MLA+
MLA+, Голландия. Концепция развития «Серого пояса» © MLA+
MLA+, Голландия. Концепция развития «Серого пояса» © MLA+
MLA+, Голландия. Концепция развития «Серого пояса». Планшет © MLA+
MLA+, Голландия. Концепция развития «Серого пояса». Планшет © MLA+
***

Победителей не будет. Ответственный секретарь Анна Катханова назвала конкурс «набором предложений», на основе которых архитектурные власти будут разрабатывать окончательный план. В руководстве города довольны работами конкурсантов, которые, по словами Катхановой, «погрузились» в проблематику и продемонстрировали вовсе не «формальное» отношение к конкурсу. «Серый пояс» положил «начало диалога» по данной градостроительной проблеме и власти города рассчитывают на то, что идеи архитекторов помогут выработать единую стратегию развития данной территории.
Серый пояс. Преобразование. Фотография © Иван Костин, 2016
Серый пояс. Преобразование. Фотография © Иван Костин, 2016

«Серый пояс. Преобразования» демонстрирует важные тенденции в современной российской градостроительной практике, а также культурные и социальные сдвиги в обществе. Кажется, что о промышленном будущем российских городов больше стараются не думать. Петербург будущего – зелёный, постиндустриальный город. За исключением Никиты Явейна ни одно другое бюро не видит в городе серьезного индустриального потенциала. Экономика преобразованного «серого пояса», согласно большинству проектов, представляет собой довольно размытый набор «постиндустриальных» и «инновационных» бизнес-проектов, культурных центров и музеев.

Движение мысли архитекторов вполне определенно. Но вот возможна ли такая «зелёная» среда в рамках существующей пост-советской экономики? Конкурсные проекты, безусловно, открыли дискуссию о судьбе «серого пояса» Петербурга, но она еще далека от завершения. Задача заключается в том, чтобы соблюсти баланс между старым и новым, индустриальным и постиндустриальным, деловым, жилым и общественным. Иначе есть риски, что на месте «серого пояса» будет всего лишь громадный безлюдный парк. Парк имени советской промышленности.