Размещено на портале Архи.ру (www.archi.ru)

13.10.2016

Дом наизнанку

Алла Павликова
Объект:
Хэмтон Хаус
Адрес:
Россия, Москва.
Архитектор:
Роман Леонидов
Мастерская:
АБ Романа Леонидова
Авторский коллектив:
Архитекторы: Роман Леонидов, Ольга Сандакова
Дизайнер: Елена Волгина

Роман Леонидов спроектировал в Подмосковье частный жилой дом Hampton House, внутренние пространства которого перекликаются с внешней оболочкой и продолжают её, делая архитектуру дома не только лаконичной, но и целостной – согласно заветам гуру модернизма.

Хэмтон Хаус. Загородный дом. Постройка, 2016 © Архитектурное бюро Романа Леонидова
Хэмтон Хаус. Загородный дом. Постройка, 2016 © Архитектурное бюро Романа Леонидова

Дом, в котором почти сразу угадывается авторство архитектурной мастерской Романа Леонидова, построен на открытом и хорошо освещённом участке в одном из подмосковных коттеджных поселков. Внушительная площадь участка и камерное окружение позволили архитекторам создать горизонтальную композицию, расположив объем поперек двора, раскрыв окна на траву газонов и расположенный чуть в стороне лес. Заказчики дома – молодая семейная пара с детьми, ценят минимализм, чистоту и свободное пространство. Три этих качества в проекте воплотились почти идеально как во внешнем облике дома, так и в его интерьерах.
Хэмтон Хаус. Загородный дом. Постройка, 2016 © Архитектурное бюро Романа Леонидова
Хэмтон Хаус. Загородный дом. Постройка, 2016 © Архитектурное бюро Романа Леонидова
Хэмтон Хаус. Загородный дом. Постройка, 2016 © Архитектурное бюро Романа Леонидова
Хэмтон Хаус. Загородный дом. Постройка, 2016 © Архитектурное бюро Романа Леонидова
Хэмтон Хаус. Загородный дом. Постройка, 2016 © Архитектурное бюро Романа Леонидова
Хэмтон Хаус. Загородный дом. Постройка, 2016 © Архитектурное бюро Романа Леонидова

Архитекторы строго придерживались логики построения «изнутри-наружу», так что каждый выступ или заглубление обозначают собой отдельное помещение. Уже по внешней оболочке можно угадать, что скрывается внутри: в выступающем центральном блоке – двусветная гостиная, чуть левее – большая столовая, в правом вытянутом одноэтажном крыле – бассейн и спа, на крыше которого устроена открытая терраса, в левом глухом флигеле – гараж и помещения для персонала. Все части связаны между собой стеклянными галереями. Форма вырастает, таким образом, из содержания и ни одна деталь не вводит в заблуждение. Авторы видят в своём проекте черты конструктивизма и хай-тека одновременно. В глаза же бросаются присущие модернистам предельная лаконичность и функциональность.
Хэмтон Хаус. Загородный дом. Постройка, 2016 © Архитектурное бюро Романа Леонидова
Хэмтон Хаус. Загородный дом. Постройка, 2016 © Архитектурное бюро Романа Леонидова
Хэмтон Хаус. Загородный дом. Постройка, 2016 © Архитектурное бюро Романа Леонидова
Хэмтон Хаус. Загородный дом. Постройка, 2016 © Архитектурное бюро Романа Леонидова

Главный вход опознаётся не сразу. Он смещён влево, в нишу между стеклянным кубом гостиной и глухим флигелем. Прозрачные двери сливаются с остеклённым полотном стены. Не обозначен вход и козырьком, защитой от дождя ему служит небольшой балкон на втором этаже. В то же время над уличной террасой перед гостиной навесов сразу два – разнонаправленных, вырастающих один из-под другого. Верхний соотносится с масштабом плоской кровли, накрывающей все здание целиком, нижний – визуально более лёгкий, стеклянный, удерживается широкими деревянными ребрами. Очевидно, что таким образом авторы пытаются перенести все внимание на куб гостиной, расположенный на центральной оси участка. Тем самым им даётся добиться композиционного равновесия асимметричного объема.
Хэмтон Хаус. Загородный дом. Постройка, 2016 © Архитектурное бюро Романа Леонидова
Хэмтон Хаус. Загородный дом. Постройка, 2016 © Архитектурное бюро Романа Леонидова
Хэмтон Хаус. Загородный дом. Постройка, 2016 © Архитектурное бюро Романа Леонидова
Хэмтон Хаус. Загородный дом. Постройка, 2016 © Архитектурное бюро Романа Леонидова
Хэмтон Хаус. Загородный дом. Постройка, 2016 © Архитектурное бюро Романа Леонидова
Хэмтон Хаус. Загородный дом. Постройка, 2016 © Архитектурное бюро Романа Леонидова
Хэмтон Хаус. Загородный дом. Постройка, 2016 © Архитектурное бюро Романа Леонидова
Хэмтон Хаус. Загородный дом. Постройка, 2016 © Архитектурное бюро Романа Леонидова
Хэмтон Хаус. Загородный дом. Постройка, 2016 © Архитектурное бюро Романа Леонидова
Хэмтон Хаус. Загородный дом. Постройка, 2016 © Архитектурное бюро Романа Леонидова

Войдя в дом, понимаем, что его внутреннее пространство всё же устроено чуть сложнее, чем могло показаться снаружи. За просторной, наполненной светом верандой открывается длинный коридор, точнее – галерея с огромными витражами в пол. По ней можно пройти здание насквозь, минуя лестничный холл, гардеробную, столовую, гостиную, и сразу оказаться в спа-комплексе. Помимо бассейна в нём предусмотрены сауна и массажный кабинет. Со стороны двора крыло спа-комплекса целиком стеклянное, благодаря чему устанавливается визуальная связь с зоной гостиной. Избыток света отсекают жалюзи.
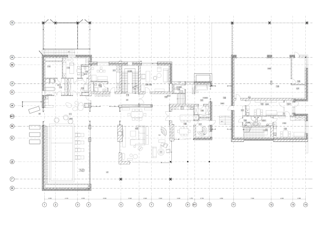
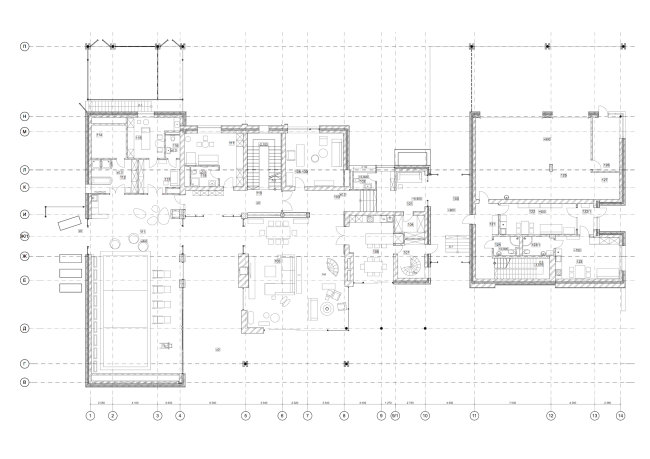
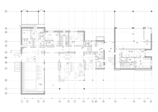
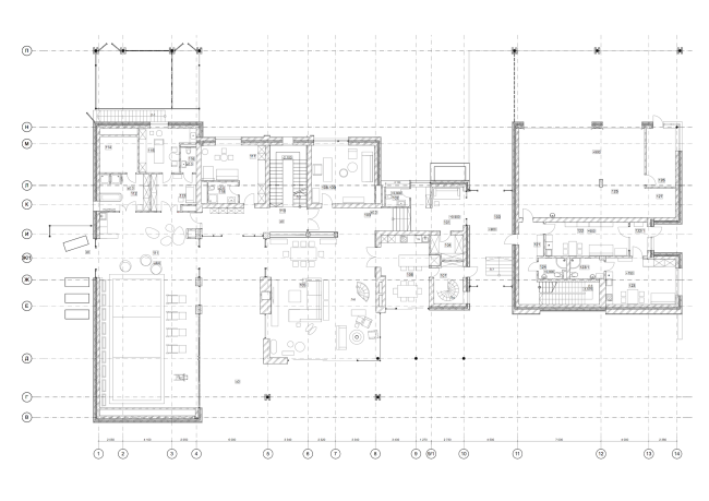
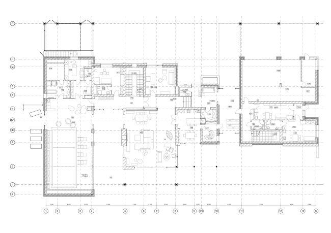
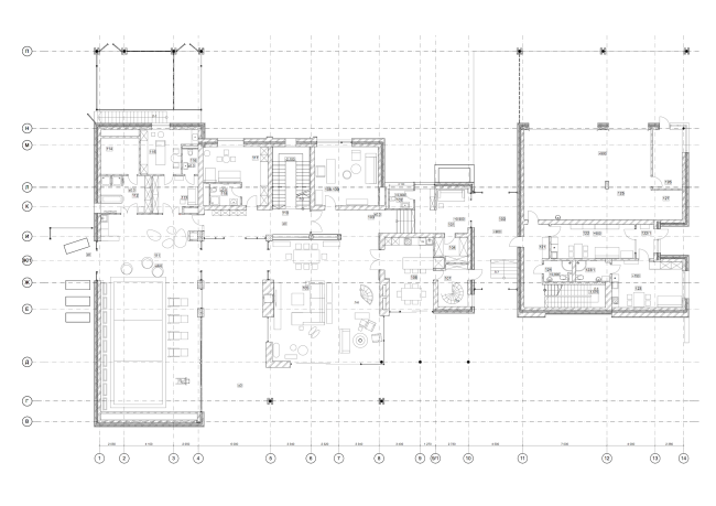
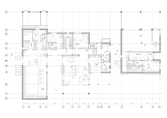
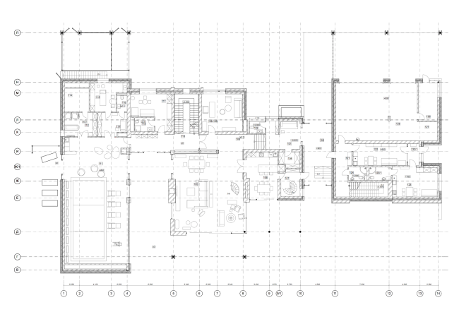
Хэмтон Хаус. Загородный дом. План 1 этажа © Архитектурное бюро Романа Леонидова
Хэмтон Хаус. Загородный дом. План 1 этажа © Архитектурное бюро Романа Леонидова
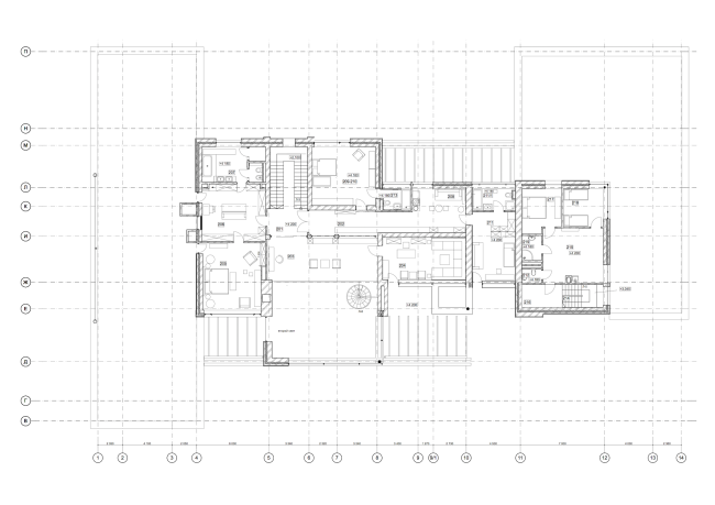
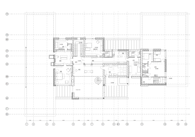
Хэмтон Хаус. Загородный дом. План 2 этажа © Архитектурное бюро Романа Леонидова
Хэмтон Хаус. Загородный дом. План 2 этажа © Архитектурное бюро Романа Леонидова
Хэмтон Хаус. Загородный дом. План подвала © Архитектурное бюро Романа Леонидова
Хэмтон Хаус. Загородный дом. План подвала © Архитектурное бюро Романа Леонидова
Хэмтон Хаус. Загородный дом. Бассейн. Постройка, 2016 © Архитектурное бюро Романа Леонидова
Хэмтон Хаус. Загородный дом. Бассейн. Постройка, 2016 © Архитектурное бюро Романа Леонидова

Если первый этаж отдан под пространства для общения, встреч и приёма гостей, то второй – приватный. Здесь размещены спальни хозяев дома и их детей, рабочий кабинет, игровая комната. Антресоль в двусветном пространстве гостиной приспособлена под библиотеку. Активно используется и цокольный этаж. Там, кроме технических помещений, предусмотрены кинотеатр, минигольф, гостевые спальни и вторая гостиная, выполненная в стиле лофт с крайне сдержанным в целом цветовым решением, но яркими акцентами мебели.
Хэмтон Хаус. Загородный дом. Антресольный этаж с библиотекой. Постройка, 2016 © Архитектурное бюро Романа Леонидова
Хэмтон Хаус. Загородный дом. Антресольный этаж с библиотекой. Постройка, 2016 © Архитектурное бюро Романа Леонидова
Хэмтон Хаус. Загородный дом. Цокольный этаж, решенный в стиле лофт. Постройка, 2016 © Архитектурное бюро Романа Леонидова
Хэмтон Хаус. Загородный дом. Цокольный этаж, решенный в стиле лофт. Постройка, 2016 © Архитектурное бюро Романа Леонидова
Хэмтон Хаус. Загородный дом. Яркие акценты мебели в гостиной в стиле лофт. Постройка, 2016 © Архитектурное бюро Романа Леонидова
Хэмтон Хаус. Загородный дом. Яркие акценты мебели в гостиной в стиле лофт. Постройка, 2016 © Архитектурное бюро Романа Леонидова

Ядром здания, как уже было сказано, служит гостиная с примыкающей к ней столовой. Пространства первого этажа разграничены достаточно условно, с помощью стеклянных перегородок, позволяющих солнечному свету почти беспрепятственно проникать в отдалённые уголки. Главные доминанты интерьера – скульптурная винтовая лестница, ведущая из гостиной на антресольный этаж и в подвал, а также камин с организованной вокруг него зоной релаксации. Камин насыщенного графитового оттенка не касается пола, буквально парит в воздухе. Не менее эффектно выглядит и лестница – черная, с изящным металлическим ограждением. Как объясняет дизайнер интерьеров Елена Волгина, основные решения были навеяны стилистикой 1950-1970 годов – «периода расцвета мебельного дизайна и активного поиска новых авангардных форм». Отсюда – активная работа с пространством вместо его декорирования и наполнения предметами.
Хэмтон Хаус. Загородный дом. Гостиная с винтовой лестницей. Постройка, 2016 © Архитектурное бюро Романа Леонидова
Хэмтон Хаус. Загородный дом. Гостиная с винтовой лестницей. Постройка, 2016 © Архитектурное бюро Романа Леонидова
Хэмтон Хаус. Загородный дом. Винтовая лестница и камин в гостиной. Постройка, 2016 © Архитектурное бюро Романа Леонидова
Хэмтон Хаус. Загородный дом. Винтовая лестница и камин в гостиной. Постройка, 2016 © Архитектурное бюро Романа Леонидова
Хэмтон Хаус. Загородный дом. Главная гостиная. Постройка, 2016 © Архитектурное бюро Романа Леонидова
Хэмтон Хаус. Загородный дом. Главная гостиная. Постройка, 2016 © Архитектурное бюро Романа Леонидова
Хэмтон Хаус. Загородный дом. Обеденный стол. Постройка, 2016 © Архитектурное бюро Романа Леонидова
Хэмтон Хаус. Загородный дом. Обеденный стол. Постройка, 2016 © Архитектурное бюро Романа Леонидова

Снаружи большую часть стен жилого дома занимает стекло и натуральный камень – сланец. Отдельные фрагменты фасадов выделены натуральным деревом, лиственницей. Те же материалы использованы и в отделке внутренних помещений. Из-за чего может показаться, что здание как будто вывернуто наизнанку. Этот фирменный приём присутствует во многих работах Романа Леонидова. Но здесь, ввиду склонности владельцев дома к минимализму, он работает особенно активно. Так, внутренние стены отделаны тем же сланцем, что и наружные, а мощение уличной террасы из серого кварцита продолжается в гостиной и столовой. Едва заметной границей между уличным и внутренним пространствами служит только тонкое витражное стекло. Потолок зашит лиственницей. Стеклянная перегородка позади обеденного стола, отделяющая его от маршевой лестницы, оформлена горизонтальными деревянными рейками, перекликающимися с фасадным планкеном. Такие же фрагменты отделки используются в спальнях и ванных комнатах.
Хэмтон Хаус. Загородный дом. Столовая. Постройка, 2016 © Архитектурное бюро Романа Леонидова
Хэмтон Хаус. Загородный дом. Столовая. Постройка, 2016 © Архитектурное бюро Романа Леонидова
Хэмтон Хаус. Загородный дом. Кабинет. Постройка, 2016 © Архитектурное бюро Романа Леонидова
Хэмтон Хаус. Загородный дом. Кабинет. Постройка, 2016 © Архитектурное бюро Романа Леонидова
Хэмтон Хаус. Загородный дом. Спальня. Постройка, 2016 © Архитектурное бюро Романа Леонидова
Хэмтон Хаус. Загородный дом. Спальня. Постройка, 2016 © Архитектурное бюро Романа Леонидова
Хэмтон Хаус. Загородный дом. Куня в цокольном этаже. Постройка, 2016 © Архитектурное бюро Романа Леонидова
Хэмтон Хаус. Загородный дом. Куня в цокольном этаже. Постройка, 2016 © Архитектурное бюро Романа Леонидова
Хэмтон Хаус. Загородный дом. Санузел. Постройка, 2016 © Архитектурное бюро Романа Леонидова
Хэмтон Хаус. Загородный дом. Санузел. Постройка, 2016 © Архитектурное бюро Романа Леонидова
Хэмтон Хаус. Загородный дом. Детские игровые комнаты. Постройка, 2016 © Архитектурное бюро Романа Леонидова
Хэмтон Хаус. Загородный дом. Детские игровые комнаты. Постройка, 2016 © Архитектурное бюро Романа Леонидова

Намеренно повторена в интерьере и общая цветовая гамма дома: холодные серые, графитовые, бежевые и белые тона разбавлены тёплыми древесными и медовыми оттенками фрагментов стен и пола из массива бирманского тика. Так совпало, что и у дизайнера Елены Волгиной, и у владельцев дома это любимая цветовая палитра. Иначе решены только детские и игровые комнаты. В них автор отошел от основных оттенков и выплеснул на стены и мебель все цвета радуги.
Хэмтон Хаус. Загородный дом. Ночная подсветка. Постройка, 2016 © Архитектурное бюро Романа Леонидова
Хэмтон Хаус. Загородный дом. Ночная подсветка. Постройка, 2016 © Архитектурное бюро Романа Леонидова
Хэмтон Хаус. Загородный дом. Свет в интерьере. Постройка, 2016 © Архитектурное бюро Романа Леонидова
Хэмтон Хаус. Загородный дом. Свет в интерьере. Постройка, 2016 © Архитектурное бюро Романа Леонидова

Немалую роль в формировании интерьера сыграло освещение. Современные точечные и накладные споты вместе с крошечными пристенными светильниками задали ритм проходных зон и лестничных маршей, линейное и встроенное освещение подчеркнуло строгую структуру разноуровневых потолков, а узнаваемые дизайнерские светильники акцентировали центральные помещения. Свет стал завершающим аккордом, который сумел наполнить жизнью и теплом сдержанные модернистские пространства, сделать их, несмотря на внушительный размер – а общая площадь дома 1500 м² – уютными и обжитыми.
Хэмтон Хаус. Загородный дом. Постройка, 2016 © Архитектурное бюро Романа Леонидова
Хэмтон Хаус. Загородный дом. Постройка, 2016 © Архитектурное бюро Романа Леонидова
Хэмтон Хаус. Загородный дом. Постройка, 2016 © Архитектурное бюро Романа Леонидова
Хэмтон Хаус. Загородный дом. Постройка, 2016 © Архитектурное бюро Романа Леонидова
Хэмтон Хаус. Загородный дом. Постройка, 2016 © Архитектурное бюро Романа Леонидова
Хэмтон Хаус. Загородный дом. Постройка, 2016 © Архитектурное бюро Романа Леонидова
Хэмтон Хаус. Загородный дом. Постройка, 2016 © Архитектурное бюро Романа Леонидова
Хэмтон Хаус. Загородный дом. Постройка, 2016 © Архитектурное бюро Романа Леонидова