Размещено на портале Архи.ру (www.archi.ru)

14.09.2016

Дом, который «дышит»

Дарья Горелова
Объект:
Дом «Артур»
Адрес:
Россия, Москва.
Мастерская:
АО «Фирма «КИРИЛЛ»
Авторский коллектив:
Каплин Андрей

Недалеко от Новорижского шоссе в Подмосковье по проекту архитектора Андрея Каплина строится дом. Его компактный объём выстроен из кирпича HAGEMEISTER сортировки Holsten GT в формате Mod F. (290х90х52).

Проект загородного дома появился быстро, был придуман «на одном дыхании», – рассказывает архитектор Андрей Каплин. Автор основывался на ключевом принципе современной архитектуры –изнутри-наружу: от планировки – к фасадам, которые, по утверждению архитектора, «не так важны» и производны от «содержательной части проекта». Главное – что внутри дом наполнен естественным светом, а основные помещения просторны, воздушны и там, где не требуется приватность, перетекают друг в друга по вертикали и горизонтали.

Дом «Артур». Перспектива © Андрей Каплин
Дом «Артур». Перспектива © Андрей Каплин

Впрочем, приоритет внутренних пространств не помешал объему стать компактным и расти скорее вверх, чем в стороны. Площадь дома – 390 м2, его план – строго прямоугольный, дом вытянут с севера на юг и подведен под двускатную кровлю с продольным коньком, который ощутимо понижается, опускаясь к югу с 14,4 до 11,4. Перепад – три метра, и северный фасад получается трёх-, а южный – двухэтажным. Неожиданный наклон конька и карнизов к югу усиливает перспективное сокращение, предлагая зрителю, подходящему с северной стороны, пространственную игру в духе барокко. С этой стороны дом обращен к соседнему участку и глухая, лишенная окон стена северного торца «отгораживается» от посторонних взглядов, оставляя лишь один проем – раструб ниши входа на уровне первого этажа. Откосы портала включаются в заданную кровлей перспективную игру, а весь северный фасад приобретает почти что храмовую монументальность, превращаясь в массивное, лаконичное оформление входа. Три оставшиеся стены дома: боковые и южная – обращены к лесу и, в противовес северному фасаду, испещрены стройными рядами вертикальных окон, прорезающих поверхность почти повсеместно, лишь изредка – в частности, на юго-западном углу – уступая небольшому фрагменту материи, ответственному за покой и полумрак в одной из спален на втором этаже и в кабинете на первом. Второй вход в дом, на восточном фасаде, крупнее, просторнее и отмечен сплошным витражом на высоту всех доступных здесь двенадцати метров. Это самая светлая стена, она обращена к настилу деревянной террасы, которая становится просторнее из-за того, что витраж скошен внутрь и служит, помимо светового пятна, крупной нишей. С противоположной стороны, перед западным фасадом задумана ещё одна терраса, поменьше.
Дом «Артур». Эскиз © Андрей Каплин
Дом «Артур». Эскиз © Андрей Каплин
Дом «Артур». Эскиз © Андрей Каплин
Дом «Артур». Эскиз © Андрей Каплин
Дом «Артур». Эскиз © Андрей Каплин
Дом «Артур». Эскиз © Андрей Каплин

Описанное многообразие фасадов, как уже говорилось, вторит структуре внутренних пространств, частью двух-, частью трёхсветных. Три света – в гостиной, она сосредоточена в юго-восточной части дома; здесь интерьер просматривается на всю высоту. Гостиная проницаема для взгляда с террасы от входного витража до частого ряда окон южной стены. Но – закрыта от взгляда соседей с севера, чему способствует скос-углубление стеклянной стены. Неширокая пологая лестница ведёт из гостиной на второй этаж, где расположены спальни и детская. Выше – подъем на третий этаж, где в центре повышенной северной части расположена бильярдная, чье помещение центрировано и отгорожено по бокам; из внешних стен бильярдная примыкает только к глухой северной, а справа и слева от нее образуются пространственные карманы, дающие второй свет спальням и игровым второго этажа, ловя лучи то восходящего, то заходящего солнца, что, вероятно, будет довольно красиво. Бильярдная же оказывается ядром, «подвешенным», как в матрёшке, между двух световых прослоек дома, но освещённым только с юга, со стороны лестницы. Всё это должно создать любопытные световые эффекты и масштабные переходы внутри дома – от просторного и высокого в общественных зонах к компактному и камерному в частных комнатах.
Дом «Артур». План 1-го этажа © Андрей Каплин
Дом «Артур». План 1-го этажа © Андрей Каплин
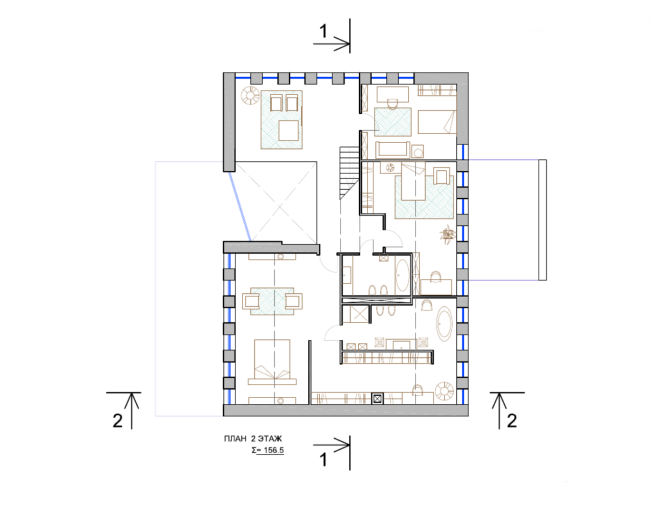
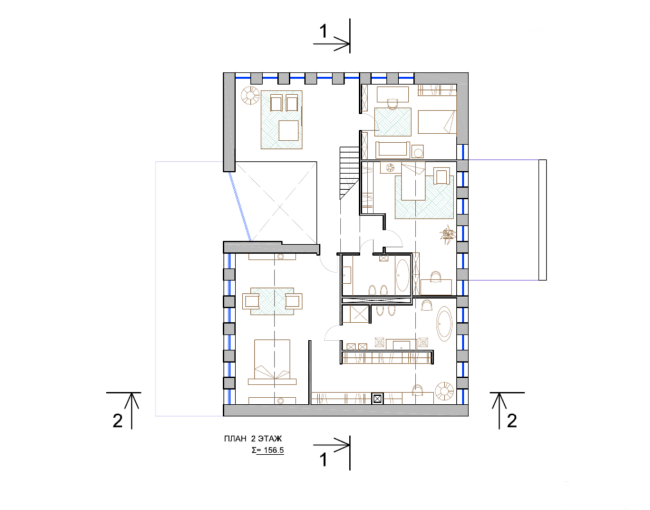
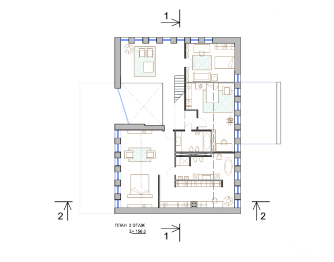
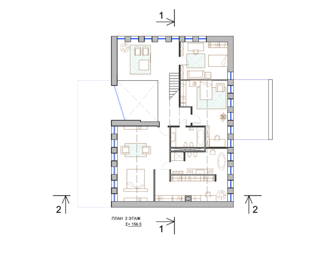
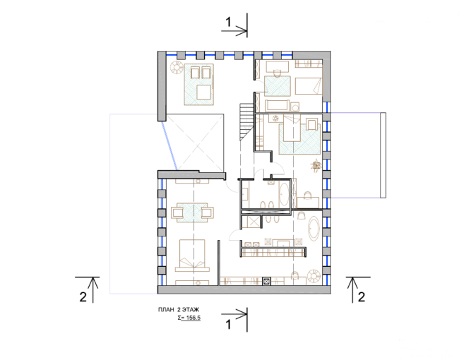
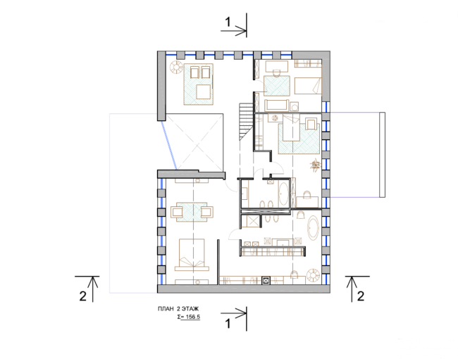
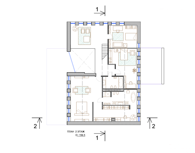
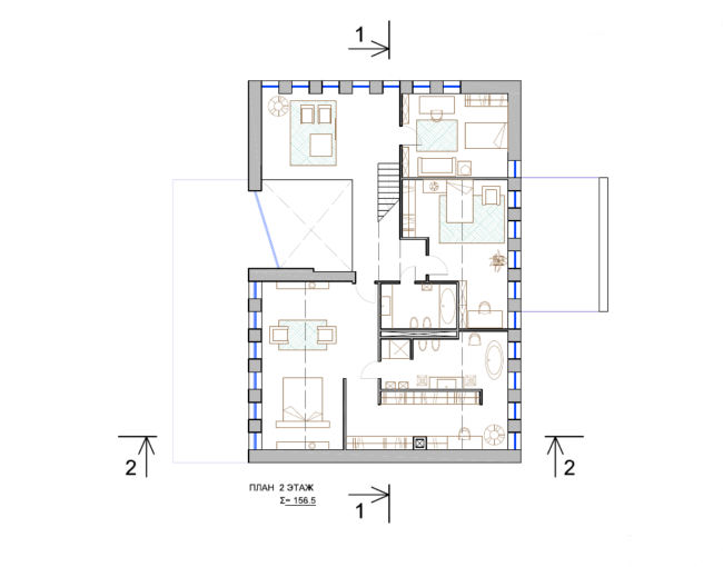
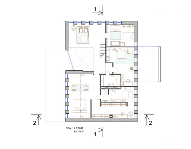
Дом «Артур». План 2-го этажа © Андрей Каплин
Дом «Артур». План 2-го этажа © Андрей Каплин
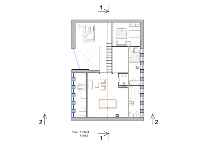
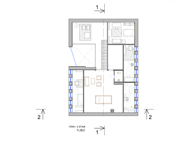
Дом «Артур». План 3-го этажа © Андрей Каплин
Дом «Артур». План 3-го этажа © Андрей Каплин

Внешне же дом, как мы помним, компактен, собран и апеллирует к современному прочтению исторической строительной традиции, очень актуальному в последние десять-пятнадцать лет. Скатную кровлю планируется выполнить из деревянных стропил LVL-бруса, с опорой на стены и железобетонный каркас здания, и покрыть материалом, имитирующим гонт – деревянную черепицу. Вынос карниза минимальный – 5 см. Железобетонный каркас стен будет заполнен кирпичом, причем основой и утеплителем служит внутренняя кладка из пустотелого кирпича-«камня», отделённая воздушной прослойкой от внешней поверхности вентилируемого фасада из облицовочного кирпича-клинкера. Для того, чтобы стены свободно «дышали», в пустых швах нижнего ряда кирпичной кладки предусмотрены вентиляционные короба – воздух будет поступать через них, подниматься по стене, и выходить через отверстия в коньке кровли. Система вентиляции стен призвана помочь избежать «парникового эффекта», проще говоря, она не даст стенам отсыреть, но в полной мере использует все экологически-устойчивые свойства кирпичной кладки, сохраняющие летом прохладу, а зимой тепло.
Дом «Артур». Разрез 1-1 © Андрей Каплин
Дом «Артур». Разрез 1-1 © Андрей Каплин
Дом «Артур». Разрез 2-2 © Андрей Каплин
Дом «Артур». Разрез 2-2 © Андрей Каплин

Внешний же вид лаконичного до монументальности дома задан свойствами облицовочного клинкера, тёмно-терракотового оттенка. Толщина простенков хорошо видна, стены материальны и осязаемы, каждый угол тщательно «обернут» кирпичом. Для нескольких нижних рядов цоколя, оконных откосов, бровок-сандриков и подоконников-отливов, где на фасад будут выходить аккуратные ленты кирпичных тычков, отведён полнотелый кирпич. Основные поверхности планируется выложить из облицовочного клинкера в технике, похожей на гибрид современной ложковой и традиционной, «старорусской» верстовой: четыре ряда ложков чередуются вместо ряда тычков со смешанным рядом, где между ложками поставлены поочередно тычок и половина тычка кирпича, разрезанного специально для этого. Приём добавит кладке лёгкий орнаментальный эффект. Швы обычные, заметные – 10 мм. Для строительства и облицовки используется кирпич Holsten GT, произведённый на заводах компании Hagemeister в Германии. Поставщик – компания «Кирилл».
Дом «Артур». Раскладка кирпича на стенах и окнах © Андрей Каплин
Дом «Артур». Раскладка кирпича на стенах и окнах © Андрей Каплин
Дом «Артур». Фрагмент кладки © Андрей Каплин
Дом «Артур». Фрагмент кладки © Андрей Каплин