Размещено на портале Архи.ру (www.archi.ru)

29.08.2016

Каркас в пространстве

Юлия Тарабарина
Объект:
Спортивно-оздоровительный комплекс школы дзюдо
Адрес:
Россия, Санкт-Петербург. ул. Замшина, участок 1, д. 29, корп. 5, лит. А
Архитектор:
Никита Явейн
Мастерская:
Студия 44
Авторский коллектив:
Н.И. Явейн, В.И. Бурмистрова

Проект школы дзюдо архитектурного бюро «Студия 44» построен на сопоставлении модернистского принципа точечной опоры и открытости деконструкции – с их источниками из традиционной японской архитектуры. Доля абстракции помогает привести стилевой дискурс к необходимому уровню обобщения.

Спортивно-оздоровительный комплекс школы дзюдо
Спортивно-оздоровительный комплекс школы дзюдо
© Студия 44

Школу дзюдо, проект которой «Студия 44» закончила несколько месяцев назад, планируется построить на Выборгской стороне в Полюстрово – районе, когда-то занятом большими графскими дачами, затем заводами, а теперь преимущественно типовой советской застройкой, разбавленной фрагментами дач и внушительными пятнами живучих промзон. Словом, не самое обязывающее окружение, из интересного в округе бизнес-центр «Бенуа» Сергея Чобана в начале Пискарёвского проспекта и дача Кушелевых-Безбородко Кваренги по соседству. Но это далеко, до них обоих два километра к югу. И между тем место, где строится школа, небезынтересно: она займет крупный прямоугольник на границе между парком имени академика Сахарова и жилым микрорайоном по улице Замшина, 27-31, который состоит в основном из панельных девятиэтажек семидесятых с вкраплениями новостроек и прочего. Фон – серовато-клетчатый, привычный: бывший советский человек этот вид городской среды узнает за версту. Парк же не простой, он наследует даче Абамелек-Лазаревых, то есть это тоже кусочек до-промышленных окраин, смешанных с заводским Питером. Позднее парк назвали Пионерским, это название сохранила северная часть, южную же переименовали в парк Сахарова, и установили там памятник жертвам бомбардировок Хиросимы и Нагасаки – копию, привезенную из Японии. И как-то так получилось, что японская тема продолжилась: прямо напротив памятника, через парк, теперь запланировано построить школу японского единоборства дзюдо. С залами для тренировок и выступлений – не только дзюдо, но и гимнастических; с большими залами и развитой инфраструктурой, которая включает даже полтора десятка гостиничных комнат для спортсменов. Большую, хорошую школу высотой с девятиэтажный дом (28,8 м) – высотные отметки здания, таким образом, вписаны в преобладающее окружение.
Спортивно-оздоровительный комплекс школы по дзюдо. Ситуационный план
Спортивно-оздоровительный комплекс школы по дзюдо. Ситуационный план
© Студия 44
Спортивно-оздоровительный комплекс школы дзюдо
Спортивно-оздоровительный комплекс школы дзюдо
© Студия 44

Здание школы состоит из объёмного каркаса-решетки с крупным шагом 7,2х7,2 м. Каркас планируется облицевать деревом, имитируя деревянную конструкцию как внешне, так и внутренне, повторяя логику её построения. Снаружи будет казаться, да и сейчас, глядя проектную графику, уже кажется, что решётка здания – деревянная. Она, как пятнашки, местами затянута стеклом, местами заполнена панелями, но часто – прозрачна, открыта для обозрения и вынесена наружу. Стены отступают глубоко внутрь, образуя на фасаде промежуточное пространство, сравнимое с глубокими лоджиями, но необитаемое. Вперёд, к плоскости фасада, выходят «ноги» застеклённых лестничных клеток. Они, так же как и все другие опоры, поддерживают чашу главного зала соревнований – перевернутую ступенчатую пирамиду, чей объём отчасти прочитывается снаружи. Всё здание превращается в опору для чаши главного зала, приподнятого над землей на высоту 12 м, причем её края «стоят» на внешней решётке, а основание – на объемах малых залов нижних этажей, тоже, впрочем, пронизанных точечными опорами, как и полагается архитектуре Новейшего времени. Узкие вертикали лестничных клеток расставлены равномерно, как контрфорсы готического собора, и вместе с венчающей их широкой лентой панорамных стёкол образуют на фасаде композицию, напоминающую, с одной стороны, горизонтальный небоскрёб на изящных опорах, а с другой – особенно издали, при взгляде из парка – храмовый портал дальневосточной архитектурной традиции: ряд колонн, поддерживающих балку с далеко вынесенными по краям «хвостами» консолей. Сходство поддерживают ступеньки трибун, добавляя к силуэту консолей характерные расширения. Весь фасад превращён в портал – ворота в спорт, что более чем символично. Портал, однако, аклассичный, с опорой посередине. Что заставило архитекторов сдвинуть вход с его широким козырьком влево: геометрия главного фасада приобрела от этого подвижную необязательность, а сходство с гипер-воротами стало небуквальным. За стеклянной горизонталью верха располагаются кафе, окружающие трибуны по периметру, оттуда будет отличный панорамный вид, так же как и с лестниц – на парк и город.
Спортивно-оздоровительный комплекс школы по дзюдо
Спортивно-оздоровительный комплекс школы по дзюдо
© Студия 44
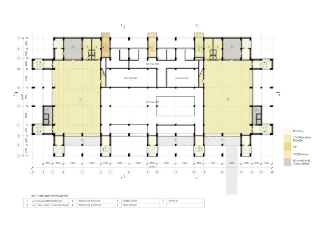
Спортивно-оздоровительный комплекс школы дзюдо. План 1 этажа
Спортивно-оздоровительный комплекс школы дзюдо. План 1 этажа
© Студия 44
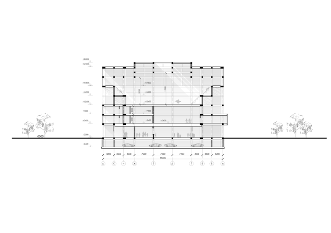
Спортивно-оздоровительный комплекс школы дзюдо. Разрез
Спортивно-оздоровительный комплекс школы дзюдо. Разрез
© Студия 44
Спортивно-оздоровительный комплекс школы дзюдо. Разрез
Спортивно-оздоровительный комплекс школы дзюдо. Разрез
© Студия 44
Спортивно-оздоровительный комплекс школы дзюдо. Разрез
Спортивно-оздоровительный комплекс школы дзюдо. Разрез
© Студия 44

Смешение авангарда/модернизма с уклоном в японскую послевоенную архитектуру метаболизма – со ссылками на традиционный японский дом и, что важно, традиционные залы для занятий дзюдо – здесь встречается повсеместно. Одно прорастает в другом, кажется более или менее очевидным в зависимости от уровня абстрагирования формы. Как на картине Пикассо, где вроде бы нос, и в то же время – треугольник, мы можем здесь увидеть, в зависимости от настроения и взгляда, то японский храм с широкой кровлей, то деревянный павильон из тех, какие сейчас любят на архитектурных фестивалях, то громадное здание, построенное по правилам современной архитектуры (каким оно, собственно, и является). То – что совсем уж удивительно – видим перед собой поверенную квадратами деревянной конструкции, то есть изменённую почти до неузнаваемости версию центра Помпиду Пиано&Роджерса, шедевра и манифеста архитектуры деконструкции. А почему нет? Лестницы вынесены вперёд, за ними суета «строительных лесов», перечёркнутых диагональными металлическими стяжками – сходство со знаменитым эскалатором и металлическими решётками на главном фасаде парижского музея налицо, хотя здесь, в Петербурге, все намного спокойнее, далеко от хай-тека, и наоборот, погружено в традицию деревянных конструкций. Вспоминается «Адронный коллайдер» Полисского, намёк на механизм сложнейших технологий, выстроенный из грубого дерева, – впрочем, в данном случае разрыв с прообразом не так велик. Если же говорить о деконструкции, то она удержана внутри – здание не выбрасывает «протуберанцев» вовне и остаётся компактным; главный фасад больше похож на срез, сечение какой-то части структуры. Никакой иронии не просматривается – напротив, перед нами, судя по всему, довольно серьёзный разговор на тему основ культуры модернизма и её происхождения из традиционных восточных культур.
Спортивно-оздоровительный комплекс школы дзюдо
Спортивно-оздоровительный комплекс школы дзюдо
© Студия 44
Спортивно-оздоровительный комплекс школы дзюдо
Спортивно-оздоровительный комплекс школы дзюдо
© Студия 44
Спортивно-оздоровительный комплекс школы дзюдо
Спортивно-оздоровительный комплекс школы дзюдо
© Студия 44

И то верно – вынесенные наружу лестницы это не только Помпиду, но и множество шедевров модернизма, взять хотя бы дом авиаторов Андрея Меерсона с его овальными лестничными башнями. Пересечения плоскостно срезанных вертикалей и горизонталей, с другой стороны, напоминают о здании Фуджи Телевижн Кензо Танге. А также – и проекты собственно «Студии 44», где высоко приподнятая на множестве «ног» балка-сороконожка – одна из излюбленных тем; она встречается, к примеру, в конкурсном проекте МФК на намывных территориях Васильевского острова; или в здании министерства обороны Казахстана.

Все погружено, однако, в японскую традицию. Самый очевидный прототип, конечно же – японский дом и залы дзюдо с их деревянным каркасом, решётками, перегородками, затянутыми рисовой бумагой. Светлые, прозрачные, подвижные, наполненные воздухом школы дзюдо. В некотором смысле здание петербургской школы и есть такой зал, но увеличенный во много раз: 72х29 м, высота 12,6 м до балок, 16 м вместе с ними – внутрь уместилась бы пара пятиэтажек, строго говоря. Три яруса балок потолка – его главное украшение, служат для «раскрытия темы», прямо отсылая к прообразу японских каркасных потолков, которые в старых домах подчас захватывают, деля на кубики, значительную часть пространства верха. Дневной свет, идущий со всех сторон, в том числе с потолка, получается приглушённым, но объёмным, и подчеркивает «японскую» каркасность пространства – в котором, как может показаться, массы полностью уступают место конструкциям.
Спортивно-оздоровительный комплекс школы дзюдо
Спортивно-оздоровительный комплекс школы дзюдо
© Студия 44
Спортивно-оздоровительный комплекс школы дзюдо
Спортивно-оздоровительный комплекс школы дзюдо
© Студия 44

Но как уже говорилось, модернистская основа и японские прототипы здесь тесно связаны. Архитектура Новейшего времени каркасна, в чём 90% её успеха и красоты, а также один из принципов Ле Корбюзье. Точечные опоры происходят из особенностей технологии армированного бетона и позволяют экономить материал и пространство, а также делать стены прозрачными и легкими. Но в то же время эта технология восходит ко всем известным каркасным домам в истории, причем, для модернизма – в меньшей степени к европейскому фахверку и в большей – к каркасу японского дома, которым были увлечены многие классики движения. Иными словами, новая и современная уже сто лет как, вошедшая в практику технология каркасного строительства имеет корни в традиции. В данном случае тема удачно совпала с тематикой школы дзюдо, произведя замыкание смыслов, или же возвращение к истокам на новом витке развития.

Сложно не вспомнить, что у «Студии 44» есть другой проект, построенный на деревянном каркасе – музей науки и техники в Томске. Тогда казалось, что архитектор возродил пластику деревянного авангарда ВСХВ и намерен пользоваться этим языком, балансирующим на грани узнаваемости буквализма и обобщения. Теперь ясно, что «Студия 44» рассматривает тему – в данном случае деревянного каркаса – с разных сторон, изучая разные, подсказанные смысловым контекстом проекта, прототипы. Взгляд на основу здания как объёмную решетку, чьё заполнение подсказано функцией, и как следствие, довольно гибко, интересен сам по себе, к тому же на протяжении XX века на эту тему многое сказано, есть от чего оттолкнуться и на что опереться. 
Спортивно-оздоровительный комплекс школы дзюдо. Генеральный план
Спортивно-оздоровительный комплекс школы дзюдо. Генеральный план
© Студия 44
Спортивно-оздоровительный комплекс школы дзюдо. План -1 этажа
Спортивно-оздоровительный комплекс школы дзюдо. План -1 этажа
© Студия 44
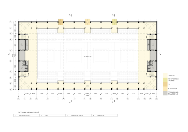
Спортивно-оздоровительный комплекс школы дзюдо. План 2 этажа
Спортивно-оздоровительный комплекс школы дзюдо. План 2 этажа
© Студия 44
Спортивно-оздоровительный комплекс школы дзюдо. План 3 этажа
Спортивно-оздоровительный комплекс школы дзюдо. План 3 этажа
© Студия 44
Спортивно-оздоровительный комплекс школы дзюдо. План 4 этажа © Студия 44
Спортивно-оздоровительный комплекс школы дзюдо. План 4 этажа © Студия 44
© Студия 44
Спортивно-оздоровительный комплекс школы дзюдо. План 5 этажа
Спортивно-оздоровительный комплекс школы дзюдо. План 5 этажа
© Студия 44
Спортивно-оздоровительный комплекс школы дзюдо. План 6 этажа
Спортивно-оздоровительный комплекс школы дзюдо. План 6 этажа
© Студия 44
Спортивно-оздоровительный комплекс школы дзюдо. План 7 этажа
Спортивно-оздоровительный комплекс школы дзюдо. План 7 этажа
© Студия 44