Размещено на портале Архи.ру (www.archi.ru)

21.07.2016

Проекты за мир

Дарья Горелова

Победители конкурса идей на «Павильон мира» в Париже.

Проект «Черное  и белое». Автор: Мусса Белкацем © Международный конкурс «Павильон мира». Париж, 2016
Проект «Черное и белое». Автор: Мусса Белкацем © Международный конкурс «Павильон мира». Париж, 2016

Открытый конкурс идей, посвященный памяти жертв террористических атак в Париже, провела индийская компания archasm весной 2016 года. Было подано 324 заявки как от практикующих архитекторов, так и от студентов. По итогам выбрано три призера, 10 почетных упоминаний и еще топ-50. От участников требовалось придумать павильон, который – теоретически – мог бы разместиться на Марсовом поле и символизировать мир, надежду и терпимость. В состав жюри вошли два французских архитектора Седрик ПетиДидье и Рафаэль Бушмусс, а также главред e-architect Адриан Велч.

1. Черное и белое
Мусса Белкацем, Франция
Проект «Черное  и белое». Автор: Мусса Белкацем © Международный конкурс «Павильон мира». Париж, 2016
Проект «Черное и белое». Автор: Мусса Белкацем © Международный конкурс «Павильон мира». Париж, 2016

Блюдечко круглого углубления выложено сланцем, который должен напоминать о крышах Парижа. Сланец темный, всем предлагается рисовать на нем закрепленными здесь же белыми мелками, и таким образом общаться между собой, попутно превращая черное в белое. Со временем штрихи мела бледнеют – или же их стирают, проступает черный цвет, и опять можно писать, общаться. Наверху конструкцию дополняет холм-амфитеатр с видом на Эйфелеву башню.

Адриан Велч, главный редактор e-architect, Лондон
«Я считаю этот объект гениально простым, он делает наш мир добрее и светлее».
Проект «Черное  и белое». Автор: Мусса Белкацем © Международный конкурс «Павильон мира». Париж, 2016
Проект «Черное и белое». Автор: Мусса Белкацем © Международный конкурс «Павильон мира». Париж, 2016
Проект «Черное  и белое». Автор: Мусса Белкацем © Международный конкурс «Павильон мира». Париж, 2016
Проект «Черное и белое». Автор: Мусса Белкацем © Международный конкурс «Павильон мира». Париж, 2016
***

2. Санктум
Ханкан Цзинь, Динулла Баю Ибрахим, Италия
Проект «Санктум». Авторы: Ханкан Цзинь и Динулла Баю Ибрахим © Международный конкурс «Павильон мира». Париж, 2016
Проект «Санктум». Авторы: Ханкан Цзинь и Динулла Баю Ибрахим © Международный конкурс «Павильон мира». Париж, 2016

Собственно «Санктум» похож на римский Пантеон – это купол из прозрачного материала с оккулюсом вверху. Под куполом – как и в проекте, занявшем первое место, расположены ступеньки амфитеатра. В центре оливковое дерево, предсказуемо символизирующее мир. Купол заключен в прямоугольную оболочку, пространство между стенами параллелепипеда и куполом предназначено для выставок, но попутно оно символизирует хаос. Здесь, же, в условном «хаосе», расположена и мастерская. В том торце параллелепипеда, который обращен к Эйфелевой башне, устроен полукупол – кафе с видом на достопримечательность.
Проект «Санктум». Авторы: Ханкан Цзинь и Динулла Баю Ибрахим © Международный конкурс «Павильон мира». Париж, 2016
Проект «Санктум». Авторы: Ханкан Цзинь и Динулла Баю Ибрахим © Международный конкурс «Павильон мира». Париж, 2016
Проект «Санктум». Авторы: Ханкан Цзинь и Динулла Баю Ибрахим © Международный конкурс «Павильон мира». Париж, 2016
Проект «Санктум». Авторы: Ханкан Цзинь и Динулла Баю Ибрахим © Международный конкурс «Павильон мира». Париж, 2016
Проект «Санктум». Авторы: Ханкан Цзинь и Динулла Баю Ибрахим © Международный конкурс «Павильон мира». Париж, 2016
Проект «Санктум». Авторы: Ханкан Цзинь и Динулла Баю Ибрахим © Международный конкурс «Павильон мира». Париж, 2016
***

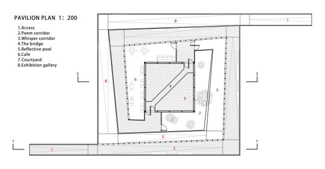
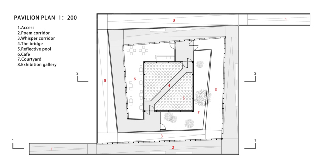
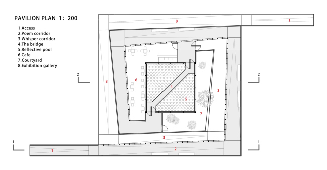
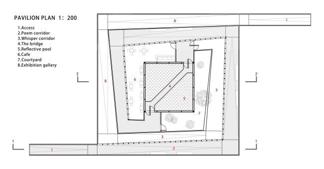
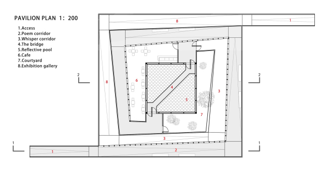
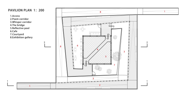
3. Хрупкость
Ян Фэй и Вэйчже Гао, Китай
Проект «Санктум». Авторы: Ханкан Цзинь и Динулла Баю Ибрахим © Международный конкурс «Павильон мира». Париж, 2016
Проект «Санктум». Авторы: Ханкан Цзинь и Динулла Баю Ибрахим © Международный конкурс «Павильон мира». Париж, 2016

Цель павильона – формировать отношения между людьми, разрушенные страхом и взаимной ненавистью, – комментируют свой зам. Они создали внутри двойной маршрут, посетители входят с двух противоположных точек и встречаются посередине. Двигаясь по коридорам, люди накапливают эмоции, стены отражают все шорохи, помогая им в этом. В центре, где пути встречаются, темно, а значит – рассуждают авторы – цвет кожи, раса, религия становятся невидимыми, а «руки отрыты для объятий». Ну-ну, скажем мы. Павильон заглублен в землю, но довольно высок. Зеркальные внешние стены отражают парижские ландшафты и, главное, Эйфелеву башню – зеркало символизирует хрупкость окружения.
Проект «Санктум». Авторы: Ханкан Цзинь и Динулла Баю Ибрахим © Международный конкурс «Павильон мира». Париж, 2016
Проект «Санктум». Авторы: Ханкан Цзинь и Динулла Баю Ибрахим © Международный конкурс «Павильон мира». Париж, 2016
Проект «Санктум». Авторы: Ханкан Цзинь и Динулла Баю Ибрахим © Международный конкурс «Павильон мира». Париж, 2016
Проект «Санктум». Авторы: Ханкан Цзинь и Динулла Баю Ибрахим © Международный конкурс «Павильон мира». Париж, 2016
Проект «Хрупкость», авторы: Ян Фэй и Вэйчже Гао, Китай © Международный конкурс «Павильон мира». Париж, 2016
Проект «Хрупкость», авторы: Ян Фэй и Вэйчже Гао, Китай © Международный конкурс «Павильон мира». Париж, 2016
Проект «Хрупкость», авторы: Ян Фэй и Вэйчже Гао, Китай © Международный конкурс «Павильон мира». Париж, 2016
Проект «Хрупкость», авторы: Ян Фэй и Вэйчже Гао, Китай © Международный конкурс «Павильон мира». Париж, 2016
Проект «Хрупкость», авторы: Ян Фэй и Вэйчже Гао, Китай © Международный конкурс «Павильон мира». Париж, 2016
Проект «Хрупкость», авторы: Ян Фэй и Вэйчже Гао, Китай © Международный конкурс «Павильон мира». Париж, 2016
***