Размещено на портале Архи.ру (www.archi.ru)

15.08.2016

Таганские ворота

Юлия Тарабарина
Объект:
Многофункциональный комплекс на улице Земляной Вал
Адрес:
Россия, Москва. ул. Земляной Вал, вл. 77-79
Архитектор:
Алексей Гинзбург
Мастерская:
Гинзбург Архитектс
Авторский коллектив:
Архитекторы: А.В. Гинзбург, А.Ф. Орлов, А.В. Николаев, при участии М.А. Малиновского

Многофункциональный комплекс, проектированием которого Алексей Гинзбург занимается больше семи лет, должен занять участок на внешней части Садового кольца перед въездом в туннель, vis-à-vis здания Театра на Таганке.

Многофункциональный комплекс на ул. Земляной Вал. Проект, 2014 © Гинзбург Архитектс
Многофункциональный комплекс на ул. Земляной Вал. Проект, 2014 © Гинзбург Архитектс

Алексей Гинзбург уже немного рассказывал об этом проекте в своём интервью Архи.ру – соседство с театром, знаменитым образцом московского брутализма, он считает особенно важным. «Я привозил на машине образцы кирпичей, ставил их рядом со стеной театра, и проверял, чтобы они попали в тон, но не слишком точно», – рассказывает архитектор. Впрочем контекст Таганской площади разнообразен и театр – не единственный его элемент, хотя один из главных.

Сложная форма участка в целом тяготеет к прямоугольному треугольнику, чья гипотенуза вытянута вдоль красной линии Земляного вала. Прямой угол – в глубине. Это удобная для магазина форма, поскольку протяженность витрин по главному фасаду оказывается довольно-таки большой по отношению к общей площади. Треугольник же обеспечивает необходимое «подбрюшье» собственно торговых площадей: внутри пять этажей магазинов, супермаркет, фудкорт и кинотеатр, сгруппированные вокруг предсказуемо треугольного атриума. Его небольшое пространство, что хорошо заметно на разрезе, архитектор наклонил подобно Пизанской башне: этаж за этажом оно сдвигается ступенчато вверх от центра в сторону Садового кольца – к плоскому, слегка покатому фонарю, чьё стекло наклонено к югу. Таким образом застеклённый внутренний дворик, почти обязательная часть современного магазина, ловит максимум солнечных лучей из возможных. Под землёй два яруса парковки.
Многофункциональный комплекс на ул. Земляной Вал. Ситуационный план. Проект, 2014 © Гинзбург Архитектс
Многофункциональный комплекс на ул. Земляной Вал. Ситуационный план. Проект, 2014 © Гинзбург Архитектс
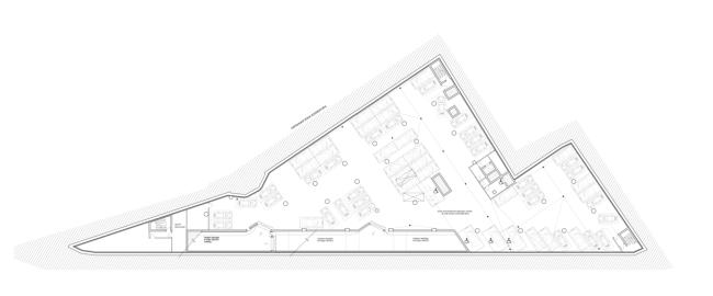
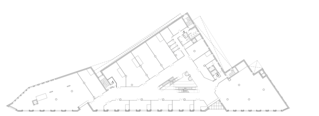
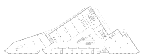
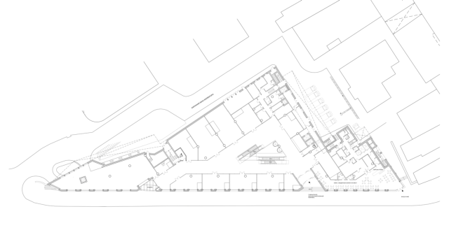
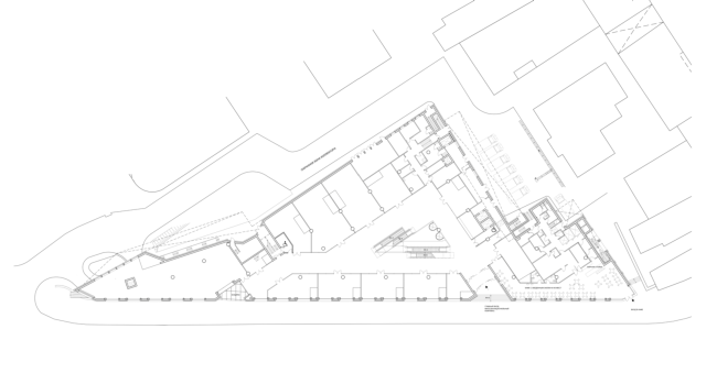
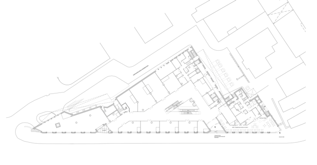
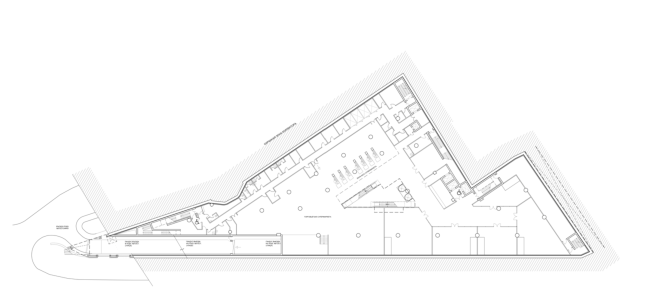
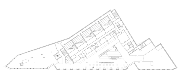
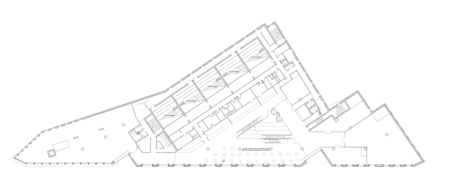
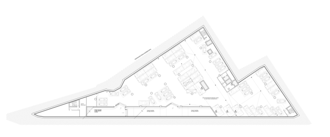
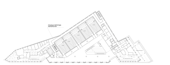
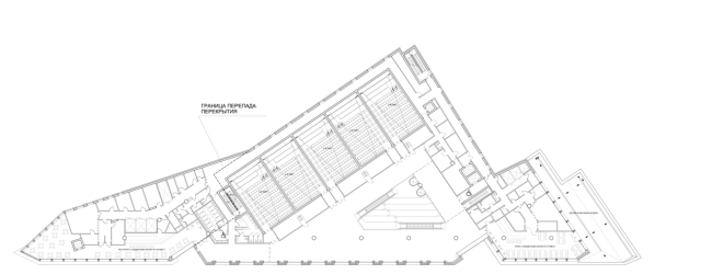
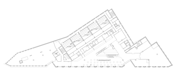
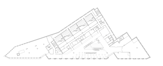
Многофункциональный комплекс на ул. Земляной Вал. План 1 этажа © Гинзбург Архитектс
Многофункциональный комплекс на ул. Земляной Вал. План 1 этажа © Гинзбург Архитектс
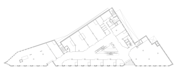
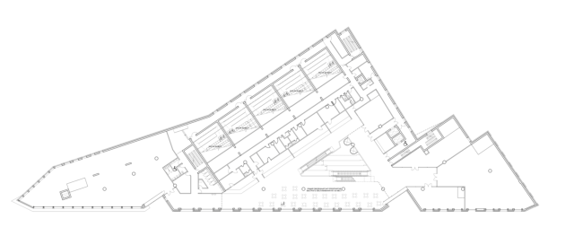
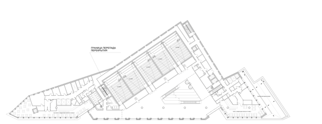
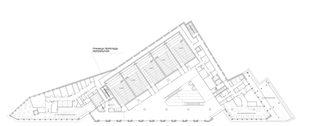
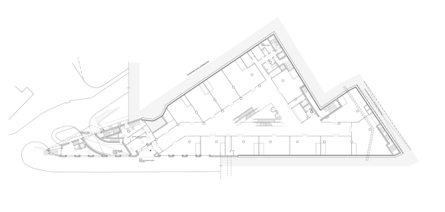
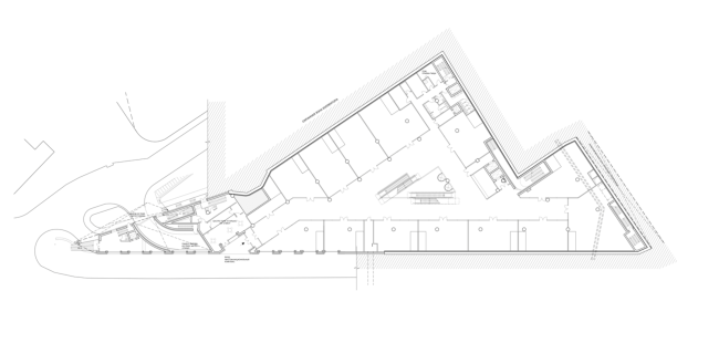
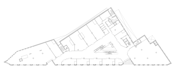
Многофункциональный комплекс на ул. Земляной Вал. План 2 этажа © Гинзбург Архитектс
Многофункциональный комплекс на ул. Земляной Вал. План 2 этажа © Гинзбург Архитектс
Многофункциональный комплекс на ул. Земляной Вал. Разрез © Гинзбург Архитектс
Многофункциональный комплекс на ул. Земляной Вал. Разрез © Гинзбург Архитектс
Многофункциональный комплекс на ул. Земляной Вал. Анализ участка. Проект, 2014 © Гинзбург Архитектс
Многофункциональный комплекс на ул. Земляной Вал. Анализ участка. Проект, 2014 © Гинзбург Архитектс

Сейчас участок пустует, только в углу засеянного травой холма расположилась небольшая наземная автостоянка. Но раньше он был занят Таганскими торговыми рядами, чьё здание историки пытались даже приписывать Осипу Бове. Трапециевидный контур рядов почти полностью совпадал с пустующим сейчас треугольником, хотя и вокруг, за границами рядов, лавок было множество. Торговые ряды снесли в 1960-е; тогда же на Садовом кольце под площадью проложили туннель, а саму площадь превратили в одну из самых просторных и проблемных развязок из числа «хайвеев по-московски». Место осталось пустым пятном, особенно заметным по контрасту с крупным объёмом театра на Таганке, который появился в 1980-е. Новый МФК должен расположиться прямо на месте торговых рядов и прямо наследует им, не только в том смысле, что он возрождает на этом месте торговую функцию, но и, скажем так, архитектурно-генетически: расстояние между простенками на главном фасаде нового здания буквально прорисовано с Таганских рядов. Новое здание прорастает из ритмического зерна предыдущего, превышая его по высоте, что, впрочем, нередко случается с детьми, вырастающими выше родителей.
Многофункциональный комплекс на ул. Земляной Вал. Поиск ритма. Проект, 2014 © Гинзбург Архитектс
Многофункциональный комплекс на ул. Земляной Вал. Поиск ритма. Проект, 2014 © Гинзбург Архитектс

Надо сказать, что даже советская власть позднего разлива признавала за Таганской площадью не только театральную, но и торговую роль – панельные дома в округе снабжены обязательными и очень обширными «стекляшками» вдоль улиц. В рыночные девяностые тему развили разномастные магазинчики и ларьки ближе к выходам из метро – часть их недавно пала жертвой известной истории со «сносом самостроев». Торговля, никогда не умирая на Таганке, перемещалась из упорядоченных лавок в старомосковских рядах с их арками и внутренними дворами – к советским зарегулированным стекляшкам – к грубоватому обаянию хаотично растущих «грибов» девяностых. Теперь, похоже, настало время торгового центра. Жалеть или не жалеть маленькие магазины – личный выбор каждого (я жалею), но достаточно очевидно, что рано или поздно их немудрящие строения в центре города должны уступить место чему-то иному. Впрочем напомним, что работа над проектом со сносами никак не связана, она началась ещё при прежнем мэре.

Торговые центры тоже, впрочем, бывают разные, есть в них и неизбежное зло укрупнения, и сила сетевой логистики, и обаяние комфортного консьюмеризма – всего понемногу. Но подчеркну, что Алексей Гинзбург сумел при согласовании настоять на столичном формате магазина, с витринами и уличным променадом. Магазина, подобного европейским пассажам и большим магазинам, всем этим парижским Le Bon Marché, и родственного в этом смысле московскому ГУМу, который, к слову, тоже заменил собой послепожарные торговые ряды Бове на Красной площади. МФК Алексея Гинзбурга – гибрид атриумного здания с пассажем и городской улицей, помнящий к тому же о старых торговых рядах. Появится ли здесь, на бровке Садового кольца, магазинный променад? А почему бы нет. От метро два шага, половина автомобильного трафика убрана ниже, на уровень туннеля и здесь, на горке, ощущается не слишком сильно.
Многофункциональный комплекс на ул. Земляной Вал. Вход с Таганской площади. Проект, 2014 © Гинзбург Архитектс
Многофункциональный комплекс на ул. Земляной Вал. Вход с Таганской площади. Проект, 2014 © Гинзбург Архитектс

Третья важная часть контекста после театра и торговых рядов – домики XIX века, которые тянутся по той же стороне Земляного вала почти непрерывно в сторону Яузы. Для того, чтобы не «задавить» их массивным объемом, главный фасад МФК разделён на три ризалита. Между ними – стеклянные перемычки входов, треугольно утопленные внутрь, что хорошо видно на плане. Они почти зеркально отвечают зданию театра, где напротив есть два кирпичных треугольных выступа похожего размера. На плане хорошо видно: два здания – кусочки одной мозаики, а выступы-впадины это ключ для их соединения. Вот только они разделены, разрезаны Садовым кольцом, и главный фасад нового здания получился пористым, решетчатым – как срез. А тыльные стены, обращенные к соседним улицам – цельные, здесь окон становится меньше, простенков больше. Здесь расположены подъезды для загрузки магазинов, и относительная простота, замкнутость фасадов обусловлена прагматически. И в то же время внешность «заднего двора» даже сильнее перекликается с ритмом и пластикой здания театра, как будто МФК и впрямь – отколовшийся фрагмент его кирпичной скалы, вторая половинка Геркулесовых столбов. Конечно же, в паре с театром новое здание образует пропилеи въезда на площадь – в этом его градостроительный смысл: оно станет вторым, недостающим пилоном нового варианта Таганских ворот. К слову, старые, построенные в XVII веке деревянные ворота Земляного города находились на нынешней территории МФК, так что наследование происходит с полным правом, хотя современный вариант пропилей изменил масштаб и местоположение – так ведь и трасса Садового кольца проходит здесь не по линии вала, а западнее.
Многофункциональный комплекс на ул. Земляной Вал. Генеральный план. Проект, 2014 © Гинзбург Архитектс
Многофункциональный комплекс на ул. Земляной Вал. Генеральный план. Проект, 2014 © Гинзбург Архитектс

Пропилеи, конечно же, будут работать как при въезде на площадь, так и при выезде с неё. Сейчас, особенно когда поворачиваешь с Серпуховской улицы на кольцо в сторону Курского вокзала, площадь кажется избыточно широкой и неоформленной, а новое здание станет ещё одним пограничным акцентом. Перекликающимся, посмею сказать, помимо театра ещё и с церковью Николы на Болвановке: раньше площадь оформляли два заметных объема, теперь будет три.

Впрочем, будучи масштабной парой здания театра, МФК вовсе не становится его полным отражением. Скорее он играет с шедевром контекстуального брутализма в похожий-непохожий. Особенно заметен контраст цельного, и в то же время топорщащегося кирпичными ширмами здания театра – и ребристо-проницаемой легкой решетки главного фасада МФК. Фасад-экран, фасад-витрина выставлен вдоль Садового подобно щиту, опирающемуся на треугольное основание здания. Его плоскость даже немного удлинена, растянута между двумя торцами – северным и южным углами треугольника, которые берут на себя роль важных акцентов, обращенных к зрителям, к трассе кольца. На торцах будут установлены медиа-экраны, они примут на себя роль вывесок и рекламных щитов. Но помимо светящихся дополнений сама форма торцов – сложная, остро-огранённая, с легким поворотом их кубистической «головы» к трассе – способна привлечь внимание. Нос северного торца остро зависает в пространстве, противореча инерции склона с подчеркнутой непринужденностью. Под ним – лёгкая бетонная лестница ведёт через подсвеченное по вечерам высокое стекло прямо на второй этаж. Ниже лестницы уместился въезд-выезд из подземной парковки: плюсы склона использованы и функционально, и пластически.
Многофункциональный комплекс на ул. Земляной Вал. Проект, 2014 © Гинзбург Архитектс
Многофункциональный комплекс на ул. Земляной Вал. Проект, 2014 © Гинзбург Архитектс

Перепад высот на участке – восемь метров, что не много и не мало, в портфолио Алексея Гинзбурга есть здания и на более крутых склонах, более того, архитектор даже любит работать с рельефом, считая его не обременением, а интересной задачей. Вот и здесь – здание не сползает по склону, а поднимается под строго горизонтальный карниз. Практически это означает, что к северному краю постепенно прирастает два дополнительных этажа. Со стороны площади объем четырёхэтажный, хотя если учесть деликатно вырезанную сверху контекстуальную ступеньку – то этажей даже три, а со стороны Яузы, с севера – их шесть, что даёт совершенно иной масштаб, летящий. Рисунок фасадов также эволюционирует: южный ризалит раскроен дробно, поэтажно, вторя масштабу исторического города, центральный – он прямо напротив театра – получает самый крупный ритм, здесь этажи объединены и по два, и даже по три по высоте. Северный, самый высокий, получает вторую горизонтальную перемычку. Впрочем разноречивый ритм объединен общей фактурой и логикой построения.
Многофункциональный комплекс на ул. Земляной Вал. Проект, 2014 © Гинзбург Архитектс
Многофункциональный комплекс на ул. Земляной Вал. Проект, 2014 © Гинзбург Архитектс
Многофункциональный комплекс на ул. Земляной Вал. Вид с ул. Земляной Вал. Проект, 2014 © Гинзбург Архитектс
Многофункциональный комплекс на ул. Земляной Вал. Вид с ул. Земляной Вал. Проект, 2014 © Гинзбург Архитектс
Многофункциональный комплекс на ул. Земляной Вал. Проект, 2014 © Гинзбург Архитектс
Многофункциональный комплекс на ул. Земляной Вал. Проект, 2014 © Гинзбург Архитектс
Многофункциональный комплекс на ул. Земляной Вал. Проект, 2014 © Гинзбург Архите14
Многофункциональный комплекс на ул. Земляной Вал. Проект, 2014 © Гинзбург Архите14
Многофункциональный комплекс на ул. Земляной Вал. Проект, 2014 © Гинзбург Архитектс
Многофункциональный комплекс на ул. Земляной Вал. Проект, 2014 © Гинзбург Архитектс
Многофункциональный комплекс на ул. Земляной Вал. Вид с Таганской площади. Проект, 2014 © Гинзбург Архитектс
Многофункциональный комплекс на ул. Земляной Вал. Вид с Таганской площади. Проект, 2014 © Гинзбург Архитектс
Многофункциональный комплекс на ул. Земляной Вал. Проект, 2014 © Гинзбург Архитектс
Многофункциональный комплекс на ул. Земляной Вал. Проект, 2014 © Гинзбург Архитектс

Работа над проектом длилась долго, авторы рассмотрели множество вариантов облицовки. Несколько белокаменных, с тонкими перемычками из юрского мрамора и крупной стеклянной вставкой-«головой». И несколько кирпичных, в том числе – с широкими крупными рамками порталов. В данном случае итоговой стала действительно удачная, выстраданная и современная, не чуждая свежих веяний, версия. Фактура кирпича, пёстрого от серого до чёрного через «красный театра», балансирует на грани между детализацией и минимализмом. Главный декоративный элемент – ступенчатые откосы, их ряды аккуратно выступают один за другим по полширины тычка, тоже намекая на разрыв поверхности, «отколовшейся» от театра. Простой сам по себе приём, кроме того, рассчитан на светотень: фасад смотрит на запад и косое солнце должно неплохо подчеркнуть рельеф. Кирпичные ступеньки также будут видны большей части пешеходов, поскольку основной поток людей идёт от метро вниз – слева откосы чаще есть, справа нет, и обрамления высоких окон, объединяющих по два-три этажа, получаются асимметричными, а перемычки – треугольными. Для облицовки планируется использовать голландский клинкер.

Сказать, что задача, поставленная в этом проекте, была сложной и ответственной – значит ничего не сказать. Заметное место, напротив – шедевр, изучением архитектуры которого Алексей Гинзбург, по его собственному признанию, занимался ещё в студенческом возрасте, любимый, достойный преклонения памятник модернизма. И не только его, а и в целом – ключевое место московской истории 1970-х, всё же «Таганка», здесь Высоцкого хоронили. Городское пространство в этом месте так перенасыщено смысловыми «слоями», что и пустоты поневоле начинают говорить; и в то же время построить здесь что-то бесхребетное в режиме регенерации было бы ужасно. В данном случае, как кажется, и баланс удалось найти, и избежать робости, остановившись на точном, в чём-то даже звенящем решении – щите-зеркале, достойной паре знаменитого театра, по-своему интерпретирующей своё время. Наше торговое, помешанное на комфорте горожан, но кое-что о себе ещё не забывшее, время.
Многофункциональный комплекс на ул. Земляной Вал. Фрагмент фасада. Проект, 2014 © Гинзбург Архитектс
Многофункциональный комплекс на ул. Земляной Вал. Фрагмент фасада. Проект, 2014 © Гинзбург Архитектс
Многофункциональный комплекс на ул. Земляной Вал. Варианты фасадов. Проект, 2014 © Гинзбург Архитектс
Многофункциональный комплекс на ул. Земляной Вал. Варианты фасадов. Проект, 2014 © Гинзбург Архитектс
Многофункциональный комплекс на ул. Земляной Вал. Фасады и развертки. Проект, 2014 © Гинзбург Архитектс
Многофункциональный комплекс на ул. Земляной Вал. Фасады и развертки. Проект, 2014 © Гинзбург Архитектс
Многофункциональный комплекс на ул. Земляной Вал. Развертки. Проект, 2014 © Гинзбург Архитектс
Многофункциональный комплекс на ул. Земляной Вал. Развертки. Проект, 2014 © Гинзбург Архитектс
Многофункциональный комплекс на ул. Земляной Вал. Вид с Таганской площади. Проект, 2014 © Гинзбург Архитектс
Многофункциональный комплекс на ул. Земляной Вал. Вид с Таганской площади. Проект, 2014 © Гинзбург Архитектс
Многофункциональный комплекс на ул. Земляной Вал. Фасад © Гинзбург Архитектс
Многофункциональный комплекс на ул. Земляной Вал. Фасад © Гинзбург Архитектс
Многофункциональный комплекс на ул. Земляной Вал. Фасад © Гинзбург Архитектс
Многофункциональный комплекс на ул. Земляной Вал. Фасад © Гинзбург Архитектс
Многофункциональный комплекс на ул. Земляной Вал. Проект, 2014 © Гинзбург Архитектс
Многофункциональный комплекс на ул. Земляной Вал. Проект, 2014 © Гинзбург Архитектс
Многофункциональный комплекс на ул. Земляной Вал. Проект, 2014 © Гинзбург Архитектс
Многофункциональный комплекс на ул. Земляной Вал. Проект, 2014 © Гинзбург Архитектс
Многофункциональный комплекс на ул. Земляной Вал. Фасад © Гинзбург Архитектс
Многофункциональный комплекс на ул. Земляной Вал. Фасад © Гинзбург Архитектс
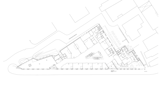
Многофункциональный комплекс на ул. Земляной Вал. Ситуационный плна. Проект, 2014 © Гинзбург Архитектс
Многофункциональный комплекс на ул. Земляной Вал. Ситуационный плна. Проект, 2014 © Гинзбург Архитектс
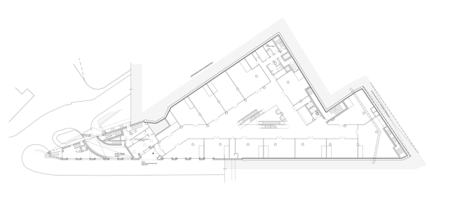
Многофункциональный комплекс на ул. Земляной Вал. Генеральный план. Проект, 2014 © Гинзбург Архитектс
Многофункциональный комплекс на ул. Земляной Вал. Генеральный план. Проект, 2014 © Гинзбург Архитектс
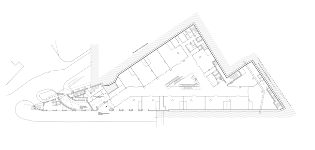
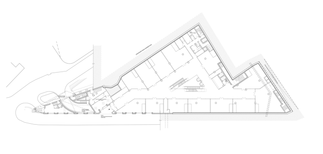
Многофункциональный комплекс на ул. Земляной Вал. План -1 этажа © Гинзбург Архитектс
Многофункциональный комплекс на ул. Земляной Вал. План -1 этажа © Гинзбург Архитектс
Многофункциональный комплекс на ул. Земляной Вал. План -2 этажа © Гинзбург Архитектс
Многофункциональный комплекс на ул. Земляной Вал. План -2 этажа © Гинзбург Архитектс
Многофункциональный комплекс на ул. Земляной Вал. План -3 этажа © Гинзбург Архитектс
Многофункциональный комплекс на ул. Земляной Вал. План -3 этажа © Гинзбург Архитектс
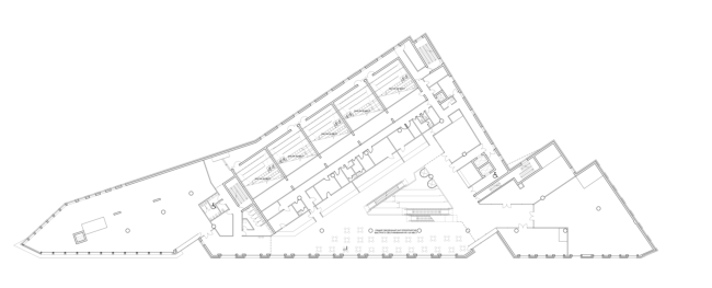
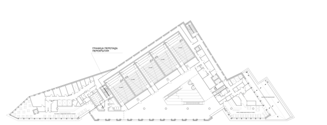
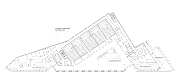
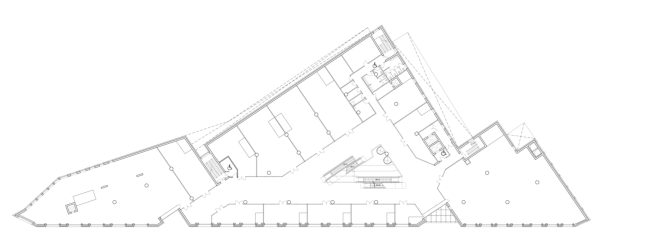
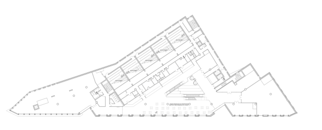
Многофункциональный комплекс на ул. Земляной Вал. План 3 этажа © Гинзбург Архитектс
Многофункциональный комплекс на ул. Земляной Вал. План 3 этажа © Гинзбург Архитектс
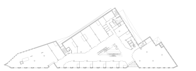
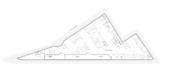
Многофункциональный комплекс на ул. Земляной Вал. План 4 этажа © Гинзбург Архитектс
Многофункциональный комплекс на ул. Земляной Вал. План 4 этажа © Гинзбург Архитектс
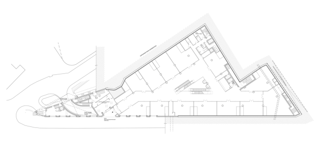
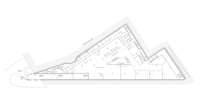
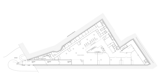
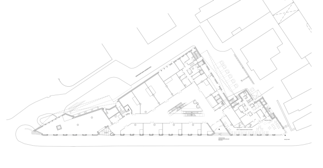
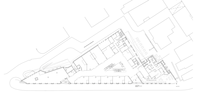
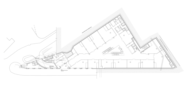
Многофункциональный комплекс на ул. Земляной Вал. План цоколя © Гинзбург Архитектс
Многофункциональный комплекс на ул. Земляной Вал. План цоколя © Гинзбург Архитектс
Многофункциональный комплекс на ул. Земляной Вал. План кровли © Гинзбург Архитектс
Многофункциональный комплекс на ул. Земляной Вал. План кровли © Гинзбург Архитектс
Многофункциональный комплекс на ул. Земляной Вал. Разрез © Гинзбург Архитектс
Многофункциональный комплекс на ул. Земляной Вал. Разрез © Гинзбург Архитектс