Размещено на портале Архи.ру (www.archi.ru)

05.07.2016

Вятские интервенции

Алла Павликова
Объект:
Архитектурно-панировочная концепция стрелкового комплекса в Кирове
Адрес:
Россия, Киров. д. Дороничи
Архитектурно-планировочная концепция жилой застройки в Кирове
Адрес:
Россия, Киров. Ленинский район, н.п. Пересторонцы
Жилой комплекс Znak
Адрес:
Россия, Киров.
Малоэтажный многоквартирный жилой дом повышенной комфортности в квартале «Ёлки-парк»
Адрес:
Россия, Киров.
Реконструкция Спасской площади в Кирове
Адрес:
Россия, Киров. Спасская улица
Учебно-спортивный комплекс в Кирове
Адрес:
Россия, Киров. ул. Садаковская, жк "Метроград"
Мастерская:
Архстройдизайн АСД
Авторский коллектив:
А.А. Иванов, В. Афанасьев
 

Серия проектных предложений по застройке, развитию и благоустройству Кирова и его окрестностей.

Коттеджный поселок «ILand» © Архстройдизайн
Коттеджный поселок «ILand» © Архстройдизайн
Коттеджный поселок «ILand» © Архстройдизайн
Коттеджный поселок «ILand» © Архстройдизайн

Посёлок и район
В городе Киров, который всё никак не вернёт себе историческое имя Вятка, архитектурная мастерская «Архстройдизайн» работает сразу над несколькими проектами. Все началось с поселка ILand, который в 2014 году получил премию «Лучший посёлок бизнес-класса». После чего заказчик пригласил мастерскую принять участие в конкурсе на застройку одного из окраинных районов города. Алексей Иванов конкурс выиграл; в результате появился детально проработанный архитектурно-планировочный проект с поэтичным названием «Амфитеатр» – мы уже рассказывали об этой концепции, охватившей территорию площадью около 43 гектара вблизи деревни Пересторонцы. Далее проект был доработан и сейчас «Архстройдизайн» выпускает проект планировки территории.
Генеральный план г. Кирова «Амфитеатр» © Архстройдизайн
Генеральный план г. Кирова «Амфитеатр» © Архстройдизайн

Площадь и сквер
От окраинных районов архитекторы перешли к историческому центру, который сегодня в таком участии явно нуждается. До революции в Вятке было больше шестидесяти церквей и монастырей. Сейчас на пожертвования восстанавливается здание Спасского собора – уцелевшего, но служившего клубом, а затем общежитием. Именно перед ним было предложено обустроить площадь с небольшим сквером. Формально и площадь, и сквер между Спасской и Московской улицами существуют, но они неухожены и не востребованы горожанами. Со стороны Спасской улицы сквер выглядит случайным и совсем не городским островком зелени. Внутри практически отсутствует городская мебель и освещение. Между тем расположение во всех смыслах знаковое: отсюда видны купола сразу двух монастырей – мужского Трифонова и женского Преображенского. Чуть в стороне крутым кольцом заворачивается река Вятка.
Реконструкция Спасской площади в Кирове. Вид с высоты птичьего полета © Архстройдизайн
Реконструкция Спасской площади в Кирове. Вид с высоты птичьего полета © Архстройдизайн

Совместно с заказчиком архитекторы разрабатывали техническое здание, определяли варианты функционального назначения этой площадки. Город утратил большое количество зданий, общественные пространства, потерял идентификацию. Восстановить исторические торговые ряды, существовавшие здесь до революции, в полном объеме уже нельзя, но превратить пустырь в место активного времяпровождения – возможно, – уверены архитекторы. Великорецкий крестный ход, который существует более 300 лет и начинается из Свято-Серафимовского собора, подсказал идею создания религиозно-информационного центра. В состав центра включена воскресная школа. Развитие идеи воскресной школы привело к созданию детского центра художественного воспитания, к нему подключилось детское кафе, медиа центр, выставочный павильон, кинозал, лектории. Таким образом назначение Спасской площади определялось как «артмедиа-центр». Разработали, как обычно, два варианта архитектурного решения павильонов и строений: интеллигентный – в историзме, и манифестный – в квазиландшафтной традиции, с включением зелени и рельефа в интерьеры зданий. Оба варианта были представлены на совещании у губернатора области, рассмотрены митрополитом Марком и ждут своего развития. Концепцию благоустройства площади Борцов Революции (её предлагается переименовать в Спасскую) авторы рассматривали в одном ключе с другими общественными пространствами центра города. Все они находятся в шаговой доступности, однако мало связаны между собой. В проекте их предлагается связать единым пешеходным и туристическим маршрутом, который объединит основные достопримечательности Кирова.

Каждая площадь получит свой акцент, доминирующую функцию. Скажем, будущая Спасская площадь станет площадью искусств, другие превратятся в театральную, торговую, детско-информационную площади, в туристические парки или рекреационные скверы. Сейчас общественные пространства города используются мало, исключая, разве что, детский парк, но даже в нем не хватает активности. Если там поставить павильон для показа мультфильмов и небольшое кафе, на театральной площади разместить афишу с бегущей строкой, на торговой – оборудовать парковки для фермеров, а на Спасской установить информационный киоск для туристов и построить воскресную школу для детей, то даже при таких минимальных затратах проявится индивидуальность каждой площади города.
Реконструкция Спасской площади в Кирове. Схема связей с прилегающими объектами © Архстройдизайн
Реконструкция Спасской площади в Кирове. Схема связей с прилегающими объектами © Архстройдизайн
Реконструкция Спасской площади в Кирове. Генеральный план. Эко-проект © Архстройдизайн
Реконструкция Спасской площади в Кирове. Генеральный план. Эко-проект © Архстройдизайн

Главный вход в сквер сохранён со стороны Казанской улицы. Вдоль аллеи, ведущей мимо храма к площади, появятся торговые павильоны. Противоположный угол зафиксирует новое и лаконичное здание Арт-Центра. Перед ним планируется разместить фонтан, а всю площадь выложить гранитной плиткой, рисунок мощения которой воспроизведет фрагмент карты Кирова. В теплое время года свободные пространства у стен Центра будут заняты столиками летних кафе. Благоустроенная территория храма и часовни условно отделится полукругом скамеек. Сквер станет площадкой для выставок и временных экспозиций, в нём также появятся игровые зоны и детская карусель. Авторы предлагают максимально сохранить существующие деревья. На своем месте останутся памятник Степану Халтурину и обелиск памяти погибшим за советскую власть. Чуть в стороне, вдоль Спасской улицы запланирован вместительный паркинг, необходимый в том числе и для автобусов с паломниками.
Реконструкция Спасской площади в Кирове. Вид на площадь и Мультимедиа Арт Центр со стороны собора © Архстройдизайн
Реконструкция Спасской площади в Кирове. Вид на площадь и Мультимедиа Арт Центр со стороны собора © Архстройдизайн
Реконструкция Спасской площади в Кирове. Вид на площадь и Мультимедиа Арт Центр со стороны собора. Эко-проект © Архстройдизайн
Реконструкция Спасской площади в Кирове. Вид на площадь и Мультимедиа Арт Центр со стороны собора. Эко-проект © Архстройдизайн
Реконструкция Спасской площади в Кирове. Вид на площадь и Мультимедиа Арт Центр со стороны сквера © Архстройдизайн
Реконструкция Спасской площади в Кирове. Вид на площадь и Мультимедиа Арт Центр со стороны сквера © Архстройдизайн
Реконструкция Спасской площади в Кирове. Вид на площадь и Мультимедиа Арт Центр со стороны сквера. Эко-проект © Архстройдизайн
Реконструкция Спасской площади в Кирове. Вид на площадь и Мультимедиа Арт Центр со стороны сквера. Эко-проект © Архстройдизайн
Реконструкция Спасской площади в Кирове. Вид на торговые павильоны и сквер со стороны площади © Архстройдизайн
Реконструкция Спасской площади в Кирове. Вид на торговые павильоны и сквер со стороны площади © Архстройдизайн
Реконструкция Спасской площади в Кирове. Вид на площадь со стороны сквера © Архстройдизайн
Реконструкция Спасской площади в Кирове. Вид на площадь со стороны сквера © Архстройдизайн

Жилой комплекс
Помимо общественных пространств в районе Урванцево, расположенном в 8 км от Спасской площади, «АСД» проектирует крупный жилой квартал, представляющий собой один дом, окруженный по периметру проездами, общая площадь 30 000 м². Открытым оставлен только северо-западный угол, для въезда спецтехники во двор, периметр замкнут. Самый протяженный фасад – длиннее 200 метров, прерывается аркой в одном месте. Симметричная композиция с понижением этажности в центральной части и массивными угловыми башнями призваны подчеркнуть сходство с кремлем. Пластика уличных фасадов достаточно нейтральна – в традициях московской средовой застройки: кирпичная кладка, крупные оконные проёмы, «градусники» эркеров и лоджий, решетчатые ограждения балконов. Во дворе фасады лаконичнее, но цветнее; они окружают зеленые лужайки с яблонями, детскими игровыми и спортивными площадками и велодорожкой. Наземная парковка обустроена рядом с комплексом за пределами двора.
Проект жилого квартала «Бастион» в Кирове
Проект жилого квартала «Бастион» в Кирове
© Архстройдизайн
Проект жилого квартала «Бастион» в Кирове
Проект жилого квартала «Бастион» в Кирове
© Архстройдизайн
Проект жилого квартала «Бастион» в Кирове
Проект жилого квартала «Бастион» в Кирове
© Архстройдизайн
Проект жилого квартала «Бастион» в Кирове. Генральный план
Проект жилого квартала «Бастион» в Кирове. Генральный план
© Архстройдизайн
Проект жилого квартала «Бастион» в Кирове. Фасад © Архстройдизайн
Проект жилого квартала «Бастион» в Кирове. Фасад © Архстройдизайн

Школа, сад, ФОК
Одновременно разрабатывался проект школы, детского сада и физкультурно-оздоровительного центра для строящегося в Кирове жилого комплекса «Метроград». Интересно, что все три функции предлагается встроить в один объем со своими автономными входами, разной высотностью и конструктивным шагом. Снаружи здание выглядит цельным. Алексей Иванов объясняет, что это «в меньшей степени архитектурная, в большей – планировочно-математическая модель, важна сама типология – новая, но вполне себя оправдывающая».
Учебно-спортивный комплекс в Кирове © Архстройдизайн
Учебно-спортивный комплекс в Кирове © Архстройдизайн
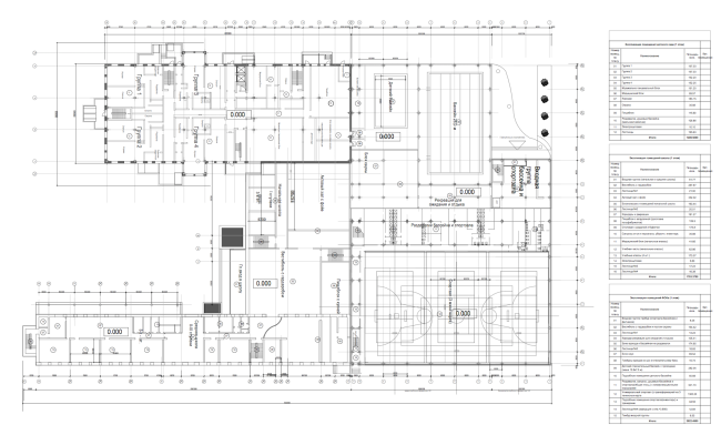
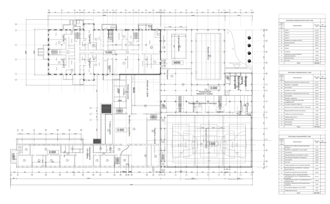
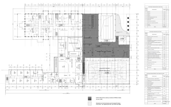
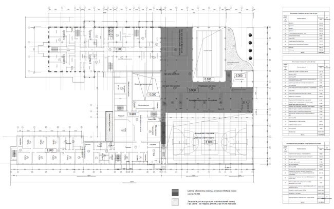
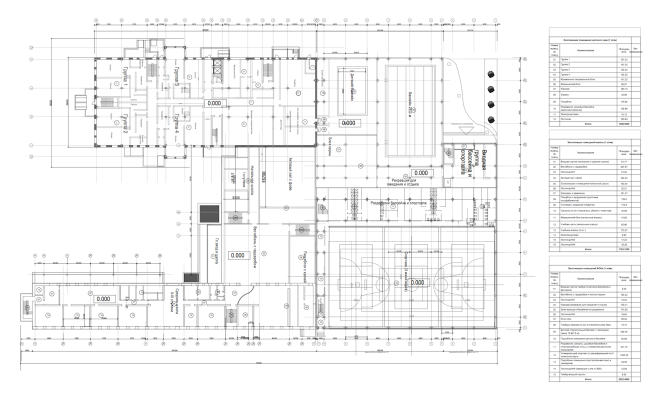
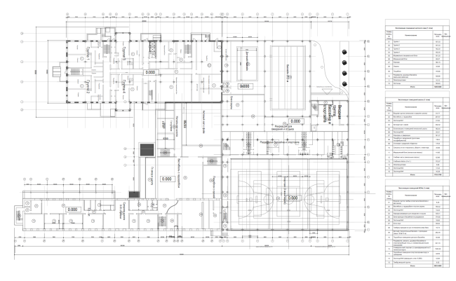
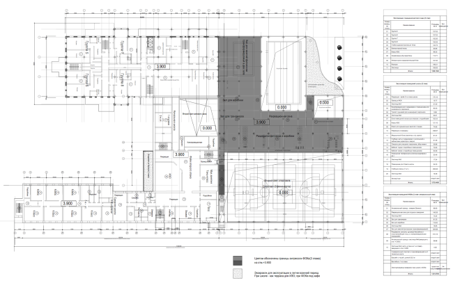
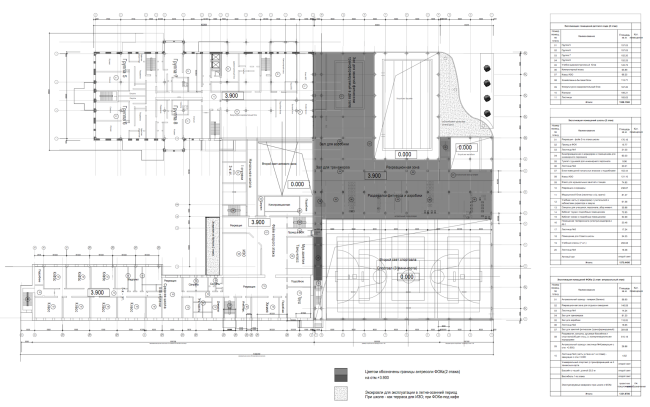
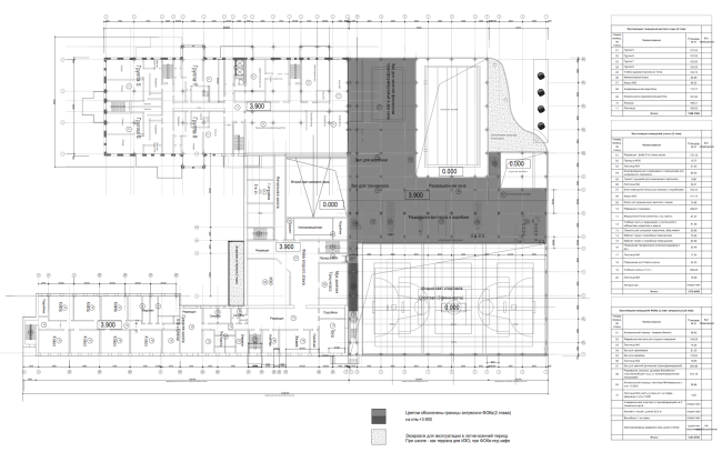
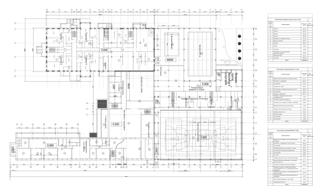
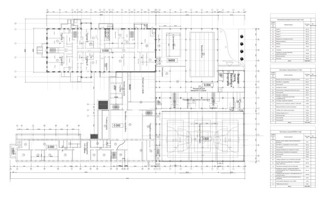
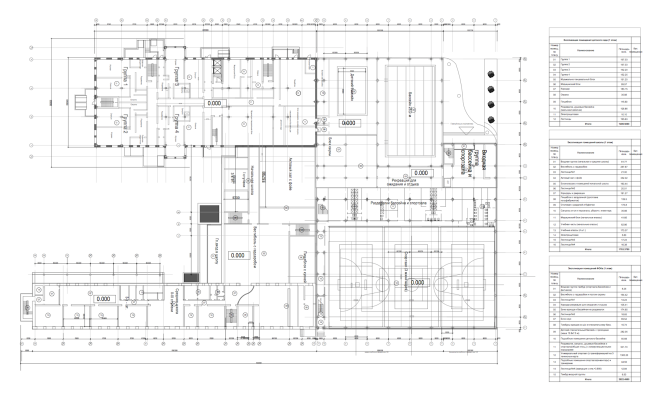
Учебно-спортивный комплекс в Кирове. План 1 этажа © Архстройдизайн
Учебно-спортивный комплекс в Кирове. План 1 этажа © Архстройдизайн
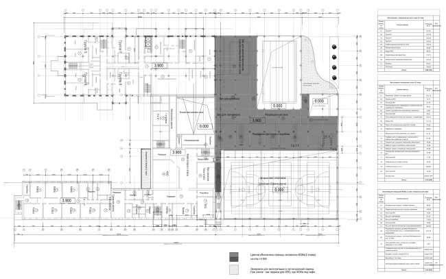
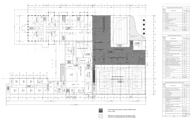
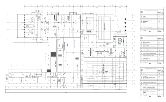
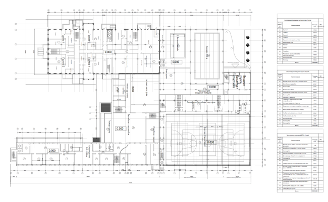
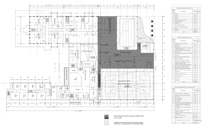
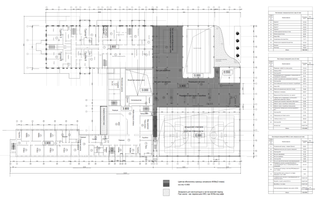
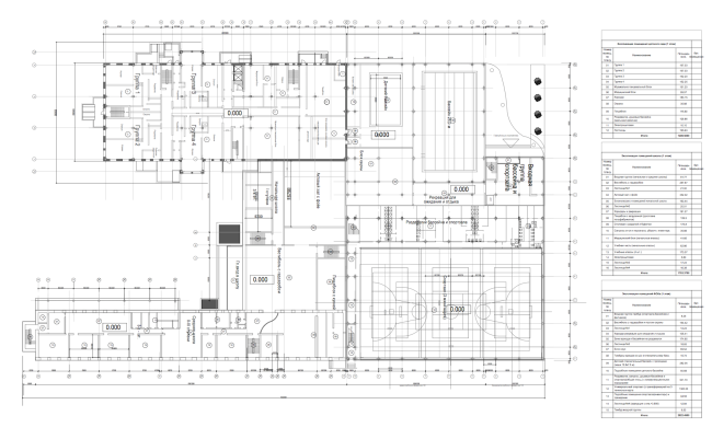
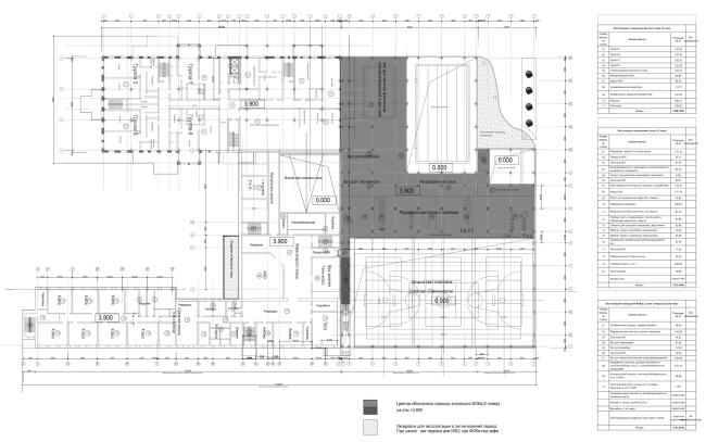
Учебно-спортивный комплекс в Кирове. План 2 этажа © Архстройдизайн
Учебно-спортивный комплекс в Кирове. План 2 этажа © Архстройдизайн

Коттеджный посёлок
В разработке у «АСД» квартал в проекте «Ёлки-park» в Нововятском районе Кирова. Рядом с участком расположены с одной стороны Дендропарк, с другой – река Вятка. Отдельные коттеджи, таунхаусы и малоэтажные многоквартирные дома ориентированы на реку. Планируется построить детский сад и торговый центр, предусмотрена инфраструктура для отдыха и спорта. По словам Алексея Иванова, посёлок получился несколько экспериментальным, поскольку он ориентирован на молодое и активное поколение. Особенность данного проекта состоит в попытке создать тип многоквартирного дома, где квартиры 1 этажа обладают собственным двориком (0,01 га), отдельным входом, двухуровневые, а квартиры 3 этажа меньшей площадью, но с антресолью.
Малоэтажный многоквартирный жилой дом повышенной комфортности в квартале «Ёлки-парк». Проект, 2015 © Архстройдизайн
Малоэтажный многоквартирный жилой дом повышенной комфортности в квартале «Ёлки-парк». Проект, 2015 © Архстройдизайн
Малоэтажный многоквартирный жилой дом повышенной комфортности в квартале «Ёлки-парк». Проект, 2015 © Архстройдизайн
Малоэтажный многоквартирный жилой дом повышенной комфортности в квартале «Ёлки-парк». Проект, 2015 © Архстройдизайн
Малоэтажный многоквартирный жилой дом повышенной комфортности в квартале «Ёлки-парк». План 1 этажа © Архстройдизайн
Малоэтажный многоквартирный жилой дом повышенной комфортности в квартале «Ёлки-парк». План 1 этажа © Архстройдизайн

Стрелковый клуб
Другое дело – проект частного стрелкового клуба, расположенного вблизи деревни Дороничи в 10 км от города Киров, вблизи охранной природной зоны. Здесь, на окруженном зеленью участке архитекторы дали волю творческой фантазии. Конструктивистские мотивы, образы Эль Лисицкого и композиционные ходы Малевича читаются в небольшом, но выразительном объеме из дерева, окрашенного в красный цвет, с длинными переходами и круглыми иллюминаторами окон. Строительство клуба близко к завершению.

Разнообразие архитектурных решений продиктовано стремлением московских архитекторов выявить исторические, ландшафтные особенности каждого участка, быть максимально тактичными к сложившемся традициям.
Архитектурно-панировочная концепция стрелкового комплекса в Кирове © Архстройдизайн
Архитектурно-панировочная концепция стрелкового комплекса в Кирове © Архстройдизайн
Архитектурно-панировочная концепция стрелкового комплекса в Кирове. Развертка © Архстройдизайн
Архитектурно-панировочная концепция стрелкового комплекса в Кирове. Развертка © Архстройдизайн
Архитектурно-панировочная концепция стрелкового комплекса в Кирове. Вид с высоты птичьего полета © Архстройдизайн
Архитектурно-панировочная концепция стрелкового комплекса в Кирове. Вид с высоты птичьего полета © Архстройдизайн

В сфере внимания бюро Алексея Иванова оказался целый город: его окраины, жилые кварталы и историческая часть – архитекторы складывают для себя образ города как паззл, выстраивают связи, заполняют пустоты, обнаруживают новые центры притяжения. Можно предположить, что столь активная «интервенция», основанная на диалоге архитекторов и города, может дать толчок для развития Вятки в целом. Может его и в Вятку наконец переименуют, хотя архитекторы как раз и не настаивают ни на чём подобном.