Размещено на портале Архи.ру (www.archi.ru)

25.05.2016

Пограничный дом

Юлия Тарабарина
Объект:
Жилой комплекс «Амазонка»
Адрес:
Россия, Кронштадт. ул. Зосимова, д. 46
Архитектор:
Никита Явейн
Мастерская:
Студия 44
Авторский коллектив:
Архитекторы: Н. Явейн, М. Горячкина, В. Кулаченков, В. Пономарев, при участии И. Григорьева, Ю. Дубейко
Конструктор: И. Ляшко, И. Никулина, А. Кривоносов
Главный инженер проекта: Л. Герштейн, В Кремлевский
 

Жилой комплекс, построенный Никитой Явейном в Кронштадте, невысок и экономен, но в нём много интересного, неожиданного в контексте типизирующегося российского домостроительства.

Жилой комплекс «Амазонка». Боковой фасад
Жилой комплекс «Амазонка». Боковой фасад
© Студия 44

Кронштадт место специфическое. Остров, теперь нанизанный на дамбу КАДа – это военный городок и в то же время памятник архитектуры и истории. Фрагмент Петербурга, строгого и стройного, хотя и немного потрёпанного; но – невысокий его вариант, как будто сокращённый, преимущественно трёхэтажный. В то же время ближе к окраинам город-крепость портят вкрапления советских домов из силикатного кирпича, заборы и КПП гарнизонного вида. Именно в таком месте, между длинным зданием одной из так называемых оборонительных казарм начала XIX века и уютной Посадской улицей ­– но также рядом с неряшливыми заборами и пятиэтажками, появился жилой комплекс с характерным для нашего времени названием «Амазонка», которое, впрочем, не было вольной фантазией девелоперов, а унаследовано от одного из ближайших каналов.

Мы рассказывали о проекте жилого комплекса в 2013 году, когда его строительство подходило к концу. Сейчас оно завершено, и судя по сопоставлению картинок, по большей части согласно проекту.

Архитектура комплекса реагирует на особенности окраины исторического Кронштадта. Прежде всего комплекс – невысокий, трёхэтажный с одним ярусом парковки, которая из-за сложной гидрологии на полтора метра выступает вверх из-под земли, отчего заслужила название «полуподземной». Три этажа, прежде всего, конечно, определены высотным регламентом охранных зон: они вторят высоте старых казарм и зданий Посадской улицы. Но посмею предположить, что «натянуть» высотность при желании здесь было бы несложно – поблизости как упомянутые пятиэтажки, так и сталинский, но похожий на поздний классицизм четырехэтажный дом офицерских семей. В соседнем дворе есть четырёхэтажные дома. Но Никита Явейн вернулся к масштабу николаевского фронта Посадской, «протянул» заданный там масштаб и тип застройки к западу, где рядом, пусть и за военным забором, море. А рядом с морем такие невысокие, протяженные кирпичные дома напоминают Голландию, где подобных, двух-трёхэтажных таунхаусов множество на окраинах городов. Словом, как будто бы следуя за мечтой Петра Великого, поклонника всего голландского от сапог до кораблей, здесь обозначился ещё один контекстный оттенок, историко-географический. Бог весть, превратится ли данный фрагмент морской крепости в «кусочек Голландии», но начало, прежде всего в отношении масштаба, будем считать, что положено.
Жилой комплекс «Амазонка». Ситуационный план
Жилой комплекс «Амазонка». Ситуационный план
© Студия 44

План комплекса унаследован от замкнутых дворов Петербурга и вторит современным «тенденциям квартальности». Но дворы ­– необычно длинные, причем два замкнуты почти совсем, не считая тыльного прохода по ступенькам и проезда для пожарных машин напротив; а средний открыт к улице Зосимова и напоминает площадь-курдонёр больших доходных домов Петербурга начала XX века. Осевой двор-площадь перекликается, однако, ещё и с Посадской улицей, которая замыкает квартал поодаль, с восточной стороны: если выйти из ЖК, повернуть два раза направо и посмотреть на Посадскую от её перекрестка с улицей Сургина – увидим похожий строй домов, длинные газоны и фронтон в перспективе. Это довольно далеко, поэтому переклички получаются не визуальными, а умозрительно-контекстуальными; этакая внутренняя шарада для тех, кто готов догадаться, что архитектор как будто бы «вырастил» в ядре своего комплекса подобие «провинциального Петербурга» Посадской.


Жилой комплекс «Амазонка». Центральный двор, взгляд с ул. Зосимова. Постройка, 2015 © Студия 44
Жилой комплекс «Амазонка». Центральный двор, взгляд с ул. Зосимова. Постройка, 2015 © Студия 44
© Студия 44
Жилой комплекс «Амазонка». Центральный двор, взгляд на ул. Зосимова
Жилой комплекс «Амазонка». Центральный двор, взгляд на ул. Зосимова
Фотография © Татьяна Стрекалова

Но посмотрим на комплекс не снаружи, а изнутри. В наше время, когда эксперименты с типологией, казалось бы, ушли в прошлое, задавленные типизацией жилых планировок, этот дом – практически целиком эксперимент. Не то чтобы здесь изобретено что-то, ещё неизвестное. Но диапазон квартир довольно широк, как будто выдержан в духе современного европейского идеала, стремящегося свести разные социальные страты теснее вместе.

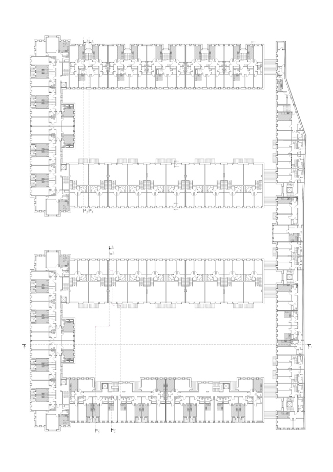
Самые просторные жилища, от 70 до 100 м2, размещены в самых тихих поперечных объемах между курдонёром и внутренними дворами. Здесь на трёх этажах – два яруса квартир, в них по три полу-уровня, соединённых лестницами. В квартиры первого этажа их жильцы входят с двора-площади, с уровня городской мостовой; двери в глубоких нишах. Войдя, они попадают из прихожей в комнату первого яруса, или же идут вперёд по лестнице, на полтора метра вверх, в помещение побольше, откуда устроен выход во внутренний двор на кровле подземной парковки, приподнятой, как мы помним, выше уровня земли. Во дворе эти квартиры снабжены собственными палисадниками, выход к которым решён как глубокая лоджия, откуда, надо думать, будет удобно наблюдать за кронштадским летним дождиком. Комната с выходом во двор – гостиная, здесь рядом кухня. Опять поднимаемся на полтора метра по лестнице, и попадаем в master bedroom, уже на втором этаже. Всего-то три комнаты.
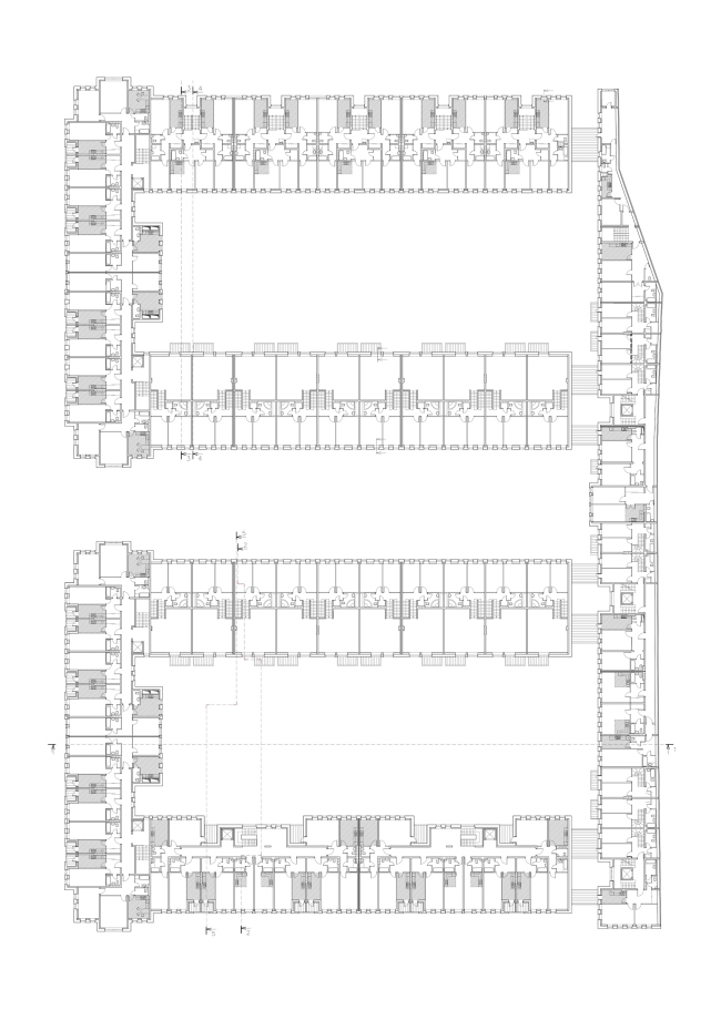
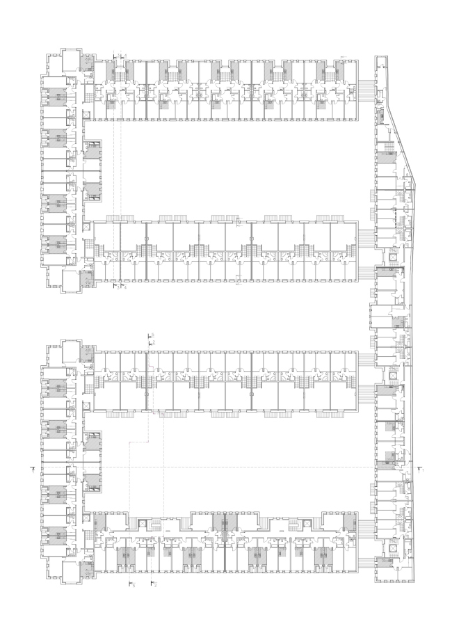
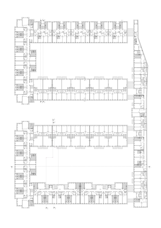
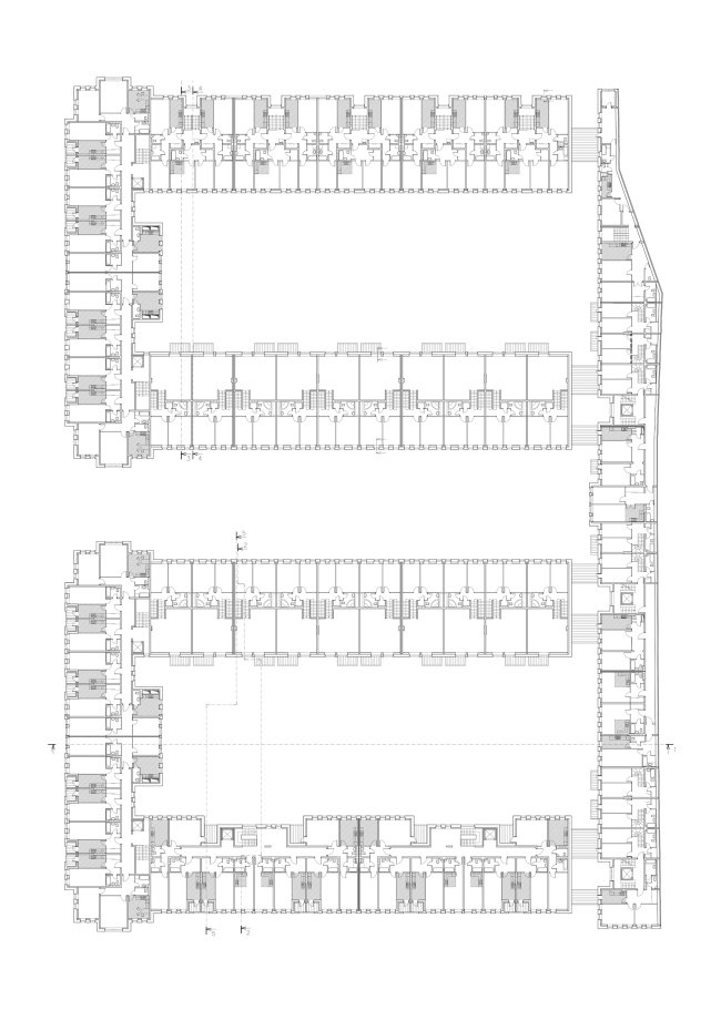
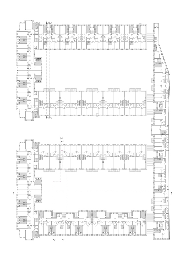
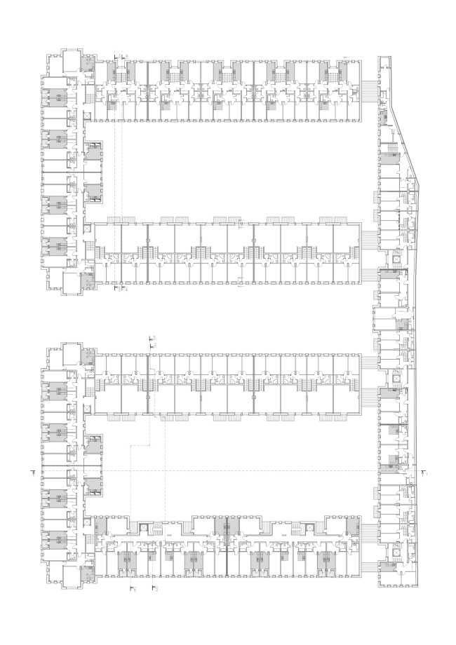
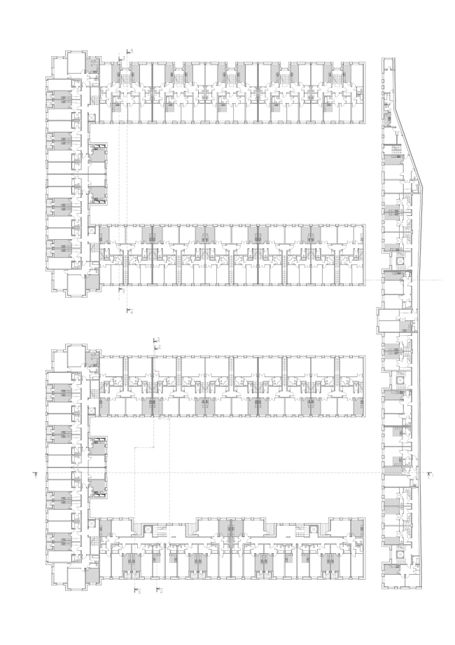
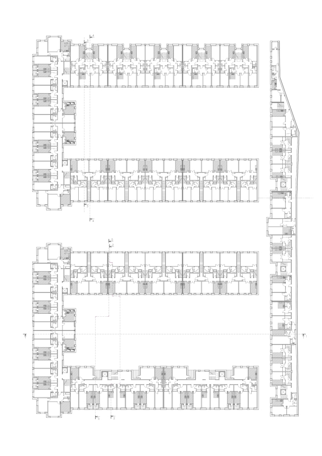
Жилой комплекс «Амазонка». План 1 этажа
Жилой комплекс «Амазонка». План 1 этажа
© Студия 44
Жилой комплекс «Амазонка». Внутренний двор
Жилой комплекс «Амазонка». Внутренний двор
© Студия 44
Жилой комплекс «Амазонка». Внутренний двор. Слева лоджии и палисадники больших квартир 1 этажа, справа навесные мостики к «дому-стене»
Жилой комплекс «Амазонка». Внутренний двор. Слева лоджии и палисадники больших квартир 1 этажа, справа навесные мостики к «дому-стене»
© Студия 44
Жилой комплекс «Амазонка». Разрез
Жилой комплекс «Амазонка». Разрез
© Студия 44

Вход в квартиры второго этажа оформлен со стороны двора-площади выступающим тамбуром, откуда двухмаршевая лестница ведёт к площадке на две квартиры, направо и налево. Здесь по четыре комнаты и просторнее. Вначале мы попадаем в гостиную, она смотрит во дворы, как и на первом этаже, затем по лестнице в две комнаты, обращенные к площади, вероятно, это спальни; еще чуть выше – просторное помещение, тоже, надо думать, гостиная или большой светлый кабинет с балконом во двор. Квартиры первого этажа воспринимаются как итальянские piano terreno, верхние же – piano nobile, они выглядят как наилучшее предложение этого ЖК, хотя туда и нужно подниматься по лестнице. Структура внутренних, «элитных» корпусов секционная.

Структура внешних корпусов спланирована более дробно, здесь чередуются однокомнатные квартиры с отдельной кухней и совсем маленькие студии-пеналы, с кухней совмещенные. Зато есть лифт и квартиры первого этажа приподняты над землей на высоту вымостки двора; на улицу выходят совсем небольшие балконы-лоджии. Узкий дом-забор, отделяющий ЖК от неряшливой соседней территории, тоже имеет свои особенности планировки. Здесь есть и лифт, и трёхкомнатные двухэтажные квартиры, объединённые внутри лестницей с поворотом, почти винтовой. Северо-восточный торец этого корпуса, выходящий к улице Сургина и примыкающий к неровной границе участка, по-питерски срезан, здесь образуется квартира-пенал, впрочем двухкомнатная и обогащенная сравнительно просторной лоджией на самом торце. В продольных корпусах, особенно в доме-стене, появляются элементы коридорно-галерейной планировки.
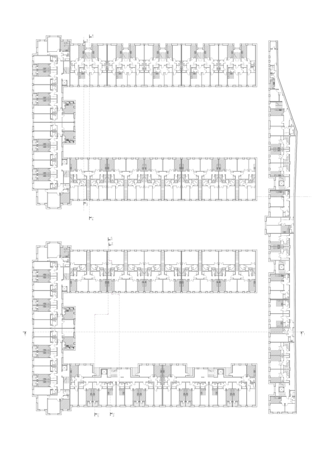
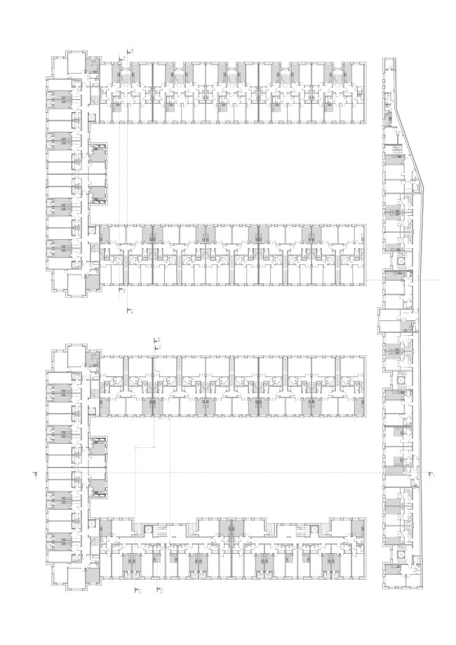
Жилой комплекс «Амазонка». План 2 этажа
Жилой комплекс «Амазонка». План 2 этажа
© Студия 44
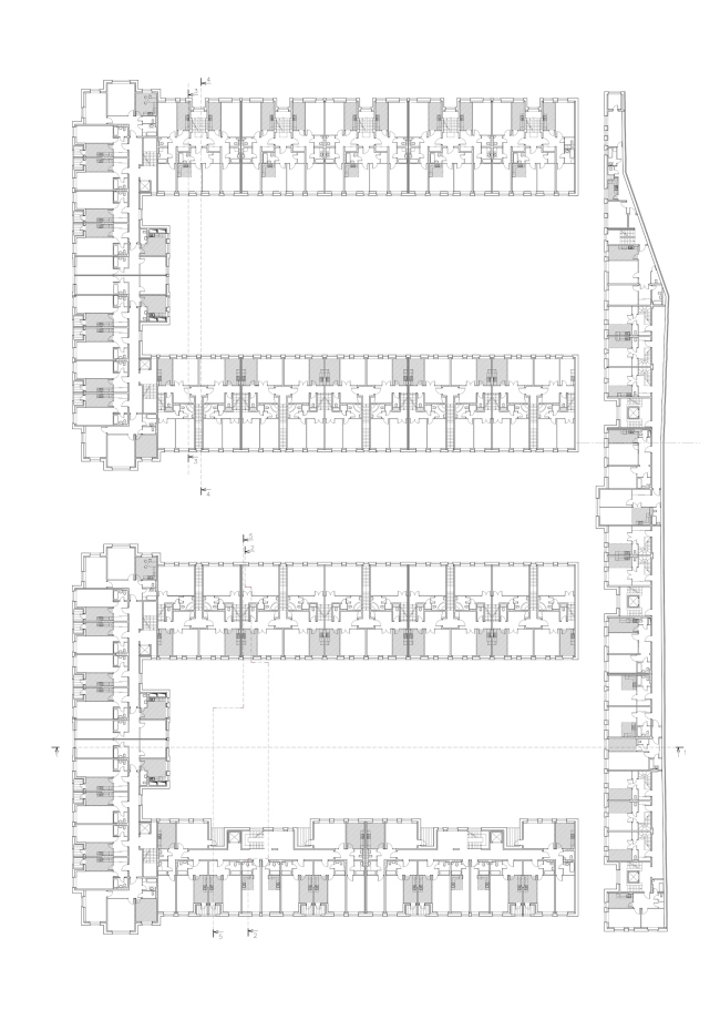
Жилой комплекс «Амазонка». План 3 этажа
Жилой комплекс «Амазонка». План 3 этажа
© Студия 44
Жилой комплекс «Амазонка». Разрез
Жилой комплекс «Амазонка». Разрез
© Студия 44

Некоторое разнообразие планов в сочетании с их преимущественной скромностью, местами даже затеснённостью, коррелирует с историческим городом, причём как Петербургом, где можно встретить всякое, так и с голландскими и, может быть, английскими примерами, с их обилием внутренних лестниц. Но также, где-то на периферии сознания, всплывают и эксперименты авангарда с их любовью к коридорам и миниатюрным студиям, разнообразию сочетаний и вариантов. Надо ли говорить, что в современной российской ситуации, не склонной к экспериментам, дом кажется одиноким, более того – даже порождённым каким-то специфическим сочетанием условий кронштадского (военного?) заказа, какой-то своей буквальной пограничности, ведь он стоит прямо-таки «на подоконнике «окна в Европу». Какую-то роль здесь должны были сыграть, конечно же, и убеждения Никиты Явейна, архитектора, увлеченного экспериментами и авангардом.

Внешне же уникальность дома бросается в глаза не сразу. Более того, сочетание красного кирпича с фронтонами и угловатой, местами брутальной пластикой, отпугнёт сноба. Сноб уловит сходство с подмосковными недо-замками и испугается, сбежит. А зря. Больше всего пугает красный цвет кирпича, ну, аллергия у нас на него. Однако приглядевшись, можно увидеть, что даже кирпич двух цветов: вверху, в аттиковом уровне, светлее. Ограждения покрашены серой краской, а хочется матового блеска чистого металла; водосточные трубы на виду. Кроме того, при сравнении с проектом очевидно, что часть деталей в процессе удешевления была опущена. Очень жаль деревянных вставок и полосатых ставень, которые одни могли в разы усилить ощущение качества отделки и европейские ассоциации. А кто с таким не сталкивался? Каркас замысла, между тем, безусловно жив.
Жилой комплекс «Амазонка», взгляд с ул. Зосимова. Постройка, 2015, Фотография © Татьяна Стрекалова, Студия 44
Жилой комплекс «Амазонка», взгляд с ул. Зосимова. Постройка, 2015, Фотография © Татьяна Стрекалова, Студия 44
© Студия 44
Жилой комплекс «Амазонка». Проект, 2011-2013
Жилой комплекс «Амазонка». Проект, 2011-2013
© Студия 44
Жилой комплекс «Амазонка». Проект, 2011-2013
Жилой комплекс «Амазонка». Проект, 2011-2013
© Студия 44
Жилой комплекс «Амазонка». Центральный двор. Постройка, 2015 © Студия 44
Жилой комплекс «Амазонка». Центральный двор. Постройка, 2015 © Студия 44
© Студия 44

На мой взгляд это как раз тот случай, когда не слишком гламурный дом богат архитектурой. Помимо уже описанного разнообразия квартир, фасады интересны множественным ритмом ниш, выступов, вырезов и углублений. Пропорции окон меняются от узких вертикальных, внизу собранных в квадратную филёнку, а на третьем этаже лишённых сандрика и накрытых плоским карнизом кровли подобно крепостным зубцам; им вторят аттики во дворах – всё вместе, определённо, разыгрывает крепостную кронштадскую тему.
Жилой комплекс «Амазонка». Внутренний двор
Жилой комплекс «Амазонка». Внутренний двор
Фотография © Татьяна Стрекалова
Жилой комплекс «Амазонка». Внутренний двор. Постройка, 2015, Фотография © Татьяна Стрекалова, Студия 44
Жилой комплекс «Амазонка». Внутренний двор. Постройка, 2015, Фотография © Татьяна Стрекалова, Студия 44
© Студия 44
Жилой комплекс «Амазонка». Внутренний двор
Жилой комплекс «Амазонка». Внутренний двор
© Студия 44
Жилой комплекс «Амазонка». Внутренний двор
Жилой комплекс «Амазонка». Внутренний двор
© Студия 44
Жилой комплекс «Амазонка». Внутренний двор
Жилой комплекс «Амазонка». Внутренний двор
© Студия 44

Однако лучшее в здешних фасадах, на мой взгляд – вставки белого камня. Они тоже сохранились не все, ушли мелкие декоративные вставки. Сдержанно-брутальный замысел качнулся ещё немного в сторону упрощения. Но остался карниз, отделяющий третий, аттиковый этаж, и крупные белокаменные «плиты», которые визуально держат и арки входов (пожарных въездов) во дворы, и эркеры. Но важно, что авторам удалось сохранить белокаменную облицовку входных тамбуров, покрытых любимым Никитой Явейном «антирустом», где гладкий лощеный камень чередуется с тонкими полосками «рваного» камня с фактурой «скала». В сочетании с освещающими лестницы круглыми окнами (которых в проекте не было, они появились в процессе) – главный двор-курдонёр приобрел неожиданный, какой-то даже римский привкус. Эти шершавые полоски вытягивают всё, акцентируя входы и оформляя как внутренний двор-площадь, так и фронт дома по улице Зосимова.
Жилой комплекс «Амазонка». Фрагмент фасада
Жилой комплекс «Амазонка». Фрагмент фасада
© Студия 44
Жилой комплекс «Амазонка»
Жилой комплекс «Амазонка»
Фотография © Татьяна Стрекалова

Сказать, что дом не так-то прост, будет, наверное, мало. Он увлекателен. Напоминает застройку послевоенного времени, которую легенда приписывает «пленным немцам»: такие дома встречаются во многих русских городах, например в Твери; они и двух-трёхэтажные, и где-то с фронтонами. Он заставляет вспомнить и пригороды европейских городов, не только голландских, и даже не только застроенных таунхаусами, – к примеру, тартуский район Ваксали, где стоит домик Алвара Аалто, созвучен ему сочетаниями стеклянных вертикалей с миниатюрными квадратными окошками, разбросом форм, сочетанием намеков на классические элементы и авангардного «изнутри-наружу». Интересный, словом, дом. Он противостоит российской тенденции внутреннего опрощения жилья при внешней пестроте; чем наверное, и ценен.
Жилой комплекс «Амазонка».
Жилой комплекс «Амазонка».
© Студия 44
Жилой комплекс «Амазонка». Проект, 2011-2013
Жилой комплекс «Амазонка». Проект, 2011-2013
© Студия 44
Жилой комплекс «Амазонка». Проект, 2011-2013
Жилой комплекс «Амазонка». Проект, 2011-2013
© Студия 44