Размещено на портале Архи.ру (www.archi.ru)

25.07.2016

Колосс-интроверт

Юлия Тарабарина
Объект:
Многофункциональный комплекс «Лотос»
Адрес:
Россия, Москва. Ул. Одесская, вл. 2
Архитектор:
Сергей Чобан
Мастерская:
Larta Glass
СПИЧ
Авторский коллектив:
Авторы проекта: Сергей Чобан, Сергей Кузнецов, Алексей Ильин
Главный архитектор проекта: Алексей Ильин
Главный инженер проекта: Л. Макухина
Архитекторы проекта: А. Борисов, Л. Тришкина, Г. Чембаева
 

МФК «Лотос» хорошо известен среди московских построек недавних лет. Рассматриваем, что получилось, анализируем образ и впечатления.

Многофункциональный комплекс «Лотос»
Многофункциональный комплекс «Лотос»
© Алексей Народицкий

Мы уже рассказывали, и довольно подробно, о проекте многофункционального, преимущественно офисного, комплекса в Зюзино на Одесской улице, рядом с метро «Нахимовский проспект» и речкой Котловкой (авторы проекта – Сергей Чобан, Сергей Кузнецов, Алексей Ильин, SPEECH). К концу 2014 года он воплотился практически так, как и был задуман, получил название «Лотос», и успел поучаствовать в смотрах многих известных российских архитектурных премий. Иными словами, здание – как известное, так и заметное, и в числе прочего ещё и потому, что это один из проектов, придуманных прямо перед финансовым кризисом 2008 года, но успешно воплощённых после него. Впрочем заметно оно не только теоретически: комплекс виден со многих сторон, довольно издалека, и уж конечно он поражает воображение людей, проезжающих по Нахимовскому проспекту, когда среди запылённых просторов, панельных домов и пятиэтажек, какого-то вечного дорожного ремонта и обильно растущих, но несколько чахлых деревьев – вдруг возникает крупный, но цельный, блестящий объем, скомпонованный плотно-компактно, и в то же время как будто немного вращающийся, этакое стеклянное торнадо.
Многофункциональный комплекс «Лотос». Постройка, 2011-2014. Фотография © Алексей Народицкий
Многофункциональный комплекс «Лотос». Постройка, 2011-2014. Фотография © Алексей Народицкий

Моим первым впечатлением была совершенная иномирность этого здания. В рыхлом и монотонном «спальном» окружении, где пятиэтажки и панельные микрорайоны перемежаются с промышленного вида полузаброшенными пустырями – его гладкое, блестящее, темно-синее тело 85-метровой высоты кажется либо выросшим, а точнее даже высверлившимся из земли, если не упавшим с неба. Это совершеннейший alien, и он сам это чувствует – замыкается в своём круге, впрочем не робко, а вполне себе уверенно. У греков была сказка по драконьи зубы, которые прорастали в поле – по ощущениям похоже: перед нами сильное и самодостаточное сооружение. В московском контексте оно эмоционально перекликается, наверное, только с Сити, там тоже у наблюдателя поначалу возникает похожий трепет перед нечеловеческим масштабом и качеством поверхностей. Как будто бы тесно насаженный там куст небоскребов дал вегетативный отросток. Больше всего возникает параллелей, конечно, с башней «Федерация», потому что её строил, с Петером Швегером, Сергей Чобан, но это сходство не слишком важно – скорее, и Сити, и «Лотос» принадлежат к одному жанру честной офисной громады, не намеренной себя маскировать, что предполагает и стеклянные фасады, и масштаб, и цельность стереометрической техногенной формы. Тридцать лет постмодернизма показали, что мимикрировать таким зданиям «не идёт», да и не получается, – честность и прямота в таком жанре уместнее.

Но пока вернемся к теме «пробуривания» из земли. Во-первых, спиральный план состоит из трёх корпусов-лопастей, так и намекающих на какой-то винт, может быть, вертолетный в духе поисков авангарда, а может быть, и какой-то другой. Во-вторых, огранка двух верхних этажей напоминает, особенно при близоруком взгляде снизу, зубчатый край заточенного инструмента. Её, конечно, можно было бы возвести к классическому аттику с чередующимися в шахматном порядке пилонами, но образ здания, в целом скорее техногенный, заставляет больше думать о механизме, чем об аттике. И третье: стеклянный фасад вырастает прямо из земли, безо всякого цоколя, местами он лишь открывает нишу-вход. Отчего хочется предположить, что и под землёй осталось немало такой же материи.
Многофункциональный комплекс «Лотос». Схема осей
Многофункциональный комплекс «Лотос». Схема осей
© SPEECH
Многофункциональный комплекс «Лотос». Постройка, 2011-2014. Фотография © Алексей Народицкий
Многофункциональный комплекс «Лотос». Постройка, 2011-2014. Фотография © Алексей Народицкий
Многофункциональный комплекс «Лотос». Постройка, 2011-2014. Фотография © Алексей Народицкий
Многофункциональный комплекс «Лотос». Постройка, 2011-2014. Фотография © Алексей Народицкий

Что отчасти правда: внизу четыре этажа парковки. В её центре ­– атриум, он накрыт куполом, внутри по проекту планировалось вырастить дерево – об этом мы уже рассказывали. Тогда же, отталкиваясь от идеи живого дерева, посаженного в центр здания-механизма, возникала логическая конструкция: здание стеклянно и небоскрёбно, но дереву удалось его немного расшевелить и оживить.
Многофункциональный комплекс «Лотос». Постройка, 2011-2014. Фотография © Алексей Народицкий
Многофункциональный комплекс «Лотос». Постройка, 2011-2014. Фотография © Алексей Народицкий

Всё так. При рассмотрении поначалу, конечно, впечатляешься колоссальностью. Но приглядевшись внимательнее, замечаешь довольно много признаков тонкой пластической игры, которая разворачивается в рамках сверхчеловеческого масштаба, но от этого не теряет интенсивности, а скорее даже приобретает её.

Прежде всего форма каждого корпуса – а они в общем и целом очень похожи – сочетает в себе цилиндр с конусом, обыгрывая напряжение, возникающее между этими двумя родственными, но разными формами. Каждый корпус можно представить себе как треть цилиндра, но на этом дело не заканчивается. Если мы посмотрим на их торцы, то увидим, что они трапециевидные, причем если один кверху сужается, то другой расширяется. По объёму проходит некая вселенская рябь, подобная колебаниям световых волн или электрических полей, – с одной стороны. А с другой стороны – напоминающая о курватурах классической колонны, переложенных на пост-энштейновский язык современной архитектуры.
Многофункциональный комплекс «Лотос». Постройка, 2011-2014. Фотография © Алексей Народицкий
Многофункциональный комплекс «Лотос». Постройка, 2011-2014. Фотография © Алексей Народицкий

Из-за геометрии, которая вынуждает объемы каждого корпуса совершить внутри себя небанальный переход от обычной трапеции к перевернутой, – внешние стены повсеместно оказываются не вполне вертикальны. Это хорошо видно на чертежах и разрезах. А если ходить вокруг, то глаз улавливает тонкости не сразу и создается впечатление, что сигнал об имманентной сложности этого гиганта приходит из подсознания. Неожиданно понимаешь, что у здания, на первый взгляд крупного, крепкого и простого, есть душа, оно не просто стоит, а и покачивается, и не от ветра, а в такт внутренней мелодии.

И того мало. Все стеклянные этажи объединены по два, и внешнее стекло широких стеклянных лент наклонено к небу; нижний край выступает консолью, образуя подобие козырька, защищающего каждую следующую пару этажей от солнца, – подчёркивают архитекторы. Наклонные поверхности лучше отражают небо, поэтому здание кажется таким синим, популярный наше время сдвоенный ритм помогает «съесть» масштаб. Черные тени консолей расчерчивают объемы графикой, красивой, похожей на рисунок кистью, черной тушью. Контуры «мазков» в перспективе плавно меняются, истоньшаются, заостряются, как линия, умело проведенная по китайскому шелку (на шелк – особенно похоже на закате), и в объеме появляется подчеркивающая, проявляющая его особенности графика. А особенности таковы, глядя на рисунок «штрихов», начинаешь сомневаться в том, равномерно ли выступают консоли или тоже включаются в игру. Но нет, они выступают равномерно, лишь графика теней обманывает глаз, ведет за собой. Впечатление похоже на акварель, прорисованную пером: по фасадам, расчерченным регулярной тонкой сеткой стыков, проходят широкие «мазки» консолей, причем где-то циркульные, с изогнутых поверхностей встречаются с прямыми, с плоских торцов – в таких местах особенно чувствуется энергичная пластика объемов. Любой, кто когда-либо штриховал цилиндр по форме, меня поймёт. Прозрачность углов, видимых на просвет, равно как и то, что корпуса отражаются друг в друге, добавляет и сложности, и живописности, разной интенсивности пятен холодной палитры, дробящихся на сгибах.
Многофункциональный комплекс «Лотос». Постройка, 2011-2014. Фотография © Алексей Народицкий
Многофункциональный комплекс «Лотос». Постройка, 2011-2014. Фотография © Алексей Народицкий
Многофункциональный комплекс «Лотос». Постройка, 2011-2014. Фотография © Алексей Народицкий
Многофункциональный комплекс «Лотос». Постройка, 2011-2014. Фотография © Алексей Народицкий
Многофункциональный комплекс «Лотос». Деталь фасада
Многофункциональный комплекс «Лотос». Деталь фасада
© SPEECH
Многофункциональный комплекс «Лотос». Постройка, 2011-2014. Фотография © Юлия Тарабарина
Многофункциональный комплекс «Лотос». Постройка, 2011-2014. Фотография © Юлия Тарабарина
Многофункциональный комплекс «Лотос». Постройка, 2011-2014. Фотография © Юлия Тарабарина
Многофункциональный комплекс «Лотос». Постройка, 2011-2014. Фотография © Юлия Тарабарина
Многофункциональный комплекс «Лотос». Постройка, 2011-2014. Фотография © Юлия Тарабарина
Многофункциональный комплекс «Лотос». Постройка, 2011-2014. Фотография © Юлия Тарабарина
Многофункциональный комплекс «Лотос». Постройка, 2011-2014. Фотография © Юлия Тарабарина
Многофункциональный комплекс «Лотос». Постройка, 2011-2014. Фотография © Юлия Тарабарина
Многофункциональный комплекс «Лотос». Постройка, 2011-2014. Фотография © Алексей Народицкий
Многофункциональный комплекс «Лотос». Постройка, 2011-2014. Фотография © Алексей Народицкий

Надо сказать, что помимо несколько раз упомянутого выше «бура», комплекс похож на механизм цангового карандаша: есть такие карандаши, которые держат грифель тремя-четырьмя металлическими лапками. Так вот, если убрать грифель, нажать на кнопку и раскрыть механизм – он лепестками раскрывается – получается очень похоже. Теперь вспомним, что и Сергей Чобан, и Сергей Кузнецов, который работал над этим проектом, ещё не будучи главным архитектором Москвы, – увлечённые рисовальщики, то сходство кажется не таким уж маловероятным.

Стекло – слегка тонированное: пропускает внутрь 45% видимого света и только 30% тепла. Оно сохраняет прозрачность, позволяет увидеть светлые строчки ламп дневного света на потолке каждого этажа: особенно заметные вечером и в пасмурный день, они складываются в лаконичный паттерн, оживляющий рисунок полос-консолей. Ночью здание светится изнутри как муравейник светлячков – чем, к слову сказать, тоже очень напоминает Сити. Видимые изнутри строчки света добавляют открытости: в жизни для человека, идущего вечером по улице, важны видимые на просвет, подсвеченные люстрами потолки чужих квартир; ничуть не подглядывая за чужой жизнью, мы оказываемся к ней немного причастны и не одиноки – белые штрихи света на потолке офисного комплекса обыгрывают именно эту эмоцию, что делает его, такой огромный и стереометрический, намного ближе и живее.
Многофункциональный комплекс «Лотос». Постройка, 2011-2014. Фотография © Алексей Народицкий
Многофункциональный комплекс «Лотос». Постройка, 2011-2014. Фотография © Алексей Народицкий
Многофункциональный комплекс «Лотос». Постройка, 2011-2014. Фотография © Алексей Народицкий
Многофункциональный комплекс «Лотос». Постройка, 2011-2014. Фотография © Алексей Народицкий
***

В наше время и в нашей стране (не будем брать другие страны) как-то очень мало людей готовы разглядывать архитектуру. Зато большинство готово ставить на ней штампы, не глядя. Офисный – плохо, точечный, уплотнительный – вообще ужасно. «Здание из стекла и бетона» так и вообще остается распространенным ругательством, прижившись в этом качестве, наверное, с восьмидесятых. В такой обстановке и офисы, и башни, неизбежно тушуются, стремятся скрыться, что, как мы помним, им не к лицу: спрятаться все равно не выходит, а неловкие попытки маскировки только уродуют. Здесь совершенно иной случай: «Лотос» заявляет о себе как о большом, стеклянном, офисном – это очевидно. Но сохраняет за собой право волноваться, может быть даже рефлексировать по поводу собственного архитектурного жанра, переливая мысли, а может быть и противоречия в не сразу заметные тонкости пластического решения. У гиганта есть душа; что и требовалось. Неоднократно доказано: именно так и следует действовать в данном жанре.
Многофункциональный комплекс «Лотос». Ситуационный план
Многофункциональный комплекс «Лотос». Ситуационный план
© SPEECH
Многофункциональный комплекс «Лотос». План 1 этажа
Многофункциональный комплекс «Лотос». План 1 этажа
© SPEECH
Многофункциональный комплекс «Лотос». План 2 этажа
Многофункциональный комплекс «Лотос». План 2 этажа
© SPEECH
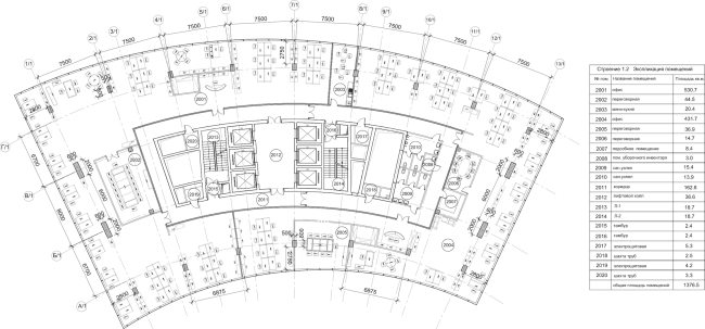
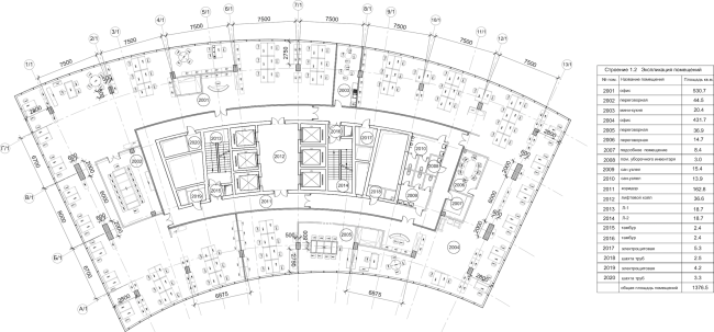
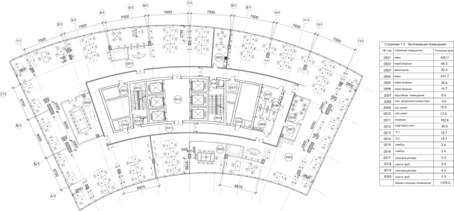
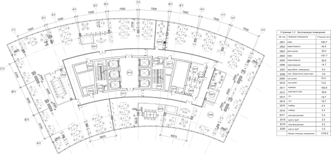
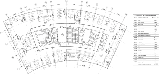
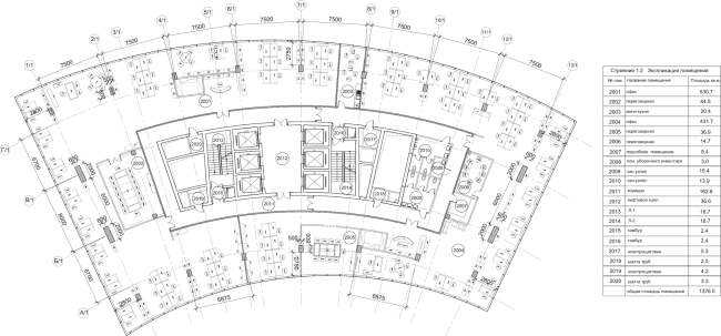
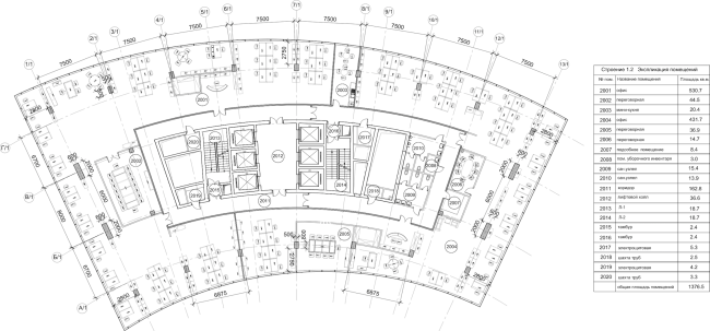
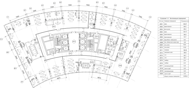
Многофункциональный комплекс «Лотос». План 11 этажа (офисы)
Многофункциональный комплекс «Лотос». План 11 этажа (офисы)
© SPEECH
Многофункциональный комплекс «Лотос». План 20 этажа
Многофункциональный комплекс «Лотос». План 20 этажа
© SPEECH
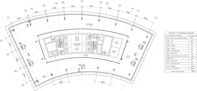
Многофункциональный комплекс «Лотос». План 21 этажа (офисы, техническая часть)
Многофункциональный комплекс «Лотос». План 21 этажа (офисы, техническая часть)
© SPEECH
Многофункциональный комплекс «Лотос». План эксплуатируемой кровли
Многофункциональный комплекс «Лотос». План эксплуатируемой кровли
© SPEECH
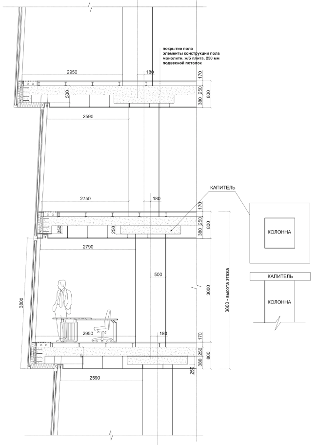
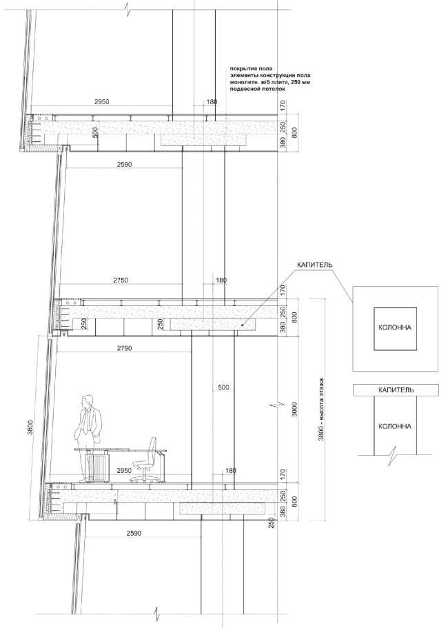
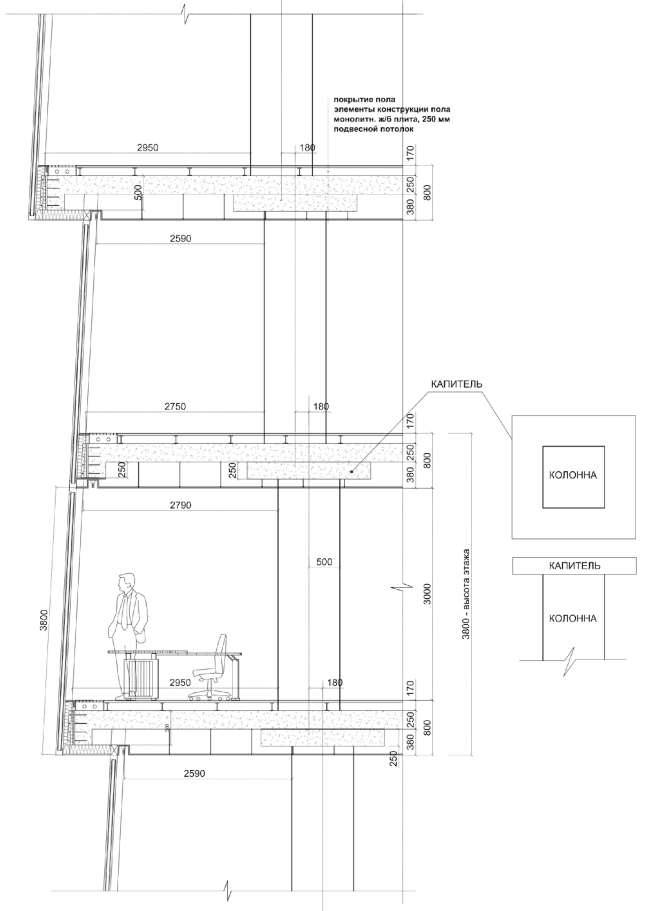
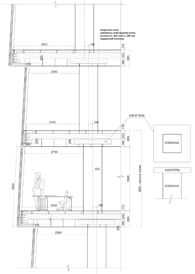
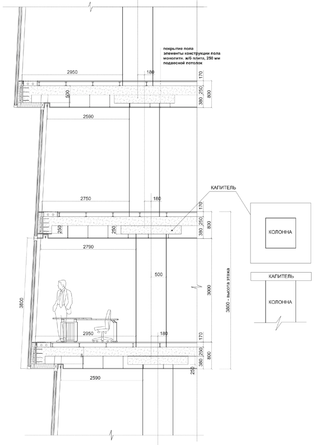
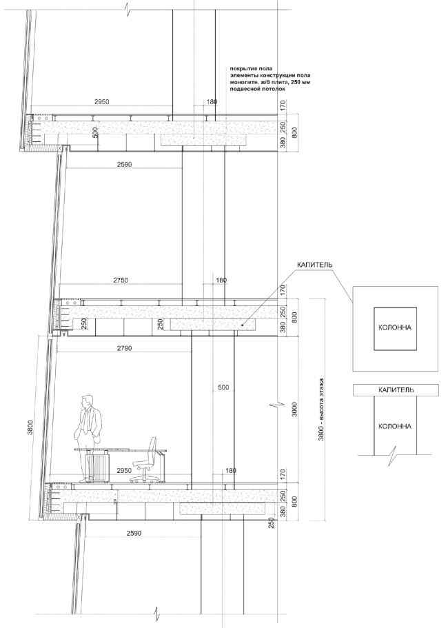
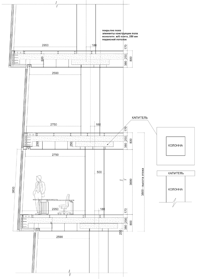
Многофункциональный комплекс «Лотос». Разрез
Многофункциональный комплекс «Лотос». Разрез
© SPEECH
Многофункциональный комплекс «Лотос». Разрез
Многофункциональный комплекс «Лотос». Разрез
© SPEECH
Многофункциональный комплекс «Лотос». Разрез
Многофункциональный комплекс «Лотос». Разрез
© SPEECH
Многофункциональный комплекс «Лотос». Фасад
Многофункциональный комплекс «Лотос». Фасад
© SPEECH
Многофункциональный комплекс «Лотос». Фасад
Многофункциональный комплекс «Лотос». Фасад
© SPEECH
Многофункциональный комплекс «Лотос». Фасад
Многофункциональный комплекс «Лотос». Фасад
© SPEECH
Многофункциональный комплекс «Лотос». Фасад
Многофункциональный комплекс «Лотос». Фасад
© SPEECH
Многофункциональный комплекс «Лотос». Фасад
Многофункциональный комплекс «Лотос». Фасад
© SPEECH
Многофункциональный комплекс «Лотос». Фасад
Многофункциональный комплекс «Лотос». Фасад
© SPEECH