Размещено на портале Архи.ру (www.archi.ru)

04.03.2016

Дом-Ковчег

Серафима Львовская
Объект:
Серия домов «Дом-Ковчег»
Адрес:
Россия, Москва.
Мастерская:
АрхПроект-3
Авторский коллектив:
Руководитель авторского коллектива: Наталья Брайловская, ГАП: Владимир Юзбашев, архитектор: Екатерина Юзбашева

Владимир Юзбашев и Наталья Брайловская рассказывают о модульном каркасном доме, производство которого начало их бюро Арх-Проект-3.

Серия домов «Дом-ковчег». Ковчег-3 (3 модуля). Постройка, 2015 © АрхПроект-3
Серия домов «Дом-ковчег». Ковчег-3 (3 модуля). Постройка, 2015 © АрхПроект-3

В нашей многоэтажной, но дачной стране мечта многих людей – жить за городом, а некоторых, хотя и далеко не всех, урбанистов – изменить принцип жилой застройки, приоритетом которой, увы, продолжают оставаться панельные гиганты. Удачное дополнение, а может быть, и альтернатива панельной городской квартире – модульный каркасный дом. Решение, которое давно популярно на Западе, постепенно набирает силу и в России; с некоторых, сравнительно недавних, пор, линейками модульных домов начали заниматься и архитекторы. Мы уже беседовали с Романом Леонидовым и Иваном Овчинниковым об их проектах NEWOOD и ДубльДом.

В начале марта на постоянной выставке деревянных домов «Малоэтажная Россия» (Каширское ш., 63 корп. 1) был установлен образец модульного дома-Ковчега: самая маленькая модификация сборного каркасного дома, разработанного бюро Арх-Проект-3 Владимира Юзбашева и Натальи Брайловской называет дом-Ковчег-3. Архитекторы планируют показать свой дом и на выставке «Загородный дом» в Экспо-центре (10-13 марта 2016). Мы задали авторам серии небольших и доступных по цене домов несколько вопросов.

Архи.ру:
– Когда пришла идея сделать модульный дом и когда вы начали работать?

Владимир Юзбашев и Наталья Брайловская, Арх-Проект-3:
– У нас был опыт проектирования каркасных домов с 2013 года. В 2014 к нам пришел клиент и заказал разработку линейки модульных каркасных домов для производства. мы предложили эскизные решения нескольких типов домов, разных по площади – планы, фасады, разрезы. А технологический проект разрабатывали сами производственники. Результат нам не понравился – и качеством сборки, и теми деталями, которые привнесли строители.

Однако идея сборного дома с полной отделкой – такого, который можно привезти на место, установить и сразу в нём жить, нам понравилась. К тому же к нам поступали предложения о разработке серии домов для конкретных участков. Мы увлеклись, стали думать, что можно было бы сделать лучше. Так появилась идея сделать собственную линейку домов – следующее поколение Ковчегов, с продуманным дизайном и технологическими решениями. Мы нашли частного инвестора для продвижения Ковчегов и договорились о производстве новой серии домов.

В 2015 каркасный угловой дом, который мы разработали и построили, стал лауреатом фестиваля «Под крышей дома» в номинации реализованный загородный дом.
Слева направо: Владимир Юзбашев, Наталья Брайловская, Екатерина Юзбашева
Слева направо: Владимир Юзбашев, Наталья Брайловская, Екатерина Юзбашева

– В чём отличия «Дома-ковчега» от других подобных модульных домов? Его маркетинговые преимущества?

– Главное преимущество – это дом, придуманный и полностью, в деталях, продуманный архитекторами. Поэтому он сочетает внешний вид жилого дома, построенного по индивидуальному проекту с теми удобством возведения, которые нам даёт модульная технология. Нам хотелось, чтобы дом выглядел как уникальная авторская работа, но чтобы это его архитектурное качество было доступным. Интерьеры также выполнены по профессиональному дизайн-проекту: подобраны светильники, сантехника, мозаика в санузле. Каждый наш дом продуман и ориентирован на то, чтобы всё было удобно и функционально; функции чётко зонированы. Даже наш самый маленький дом-Ковчег-3 (37 м2), может быть альтернативой городской квартире или гостевому дому, он рассчитан на комфортное проживание семьи, в нём есть всё необходимое – просторная кухня-гостиная, две спальни, санузел с душевой, раковиной, унитазом, прихожая.
Серия домов «Дом-ковчег». Аксонометрии, модули. 2015 © АрхПроект-3
Серия домов «Дом-ковчег». Аксонометрии, модули. 2015 © АрхПроект-3
Серия домов «Дом-ковчег». Ковчег-3 (3 модуля). Макет. 2015 © АрхПроект-3
Серия домов «Дом-ковчег». Ковчег-3 (3 модуля). Макет. 2015 © АрхПроект-3
Серия домов «Дом-ковчег». Ковчег-3 и Ковчег-4. Фасады. 2015 © АрхПроект-3
Серия домов «Дом-ковчег». Ковчег-3 и Ковчег-4. Фасады. 2015 © АрхПроект-3

Дома производят в заводских условиях с качеством сборки производственной мебели, используя экологичные материалы: главный материал ­– дерево, а для утепления мы используем базальтовую вату, в отличие от других производителей, которые применяют в составе стен пенополистерол и пластиковые панели.

И в отличие от распространенного дешевого решения модульных летних домов, дом-ковчег отлично утеплен и подходит для круглогодичного проживания. Толщина утеплителя в стенах – 150 мм, в потолке и полу – 200 мм. И, как и полагается в каркасных домах, в состав стен и всего контура дома входит пароизоляция, паро-влаго защитаУстанавливаются двухкамерные стеклопакеты 45 мм, тогда как обычно производители устанавливают стеклопакеты шириной 30-42 мм.
Серия домов «Дом-ковчег». Стеклопакет. 2015 © АрхПроект-3
Серия домов «Дом-ковчег». Стеклопакет. 2015 © АрхПроект-3
Серия домов «Дом-ковчег». Деталь. 2015 © АрхПроект-3
Серия домов «Дом-ковчег». Деталь. 2015 © АрхПроект-3
Серия домов «Дом-ковчег». Производство. 2015 © АрхПроект-3
Серия домов «Дом-ковчег». Производство. 2015 © АрхПроект-3

Отделка внутри и снаружи – имитация бруса, сосна.

– Какое дерево вы используете для каркаса? Насколько оно сухое, не грозит ли ему рассохнуться?

– Мы используем высушенную в производственных условиях сосну, струганную и шлифованную древесину. Даже каркас дома, который нигде не виден, мы собираем из струганного бруса 50х150 мм и 100х150 мм. Такой брус у нас применяется даже в одноэтажных домах, тогда как другие компании используют для каркаса двухэтажных домов доску толщиной 30 мм. Шаг стоек каркаса в наших домах-ковчегах – 600 мм.
Серия домов «Дом-ковчег». Производство. 2015 © АрхПроект-3
Серия домов «Дом-ковчег». Производство. 2015 © АрхПроект-3
Серия домов «Дом-ковчег». Производство. 2015 © АрхПроект-3
Серия домов «Дом-ковчег». Производство. 2015 © АрхПроект-3
Серия домов «Дом-ковчег». Деталь. 2015 © АрхПроект-3
Серия домов «Дом-ковчег». Деталь. 2015 © АрхПроект-3

Рассыхание каркасным домам не грозит – это проблема срубов; в каркасных домах доски крепятся друг к другу под разным углом, поэтому они застрахованы от последствий рассыхания. Их также не касается усадка, поскольку каркас легче, чем сруб.

– Как быстро вы собираете и устанавливаете дом?

Дом комплектуется в производственных условиях в течение 3-4 недель – собираются модули с инженерией, окнами, дверьми, сантехникой, отделкой. На участке устраивается свайный винтовой фундамент, модули стыкуются, дом подключают к внешним сетям, накрывают фальцевой кровлей. Весь монтаж дома на участке занимает 3-5 дней. Нашим клиентам мы поможем с подключением дома к инженерным коммуникациям, подбором и установкой мебели, устройством сауны или бани.
Серия домов «Дом-ковчег». Дополнительные решения. 2015 © АрхПроект-3
Серия домов «Дом-ковчег». Дополнительные решения. 2015 © АрхПроект-3

– Сколько вариантов вы предлагаете сейчас и какова их цена с установкой?

– Сейчас разработано четыре типа одноэтажных домов разной площади и планировок: начиная от упомянутого выше «Ковчега-3» из трёх модулей, 37.2 м2 – он стоит 1.35 млн рублей, и до «Ковчега-6», который состоит, соответственно, из шести модулей, имеет площадь 75.3 м2 и стоит 2.7 млн рублей. В заявленную стоимость входит дом с наружной и внутренней отделкой, разводка электрики, щиток, розетки и выключатели, светильники, разводка водопровода и канализации, сантехника в санузле, бойлер на 50 литров и монтаж дома на участке. Отдельно оплачиваются свайные винтовые фундаменты, для Ковчега-3 это ориентировочно 50 000 рублей, для Ковчега-6 – 100 000 рублей, уточняется в зависимости от рельефа и грунта; а также доставка и система отопления из электрических конвекторов или газового теплового пункта.

Помимо жилых домов в серию дом-Ковчег входят бани и гостевые дома, а также перголы, террасы, веранды и хозблоки.
Серия домов «Дом-ковчег». Ковчег-3 (3 модуля). Постройка, 2015 © АрхПроект-3
Серия домов «Дом-ковчег». Ковчег-3 (3 модуля). Постройка, 2015 © АрхПроект-3
Серия домов «Дом-ковчег». Ковчег-3 (3 модуля). Постройка, 2015 © АрхПроект-3
Серия домов «Дом-ковчег». Ковчег-3 (3 модуля). Постройка, 2015 © АрхПроект-3
Серия домов «Дом-ковчег». Ковчег-3 (3 модуля). Постройка, 2015 © АрхПроект-3
Серия домов «Дом-ковчег». Ковчег-3 (3 модуля). Постройка, 2015 © АрхПроект-3
Серия домов «Дом-ковчег». Ковчег-3 (3 модуля). Интерьер. Постройка, 2015 © АрхПроект-3
Серия домов «Дом-ковчег». Ковчег-3 (3 модуля). Интерьер. Постройка, 2015 © АрхПроект-3
Серия домов «Дом-ковчег». Ковчег-4 (4 модуля). Постройка, 2015 © АрхПроект-3
Серия домов «Дом-ковчег». Ковчег-4 (4 модуля). Постройка, 2015 © АрхПроект-3
Серия домов «Дом-ковчег». Ковчег-4 (4 модуля). Постройка, 20112роект-3
Серия домов «Дом-ковчег». Ковчег-4 (4 модуля). Постройка, 20112роект-3

– Какие коммуникации должны обязательно быть на участке, чтобы там можно было установить «Дом-ковчег»?

– На участке должно быть инженерное обеспечение: электричество, вода, канализация. Это могут быть городские коммуникации, а могут быть и автономные. С установкой колодца/скважины и септика мы можем помочь клиенту.

– Как обстоят дела с очисткой плоской кровли от снега?

– Наши дома имеют небольшой уклон кровли – 8%. Этого уклона вполне достаточно, чтобы стекала вода. Снег может лежать на кровле, снеговая нагрузка учтена при конструировании дома. Для надежности конструкции во время перепадов температуры зимой, кровля выполняется по фальцевой технологии: металлические листы надежно скреплены в замки, а не кладутся друг на друга в внахлёст, как применяют большинство производителей домов на рынке сегодня. Это трудоемкий процесс, но мы делаем именно так.
Дом-Ковчег: производство. 2015 © АрхПроект-3
Дом-Ковчег: производство. 2015 © АрхПроект-3

Обрешётка под металлической кровлей выполняется по классической схеме – нашивается доска толщиной 20 мм и с зазором 20 мм. Под обрешёткой укладывается супер-диффузионная мембрана. Такой пирог кровли обеспечивает надёжную и удобную эксплуатацию в любых погодных условиях, гарантирует защиту от протечек, дает возможность чистки кровли, если дом стоит на лесном участке и на него падает листва или хвоя.

– Какие другие варианты модульных домов вы считаете своими конкурентами?

– Мы считаем, что дом должен быть создан архитекторами, а не строителями. Только архитектор может продумать каждую мелочь, учесть и эстетические качества постройки, и технологию, и качество жилища, и удобство. Всегда видно, строился дом по архитектурному проекту, или нет. И всегда выигрывает именно тот дом, который создан архитекторами, а не строителями.

В Европе модульные дома довольно популярны – удобное, комфортное жилье, дом, который можно быстро купить и поставить, а при необходимости перевезти на другое место. В нашей стране модульное домостроение не очень развито, строительные компании предлагают модульные дома наряду с другими типами жилых домов и как правило не имеют готового конкретного предложения, единой стилистики, как предлагаем мы.

– А чем вы восхищаетесь как прототипом-прообразом?

– Дом-Ковчег с самого начала разрабатывался как жилье в современном стиле: удобное, лаконичное, продуманное. Его форма определяется возможностями современных технологий. Мы определяем стиль дома как скандинавский – в качестве прототипов было изучено множество проектов, сделанных в странах Северной Европы. Заводское качество домов-Ковчегов соответствует технологическому и экологическому стандарту канадского домостроения.

– Угловой дом-Ковчег-6 похож не на модульный дом, а на индивидуальный. Вообще не очень представляю, как везти модули вашей просторной гостиной на машине. Зачем понадобился угол? На макетах шестимодульный дом показан вполне ортогональным; какой вариант вы будете предлагать клиентам, дом-угол или прямой брусок?

– Действительно, угловой дом-Ковчег-6 проектировался как индивидуальный дом и был построен просто по каркасной технологии. Причем мы выполнили полный проект с прорисовкой каждой доски и каждого примыкания, каждой детали. Он всем очень понравился и мы выпустили проект этого же дома, но в модульной технологии. Дом будет собираться на производстве модулями и привозиться готовым на участок и будет выглядеть индивидуальным.
Серия домов «Дом-ковчег». Ковчег-6 (6 модулей). Постройка, 2015 © АрхПроект-3
Серия домов «Дом-ковчег». Ковчег-6 (6 модулей). Постройка, 2015 © АрхПроект-3
Серия домов «Дом-ковчег». Ковчег-6 (6 модулей). Постройка, 2015 © АрхПроект-3
Серия домов «Дом-ковчег». Ковчег-6 (6 модулей). Постройка, 2015 © АрхПроект-3
Серия домов «Дом-ковчег». Ковчег-6 (6 модулей). Постройка, 2015 © АрхПроект-3
Серия домов «Дом-ковчег». Ковчег-6 (6 модулей). Постройка, 2015 © АрхПроект-3
Серия домов «Дом-ковчег». Выставочный дом у м. Домодедовская. Постройка, 2016 © АрхПроект-3
Серия домов «Дом-ковчег». Выставочный дом у м. Домодедовская. Постройка, 2016 © АрхПроект-3

– Где находится построенные образцы серии, которые мы видим на фотографиях и плане, кто в нем живет и как долго?

– Сейчас на производстве собирается третий дом-Ковчег, а установлено два, оба шестимодульные, это дома-Ковчеги-6. Первый дом в Истринском районе, он успешно перезимовал два года, в нём живет семья с одним ребёнком. Второй – во Владимирской области, в нём живёт семья с двумя детьми, он установлен осенью, зимует в первый раз. Заказчикам – немногим больше тридцати лет, один из них – дизайнер мобильных приложений.
 
Серия домов «Дом-ковчег». Ковчег-6, поворотный (6 модулей). План. 2015 © АрхПроект-3
Серия домов «Дом-ковчег». Ковчег-6, поворотный (6 модулей). План. 2015 © АрхПроект-3
Серия домов «Дом-ковчег». Выставочный дом у м. Домодедовская. Постройка, 2016 © АрхПроект-3
Серия домов «Дом-ковчег». Выставочный дом у м. Домодедовская. Постройка, 2016 © АрхПроект-3
Серия домов «Дом-ковчег». Установка модуля на винтовой фундамент. 2015 © АрхПроект-3
Серия домов «Дом-ковчег». Установка модуля на винтовой фундамент. 2015 © АрхПроект-3
Серия домов «Дом-ковчег». Выставочный дом у м. Домодедовская. Постройка, 2016 © АрхПроект-3
Серия домов «Дом-ковчег». Выставочный дом у м. Домодедовская. Постройка, 2016 © АрхПроект-3
Серия домов «Дом-ковчег». Ковчег-3 (3 модуля). Макет. 2015 © АрхПроект-3
Серия домов «Дом-ковчег». Ковчег-3 (3 модуля). Макет. 2015 © АрхПроект-3
Серия домов «Дом-ковчег». Выставочный дом у м. Домодедовская. Постройка, 2016 © АрхПроект-3
Серия домов «Дом-ковчег». Выставочный дом у м. Домодедовская. Постройка, 2016 © АрхПроект-3
Серия домов «Дом-ковчег». Ковчег-3 (3 модуля). Макет. 2015 © АрхПроект-3
Серия домов «Дом-ковчег». Ковчег-3 (3 модуля). Макет. 2015 © АрхПроект-3
Серия домов «Дом-ковчег». Ковчег-3 (3 модуля). Макет. 2015 © АрхПроект-3
Серия домов «Дом-ковчег». Ковчег-3 (3 модуля). Макет. 2015 © АрхПроект-3
Серия домов «Дом-ковчег». Ковчег-3 (3 модуля). Макет. 2015 © АрхПроект-3
Серия домов «Дом-ковчег». Ковчег-3 (3 модуля). Макет. 2015 © АрхПроект-3
Серия домов «Дом-ковчег». Ковчег-3 (3 модуля). Макет. 2015 © АрхПроект-3
Серия домов «Дом-ковчег». Ковчег-3 (3 модуля). Макет. 2015 © АрхПроект-3
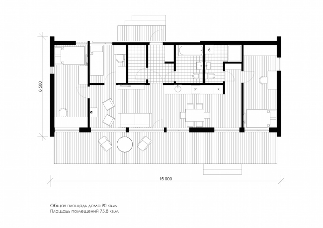
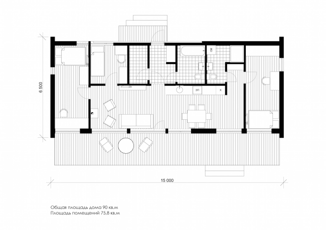
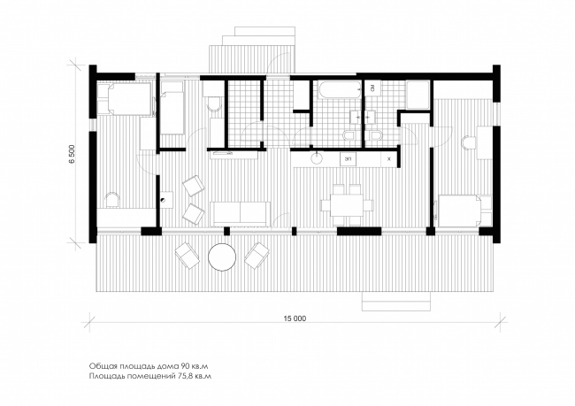
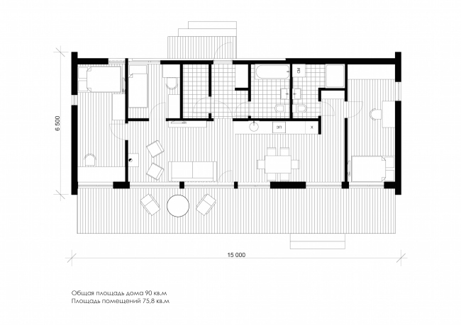
Серия домов «Дом-ковчег». Ковчег-4 (4 модуля). План. 2015 © АрхПроект-3
Серия домов «Дом-ковчег». Ковчег-4 (4 модуля). План. 2015 © АрхПроект-3
Серия домов «Дом-ковчег». Ковчег-3 (3 модуля). План. 2015 © АрхПроект-3
Серия домов «Дом-ковчег». Ковчег-3 (3 модуля). План. 2015 © АрхПроект-3
Серия домов «Дом-ковчег». Ковчег-6 (6 модулей). План. 2015 © АрхПроект-3
Серия домов «Дом-ковчег». Ковчег-6 (6 модулей). План. 2015 © АрхПроект-3
Серия домов «Дом-ковчег». Ковчег-3 (3 модуля). Разрез. 2015 © АрхПроект-3
Серия домов «Дом-ковчег». Ковчег-3 (3 модуля). Разрез. 2015 © АрхПроект-3
Серия домов «Дом-ковчег». Ситуационный план. 2015 © АрхПроект-3
Серия домов «Дом-ковчег». Ситуационный план. 2015 © АрхПроект-3
Серия домов «Дом-ковчег». Ситуационный план. 2015 © АрхПроект-3
Серия домов «Дом-ковчег». Ситуационный план. 2015 © АрхПроект-3