Размещено на портале Архи.ру (www.archi.ru)

20.02.2016

«Периметр» по-японски

Алла Павликова
Объект:
Образовательно-культурный центр «Периметр»
Адрес:
Россия, Махачкала.
Авторский коллектив:
Авторы: Анна Петрова, Патрисия Урлан, Джефри Стивенс. Тьютор: Хироки Мацуура, бюро MASA

В Махачкале по проекту интернациональной команды молодых архитекторов под руководством Хироки Мацура построят новый образовательно-культурный центр.

Победители конкурса. На фото слева направо: Джефри Стивенс, Хироки Мацуура, Патрисия Урлан и Анна Петрова. Фотография предоставлена организаторами
Победители конкурса. На фото слева направо: Джефри Стивенс, Хироки Мацуура, Патрисия Урлан и Анна Петрова. Фотография предоставлена организаторами

Назван победитель международного воркшопа «Пространство образования будущего», который проходил с 1 по 10 февраля в Махачкале. Лучшей концепцией образовательно-культурного центра «Периметр», признали работу 'P I C – Peri Innovation Center' – Анны Петровой, Патрисии Урлан и Джефри Стивенса, трудившихся под руководством тьютора Хироки Мацура, партнера голландского бюро MASA. Победивший проект, как утверждают инициаторы воркшопа: благотворительный фонд «ПЕРИ» Зиявудина Магомедова и центр архитектурных инициатив МАРШ Лаб, будет реализован.
Анна Петрова, участница команды победителей. Фотография ©  Елена Петухова
Анна Петрова, участница команды победителей. Фотография © Елена Петухова

В воркшопе приняли участие тридцать молодых архитекторов из США, Италии, Украины, Болгарии, Румынии, Белоруссии, Бангладеш, Вьетнама, Казахстана и России, отобранных экспертами из почти ста поступивших заявок. Всего за десять дней участники, разделённые на восемь команд, под руководством Ярослава Ковальчука, Хироки Мацура, Наринэ Тютчевой и Петра Попова работали над концепциями образовательно-культурного центра «Периметр».

От участников требовалось создать ясный и реализуемый проект здания для участка между улицей Абубакарова и городским парком Махачкалы. Рядом – дом Расула Гамзатова, чуть в стороне – главная городская площадь. Центр должен вместить большую общественную зону, конференц-залы, выставочные пространства, школу социального проектирования, центр креативных технологий и лабораторию робототехники, центр поддержки одаренной молодежи, коворкинг и другие пространства для инновационных образовательных проектов. Помимо сложной функциональной программы следовало учитывать градостроительный контекст и особый климат Махачкалы с очень жарким летом, резкой переменой погоды в течение дня и сильными ветрами.

Как рассказала один из тьюторов проекта Наринэ Тютчева, первый этап и три дня работы были посвящены исследованиям городских сообществ и культуры Махачкалы, градостроительных особенностей участка, а также современных образовательных методик в стране и в мире. Оставшиеся семь дней участники посвятили проектированию. В последние дни никто не спал – работа не останавливалась ни днем, ни ночью. Проекты, подготовленные к 10 февраля, участники представили на открытой презентации.
Пресс-конференция в ЦДА. На фото, справа налево: Евгений Асс, Полина Филиппова, Ярослав Ковальчук и Елена Гонсалес. Фотография ©  Елена Петухова
Пресс-конференция в ЦДА. На фото, справа налево: Евгений Асс, Полина Филиппова, Ярослав Ковальчук и Елена Гонсалес. Фотография © Елена Петухова

По словам члена жюри и руководителя МАРШ Лаб Елены Гонсалес, выбрать победителя было непросто. Мнения жюри разошлись; пришлось проводить дополнительные совещания в формате видео-конференций. Ректор МАРШ Евгений Асс также признался, что победитель был совершенно неочевиден. Тем не менее, сам он поставил высший балл как раз победившему проекту – за понятную идею и уважение к традициям и культуре города. Кроме того, новый «гибридный» формат, который объединил учебный жанр воркшопа и реальный конкурс с последующей реализацией, по убеждению Евгения Асса, не только нов и впервые сейчас предложен МАРШ Лаб, но и мог бы стать хорошей альтернативой обычной конкурсной практике.

Исполнительный директор фонда «ПЕРИ» Полина Филиппова пообещала, что реализация проекта начнется не позднее июня текущего года. Победители продолжат работу над проектом совместно с привлеченным профессиональным бюро и будут осуществлять авторское сопровождение строительства. Подразумевается и дальнейшее участие тьютора команды Хироки Мацура. Окончание всех работ намечено на 2017 год.

Представляем все проекты, разработанные в ходе воркшопа:

победитель / P I C (Peri Innovation Center)
Авторы: Анна Петрова (Россия), Патрисия Урлан (Румыния), Джефри Стивенс (США)
Тьютор: Хироки Мацуура, бюро MASA (Нидерланды)

Победитель конкурса – проект P I C. Вид со стороны улицы. Авторы: Анна Петрова, Патрисия Урлан, Джефри Стивенс. Тьютор: Хироки Мацуура, бюро MASA
Победитель конкурса – проект P I C. Вид со стороны улицы. Авторы: Анна Петрова, Патрисия Урлан, Джефри Стивенс. Тьютор: Хироки Мацуура, бюро MASA

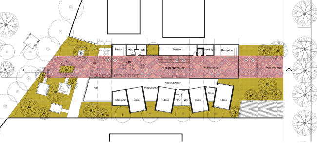
В основе концепции лежит переосмысление традиционной для Дагестана жилой застройки. Поэтому в проекте активно используются такие характерные приемы как террасы, объединяющие несколько жилых домов разных поколений одной семьи, и закрытые внутренние дворики, часто встречающиеся и в современной Махачкале. Ещё одна важная деталь – использование акушинского песчаника, из которого в столице Дагестана построено абсолютное большинство архитектурных памятников.

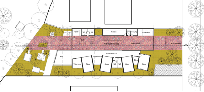
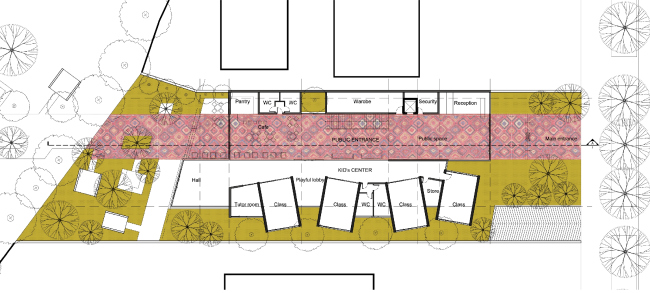
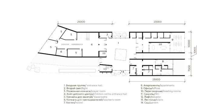
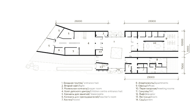
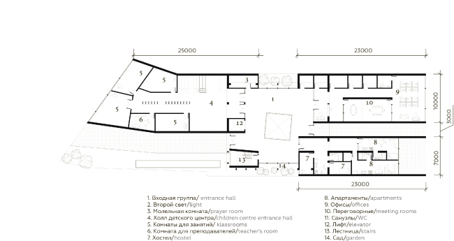
Образовательный центр занимает вытянутый участок между центральным парком и жилым районом. Структурно он представляет собой сложную композицию из отдельных, но связанных друг с другом функциональных блоков. Главный входной павильон обращен в сторону парка. Сюда же выходит чуть смещённый вглубь стеклянный объем инновационного центра «ПЕРИ», вмещающий коворкинг, переговорные, лаборатории и офисы. Центральная часть здания отдана под общественные функции. Детский образовательный центр решено расположить ближе к тихому жилому кварталу. Между собой все блоки разной высоты и конфигурации связаны системой озеленённых внутренних дворов, которые нанизаны на единую пешеходную ось, позволяющую пройти здание насквозь. На широких уступах организованы террасы, откуда открываются лучшие виды на центр города, парк и горный пейзаж.

Для отделки предлагается использовать натуральный камень. Сочетание на фасадах шлифованного и скалистого акушинского песчаника с большими стеклянными пролетами делают образ аутентичным и современным одновременно. Измельчённый песчаник используется и внутри здания для заливки пола, а также для благоустройства территории – в качестве мощения.
Победитель конкурса – проект P I C. Вид со стороны парка. Авторы: Анна Петрова, Патрисия Урлан, Джефри Стивенс. Тьютор: Хироки Мацуура, бюро MASA
Победитель конкурса – проект P I C. Вид со стороны парка. Авторы: Анна Петрова, Патрисия Урлан, Джефри Стивенс. Тьютор: Хироки Мацуура, бюро MASA
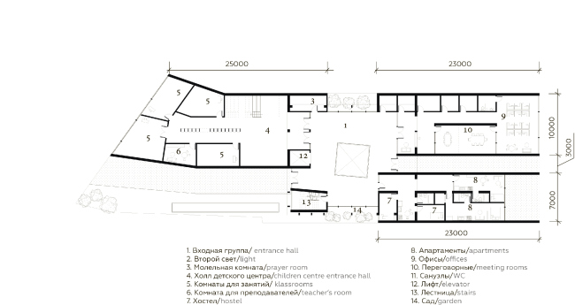
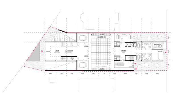
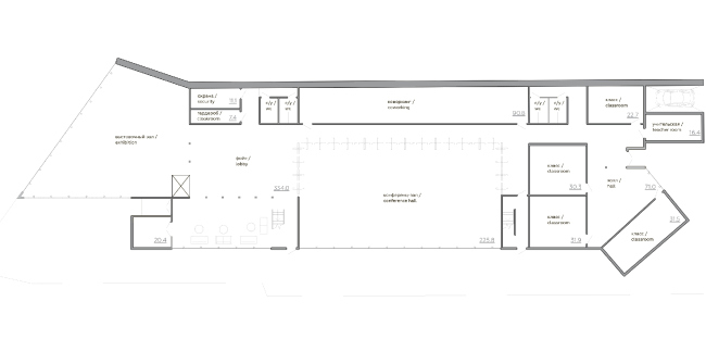
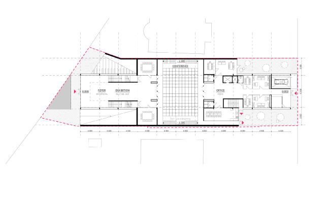
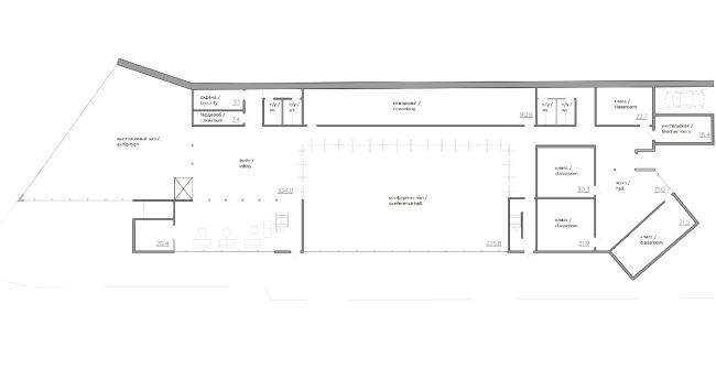
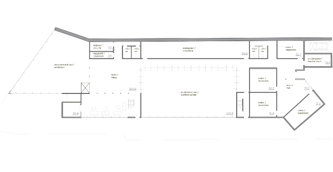
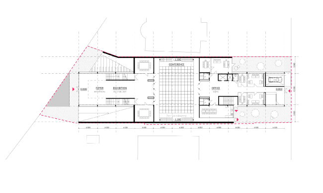
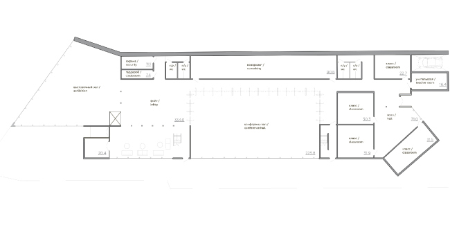
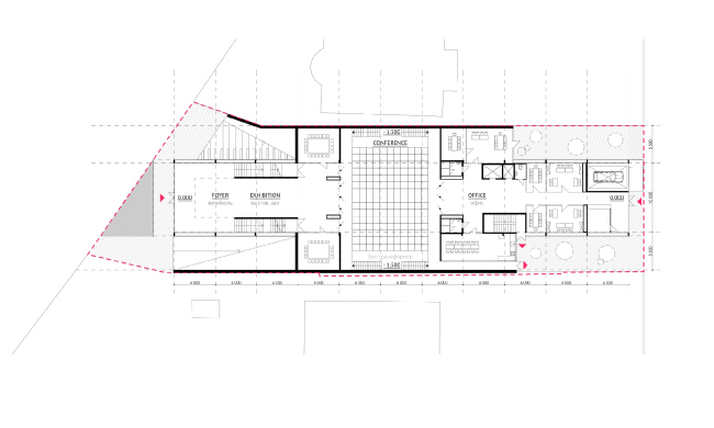
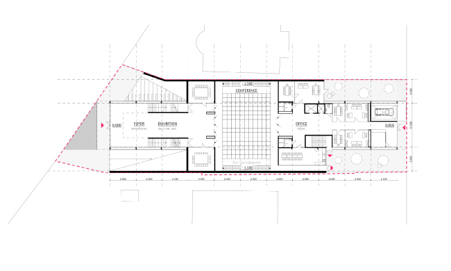
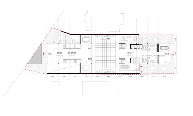
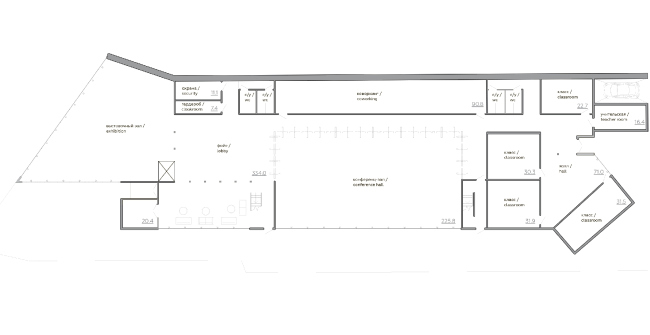
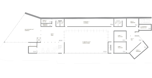
Победитель конкурса – проект P I C. План первого этажа. Авторы: Анна Петрова, Патрисия Урлан, Джефри Стивенс. Тьютор: Хироки Мацуура, бюро MASA
Победитель конкурса – проект P I C. План первого этажа. Авторы: Анна Петрова, Патрисия Урлан, Джефри Стивенс. Тьютор: Хироки Мацуура, бюро MASA
Победитель конкурса – проект P I C. Интерьер. Авторы: Анна Петрова, Патрисия Урлан, Джефри Стивенс. Тьютор: Хироки Мацуура, бюро MASA
Победитель конкурса – проект P I C. Интерьер. Авторы: Анна Петрова, Патрисия Урлан, Джефри Стивенс. Тьютор: Хироки Мацуура, бюро MASA

Хироки Мацура,
партнер архитектурного бюро MAXWAN и MASA:
«Это тонкий, сдержанный и простой дизайн, который в то же время сильно и мощно отражает новую эпоху, приходящую в Махачкалу. Этот проект – прекрасный пример простого жеста, достигающего максимального эффекта».

Ярослав Ковальчук,
преподаватель школы МАРШ:
«Проект курировал Хироки Мацура, и, может быть, поэтому он получился очень японским. Множество внутренних двориков и террас на крышах формируют единую пешеходную ось, пробивающую все здание насквозь. Сценарий движения выглядит очень театральным. Немаловажно, что проект тесно связан с дагестанскими традициями. Форма интерпретирует традиционное террасированное жилье, а в качестве отделки предлагается использовать местный песчаник».
 
***
 
«Интеллектуальное облако»
Авторы: Олжас Капабаев (Казахстан), Анна Будникова (Россия), Владислав Храмов (Россия), Садиа Моуната (Бангладеш)
Тьютор: Наринэ Тютчева, Пётр Попов, бюро «Рождественка»

Интеллектуальное облако. Авторы: Олжас Капабаев, Анна Будникова, Владислав Храмов, Садиа Моуната. Тьютор: Наринэ Тютчева, Петр Попов, бюро «Рождественка»
Интеллектуальное облако. Авторы: Олжас Капабаев, Анна Будникова, Владислав Храмов, Садиа Моуната. Тьютор: Наринэ Тютчева, Петр Попов, бюро «Рождественка»

Здание образовательного центра занимает весь протяженный участок, сохраняя неширокий проход со стороны дома Расула Гамзатова, связывающий улицу Абубакарова с парком. Объём – вытянутый стеклянный параллелепипед с плоской кровлей и чуть срезанными торцами. Перед центральным входом со стороны парка устроена городская площадь. На первом этаже расположены многосветные общественные пространства, плавно перетекающие одно в другое. Сверху они перекрыты сложной пространственной структурой, которую авторы назвали «интеллектуальным облаком». Внутри «облака» помещаются основные образовательные функции – коворкинг, лаборатории, учебные классы.

Также авторы продумали концепцию энергоэффективной системы обеспечения центра с продуманным освещением, естественной вентиляцией, рекуперацией и охлаждением воздуха, применением солнечных батарей и тепловых насосов. Обилие стеклянных поверхностей, не характерных для местного климата, оправдывается применением особого вида стекла, предотвращающего перегрев здания.
Интеллектуальное облако. Авторы: Олжас Капабаев, Анна Будникова, Владислав Храмов, Садиа Моуната. Тьютор: Наринэ Тютчева, Петр Попов, бюро «Рождественка»
Интеллектуальное облако. Авторы: Олжас Капабаев, Анна Будникова, Владислав Храмов, Садиа Моуната. Тьютор: Наринэ Тютчева, Петр Попов, бюро «Рождественка»
Интеллектуальное облако. Ночной вид. Авторы: Олжас Капабаев, Анна Будникова, Владислав Храмов, Садиа Моуната. Тьютор: Наринэ Тютчева, Петр Попов, бюро «Рождественка»
Интеллектуальное облако. Ночной вид. Авторы: Олжас Капабаев, Анна Будникова, Владислав Храмов, Садиа Моуната. Тьютор: Наринэ Тютчева, Петр Попов, бюро «Рождественка»
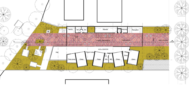
Интеллектуальное облако. План первого этажа. Авторы: Олжас Капабаев, Анна Будникова, Владислав Храмов, Садиа Моуната. Тьютор: Наринэ Тютчева, Петр Попов, бюро «Рождественка»
Интеллектуальное облако. План первого этажа. Авторы: Олжас Капабаев, Анна Будникова, Владислав Храмов, Садиа Моуната. Тьютор: Наринэ Тютчева, Петр Попов, бюро «Рождественка»
Интеллектуальное облако. Интерьер. Авторы: Олжас Капабаев, Анна Будникова, Владислав Храмов, Садиа Моуната. Тьютор: Наринэ Тютчева, Петр Попов, бюро «Рождественка»
Интеллектуальное облако. Интерьер. Авторы: Олжас Капабаев, Анна Будникова, Владислав Храмов, Садиа Моуната. Тьютор: Наринэ Тютчева, Петр Попов, бюро «Рождественка»

Членам жюри понравился современный образ здания. Однако стекло, выступая символом лёгкости и открытости, по мнению жюри, не слишком подходит для климатических условий Махачкалы. Подобное решение потребует дополнительных мер для защиты от солнца. Кроме того, между объёмом центра и домом Расула Гамзатова в оставленном воздушном коридоре из-за сильного ветра может возникнуть эффект аэродинамической трубы.
 
***
 
Education HUB
Авторы: Паркер Амманн (США), Камиль Цунтаев, Люба Крутенко (Россия)
Тьютор: Наринэ Тютчева, бюро «Рождественка»

Education HUB. Вид со стороны улицы. Авторы: Паркер Амманн, Камиль Цунтаев, Люба Крутенко.  Тьютор: Наринэ Тютчева, бюро «Рождественка»
Education HUB. Вид со стороны улицы. Авторы: Паркер Амманн, Камиль Цунтаев, Люба Крутенко. Тьютор: Наринэ Тютчева, бюро «Рождественка»

Проект отличается особой простотой и логикой построения пространства. Его основание формируют три отдельных одноэтажных блока. Два из них – офисный и жилой – отнесены ближе к улице. Детский образовательный центр смещен к парку. Связующим элементом становится общее четырехуровневое пространство, в котором размещены все общественные зоны, включая входной холл, выставочные галереи и конференц-зал. Здесь же расположены коворкинг и лаборатории, связанные с конференц-залом пандусом-библиотекой. Попасть в здание можно как со стороны жилого района, так и непосредственно из парка. Первый этаж выглядит массивным и основательным благодаря отделке из местного дагестанского известняка. Центральный объем, возвышающийся над основанием, облицован структурным матовым стеклом.
Education HUB. Вид со стороны парка. Авторы: Паркер Амманн, Камиль Цунтаев, Люба Крутенко. Тьютор: Наринэ Тютчева, бюро «Рождественка»
Education HUB. Вид со стороны парка. Авторы: Паркер Амманн, Камиль Цунтаев, Люба Крутенко. Тьютор: Наринэ Тютчева, бюро «Рождественка»
Education HUB. Разрез. Авторы: Паркер Амманн, Камиль Цунтаев, Люба Крутенко. Тьютор: Наринэ Тютчева, бюро «Рождественка»
Education HUB. Разрез. Авторы: Паркер Амманн, Камиль Цунтаев, Люба Крутенко. Тьютор: Наринэ Тютчева, бюро «Рождественка»
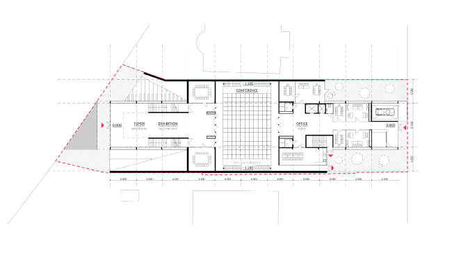
Education HUB. План первого этажа. Авторы: Паркер Амманн, Камиль Цунтаев, Люба Крутенко. Тьютор: Наринэ Тютчева, бюро «Рождественка»
Education HUB. План первого этажа. Авторы: Паркер Амманн, Камиль Цунтаев, Люба Крутенко. Тьютор: Наринэ Тютчева, бюро «Рождественка»

Жюри отметило стремление авторов сохранить преемственность, используя местные строительные материалы. Также приглянулась попытка создания современной архитектуры, отвечающей функциональному назначению будущего образовательного центра.
 
***
 
«Периполис»
Авторы: Ильдар Биганяков (Россия), Хунг Танг Данг (Вьетнам, Великобритания), Камиль Гаджикасумов (Россия), Эльмира Магомедова (Россия, Великобритания)
Тьютор: Ярослав Ковальчук, Архитектурная школа МАРШ

Периполис. Авторы: Ильдар Биганяков, Хунг Танг Данг, Камиль Гаджикасумов, Эльмира Магомедова. Тьютор: Ярослав Ковальчук, Архитектурная школа МАРШ
Периполис. Авторы: Ильдар Биганяков, Хунг Танг Данг, Камиль Гаджикасумов, Эльмира Магомедова. Тьютор: Ярослав Ковальчук, Архитектурная школа МАРШ

Четырехэтажное здание разделено по горизонтали согласно функциям. На первом этаже – центр дополнительного образования для школьников и общественная зона с выставочным залом и кафе. Здесь также предусмотрен сквозной проход через здание из парка на улицу Абубакарова. Второй и третий этажи предназначены для размещения всех необходимых помещений инновационного центра. Эксплуатируемая кровля превращена в общественное пространство с системой небольших модулей-павильонов, которые могут служить площадками для интернет-сообществ, шахматных или книжных клубов. Устройство кровли, таким образом знаково воссоздает привычную для Дагестана жилую застройку. Маленькие домики занимают не только крышу, они проникают в парк в виде отдельных павильонов. В сторону парка смотрит сложный террасированный фасад здания. При взгляде с улицы, напротив, фасад практически лишен пластики. Он выполнен из зеркального стекла, отражающего город.
Периполис. Авторы: Ильдар Биганяков, Хунг Танг Данг, Камиль Гаджикасумов, Эльмира Магомедова. Тьютор: Ярослав Ковальчук, Архитектурная школа МАРШ
Периполис. Авторы: Ильдар Биганяков, Хунг Танг Данг, Камиль Гаджикасумов, Эльмира Магомедова. Тьютор: Ярослав Ковальчук, Архитектурная школа МАРШ
Периполис. Кровля. Авторы: Ильдар Биганяков, Хунг Танг Данг, Камиль Гаджикасумов, Эльмира Магомедова. Тьютор: Ярослав Ковальчук, Архитектурная школа МАРШ
Периполис. Кровля. Авторы: Ильдар Биганяков, Хунг Танг Данг, Камиль Гаджикасумов, Эльмира Магомедова. Тьютор: Ярослав Ковальчук, Архитектурная школа МАРШ
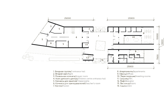
Периполис. План первого этажа. Авторы: Ильдар Биганяков, Хунг Танг Данг, Камиль Гаджикасумов, Эльмира Магомедова. Тьютор: Ярослав Ковальчук, Архитектурная школа МАРШ
Периполис. План первого этажа. Авторы: Ильдар Биганяков, Хунг Танг Данг, Камиль Гаджикасумов, Эльмира Магомедова. Тьютор: Ярослав Ковальчук, Архитектурная школа МАРШ

По мнению жюри, данный проект стал одним из самых провокационных. Позитивным моментом эксперты назвали рефлексию на тему горных аулов Дагестана. Однако в проекте осталась нерешённой проблема воздушного коридора между существующим домом Расула Гамзатова и проектируемым зданием.
 
***
 

«Тинк Тенк башня»
Авторы: Дарья Кириллова, Николай Медведенко (Россия), Биляна Асенова (Болгария), Саша Чабати (Италия)
Тьютор: Ярослав Ковальчук, Архитектурная школа МАРШ

Тинк Тенк башня. Вид со стороны парка. Авторы: Дарья Кириллова , Николай Медведенко, Биляна Асенова, Саша Чабати. Тьютор: Ярослав Ковальчук, Архитектурная школа МАРШ
Тинк Тенк башня. Вид со стороны парка. Авторы: Дарья Кириллова , Николай Медведенко, Биляна Асенова, Саша Чабати. Тьютор: Ярослав Ковальчук, Архитектурная школа МАРШ

Композиция учитывает ориентацию участка на парк и жилой район. Перед городской площадью – четырёхярусная «башня» из матового стекла; на крыше башни – смотровая площадка. В тихую улицу на противоположной стороне обращен двухэтажный объем – отклик на окружающую малоэтажную застройку. Два объёма объединены системой зелёных дворов и общественных пространств, которые служат продолжением парка и в то же время связывают новый комплекс с историческим домом Расула Гамзатова.

Открытые городу остекленные части здания чередуются с глухими, где располагаются приватные жилые зоны с выходом на открытые террасы. На первом, полностью остеклённом этаже расположены фойе, выставочные и конференц залы, учебная аудитория и кафе. Второй этаж башни целиком занят жильём. Офисы, переговорные и лаборатории отнесены на верхний ярус с высоким двусветным пространством. Учебный центр занимает блок, выходящий на улицу Абубакарова.
Тинк Тенк башня. Вид со стороны улицы.  Авторы: Дарья Кириллова , Николай Медведенко, Биляна Асенова, Саша Чабати. Тьютор: Ярослав Ковальчук, Архитектурная школа МАРШ
Тинк Тенк башня. Вид со стороны улицы. Авторы: Дарья Кириллова , Николай Медведенко, Биляна Асенова, Саша Чабати. Тьютор: Ярослав Ковальчук, Архитектурная школа МАРШ
Тинк Тенк башня. План первого этажа. Авторы: Дарья Кириллова , Николай Медведенко, Биляна Асенова, Саша Чабати. Тьютор: Ярослав Ковальчук, Архитектурная школа МАРШ
Тинк Тенк башня. План первого этажа. Авторы: Дарья Кириллова , Николай Медведенко, Биляна Асенова, Саша Чабати. Тьютор: Ярослав Ковальчук, Архитектурная школа МАРШ
Тинк Тенк башня. Интерьер. Авторы: Дарья Кириллова , Николай Медведенко, Биляна Асенова, Саша Чабати. Тьютор: Ярослав Ковальчук, Архитектурная школа МАРШ
Тинк Тенк башня. Интерьер. Авторы: Дарья Кириллова , Николай Медведенко, Биляна Асенова, Саша Чабати. Тьютор: Ярослав Ковальчук, Архитектурная школа МАРШ

 
***
 
«Оранжерея»
Авторы: Арсен Ахмедханов, Наталья Бавыкина (Россия), Эдуардо Манчини (Италия), Анастасия Тер-Саакова (Россия)
Тьюторы: Наринэ Тютчева, Петр Попов, бюро «Рождественка»

Оранжерея. Авторы: Арсен Ахмедханов, Наталья Бавыкина, Эдуардо Манчини, Анастасия Тер-Саакова. Тьюторы: Наринэ Тютчева, Петр Попов, бюро «Рождественка»
Оранжерея. Авторы: Арсен Ахмедханов, Наталья Бавыкина, Эдуардо Манчини, Анастасия Тер-Саакова. Тьюторы: Наринэ Тютчева, Петр Попов, бюро «Рождественка»

Здание образовательного центра должно связать парк с жилым кварталом. Узкий и сильно вытянутый объем самой простой формы с двускатной кровлей с обеих сторон ограничен длинными пешеходными улицами, ведущими в парк. Его оболочка полностью состоит из двухслойного стекла. Между слоями стекла автора предложили создать настоящую оранжерею с живыми растениями, отчего климат внутри круглый год должен быть комфортным. Прозрачный ажурный объем, расчерченный сеткой переплетов, не спорит с окружением, но претендует стать новым архитектурным акцентом.

Внутри пространство следует логике традиционного дагестанского жилья с чередованием открытых и закрытых зон, образованных мобильными перегородками. В центре здания – трансформируемый конференц-зал, оснащенный системой подъемных плунжеров, формирующих различные сценарии использования пространства. На втором уровне находятся детские студии и коворкинг, имеющие дополнительный вход с улицы. Третий этаж занимают резиденции и лаборатории. Наверху, под стеклянной крышей прячется библиотека и молельная комната.
Оранжерея. Авторы: Арсен Ахмедханов, Наталья Бавыкина, Эдуардо Манчини, Анастасия Тер-Саакова. Тьюторы: Наринэ Тютчева, Петр Попов, бюро «Рождественка»
Оранжерея. Авторы: Арсен Ахмедханов, Наталья Бавыкина, Эдуардо Манчини, Анастасия Тер-Саакова. Тьюторы: Наринэ Тютчева, Петр Попов, бюро «Рождественка»
Оранжерея. Авторы: Арсен Ахмедханов, Наталья Бавыкина, Эдуардо Манчини, Анастасия Тер-Саакова. Тьюторы: Наринэ Тютчева, Петр Попов, бюро «Рождественка»
Оранжерея. Авторы: Арсен Ахмедханов, Наталья Бавыкина, Эдуардо Манчини, Анастасия Тер-Саакова. Тьюторы: Наринэ Тютчева, Петр Попов, бюро «Рождественка»
Оранжерея. План первого этажа. Авторы: Арсен Ахмедханов, Наталья Бавыкина, Эдуардо Манчини, Анастасия Тер-Саакова. Тьюторы: Наринэ Тютчева, Петр Попов, бюро «Рождественка»
Оранжерея. План первого этажа. Авторы: Арсен Ахмедханов, Наталья Бавыкина, Эдуардо Манчини, Анастасия Тер-Саакова. Тьюторы: Наринэ Тютчева, Петр Попов, бюро «Рождественка»

Жюри высоко оценило авторский замысел, предполагающий использование самых современных «зелёных» технологий. Однако интересная идея, по мнению жюри, может оказаться трудно реализуемой.

 
***
 

«Перибокс»
Авторы: Дарья Зайцева , Ксения Зверева, Розита Каширцева, Олег Сазонов (Россия)
Тьютор: Хироки Мацуура, бюро MASA (Нидерланды)

Перибокс. Авторы: Дарья Зайцева , Ксения Зверева, Розита Каширцева, Олег Сазонов. Тьютор: Хироки Мацуура, бюро MASA
Перибокс. Авторы: Дарья Зайцева , Ксения Зверева, Розита Каширцева, Олег Сазонов. Тьютор: Хироки Мацуура, бюро MASA

Простой прямоугольный объем соединяет парк с улицей Абубакарова, обеспечивая сквозной проход. Внутри минималистичной оболочки из стекла и перфорированного металла устроено многоуровневое пространство. Здание делится на три части – общественную, административную и дворовую. Основная часть двора, расположенного строго по центру, перекрыта трансформируемой кровлей. В сухую погоду кровля сдвигается, и во дворе можно проводить лекции, выставки и другие мероприятия на открытом воздухе. В дождливые дни при закрытой кровле площадку можно использовать, в частности, как кинотеатр.

Предусмотрены системы сбора дождевой воды, естественная вентиляция, защита от солнца, установка тепловых насосов, а также применение местных строительных материалов, к примеру, натуральный дагестанский камень в отделке интерьеров.
Перибокс. Авторы: Дарья Зайцева , Ксения Зверева, Розита Каширцева, Олег Сазонов. Тьютор: Хироки Мацуура, бюро MASA
Перибокс. Авторы: Дарья Зайцева , Ксения Зверева, Розита Каширцева, Олег Сазонов. Тьютор: Хироки Мацуура, бюро MASA
Перибокс. Генплан. Авторы: Дарья Зайцева , Ксения Зверева, Розита Каширцева, Олег Сазонов. Тьютор: Хироки Мацуура, бюро MASA
Перибокс. Генплан. Авторы: Дарья Зайцева , Ксения Зверева, Розита Каширцева, Олег Сазонов. Тьютор: Хироки Мацуура, бюро MASA
Перибокс. Внутренний двор. Авторы: Дарья Зайцева , Ксения Зверева, Розита Каширцева, Олег Сазонов. Тьютор: Хироки Мацуура, бюро MASA
Перибокс. Внутренний двор. Авторы: Дарья Зайцева , Ксения Зверева, Розита Каширцева, Олег Сазонов. Тьютор: Хироки Мацуура, бюро MASA
Перибокс. Интерьер. Авторы: Дарья Зайцева , Ксения Зверева, Розита Каширцева, Олег Сазонов. Тьютор: Хироки Мацуура, бюро MASA
Перибокс. Интерьер. Авторы: Дарья Зайцева , Ксения Зверева, Розита Каширцева, Олег Сазонов. Тьютор: Хироки Мацуура, бюро MASA

Членам жюри этот проект, выполненный студентами школы МАРШ, показался самым романтичным. Эксперты посчитали интересным глубокое исследование и тему, в основе которой лежит народная дагестанская сказка. Образовательный центр – место, которое может полностью изменить человека. Это очень похоже на сказку с превращениями. Внутри, как в волшебной шкатулке, создан сложный и разнообразный мир будущего, тогда как снаружи стеклянная конструкция практически растворяется в окружающей застройке.
 
***
 
«Зеленый портал»
Авторы: Дарья Ожиганова (Украина), Дарья Прима (Белоруссия), Марат Невлютов, Руслан Гусейнов (Россия)
Тьюторы: Наринэ Тютчева, Петр Попов, бюро «Рождественка»


Зеленый портал. Авторы: Дарья Ожиганова, Дарья Прима, Марат Невлютов, Руслан Гусейнов. Тьюторы: Наринэ Тютчева, Петр Попов, бюро «Рождественка»
Зеленый портал. Авторы: Дарья Ожиганова, Дарья Прима, Марат Невлютов, Руслан Гусейнов. Тьюторы: Наринэ Тютчева, Петр Попов, бюро «Рождественка»

В этом проекте образовательный центр – портал, связывающий парк с городом, публичное пространство с приватным, а старую Махачкалу – с новой и активно развивающейся. Структурно комплекс состоит из двух разнонаправленных блоков, связанных общим переходом. Корпус, обращённый в сторону парка, занимают конференц-зал, коворкинг и выставочные галереи. Общественные пространства постепенно перетекают одно в другое, завершаясь зелёным внутренним двориком. Объем, обращенный к жилому кварталу, предназначен для офисов, резиденций и учебного центра.
Зеленый портал. Ночной вид. Авторы: Дарья Ожиганова, Дарья Прима, Марат Невлютов, Руслан Гусейнов. Тьюторы: Наринэ Тютчева, Петр Попов, бюро «Рождественка»
Зеленый портал. Ночной вид. Авторы: Дарья Ожиганова, Дарья Прима, Марат Невлютов, Руслан Гусейнов. Тьюторы: Наринэ Тютчева, Петр Попов, бюро «Рождественка»
Зеленый портал. Планы 1, 2, 3 этажей. Авторы: Дарья Ожиганова, Дарья Прима, Марат Невлютов, Руслан Гусейнов. Тьюторы: Наринэ Тютчева, Петр Попов, бюро «Рождественка»
Зеленый портал. Планы 1, 2, 3 этажей. Авторы: Дарья Ожиганова, Дарья Прима, Марат Невлютов, Руслан Гусейнов. Тьюторы: Наринэ Тютчева, Петр Попов, бюро «Рождественка»
Зеленый портал. Интерьер. Авторы: Дарья Ожиганова, Дарья Прима, Марат Невлютов, Руслан Гусейнов. Тьюторы: Наринэ Тютчева, Петр Попов, бюро «Рождественка»
Зеленый портал. Интерьер. Авторы: Дарья Ожиганова, Дарья Прима, Марат Невлютов, Руслан Гусейнов. Тьюторы: Наринэ Тютчева, Петр Попов, бюро «Рождественка»

Жюри отметило простоту и лаконичность проекта. Главное его отличие от остальных концепций – горизонтальное зонирование: всё, что связано с общественными функциями, отнесено в сторону парка, а с образовательными – в сторону улицы.
***