Размещено на портале Архи.ру (www.archi.ru)

23.12.2015

Пандус в небо

Юлия Тарабарина
Объект:
Студенческое кафе кампуса Высшей школы менеджмента Санкт-Петербургского Государственного Университета (ВШМ СПБГУ)
Адрес:
Россия, Санкт-Петербург. г. Петродворец, С.-Петербургское шоссе, д. 109
Архитектор:
Никита Явейн
Мастерская:
Студия 44
Авторский коллектив:
Архитекторы: Н. Явейн, В. Романцев, П. Соколов,
при участии Е. Еловкова, П. Шлихтера
Интерьеры: Е. Алешина, М. Спивак
Конструкторы: И. Ляшко, Д. Кресов
Главный инженер проекта: В. Кремлевский

Генподрядчик: ООО «Сэтл Сити»

Продолжаем рассказ о результатах реконструкции Михайловки для Школы менеджмента СПбГУ. Студенчеcкое кафе-клуб Никита Явейн превратил в размышление об устойчивости и подвижности, о границах восприятия и мышления ассоциациями.

Загородный кампус Высшей школы менеджмента Санкт-Петербургского Государственного Университета (ВШМ СПБГУ). Аксонометрия. Зона нового строительства
Загородный кампус Высшей школы менеджмента Санкт-Петербургского Государственного Университета (ВШМ СПБГУ). Аксонометрия. Зона нового строительства
© Студия 44

Мы уже рассказывали о проекте реконструкции дачи великого князя Михаила Николаевича для Высшей школы менеджмента СПбГУ и о реализации его главного учебного корпуса в реконструированном Конюшенном дворе усадьбы. Основные исторические постройки великокняжеской дачи расположены в восточной части отведенной для школы территории, ближе к Стрельне. В западной части, со стороны Петергофа, исторически располагалась только небольшая церковь святой Ольги, построенная архитектором Давидом Гримом в начале 1860-х в псевдорусском стиле с колонками-кубышками, и несколько деревень. Здесь разместится группа современных зданий, включая несколько общежитий, спортзал и кафе-клуб. Их объемы, подчиненные разным стереометрическим фигурам и свободно разбросанные по отведенному участку, Никита Явейн сравнивает с парковыми павильонами. На ум приходят прежде всего пирамиды-ледники в тверских усадьбах Николая Львова, но и коническая земляная горка в парке восточной половины Михайловской дачи тоже отлично попадает в резонанс. С другой стороны, однако, здания кампуса неизбежно крупнее любого паркового павильона, а их формы ближе к абстрактной геометрии – отсюда неизбежно возникает другая ассоциация, с группой космических кораблей на космодроме-лужайке. Футуризм и архаика перемешаны между собой, равно как и с воспоминаниями о Просвещении XVIII века – причем не только Львова, но и Леду – и об авангарде, причем сила каждой ассоциации зависит от личных приоритетов наблюдателя.

Здание клуба-кафе – пока единственное, построенное в современной части кампуса на данный момент полностью. Неудивительно, ведь оно – неформальный общественный центр его жилой части, место встреч и тусовок, всего того, что после завершения учебы помнится лучше всяких экзаменов.

Центр общественной жизни, своего рода «ключ» или даже «пуп земли» студенческой части кампуса, Никита Явейн решил в виде пятиугольного – как советский знак качества – и следовательно, пятифасадного ступенчатого зиккурата. Оно похоже и на Мавзолей, и на Вавилонскую башню – особенно ту, что на картине Брейгеля старшего, и на горную гробницу царицы Хатшепсут. Оно также напоминает латентную классику Дэвида Чипперфильда, только в ещё более утонченном, почти невесомом варианте деревянных сеток тонких портиков, и к тому же ощутимо пребывает в каком-то подвижном состоянии, как будто бы в процессе трансформации. Перспективную игру – а каждая прямая линия здесь трактует пространственное сокращение очень по-своему, сбивая с толку не хуже теории относительности – поддерживает пятиугольная форма, она тоже нарушает статику, да еще как – ни с какой стороны сразу не понять, что происходит. А происходит вот что: тектоническая трансформация противоречиво подвижного Мавзолея, противоположного кремлевскому статичному зиккурату Щусева. Башня Татлина напрашивается в густой компот приведенных сравнений уже сама собой, как заключительный аккорд.
Студенческое кафе кампуса Высшей школы менеджмента Санкт-Петербургского Государственного Университета (ВШМ СПБГУ). Структура
Студенческое кафе кампуса Высшей школы менеджмента Санкт-Петербургского Государственного Университета (ВШМ СПБГУ). Структура
© Студия 44

Сходство с Мавзолеем на самом деле – чисто типологическое, такое, какое есть между всеми ступенчатыми башнями. Но парадокс вот в чем: ступенчатая башня, символ осмысленной устойчивости, рациональной, основательной лестницы в небо, такой, от которой небо не увернется никак, которую уронить невозможно – здесь превращен в нечто кружащееся, не вполне надежное. И да, такова доля менеджера, особенно высшего звена, что даже зиккурат под ним фигурально этак покачивается, заставляет держать равновесие. Раскачать такую статичную форму, как ступенчатая башня, это надо уметь, притом что форма по определению вдвойне устойчива. Сложно сказать, что вообще могло бы пошатнуть мавзолей, но и башня Татлина не так проста – динамика спирали демонстрирует надежность движения бура, сверления вверх, не оставляя у наблюдателя сомнений в линейности прогресса, пусть спирального. Кто бы мог подумать, что если скрестить две стабильности, получится такая подвижность.

Есть еще один контраст с зиккуратом: все реальные башни (Татлина – не очень реальная), были для избранных, жрецов, царей, политбюро наконец. А тут здание кафе, то есть, не очень серьезное, во всяком случае, не напыщенное и почти для всех, ну, для будущих управленцев высшего звена, конечно, но все же они еще не политбюро, пока студенты. Поэтому динамику хочется понять еще и как демократизацию формы, превращение из храма в клуб – а это ведь серьезное, сущностное превращение.
Студенческое кафе кампуса Высшей школы менеджмента Санкт-Петербургского Государственного Университета (ВШМ СПБГУ)
Студенческое кафе кампуса Высшей школы менеджмента Санкт-Петербургского Государственного Университета (ВШМ СПБГУ)
Фотография © Маргарита Явейн, Татьяна Стрекалова
Студенческое кафе кампуса Высшей школы менеджмента Санкт-Петербургского Государственного Университета (ВШМ СПБГУ)
Студенческое кафе кампуса Высшей школы менеджмента Санкт-Петербургского Государственного Университета (ВШМ СПБГУ)
Фотография © Маргарита Явейн, Татьяна Стрекалова
Студенческое кафе кампуса Высшей школы менеджмента Санкт-Петербургского Государственного Университета (ВШМ СПБГУ)
Студенческое кафе кампуса Высшей школы менеджмента Санкт-Петербургского Государственного Университета (ВШМ СПБГУ)
Фотография © Маргарита Явейн, Татьяна Стрекалова

Итак, пятиугольное в плане здание – широкая, распластанная по земле пирамида, просторные террасы эксплуатируемой кровли которой поднимаются по очень плавной спирали к верхней площадке. Поэтому кровли, они же полы террас, слегка наклонены, а центральная симметрия «знака качества» сбивается, и пятиугольник внутреннего зала уже не симметричен. Поэтому же протяженные прямые линии кровель снаружи складываются не в прямую, легко поддающуюся рациональному осмыслению, а в какую-то обратную, почти иконную перспективу, вызывая у наблюдателя образ пирамиды не простой, а то ли растущей, то ли поежившейся от холодного ветра с залива. Такого рода скрытая динамика – любимый прием современной архитектуры, однако не всегда и не всем удается сделать ее столь очевидной, работая с несложной, базовой и всем известной, казалось бы, формой.

Тему спирали поддерживают входы – вовсе не центрированные порталы, а вынесенные вперед тамбуры, они напоминают опять же вход в пирамиду-ледник в какой-нибудь усадьбе, спроектированной Николаем Львовым. Тамбуры не просто расположены асимметрично, всегда правее центра, их оси еще и повернуты, как лопасти винта, а объемы – разнообразны: один черный стеклянный, другой белый, еще один деревянный, четвертый – белокаменный с редкими полосками шершавого руста.
Студенческое кафе кампуса Высшей школы менеджмента Санкт-Петербургского Государственного Университета (ВШМ СПБГУ)
Студенческое кафе кампуса Высшей школы менеджмента Санкт-Петербургского Государственного Университета (ВШМ СПБГУ)
Фотография © Маргарита Явейн, Татьяна Стрекалова

Фасады поддерживают все тот же оптический эффект нарушенного равновесия: стеклянные плоскости и выступы деревянных решеток-пилонад чередуются в шахматном порядке. Строгая штриховка вертикалей подчеркивает пляску карнизных линий, но одновременно держит в узде наметившуюся динамику и немного смиряет ее.

В просторных и хорошо освещенных залах нижнего обхода расположилось не одно кафе, а несколько: ресторан для преподавателей, шведский стол, буфет и дешёвая столовая. Они разделены дорожками, ведущими от входов к лестницам на второй этаж, и вместе получается подобие «мультиплекса». Кухня – очаг – помещена в самой середине, но также занимает и один из секторов пентаграммы.

Верхний этаж занят многофункциональным залом, освещенным и проветриваемым через широкие проемы, которые можно, однако, закрыть металлическими шторами. Подняться наверх можно как с улицы, так и, следуя основному здесь спирально-винтовому движению, заданному тамбурами входов, по открытым двухмаршевым лестницам, прижатым с стенам внутреннего объема. На нарисованной архитекторами схеме хорошо видно, как движение от каждого входа устремляется к ближайшей лестнице, а затем, уже в уровне второго этажа, короткие лесенки продолжают подниматься, дробя внутри неуклонную логику спирального пандуса, пока наконец одна из них не выводит через решетчатый объем на крышу. Прижатые к стене лестницы с обозримым профилем ступенек выглядят как явный, подчеркнутый элемент современной архаики, условной «Вавилонской башни» – тут можно порассуждать о вечном карабкании человека вверх, тема достаточно очевидна и всеобъемлюща. Лопастям лестниц, классичным в самом широком, сущностном смысле, знаково противостоит лифт в серебристой, покрытой треугольным рисунком стыковочных швов, трубе. Лестницы – древнее изобретение, они и помогают лезть в гору, и заставляют сделать для этого усилия, лифт – техника, возносящая вверх; они почти антонимы. Треугольный паттерн лифта перекликается с рисунком купола конгресс-центра, так же, как и он, выступая представителем техногенной части здания.
Схема. Студенческое кафе кампуса Высшей школы менеджмента Санкт-Петербургского Государственного Университета (ВШМ СПБГУ)
Схема. Студенческое кафе кампуса Высшей школы менеджмента Санкт-Петербургского Государственного Университета (ВШМ СПБГУ)
© Студия 44
Схема. Студенческое кафе кампуса Высшей школы менеджмента Санкт-Петербургского Государственного Университета (ВШМ СПБГУ)
Схема. Студенческое кафе кампуса Высшей школы менеджмента Санкт-Петербургского Государственного Университета (ВШМ СПБГУ)
© Студия 44
Студенческое кафе кампуса Высшей школы менеджмента Санкт-Петербургского Государственного Университета (ВШМ СПБГУ)
Студенческое кафе кампуса Высшей школы менеджмента Санкт-Петербургского Государственного Университета (ВШМ СПБГУ)
Фотография © Маргарита Явейн, Татьяна Стрекалова
Студенческое кафе кампуса Высшей школы менеджмента Санкт-Петербургского Государственного Университета (ВШМ СПБГУ)
Студенческое кафе кампуса Высшей школы менеджмента Санкт-Петербургского Государственного Университета (ВШМ СПБГУ)
Фотография © Маргарита Явейн, Татьяна Стрекалова
План подвального этажа. Студенческое кафе кампуса Высшей школы менеджмента Санкт-Петербургского Государственного Университета (ВШМ СПБГУ)
План подвального этажа. Студенческое кафе кампуса Высшей школы менеджмента Санкт-Петербургского Государственного Университета (ВШМ СПБГУ)
© Студия 44
План первого этажа. Студенческое кафе кампуса Высшей школы менеджмента Санкт-Петербургского Государственного Университета (ВШМ СПБГУ)
План первого этажа. Студенческое кафе кампуса Высшей школы менеджмента Санкт-Петербургского Государственного Университета (ВШМ СПБГУ)
© Студия 44
План второго этажа. Студенческое кафе кампуса Высшей школы менеджмента Санкт-Петербургского Государственного Университета (ВШМ СПБГУ)
План второго этажа. Студенческое кафе кампуса Высшей школы менеджмента Санкт-Петербургского Государственного Университета (ВШМ СПБГУ)
© Студия 44

Внутри светло: внешние стены прозрачные, внутренние белые, бежевый пол, широкие полоски светлого дерева и тонкие – темного металла – на потолках, зеленоватое стекло ограждений. Несущие колонны – круглые и белые, расставлены достаточно редко, им вторят ряды круглых светильников отражённого света.

Между тем преобладание белого цвета вовсе не планировалось архитекторами, и тут мы обнаруживаем ещё одну ассоциативную параллель, впрочем, почти утраченную в ходе строительства из-за экономии ресурсов. «Это Храм Скалы! – рассказывает Никита Явейн. – Мы планировали по контрасту с достаточно спокойными фасадами отделать интерьер цветной керамикой, так, чтобы входящий попадал в своего рода драгоценную шкатулку... Белый цвет не должен был доминировать в интерьере». Действительно, сейчас колонна лифта – единственный фактурный акцент, а стены внутреннего объема башни предполагалось покрыть тонким ковром разноцветных полос, сделав их теплыми, притягательными, но также и пикселизованными, раздробленными на биты-байты графической информации или – на плоскости разнонаправленной штриховки, а вовсе не такими скульптурно-однозначными, как сейчас.
Интерьер. Проект. Студенческое кафе кампуса Высшей школы менеджмента Санкт-Петербургского Государственного Университета (ВШМ СПБГУ)
Интерьер. Проект. Студенческое кафе кампуса Высшей школы менеджмента Санкт-Петербургского Государственного Университета (ВШМ СПБГУ)
© Студия 44
Студенческое кафе кампуса Высшей школы менеджмента Санкт-Петербургского Государственного Университета (ВШМ СПБГУ)
Студенческое кафе кампуса Высшей школы менеджмента Санкт-Петербургского Государственного Университета (ВШМ СПБГУ)
Фотография © Маргарита Явейн, Татьяна Стрекалова
Студенческое кафе кампуса Высшей школы менеджмента Санкт-Петербургского Государственного Университета (ВШМ СПБГУ)
Студенческое кафе кампуса Высшей школы менеджмента Санкт-Петербургского Государственного Университета (ВШМ СПБГУ)
Фотография © Маргарита Явейн, Татьяна Стрекалова
Студенческое кафе кампуса Высшей школы менеджмента Санкт-Петербургского Государственного Университета (ВШМ СПБГУ)
Студенческое кафе кампуса Высшей школы менеджмента Санкт-Петербургского Государственного Университета (ВШМ СПБГУ)
Фотография © Маргарита Явейн, Татьяна Стрекалова

Снаружи ломаная лента террас складывается в три яруса и заканчивается на верхней площадке; всё это эксплуатируемо. Интересно увидеть, как выглядит пирамида кафе-клуба, когда студенты располагаются на террасах кровли, это должен быть населенный холм, а вовсе не холодный мавзолей.

Объем максимально задействован, просторен, раскрыт во все стороны и рассчитан на эффективное использование каждого уголка. Он устойчив, но подвижен, широк, но тонок и прозрачен, его форма – что неизбежно для ступенчатой пирамиды – с одной стороны, нагружена ассоциациями, а с другой – ведет себя непринужденно в компании редких северных берёз у Финского залива. Изящно примиренные в архитектуре кафе-клуба суммы противоречий как будто бы призваны служить примером мастерства для будущих управленцев. Во всяком случае, наклонный пол террас научит их быть начеку и действовать в не самых предсказуемых ситуациях – полезный навык для менеджеров высшего звена, времена-то наступают непростые. 
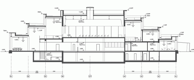
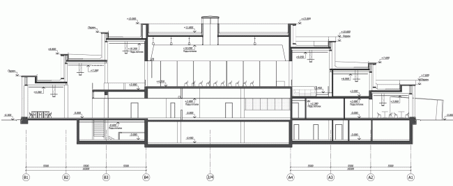
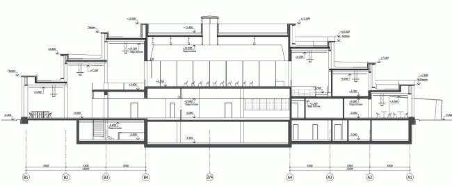
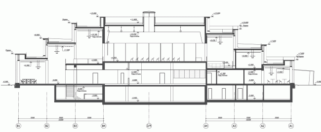
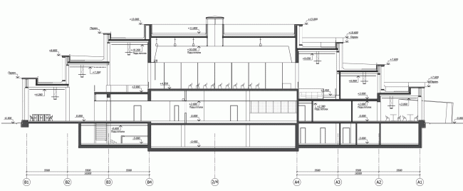
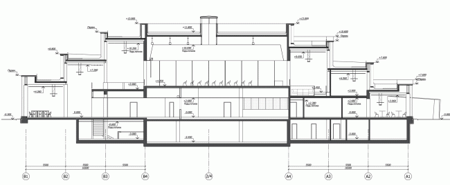
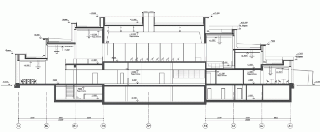
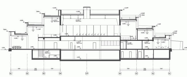
Разрез. Студенческое кафе кампуса Высшей школы менеджмента Санкт-Петербургского Государственного Университета (ВШМ СПБГУ)
Разрез. Студенческое кафе кампуса Высшей школы менеджмента Санкт-Петербургского Государственного Университета (ВШМ СПБГУ)
© Студия 44