Размещено на портале Архи.ру (www.archi.ru)

19.11.2015

Каннелюра минималиста

Юлия Тарабарина
Объект:
Жилой комплекс на ул. Гришина
Адрес:
Россия, Москва. улица Гришина, вл. 16, стр. 1
Архитектор:
Игорь Шварцман
Мастерская:
АМ Сергей Киселев и Партнеры
Авторский коллектив:
Генеральный директор – И.З. Шварцман
Главный архитектор проекта – А.В. Медведев
Архитекторы: М.Б. Серебряников, А.В. Эминова
 

Объемное построение этого жилого комплекса реагирует на структуру городской ткани, а геометрия фасадов – на поиски зрелого модернизма, впрочем, аллюзии поданы современно, с вниманием к деталям.

Жилой комплекс на ул. Гришина. Проект, 2015 © Сергей Киселёв и Партнеры
Жилой комплекс на ул. Гришина. Проект, 2015 © Сергей Киселёв и Партнеры

Улица Гришина – сравнительно неширокая, а её окрестности густо заросли деревьями. Cталинские кварталы здесь «держат» красную линию, микрорайонная застройка её старательно ломает, но преуспевает не вполне – типично московская, или шире советская «война миров» растянута на несколько километров между Можайским шоссе и окружной автодорогой. Участок как раз и расположен между выстроенным по красной линии домом пятидесятых годов из серого силикатного кирпича, со щипцом-фронтоном, штукатурными пилястрами и карнизом – и несколькими «пластинами» начала семидесятых из числа тех, которые впоследствии стали символом позднесоветской застройки. Так что, хотя поодаль встречаются и панельные дома, а напротив выстроились пятиэтажки, ближайшее окружение – кирпичное разных оттенков.

Поэтому неудивительно, что главным материалом фасадов стал кирпич – контекстуально обоснованный и к тому же популярный в современной архитектуре материал, позволяющий соблюсти респектабельность традиционного города, не теряя актуальности формы.

Впрочем, кирпичные фасады были не обязательным условием, а выбором архитекторов.
Главной задачей, поставленной перед авторами проекта, было: уместить максимум квадратных метров жилья, парковку и детский сад на небольшом, полгектара, участке с шестиметровым перепадом высот (склон начинается от улицы Гришина и идет вглубь к востоку). Кроме того, по северной границе планируют когда-нибудь построить проезд.
Жилой комплекс на ул. Гришина. Ситуационный план. Проект, 2015 © Сергей Киселёв и Партнеры
Жилой комплекс на ул. Гришина. Ситуационный план. Проект, 2015 © Сергей Киселёв и Партнеры

Три четверти отведенного пятна занял стилобат здания, свободным остался небольшой прямоугольник к югу, освещённый лучше всего. Его поэтому отдали детской площадке. Двухэтажный объем детского сада, опять же из соображений инсоляции, архитекторы расположили с южной стороны – он ловит большими окнами солнце, но будучи невысок не загораживает самый выгодный, юго-восточный свет жилым корпусам. Корпусов два: один, семиэтажный, вытянут вдоль красной линии улицы и поддерживает тему сталинской пятиэтажки. Другой – четырнадцатиэтажный, вписан в масштаб более поздних домов ближайшего окружения, расставленных под разными углами в глубине территории. Как видим, проект не чужд рефлективного осмысления свойств окружающей городской ткани: комплекс и «держит» улицу, и раскрывается к природе внутренней части района, он не только «мирит» два типа города внутри себя, но и переживает свое пограничное положение.

В высоких первых этажах запланированы общественные помещения. Помимо дворика «на земле», авторы предусмотрели ещё два двора: на плоской крыше детского сада для прогулок его воспитанников и главный двор без машин для жильцов на кровле подземной парковки. С улицы Гришина во двор можно войти через высокий прямоугольный проем-«арку» в левой части семиэтажной пластины. Благоустройство внутри лаконично, хотя предусмотрено особенное мощение и искусственный рельеф. А вниз, на землю, из двух дворов – большого и детсадовского, ведут открытые марши лестниц. Они спускаются с двух сторон вдоль восточной границы стилобата и если смотреть из заросшей деревьями внутренней части района, то профили лестниц могут показаться похожими на какой-нибудь парковый партер, хотя их оформление минимально: это, конечно, не палаццо Питти, а простой, спокойный городской дом комфорт-класса.
Жилой комплекс на ул. Гришина. Проект, 2015 © Сергей Киселёв и Партнеры
Жилой комплекс на ул. Гришина. Проект, 2015 © Сергей Киселёв и Партнеры

И между тем главным и самым заметным средством архитектурной выразительности станет решение фасадов. Их композиция рассчитана на тонкий, почти белый, цвета слоновой кости кирпич-ригель и привлекательна уравновешенностью составляющих. Этажи объединены попарно по два, но каждую пару прочертили посередине тонкой горизонтальной полосой. Ширина окон и эркеры с балконами чередуются ритмично-умеренно. Впрочем, эркеры контекстуальны и напоминают застекленные балконы соседнего сталинского дом. Глубина стены варьируется широко: от полутораметровых лоджий до тонких, в один кирпич, французских окон в пол. Черный металл балконных решеток, черные вставки в верхней части окон, светлый кирпич и стекло окон дополнены вставками, имитирующими темно-коричневое дерево, что усиливает эффект глубины и многослойности стен.
Жилой комплекс на ул. Гришина. Проект, 2015 © Сергей Киселёв и Партнеры
Жилой комплекс на ул. Гришина. Проект, 2015 © Сергей Киселёв и Партнеры
Жилой комплекс на ул. Гришина. Проект, 2015 © Сергей Киселёв и Партнеры
Жилой комплекс на ул. Гришина. Проект, 2015 © Сергей Киселёв и Партнеры
Жилой комплекс на ул. Гришина. Проект, 2015 © Сергей Киселёв и Партнеры
Жилой комплекс на ул. Гришина. Проект, 2015 © Сергей Киселёв и Партнеры
Жилой комплекс на ул. Гришина. Фрагмент фасада. Проект, 2015 © Сергей Киселёв и Партнеры
Жилой комплекс на ул. Гришина. Фрагмент фасада. Проект, 2015 © Сергей Киселёв и Партнеры

Стена здесь вовсе не плоскость, а организованная череда уступов и выступов, вписанная в кирпичную решётку фасадов со строго нарисованной сеткой стыков. Широкие горизонтальные тяги выложены в чистой ложковой кладке и обрамлены кантами из кирпичных тычков, и всё это в одной плоскости, графично. Вертикальные тяги, наоборот, рельефны: ряды тычковой кладки чередуются с перепадом в половину ширины кирпича. Получается похоже на пикселизованные каннелюры, где горизонтали это фризы, а ребристые вертикали – визуально «несущие» их лопатки.

Геометризованная, но тонкая в деталях игра напоминает поиски позднего зрелого модернизма, где архитекторы то усиливали конструктивистские ленты, отодвигая простенки на второй план, то давали волю вертикальным тягам, открыто апеллируя к ордеру и даже портику. Такого рода отсылка к семидесятым – восьмидесятым в этом районе города не только уместна, но тоже может быть понята как часть авторского осмысления контекста. Однако необходимо заметить, что несмотря на заметно большую сложность, многосоставность и отточенность фактуры по сравнению с восьмидесятыми, архитекторам удалось уравновесить вертикаль и горизонталь, не отдав первенства ни тому, ни другому. Все линии просчитаны, ни одну черту не перешли.
 
Жилой комплекс на ул. Гришина. Схема развертки по ул. Гришина. Проект, 2015 © Сергей Киселёв и Партнеры
Жилой комплекс на ул. Гришина. Схема развертки по ул. Гришина. Проект, 2015 © Сергей Киселёв и Партнеры
Жилой комплекс на ул. Гришина. Фасад. Проект, 2015 © Сергей Киселёв и Партнеры
Жилой комплекс на ул. Гришина. Фасад. Проект, 2015 © Сергей Киселёв и Партнеры
Жилой комплекс на ул. Гришина. Фасад. Проект, 2015 © Сергей Киселёв и Партнеры
Жилой комплекс на ул. Гришина. Фасад. Проект, 2015 © Сергей Киселёв и Партнеры
Жилой комплекс на ул. Гришина. Фасад. Проект, 2015 © Сергей Киселёв и Партнеры
Жилой комплекс на ул. Гришина. Фасад. Проект, 2015 © Сергей Киселёв и Партнеры
Жилой комплекс на ул. Гришина. Фасад. Проект, 2015 © Сергей Киселёв и Партнеры
Жилой комплекс на ул. Гришина. Фасад. Проект, 2015 © Сергей Киселёв и Партнеры
Жилой комплекс на ул. Гришина. Разрез. Проект, 2015 © Сергей Киселёв и Партнеры
Жилой комплекс на ул. Гришина. Разрез. Проект, 2015 © Сергей Киселёв и Партнеры
Жилой комплекс на ул. Гришина. Разрез. Проект, 2015 © Сергей Киселёв и Партнеры
Жилой комплекс на ул. Гришина. Разрез. Проект, 2015 © Сергей Киселёв и Партнеры
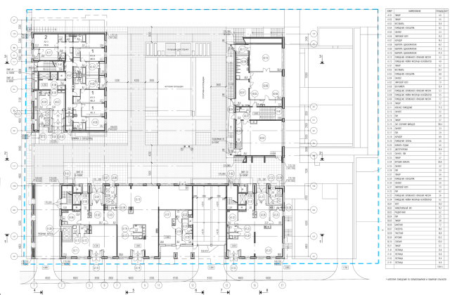
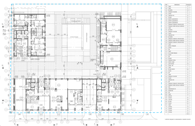
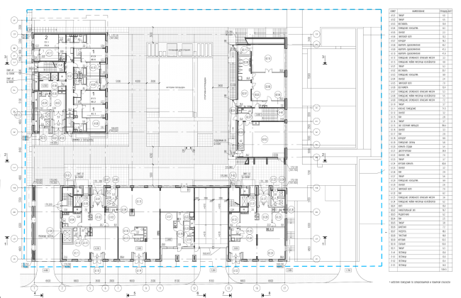
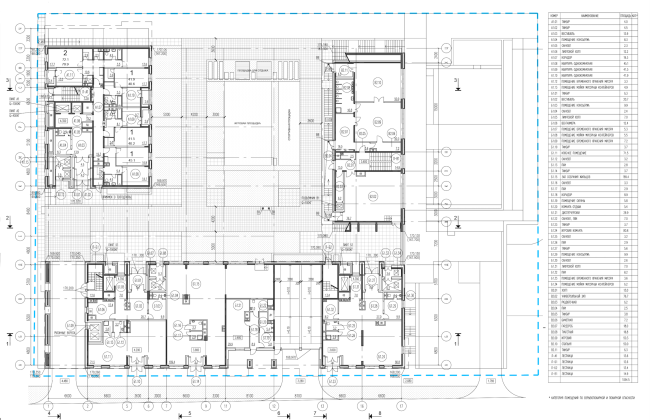
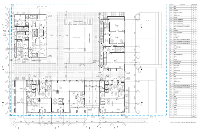
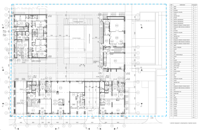
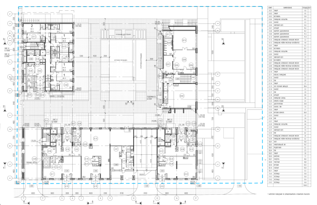
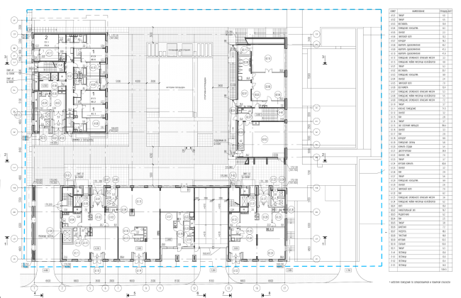
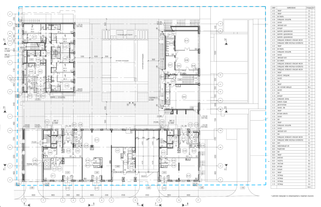
Жилой комплекс на ул. Гришина. План 1 этажа. Проект, 2015 © Сергей Киселёв и Партнеры
Жилой комплекс на ул. Гришина. План 1 этажа. Проект, 2015 © Сергей Киселёв и Партнеры
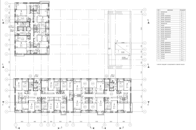
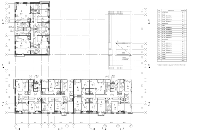
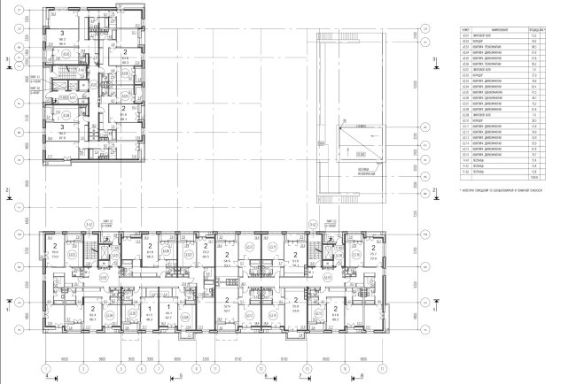
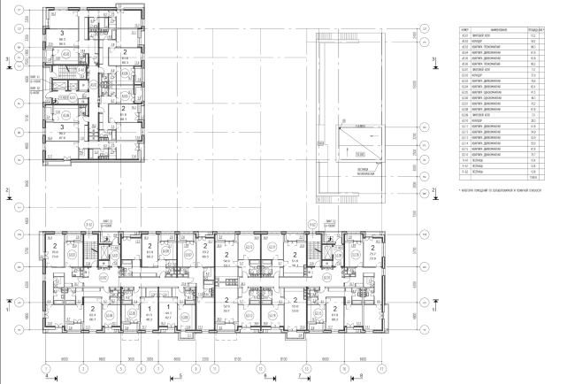
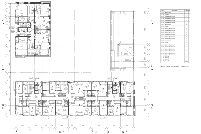
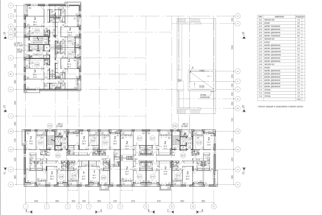
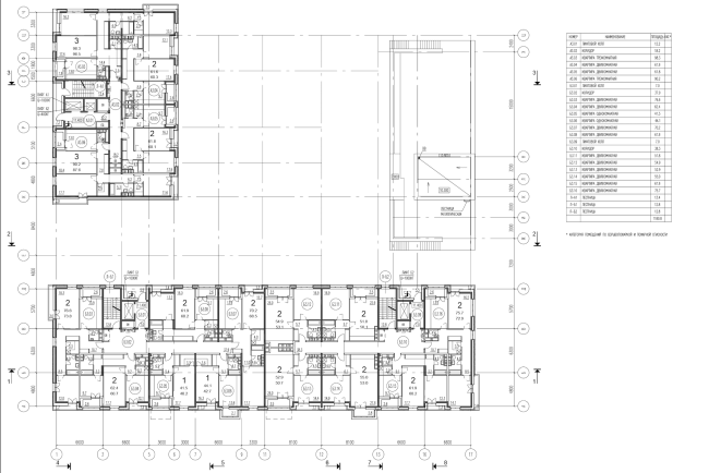
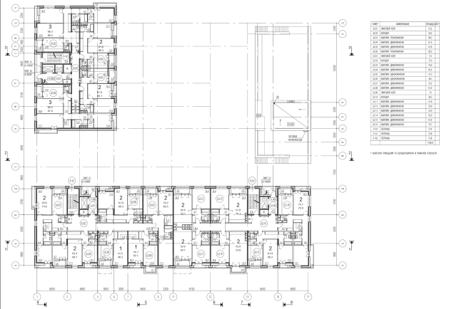
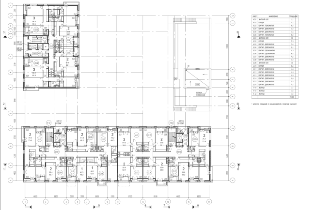
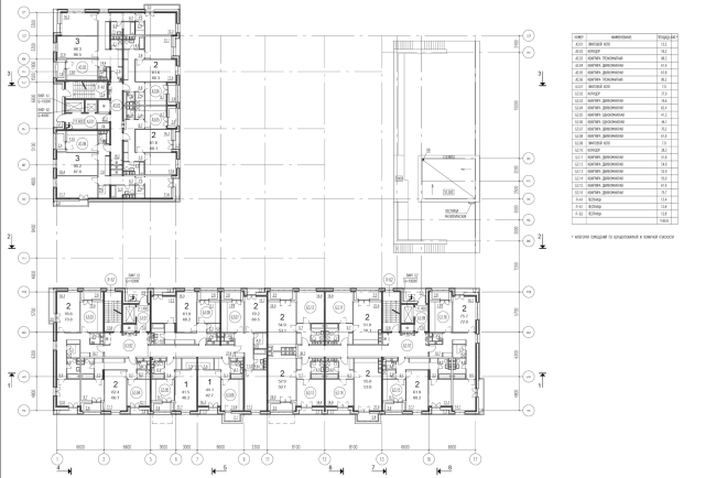
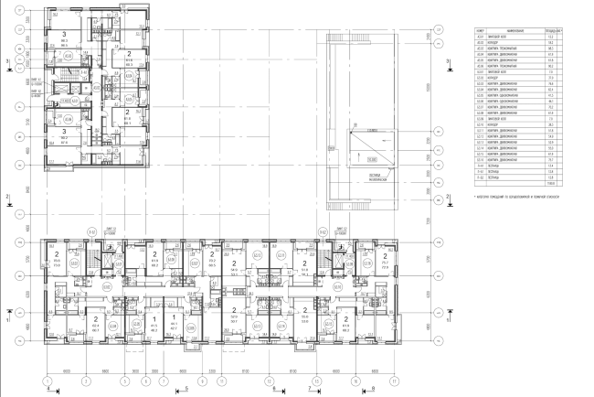
Жилой комплекс на ул. Гришина. План типового этажа. Проект, 2015 © Сергей Киселёв и Партнеры
Жилой комплекс на ул. Гришина. План типового этажа. Проект, 2015 © Сергей Киселёв и Партнеры