Размещено на портале Архи.ру (www.archi.ru)

29.10.2015

Ключ к острову

Юлия Тарабарина
Объект:
Многофункциональный жилой комплекс «Золотой Остров 1»
Адрес:
Россия, Москва. Софийская набережная
Архитектор:
Сергей Скуратов
Мастерская:
Сергей Скуратов ARCHITECTS
Авторский коллектив:
Руководитель консорциума: Сергей Скуратов architects
Руководитель авторского коллектива: Сергей Скуратов
Главные архитекторы проекта: Александр Панёв, Иван Ильин
Архитекторы: Артём Алендеев, Виктор Обвинцев, Марина Кирьянова
Макет: Игорь Голубев
3D-моделирование: Сергей Безверхий, Джелим Гемеджи, Алексей Коньков, Егор Королёв, Марина Пиглова, Антон Терентьев, Кристина Ухина
Генеральный план и схемы: Жорди Хенрих, Жак Вьялетт, Наталья Овсянникова, Ксения Алексеева
Визуализация и графика: Вера Дудина, Владимир Могунов, Станислав Субботин, Антон Чурадаев
партнёры
Jordi Henrich, architect
Lieux-dits SAS of urbanism and architecture
Cushman and Wakefield, LLC

Проект Сергея Скуратова для Софийской набережной тщательно привязывает римские ассоциации и красоту внутренних противоречий современной архитектуры к московскому контексту. Итогом же становится новая городская ось, где вид на кремлевскую башню должен затянуть туриста в перспективу, приведя по пешеходному бульвару к реке.



Проект Сергея Скуратова победил в международном конкурсе на концепцию многофункциональной комплексной застройки на Софийской набережной, обойдя в предпочтениях жюри пять других финалистов: Стивена Холла, Бенедетту Тальябуэ из EMBT, Сергея Чобана, Чино Дзукки и бюро MLA+ (Маркус Апенцеллер и другие). Проекты пяти финалистов можно увидеть здесь.

«Это загадочное и очень ответственное место, – сказал архитектор в день объявления результатов конкурса. – Я, наверное, лет тридцать ходил вокруг него и даже делал попытки подступиться, рисовал концептуальные предложения. По моему мнению, преобразование этого места – ключ к решению всего острова».

Многофункциональная комплексная застройка на Софийской набережной. Местоположение в районе © Сергей Скуратов ARCHITECTS
Многофункциональная комплексная застройка на Софийской набережной. Местоположение в районе © Сергей Скуратов ARCHITECTS
Многофункциональная комплексная застройка на Софийской набережной. Вид с кровли © Сергей Скуратов ARCHITECTS
Многофункциональная комплексная застройка на Софийской набережной. Вид с кровли © Сергей Скуратов ARCHITECTS

Итак, от участников требовалось создать проект многофункционального комплекса, состоящего из жилья, бутик-отеля, кафе, магазинов, парковки, фитнес-центра, а также отдать дань актуальной теме, позаботившись о городском общественном пространстве. В предложениях всех шести финалистов оно стало бульваром, который соединяет Болотную площадь с набережной Москвы-реки, так или иначе оформляя вид на главную достопримечательность – башни Кремля.

А Сергей Скуратов, взглянув достаточно далеко за пределы рассматриваемого участка, точно совместил общественное пространство бульвара с визуальной и пешеходной осью, соединяющей начало Лаврушинского переулка с набережной. Эта ось будет вести человека, который вышел, к примеру, из Третьяковской галереи и увидел открывшийся в перспективе ориентир Водовзводной башни, по аллее сквера на бульвар, где он погрузится в праздничную суету туристического города, а затем попадёт на набережную – любоваться красотами речной панорамы и царской крепости. Для того, чтобы путь был гладким, а башня постоянно маячила впереди, продуманы мелочи: архитектор рисует пешеходные переходы, предлагает продлить и расширить поперечную аллею сквера Болотной площади, а может быть, впоследствии даже ликвидировать большую круглую клумбу за спиной бронзового Репина, чтобы её не нужно было обходить по пути. Несколько больных деревьев также предложено убрать с линии обзора. В конечном счёте должен получиться небольшой, но новый туристический маршрут от музейного пассажа на углу будущего нового корпуса Третьяковской галереи к пристани на набережной. Пока теоретически: путь может быть и обратным, если туристы приедут на теплоходе по реке и пойдут к главному музею русской живописи через пешеходную улочку внутри нового комплекса Сергея Скуратова.
Многофункциональная комплексная застройка на Софийской набережной. Ось. Генеральный план © Сергей Скуратов ARCHITECTS
Многофункциональная комплексная застройка на Софийской набережной. Ось. Генеральный план © Сергей Скуратов ARCHITECTS
Многофункциональная комплексная застройка на Софийской набережной © Сергей Скуратов ARCHITECTS
Многофункциональная комплексная застройка на Софийской набережной © Сергей Скуратов ARCHITECTS
Многофункциональная комплексная застройка на Софийской набережной. Пешеходный переход © Сергей Скуратов ARCHITECTS
Многофункциональная комплексная застройка на Софийской набережной. Пешеходный переход © Сергей Скуратов ARCHITECTS
Многофункциональная комплексная застройка на Софийской набережной. Пересаживаемые деревья © Сергей Скуратов ARCHITECTS
Многофункциональная комплексная застройка на Софийской набережной. Пересаживаемые деревья © Сергей Скуратов ARCHITECTS
Многофункциональная комплексная застройка на Софийской набережной. Аллея © Сергей Скуратов ARCHITECTS
Многофункциональная комплексная застройка на Софийской набережной. Аллея © Сергей Скуратов ARCHITECTS
Многофункциональная комплексная застройка на Софийской набережной. Центральное пешеходное пространство © Сергей Скуратов ARCHITECTS
Многофункциональная комплексная застройка на Софийской набережной. Центральное пешеходное пространство © Сергей Скуратов ARCHITECTS
Многофункциональная комплексная застройка на Софийской набережной. Главная пешеходная артерия © Сергей Скуратов ARCHITECTS
Многофункциональная комплексная застройка на Софийской набережной. Главная пешеходная артерия © Сергей Скуратов ARCHITECTS

Подсказанный городским ландшафтом луч между музеем и башней, между тем, оказывается не единственной точкой отсчета: архитектор тщательно вычитывает и другие особенности создаваемого пространства из деталей местности. Малозаметное расширение границ участка в сторону реки транслировано контурам пешеходного бульвара через объемы жилых корпусов, поставленных строго параллельно границам, один – западной, другой – восточной. Сходящиеся под углом стены наделяют пространство пешеходной улицы перспективной игрой сродни ватиканской лестнице Микеланджело. Оно сужается к Болотной площади и, наоборот, расширяется к Кремлю, образуя широкую раму и этим как будто бы даже немного приближая главную достопримечательность к зрителю.
Многофункциональная комплексная застройка на Софийской набережной © Сергей Скуратов ARCHITECTS
Многофункциональная комплексная застройка на Софийской набережной © Сергей Скуратов ARCHITECTS
Многофункциональная комплексная застройка на Софийской набережной © Сергей Скуратов ARCHITECTS
Многофункциональная комплексная застройка на Софийской набережной © Сергей Скуратов ARCHITECTS
Многофункциональная комплексная застройка на Софийской набережной. Вид с высоты птичьего полета © Сергей Скуратов ARCHITECTS
Многофункциональная комплексная застройка на Софийской набережной. Вид с высоты птичьего полета © Сергей Скуратов ARCHITECTS

Затем архитектор подвергает полученное пространство, родившееся, или даже буквально произведенное из суммы особенностей территории и её окружения, дополнительной огранке: в частности, полого срезает угол восточного корпуса по линии всё того же, главного, луча зрения.

Описанный сюжет сложения осей графически проявлен в рисунке мостовой, который состоит из множества линий, перпендикулярных двум осям «раструба», которые, пересекаясь, образуют подобие геометризированной сороконожки с ногами-лучами – получается мини-квест для смотрящего под ноги горожанина, шифровка, скрывающая один из важных смыслов места – «хребет» его пространства.
Многофункциональная комплексная застройка на Софийской набережной. Схема мощения © Сергей Скуратов ARCHITECTS
Многофункциональная комплексная застройка на Софийской набережной. Схема мощения © Сергей Скуратов ARCHITECTS
Многофункциональная комплексная застройка на Софийской набережной. Схема мощения © Сергей Скуратов ARCHITECTS
Многофункциональная комплексная застройка на Софийской набережной. Схема мощения © Сергей Скуратов ARCHITECTS
Многофункциональная комплексная застройка на Софийской набережной. План благоустройства © Сергей Скуратов ARCHITECTS
Многофункциональная комплексная застройка на Софийской набережной. План благоустройства © Сергей Скуратов ARCHITECTS
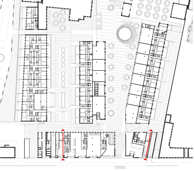
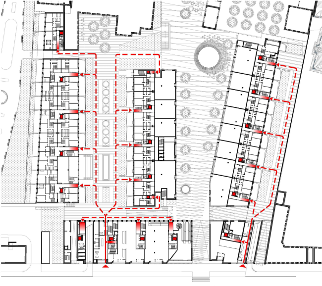
Многофункциональная комплексная застройка на Софийской набережной. Пешеходно-транспортная схема © Сергей Скуратов ARCHITECTS
Многофункциональная комплексная застройка на Софийской набережной. Пешеходно-транспортная схема © Сергей Скуратов ARCHITECTS

В целом же бульвар получился у Сергея Скуратова очень московским: привязка к местности по нескольким параметрам предсказуемо дала сумму ломаных контуров и разнонаправленных углов с относительно неширокими створами входа и выхода. Кроме того, определённую сложность для раскрытия перспективы представлял усадебный флигель с пристройкой со стороны двора, стоящий прямо на линии луча – он невысокий, двухэтажный, и закрывает не всё, но все же классической прямизны не получается. Входить со стороны набережной неизбежно приходится под углом, через бывший курдонёр усадьбы Дурасовых (где разместится отель), затем обогнуть флигель справа. Это совершенно не проспект, скорее вереница венецианских площадей с глубокими углами, заполненными столиками кафе, но в то же время и череда московских дворов.
Многофункциональная комплексная застройка на Софийской набережной. Вид с высоты птичьего полета © Сергей Скуратов ARCHITECTS
Многофункциональная комплексная застройка на Софийской набережной. Вид с высоты птичьего полета © Сергей Скуратов ARCHITECTS
Многофункциональная комплексная застройка на Софийской набережной. Вид с высоты птичьего полета © Сергей Скуратов ARCHITECTS
Многофункциональная комплексная застройка на Софийской набережной. Вид с высоты птичьего полета © Сергей Скуратов ARCHITECTS
Многофункциональная комплексная застройка на Софийской набережной. Вид с кровли © Сергей Скуратов ARCHITECTS
Многофункциональная комплексная застройка на Софийской набережной. Вид с кровли © Сергей Скуратов ARCHITECTS

Важно, что такое пространство – это, на самом деле, реализация мечты школы Гутнова. Отзвук проектов семидесятых-восьмидесятых, в которых город представал осмысленно-обжитым, проницаемым, комфортным для прогулок, пронизанным тропами, отчасти вторящим уюту европейского центра, отчасти – реконструирующим обаяние Москвы-деревни, к тому времени разрезанной вставками новостроек. Здесь вспоминается центр европейского города, что неудивительно, так как примеры почти любого качественного благоустройства – там. Но ловится также и отзвук, впрочем, крайне идеализированный, «московского дворика». Можно вспомнить, что картина Поленова хранится поблизости, в той самой ГТГ, на которую указывает южная оконечность пространственного луча.

По сторонам бульвара – витрины магазинов, не зря Сергей Скуратов сравнивает придуманное им пространство с улицей Saint-Louis en l'Île, парижский остров – с московским островом. А под ногами гуляющих разместится атриум подземного торгового центра, освещенный плоскими круглыми фонарями, встроенными в мостовую (некоторые критики проекта сразу же перепутали их с лужами, нарисованными на рендере для правдоподобия; так вот, это окна). Самое больше «окно вниз» – круглое отверстие в широком месте площади за усадебным флигелем: в атриуме под ним расположен фонтан, оно обеспечивает цокольному этажу еще немного света и свежего воздуха, заодно связывая ярусы по вертикали. Пешеходная улица магазинов, наполовину городская, наполовину подземная, ведёт к набережной, где, следуя идем реорганизации Москвы-реки, на плавном повороте ее русла формируется каменный амфитеатр с крупными ступенями и прогулочной дорожкой вдоль воды – своего рода туристическая кульминация, завершающая развитие градостроительной, средовой и прочих интриг центральной части проекта.
Многофункциональная комплексная застройка на Софийской набережной. Вид с высоты птичьего полета © Сергей Скуратов ARCHITECTS
Многофункциональная комплексная застройка на Софийской набережной. Вид с высоты птичьего полета © Сергей Скуратов ARCHITECTS
Многофункциональная комплексная застройка на Софийской набережной. Вид с кровли © Сергей Скуратов ARCHITECTS
Многофункциональная комплексная застройка на Софийской набережной. Вид с кровли © Сергей Скуратов ARCHITECTS

Приватных дворов, предназначенных для жильцов, три. Здесь, помимо благоустройства, столь же детального, как и на бульваре, есть одна особенность: перед квартирами первых этажей задуманы чуть углубленные в землю персональные террасы для их жителей. На минус втором этаже прячется парковка жильцов, куда въезд будет по карточкам, а на минус первом – парковка для всех, прежде всего, конечно, посетителей магазинов. Там же, в западной части, финтес-центр с высокими потолками.

Удивительно, до чего современная архитектура провоцирует к тому, чтобы говорить сначала о пространстве между домами и потом уже об образующих его зданиях. Они, впрочем, тоже важны. Три длинных корпуса расставлены по периметру участка «покоем», четвертый уместился в центре – к востоку от него пешеходный городской бульвар, к западу приватный двор. На показанных архитекторами выкладках легко увидеть, что в XVIII веке участок был застроен меньше, в основном домиками вдоль набережной, за которыми в глубине были сады, остатки царских; а в XIX веке – больше, вся территория была плотно заполнена зданиями, частью жилыми, частью заводскими. Планировка, которая предлагается сейчас, ощутимо плотнее древней, что неудивительно, но заметно просторнее капиталистической. Узкие колодцы-проходы сменились обитаемыми дворами.
Многофункциональная комплексная застройка на Софийской набережной. Этапы развития и трансформации планировочной структуры © Сергей Скуратов ARCHITECTS
Многофункциональная комплексная застройка на Софийской набережной. Этапы развития и трансформации планировочной структуры © Сергей Скуратов ARCHITECTS

Единственный из шести конкурсантов, Сергей Скуратов не стал делать выбора в пользу большей или меньшей степени современности, или наоборот, консервативности стилистики – он нарезал объемы продольно пополам, сделав одну половину сдержанно-консервативной, вторую умеренно-модернистской. И «склеил» их, по собственным словам архитектора, стеклянной прослойкой, избежав таким образом излишней толщины объемов: каждая половинка теперь получилась не шире 12 метров. Так что здесь декларирована смесь более и менее консервативной архитектуры – явление, свойственное многим историческим центрам европейских городов, Вене, Милану, Стамбулу.
Многофункциональная комплексная застройка на Софийской набережной. Вальма © Сергей Скуратов ARCHITECTS
Многофункциональная комплексная застройка на Софийской набережной. Вальма © Сергей Скуратов ARCHITECTS
Многофункциональная комплексная застройка на Софийской набережной © Сергей Скуратов ARCHITECTS
Многофункциональная комплексная застройка на Софийской набережной © Сергей Скуратов ARCHITECTS

«Консервативные» объемы покрыты бежевым клинкером, чьи пропорции напоминают о плинфе. Откосы окон подчеркнуто глубокие, причем где-то они перпедикулярны плоскости стены, где-то очень пологие, перспективные, а местами угол, поворачивающий к окну, циркульно скруглен, как будто в нем «утонула» колонна. Более отчетливо те же плотные, круглые фусты выстаиваются в ряд, оттеняя перспективные срезы, превращая окно в скульптуру, в материализованное размышление о толщине, объеме, пластике стены. Архитектор называет два прообраза формы: колонки кремлевских башен XVII века и хрестоматийную римскую гробницу булочника Эврисака, из которой обычно помнят ряды круглых отверстий, которые Щуко и Гельфрейх повторили в здании Ленинки. А Сергей Скуратов заметил плотный ряд широких круглых опор особенных пропорций. Вспоминаем, что Москва это Третий Рим, и колонны оказываются вдвойне в контексте, причем в большей степени через антикизирующий след первого Рима вполне ощутим, равно как и некоторые интонации римского же ар-деко, поддержанные единством фактуры и пилонадами верхних этажей.

Впрочем и Москвы не меньше: за неё, в частности, отвечают пологие скаты кровель и так любимые градозащитниками вальмовые срезы на торцах – они появляются в нескольких местах, формируя признаки характерного «чердачного» силуэта и перекликаясь с кровлями сохраняемых зданий. Хотя на торце пентхауса, одного из самых дорогих, обращенного окном прямо на Водовзводную башню, вальму сделать было уже невозможно: как закрыть лишний фрагмент неба, если такой вид? Так что с этой стороны снаружи торец – почти храм в антах, обрамлен парами длинных колонн.
Многофункциональная комплексная застройка на Софийской набережной © Сергей Скуратов ARCHITECTS
Многофункциональная комплексная застройка на Софийской набережной © Сергей Скуратов ARCHITECTS
Многофункциональная комплексная застройка на Софийской набережной © Сергей Скуратов ARCHITECTS
Многофункциональная комплексная застройка на Софийской набережной © Сергей Скуратов ARCHITECTS
Многофункциональная комплексная застройка на Софийской набережной © Сергей Скуратов ARCHITECTS
Многофункциональная комплексная застройка на Софийской набережной © Сергей Скуратов ARCHITECTS
Многофункциональная комплексная застройка на Софийской набережной. Фасад © Сергей Скуратов ARCHITECTS
Многофункциональная комплексная застройка на Софийской набережной. Фасад © Сергей Скуратов ARCHITECTS
Многофункциональная комплексная застройка на Софийской набережной. Фасад © Сергей Скуратов ARCHITECTS
Многофункциональная комплексная застройка на Софийской набережной. Фасад © Сергей Скуратов ARCHITECTS
Многофункциональная комплексная застройка на Софийской набережной © Сергей Скуратов ARCHITECTS
Многофункциональная комплексная застройка на Софийской набережной © Сергей Скуратов ARCHITECTS
Многофункциональная комплексная застройка на Софийской набережной © Сергей Скуратов ARCHITECTS
Многофункциональная комплексная застройка на Софийской набережной © Сергей Скуратов ARCHITECTS

«Модернистские» корпуса в отличие от палевых кирпичных – ярко-белые, их фасады планируется покрыть полированным бетоном. Впрочем фасад, обращенный к бульвару – надо ли говорить, что две стены бульвара разные, одна кирпичная, другая белая – оживлен кирпичными вставками, которые помогают немного смягчить контраст и напоминают выступающую из-под штукатурки кладку. Крыши белых объемов будут плоскими и эксплуатируемыми, с выходом для всех жильцов, окна также имеют пологие асимметричные срезы-откосы, но местами их стекло выступает вперед стеклянной призмой. Переклички между корпусами, обеспечены, помимо кирпичных вставок, общими пропорциями окон – французских, в пол, местами с французскими же узкими балкончиками, и плиты «подоконников».

Там, где торцы белых объемов обращены к Кремлю, они срезаны крупными ступенями террас, которые Сергей Скуратов сравнивает с театром, встроенным в город. Стены здесь полностью стеклянные, матовое стекло плавным градиентом переходит в зеркальное.
Многофункциональная комплексная застройка на Софийской набережной © Сергей Скуратов ARCHITECTS
Многофункциональная комплексная застройка на Софийской набережной © Сергей Скуратов ARCHITECTS
Многофункциональная комплексная застройка на Софийской набережной © Сергей Скуратов ARCHITECTS
Многофункциональная комплексная застройка на Софийской набережной © Сергей Скуратов ARCHITECTS
Многофункциональная комплексная застройка на Софийской набережной © Сергей Скуратов ARCHITECTS
Многофункциональная комплексная застройка на Софийской набережной © Сергей Скуратов ARCHITECTS

Очевидно, что контрастная архитектура сросшихся пластин жилых корпусов будет удобна для жильцов, которые смогут выбрать, в числе прочего, какой дом они предпочитают, сияющий белизной или «древний» кирпичный. С другой стороны, чересполосица современного и исторического, и шире – очень разного, стала практически визитной карточкой московской архитектуры, так что и этот художественный ход имеет признаки контекстуальности.

И пока что рано судить, как часто туристов и гуляющих москвичей сюда будет затягивать «луч», ведущий от Лаврушинского переулка – сейчас мы на Болотной собираемся помногу, но не часто; в обычное время гуляющие в этих местах редки. Сложно сказать, что удобнее для будущих жильцов, оживленное общественное пространство и работающими магазинами или тишина и покой ввиду Кремля. Но если судить по некоторым чертам проекта, также как и по словам Сергея Скуратова, проект мог бы стать «зерном», в некотором роде эталоном развития городского пространства в центре. Ну или во всяком случае – помочь московскому острову приобрести некоторые полезные черты парижского.
Многофункциональная комплексная застройка на Софийской набережной © Сергей Скуратов ARCHITECTS
Многофункциональная комплексная застройка на Софийской набережной © Сергей Скуратов ARCHITECTS
Многофункциональная комплексная застройка на Софийской набережной © Сергей Скуратов ARCHITECTS
Многофункциональная комплексная застройка на Софийской набережной © Сергей Скуратов ARCHITECTS
Многофункциональная комплексная застройка на Софийской набережной. Интерьер пентхауса © Сергей Скуратов ARCHITECTS
Многофункциональная комплексная застройка на Софийской набережной. Интерьер пентхауса © Сергей Скуратов ARCHITECTS
Многофункциональная комплексная застройка на Софийской набережной © Сергей Скуратов ARCHITECTS
Многофункциональная комплексная застройка на Софийской набережной © Сергей Скуратов ARCHITECTS
Многофункциональная комплексная застройка на Софийской набережной © Сергей Скуратов ARCHITECTS
Многофункциональная комплексная застройка на Софийской набережной © Сергей Скуратов ARCHITECTS
Многофункциональная комплексная застройка на Софийской набережной © Сергей Скуратов ARCHITECTS
Многофункциональная комплексная застройка на Софийской набережной © Сергей Скуратов ARCHITECTS
Многофункциональная комплексная застройка на Софийской набережной. Поиск © Сергей Скуратов ARCHITECTS
Многофункциональная комплексная застройка на Софийской набережной. Поиск © Сергей Скуратов ARCHITECTS
Многофункциональная комплексная застройка на Софийской набережной. Поиск © Сергей Скуратов ARCHITECTS
Многофункциональная комплексная застройка на Софийской набережной. Поиск © Сергей Скуратов ARCHITECTS
Многофункциональная комплексная застройка на Софийской набережной. Поиск © Сергей Скуратов ARCHITECTS
Многофункциональная комплексная застройка на Софийской набережной. Поиск © Сергей Скуратов ARCHITECTS
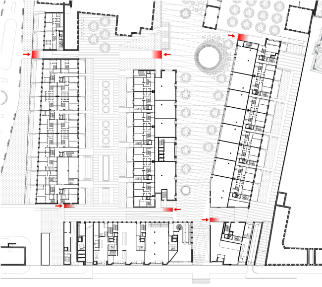
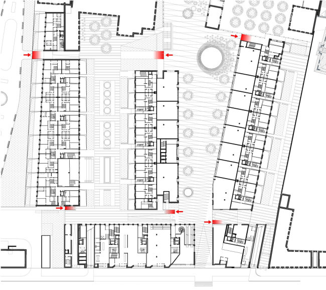
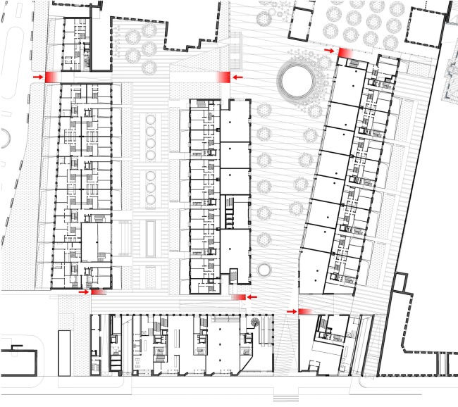
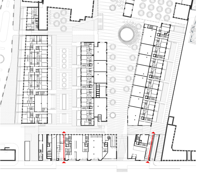
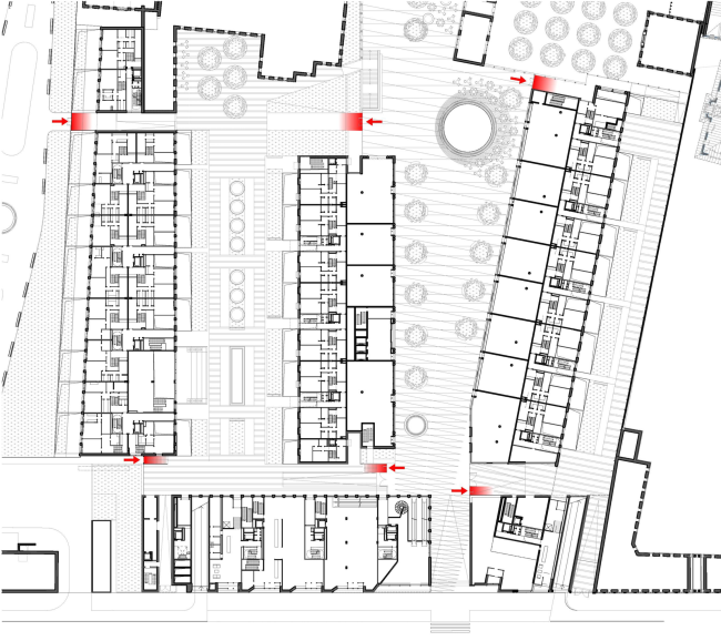
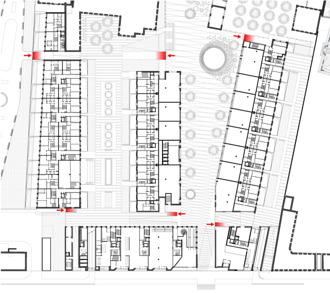
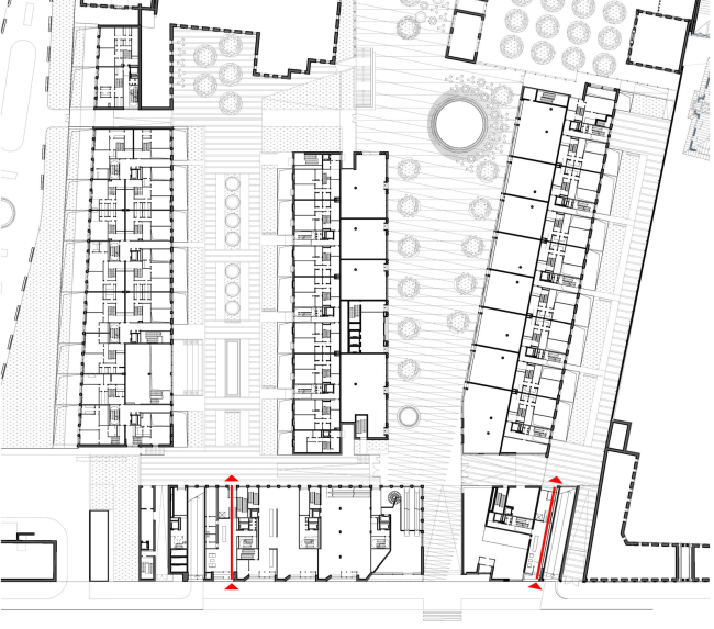
Многофункциональная комплексная застройка на Софийской набережной. Генеральный план © Сергей Скуратов ARCHITECTS
Многофункциональная комплексная застройка на Софийской набережной. Генеральный план © Сергей Скуратов ARCHITECTS
Многофункциональная комплексная застройка на Софийской набережной. План 2 этажа © Сергей Скуратов ARCHITECTS
Многофункциональная комплексная застройка на Софийской набережной. План 2 этажа © Сергей Скуратов ARCHITECTS
Многофункциональная комплексная застройка на Софийской набережной. План 3 этажа © Сергей Скуратов ARCHITECTS
Многофункциональная комплексная застройка на Софийской набережной. План 3 этажа © Сергей Скуратов ARCHITECTS
Многофункциональная комплексная застройка на Софийской набережной. План 4 этажа © Сергей Скуратов ARCHITECTS
Многофункциональная комплексная застройка на Софийской набережной. План 4 этажа © Сергей Скуратов ARCHITECTS
Многофункциональная комплексная застройка на Софийской набережной. План кровли © Сергей Скуратов ARCHITECTS
Многофункциональная комплексная застройка на Софийской набережной. План кровли © Сергей Скуратов ARCHITECTS
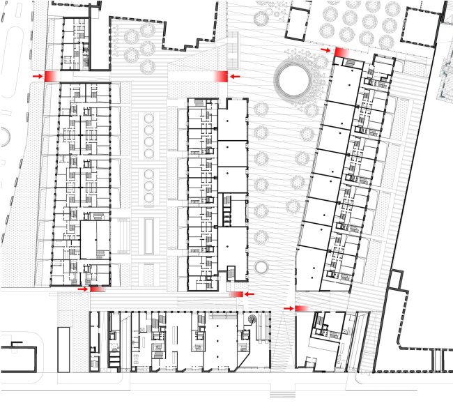
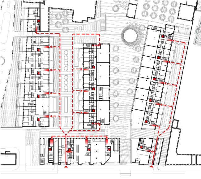
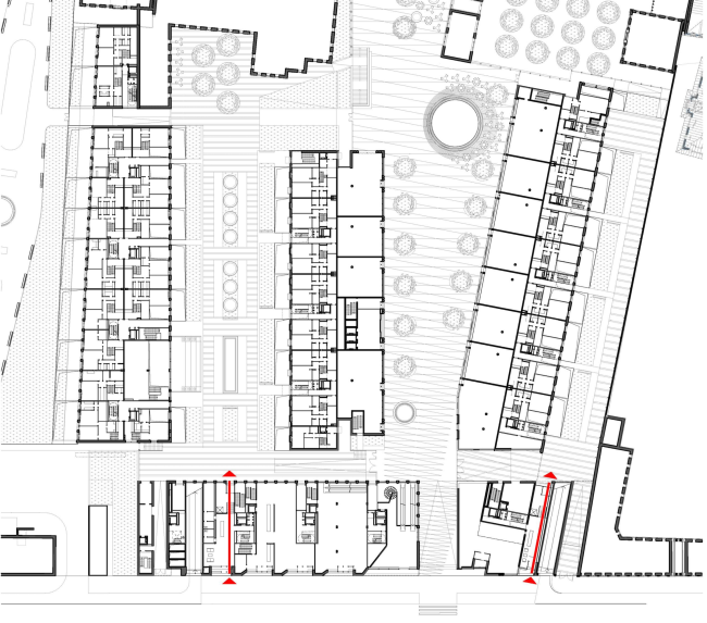
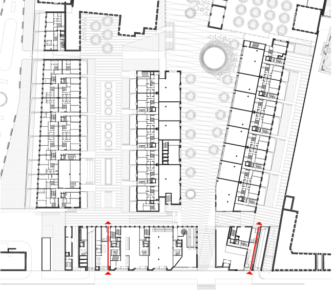
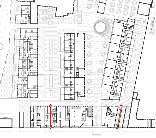
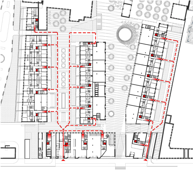
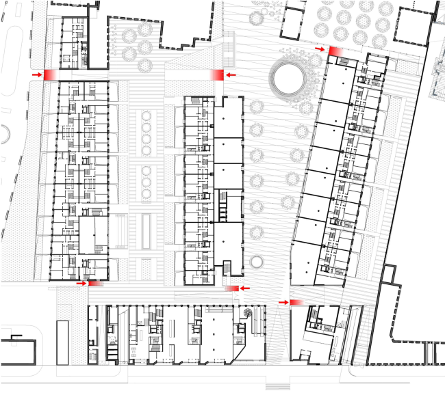
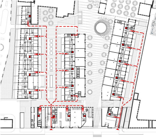
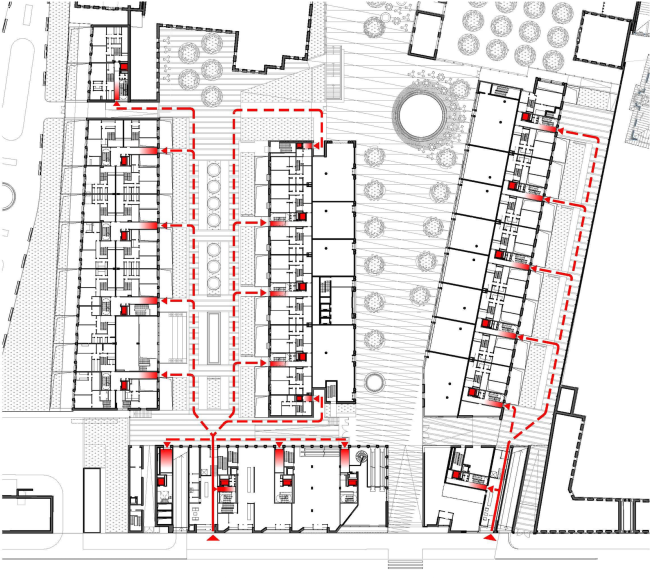
Многофункциональная комплексная застройка на Софийской набережной. Входы для жильцов © Сергей Скуратов ARCHITECTS
Многофункциональная комплексная застройка на Софийской набережной. Входы для жильцов © Сергей Скуратов ARCHITECTS
Многофункциональная комплексная застройка на Софийской набережной. Входы для жильцов © Сергей Скуратов ARCHITECTS
Многофункциональная комплексная застройка на Софийской набережной. Входы для жильцов © Сергей Скуратов ARCHITECTS
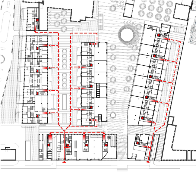
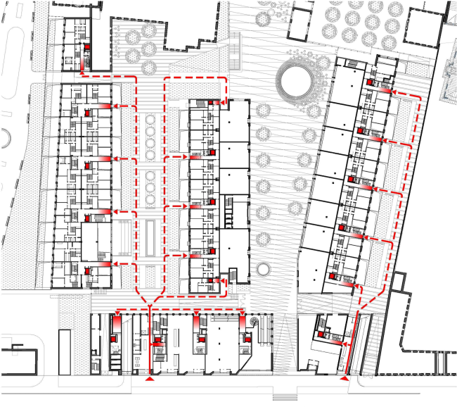
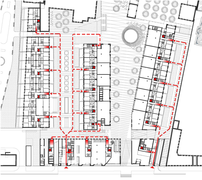
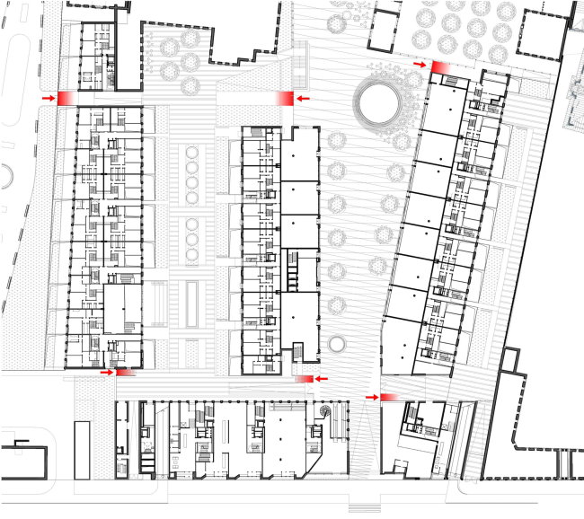
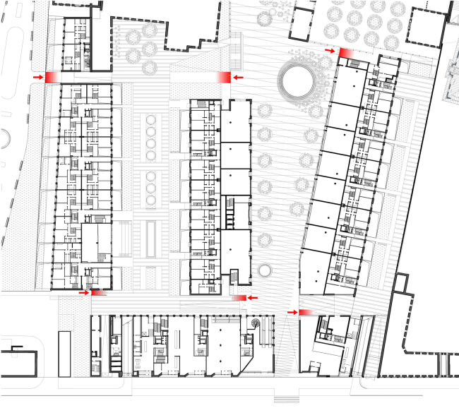
Многофункциональная комплексная застройка на Софийской набережной. Входы на частную территорию © Сергей Скуратов ARCHITECTS
Многофункциональная комплексная застройка на Софийской набережной. Входы на частную территорию © Сергей Скуратов ARCHITECTS
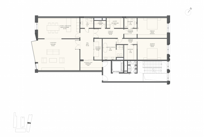
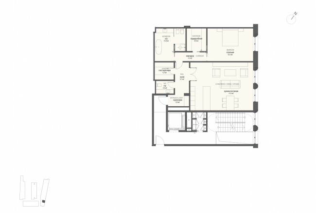
Многофункциональная комплексная застройка на Софийской набережной. План квартиры с 1 спальней © Сергей Скуратов ARCHITECTS
Многофункциональная комплексная застройка на Софийской набережной. План квартиры с 1 спальней © Сергей Скуратов ARCHITECTS
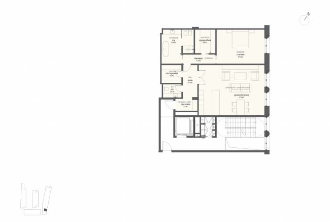
Многофункциональная комплексная застройка на Софийской набережной. План квартиры с 2 спальнями (тип 1) © Сергей Скуратов ARCHITECTS
Многофункциональная комплексная застройка на Софийской набережной. План квартиры с 2 спальнями (тип 1) © Сергей Скуратов ARCHITECTS
Многофункциональная комплексная застройка на Софийской набережной. План квартиры с 2 спальнями (тип 2) © Сергей Скуратов ARCHITECTS
Многофункциональная комплексная застройка на Софийской набережной. План квартиры с 2 спальнями (тип 2) © Сергей Скуратов ARCHITECTS
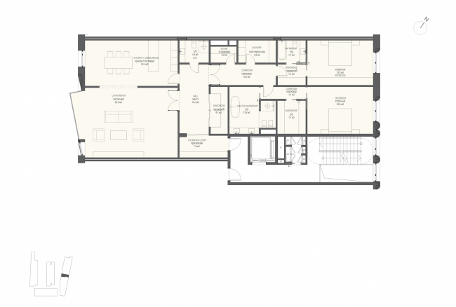
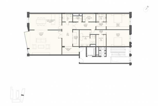
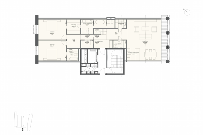
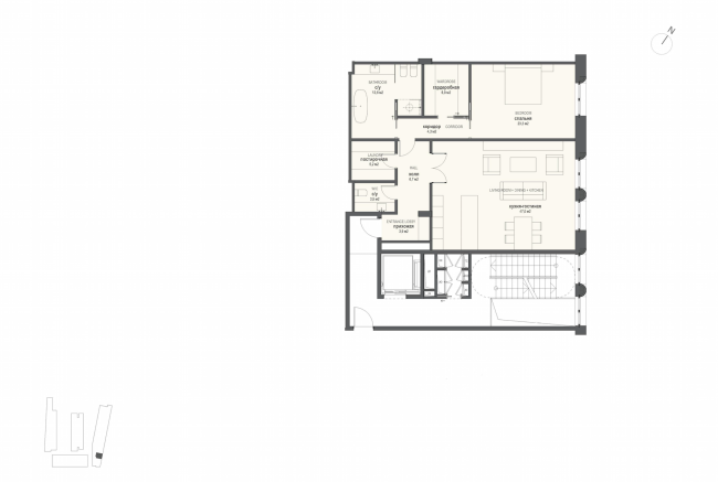
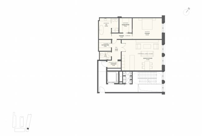
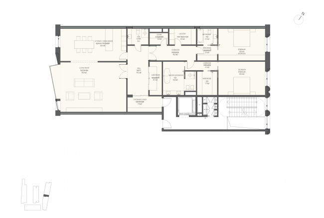
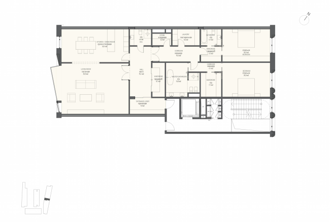
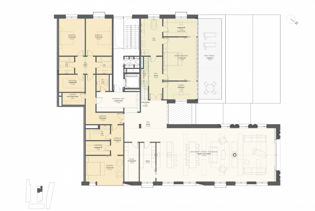
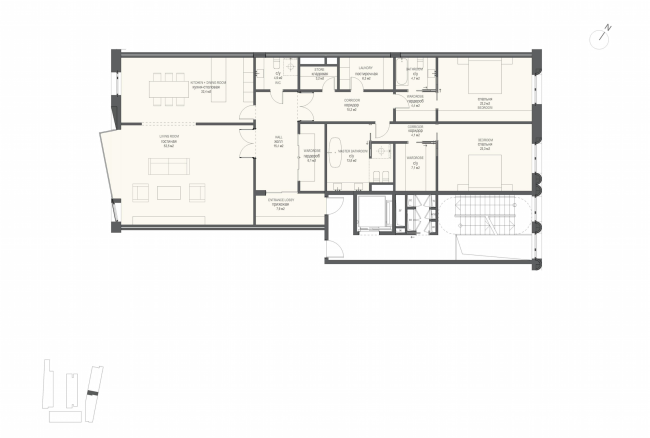
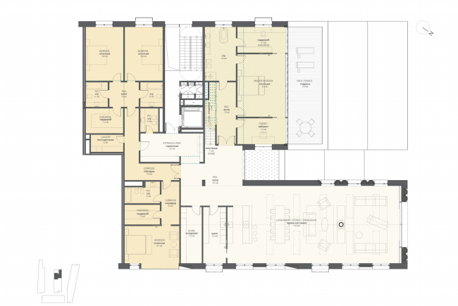
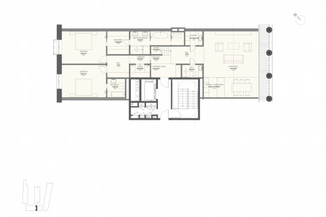
Многофункциональная комплексная застройка на Софийской набережной. План квартиры с 3 спальнями © Сергей Скуратов ARCHITECTS
Многофункциональная комплексная застройка на Софийской набережной. План квартиры с 3 спальнями © Сергей Скуратов ARCHITECTS
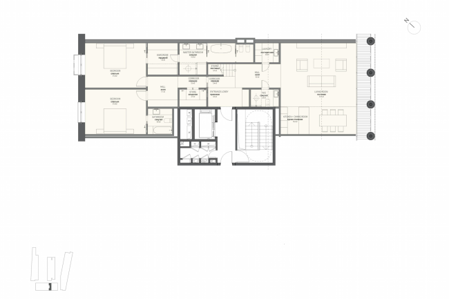
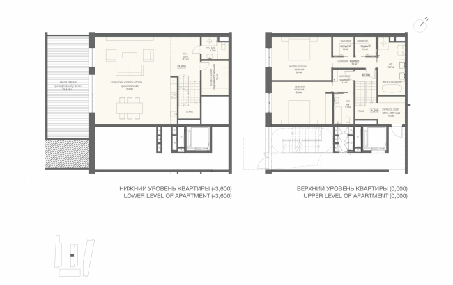
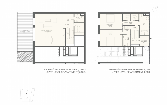
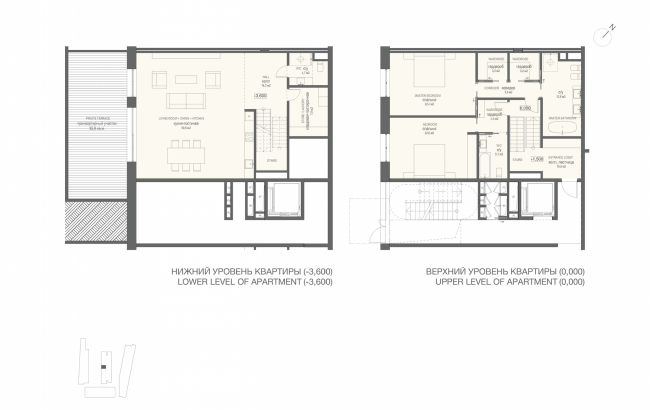
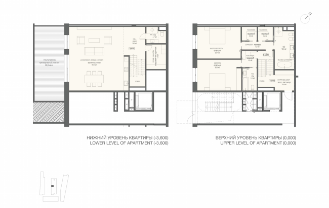
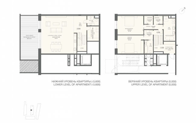
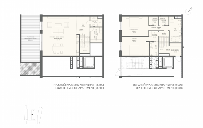
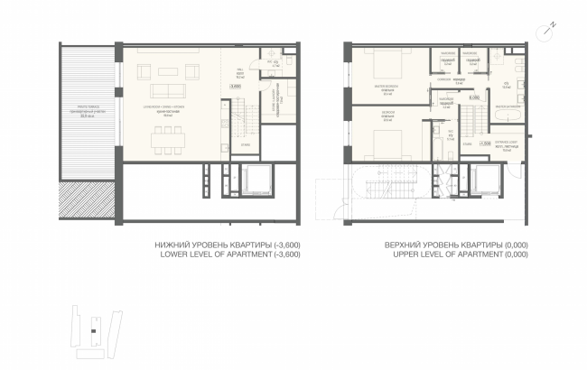
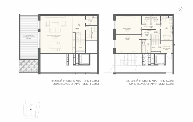
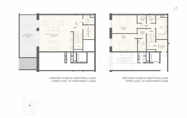
Многофункциональная комплексная застройка на Софийской набережной. План двухуровневой квартиры с 2 спальнями © Сергей Скуратов ARCHITECTS
Многофункциональная комплексная застройка на Софийской набережной. План двухуровневой квартиры с 2 спальнями © Сергей Скуратов ARCHITECTS
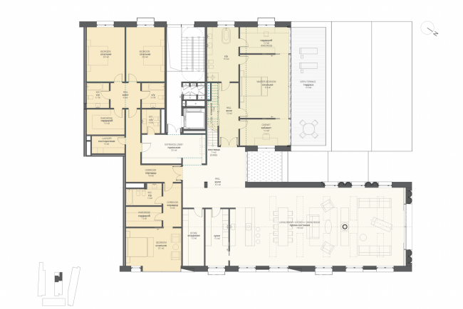
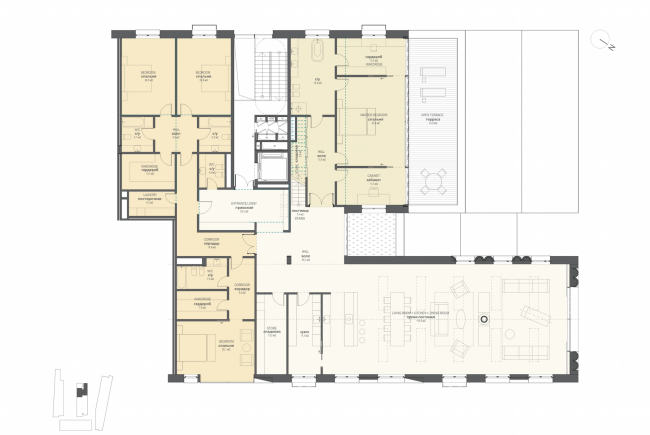
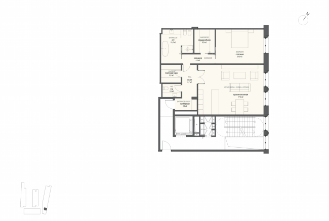
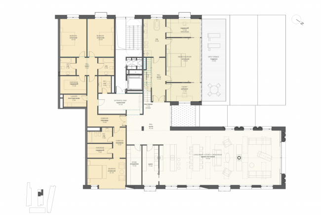
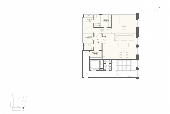
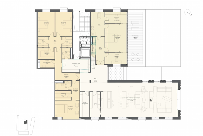
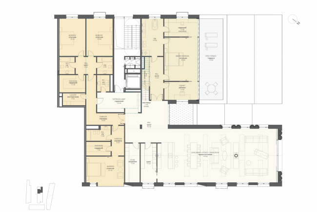
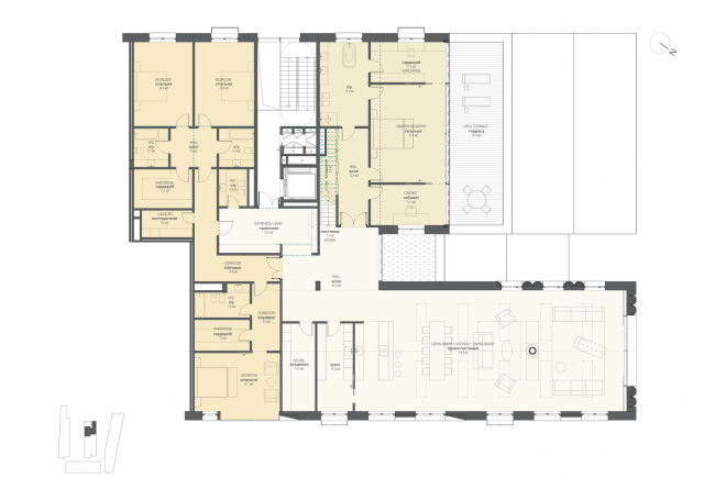
Многофункциональная комплексная застройка на Софийской набережной. Пентхаус © Сергей Скуратов ARCHITECTS
Многофункциональная комплексная застройка на Софийской набережной. Пентхаус © Сергей Скуратов ARCHITECTS
Многофункциональная комплексная застройка на Софийской набережной. Варианты трансформации квартир © Сергей Скуратов ARCHITECTS
Многофункциональная комплексная застройка на Софийской набережной. Варианты трансформации квартир © Сергей Скуратов ARCHITECTS
Многофункциональная комплексная застройка на Софийской набережной. Варианты трансформации квартир © Сергей Скуратов ARCHITECTS
Многофункциональная комплексная застройка на Софийской набережной. Варианты трансформации квартир © Сергей Скуратов ARCHITECTS
Многофункциональная комплексная застройка на Софийской набережной. Варианты трансформации квартир © Сергей Скуратов ARCHITECTS
Многофункциональная комплексная застройка на Софийской набережной. Варианты трансформации квартир © Сергей Скуратов ARCHITECTS