Размещено на портале Архи.ру (www.archi.ru)

19.10.2015

Перспектива реализации

Алла Павликова
Объект:
Студенческий проект на тему «Жилой дом»
Адрес:
Россия, Видное.
Архитектор:
Зураб Басария
Михаил Канунников
Всеволод Медведев
Олег Мединский
Мастерская:
Четвертое измерение
Авторский коллектив:
Автор проекта: Полина Корочкова, студент 6 группы 4 курса кафедры «ПРОМ»

История о том, как студенческая курсовая работа понравилась преподавателям, и для нее нашли заказчика. Проект жилого дома может быть реализован в одном из районов Новой Москвы.

Студенческий проект на тему «Жилой дом». Автор: Полина Корочкова, студентка 6 группы 4 курса кафедры «ПРОМ», МАРХИ
Студенческий проект на тему «Жилой дом». Автор: Полина Корочкова, студентка 6 группы 4 курса кафедры «ПРОМ», МАРХИ

Проект многоквартирного жилого дома разработан студенткой четвертого курса кафедры «Пром» МАРХИ Полиной Корочковой. В том же весеннем семестре Полина работала над проектом планировки на примере одного из микрорайонов Южного Чертанова. Следующей темой стал жилой дом – градообразующая доминанта для того же микрорайона.

Впрочем, привязка к местности в данном случае условна – преподаватели Полины, Всеволод Медведев, Зураб Басария и Михаил Канунников из архитектурного бюро «Четвертое измерение», уверены, что подобный подход: оживление типового микрорайона домом индивидуальной архитектуры – способен преобразовать почти любую среду – Чертаново, Бирюлево, Бутово… Архитекторы убеждены, что модернизация панельных серий не может дать эффекта, сравнимого по силе с воздействием авторской архитектуры, способной насытить город визуально и эмоционально.

Но интереснее всего то, что преподаватели, высоко оценив проект студентки 4 курса МАРХИ, вскоре после начала работы задумались о его вероятной реализации. «Предложение нам очень понравилось в процессе разработки, – вспоминает Всеволод Медведев. – Поэтому мы внимательно отнеслись к деталям, довели проект до уровня максимальной реалистичности. Даже привлекли своих конструкторов и смежников, чтобы сделать правильный и реализуемый конструктив». По словам Медведева, студентов часто обвиняют в неумении по-настоящему проектировать, чрезмерной фантастичности идей и их оторванности от действительности. Именно поэтому настоящая работа намеренно выполнена логично и даже немного упрощенно: стандартный шаг колонн, прозрачная и ясная конструктивная схема, привычные и «почти образцовые» планировки квартир. Заказчик нашелся практически сразу – крупный застройщик, массово осваивающий территории Новой Москвы.

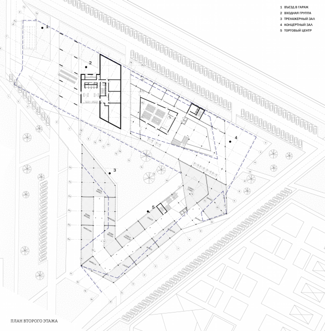
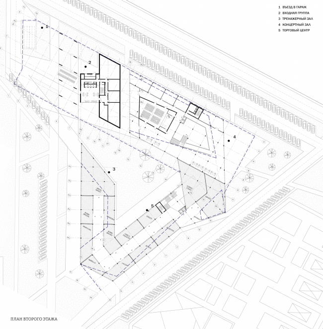
Две узкие жилые башни, соединенные остекленным лестнично-лифтовым узлом, вырастают из обширного пятна подземной парковки, на кровле которой расставлено несколько невысоких объемов: кинотеатра, магазинов и прочих «общественных функций». На уровне второго этажа их объединяет с жилыми корпусами и между собой ломаная линия козырька, защищающего от непогоды и формирующего маршруты переходов. Роскошная стилобатная часть, впрочем, разработана приблизительно, как часть учебного задания; её можно как угодно переработать или даже удалить для «посадки» дома на другой участок – говорит Всеволод Медведев.
Студенческий проект на тему «Жилой дом». Стилобат. План 1 этажа. Автор: Полина Корочкова, студентка 6 группы 4 курса кафедры «ПРОМ», МАРХИ
Студенческий проект на тему «Жилой дом». Стилобат. План 1 этажа. Автор: Полина Корочкова, студентка 6 группы 4 курса кафедры «ПРОМ», МАРХИ
Студенческий проект на тему «Жилой дом». Стилобат. Автор: Полина Корочкова, студентка 6 группы 4 курса кафедры «ПРОМ», МАРХИ
Студенческий проект на тему «Жилой дом». Стилобат. Автор: Полина Корочкова, студентка 6 группы 4 курса кафедры «ПРОМ», МАРХИ
Студенческий проект на тему «Жилой дом». Автор: Полина Корочкова, студентка 6 группы 4 курса кафедры «ПРОМ», МАРХИ
Студенческий проект на тему «Жилой дом». Автор: Полина Корочкова, студентка 6 группы 4 курса кафедры «ПРОМ», МАРХИ

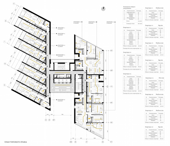
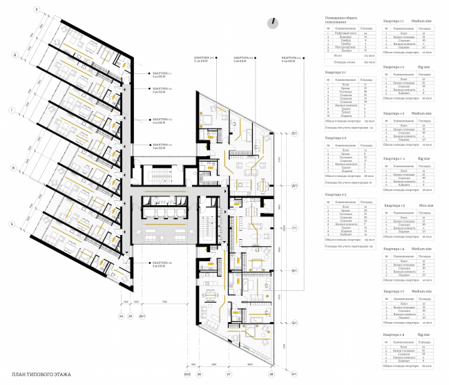
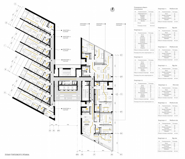
Главное – башни. Они непохожи друг на друга и внутри, и снаружи. Одна – галерейный дом, где небольшие однокомнатные квартиры-пеналы (40-50 м2, в среднем – 3,8 х 8 м), примыкают под углом 60 градусов к недлинному коридору, проходящему со стороны лифтового узла. Это – студии для одиночек и молодых семей: санузел у двери, кровать чуть дальше, в полусумраке; ближе к свету миникухня-гостиная и, наконец, балкон. Внешняя стена, единственный источник света, полностью стеклянная. «Пеналы» квартир вынесены на разную длину и похожи на неравномерно выдвинутые ящики какой-нибудь библиотечной картотеки. Снаружи «ящички» решены в разном тоне – они белые, серые и черные, что усиливает эффект объемного набора и, может даже напомнить о каких-нибудь ласточкиных гнездах или морских раковинах, в изобилии прилепившиеся к вертикальной стене.
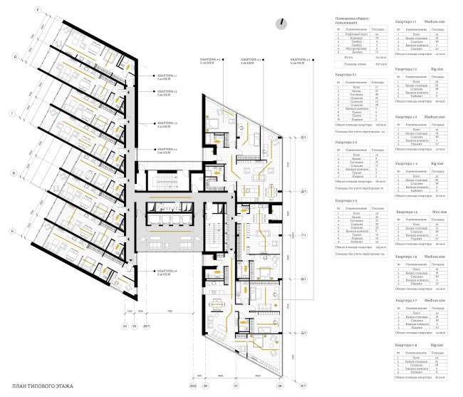
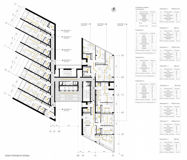
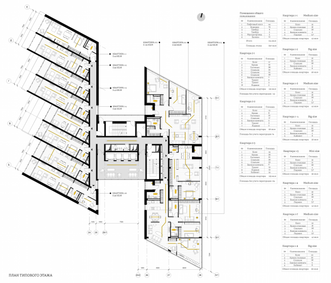
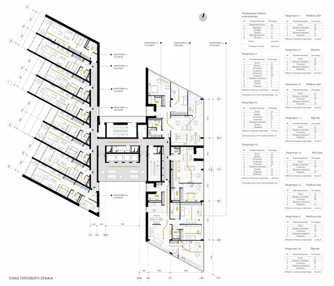
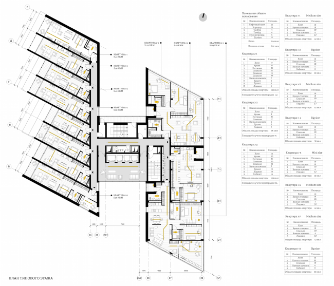
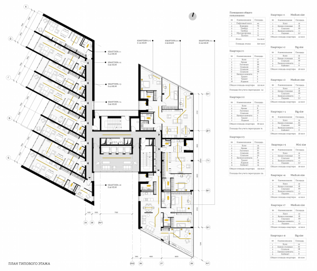
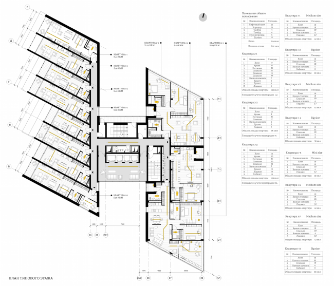
Студенческий проект на тему «Жилой дом». План типового этажа. Автор: Полина Корочкова, студентка 6 группы 4 курса кафедры «ПРОМ», МАРХИ
Студенческий проект на тему «Жилой дом». План типового этажа. Автор: Полина Корочкова, студентка 6 группы 4 курса кафедры «ПРОМ», МАРХИ
Студенческий проект на тему «Жилой дом». Планы квартир-студий. Автор: Полина Корочкова, студентка 6 группы 4 курса кафедры «ПРОМ», МАРХИ
Студенческий проект на тему «Жилой дом». Планы квартир-студий. Автор: Полина Корочкова, студентка 6 группы 4 курса кафедры «ПРОМ», МАРХИ
Студенческий проект на тему «Жилой дом». Автор: Полина Корочкова, студентка 6 группы 4 курса кафедры «ПРОМ», МАРХИ
Студенческий проект на тему «Жилой дом». Автор: Полина Корочкова, студентка 6 группы 4 курса кафедры «ПРОМ», МАРХИ

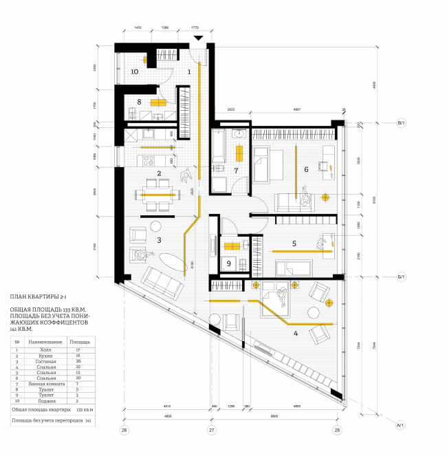
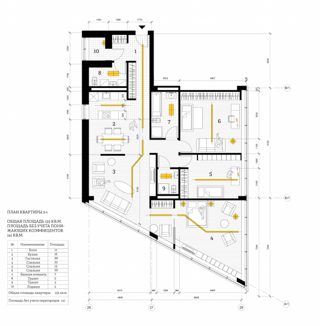
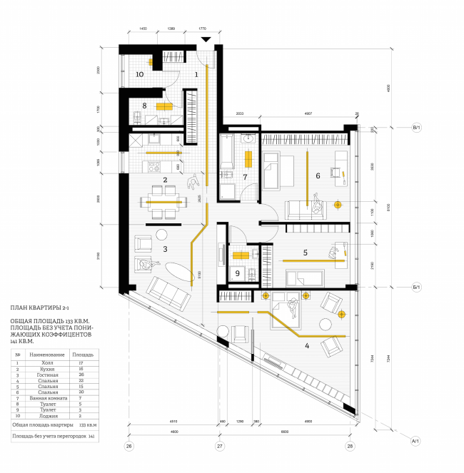
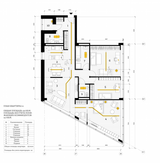
Вторая башня – для квартир больше ста метров (129 и 133 м2) и более привычной типологии. Они вписаны в лаконичный стеклянный объем с ромбическим планом, для отделки которого предлагается использовать навесной фасад из зеркального стекла, обогащающего строгий образ бесчисленными отражениями.
Студенческий проект на тему «Жилой дом» План квартиры повышенной комфортности. Автор: Полина Корочкова, студентка 6 группы 4 курса кафедры «ПРОМ», МАРХИ
Студенческий проект на тему «Жилой дом» План квартиры повышенной комфортности. Автор: Полина Корочкова, студентка 6 группы 4 курса кафедры «ПРОМ», МАРХИ
Студенческий проект на тему «Жилой дом». Автор: Полина Корочкова, студентка 6 группы 4 курса кафедры «ПРОМ», МАРХИ
Студенческий проект на тему «Жилой дом». Автор: Полина Корочкова, студентка 6 группы 4 курса кафедры «ПРОМ», МАРХИ
Студенческий проект на тему «Жилой дом». Разрез. Автор: Полина Корочкова, студентка 6 группы 4 курса кафедры «ПРОМ», МАРХИкафедры «ПРОМ», МАРХИ
Студенческий проект на тему «Жилой дом». Разрез. Автор: Полина Корочкова, студентка 6 группы 4 курса кафедры «ПРОМ», МАРХИкафедры «ПРОМ», МАРХИ

«Успех проекта, как мне кажется, в том, что удалось угадать требования рынка, – комментирует Всеволод Медведев. – В мире строят много модульных домов, в нашей же стране они чаще остаются на бумаге, и если нам удастся реализовать задуманное, это будет, пусть небольшим, шагом к тому, чтобы изменить ситуацию. Никто, конечно, не говорит о массовом строительстве таких домов, но в качестве эксперимента это вполне возможно. И нам, безусловно, льстит то, что речь идет о студенческом проекте. На его примере мы надеемся доказать, что силами преподавателей и студентов можно создавать вполне реальные и качественные проекты».

Впрочем, переговоры о реализации пока только в процессе. Аплодировать автору и педагогам можно будет с полной уверенностью тогда, когда дело дойдет до стройплощадки.