Размещено на портале Архи.ру (www.archi.ru)

08.10.2015

Нео-дом

Юлия Тарабарина
Объект:
ЖК «Русский дом»
Адрес:
Россия, Санкт-Петербург. Басков переулок, участок 5
Мастерская:
Евгений Герасимов и партнеры
Авторский коллектив:
Руководитель авторского коллектива: Герасимов Е.Л.
Главный архитектор проекта: Меркушева С.Д.
Руководитель архитектурной группы: Яковлева А.Ю.
Архитекторы: Апполонова Е.П., Будылина Е.Н., Бурдонская С.И., Сморыгин А.В., Горюнова Е.А., Леушина О.С.

Такого еще не было; всё же нео-русский стиль не пугает только церковных строителей. А Евгений Герасимов принял вызов и предложил центру Петербурга современную версию жилого комплекса c архитектурой à la russe, сочетающей «псевдо», «нео» и современные приемы.

Жилой комплекс «Русский дом». Проект, 2013 © «Евгений Герасимов и партнеры»
Жилой комплекс «Русский дом». Проект, 2013 © «Евгений Герасимов и партнеры»
Участок, на котором планируется построить жилой комплекс с говорящим названием «Русский дом», расположен в кварталах за Литейным проспектом, на пересечении Баскова переулка и улицы Короленко. Три года назад он был предметом спора между градозащитниками, утверждавшими, что сносимые здесь здания – это остатки артиллерийских казарм начала XX века, и заказчиком, «Группой ЛСР», который с городскими разрешениями и архивными документами на руках доказывал, что сносит постройки, появившиеся не позднее 1932 года, хотя в них и были использованы старые кирпичи. Девелоперу, по всей видимости, удалось доказать свою правоту, так как сейчас стройка начинается.
Многоквартирный дом со встроенными помещениями в Басковом переулке. Проект, 2013. Ситуационный план © Евгений Герасимов и партнеры
Многоквартирный дом со встроенными помещениями в Басковом переулке. Проект, 2013. Ситуационный план © Евгений Герасимов и партнеры

Дом, спроектированный Евгением Герасимовым, чьи постройки и проекты в духе историзма уже хорошо известны в Петербурге, на этот раз, вторя риелторскому названию, решен в духе «неорусского стиля раннего модерна» и наследует фенотип больших доходных домов рубежа веков (XIX–XX), домов-замков или домов-дворцов, объединявших несколько кварталов с внутренними дворами, иногда колодцами, а иногда и побольше. В Петербурге их немало, один из самых замечательных – дом Первого российского страхового общества, построенный по проекту трех архитекторов Бенуа: Леонтия, Юлия и Александра, на Каменноостровском проспекте (1911–1914. Хотя тот дом – прекрасный представитель неоклассики, увлечения Италией, и в нем нет ничего русофильского, между ним и «Русским домом» в проекте Евгения Герасимова обнаруживается некоторое сходство, на уровне типологии и ощущений.

Прежде всего, Герасимов использует тот же главный планировочный прием, разрезая дом открытым к улице двором, который далеко – до последнего корпуса на внутренней границе участка, уходит вглубь застройки. Двор становится «парадным партером» дома-дворца и оформляется соответственно – сквером, но главный эффект формирует перспектива со стороны улицы, в строе красной линии которой возникает разрыв, торжественно фланкированный двумя похожими корпусами. Доходные дома нечасто использовали такой план с открытым, приглашающим войти двором – в современных терминах «городским общественным пространством», но случалось: иногда между корпусами-кварталами проходила даже внутренняя, то есть перекрытая решетками, улица, как в доме Российского страхового общества на Сретенском бульваре в Москве.
Жилой комплекс «Русский дом». Проект, 2013 © «Евгений Герасимов и партнеры»
Жилой комплекс «Русский дом». Проект, 2013 © «Евгений Герасимов и партнеры»
Жилой комплекс «Русский дом». Проект, 2013 © «Евгений Герасимов и партнеры»
Жилой комплекс «Русский дом». Проект, 2013 © «Евгений Герасимов и партнеры»

Вторая особенность более общего свойства: два крыла П-образного плана – это крае, плотно замкнутые каре вокруг внутренних дворов, попасть в которые можно через арки – не слишком высокие, двухэтажные, обращенные к центральному двору-партеру. Внутренние дворы типологически – питерские «колодцы», но назвать их так сложно, потому что они большие, 2 000 м2 и больше, что сопоставимо скорее с дворами сталинских домов. «Русский дом» в целом – приблизительно вдвое больше своих самых крупных прототипов-доходников начала XX века, хотя бы потому, что занимает большую площадь: участок дома Бенуа – приблизительно один гектар, московского дома на Сретенском бульваре – около полутора, а здесь – 2,4 гектара и более 70 000 м2 наземной площади. В данном случае масштаб работает на усиление торжественности: неизбежное по нашим временам увеличение этажности в глубине, при соблюдении высот красной линии воспринимается не только как способ умножения полезной площади, но и как элемент общего крещендо, заданного тяготением к симметрии, парадным двором, острыми шипцами и башнями высоких «теремных» кровель в шашечку, пышным орнаментальным рельефом. Перед нами, определенно, реинкарнация Теремного дворца, стадиально третья или даже четвертая.
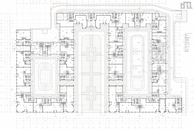
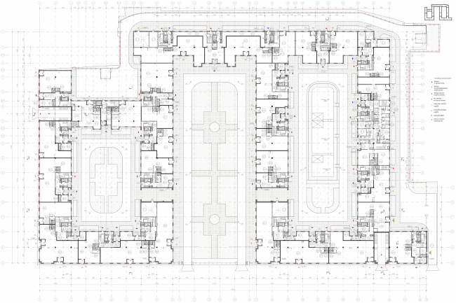
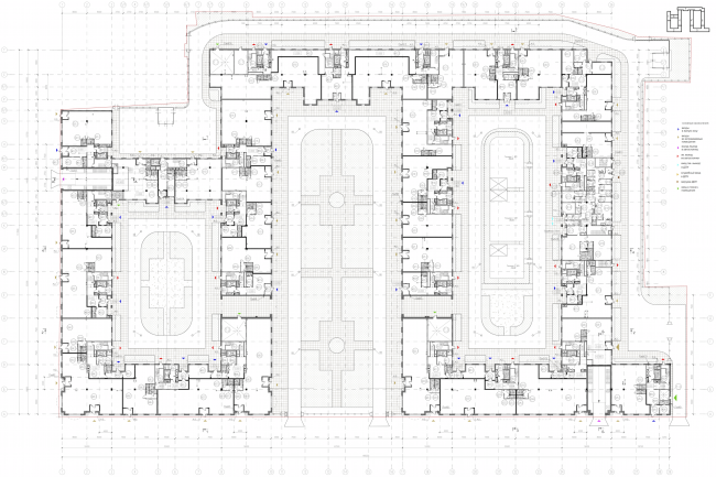
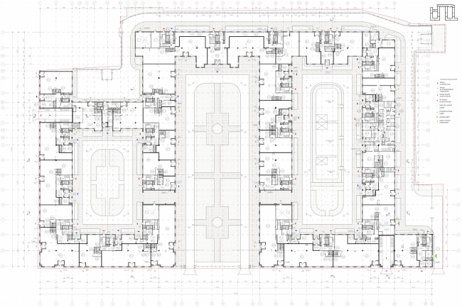
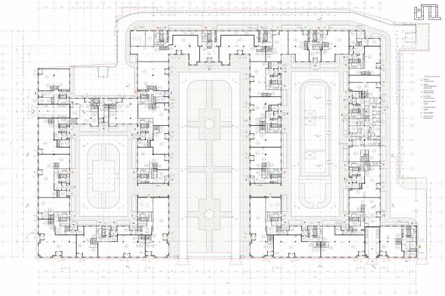
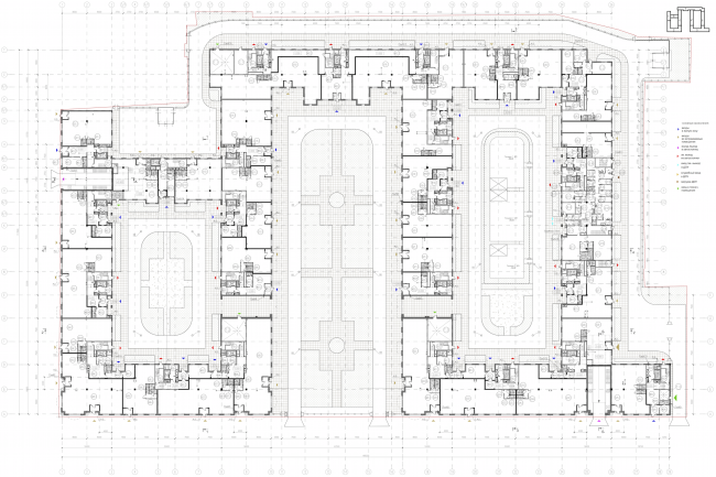
Многоквартирный дом со встроенными помещениями в Басковом переулке. Проект, 2013. План 1 этажа
Многоквартирный дом со встроенными помещениями в Басковом переулке. Проект, 2013. План 1 этажа
© Евгений Герасимов и партнеры
Многоквартирный дом со встроенными помещениями в Басковом переулке. Проект, 2013. Развертка © Евгений Герасимов и партнеры
Многоквартирный дом со встроенными помещениями в Басковом переулке. Проект, 2013. Развертка © Евгений Герасимов и партнеры

Теперь о русском стиле: в Петербурге его немного, он в большей мере принадлежит церковному строительству и в целом не совсем такой, поэтому прямого прототипа дому Евгения Герасимова мы здесь не найдем, хотя похожих примеров на периферии сознания крутится много, даже кажется, что где-то уже есть дом очень похожий, вот прямо такой; для историзм эта иллюзия скорее похвальна. Авторы указывают три прообраза: Фёдоровский городок в Царском селе, московский Ярославский вокзал и московские же Верхние торговые ряды, то есть ГУМ. Их влияние понятно, к примеру, в каждом есть разного рода башни с шатрами, а в ГУМе они выстроены также симметрично перед входом. От Фёдоровского городка – самого петербургского из названных образцов, – заимствована самая красивая часть: ковер рельефов, подсмотренных Покровским у Георгиевского собора Юрьева-Польского. В проекте Евгения Герасимова резьба превращается в контррельефы – углубленные силуэты сказочных птиц, и именно они образуют узорчатую пену на фасадах. Тут напрашивается и другая, не названная авторами аналогия: доходный дом архитектора Леона Кравецкого в конце Чистопрудного бульвара, покрытый владимиро-суздальскими кринами и львами.

Но есть одна тонкость. В число прообразов, указанных Евгением Герасимовым, попало два дома неорусского стиля начала XX века (вокзал и Фёдоровский городок), а один, ГУМ – псевдорусского, конца XIX века – а ведь это вещи, если присмотреться, различные. Так и архитектура «Русского дома» балансирует на грани трех источников: псевдо-, нео- и современной архитектуры.

От «псевдо» – парадная симметрия, увлечение образом терема от бриллиантового руста до пёстрой кровли с мансардными окнами; дробление плоскости: окнами, тягами, орнаментом. Вспомним «классический» дом Игумнова, дом французского посольства в Москве или доходный дом Никонова в Петербурге на Колокольной. Но есть еще один прообраз из середины XIX века – романтические замки Европы, к примеру, замок Новайнштайн в Баварии, замок-диснейленд, сказка, построенный в честь романтической музыки Вагнера. Или Шверинский замок в Померании. Если посмотреть на них, многое становится понятным: преувеличенно-тонкие башни, острые кровли, белый цвет, любовь к романским окошкам-бифориям, объединенным одной аркой. Все эти элементы по отдельности встречаются много где, а вот бравурный рост формы – пожалуй, позволит нам считать романтические замки одним из источников авторского вдохновения, возможно, не вполне отрефлексированного. Что, впрочем, совершенно естественно для русского стиля: мало того, что в своих поисках национальной идентичности он отталкивался от идей романтизма и псевдоготики (он даже с нее и начался), но и сами русские прообразы, те же рельефы владимиро-суздальской Руси, не чужды романского, то ли южно-швейцарского, то ли северо-итальянского духа; оттуда же и бифории, унаследованные, впрочем, и неорусским стилем.
Многоквартирный дом со встроенными помещениями в Басковом переулке. Проект, 2013. Фасад © Евгений Герасимов и партнеры
Многоквартирный дом со встроенными помещениями в Басковом переулке. Проект, 2013. Фасад © Евгений Герасимов и партнеры

За неорусский стиль начала XX века в этом доме отвечают ковровые рельефы, вдохновленные Покровским; трактовка бифориев, «прижатых» общей аркой – такие были распространены в 1910-е годы; щипцы, открытые к плоскости фасада; колонны-кубышки в основании угловых башен – родственницы приземистых, хтонических колонн северного модерна. Воспоминанием о собственно модерне становятся эркеры угловых башен – гладкие, нарисованные по строгой дуге, с вкраплениями аккуратных квадрифолиев, которые напоминают о «романском» доме в Ковенском переулке, в десяти минутах ходьбы от Баскова: его Евгений Герасимов построил для того же заказчика ЛСР. Любопытно, чего в «Русском доме» нет – совершенно нет наличников «штучного набора», происходящих из русского XVII века и равно любимых и Шехтелем, и Покровским, и Померанцевым.
Многоквартирный дом со встроенными помещениями в Басковом переулке. Проект, 2013. Фасад © Евгений Герасимов и партнеры
Многоквартирный дом со встроенными помещениями в Басковом переулке. Проект, 2013. Фасад © Евгений Герасимов и партнеры

И наконец, современная трактовка формы тоже не исчезает: первые пять этажей расчерчены основательной равномерной сеткой широких каменных полос с орнаментальной сердцевиной, равномерной, не подчиненной тектонике и даже – из-за того, что в каждую клеточку вставлено по бифорию – тяготеющей к горизонтальным пропорциям. Вспоминается проект Евгения Герасимова для конкурса на «Царев сад» в Москве – выигравший, к слову сказать. Проект, в котором Евгений Герасимов взял пробу «допетровской стилистики», теперь развитой в «Русском доме». Двухэтажные эркеры тоже выглядят вполне современно. В итоге – конечно, если приглядываться, – возникает ощущение «реконструкции наоборот»: мы знаем много доходных домов разных стилей с настроенными в тридцатые годы верхними этажами, мы привыкли к ним. А здесь имитирована обратная ситуация – как будто бы к дому современной «орнаментальной стилистики» пристроили нео-русские башни, и достроили сверху пару, а где-то и больше этажей «теремного вида». В этой архитектуре можно увидеть сюжет ретро-развития – как будто стиль изменился, и теперь на современные, пусть консервативные дома настраивают этажи в стиле столетней давности. Это прорастание орнаментальной современности в историзм – рефлексия самого себя – наверное, самая интересная особенность проекта.
Многоквартирный дом со встроенными помещениями в Басковом переулке. Проект, 2013 © Евгений Герасимов и партнеры
Многоквартирный дом со встроенными помещениями в Басковом переулке. Проект, 2013 © Евгений Герасимов и партнеры

К приведенному вееру аналогий – а практически каждый дом Герасимова, решенный в духе историзма, содержит, как правило, два-три слоя, а не однозначную стилизацию – можно добавить еще две. Первая – со сталинским проспектом. Неорусский стиль стремился к асимметрии, ища в древнерусской архитектуре пасторально-сказочную народную душу. Две башни перед длинным двором не таковы, они совершенно парадны и напоминают начало многих проспектов, проспекта Мира, например, в Москве, или площадь Гагарина. Сложно сказать, откуда он берется, но этот слой сталинского ар-деко нередко проявляется в домах Герасимова, возможно, оживленный масштабом зданий. Другой аналоги тоже не избежать, хотя от нее хочется скорее оттолкнуться: в современной российской практике уже имеется довольно-таки большой опыт псевдорусского стиля, в основном в церковном строительстве, но там копирование, как правило, точнее и масштаб не тот. Но есть еще так называемый дворец Алексея Михайловича и «Измайловский теремок» – квинтэссенция теремного направления в нашем строительстве. Так вот, от них дом Евгения Герасимова отличается сильно: он намного лаконичнее, более собран и чист, хотя бы белизной. Он намного ближе к образцам модерна, если вглядеться, и упомянутая «современная» основа, клетчатый каркас, не дают ему слиться с выплеском абсолютного кича, столь опасным в наше время. Хотя ценители модернистского минимализма могут и не увидеть разницы, тем не менее, она есть.

В остальном дом снабжен всем, что полагается современными нормами элитного жилья: в нижние этажи одного из дворовых корпусов встроен детский сад; машинам запрещен доступ во дворы, а горожанам вход в главный партерный двор, наоборот, разрешен; в нижних этажах кафе и магазины, квартиры оборудованы блоками для кондиционеров, дабы не портить фасады. Внутренняя отделка помещений и коридоров сочетает русские, византинирующие, классические и современные мотивы. Колонны, мрамор, натуральное дерево, барельефы и гипсовая лепнина – всё здесь призвано рождать ощущение роскоши. Основной цвет комплекса – белый – доминирует и в интерьерах.
Многоквартирный дом со встроенными помещениями в Басковом переулке. Проект, 2013 © Евгений Герасимов и партнеры
Многоквартирный дом со встроенными помещениями в Басковом переулке. Проект, 2013 © Евгений Герасимов и партнеры

Словом, этот дом – во многих отношениях эксперимент; не так много сейчас встречается жилых комплексов в неорусском стиле, да и в портфолио Евгения Герасимова этот дом – еще один шаг к новому опыту, увлекательный пример освоения новой страницы в томе «историзма». Кроме того, здесь удивительным образом удалось достичь баланса между уважением к контексту и смелостью самовыражения. Авторы не стали маскировать новый объект под фоновую историческую застройку, а сделали его доминантой небольшого переулка. В этом, конечно, был риск, но в данном случае он представляется оправданным. Доминирующей роли нового объекта способствовал, в первую очередь, сам масштаб территории, который позволил – что важно – создать здесь общественную зелёную зону. Сформированный вокруг неё крупный, цельный и яркий ансамбль разбивает характерную для эпохи неостилей однообразно-дробную структуру застройки. Авторы смело и увлечённо соревнуются с историческими соседями, не скрывая юный возраст нового здания, но и не выпячивая его, отдавая дань уважения предшественникам, но и отнюдь не забывая о себе. 
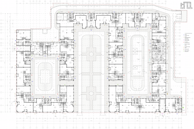
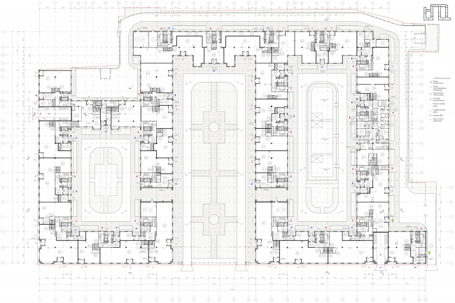
Многоквартирный дом со встроенными помещениями в Басковом переулке. Проект, 2013. План 5 этажа © Евгений Герасимов и партнеры
Многоквартирный дом со встроенными помещениями в Басковом переулке. Проект, 2013. План 5 этажа © Евгений Герасимов и партнеры