Размещено на портале Архи.ру (www.archi.ru)

11.09.2015

Без стилизации

Юлия Тарабарина
Объект:
Жилой комплекс на улице Льва Толстого (ЖК «Литератор»)
Адрес:
Россия, Москва. улица Льва Толстого, вл. 27/3
Интерьеры общественных зон жилого комплекса «Литератор»
Адрес:
Россия, Москва. ул. Льва Толстого, вл. 23/7, стр.1
Архитектор:
Игорь Шварцман
Мастерская:
BUZON
АМ Сергей Киселев и Партнеры
Компания «ЦинКо РУС» («ZinCo»)
Авторский коллектив:
И.З. Шварцман (руководитель авторского коллектива), А.В. Медведев (ГАП), М.Б. Серебряников.

Закончено строительство ЖК «Литератор» в Хамовниках: архитекторы сделали его принципиально современным, в частности, отказавшись от парадного фасада в пользу осмысления имманентных особенностей кирпичной и белокаменной кладки.

Жилой комплекс на улице Льва Толстого. Фотография © Михаил Серебряников, «Сергей Киселев и Партнеры»
Жилой комплекс на улице Льва Толстого. Фотография © Михаил Серебряников, «Сергей Киселев и Партнеры»

Мы уже рассказывали о проекте жилого комплекса «Литератор» в Хамовниках: компания «Сергей Киселев и Партнеры» спроектировала его по заказу «Галс-Девелопмент» на месте старого пивоваренного завода при пересечении улиц Россолимо и Льва Толстого. Участок достаточно обширен для центра Москвы – около двух гектаров, но углублен в пространство дворов и практически со всех сторон окружен сохраняемыми постройками: один корпус завода, самый старый, невысокий и с трубой, отделяет комплекс от парка музея Льва Толстого; другой – трехэтажное здание конца XIX века, вытянут вдоль улицы имени великого писателя; третий – Институт напитков, построенный в конце семидесятых и с тех пор изрядно пообтрепавшийся, формирует линию улицы Россолимо. Появление за этими разномастными кулисами нового элитного жилого комплекса – почти незаметно: на красной линии он манифестирует себя лишь двумя небольшими корпусами, аккуратно встроенными в разрывы городской ткани.
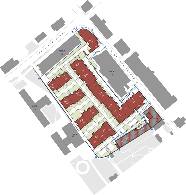
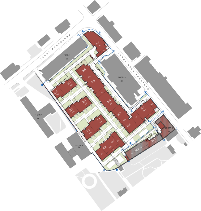
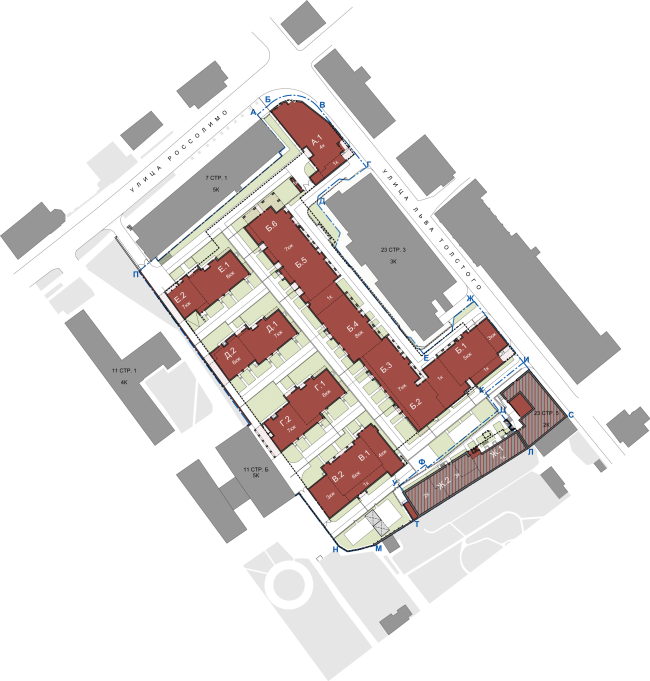
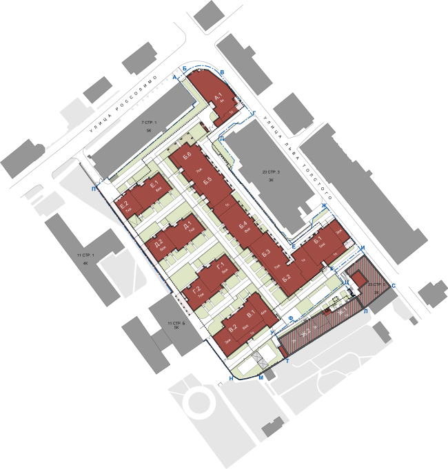
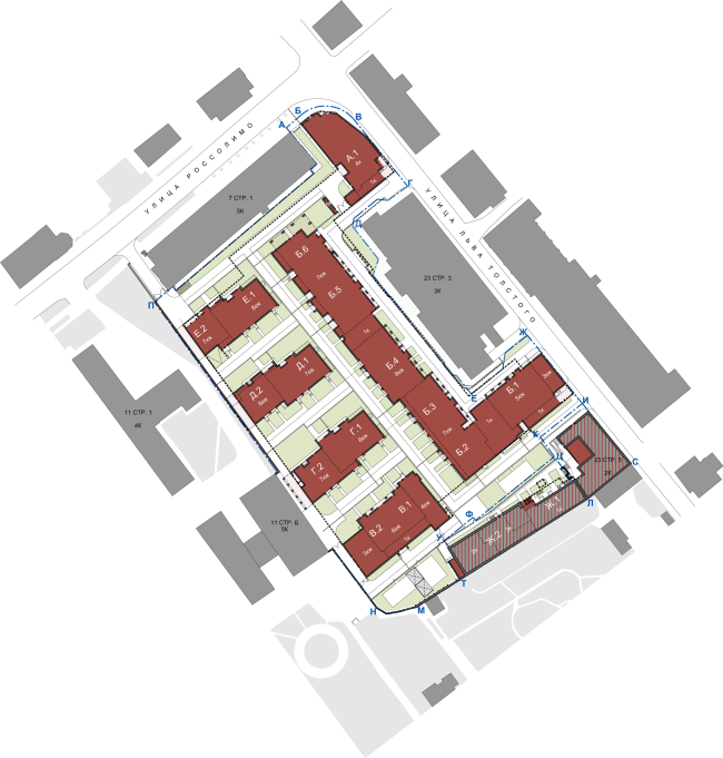
Жилой комплекс на улице Льва Толстого. Генеральный план © «Сергей Киселев и Партнеры»
Жилой комплекс на улице Льва Толстого. Генеральный план © «Сергей Киселев и Партнеры»
Жилой комплекс на улице Льва Толстого © «Сергей Киселев и Партнеры»
Жилой комплекс на улице Льва Толстого © «Сергей Киселев и Партнеры»
Жилой комплекс на улице Льва Толстого. Вид двора комплекса на сохраненный корпус пивоваренного завода. Фотография © Михаил Серебряников, «Сергей Киселев и Партнеры»
Жилой комплекс на улице Льва Толстого. Вид двора комплекса на сохраненный корпус пивоваренного завода. Фотография © Михаил Серебряников, «Сергей Киселев и Партнеры»

По словам главного архитектора проекта Алексея Медведева, двумя главными задачами авторов были: уместить максимум полезной площади в рамки ограничений – а здесь, рядом с усадьбой Толстого, они достаточно строгие, – и «избежать пошлости», навеиваемой все тем же элитно-центральным расположением и близостью музея. Действительно, архитектура проекта геометрична и сдержанна в деталях. Между тем девелопер все равно называет ее на риелторском сайте «современной классикой». С чем во многом можно и согласиться: комплекс, хотя и лишенный намеков на исторический декор, примыкает к тому каменно-кирпичному направлению, которое пришло в Москву из Берлина и за прошедшие десять-пятнадцать лет стало общепризнанным идеалом застройки цезур исторических районов. Такие здания как правило сочетают облицовку из юрского известняка, любимца городской архитектуры двухтысячных – с различными видами необычного кирпича, причем если юрский камень может быть обычным и играет роль фона, то кирпич нередко определяет идентичность здания: он то черный, то серый, то шершавый, то рельефный. В корпусах «Литератора» все именно так и есть: архитекторы намеренно выбрали не коричневый кирпич, к которому Москва привыкла уже в конце 2000-х, а насыщенно-красный. Получившийся цвет все равно коричневат, но достаточно живописен и попадает в палитру улицы, образованную фабричными зданиями конца XIX века.

Более того, самые любопытные сюжеты архитектуры «Литератора» построены именно на вариациях кирпичной облицовки. Кирпич шершав, в нем отчетливо видна примесь песка и складки глиняного «теста», кладка равномерно разбавлена пережженными фиолетовыми вкраплениями, призванными, как и все вышеперечисленное, придать стене рукотворность сродни исторической. Но базовым набором современного ретро-кирпича авторы не ограничиваются.
Жилой комплекс на улице Льва Толстого. Фотография © Михаил Серебряников, «Сергей Киселев и Партнеры»
Жилой комплекс на улице Льва Толстого. Фотография © Михаил Серебряников, «Сергей Киселев и Партнеры»
Жилой комплекс на улице Льва Толстого. Фотография © Михаил Серебряников, «Сергей Киселев и Партнеры»
Жилой комплекс на улице Льва Толстого. Фотография © Михаил Серебряников, «Сергей Киселев и Партнеры»

Так как комплекс вписан – или, как говорят архитекторы, буквально-таки втиснут – в пространство дворов, то в нем начисто отсутствует главная гордость любой традиционалистской архитектуры: парадный фасад. Даже если бы хотелось, для него (почти) не было места. Но так как одной из целей было остаться в рамках современной образности, то вместо гордой репрезентативной композиции комплекс выходит на улицу несколькими проездами и двумя совсем небольшими корпусами. Один из них, обращенный к офисному центру «Строганов», минималистично прост: его оживляют лишь редкие вставки белесых кирпичей, похожие на блики солнечных зайчиков (их поверхность затерта чем-то светлым). Напоминающие о весеннем солнце штрихи светлых кирпичей встречаются и на внутренних корпусах.

Второе здание из выходящих на улицу – угловой корпус «А», он берет на себя роль главного акцента, так как наиболее любопытен. Корпус обращен к перекрестку улиц Толстого и Россолимо, просторному и почти не оформленному, и новое здание чутко реагирует на его урбанистическую незавершенность. Его угловой фасад поворачивает по параболе, но форма не округлая, а граненая, и кроме того, кирпичи не меняют направления вслед за плоскостями стен: они выстраиваются «пилой», вначале робко, а затем показывают широкие плоскости и углы, намекая на то, что они – вовсе не плоский облицовочный ригель и даже не бруски, а благородная плинфа. Что, конечно, иллюзия: для фактурной части использован специальный кирпич, а в остальных местах – ригель.
Жилой комплекс на улице Льва Толстого. Нежилой корпус на углу улиц Толстого и Россолимо. Фотография © Михаил Серебряников, «Сергей Киселев и Партнеры»
Жилой комплекс на улице Льва Толстого. Нежилой корпус на углу улиц Толстого и Россолимо. Фотография © Михаил Серебряников, «Сергей Киселев и Партнеры»
Жилой комплекс на улице Льва Толстого. Угловой корпус. Фрагмент. Фотография © Михаил Серебряников, «Сергей Киселев и Партнеры»
Жилой комплекс на улице Льва Толстого. Угловой корпус. Фрагмент. Фотография © Михаил Серебряников, «Сергей Киселев и Партнеры»
Жилой комплекс на улице Льва Толстого. Угловой корпус. Фрагмент. Фотография © Михаил Серебряников, «Сергей Киселев и Партнеры»
Жилой комплекс на улице Льва Толстого. Угловой корпус. Фрагмент. Фотография © Михаил Серебряников, «Сергей Киселев и Партнеры»

Итак, там, где стены скошены, кирпич не следует за их плоскостью, а ершится углами. Так выглядят иные колонны в полуразрушенной усадьбе – но там-то слетела штукатурка, а здесь так и задумано. Фактически, в угловом корпусе архитекторы провели операцию, которую можно назвать деконструкцией фасада: оставили фасад намеренно незаконченным, как будто он, подобно многим итальянским храмам – ну к примеру Сан-Лоренцо во Флоренции – не дождался облицовки. Тему подхватывают тонкие коробки белокаменных рамок окон, вставленные в рыхлую толщу кирпича немонолитно, как ждущие облицовки и украшения. Но нет. Именно таким, без кожи, ему и задумано быть.

Топорщение кирпича – полная антитеза парадному фасаду – становится практически манифестом архитектуры «Литератора». Это фасад-вывеска, исполненный с долей не лишенной артистизма незаконенности. На южном торце корпуса «Б», обращенном к детской площадке и старому зданию пивоварни, тема незавершенности продолжается: здесь стена решена в виде мягко нарисованной штрабы, что тоже обозначает разрыв, слом кладки. Такая фактура возникает еще на нескольких торцах, обозначая уже внутренние «разрывы», между корпусами; полоскам вторят пятна кирпичных решеток – тоже средовая деталь, заимствованная у забора соседнего НИИ глазных болезней (забор не исключено, что потом и снесут, а отраженный мотив останется).
Жилой комплекс на улице Льва Толстого. Фрагмент с кирпичной решеткой. Фотография © Михаил Серебряников, «Сергей Киселев и Партнеры»
Жилой комплекс на улице Льва Толстого. Фрагмент с кирпичной решеткой. Фотография © Михаил Серебряников, «Сергей Киселев и Партнеры»
Жилой комплекс на улице Льва Толстого. Фотография © Михаил Серебряников, «Сергей Киселев и Партнеры»
Жилой комплекс на улице Льва Толстого. Фотография © Михаил Серебряников, «Сергей Киселев и Партнеры»
Жилой комплекс на улице Льва Толстого. Фасад с полосками, похожими на штрабу Фотография © Михаил Серебряников, «Сергей Киселев и Партнеры»
Жилой комплекс на улице Льва Толстого. Фасад с полосками, похожими на штрабу Фотография © Михаил Серебряников, «Сергей Киселев и Партнеры»

Незавершенность стыковочных, обращенных вовне частей ансамбля выглядит как декларативный жест, связанный с осмыслением места комплекса в городе: его родственности и одновременно чужеродности осваиваемому пространству. Здания – странники, их как будто откуда-то вырезали и перенесли сюда, и остались сломы. Впрочем, послание зашифровано: если просто скользить взглядом, идя мимо, то можно без раздумий любоваться игрой света и тени на необычной кирпичной фактуре.

И все же комплекс – прежде всего элитное жилье, в нем есть и пентхаусы с террасами на крышах, и двухуровневые квартиры. Тонкости контекстуальных смыслов для него не главное, и внутри, там, где ослабевают городские ограничения, корпуса становятся ощутимо крупнее, выше, строже и респектабельнее. Белокаменные и кирпичные объемы чередуются и врастают друг в друга, образуя то ризалиты, то впадины, оживляясь группами глубоких лоджий и рядами прозрачных балконов. Балка длинного корпуса «Б» тянется вдоль красной линии внутренней улочки, параллельной улице Льва Толстого. Ее оживленный асимметричными ризалитами фасад хорошо виден в разрывах застройки и тоже играет представительскую роль – по-своему, из второго ряда. Длинный дом отгораживает от прохожих и гуляющих пространство внутренних дворов с тремя короткими поперечными корпусами, чьи первые этажи прорезаны анфиладой высоких проездов на длинных «ногах», хорошо видной с улицы Россолимо. Архитекторы говорят, что проще было поставить в глубине второй длинный корпус; но они пошли другим путем, раздробив дворы и протянув через них не материальную, а пространственную ось. Внутрь войти нельзя: охрана придирчиво следит за покоем будущих жильцов элитного комплекса, прогуляться можно только по улочке вдоль корпуса «Б».
Жилой комплекс на улице Льва Толстого. Фотография © Михаил Серебряников, «Сергей Киселев и Партнеры»
Жилой комплекс на улице Льва Толстого. Фотография © Михаил Серебряников, «Сергей Киселев и Партнеры»
Жилой комплекс на улице Льва Толстого. Фасад корпуса-балки. Фотография © Михаил Серебряников, «Сергей Киселев и Партнеры»
Жилой комплекс на улице Льва Толстого. Фасад корпуса-балки. Фотография © Михаил Серебряников, «Сергей Киселев и Партнеры»

Архитектура внутри комплекса также не лишена нотки деконструкции, оживляющей массивы камня и кирпича. Во-первых, окна в кирпичных стенах обрамлены тонкими белокаменными рамками, которые вовсе не стремятся слиться заподлицо с плоскостью, а выглядят как вставленные с массив «короба» из каменных плит, с такой же плитой-подоконником. Во-вторых, кирпичные массивы прорезаны то широкими полосами камня, то рельефными линиями тонкой решетки, которая в нижнем этаже превращается в заполненную кирпичом крупную сетку, провоцируя игру в ассоциации – как будто витрины или даже корбюзеанские «ноги дома» заложили кирпичом. Словом, каменно-кирпичная стилистика последних лет срастается в этом доме с более ранними, не исчерпанными в девяностые, вариациями на темы модернистской деконструкции, штрихами для облегчения каменных объемов.
Жилой комплекс на улице Льва Толстого. Фотография © Михаил Серебряников, «Сергей Киселев и Партнеры»
Жилой комплекс на улице Льва Толстого. Фотография © Михаил Серебряников, «Сергей Киселев и Партнеры»
Жилой комплекс на улице Льва Толстого. Фотография © Михаил Серебряников, «Сергей Киселев и Партнеры»
Жилой комплекс на улице Льва Толстого. Фотография © Михаил Серебряников, «Сергей Киселев и Партнеры»
Жилой комплекс на улице Льва Толстого. Фотография © Михаил Серебряников, «Сергей Киселев и Партнеры»
Жилой комплекс на улице Льва Толстого. Фотография © Михаил Серебряников, «Сергей Киселев и Партнеры»

Архитекторы «СКиП» также разработали дизайн входных вестибюлей – первоначально лаконичный, из дерева и камня, но затем по просьбе заказчика авторы добавили в проект «литературности», тоже, впрочем, умеренно. Стойка ресепшна исписана курсивом, стены – из такого же камня, что и фасады, покрыты живописно разбросанными нишами с деревянными рамками заполнение которых: цветы, фотографии, что угодно – остается на совести управляющей компании или жильцов. Темноватый цвет дерева перекликается с оконными рамами во всем доме, а кожа кресел усиливает литературность, напоминая мебель соседней усадьбы Толстого.
Интерьеры общественных зон жилого комплекса «Литератор» © Архитектурная мастерская «Сергей Киселев и Партнеры»
Интерьеры общественных зон жилого комплекса «Литератор» © Архитектурная мастерская «Сергей Киселев и Партнеры»

Благородный лаконизм культурных кодов, однако, показался заказчику маловат – и на обращенном во двор «Литератора» торце институтского комплекса нарисовали картину духовно-патриотического содержания, с русичем в лаптях и волком. Часть жильцов элитного комплекса, также как и архитекторы, продолжают надеяться, что произведение удастся убрать.

Но вернемся к архитектуре комплекса. Она получилась и лаконично-современной, и контекстуальной. Хамовники – место элитное, но исторически дискретное, не образовавшее цельного и плотного городского пространства, как и значительная часть Москвы, «большой деревни»: здесь были усадебные сады, деревянные дома, потом кирпичные фабрики. Одна палата осталась даже от Хамовного двора XVII века, сейчас она окружена скверами с американским кленом, подделками исторических домов и расставленными по диагонали брежневскими башнями. Корпуса «Литератора» аккуратно врастают в это нетвердое окружение, усиливая свой характер к центру, ядру комплекса, и «растворяясь» по краям.

Кроме того, совсем рядом, на другой стороне улицы Толстого находится фабрика «Красная роза», реконструированная под офисный центр по проекту других архитекторов, но того же бюро «Сергей Киселев и Партнеры»: фасады «Литератора» не слишком заметно, но все же перекликаются с асимметрией офисного корпуса «Морозов», выстраивая в дополнение к контекстуальному дискурсу связи, которые можно были бы назвать родственными – между разными проектами одной мастерской. Да, «СКиП» построили в Москве достаточно много, чтобы реагировать и на свои произведения тоже. 
Жилой комплекс на улице Льва Толстого. Угловой корпус. Фотография © Михаил Серебряников, «Сергей Киселев и Партнеры»
Жилой комплекс на улице Льва Толстого. Угловой корпус. Фотография © Михаил Серебряников, «Сергей Киселев и Партнеры»
Жилой комплекс на улице Льва Толстого. Фотография © Михаил Серебряников, «Сергей Киселев и Партнеры»
Жилой комплекс на улице Льва Толстого. Фотография © Михаил Серебряников, «Сергей Киселев и Партнеры»
Жилой комплекс на улице Льва Толстого. Фотография © Михаил Серебряников, «Сергей Киселев и Партнеры»
Жилой комплекс на улице Льва Толстого. Фотография © Михаил Серебряников, «Сергей Киселев и Партнеры»
Жилой комплекс на улице Льва Толстого. Фотография © Михаил Серебряников, «Сергей Киселев и Партнеры»
Жилой комплекс на улице Льва Толстого. Фотография © Михаил Серебряников, «Сергей Киселев и Партнеры»
Жилой комплекс на улице Льва Толстого. Фотография © Михаил Серебряников, «Сергей Киселев и Партнеры»
Жилой комплекс на улице Льва Толстого. Фотография © Михаил Серебряников, «Сергей Киселев и Партнеры»
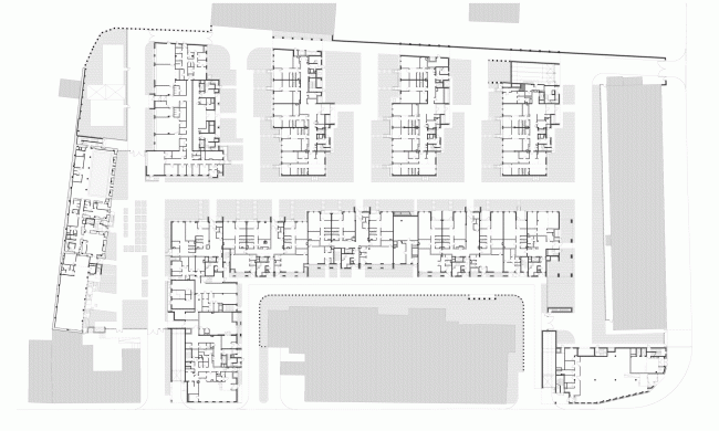
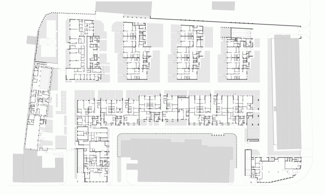
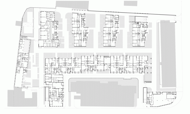
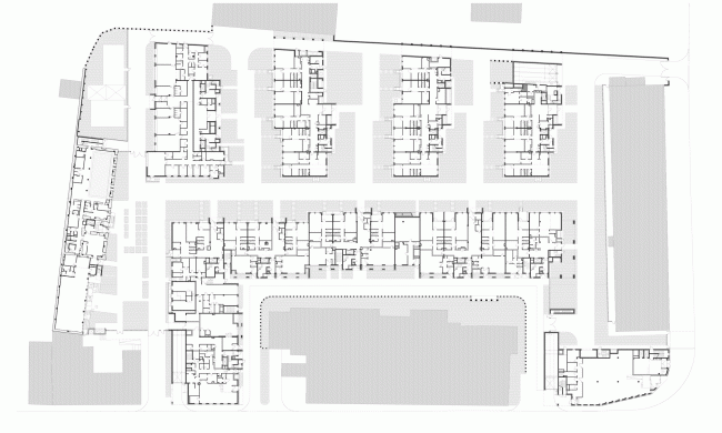
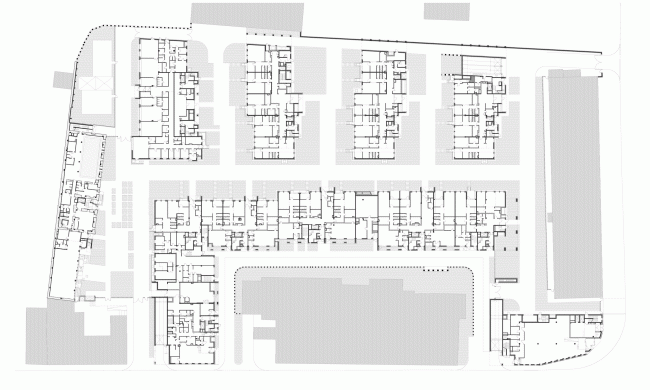
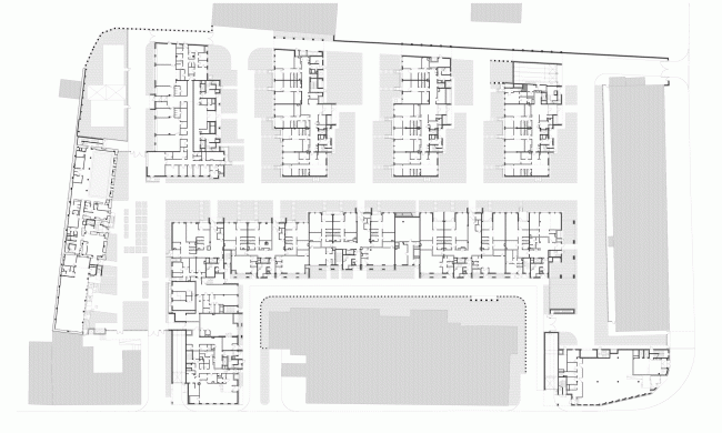
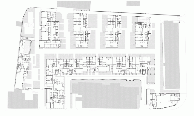
Жилой комплекс на улице Льва Толстого. План 1 этажа © «Сергей Киселев и Партнеры»
Жилой комплекс на улице Льва Толстого. План 1 этажа © «Сергей Киселев и Партнеры»
Жилой комплекс на улице Льва Толстого. Разрезы © «Сергей Киселев и Партнеры»
Жилой комплекс на улице Льва Толстого. Разрезы © «Сергей Киселев и Партнеры»
Жилой комплекс на улице Льва Толстого. Разрезы © «Сергей Киселев и Партнеры»
Жилой комплекс на улице Льва Толстого. Разрезы © «Сергей Киселев и Партнеры»