Размещено на портале Архи.ру (www.archi.ru)

06.11.2015

Пикселизация Мытной

Алла Павликова
Объект:
Многофункциональный комплекс sky house на Мытной улице
Адрес:
Россия, Москва. улица Мытная, вл. 40-44
Архитектор:
Александр Скокан
Валерий Каняшин
Мастерская:
АБ «Остоженка»
Авторский коллектив:
А.Скокан, В.Каняшин, М.Кудряшов, Е.Гейченко-Белоусова, М.Матвеенко, при участии: М.Дехтяр

Недалеко от Шуховской башни, в окружении уже существующих новых ЖК, завершается строительство башен Sky House, покрытых отчасти прозрачной, отчасти – по-осеннему пёстрой пиксельной кожей.

Многофункциональный комплекс на Мытной улице © АБ «Остоженка»
Многофункциональный комплекс на Мытной улице © АБ «Остоженка»

Район, расположенный к северу от Шуховской башни и прилегающих к ней рабочих кварталов, в новейшее время ощутимо прирос новыми, масштабными жилыми комплексами. В середине 2000-х по адресу Шабловка, 23 архитекторы «Остоженки» построили пять башен «Созвездия Капитал-1». Восточнее, на Мытной улице, примерно тогда же завершилось строительство «Английского квартала» по проекту Михаила Белова. Участок, на котором сейчас завершается строительство многофункционального, хотя преимущественно жилого, комплекса Sky House («Небесный дом»), расположен между этими двумя ж/к, по правой стороне Мытной улицы. Здания построены на месте нескольких, к тому времени полуразрушенных, корпусов завода «Красный пролетарий» вокруг стадиона «Труд», некогда принадлежавшего тому же заводу. Таким образом, перед нами еще и пример реорганизации промзоны. К началу 2000-х стадион уже был основательно заброшен; он зарос сорняками, а поперек поля даже перебросили трубу надземной теплотрассы.
Многофункциональный комплекс на Мытной улице. Ситуационный план © АБ «Остоженка»
Многофункциональный комплекс на Мытной улице. Ситуационный план © АБ «Остоженка»

Проектирование началось больше десяти лет назад, в 2003 году, и то время сохранять стадион не планировалось. Архитекторы, имея возможность занять всю площадку, предложили соединить дома небольшой высоты – до девяти этажей, в замкнутую композицию сродни римской арене, выстроенной по периметру внутреннего двора. Компенсировать утрату футбольного поля предлагалось за счёт создания спортивного кластера внутри стилобата: с площадкой для мини-футбола, фитнес-клубом, универсальным спортивным залом и бассейном. Кроме того, в жилой комплекс включили офисы – идея, по тем временам инновационная, стала широко популярной в Москве лишь позднее.

Проект понравился и заказчику, и городу. Однако через некоторое время городские власти приняли решение сохранить «Труд», один из старейших московских стадионов, модернизировав его для использования в качестве тренировочного футбольного поля. Разумеется, весь проект пришлось разрабатывать заново – в других границах, габаритах и площадях. Лишившись солидной части территории для застройки, комплекс резко вырос в высоту – с девяти до почти тридцати этажей, и сместился вглубь участка. Как рассказывает один из авторов проекта Валерий Каняшин, первоначально архитекторы планировали восстановить линию застройки, ликвидировав «провал» стадиона строительством невысокого офисного корпуса по красной линии. Позднее, проникнувшись историей места, пришли к выводу, что город привык к существованию курдонера с маленьким сквером за старым довоенным забором. Построить здесь дом – лишить место его истории. В итоге вместе со стадионом сохранили сквер и отреставрировали забор. Офисный центр присоединился к высоким жилым башням комплекса в глубине участка.
Многофункциональный комплекс на Мытной улице. Развертка по Мытной улице. На фоне видны башни «Созвездия Капитал-1», построенного «Остоженкой» раньше © АБ «Остоженка»
Многофункциональный комплекс на Мытной улице. Развертка по Мытной улице. На фоне видны башни «Созвездия Капитал-1», построенного «Остоженкой» раньше © АБ «Остоженка»

Ядром финальной композиции комплекса стал всё тот же стадион без трибун; слегка потерявший в размерах, он окружен разновеликими зданиями. Длинный офисный центр повышающийся по мере приближения к высотным домам, расположился в глубине вдоль его протяжённой границы. Четыре жилые башни тесно встали в северной части участка, заняв собой всего лишь около гектара, треть участка. Трапециевидные в плане, похожие друг на друга башни равномерно, но свободно расставлены на стилобате, подкова которого раскрывается к Мытной улице. Между тем за кажущейся ненавязчивой легкостью живописной расстановки объемов скрыты месяцы работы. Валерий Каняшин объяснил, что помимо сложностей, связанных с обеспечением норм инсоляции на весьма стеснённом участке, следовало учесть все возможные видовые точки, причём даже самые дальние. Скажем, в перспективе улицы Вавилова, расположенной на значительном расстоянии от Мытной, башни не должны были накладываться на купола Донского монастыря. И это только один из примеров. Высотки вращали вокруг оси, сдвигали, меняли местами, понижали и повышали. Последний вариант устроил всех, включая будущих жильцов, так как визуальный дефицит «воздуха» и открытых пространств снаружи изнутри квартир не ощущается. Найденная конфигурация домов и грамотные планировки квартир обеспечили жильцам виды на город. Соседние здания из окон практически не видны.
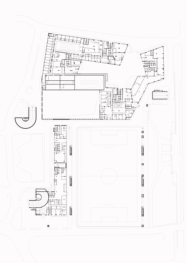
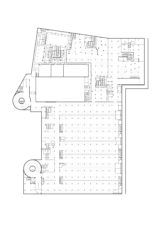
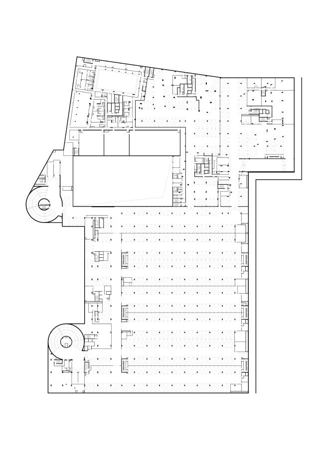
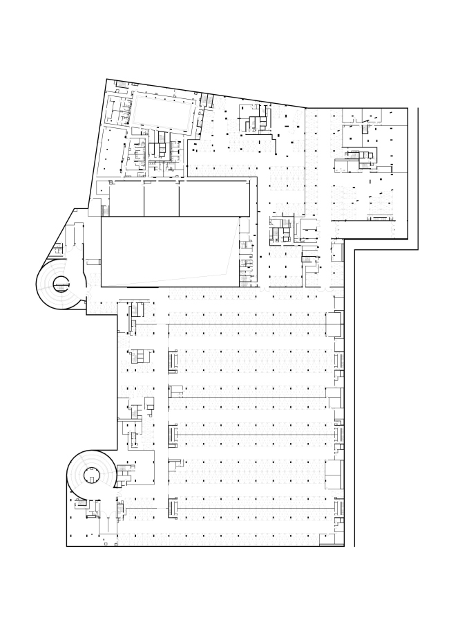
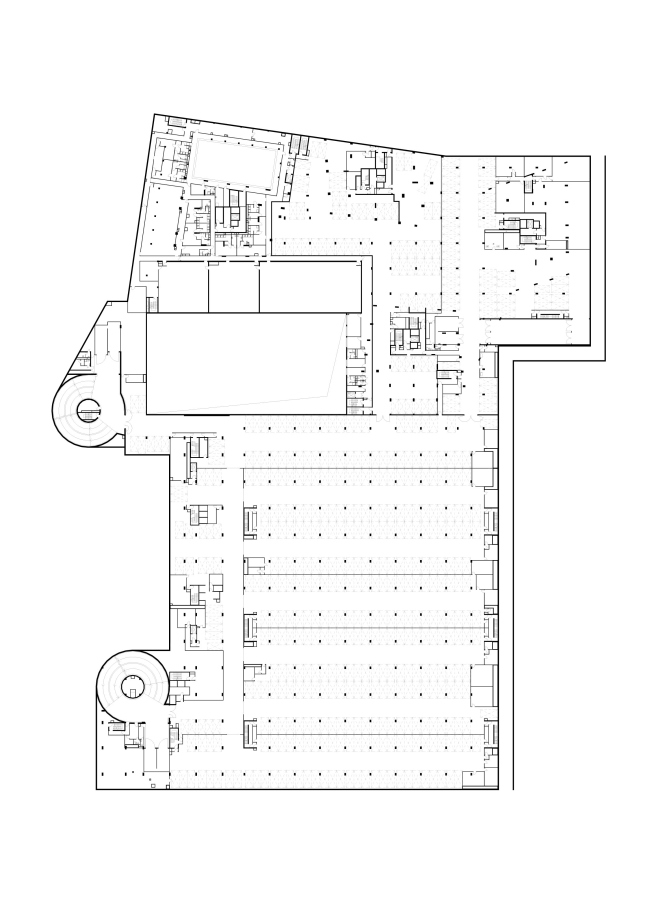
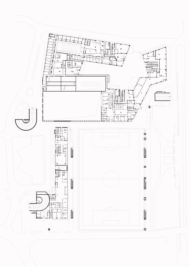
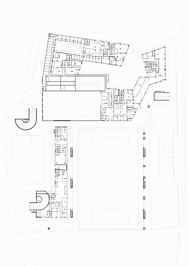
Многофункциональный комплекс на Мытной улице. план 1 этажа © АБ «Остоженка»
Многофункциональный комплекс на Мытной улице. план 1 этажа © АБ «Остоженка»
Многофункциональный комплекс на Мытной улице © АБ «Остоженка»
Многофункциональный комплекс на Мытной улице © АБ «Остоженка»

Несмотря на то, что в основании комплекс отступает от красной линии улицы, верхушки башен эту линию так или иначе фиксируют, формируя коридор из фасадных стен. В изломе массивных домов, склонившихся в сторону Мытной и похожих на столбы-опоры гигантского моста, читается стремление авторов проекта восстановить градостроительную справедливость. Конечно, они должны были сохранить историю, деликатно отойти в сторону. Этот подход близок «Остоженке». Но нельзя забывать и об их умении работать с существующим контекстом, тонко чувствовать город и находить верные градостроительные решения. Наклонные летящие «флажки» верхушек башен при движении по улице рождают особое напряжение. Цезура же стадиона в перспективе не очевидна.

Отыскав наилучший вариант композиции архитекторы «Остоженки», несмотря на масштаб комплекса, решили наделить его контрастными яркими фасадами. Надо сказать, что в первоначальном варианте для зданий была подобрана холодная палитра цветов с преобладанием серых и голубых оттенков, подходящим к риелторскому названию Sky House. Но в конечном счете небесные оттенки сменило насыщенное многоцветье теплого «осеннего» колорита – песочная охра, бордово-коричневый и черные пиксели тонированного стекла. Такое решение, по словам Валерия Каняшина, связано с невозможностью соединить всю разноликую застройку улицы в одну градостроительную концепцию. Противоречивое соседство уцелевших старых домов с новыми, в числе которых были и ранний комплекс «Остоженки», и «Английский квартал» Михаила Белова, и панельное жильё из серии «П-44», не позволяло привязаться к чему-то одному, не вступив в противоречие с другими. «Мы решили не оглядываться на окружение, ничего не повторять. Новый комплекс – это контрастный жест. Башни всё равно выглядят слишком высокими и заметными, их нельзя было спрятать, потому мы сделали их до конца другими», – объясняет Валерий Каняшин.
Многофункциональный комплекс на Мытной улице © АБ «Остоженка»
Многофункциональный комплекс на Мытной улице © АБ «Остоженка»

Тем не менее, вертикально-ориентированная пиксельная мозаика фасадов по-своему вписывается в окружающую среду и реагирует на нее, осмысляя городской пейзаж с позиций картины пуантилиста: теплые красные и желтые панели ближе к соседним домам сгущаются, а вверху, к небу становятся более разреженными. Когда выглянет солнце и небо отразится в стекле, попытка масштабных башен раствориться в пространстве станет более убедительной – хотя мы знаем, что замаскировать такие объемы полностью нельзя никакими оптическими приемами, но помимо растворения пиксельная раскраска служит и другой задаче – почти совершенно сбивает ритм окон, превращая дом из рационального клетчатого массива в скульптурный объем. «Остоженка» уже имеет некоторый опыт в в такого рода артистической маскировке: достаточно вспомнить, к примеру, ЖК «Весна» на Киевском шоссе или даже лучше – ЖК «Панорама» на Пресне, весь состоящий из сложной мозаики тонированного по-разному стекла, отражающего и дробящего картины города. Здесь – немного другая история, дома скорее пестры, чем слитны, и между тем стекло использовано разной степени прозрачности, добавляющее импрессионистический картине оттенков: утром она одна, вечером другая. ГАП всех трех комплексов – Валерий Каняшин, что дает некоторые основания для разговоров о развитии почерка. Сейчас пиксельная раскраска – уже не новость, а силами ДСК начинает надоедать, но вспомним, что ЖК «начинался» давно, да и сейчас выглядит свежо, вырезанным из какой-то пестрой решетчато-алюминиевой материи.
Многофункциональный комплекс на Мытной улице © АБ «Остоженка»
Многофункциональный комплекс на Мытной улице © АБ «Остоженка»
Многофункциональный комплекс на Мытной улице © АБ «Остоженка»
Многофункциональный комплекс на Мытной улице © АБ «Остоженка»

История проекта – история преодоления: меняющиеся условия, требования города и заказчиков, которые тоже сменяли один другого – начинала проект компания «Капитал Групп», а завершала MCG; неприятие масштабов и колористики жителями, сомнения авторов и постоянные поиски компромисса. Рабочим проектированием и собственно реализацией занималась не «Остоженка», а «Моспроект», хотя авторы старались не упускать здание из виду. При всех сложностях затянувшегося процесса комплекс, спроектированный полтора десятка лет назад, отвечает требованиям сегодняшнего дня. Разве что квартиры по площади заметно превышают нынешний стандарт. В составе комплекса предусмотрительно объединены и общественные функции, и качественное благоустройство прилегающей территории и небольшого двора, куда автомобили могут въехать только для высадки пассажиров. В одной из башен разместился детский сад, объединённый мостом со стилобатом. На озелененной кровле стилобата – игровые и спортивные площадки, внутри него бассейн с 25-метровой чашей, большой универсальный спортивный зал, тиры, кружки, мини-гостиница, кафе, ресторан и магазины – словом, всё то, что обеспечивает качественную жизнь даже внутри плотной урбанизированной среды.
 
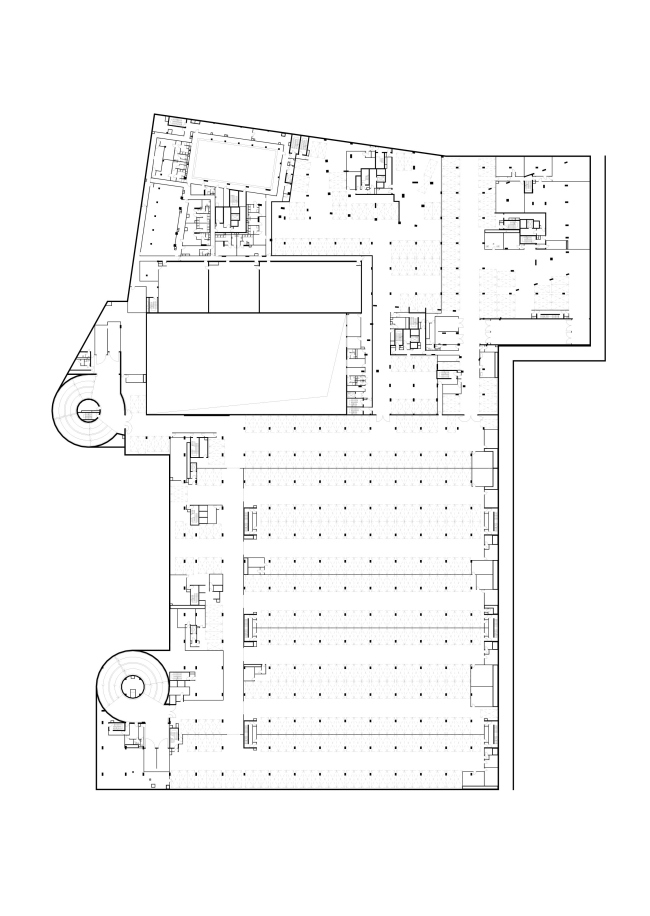
Многофункциональный комплекс на Мытной улице. План -1 этажа © АБ «Остоженка»
Многофункциональный комплекс на Мытной улице. План -1 этажа © АБ «Остоженка»
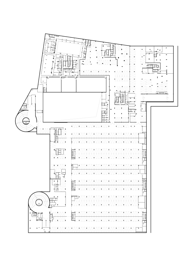
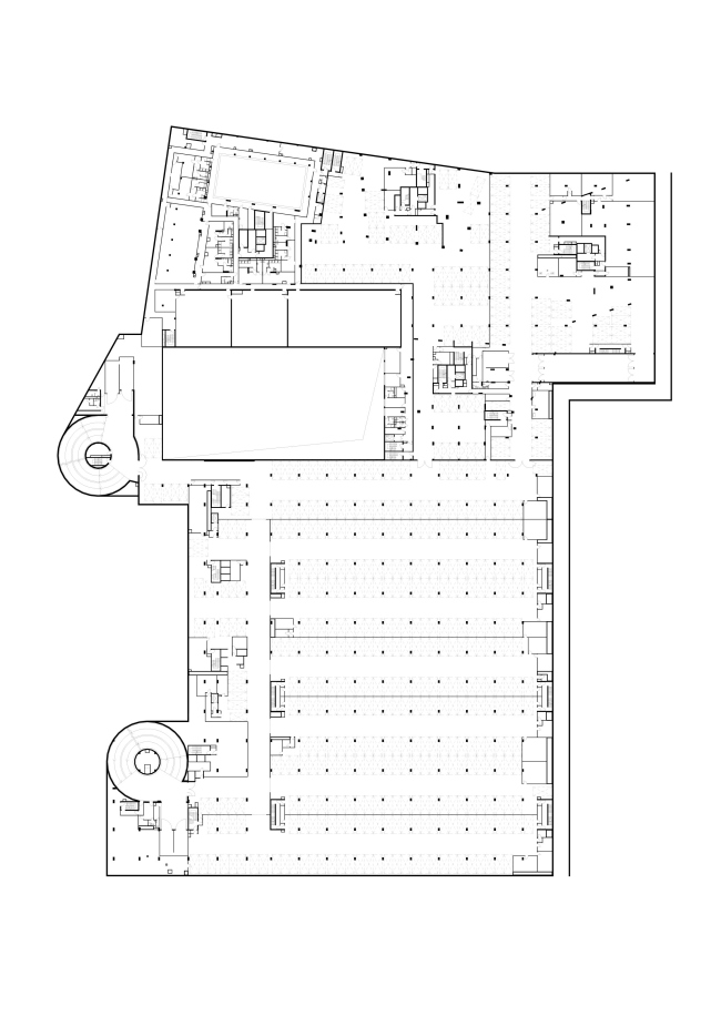
Многофункциональный комплекс на Мытной улице. План 0 этажа © АБ «Остоженка»
Многофункциональный комплекс на Мытной улице. План 0 этажа © АБ «Остоженка»
Многофункциональный комплекс на Мытной улице. Разрез © АБ «Остоженка»
Многофункциональный комплекс на Мытной улице. Разрез © АБ «Остоженка»
Многофункциональный комплекс на Мытной улице. Разрез © АБ «Остоженка»
Многофункциональный комплекс на Мытной улице. Разрез © АБ «Остоженка»