Размещено на портале Архи.ру (www.archi.ru)

25.06.2015

Архсовет Москвы–29

Алла Павликова
Объект:
ЖК Vander Park
Адрес:
Россия, Москва. Рублевское шоссе, д. 101-105
Реконструкция здания городской усадьбы Голицыных
Адрес:
Россия, Москва. ул. Волхонка, д. 14, стр. 5
Архитектор:
Эдзо Бинделс
Адриан Гёзе
Мастерская:
de Architekten Cie.
West 8
Проектное бюро АПЕКС
Авторский коллектив:
Архитекторы: Юрий Аввакумов, Георгий Солопов

На выездном заседании, состоявшемся в ГМИИ им. А.С. Пушкина, Архсовет не поддержал проекты реставрации усадьбы Голицыных и ЖК на Рублевском шоссе. Оба вопроса будут рассматриваться повторно.

Проект реставрации усадьбы Голицыных с ее приспособлением под Галерею искусства стран Европы и Америки XIX-XXI вв.

Комплексная реконструкция, реставрация и приспособление здания городской усадьбы Голицыных под Галерею искусства стран Европы и Америки XIX-XXI вв. по улице Волхонка. Северо-восточная сторона. Проект, 2015 © Театрпроект
Комплексная реконструкция, реставрация и приспособление здания городской усадьбы Голицыных под Галерею искусства стран Европы и Америки XIX-XXI вв. по улице Волхонка. Северо-восточная сторона. Проект, 2015 © Театрпроект

Проект реставрации усадьбы под нужды ГМИИ им. А.С. Пушкина совету представили его авторы Юрий Аввакумов и Георгий Солопов, начавшие работу с этим памятником архитектуры задолго до проведения закрытого конкурса на концепцию развития всего музейного комплекса. Напомним, что тогда победителем стал Юрий Григорян, и именно он сейчас занимается проектом реконструкции квартала.

Непростая история старого здания сделала работу над проектом чрезвычайно сложной. Аввакумов рассказал, что усадьба была построена в середине XVIII века по проекту петербургского архитектора Саввы Чевакинского. Это было одно из самых заметных зданий Москвы не только из-за своего яркого архитектурного облика, но еще и потому, что здесь работал первый публичный музей, открытый для посещения трижды в неделю. В 1774 усадьба была частично перестроена Матвеем Казаковым, а затем сохранялась в неизменном виде вплоть до 1929 года, когда в усадьбе располагалась Коммунистическая академия. Тогда сам усадебный дом лишился своего парадного фронтона и был надстроен на два этажа (автор надстройки неизвестен). В результате, некогда выразительное здание лишилось своих исторических черт и уже в таком виде дошло до нашего времени, когда встал вопрос об его реконструкции.
Комплексная реконструкция, реставрация и приспособление здания городской усадьбы Голицыных под Галерею искусства стран Европы и Америки XIX-XXI вв. по улице Волхонка. Фасад главного дома усадьбы Голицына. Архитектор М.Ф. Казаков. 1770е гг © Театрпроект
Комплексная реконструкция, реставрация и приспособление здания городской усадьбы Голицыных под Галерею искусства стран Европы и Америки XIX-XXI вв. по улице Волхонка. Фасад главного дома усадьбы Голицына. Архитектор М.Ф. Казаков. 1770е гг © Театрпроект

Основная идея авторов состояла в том, чтобы вернуть зданию его первоначальный исторический облик, созданный Чевакинским и Казаковым. Речь шла о первых двух этажах, где, согласно представленному проекту, появлялись утраченный фронтон и балюстрада. Что же касается советской надстройки, которая по документам также является частью памятника архитектуры, то, поскольку сносить или видоизменять эту часть нельзя, ее предлагается возвести заново из новых материалов, но с сохранением всех пропорций и деталей. Такое неоднозначное решение связано, во-первых, с большой изношенностью стен, не отвечающих требованиям современного музея, во-вторых, с необходимостью воссоздать балюстраду, для чего существующие стены будут несколько смещены вглубь. Кроме того, вместо прежде существовавших оконных проемов над центральным портиком устроят глухие ниши.

Сверху вся вновь возведенная надстройка, по замыслу авторов, накрывается одной большой стеклянной оболочкой. Как рассказал Георгий Солопов, конструкции стеклянного купола перекликаются с прозрачной кровлей основного здания ГМИИ, спроектированной Владимиром Шуховым. Авторы настаивают, что, «надевая» на здание оболочку, они не пытаются спрятать существующую архитектуру: скорее, это попытка дистанцироваться от событий 1929 года, когда здание сознательно, в соответствии с политическим заказом, было лишено всех усадебных признаков.
Комплексная реконструкция, реставрация и приспособление здания городской усадьбы Голицыных под Галерею искусства стран Европы и Америки XIX-XXI вв. по улице Волхонка. Стеклянный экран как рекламная установка. Проект, 2015 © Юрий Аввакумов, Георгий Солопов
Комплексная реконструкция, реставрация и приспособление здания городской усадьбы Голицыных под Галерею искусства стран Европы и Америки XIX-XXI вв. по улице Волхонка. Стеклянный экран как рекламная установка. Проект, 2015 © Юрий Аввакумов, Георгий Солопов

Помимо эстетического решения, оболочка формирует очень надежный двухконтурный фасад, включающий верхнее холодное остекление и теплый контур. Среди его преимуществ – и акустическая защита, и повышение эксплуатационных характеристик здания, энергосбережение и т.д. Учитывая, что стены надстройки, в отличие от усадебных, слишком тонки, усиление и утолщение их с помощью такого прозрачного кожуха кажется вполне оправданным. Это особенно важно, так как в залах предполагается экспонировать работы импрессионистов и постимпрессионистов из коллекций Щукина и Морозова, стоимость которой, по замечанию Аввакумова, в несколько раз превышает стоимость всех работ по перестройке здания. По требованию органов охраны памятников, стеклянную оболочку предполагается сделать временной, чтобы в случае полного неприятия такого решения населением или отрицательного влияния этого элемента на городскую среду, ее можно было удалить.

Дополнительный подземный этаж, появляющийся в новом проекте, отведен под музейное оборудование. Пространство первого этажа перестроено таким образом, чтобы освободить место для просторного вестибюля и, одновременно, сохранить помещения для экспозиционных залов. Открытые выставочные пространства третьего и четвертого этажей с высотой потолков 4–6 метров соединены большой лестницей-амфитеатром. Второй уровень отдан под парадные залы музея.
Комплексная реконструкция, реставрация и приспособление здания городской усадьбы Голицыных под Галерею искусства стран Европы и Америки XIX-XXI вв. по улице Волхонка. Макет. Проект, 2015 © Театрпроект
Комплексная реконструкция, реставрация и приспособление здания городской усадьбы Голицыных под Галерею искусства стран Европы и Америки XIX-XXI вв. по улице Волхонка. Макет. Проект, 2015 © Театрпроект
Комплексная реконструкция, реставрация и приспособление здания городской усадьбы Голицыных под Галерею искусства стран Европы и Америки XIX-XXI вв. по улице Волхонка. Макет. Проект, 2015 © Театрпроект
Комплексная реконструкция, реставрация и приспособление здания городской усадьбы Голицыных под Галерею искусства стран Европы и Америки XIX-XXI вв. по улице Волхонка. Макет. Проект, 2015 © Театрпроект

После доклада авторов проектов выступила Марина Лошак, директор ГМИИ им. А.С. Пушкина, которая поддержала их идеи планировки обновленного здания. Однако она призналась, что трактовка фасада вызывает у нее некоторые сомнения и выразила надежду, что взгляд профессионалов, в том числе – главного архитектора квартала Юрия Григоряна – поможет найти правильное решение.

Предваряя обсуждение, Андрей Баталов, член Федерального научно-методического совета по охране наследия, рассказал, что ранее проект был детально рассмотрен экспертами, которые вместе с авторами пытались найти компромиссное решение. Идея вернуть зданию его историческое начало была поддержана единогласно. Возможность заменить материалы, из которых выстроена советская надстройка, также была подтверждена. При этом эксперты настаивали на сохранении всех ее деталей: в противном случае, это будет рассматриваться как нарушение закона. Стеклянная оболочка – случай, с которым эксперты еще не сталкивались в своей практике, но, учитывая, что она подчеркивает древнее ядро здания, восприняли ее как допустимое решение. Единственным и неоспоримым условием стал временный характер этого сооружения – только в этом случае проект мог быть реализован в представленном варианте.
Комплексная реконструкция, реставрация и приспособление здания городской усадьбы Голицыных под Галерею искусства стран Европы и Америки XIX-XXI вв. по улице Волхонка. Существующее положение © Театрпроект
Комплексная реконструкция, реставрация и приспособление здания городской усадьбы Голицыных под Галерею искусства стран Европы и Америки XIX-XXI вв. по улице Волхонка. Существующее положение © Театрпроект

Члены совета выступлением Баталова были буквально сбиты с толку: зачем сначала сносить, а затем возводить в новых осях, да еще и с муляжами окон надстройку, которая особой исторической ценности не имеет? Сергей Кузнецов усомнился и в разумности создания стеклянного купола: «Не проще ли укрепить существующие стены так, чтобы они выдерживали необходимые нагрузки?». На это Юрий Аввакумов ответил, что любое изменение – толщины стен или же расположения окон – будет рассматриваться как новое строительство, и в рамках российского законодательства возможно только воссоздание. Но даже если допустить такую возможность, то кирпичная стена никогда не будет настолько эффективной. Окна же над портиком решено сделать слепыми исключительно для сохранения бесценной коллекции.

Юрий Григорян подчеркнул, что он с огромным уважением относится к авторам и их работе, но при этом ему непонятно такое яростное стремление разделить надстройку и усадебный дом. В образе существующего 4-этажного здания Григорян не видит ничего страшного: напротив, все москвичи привыкли воспринимать этот дом именно таким. Представленное решение – это попытка найти компромисс между авторским видением и необходимостью сохранения истории, и этот компромисс здесь, по мнению Григоряна, невозможен. «Предложенное решение было бы понятным, если бы речь шла об исторической части здания. Меня волнует, что под стеклянным колпаком прячется новодел. Сам же колпак очень красив. Я воспринимаю его как яркий авторский жест, которого слишком много для памятника архитектуры. Кроме того, я не верю в его временный характер», – заключил Юрий Григорян, полностью поддержав проект в части планировочных решений. Юрий Аввакумов с его суждением не согласился: «Мы сознательно уходили от каких-либо авторских жестов в этой работе. Речь не идет о самовыражение, но об эффективности, рациональности и сохранности безумно дорогой коллекции. Рассуждать о двухконтурном фасаде по крайней мере странно. В любом европейском городе этот прием используется очень активно и многократно подтвердил свою жизнеспособность. Что же касается временного характера купола, то это не наше решение».
Комплексная реконструкция, реставрация и приспособление здания городской усадьбы Голицыных под Галерею искусства стран Европы и Америки XIX-XXI вв. по улице Волхонка. Проектировщик: ООО «Театрпроект». Заказчик: ФГУ культуры «ГМИИ им. А.С. Пушкина»
Комплексная реконструкция, реставрация и приспособление здания городской усадьбы Голицыных под Галерею искусства стран Европы и Америки XIX-XXI вв. по улице Волхонка. Проектировщик: ООО «Театрпроект». Заказчик: ФГУ культуры «ГМИИ им. А.С. Пушкина»

Не удовлетворившись ответом автора, члены совета продолжили обсуждать абсурдность навязанного архитекторам решения по воссозданию надстройки. Евгений Асс, назвав работу очень сильной, предположил, что авторы стали заложниками двусмысленной позиции реставраторов. Асс уверен, что куда честнее и перспективнее было бы возвести новую, современную надстройку в легком облаке стеклянного экрана. Тут не выдержал Андрей Баталов, возмутившийся, что позицию экспертов назвали двусмысленной: «Речь не о позиции реставраторов, а о соблюдении закона». В дискуссию вступил главный архитектор города с вопросом о возможности пересмотра статуса надстройки. Баталов нехотя ответил, что возможность изменить реестровую запись имеется, но добиться пересмотра чрезвычайно трудно.

С большим сомнением к вновь возводимой конструкции отнесся и Андрей Гнездилов, убежденный, что охранный статус надо менять, чтобы не строить муляжей. Двоякое чувство проект вызвал и у Михаила Посохина, сделавшего вывод, что все манипуляции с надстройкой связаны с желанием музея сохранить имущественный фонд. Но стена, которая просвечивает сквозь придуманную Аввакумовым красивую конструкцию, Посохина раздражает – в этом есть определенная «нечистота». Ханс Штимманн поддержал коллег, заметив, что в результате реализации предложенного проекта получится сомнительный гибрид.
Комплексная реконструкция, реставрация и приспособление здания городской усадьбы Голицыных под Галерею искусства стран Европы и Америки XIX-XXI вв. по улице Волхонка. Проектировщик: ООО «Театрпроект». Заказчик: ФГУ культуры «ГМИИ им. А.С. Пушкина»
Комплексная реконструкция, реставрация и приспособление здания городской усадьбы Голицыных под Галерею искусства стран Европы и Америки XIX-XXI вв. по улице Волхонка. Проектировщик: ООО «Театрпроект». Заказчик: ФГУ культуры «ГМИИ им. А.С. Пушкина»

С диаметрально противоположным мнением выступили Владимир Плоткин и Сергей Чобан. Плоткин выразил уверенность, что представленная работа заслуживает похвалы: «Сложный охранный статус и взаимоисключающие требования любого архитектора могли поставить в тупик, но авторы нашли решение и справились с этим блестяще. Кровля – это действительно авторский жест, выполненный очень артистично, и этого не нужно стесняться. При этом проект корректно решает все задачи». Единственное сомнение у Плоткина вызвали легкосборные конструкции кровли. По его мнению, они должны быть постоянными.
Комплексная реконструкция, реставрация и приспособление здания городской усадьбы Голицыных под Галерею искусства стран Европы и Америки XIX-XXI вв. по улице Волхонка. Интерьер выставочного зала, 2 этаж. Проект, 2015 © Театрпроект
Комплексная реконструкция, реставрация и приспособление здания городской усадьбы Голицыных под Галерею искусства стран Европы и Америки XIX-XXI вв. по улице Волхонка. Интерьер выставочного зала, 2 этаж. Проект, 2015 © Театрпроект

Сергей Чобан ответил коллегам, что, конечно, можно попробовать поменять статус надстройки, но это почти невыполнимая задача. При этом у представленного проекта есть ясная философия. Восстанавливается первоначальный вид усадьбы, идеологически сохраняется появившаяся в начале прошлого века часть здания. Сверху накладывается третий, современный слой. Таким образом, авторы рассказывают историю дома, и в этом смысле их непременно надо поддержать – призвал коллег Чобан. По его мнению, если авторское решение будет сохранено и проект удастся реализовать именно в таком виде, город получит очень яркое сооружение. Другое дело, что в проекте плохо проработана техническая, конструктивная часть. В итоге, кровля будет сильно загрязняться и плохо стареть. Во избежание этого в рамках существующего архитектурного предложения следует разработать новое техническое решение. Но здесь основная проблема – в том, что в России, по словам Чобана, нет хороших специалистов, их надо приглашать из-за границы, что недешево, однако только в этом случае удастся в точности реализовать авторский замысел.
Комплексная реконструкция, реставрация и приспособление здания городской усадьбы Голицыных под Галерею искусства стран Европы и Америки XIX-XXI вв. по улице Волхонка. Интерьер выставочного зала, 4 этаж. Проект, 2015 © Юрий Аввакумов, Георгий Солопов
Комплексная реконструкция, реставрация и приспособление здания городской усадьбы Голицыных под Галерею искусства стран Европы и Америки XIX-XXI вв. по улице Волхонка. Интерьер выставочного зала, 4 этаж. Проект, 2015 © Юрий Аввакумов, Георгий Солопов
Комплексная реконструкция, реставрация и приспособление здания городской усадьбы Голицыных под Галерею искусства стран Европы и Америки XIX-XXI вв. по улице Волхонка. Интерьер выставочного зала, 4 этаж. Проект, 2015 © Театрпроект
Комплексная реконструкция, реставрация и приспособление здания городской усадьбы Голицыных под Галерею искусства стран Европы и Америки XIX-XXI вв. по улице Волхонка. Интерьер выставочного зала, 4 этаж. Проект, 2015 © Театрпроект

Выслушав членов совета, попросил слова Рустам Рахматуллин, присутствовавший среди зрителей в зале. Он привел в пример единственный реализованный в Москве проект, схожий с рассматриваемым: здание в Брюсовом переулке, реконструкцией которого занималось бюро «Рождественка». По словам Рахматуллина, сами авторы сегодня признают, что это был неудачный опыт возведения над историческим зданием контрастного, экспрессивного объема. Рахматуллин призвал вовсе отказаться от надстройки и восстанавливать только усадьбу. Понятно, что эта идея очень не понравилась Марине Лошак.
Комплексная реконструкция, реставрация и приспособление здания городской усадьбы Голицыных под Галерею искусства стран Европы и Америки XIX-XXI вв. по улице Волхонка. Проектировщик: ООО «Театрпроект». Заказчик: ФГУ культуры «ГМИИ им. А.С. Пушкина»
Комплексная реконструкция, реставрация и приспособление здания городской усадьбы Голицыных под Галерею искусства стран Европы и Америки XIX-XXI вв. по улице Волхонка. Проектировщик: ООО «Театрпроект». Заказчик: ФГУ культуры «ГМИИ им. А.С. Пушкина»

Итоги дискуссии попытался подвести Сергей Кузнецов. Он заметил, что это, пожалуй, самый сложный вопрос за весь период функционирования нового состава Архсовета. Также он признался, что, когда впервые увидел проект, он показался ему совершенно нежизнеспособным. Однако, выслушав авторов с их профессионализмом и невероятным даром убеждения, решил, что он все-таки может быть реализован. Сегодня масса вопросов возникает к технической стороне проекта. Кроме того, главный архитектор подчеркнул, что в ходе дискуссии было высказано слишком много сомнений, не позволяющих поддержать работу. Авторам он предложил два варианта развития проекта. Первый связан с попыткой пересмотра статуса надстройки, что позволит решить ее по-новому, сохранив стеклянный купол. Второй вариант – спокойно отнестись к существующему четырехэтажному объему и работать с конструкцией кровли.

Жилой комплекс на Рублевском шоссе
Проект жилого комплекса на Рублевском шоссе. Проектировщик: de Architekten Cie и проектное бюро АПЕКС. Заказчик: ГК «ПИК»
Проект жилого комплекса на Рублевском шоссе. Проектировщик: de Architekten Cie и проектное бюро АПЕКС. Заказчик: ГК «ПИК»

Крупный жилой комплекс планируется построить на пересечении Рублевского шоссе и Ярцевской улицы. Этот участок знаком нашим читателям, поскольку ранее на его застройку при поддержке МКА и с согласия заказчика ГК «ПИК» был проведен конкурс. Победу в нем одержал проект Сергея Скуратова, представляющий собой композицию из четырех лаконичных высоких башен. По ГЗК 2015 года разрешенная там высота сооружения уменьшалась со 140 до 100 метров при сохранении общей площади. Произошли и некоторые изменения внутри компании «ПИК». В итоге, застройщик от проекта Скуратова отказался, и вместо него были приглашено бюро de Architekten Cie из Нидерландов. В России адаптацией предложенной голландцами концепции занималась компания АПЕКС.

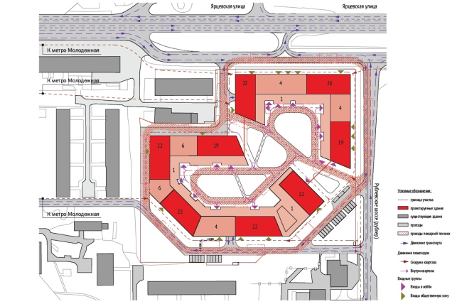
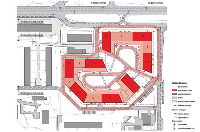
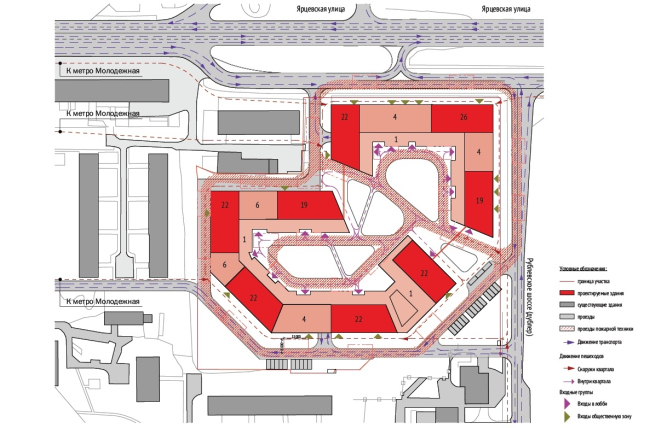
Согласно с новым предложением, на площадке сложной формы расположились две группы зданий, каждая из которых вырастает из общего невысокого основания. Обе группы развернуты таким образом, что внутри образуется почти замкнутый двор с качественным благоустройством, беговыми и вело- дорожками. Внутрь двора обращены первые этажи, занятые магазинами и кафе под навесами террас 2-го этажа. Многочисленные разновысотные башни надежно защищают дворовое пространство от шума двух ограничивающих участок автомагистралей. Кровля основания, возникающая в просветах между башнями, озеленена. Кроме того, на разных уровнях предусмотрено много открытых террас для жильцов квартир. Создаются они за счет существенной сдвижки массивных прямоугольных объемов зданий по горизонтали. Таким образом, формируются еще и эффектные консоли, достигающие четырех метров.
Проект жилого комплекса на Рублевском шоссе. Генплан.  Проектировщик: de Architekten Cie и проектное бюро АПЕКС. Заказчик: ГК «ПИК»
Проект жилого комплекса на Рублевском шоссе. Генплан. Проектировщик: de Architekten Cie и проектное бюро АПЕКС. Заказчик: ГК «ПИК»

Особое внимание в проекте уделено отделке фасадов. Основной материал – это клинкерный кирпич разных оттенков и фактур. Комбинаторика материала позволяет добиться выразительного рельефа стен, особенно в нижней части зданий. Цвет тоже меняется от основания к вершине – от темного до почти белого. Кроме сетки из кирпича, на фасадах выделяются светлые простенки и различающиеся по пропорциям оконные проемы.

Не дожидаясь оценки коллег, Сергей Кузнецов сразу попросил их воздержаться от сопоставления представленного проекта с конкурсным в виду серьезного изменения условий и требований к проекту. Также он заметил, что комплекс достаточно велик по массе, но в этой части города, расположенной ближе к МКАД, это допустимо. Тем более, что компания «ПИК» давно работает с этой территорий, и все знают стремление компании строить исключительно качественные объекты.
Проект жилого комплекса на Рублевском шоссе. Проектировщик: de Architekten Cie и проектное бюро АПЕКС. Заказчик: ГК «ПИК»
Проект жилого комплекса на Рублевском шоссе. Проектировщик: de Architekten Cie и проектное бюро АПЕКС. Заказчик: ГК «ПИК»

Несмотря на призыв главного архитектора, Ханс Штимманн мгновенно выразил большое сожаление по поводу утраченного конкурсного проекта, который он хорошо запомнил. По мнению бывшего главного архитектора Берлина, представленный проект на его фоне заметно проигрывает. Тем не менее, видно, что авторы решали конкретную, но непростую задачу организации жилья вблизи «автобана». В итоге, отгораживаясь от магистралей, комплекс выглядит слишком закрытым. «Стоило бы его развернуть к городу», – посоветовал Штимманн. Сергей Чобан, удостоверившись, что все авторские права голландцев соблюдены, предложил проект поддержать, хоть и, по собственному признанию, не увидел в нем ничего примечательного. Его пожелания касались террас, которые в процессе эксплуатации подвержены риску быть самовольно застроенными жильцами. Со вздохом, но все-таки поддержали проект Михаил Посохин и Андрей Гнездилов с формулировкой «дом как дом» и «что поделаешь, если сейчас так строят». Гнездилов, правда, вспомнил об ошибках представленного ему ранее генплана, но тут же оговорился, что к Архсовету это отношения не имеет.
Проект жилого комплекса на Рублевском шоссе. Проектировщик: de Architekten Cie и проектное бюро АПЕКС. Заказчик: ГК «ПИК»
Проект жилого комплекса на Рублевском шоссе. Проектировщик: de Architekten Cie и проектное бюро АПЕКС. Заказчик: ГК «ПИК»

В оппозицию с другими членами совета снова встал Владимир Плоткин, который, к слову, тоже принимал участие в вышеупомянутом конкурсе. Он признался, что ему всегда очень непросто критиковать работу коллег, но в этой ситуации у него нет другого выбора. Участок Плоткину давно знаком – и не из-за конкурса, а потому, что он каждый день проезжает мимо него на автомобиле. По словам архитектора, эта площадка великолепно расположена – с прекрасными дальними видами и ярким окружением. Сам проектируемый комплекс стоит на высоком холме, поэтому будет виден издалека. Все это в представленном проекте никак не учитывается. Главная ошибка – в градостроительном решении: здания отказываются реагировать на своих соседей и на город в целом. Кроме того, при не слишком большой площади в 100 000 м2 проект мог получить куда более изящное композиционное решение. Но здесь мы видим очень большую массу, и она плохо воспринимается как с близких, так и с дальних точек. Большая скученность зданий и преимущественно темный кирпич в отделке – все это, по мнению Плоткина, рождает довольно мрачный образ.

Мысль Плоткина подхватил Юрий Григорян, заметив, что теперь комплекс выглядит так, как будто в нем не 100 000 м2, а миллион. Также он предположил, что заказчик сознательно отменил результаты конкурса, чтобы дальше работать исключительно с западными архитекторами. К чему это привело? К тому, что вместо монообъемов мы получили «склад квадратных метров в виде кучи домов». Все это, по словам Григоряна, выглядит плохо, и это яркий пример того, как никакие принципы новой московской застройки, предложенные в МКА (квартальность, общественные первые этажи и т.д.), которые формально в этой работе соблюдены, не спасают проект и не делают подарка городу. Евгений Асс заметил, что дело не в национальности проектировщика, а в отношении архитектуры к контексту, и в этом проекте такого отношения нет.
Проект жилого комплекса на Рублевском шоссе. Фасады.  Проектировщик: de Architekten Cie и проектное бюро АПЕКС. Заказчик: ГК «ПИК»
Проект жилого комплекса на Рублевском шоссе. Фасады. Проектировщик: de Architekten Cie и проектное бюро АПЕКС. Заказчик: ГК «ПИК»

Сергей Кузнецов, закрывая заседание, отметил, что по данному вопросу мнения сильно разделились. В связи с этим он предложил передать все замечания непосредственно авторам – голландскому бюро de Architekten Cie – до выдачи АГР. Также Кузнецов предположил, что было бы неплохо пригласить авторов в Москву и выслушать их позицию. Пока же необходимо оставить нейтральное решение и ждать доработанной версии.