Размещено на портале Архи.ру (www.archi.ru)

09.06.2015

Результат – в процессе, процесс – в результате

Екатерина Ровнова
Объект:
Центр инновационного проектирования из дерева
Адрес:
Канада, None, Принс-Джордж.

Бюро Michael Green Architecture построило в канадском городе Принс-Джордж самое высокое в мире офисное здание из композитной древесины.

Центр инновационного проектирования из дерева. Фото: Ema Peter
Центр инновационного проектирования из дерева. Фото: Ema Peter

Майкл Грин, канадский архитектор и самый «медийный» популяризатор идеи высотного строительства из дерева, возвел 29,5-метровое офисное здание в городе Принс-Джордж в провинции Британская Колумбия. В проектирование и реализацию объекта были вовлечено 250 человек – от специалистов по лесозаготовкам и экологов до столяров, инженеров и дизайнеров.
Центр инновационного проектирования из дерева. Фото: Ema Peter
Центр инновационного проектирования из дерева. Фото: Ema Peter

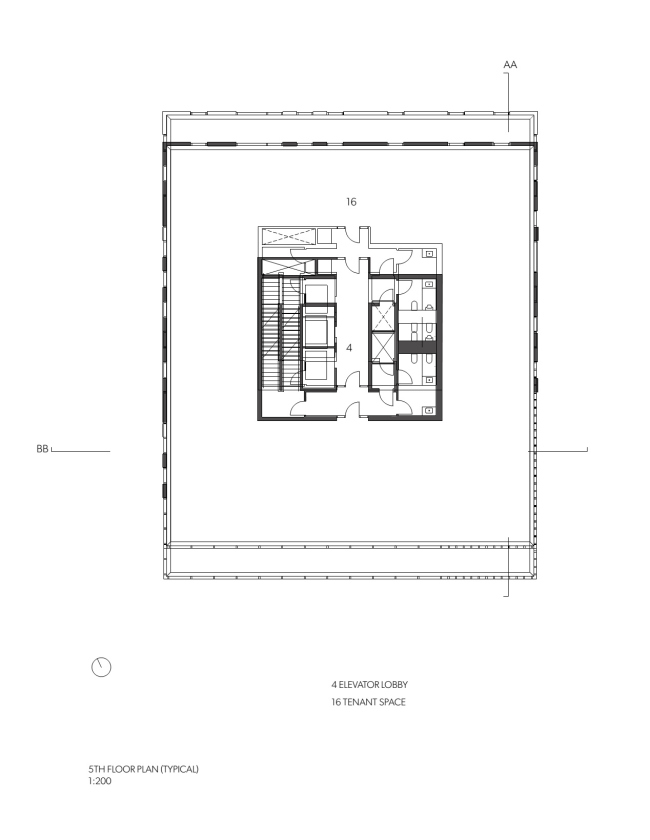
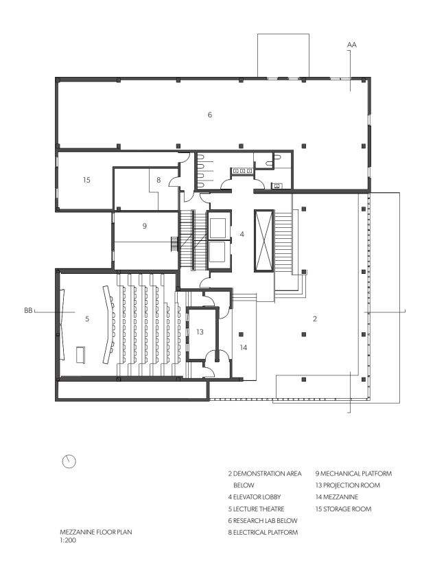
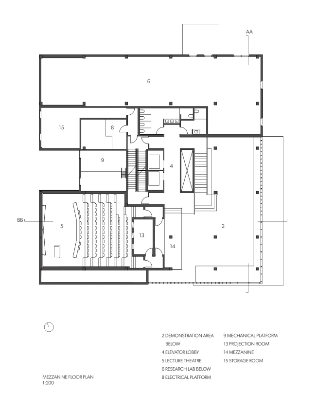
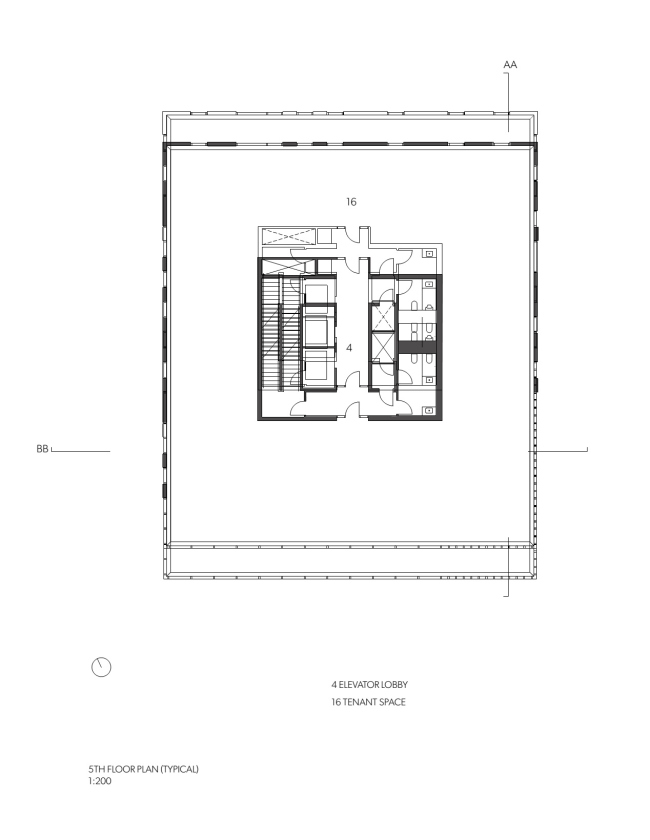
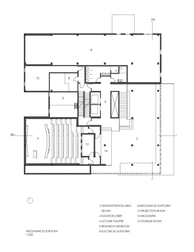
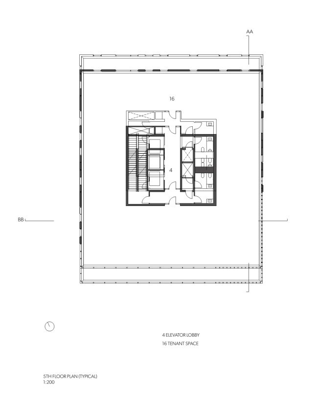
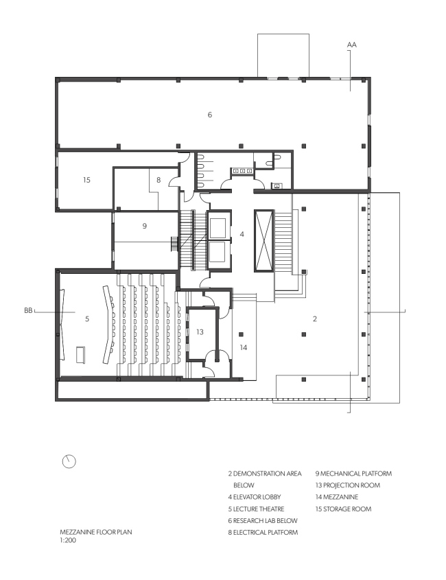
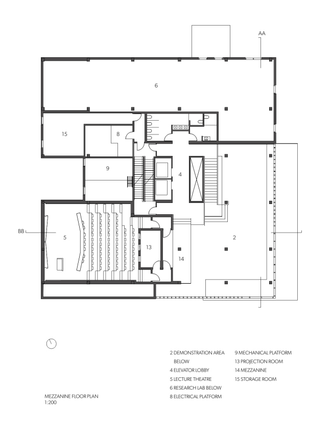
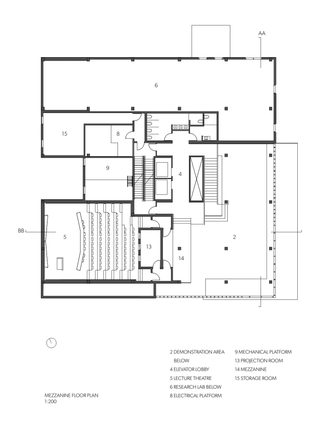
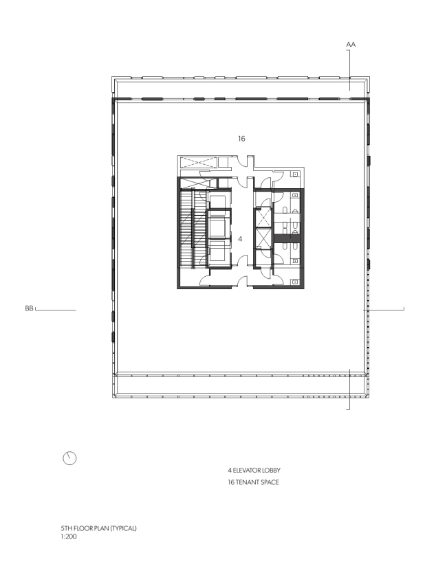
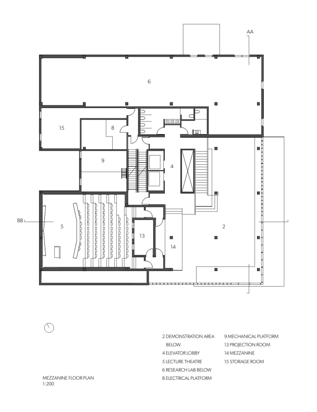
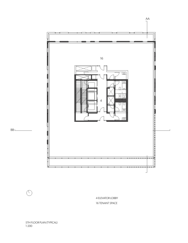
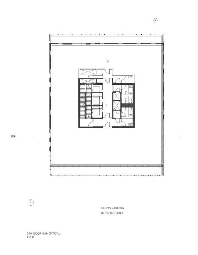
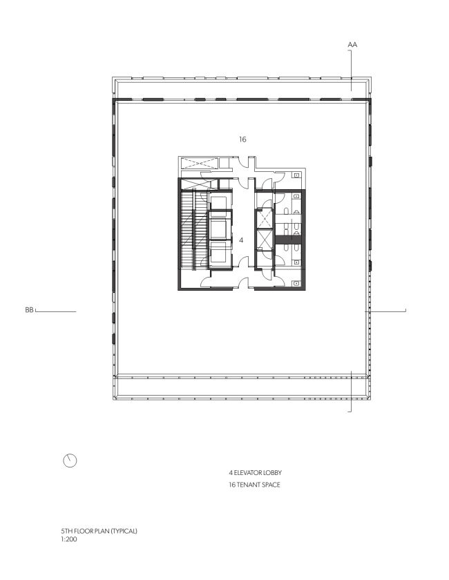
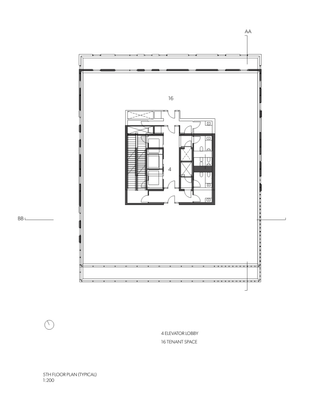
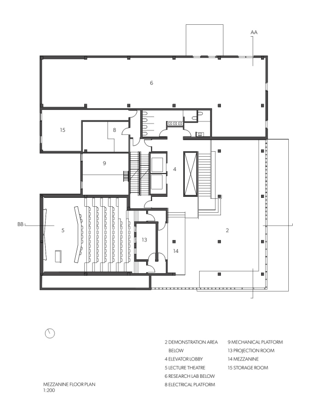
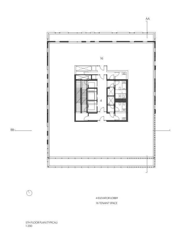
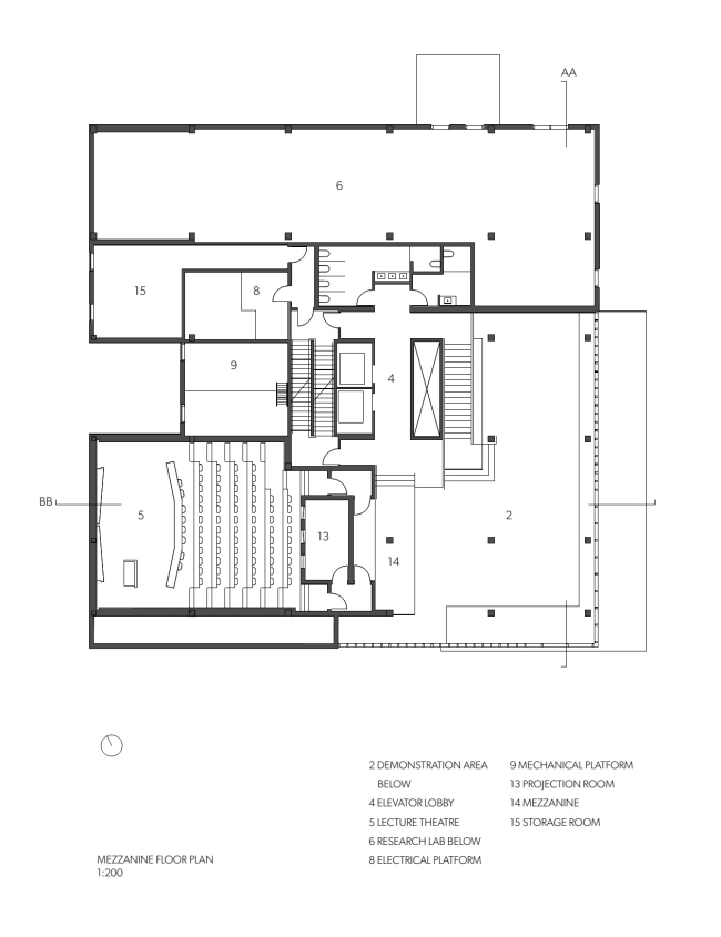
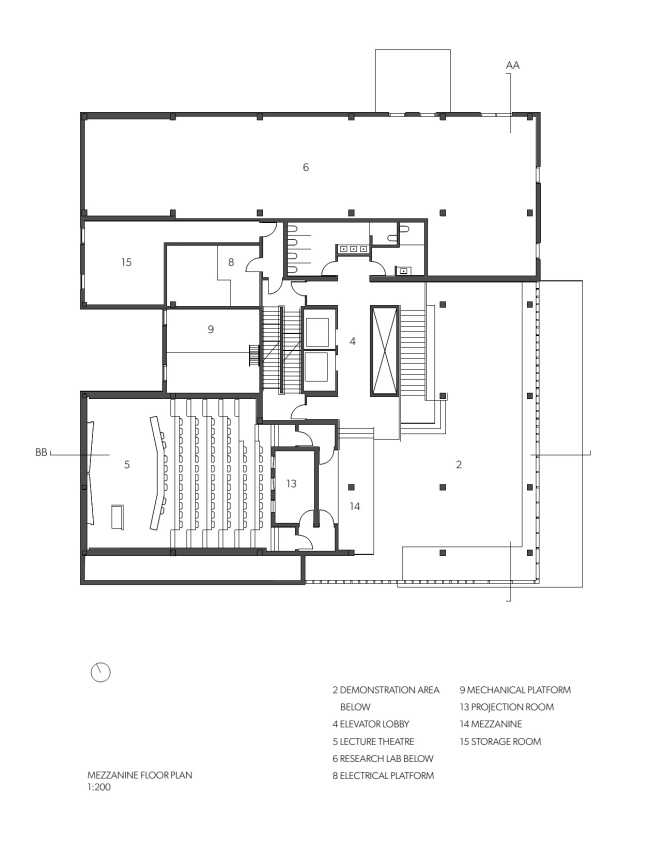
Получившийся в итоге 8-этажный Центр инновационного проектирования из дерева (Wood Innovation Design Centre) – это пространство именно для такой совместной работы; здесь собираются исследователи, проектировщики и инженеры, работающие над использованием строительного потенциала древесины. На 4820 м2 нового здания на нижних этажах располагается образовательный центр, где занимаются магистранты факультета интегрированного проектирования в древесине Университета Северной Британской Колумбии: на первом этаже находится открытое публике выставочное пространство, университетские исследовательские лаборатории, лекционный зал, на втором – учебные аудитории и терраса. Верхние этажи занимают офисы компаний, работающих в разных областях «древесной» индустрии.
Центр инновационного проектирования из дерева. Фото: Ema Peter
Центр инновационного проектирования из дерева. Фото: Ema Peter

Так, новое здание одновременно вмещает в себя «процесс», где сливаются теоретические и прикладные исследования, обучение, практика и непосредственная работа с материалом, и являет собой «результат» этого процесса, демонстрируя эстетические и конструктивные возможности многоэтажного строительства из древесины.
Центр инновационного проектирования из дерева. Фото: Ema Peter
Центр инновационного проектирования из дерева. Фото: Ema Peter

Несущий каркас здания – стоечно-балочная конструкция из клееной древесины (glued laminated timber), ядро жесткости, лестнично-лифтовые шахты – перекрестно-клееные панели (cross laminated timber), лестницы, навес над входом в здание и перекрытия – панели из клееного шпона (laminated veneer lumber) и брус из параллельно уложенных стружек (laminated strand lumber), ограждающие конструкции – сэндвич-панели из ориентированно-стружечной плиты (oriented strand board). Такая конструкция помогает достичь две основные цели проекта: она обладает необходимой несущей способностью и устойчивостью по отношению к боковым нагрузкам, а по сравнению с другими строительными материалами имеет необычайно долгий жизненный цикл: из-за отсутствия железобетона в наземной части здания деревянные элементы могут быть легко разобраны и использованы в других объектах.
Центр инновационного проектирования из дерева. Фото: MGA
Центр инновационного проектирования из дерева. Фото: MGA

Все колонны и основная доля балок – клееные, кроме балок над атриумом первого этажа, несущих основную нагрузку: они выполнены из PSL-бруса из параллельно уложенных стружек (parallel strand lumber). Крепление «ласточкиным хвостом» балки к колонне осуществляется специальным алюминиевым коннектором, вмонтированным заранее в заводских условиях: так упрощается процесс монтажа на строительном участке, а соединение получает огнезащиту за счет толщины деревянного элемента, со всех сторон окружающего металл.
Центр инновационного проектирования из дерева. Фото: Ema Peter
Центр инновационного проектирования из дерева. Фото: Ema Peter

Одна из сложностей, с которыми пришлось столкнуться в процессе реализации проекта, – это местный строительный кодекс, запрещающий строительство жилых зданий с деревянным каркасом выше 6-ти этажей и общественных – выше 4-х. Но для этого проекта было сделано исключение, когда во время проведения реальных испытаний авторы смогли доказать двум государственным комиссиям разных юрисдикций (города Принс-Джонс и провинции Британская Колумбия), что соединения CLT-панелей обладают необходимой огнестойкостью.



Традиционно древесину защищают методом полной или частичной инкапсуляции – покрытием деревянных элементов негорючими материалами, например, гипсовым штукатурным слоем, однако в этом здании было необходимо оставить деревянные поверхности открытыми, поэтому ради огнезащиты были увеличены все сечения: они стали намного превышать необходимые конструктивные размеры, зато появившийся дополнительный слой увеличил время сохранения целостности структуры при горении.
Центр инновационного проектирования из дерева. Изображение: MGA
Центр инновационного проектирования из дерева. Изображение: MGA

Визуально здание становится все более проницаемым по мере разворота к югу: от полностью непрозрачной стены на севере до сплошного остекления на южной. В условиях северного климата такой подход оптимизирует поступление естественного света и улучшает инсоляцию внутренних помещений. Наружные ограждающие конструкции – энергоэффективные сэндвич-панели из ориентированно-стружечных плит с теплоизоляционным слоем в сердцевине. Облицовка выполнена из кедрового сайдинга, большая часть которого была предварительно обуглена, за счет чего и получила свой черный цвет. Метод обугливания древесины – традиционная практика огне- и биозащиты в Финляндии, Японии и Швейцарии: теперь и в Северной Америке появилось здание, демонстрирующее эту технологию.
Центр инновационного проектирования из дерева. Изображение: MGA
Центр инновационного проектирования из дерева. Изображение: MGA

Прозрачные навесные стены выполнены из 3-слойного стекла, а для рам вместо привычного алюминия использован LVL-брус: специалисты утверждают, что это первая практика использования древесины при таких больших поверхностях остекления.
Центр инновационного проектирования из дерева. Изображение: MGA
Центр инновационного проектирования из дерева. Изображение: MGA

В сторону улицы здание раскрывается массивным навесом, поддерживаемым желтыми кедровыми колоннами. По словам Майкла Грина, задачей архитекторов было сделать здание не только технически инновационным, но и обладающим простой красотой, которая проистекает от естественности дерева и искусно выполненных деталей.
Центр инновационного проектирования из дерева. Изображение: MGA
Центр инновационного проектирования из дерева. Изображение: MGA

Современные высотные конструкции выполняются преимущественно из бетона и стали – материалов, с которыми, по словам Майкла Грина, связано около 8% всех выбросов парникового газа. Однако использование «ответственно» собранной древесины, секвестирующей углерод (подробнее об этом смотрите в нашем обзоре многоэтажных деревянных домов здесь), сокращает выбросы и является одним из самых эффективных методов сохранения экосистемы планеты, считает Грин. Что касается «ответственности», в рамках проекта специалисты в лесном хозяйстве и экологи выращивали в теплицах посадочный материал и высадили несколько гектаров саженцев, чтобы компенсировать использованную в строительстве древесину, ускоряя естественный процесс регенерации лесов.
Центр инновационного проектирования из дерева. Изображение: MGA
Центр инновационного проектирования из дерева. Изображение: MGA

Задачей Майкла Грина было вдохновить чиновников, девелоперов и строителей: «Мы хотели показать миру будущее деревянного строительства», – говорит архитектор. Однако идейные противники не поддаются его обаянию, и утверждают, что Центр дерева – это результат активности «древесного лобби» канадской лесной индустрии, так как проект поддерживался правительством провинции Британская Колумбия и, соответственно, реализовался на средства налогоплательщиков. Замечание, достойное обсуждения: строительство коммерческого здания за счет государственного бюджета – предприятие несколько сомнительное. Однако, судя по профессиональной принадлежности критиков, можно утверждать, что позиции «железобетонного лобби» несколько пошатнулись, и Ассоциация железобетона (BC Ready-Mixed Concrete Association) предчувствует возможность расширения государственных инвестиций в деревянное строительство.