Размещено на портале Архи.ру (www.archi.ru)

14.05.2015

Взлетающий

Юлия Тарабарина
Объект:
Павильон России на всемирной выставке ЭКСПО 2015
Адрес:
Италия, Милан.
Архитектор:
Сергей Чобан
Мастерская:
СПИЧ
Авторский коллектив:
SPEECH (Сергей Чобан, Алексей Ильин, Марина Кузнецкая, Андрей Перлич)

На открывшейся в Милане всемирной выставке Россию представляет павильон, спроектированный Сергеем Чобаном.

Павильон России на ЭКСПО 2015 в Милане
Павильон России на ЭКСПО 2015 в Милане
© Алексей Народицкий

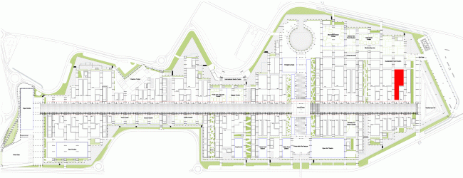
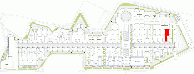
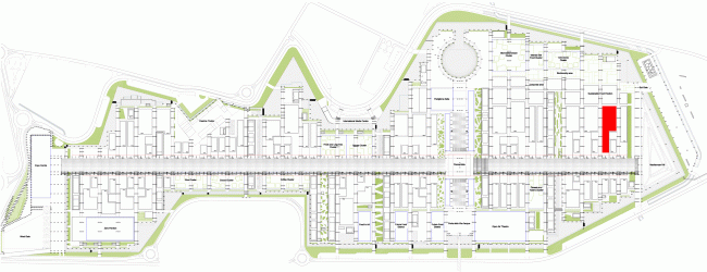
Павильон, представляющий Россию на Экспо 2015 года, расположился в восточной части полуторакилометровой оси всемирной выставки, которую организаторы назвали в античном духе декуманусом. Это довольно далеко, где-то в получасе ходьбы от главного входа, за главной площадью выставки. Впрочем, поблизости находятся павильоны Японии, Турции и США, а распределение мест на территории, по-видимому, происходило методом лотереи – в их взаимном расположении не прочитывается никакой логики, кроме случайной. Участки национальных павильонов плотно собраны вдоль главной оси и нарезаны тремя разными способами. Площадки среднего размера – узкие полоски; участки покрупнее похожи в плане на букву Р: узкая ножка выходит на декуманус, а широкий удобный прямоугольник отнесен в глубину; угол, вырезанный со стороны главной улицы, формирует еще один, маленький участок для соседнего павильона. Площадка павильона России принадлежит к числу крупных, с Р-образным планом. Проект Сергея Чобана, Алексея Ильина и Марины Кузнецкой был выбран на закрытом отборочном этапе, который в феврале 2014 года провел оргкомитет российской секции. По словам Сергея Чобана, этот результат продиктован, в том числе, и правильным выбором высотного акцента в условиях затесненной застройки, ограниченных углов видимости и строгого высотного регламента. Впрочем, не менее важно для победы оказалось и то, что SPEECH смогли предложить яркий, узнаваемый объем, развивающий традиции советских и российских построек на всемирных выставках прошлых лет и, что также важно, реализуемый в сжатые сроки с ограниченным бюджетом.
Генплан ЭКСПО 2015: участок павильона России отмечен красным. Предоставлен SPEECH
Генплан ЭКСПО 2015: участок павильона России отмечен красным. Предоставлен SPEECH

Итак, плотно нарезанный генплан выставки поставил перед архитекторами непростую задачу: как сделать вход заметным, если он обращен к главной улице лишь узким носом? Экспо пестрит разнообразными ответами на этот вопрос: пандусы, аттракционы, сады-лабиринты… Вариант, предложенный Сергеем Чобаном, – один из самых архитектурных, его павильон подчинён отточенному пластическому жесту: длинному, почти предельных пропорций козырьку, чей острый нос со слегка выгнутой зеркальной подкладкой легко взлетает над замощённой деревом узкой площадью, притягивая посетителей цельностью формы и ясностью образа, особенно привлекательной на фоне преобладающих вокруг запутанных решений. Многие другие павильоны почему-то предпочли спрятать вход, расположив его в каком-нибудь необычном месте: сбоку, сзади, или даже «защитив» лабиринтом, что превратило выставку в непростой квест с длинными пробегами, которые далеко не всегда развлекают посетителя. Павильон России – одно из исключений, здесь вход не просто очевиден, но и превращен в главный архитектурный аттракцион. Авторы особо подчеркивают: в зеркале удобно делать селфи, – и действительно, уже в день открытия, несмотря на противный мелкий дождик мало кто проходил мимо, все с интересом заходили на деревянный помост, запрокидывали голову, и да – фотографировались в гигантском зеркале.
Павильон России на ЭКСПО 2015 в Милане
Павильон России на ЭКСПО 2015 в Милане
© Алексей Народицкий

 
Надо сказать, что зеркальные поверхности – одна из любимых тем Сергея Чобана и архитекторов SPEECH вообще. Достаточно вспомнить отель NHow в Берлине, или павильон России на венецианской биеннале 2012 года, где купол, похожий на пантеоновский, отражал сам себя, помещая зрителя в центр воображаемой сферы. Сейчас в ренессансных двориках миланского университета проходит выставка журнала Interni, где инсталляция Сергея Чобана, Сергея Кузнецова и Агнии Стерлиговой Living line занимает там центральное место – она тоже совершенно зеркальная, настолько, что временами прямо-таки растворяется в окружении. 

Основание летящего, плавно изогнутого козырька поддержано четырьмя круглыми зеркальными колоннами внутри прозрачного стеклянного тамбура: тонкие стыки стеклянных пластин делают входную часть павильона прекрасно просматриваемой насквозь. Консоль кажется лежащей на стекле. Картину довершает штриховка деревянных ламелей, зрительно продолжающих линию козырька там, где его уже фактически нет – на фасадах объема основной экспозиционной части, которые выполнены, в противовес прозрачному тамбуру, из черного стекла. Козырёк визуально вырастает из объема и от этого кажется совсем уж длинным – лучше всего замысел раскрывается при взгляде с юго-запада: точка обзора, которую Сергей Чобан называет главной, расположена на пути основного потока посетителей и большинство зрителей так или иначе не минует этого ракурса.
Павильон России на ЭКСПО 2015 в Милане
Павильон России на ЭКСПО 2015 в Милане
Фотография © Алексей Народицкий
Павильон России на ЭКСПО 2015 в Милане
Павильон России на ЭКСПО 2015 в Милане
© Алексей Народицкий
Павильон России на ЭКСПО 2015 в Милане
Павильон России на ЭКСПО 2015 в Милане
© Алексей Народицкий
Павильон России на ЭКСПО 2015 в Милане. SPEECH. Фотография © Алексей Народицкий
Павильон России на ЭКСПО 2015 в Милане. SPEECH. Фотография © Алексей Народицкий

Черный объем, в котором разместилась собственно экспозиция, возведен в глубине участка и вслед за его контурами расширяется к востоку. Его верхняя часть со всех сторон отделана деревянными ламелями, что, по замыслу Сергея Чобана, должно восприниматься как отсыл к традиционному русскому строительному материалу. Похожими ребрами отделана овальная стойка ресепшена внутри стеклянного вестибюля. Дерева, впрочем, не так уж много и оно лишь слегка маскирует стеклянно-металлические объемы.
 
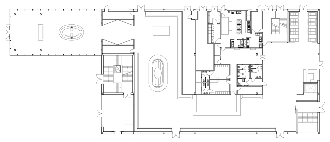
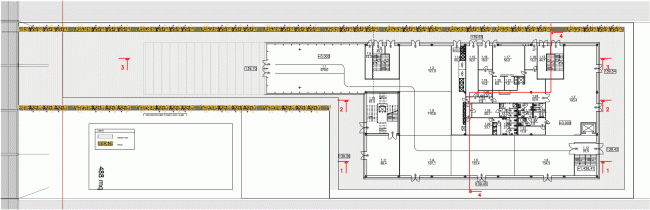
Бюро SPEECH разработало архитектуру павильона и стойку ресепшна в тамбуре. Экспозицию под названием «Растим во благо мира. Возделываем во имя будущего» делала другая команда. Сразу за входом, в вестибюле, посетителей встречает картина Виноградова-Дубосарского «Рожь», далее, за прозрачным вестибюлем, темно. Стены в первом зале покрыты изображениями растений из коллекции семян культурных растений, созданной Вавиловым, а во втором зале таблицей Менделеева, перемежающейся рассказами о ценных для питания элементах. Концепция выставки отталкивалась от идеи каталога рецептов, предложенной Юрием Авакумовым, но впоследствии трансформировалась. Книга рецептов, впрочем, была издана специально для Экспо. В первом зале посетителей встречает светящаяся модель перегонного куба, но угощают безалкогольными напитками; во втором проводят дегустации еды; в глубине расположен ресторан. Залы первого этажа по периметру обходят расположенные в центральной части технические помещения и все вместе получается похоже на стилизованную букву Р. На втором этаже, расположены конференц-зал и VIP-лоджия, крыша же, решенная в виде плавно поднимающегося пандуса, озеленена и, по словам архитекторов, в ближайшее время будет открыта для посетителей. 
Павильон России на ЭКСПО 2015 в Милане
Павильон России на ЭКСПО 2015 в Милане
© Алексей Народицкий
Павильон России на ЭКСПО 2015 в Милане
Павильон России на ЭКСПО 2015 в Милане
© Алексей Народицкий
Павильон России на ЭКСПО 2015 в Милане
Павильон России на ЭКСПО 2015 в Милане
© Алексей Народицкий
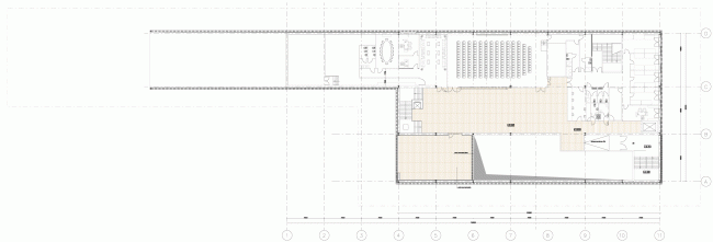
Павильон России на ЭКСПО 2015 в Милане. План озеленения на кровле
Павильон России на ЭКСПО 2015 в Милане. План озеленения на кровле
© SPEECH

Возвращаясь к козырьку: его зеркальная поверхность консоли отражает не только людей, фотографирующих себя на площади перед павильоном, но и стеклянный тамбур, а издали даже вводит в заблуждение: кажется, что вестибюль вместе с написанными над входом крупными буквами «Russia» продолжается вверх, загибаясь, прорастая в поверхность козырька, а людей, входящих внутрь, как будто в два раза больше, у входа образуется подобие воронки – только через пару секунд иллюзия развеивается, и ты начинаешь понимать, где реальность, а где – отражение. Это тоже часть замысла, причем в отличие от многих других зеркальных аттракционов, чаще спрятанных внутри павильонов Экспо, здесь основной сюжет вынесен наружу. Архитектура стала заметной частью экспозиции, к тому же она по-своему подводит итого многолетнего участия России в прежних всемирных выставках, апеллируя к историческим павильонам и суммируя заложенный в них приём.
Павильон России на ЭКСПО 2015 в Милане. Продольный разрез
Павильон России на ЭКСПО 2015 в Милане. Продольный разрез
© SPEECH

Разумеется, прежде всего я спросила Сергея Чобана, почему его проект так похож на Монреальский павильон ЭКСПО’67 Михаила Посохина – сходство очевидно, и там и здесь длинный взлетающий козырёк положен на стеклянный объем, подчеркивающий эффект левитации линии крыши. Архитектор в ответ предложил вспомнить более широкий исторический контекст. По мнению Чобана, Монреальский павильон – всего лишь самый известный представитель общей тенденции, связывающей между собой целый ряд других советских павильонов на всемирных выставках. В частности, Сергей Чобан напомнил о проекте, который Константин Мельников нарисовал в 1962 году для всемирной выставки в Нью-Йорке 1964 года (проект остался на бумаге, СССР не участвовал в выставке). Версии о связи Монреальского павильона с нереализованным проектом Мельникова уже были озвучены (см., напр., здесь).
Павильон СССР на ЭКСПО 1967 в Монреале. М. В. Посохин, А. А. Мндоянц, Б. Тхор, А.Кондратьев, Р. Кликс. Источник: alamedainfo.com
Павильон СССР на ЭКСПО 1967 в Монреале. М. В. Посохин, А. А. Мндоянц, Б. Тхор, А.Кондратьев, Р. Кликс. Источник: alamedainfo.com


Проект Константина Мельникова павильона СССР на ЭКСПО в Нью-Йорке. 1962. Источник: flickr / pulkuz; embed

Проект Константина Мельникова павильона СССР на ЭКСПО в Нью-Йорке. 1962. Источник: flickr / pulkuz; embed

Какая складывается последовательность советских павильонов на всемирных выставках, можно узнать из обзора, сделанного недавно сайтом archspeech Часть из них, действительно, подчинена порыву «вперед и вверх», как «Рабочий и колхозница»; другие помпезнее, но тоже куда-то летят, может быть, в космос. Тема полета всемирными выставками не исчерпывается – не менее энергична титановая стрела памятника Покорителям космоса.

Иными словами, проект Сергея Чобана не только продолжает линию, известную по Монреальскому павильону, но и в некоторой степени восстанавливает историческую справедливость, восходя не только к Михаилу Посохину, но и к Константину Мельникову. Любопытно, что Мельников планировал реализовать свой павильон «на пределе возможностей» – и практически теми же словами Сергей Чобан говорит о козырьке, построенном сейчас в Милане. Вынос консоли – тридцать метров, максимально возможный для данной конструкции. Подъем в верхней точке – семнадцать, что на пять метров больше высоты основного здания, подчиненного двенадцати метрам высотных ограничений, заданных мастер-планом выставки. Причем, по словам Сергея Чобана, подъем консоли мог начинаться только вне основного объема, в стеклянном вестибюле.

Возникает ощущение, что архитектор стремится полностью исчерпать тему, развить её до предела технических и эмоциональных возможностей. Миланский павильон камернее монументального монреальского, но его длинная и узкая консоль взлетает энергичнее, а зеркало усиливает эффект, наделяя архитектурное решение театральностью выставочной инсталляции. Впечатление, действительно, ближе к эскизу Мельникова, где консоль устремлена к звездам и визуально, и знаково – на ней даже нарисовано что-то космическое, а описание проекта в лучших традициях шестидесятых говорит о «скрытой силе небесной механики». Напоминая как о первом спутнике, так и об увлечении звездным небом – зодиакальным, астрологическим – архитекторов Ренессанса, и научным, астрономическом – ампира. И здесь мы, возможно, переходим к сути сюжета: зеркальная консоль Сергея Чобана заставляет нас поднять глаза к небу – для того, чтобы увидеть там себя. Есть в этом что-то особенное. Но, с другой стороны, какая разница, почему именно мы – пусть изредка – взглянули на небо? Пусть сейчас это селфи. Уже хорошо, что подняли глаза.
Павильон России на ЭКСПО 2015 в Милане
Павильон России на ЭКСПО 2015 в Милане
© Алексей Народицкий
Павильон России на ЭКСПО 2015 в Милане
Павильон России на ЭКСПО 2015 в Милане
© Алексей Народицкий
Павильон России на ЭКСПО 2015 в Милане
Павильон России на ЭКСПО 2015 в Милане
© Алексей Народицкий
Павильон России на ЭКСПО 2015 в Милане
Павильон России на ЭКСПО 2015 в Милане
© Алексей Народицкий
Павильон России на ЭКСПО 2015 в Милане
Павильон России на ЭКСПО 2015 в Милане
© Алексей Народицкий
Павильон России на ЭКСПО 2015 в Милане
Павильон России на ЭКСПО 2015 в Милане
© Алексей Народицкий
Павильон России на ЭКСПО 2015 в Милане
Павильон России на ЭКСПО 2015 в Милане
© Алексей Народицкий
Павильон России на ЭКСПО 2015 в Милане
Павильон России на ЭКСПО 2015 в Милане
© Алексей Народицкий
Павильон России на ЭКСПО 2015 в Милане
Павильон России на ЭКСПО 2015 в Милане
© Алексей Народицкий
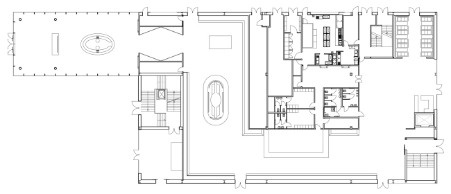
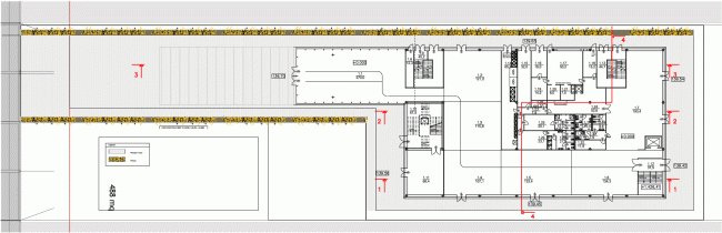
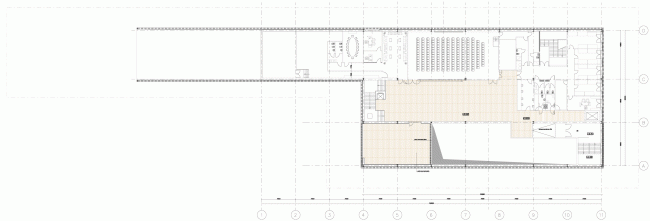
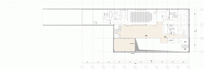
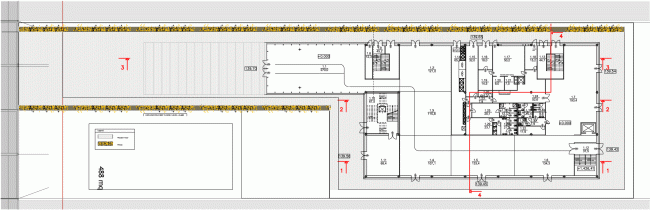
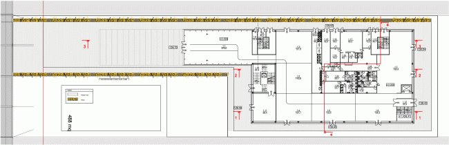
Павильон России на ЭКСПО 2015 в Милане. Генплан на уровне 1 этажа
Павильон России на ЭКСПО 2015 в Милане. Генплан на уровне 1 этажа
© SPEECH
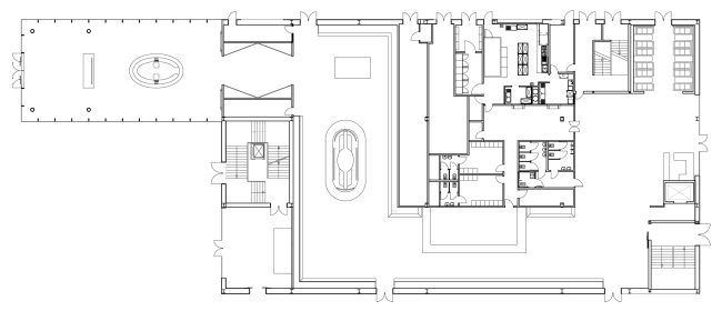
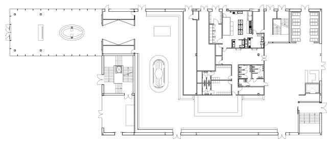
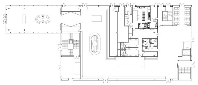
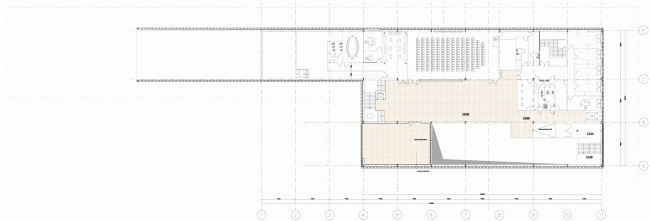
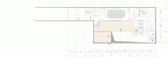
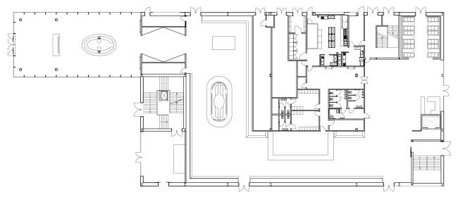
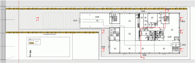
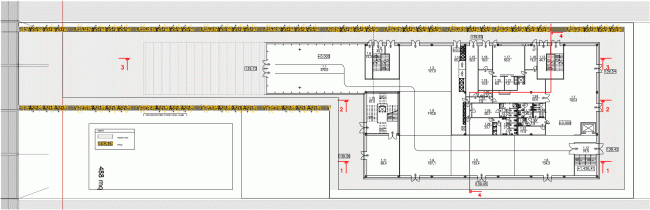
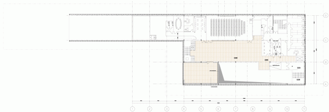
Павильон России на ЭКСПО 2015 в Милане. План 1 этажа
Павильон России на ЭКСПО 2015 в Милане. План 1 этажа
© SPEECH
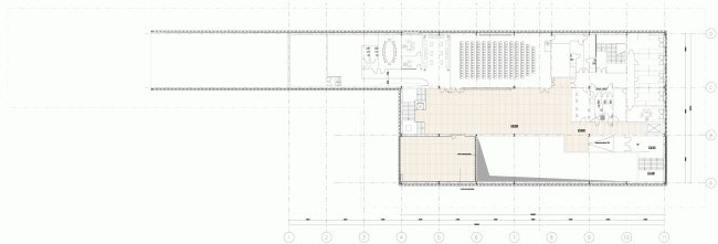
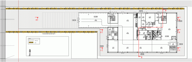
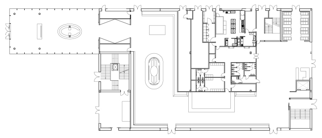
Павильон России на ЭКСПО 2015 в Милане. План 2 этажа
Павильон России на ЭКСПО 2015 в Милане. План 2 этажа
© SPEECH
Павильон России на ЭКСПО 2015 в Милане. Поперечный разрез
Павильон России на ЭКСПО 2015 в Милане. Поперечный разрез
© SPEECH
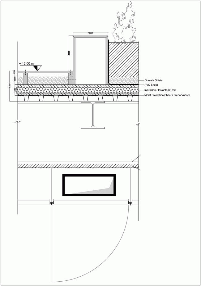
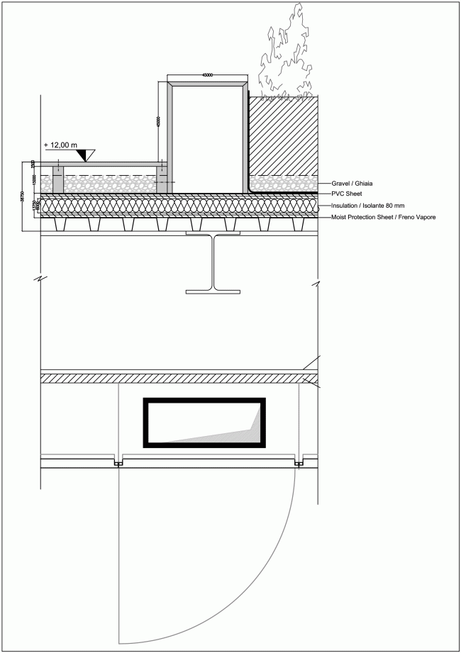
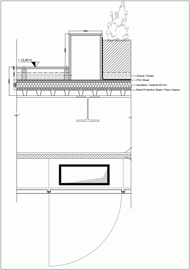
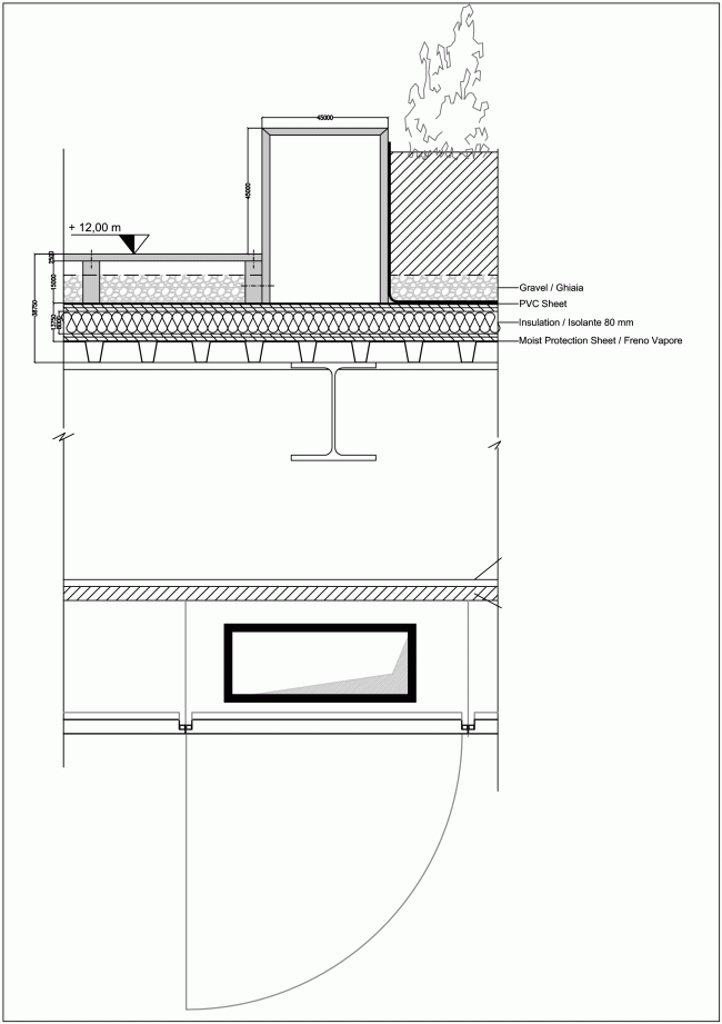
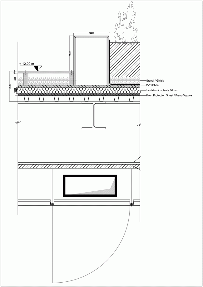
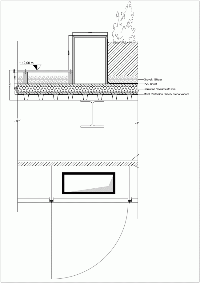
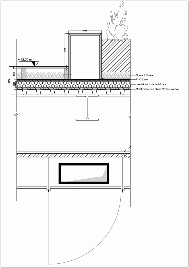
Павильон России на ЭКСПО 2015 в Милане. Деталь
Павильон России на ЭКСПО 2015 в Милане. Деталь
© SPEECH