Размещено на портале Архи.ру (www.archi.ru)

05.06.2015

Игры с материей

Алла Павликова
Объект:
Загородный дом в Московской области
Адрес:
Россия, Московская область
Архитектор:
Роман Леонидов
Мастерская:
АБ Романа Леонидова
Авторский коллектив:
Автор проекта – Роман Леонидов
Ведущий архитектор – Светлана Фианцева
Главный архитектор проекта – Алексеев Алексей
Главный инженер проекта – Овдин Максим
 

Роману Леонидову достался готовый, но не расположенный к нагрузкам фундамент и смелый заказчик, не чуждый экспериментов творческий человек, – в результате получился дом, которому и название-то сложно придумать. Дом-икс.

Загородный дом © Архитектурное бюро Романа Леонидова
Загородный дом © Архитектурное бюро Романа Леонидова

Дом в небольшом поселке вблизи Пироговского водохранилища, в живописном окружении: с одной стороны лес, с другой вода, – как это нередко бывает, достался бюро Леонидова построенным до цоколя по предшествующему проекту, – его план, и даже отчасти габариты и пропорции были определены. Но хозяева, люди творческие, активные и разносторонние, противники статики и симметрии, мечтали о необычном доме и попросили архитектора придумать что-то новое, непохожее на соседние коттеджи. Окружающая природа также, по словам Романа Леонидова, подталкивала к поиску нетипичной, футуристически-скульптурной формы.

Кроме того, недостроенный дом скрывал некоторое количество проектных ошибок и проблем, которые, как говорит архитектор, пришлось решать буквально на ходу. Роман Леонидов вспоминает, что образ современного и многогранного «не дома, а скорее лайнера» возник практически мгновенно. Поверх существующего проекта, который заказчик мечтал переделать и улучшить, вырастали, наслаиваясь одна на другую, новые формы. Без привязки к определенному стилю, без оглядки на современные тенденции и моду создавались объемы, отрисовывались линии, выявлялись детали и композиционные элементы, вращаясь вокруг уже выстроенного центрального ядра, преображая и полностью трансформируя его.
Загородный дом © Архитектурное бюро Романа Леонидова
Загородный дом © Архитектурное бюро Романа Леонидова

И дом превратился в метафору корабля под сильно выгнутыми ветром парусами, какого-то сказочного даже корабля в воображаемом море. Парусов – два и смотрят они друг на друга, чего в жизни не бывает – и кажется, что романтический образ намеренно запутан художником-кубистом, вывернут, разрезан и развернут. Но изгиб нарисован точно и энергично и кажется, что меньший парус, упруго сопротивляясь воздушным потокам, подгоняет больший, не даёт ему сбиться с правильного курса.

На сюжет архитектурного образа здания можно взглянуть и иначе: изогнутый козырек, умело используя
гнутые балки клееного дерева, накрывает основной – трехэтажный, к слову, – объем, сводя его к крайней степени обобщения. Он был бы одинок, если бы не два поддерживающих его с двух сторон малых объема: один дублирует изгиб главного паруса в миниатюре, но гордо поворачивается к «родителю» спиной. Второй, двусветный и несущий в себе коммуникационное ядро из лестницы и лифта, снаружи прикрыт наклонной стеной-экраном и расширяется кверху. Планы двух малых объемов – изящные дуги.
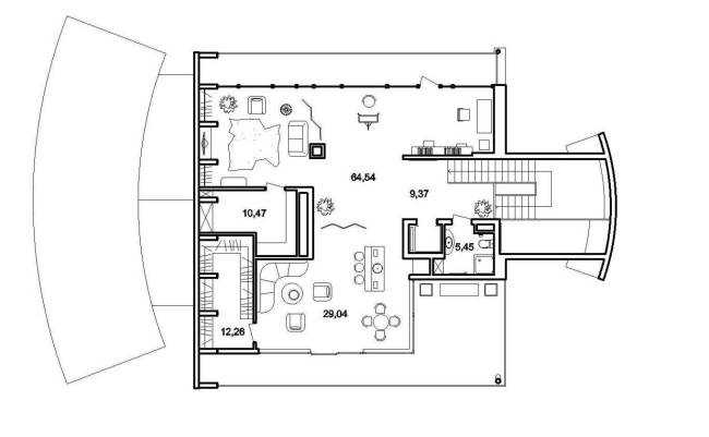
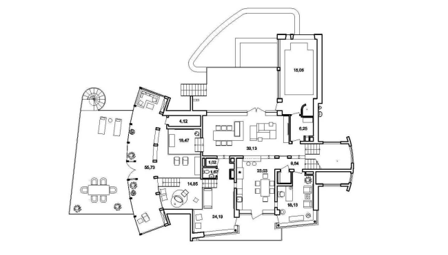
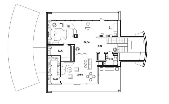
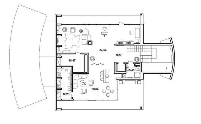
План 3 этажа © Архитектурное бюро Романа Леонидова
План 3 этажа © Архитектурное бюро Романа Леонидова

Крупные, имеющие ребра внутри, а снаружи покрытые алюминиевой чешуей формы из гнутого дерева сочетаются с корбюзеанскими белыми плитами бетонных межэтажных перекрытий и панорамными витражами, мондриановским рисунком металлических переплетов и угловых опор. Картину дополняют вставки темного натурального камня там, где встречаются изгибы козырьков и решетчатыми ограждениями многочисленных балконов. Получается – помимо корабля – похоже на гигантское насекомое или полураскрывшийся после приземления космический аппарат, способный, если ему понадобится, свернуться обратно в серебристое яйцо.
Загородный дом © Архитектурное бюро Романа Леонидова
Загородный дом © Архитектурное бюро Романа Леонидова

Особое мастерство потребовалось от конструкторов: мало того, что здание имеет весьма затейливую конфигурацию, приходилось учитывать еще и особенности каркаса, доставшегося в наследство от первоначального проекта. Детальное обследование существующей части показало, что надстраивать дом можно, а утяжелять – нет. Так появились каркасные стены, жесткие диски перекрытий, удерживающие большой «парус» от смещения по горизонтали, и вертикальное ядро жесткости, фиксирующее его на стальных тросах. Конструкция верхних этажей в значительной степени – деревянная, что также помогло решить проблему веса (дом вошел в число номинантов премии АрхиWOOD, чьих победителей объявили в конце мая на Арх Москве). К слову, одна из особенностей этого дома – виртуозное смешение различных материалов. Деревянные карнизы снаружи кажутся металлическими, а бетонные части первого этажа облицованы деревом прохладной, сине-серой, отликающейся на воду расцветки. Получается эффект, удивляющий зрителя – на первый взгляд невозможно понять, что из чего сделано. К тому же материалы ведут себя нетипично: дерево, которому в норме полагается изображать нечто стоечно-балочное, изгибается, бетон же, по определению готовый отлиться в любую форму, покорно придерживается плоскостей; даже гордый камень забивается в пазухи между парусами-козырьками.
Загородный дом © Архитектурное бюро Романа Леонидова
Загородный дом © Архитектурное бюро Романа Леонидова

Внутреннее пространство обустроено логично, и вмещает множество всего, от просторных спален на втором этаже до мастерской хозяев дома под изогнутыми балками на третьем и экспозиционного пространства – мини-выставки в двусветном холле с лестницей. Не обошлось без спа, спортзала и зала для танцев по соседству с гостиной-столовой на первом этаже; из гостиной можно пройти в «малый парус» – светлую, застекленную с трех сторон террасу, а оттуда – выйти на открытый балкон на крыше широкого П-образного козырька, служащего навесом для гостевой парковки. В подземном ярусе – хозяйственные помещения, в отдельном блоке рядом с главным входом – жилье для обслуживающего персонала и гараж. Архитекторы тщательно продумали соседство комнат внутри дома и расположили их так, чтобы из каждой можно было выйти на балкон или на террасу.
Загородный дом. Галерея, расположившаяся в малом «парусе» © Архитектурное бюро Романа Леонидова
Загородный дом. Галерея, расположившаяся в малом «парусе» © Архитектурное бюро Романа Леонидова

Разнообразие форм и функций уравновешивает некоторая аскетичность интерьера, где главным действующим лицом становится дневной свет, легко проникающий в дом сквозь прозрачные стены. Кроме того дом правильно сориентирован по сторонам света: солнце идет по кругу, освещает то одни комнаты, то другие, играет на изгибах стен, мебели и потолка. Оставляя как можно больше открытых и гладких поверхностей, авторы используют для отделки самые простые материалы: светлый камень, дерево, бетон, штукатурку. Где-то появляются металл, стекло, кожа. Отсутствие цвета «в массе» компенсируется неожиданными локальными вспышками в виде яркой мебели или разноцветных фактурных тканей.
Загородный дом. Проект интерьера © Архитектурное бюро Романа Леонидова
Загородный дом. Проект интерьера © Архитектурное бюро Романа Леонидова
Загородный дом. Проект интерьера © Архитектурное бюро Романа Леонидова
Загородный дом. Проект интерьера © Архитектурное бюро Романа Леонидова

Главный фасад обращен к воде, сюда же выходит большая часть открытых террас и балконов. Благоустроенный цветущий двор паутиной петляющих дорожек постепенно сливается с берегом, где со временем должен быть разбит злаковый сад и высажено поле ярких цветов.

Дом получился непростым, в нём заложен напряженный внутренний диалог – взять хотя бы две дуги, на которых держится энергетика главного сюжета: основной объем и примыкающая к нему терраса вместо того, чтобы уютно прилепиться, отворачиваются друг от друга, круто выгибая спины, хотя и сохраняют явное подобие. Спор вместо иерархии, впадина там, где ожидаешь плавного спуска, и поддерживающая многоголосие игра с фактурой и привычными ролями разных материй: покрытое металлом изогнутое дерево и простой бетон, замаскированный деревом – дом как будто бы разбирает себя на прото-части и тут же складывается обратно, демонстрируя уверенное владение языком деконструкции: проявление внутри формы напряжения, притягивания-отталкивания сродни атомарному, чередование цезур и массивов. Между тем, несмотря на оживленную диалогичность пластики Роману Леонидову удалось не переусложнить авторский жест, а подчинить его рефлексии созерцания ландшафта. Впрочем, рассказывая о своем проекте, архитектор подчеркивает, что нужного результата ему позволило добиться только совместное творчество и взаимопонимание с заказчиком, готовым к риску и эксперименту. 
Загородный дом. Фасад, выходящий на улицу © Архитектурное бюро Романа Леонидова
Загородный дом. Фасад, выходящий на улицу © Архитектурное бюро Романа Леонидова
Загородный дом. Фасад, обращенный к озеру © Архитектурное бюро Романа Леонидова
Загородный дом. Фасад, обращенный к озеру © Архитектурное бюро Романа Леонидова
Загородный дом. Конструктивное решение © Архитектурное бюро Романа Леонидова
Загородный дом. Конструктивное решение © Архитектурное бюро Романа Леонидова
Загородный дом. Интерьер © Архитектурное бюро Романа Леонидова
Загородный дом. Интерьер © Архитектурное бюро Романа Леонидова
Загородный дом на этапе строительства © Архитектурное бюро Романа Леонидова
Загородный дом на этапе строительства © Архитектурное бюро Романа Леонидова
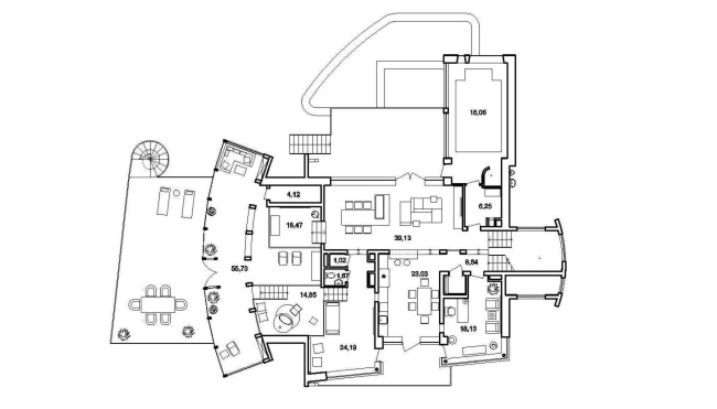
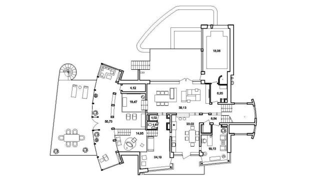
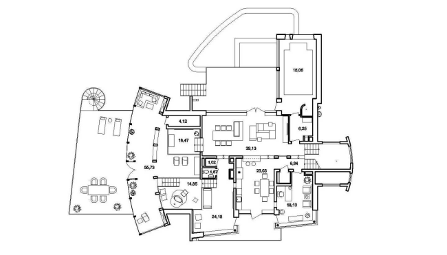
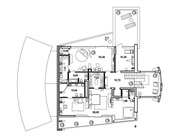
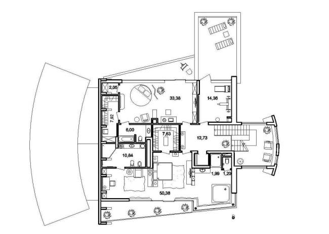
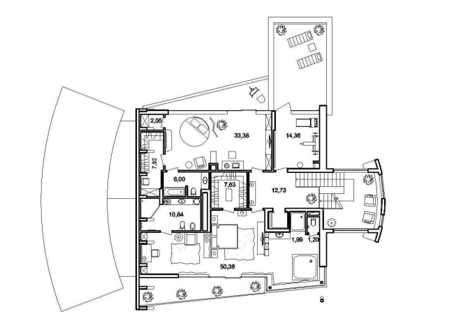
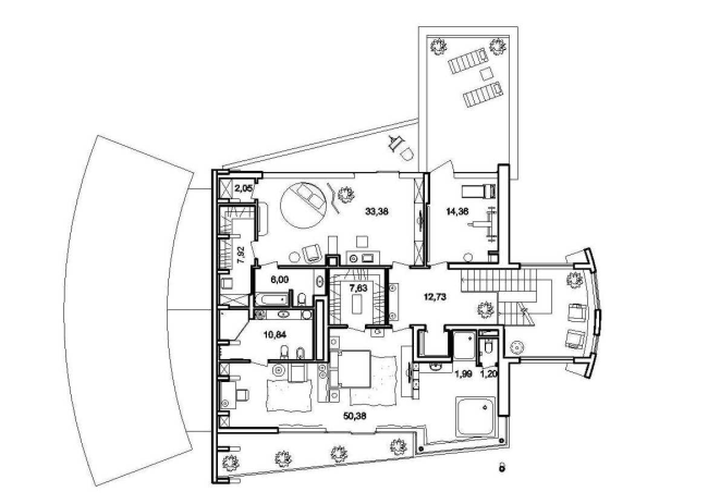
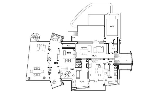
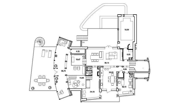
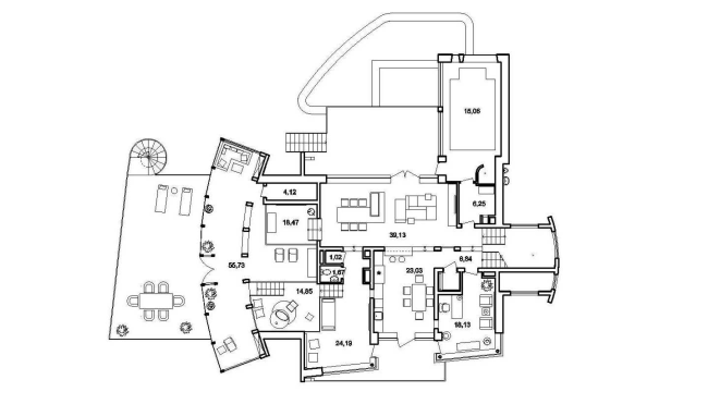
План 1 этажа © Архитектурное бюро Романа Леонидова
План 1 этажа © Архитектурное бюро Романа Леонидова
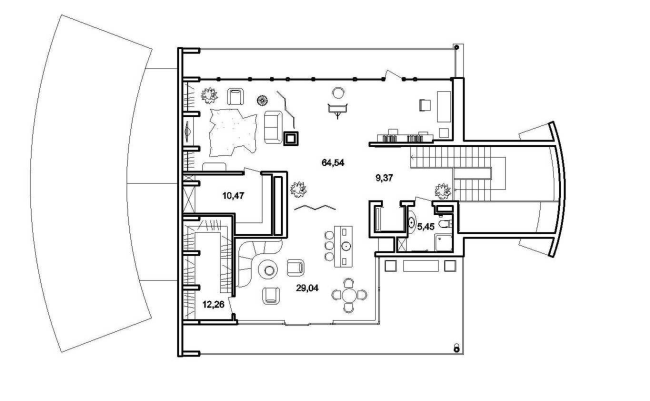
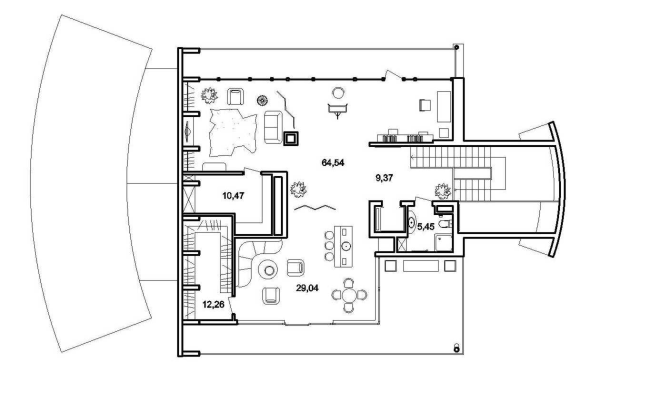
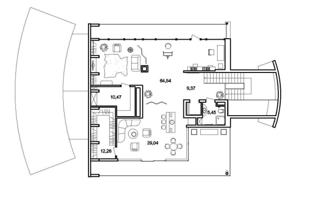
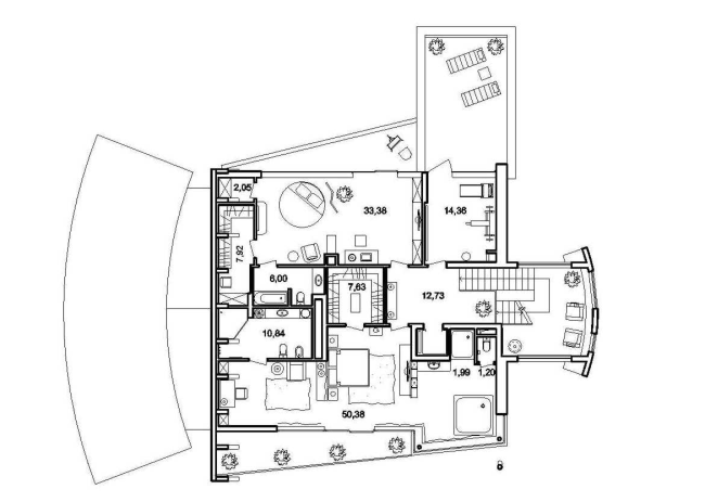
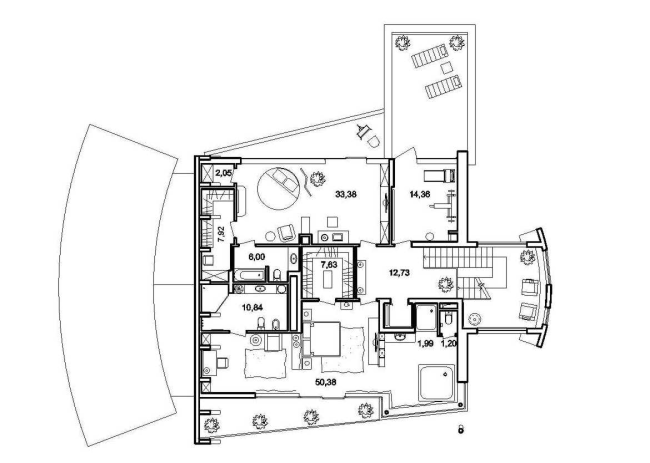
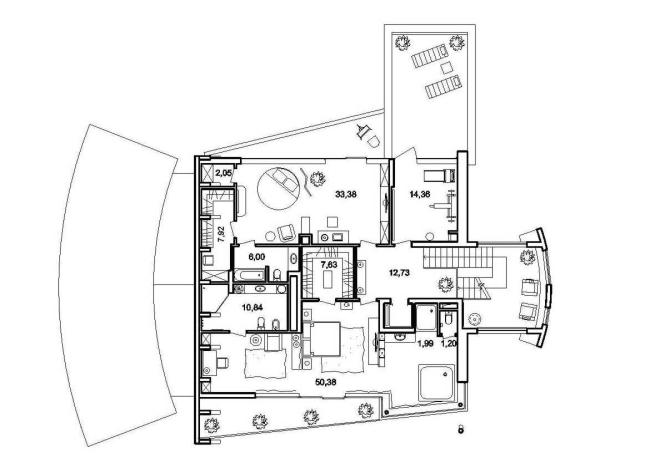
План 2 этажа © Архитектурное бюро Романа Леонидова
План 2 этажа © Архитектурное бюро Романа Леонидова
Загородный дом. Проект © Архитектурное бюро Романа Леонидова
Загородный дом. Проект © Архитектурное бюро Романа Леонидова
Загородный дом. Проект © Архитектурное бюро Романа Леонидова
Загородный дом. Проект © Архитектурное бюро Романа Леонидова
Загородный дом. Проект © Архитектурное бюро Романа Леонидова
Загородный дом. Проект © Архитектурное бюро Романа Леонидова