Размещено на портале Архи.ру (www.archi.ru)

28.04.2015

Граненая гризайль

Татьяна Пашинцева, Юлия Тарабарина
Объект:
Многофункциональный комплекс President Plaza
Адрес:
Россия, Москва. Кутузовский проспект, д. 32, к. 2
Архитектор:
Сергей Чобан
Сергей Кузнецов
Мастерская:
СПИЧ
Авторский коллектив:
Авторы проекта: Сергей Чобан, Сергей Кузнецов
Главные архитекторы проекта: Николай Гордюшин, Игорь Членов, Евгения Муринец 
Главный инженер проекта: Сергей Сердюков
Архитекторы проекта: Татьяна Варюхина, Сергей Глубокин, Марина Дигилева, Алексей Евсиков, Любовь Картавченко, Татьяна Логунова, Евгений Ляшков, Сергей Попов

Новое здание на улице Кульнева, рядом с «Миракс-плаза»: геометрия резких теней, блики света и оттенки приемов зрелого модернизма, напоминающих о том, что корпус занял место постройки семидесятых.

Многофункциональный комплекс President Plaza
Многофункциональный комплекс President Plaza
Фотография © Алексей Народицкий

Новое здание многофункционального комплекса President Plaza класса «А» на улице Кульнева введено в эксплуатацию в декабре 2014 года, а проектировалось с 2010–2011. Его крупный параллелепипед сменил производственно-административное здание Управления делами президента РФ в средней части территории, окруженной корпусами большого офисного комплекса, ранее известного как «Миракс-плаза» и расположенного напротив московского Сити, между рекой и Кутузовским проспектом – впрочем, именно это здание в состав известного комплекса никогда не входило, хотя и окружено им с трёх сторон.

Строительство двух строгих северных башен «Миракса» успел начать Сергей Киселев – President Plaza расположен прямо за ними, и сейчас его хорошо видно с внешней стороны Третьего кольца. В какой-то момент даже может показаться, что новое здание стало завершающим штрихом «островка» между улицей Кульнева и ТТК, но это не так – когда будет построен протяженный корпус бывшего «Миракса», которым по решению архсовета занимается Владимир Плоткин, он закроет President Plaza своим объемом. В конечном счете на площадке появится комплекс, спроектированный тремя разными, но известными московскими мастерскими: СКиП, SPEECH и ТПО «Резерв».
Многофункциональный комплекс President Plaza
Многофункциональный комплекс President Plaza
Фотография © Алексей Народицкий
Многофункциональный комплекс President Plaza. Ситуационный план
Многофункциональный комплекс President Plaza. Ситуационный план
© SPEECH

Планы реконструкции здания управделами возникли в 2006 году. С тех пор участок площадью 1,3 гектара несколько раз менял хозяев. Стройку начинали и замораживали в зависимости от состоятельности владельца и соображений возросшей нагрузки на транспортную сеть. За это время проекты параллелепипеда на улице Кульнева успели сделать Николай Лызлов, Ваагн Вермишян, и, вероятно, ещё многие авторы.

Прямоугольную форму новое здание President Plaza наследует от своего советского предшественника – оно, таким образом, оптимально использует потенциал участка. В прямоугольный объем 135х75 м, в семнадцать надземных этажей общей высотой 68 м вписано максимум полезной площади, причем первоначально планировалось разместить в торцевых частях апартаменты, но позднее от этой идеи отказались, отдав все помещение офисам. Широкое пятно застройки требует большого внутреннего двора – он был у советского здания, которое представляло собой глухое каре вокруг пустой сердцевины. Архитекторы SPEECH оптимизировали планировку: в их здании два одинаковых двора, разделенных широкой перемычкой с полезными площадями, которых таким образом стало ощутимо больше. Дворы же, размером приблизительно 25х33 м, площадью чуть больше восьмисот метров – это немногим больше среднего петербургского «колодца», – предназначены прежде всего для освещения. Поэтому панорамное остекление их гладких внутренних стен прерывается лишь полосками межэтажных перекрытий, а для оживления этих поверхностей использовано стекло двух видов – прозрачное и цветное, окрашенное в массе теплых тонов: желтого, оранжевого и красного, яркость которых уравновешивает фиолетовый цвет.

Первый этаж отдан кафе и торговле, второй конференц-залам и фитнес-центрам, – в этой части здание принадлежит городу, кроме того, его восточный фасад будет вместе с длинным корпусом бывшего «Миракс-плаза» формировать пешеходную улицу внутри квартала – ждать её ещё довольно долго, но хочется надеяться, что она получится милой и оживленной. Этажи с третьего по шестнадцатый заняты офисами свободной планировки, сгруппированными вокруг коммуникационных ядер с лестницами и восемью лифтами.
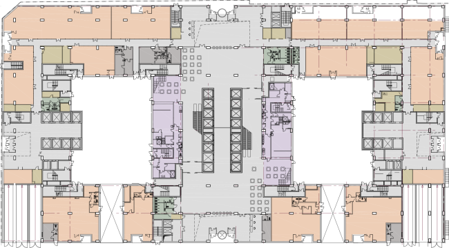
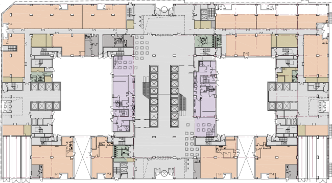
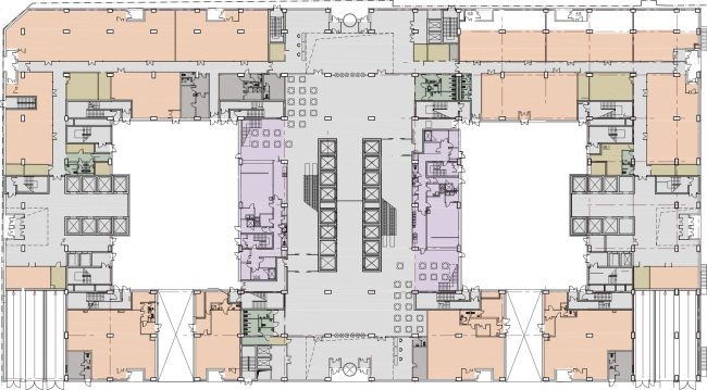
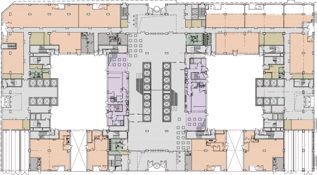
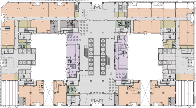
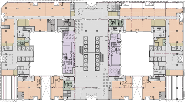
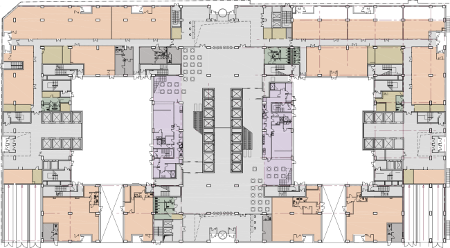
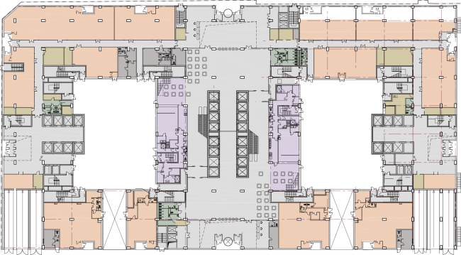
Многофункциональный комплекс President Plaza. План 1 этажа
Многофункциональный комплекс President Plaza. План 1 этажа
© SPEECH

Шаг колонн внутри – 8,4 м, этот размер, разделенный на шесть частей по 1,4 м, стал модулем для сетки фасада. Впрочем, это не единственное, чем внутреннее устройство здания проявляет себя вовне. Его единственный наружный фасад со стороны улицы Кульнева и примыкающую к нему торцевую южную стену архитекторы превратили в подвижный массив стеклянных эркеров-«телевизоров», обрамленных скошенными рамами из серебристого металлического композита. Часть эркеров выступает за плоскость стены на 0,63, часть – на 1,3 метра, а в итоге большие и меньшие выступы наслаиваются, пересекаются и вырастают друг из друга, складываясь в крупный объемный и несколько нерегулярный, асимметричный паттерн. Фасады кажутся подвижными, наподобие комода с выдвинутыми на разную глубину ящиками. Это сравнение не произвольно: помимо пластической выразительности эркеры, опять же, добавляют зданию квадратных метров и таким образом работают на благо заказчика. Ещё немного площадь увеличивается за счёт выноса поддержанного тонкими треугольниками металлических консолей первого этажа. Консоли использованы только на «парадном» фасаде со стороны улицы Кульнева, они привносят в его облик нотку гламура: полированный металл облицовки блестит и днем, и ночью, вторя матовому блеску окантовок эркеров.
Многофункциональный комплекс President Plaza
Многофункциональный комплекс President Plaza
Фотография © Алексей Народицкий
Многофункциональный комплекс President Plaza
Многофункциональный комплекс President Plaza
Фотография © Алексей Народицкий
Многофункциональный комплекс President Plaza
Многофункциональный комплекс President Plaza
Фотография © Алексей Народицкий

Два других фасада: северный, обращенный к башням «Миракс-плаза», и восточный, который выходит к будущей внутренней пешеходной улице, продолжают, но редуцируют тему. Скошенные серебристые рамы «телевизоров» смыкаются, превращаясь в сильно выступающие ребра и складываясь в крупный рельефный орнамент, впрочем, здесь его шаг становится несколько мельче. Металлические плоскости ловят свет под разными углами, острые ребра усиливают контраст светлого и темного, своего рода резковатую геометричную гризайль, подсвеченную и оживлённую блеском стеклянного фона. В большинстве случаев угол наклона рамок к стене – 60 градусов, но местами он сменяется на более пологий – так возникают широкие, разбивающие строгую сетку вертикали; из-за них рисунок восточного фасада немного похож на песчаные барханчики, подчиненные ветру с реки. Можно подумать, что стеклянные цезуры восточного фасада образовались потому, что некоторые части строгой металлической сети «сдуло» с их мест. Хотя в целом сеть остается жёсткой и регулярной, уравновешивая шевеление стеклянно-металлической поверхности юго-западной части здания.
Многофункциональный комплекс President Plaza
Многофункциональный комплекс President Plaza
Фотография © Алексей Народицкий
Многофункциональный комплекс President Plaza
Многофункциональный комплекс President Plaza
Фотография © Алексей Народицкий
Многофункциональный комплекс President Plaza
Многофункциональный комплекс President Plaza
Фотография © Алексей Народицкий

В пояснительной записке авторы скромно пишут, что «…речь шла о формировании не столько оригинального архитектурного образа, сколько о разработке соответствующей мировым критериям планировки комплекса, претендующего на класс «А», а также оригинального фасадного решения, гармонично сочетающегося с «Миракс-Плаза» и, в тоже время, подчеркивающее самостоятельность нового объекта». Подчеркнуть самостоятельность удалось. Хотя, как мы уже заметили, здесь архитектура чутко реагирует на окружение, причем главная тема – не Кутузовский проспект, а брутальные футуристические поиски зрелого модернизма, даже оттенки классики здесь прочитаны через архитектуру семидесятых. Серебристая геометрическая сеть металлических рамок, похожая на увеличенный фрагмент электронной схемы, по дорожкам которой разбегаются световые сигналы; эркеры-«телевизоры»; тонкие бетонные консоли выноса над нижними этажами – что-то в нём есть времени первого спутника и института НИИЧАВО, какой-нибудь шкатулки из «Отроков во вселенной». Что логично: President Plaza заменил постройку семидесятых, да и вся противоположная сторона на улицы Кульнева застроена хотя и обшарпанными, но характерными фасадами, на которых ленточные окна чередуются с тонкими вертикальными ребрами. С другой стороны, оттенок современной подвижности и разнофасадности помогают ему вписаться в пейзаж: рассматривая здание со всех сторон удивляешься, насколько удачно здесь, при всей прагматичности, поймана грань между разнообразием и цельностью. Издали оно вписывается в строй проспекта, вблизи ошарашивает игрой блестящих поверхностей, столь отличных от теплой сталинской терракоты. 
Многофункциональный комплекс President Plaza. План типового этажа
Многофункциональный комплекс President Plaza. План типового этажа
© SPEECH
Многофункциональный комплекс President Plaza. План 2 этажа
Многофункциональный комплекс President Plaza. План 2 этажа
© SPEECH
Многофункциональный комплекс President Plaza. План типового этажа с парковкой
Многофункциональный комплекс President Plaza. План типового этажа с парковкой
© SPEECH