Размещено на портале Архи.ру (www.archi.ru)

23.06.2008

Архитектура механизма

Юлия Тарабарина
Объект:
«Времена года». Многофункциональный торгово-развлекательный комплекс на Кутузовском проспекте
Адрес:
Россия, ЗАО, Москва. Кутузовский проспект, вл. 48
Архитектор:
Владимир Плоткин
Мастерская:
ТПО «Резерв»
Авторский коллектив:
В.И. Плоткин, И.В. Деева, А.К.Бородушкин, Д.В. Казаков, А.С. Романова, А.В. Логвинова при участии: М.В. Шершовой, Н.Б. Анохиной

Мы уже писали о проекте торгового центра «Времена года» на Кутузовском проспекте. Это очень продвинутое в техническом отношении здание, весь южный фасад которого, обращенный к трассе, превращен в управляемую компьютером механическую витрину. Теперь здание построено, фешенебельный торговый центр в нем открыт и на все это можно посмотреть

Фото: Алексей Народицкий
Фото: Алексей Народицкий

Первоначально Владимир Плоткин планировал превратить главный фасад, вытянутый вдоль проспекта, в прозрачную витрину, демонстрирующую внутренность магазинов – приблизительно так, как это сделано в расположенном неподалеку ТЦ «Квадро», весь парадный фасад которого – стеклянный. Такое здание особенно эффектно ночью – светящаяся коробка, наполненная товарами. Но заказчик по каким-то соображениям отклонил вариант прозрачного «открытого» фасада и тогда возник более сложный вариант витрины – механизированный «закрытый».

Этот фасад состоит из прямоугольников, которые чередуются в шахматном порядке – половина из них стеклянные витрины, за которыми помещены плакаты на тринитронах, вторая половина – металлизированные панели с множеством квадратных отверстий, в которых размещены лампочки-леды. Цвет лампочек и поворот тринитронов в витринах управляется компьютером и при желании может складываться в один гигантский рисунок размером с торговый центр.

Пока, к сожалению, компьютеризированный мега-билборд никому увидеть не удалось, хотя все механизмы работают – рассказывает автор этого замысла Владимир Плоткин. Сейчас лампочки светятся как правило одним цветом – соответственно времени года, зимой были сиреневые, весной зеленые; иногда из них собирают несложные рисунки – перед Новым годом были снежинки, а перед выборами флаги. Не мне судить о прибыльности рекламы, но почему-то кажется, что использовать этот механизм таким несложным способом равносильно забиванию гвоздей микроскопом.

Так или иначе, а механизация превратила здание торгового центра в разновидность дома-машины – и фасады подхватывают эту тему. Большая часть внешних поверхностей – там, где нет витрин, покрыта металлизированными серыми пластинами, испещренными миниатюрными, но достаточно частыми заклепками. От этого здание выглядит железным, причем не так, как современный автомобиль, а как какое-нибудь инженерное сооружение – мост, военный корабль или даже бронепоезд.

Можно подумать, что перед нами гигантский механизм, застывшей в процессе трансформации: навстречу едущим машинам раскрылся стеклянными плоскостями торец здания, а из него, почти как капитанский мостик, «выстрелил» острый и длинный балкон. В то же время на главном фасаде – почти как пушки из борта корабля, на трехметровой высоте выдвинулись два стеклянных эркера. Бронь серых панелей на фасаде равномерно раздвинулась, обнаружив витрины с яркими плакатами – но витрины тоже как будто бы раскрылись не до конца, застыли под углом.

Все это, разумеется, домыслы. На самом деле витрины развернуты под углом для того, чтобы плакаты были виднее – вверху в одну сторону, внизу в другую. И никаких значительных движений здание не совершает. Но в здании заложен сюжет, поддерживающий тему трансформации воображаемого «чуда робототехники». Это  сделано ненавязчиво, тонким намеком, но очень последовательно, путем сопоставления прямых углов, квадратов и прямоугольников (их большинство) – и редких наклонных линий. Легкий скос, который в другой, менее строгой системе координат никто бы и не заметил, здесь, среди прямых углов, становится признаком движения. Именно поэтому кажется, что нос – выстрелил, а витрины – выдвинулись. Это динамичные части здания-механизма.

Когда же входим внутрь – ощущения резко меняются. Снаружи был жесткий внешний мир, от которого дом-механизм отгораживается своей гламурной броней, внутри же – лоск тихоокеанского лайнера, только без ковров. Пол блестит почище, чем надраенная палуба, все, от пола до потолка, сияет белизной. Прямые углы и линии сменяются кружением – круглыми опорами-«колоннами», круглыми атриумами и витринами. Точечные светильники расставлены по потолку кругами и отражаются в блестящей плоскости пола и витринах пассажа, многократно повторяясь. Вместо жестковатой определенности «внешнего» механизма внутри – блеск и вращение, которые немного сбивают вошедшего с толку – вероятно, готовя к головокружительным затратам (магазины дорогие).

Усиливая произведенный эффект, круглые «колонны», прорастая сквозь все этажи, расходятся кверху под очень слабым углом. Если сказать точнее, опоры чередуются – вокруг атриумов они наклонены, между ними поставлены прямо, и если смотреть вдоль пассажа, получится очень своеобразная колоннада, отдаленно напоминающая аллею деревьев, которые никогда не растут все подряд строго вертикально. Хотя ничего в прямом смысле биологического здесь и в помине нет – а есть лишь едва заметная игра с перспективой – при взгляде снизу атриумы кажутся шире, просторнее, если же посмотреть сверху вниз – они быстро сужаются. Круглые дворики увенчаны конусообразными куполами, похожими на большие трубы. «Трубы» развернуты в сторону юго-востока, стремясь захватить побольше солнечного света для пространства атриумов. А их поворот возвращает нас к теме трансформации гигантского механизма.
.
Итак, здание торгового центра превращено в гигантскую высокотехнологичную витрину. Здание-витрина, будучи задумано как технически сложное решение, приобрело сходство с механизмом, получило характерную металлическую фактуру и прониклось техногенной жесткостью. Оно заставляет подозревать в себе скрытое движение – как уже произошедшее, так и могущее совершиться, хотя на самом-то деле оно ни капельки не шевелится. Когда же мы заходим внутрь, одно впечатление сменяется другим, не противоположным, но контрастным. Белое, прозрачное, круглящееся пространство, нанизанное на четыре «воздушные оси» атриумов, обеспечивает иррациональную легкость после колкого механицизма фасадов – и как следствие, создает у посетителей подходящее настроение для шоппинга.

ТЦ «Времена года». Проект размещения рекламы на фасаде
ТЦ «Времена года». Проект размещения рекламы на фасаде
Фото: Алексей Народицкий
Фото: Алексей Народицкий
Торговый комплекс «Времена года». Владимир Плоткин, ТПО «Резерв». Фото: Алексей Народицкий
Торговый комплекс «Времена года». Владимир Плоткин, ТПО «Резерв». Фото: Алексей Народицкий
Торговый комплекс «Времена года». Владимир Плоткин, ТПО «Резерв». Фото: Алексей Народицкий
Торговый комплекс «Времена года». Владимир Плоткин, ТПО «Резерв». Фото: Алексей Народицкий
Многофункциональный торгово-развлекательный комплекс «Времена года» – участник экспозиции российского павильона XI венецианской биеннале. Фото: Алексей Народицкий
Многофункциональный торгово-развлекательный комплекс «Времена года» – участник экспозиции российского павильона XI венецианской биеннале. Фото: Алексей Народицкий
Фото: Алексей Народицкий
Фото: Алексей Народицкий
Фото: Алексей Народицкий
Фото: Алексей Народицкий
Фото: Алексей Народицкий
Фото: Алексей Народицкий
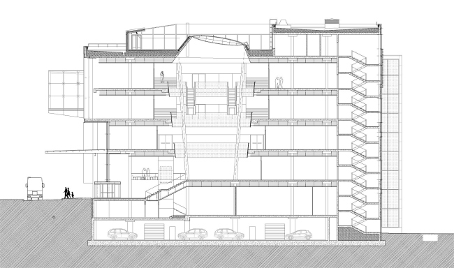
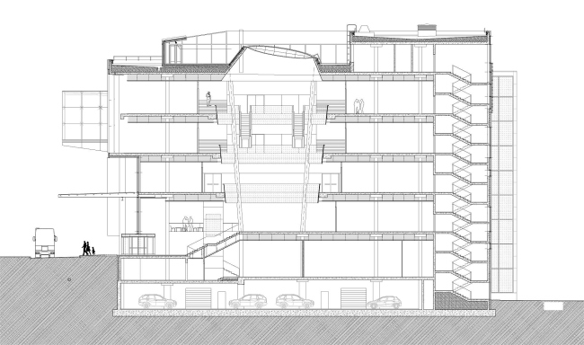
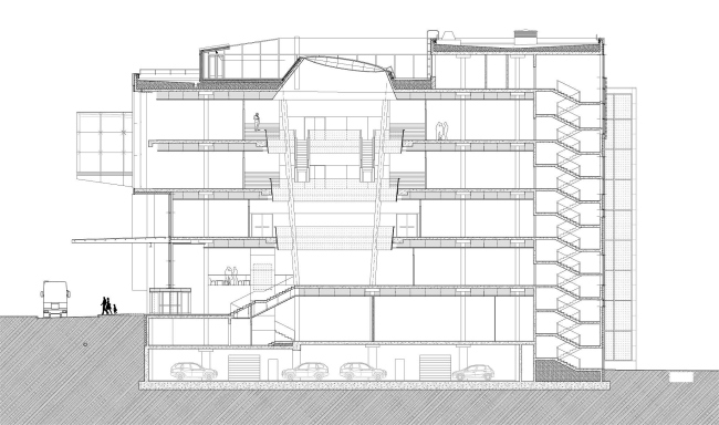
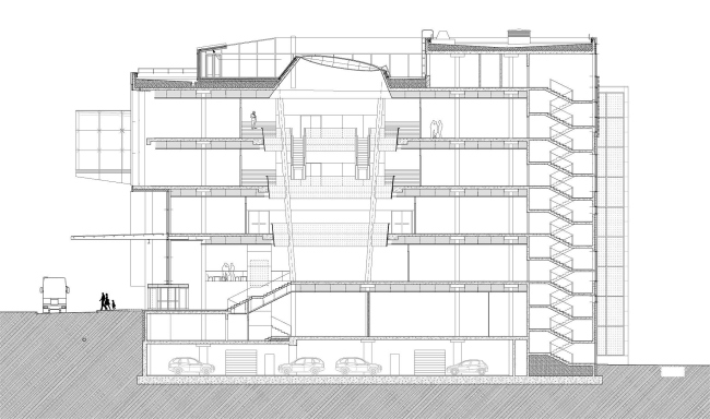
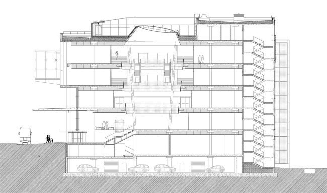
Продольный разрез
Продольный разрез
Попречный разрез
Попречный разрез