Размещено на портале Архи.ру (www.archi.ru)

11.03.2015

Кристаллизация перекрестка

Юлия Тарабарина
Объект:
Pallau RB: Административно-деловой центр, 1-й км Рублево-Успенского шоссе
Адрес:
Россия, Московская область, Барвихинский С. О., 1-й км Рублево-Успенского шоссе
Архитектор:
Сергей Киселев
Игорь Шварцман
Мастерская:
АМ Сергей Киселев и Партнеры
Авторский коллектив:
Виктор Бармин (ГАП), Анастасия Хомякова (ГАП), Ольга Плужникова, Галина Харитонова 

На развязке МКАД и Рублёвкого шоссе закончено строительство административно-делового центра, задуманного Сергеем Киселёвым.

Административно-деловой центр на Рублево-Успенском шоссе, 2014. Сергей Киселёв и Партнеры. Фотография © Алексей Холопов
Административно-деловой центр на Рублево-Успенском шоссе, 2014. Сергей Киселёв и Партнеры. Фотография © Алексей Холопов

О проекте офисного комплекса на первом километре Рублёвского шоссе мы рассказывали в 2008 году. Теперь он построен; территория вокруг пока ещё не слишком привлекательна, но с МКАДа этих деталей увидеть нельзя, а в перспективу московских трасс комплекс вписался удачно.

Надо признаться, что мне удалось понять эти здания только тогда, когда их построили, то есть сейчас. В 2007 году Сергей Киселёв показывал проект не без гордости и со словами: «смотрите, что мы придумали для первого километра Рублёвского шоссе», и я тогда не поняла. Два крупных, но изящных корпуса, по-вхутемасовски поставленных под прямым углом друг к другу, с алюминиевыми корбюзеанскими ножками. Широкие плоскости боковых стеклянных фасадов – тогда, в проекте – были по торцам обернуты золотистой медной сеткой: модная форма «нарезанного рулета», попутно играющая с перспективой и масштабом, ориентируясь МКАД. Модернизм, лаконизм, простота решения «на раз-два», как любил объяснять Сергей Киселев. Чистая форма, немного блеска, легко, но смело нарисованные контуры пластин… Не оставляло подозрение, что форма говорящая, и вот теперь ясно, что это такое, точнее, какой пластический намек присутствует в двух корпусах, делая их непраздным дополнением перекрестка.

Это указатель. Две гигантские хрустальные стрелки, драгоценные, в «золотой» оправе, циклопические ювелирные стрелки из сказки, очень уместные на главном элитном перекрестке Подмосковья – шоссе-то Рублёвское. Вот архитекторы и переосмыслили тему, намеком, разумеется, а как иначе – ни жизнь, ни искусство другого не позволяют, так что и никаких стрелок, конечно, нет; показалось. Есть только асимметричные «ласточкины» хвосты, наклоны фасадных поверхностей высотой этажей по шесть, и усиливающий перспективу скос кровли, этажа на три. Там, где могли бы быть стрелки, объемы срезаны по косой, почти прямо, остались только выемки «хвостов» с противоположной стороны; и правильно, сделать стрелки буквально было бы нельзя. Но всё вместе, да издали, с окружной, на скорости – указатель и есть. Сильна в нём тема перекрестка, теперь с и развязкой не промахнуться, место отмечено зданием-знаком.
Административно-деловой центр на Рублево-Успенском шоссе, 2007 © Сергей Киселёв и Партнеры
Административно-деловой центр на Рублево-Успенском шоссе, 2007 © Сергей Киселёв и Партнеры

В первоначальной версии проекта корпуса выглядели дороже и, скажем так, роскошнее. Хрустальность стеклянного блеска усиливали наклонные, стеклянные же «козырьки», нечасто разбросанные по всей плоскости: из похожих полос сделан дворовый фасад Эрмитаж-плаза, но здесь впоследствии пришлось упростить, убрать полоски, упростив до больших плоскостей стекла в аккуратно прорисованной тонкой сетке серых переплетов и крупной – междуэтажных горизонталей и редких вертикалей, которые складываются в усмирено-модернистский рисунок пунктирных лент. И всё равно пластины остались хрустальными, прозрачными насквозь, только штриховку рельефных закрылков заменила сдержанная регулярность в духе семидесятых.

И ещё: мимо многих строящихся зданий ходишь вначале с удовольствием, наблюдая простоту трехмерной сетки бетонных колонн, а позже – с разочарованием, когда объемную структуру спрячут за глуховатой оболочкой. Здесь же в силу прозрачности больших плоскостей стекла исходный эффект трехмерной сетки удалось сохранить – пусть и не полностью, но в солнечный день невольно замираешь, видя здание насквозь, на просвет. Кристаллизация пространства, его превращение из эфемерного природного в обитаемое, решетчатое и многоярусное, происходит легко, безо всякого тектонического преодоления, – а так, как будто бы его оконтурили уверенной рукой и вырезали, поместив в нужное время и место. Этот эффект особенно ощутим там, где наклонные плоскости торцевых фасадов пересекаются с прямой внутренней сеткой.
Административно-деловой центр на Рублево-Успенском шоссе, 2014. Сергей Киселёв и Партнеры
Административно-деловой центр на Рублево-Успенском шоссе, 2014. Сергей Киселёв и Партнеры
© Алексей Холопов

Обрамляющий контур в процессе оптимизации расходов изменился сильнее всего. Сразу же после 2008 года он потерял свой золотистый ажурный блеск, расставшись с ювелирными коннотациями. Новый цвет облицовочных панелей, теперь уже алюминиевых, подбирали долго, путем тщательного компромисса между пожеланиями заказчика и планами архитекторов; примеряли на месте, оценивали, каким образом будет выглядеть тот или иной цвет в разную погоду. И наконец остановились на светло-бежевых панелях, которые в пасмурное время кажутся сдержанно-матовыми, а на солнце блестят, переливаясь на наклонных поверхностях и наделяя фасады «оболочки» если не золотым, то умеренно драгоценным серебристым оттенком.
Административно-деловой центр на Рублево-Успенском шоссе, 2014. Сергей Киселёв и Партнеры. Фотография © Алексей Холопов
Административно-деловой центр на Рублево-Успенском шоссе, 2014. Сергей Киселёв и Партнеры. Фотография © Алексей Холопов

Торцевые фасады прорезали окнами: в 2008 году архитекторы рассматривали вариант с ровными рядами точечных квадратных проемов, но реализовали, и на мой взгляд справедливо, другой. Первый вариант был из девяностых, а второй можно понять двояко: с одной стороны бежевый цвет немного напоминает юрский камень, а вертикальные окошки отчасти вписываются в актуальный умеренно-классицизирующий тренд. Но с другой стороны – ряды небольших, сгруппированных попарно вертикальных окошек в палевой стене вызывают уже совершенно другие, негламурные ассоциации – издали они похожи на отверстия перфокарт, картонных носителей битовой информации в компьютерах восьмидесятых. Хороший способ ненавязчиво осмыслить историю и здания, и места в духе пресловутой спирали: хватит уже, потрясли золотыми браслетами, пора возвращаться к идеалам времени перфоркарт и формировать какое-нибудь foundation в духе Азимова.
Административно-деловой центр на Рублево-Успенском шоссе, 2014. Сергей Киселёв и Партнеры. Фотография © Алексей Холопов
Административно-деловой центр на Рублево-Успенском шоссе, 2014. Сергей Киселёв и Партнеры. Фотография © Алексей Холопов
Административно-деловой центр на Рублево-Успенском шоссе, 2014. Сергей Киселёв и Партнеры. Фотография © Алексей Холопов
Административно-деловой центр на Рублево-Успенском шоссе, 2014. Сергей Киселёв и Партнеры. Фотография © Алексей Холопов
Административно-деловой центр на Рублево-Успенском шоссе, 2014. Сергей Киселёв и Партнеры. Фотография © Алексей Холопов
Административно-деловой центр на Рублево-Успенском шоссе, 2014. Сергей Киселёв и Партнеры. Фотография © Алексей Холопов

Архитекторы СКиП также разработали интерьеры вестибюлей, решив их в том же ключе: лаконичном, но не без звучного приема. Стеклянные стены, темный пол, бежевые стены и белый потолок, прорезанный мерными сплошными полосами светильников, линии перспективы которых продолжаются, отражаясь в блестящем полированном камне. Точно так же корпуса отражаются-продолжаются один в другом.
Проект интерьера вестибюля большого корпуса. Административно-деловой центр на Рублево-Успенском Шоссе © Сергей Киселёв и Партнеры
Проект интерьера вестибюля большого корпуса. Административно-деловой центр на Рублево-Успенском Шоссе © Сергей Киселёв и Партнеры
Проект интерьера вестибюля малого корпуса. Административно-деловой центр на Рублево-Успенском Шоссе © Сергей Киселёв и Партнеры
Проект интерьера вестибюля малого корпуса. Административно-деловой центр на Рублево-Успенском Шоссе © Сергей Киселёв и Партнеры

Спокойное и деловитое получилось здание, хотя и не без доли благородства в прозрачности пластин и скошенных плоскостей. Архитекторы как особую удачу ценят тот факт, что им удалось уговорить заказчика в процессе оптимизации расходов не спрямлять фасады до коробки-параллелепипеда и сохранить первоначальную пластику объемов, острая динамика которой была тщательно просчитана в расчете на взгляд из проезжающей машины. Это действительно большая удача: дело в том, что на МКАДе по-прежнему преобладают рынки, ангарного типа молы и, как ни странно, леса: взгляд мало на чем останавливается, а тут – цепляется сразу. С трассы комплекс кажется не слишком большим и, благодаря перпендикулярной постановке большего корпуса, подвижным – быстро чередует ракурсы, провоцирует даже притормозить, разглядеть. Ёмкая форма работает сама, каждой черточкой, благодаря чему оказывается нечувствительной к экономии декоративной отделки. Бывает наоборот: отделают дорого, а ящик ящиком, никакой радости, жаль средств, пошедших на облицовку. А тут нет, взлет перфорированных крыльев так же горд, как если бы они были золотыми. Уместное, словом, и лёгкое произведение. Один из последних реализованных проектов, над которым работал лично Сергей Киселёв.
 
Ситуационный план. Административно-деловой центр на Рублево-Успенском Шоссе © Сергей Киселёв и Партнеры
Ситуационный план. Административно-деловой центр на Рублево-Успенском Шоссе © Сергей Киселёв и Партнеры
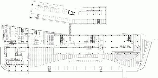
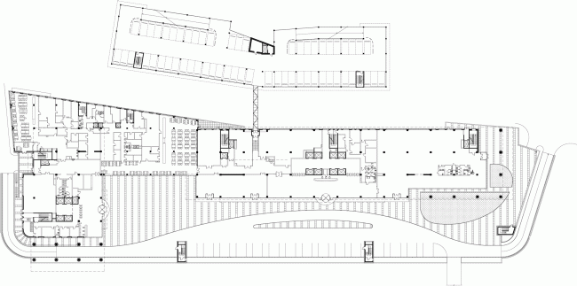
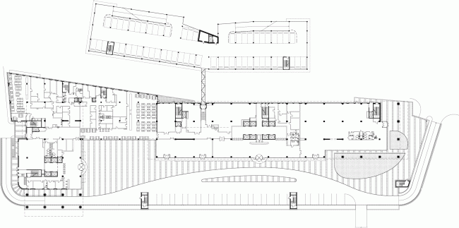
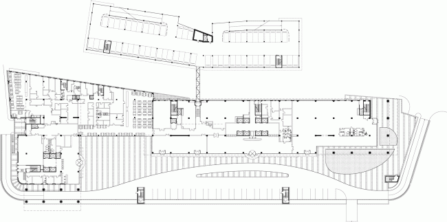
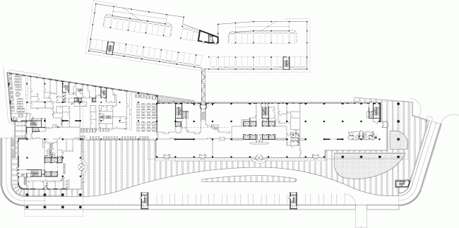
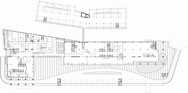
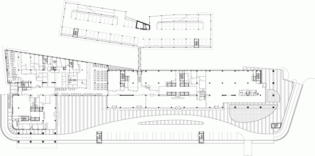
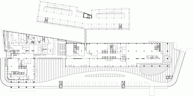
План на уровне 1 этажа. Административно-деловой центр на Рублево-Успенском шоссе © Сергей Киселёв и Партнеры.
План на уровне 1 этажа. Административно-деловой центр на Рублево-Успенском шоссе © Сергей Киселёв и Партнеры.
План на уровне 6 этажа. Административно-деловой центр на Рублево-Успенском шоссе © Сергей Киселёв и Партнеры.
План на уровне 6 этажа. Административно-деловой центр на Рублево-Успенском шоссе © Сергей Киселёв и Партнеры.
Разрезы. Административно-деловой центр на Рублево-Успенском шоссе © Сергей Киселёв и Партнеры.
Разрезы. Административно-деловой центр на Рублево-Успенском шоссе © Сергей Киселёв и Партнеры.
Разрезы. Административно-деловой центр на Рублево-Успенском шоссе © Сергей Киселёв и Партнеры
Разрезы. Административно-деловой центр на Рублево-Успенском шоссе © Сергей Киселёв и Партнеры