Размещено на портале Архи.ру (www.archi.ru)

20.05.2008

Дом-арка

Юлия Тарабарина
Объект:
Офисное здание с подземной автостоянкой в 4-х уровнях на Можайском шоссе (вариант 2006-2008 гг.)
Адрес:
Россия, Москва. Можайское шоссе, вл. 6
Мастерская:
Алексей Бавыкин и партнёры
Авторский коллектив:
А.Л. Бавыкин, М.М. Марек, Д.Н. Чистов, главный конструктор – К.О. Кабанов; главный инженер проекта – Л.Н. Слуцковская

На Можайском шоссе начинается строительство офисного здания по проекту Алексея Бавыкина. Как считает автор, на последнем этапе ему удалось внести существенные изменения, которые позволили лучше раскрыть важную для архитектора тему

Офисное здание на Можайском шоссе. Вариант 2008 года (второй вариант) © Мастерская архитектора Бавыкина
Офисное здание на Можайском шоссе. Вариант 2008 года (второй вариант) © Мастерская архитектора Бавыкина

Мы уже писали о проекте офисного здания на Можайском шоссе. Оно состоит из гигантской арки 11-этажной высоты, пересеченной проходящим сквозь нее «носом» стеклянного объема. Линия Кутузовского проспекта, переходя в Можайское шоссе, немного изгибается и отклоняется влево от оси – рассказывает Алексей Бавыкин. Поэтому его арка, хотя и стоит не по центру шоссе, а справа, оказывается строго на геометрической оси арки Бове. Рядом находится длиннющий панельный дом, удачным образом отодвинутый от красной линии трассы. Перед домом – сквер, и ничто не перекрывает воображаемого «луча» между двумя арками. Сквер будет приведен в порядок и превратится в дополнение – партер бавыкинской арки, максимально раскрывая перспективу на нее со стороны центра.

Поэтому арку Бавыкина можно себе представить как неточную проекцию арки Бове в перспективе, сделанную с помощью большой камеры обскуры. Как будто бы кто-то от гостиницы «Украина» посветил фонариком на Триумфальную арку, а далеко за ней поставил экран и на него спроецировалась гигантская тень арки – и как в театре теней, зажила собственной жизнью – стала трехпролетной. Кроме того, арка Бавыкина оказалась не по центру, а на краю шоссе, и от нее в борьбе с модернистским городом «отломилась» половина. Это делает арку похожей на античную руину и вызывает ассоциации с полуразрушенным мостом или акведуком – на «Золотом сечении» архитектор сопроводил свой проект фотографией римского моста Эмилия Лепида, который похожим образом сломан пополам. Однако же главный прототип – не акведук, а арка, и именно стоящая в перспективе арка Бове, говорит Алексей Бавыкин.

Изменения, произошедшие в проекте за последние полгода, сделали его более цельным и позволили точнее раскрыть тему. Во-первых, в «сломанном» пролете арки исчезли все окна, которые раньше выглядели, как выпавшие из кладки квадры. Архитектору удалось собрать в этом месте лифты и прочие коммуникации, не нуждающиеся во внешних окнах. Внешне это выглядит так, как будто циклопическую кладку починили, заделали пробоины. То есть – Алексей Бавыкин в процессе проектирования «отреставрировал» свою еще не построенную руину.

Второе изменение – у стеклянного объема-модерниста пропали стволовидные колонны специфического древесного ордера, изобретенного Бавыкиным в 1994 году для портика деревенской виллы и реализованного недавно в Брюсовом переулке. Шершавые опоры исчезли – архитектор развел темы, оставил деревья Брюсову, а здесь заострил основную тему – арочную.

И, наконец третье и самое интересное – внутри, в верхней части пролета «целой» арки архитектору удалось спроектировать атриум. Известно, что атриум – больная и очень любимая тема наших «бумажников». После их увлечения конца 1980-х годов в Москве теперь тьма-тьмущая атриумов. Но такого нет. Обычно атриумы – это перекрытые стеклянной крышей внутренние дворы; Бавыкин недавно сделал один такой в жилом доме в Брюсовом переулке. А здесь ни крыши, ни двора. Атриум, высотой в три этажа, устроен под бетонным цилиндрическим сводом. Таким образом, арка, которую мы видим снаружи – это не нарисованная на фасаде иллюзия, она совершенно настоящая, без обмана. Арка целиком и полностью есть внутри и, вероятно, она будет создавать там редкостное пространство, похожее на римские термы. Изгиб бетонного свода, справа и слева – стеклянные стены, посередине – мостик, позволяющий пройтись от импоста к импосту.

Алексей Бавыкин считает арку на Можайском шоссе своим программным произведением. Что интересно, так как сейчас наши архитекторы очень редко называют свои вещи программными. А Бавыкин называет этот проект принципиально важным для себя. Это первый из строящихся объектов, в котором так явно и очевидно отразилась одна из главных тем этого архитектора, состоящая, по собственным словам Алексея Бавыкина, в соединении «культуры один и культуры два». Под первым совершенно очевидно подразумевается модернизм, со вторым сложнее. Это вроде бы историзм, но если присматриваться всерьез, то не вполне он.

Давно, в 1984 году, для конкурса «стиль 2001 года», Алексей Бавыкин сделал архитектурный объект, очень похожий на бронзовую скульптуру. Эта скульптура – макет стеклянного здания, в одном из углов которого «вынут слепок» небоскреба-колонны Адольфа Лооса. Как теперь хорошо известно (см. статью Григория Ревзина),этот конкурс оказался принципиальным для многих «бумажных архитекторов»: Юрий Аввакумов там выбрал авангард, Михаил Филиппов классику, а Алексей Бавыкин начал поиски то ли сталкивания, то и примирения, но так или иначе существования того и другого вместе. Можно сказать, что тогда молодые русские архитекторы очень серьезно отнеслись к конкурсному заданию, задумались о будущем и выдали – каждый для себя – планы на XXI век. Рано или поздно, так или иначе, но они их последовательно реализуют.

С тех пор колонна Лооса, да и сама по себе эта бронзовая скульптура-макет стали символом мастерской Бавыкина, и надо сказать, что на сегодняшний день эта мастерская обладает, наверное, самым осмысленным и «говорящим» логотипом в Москве, потому что он прямо и зримо воплощает то, что Алексей Бавыкин называет свой художественной программой. Вообще говоря, у этой художественной программы три составные части: продолжение поисков русского авангарда 30-х годов, соединение «культуры один и культуры два» и подчеркнутое внимание к градостроительному значению каждого объекта.

Три части Бавыкинской программы взаимосвязаны: именно на грани 20-х и 30-х годов XX века, когда первая разновидность модернизма – авангард, архитектура абстрактных форм, собралась смениться новым воплощением классической темы – ар-деко, в разных странах возникло несколько рубежных произведений – как раз таких, которые находятся между культурами «один» и «два». В которых взаимодействие двух направлений-антагонистов рассматривалось не декоративным образом, как это стали делать потом, а более структурно. Как будто бы авангардисты, старательно очистив архитектурную форму от всего лишнего, задумались о ее основах, о классических архетипах и принялись эти архетипы выявлять.

Надо, правда, сказать, что этим занимались в основном такие авангардисты, которые раньше были крепкими классицистами – их, вероятно, тревожила собственная классическая выучка, прорастая каким-то образом не снаружи, а «изнутри» в их проектах и зданиях. Два характерных архитектора этого краткого направления – Адольф Лоос в Австрии и Илья Голосов у нас – это любимые авторы Алексея Бавыкина. Эти опыты по «проявлению» классических форм изнутри модернистских продолжались, как было сказано, очень недолго, они существуют на переломе и быстро смываются основной волной ар-деко. Алексей Бавыкин как будто бы стремится «вытащить» эту мимолетную тенденцию и дать ей развиться, причем делается это без малейшего оттенка иронии, а вполне серьезно и поэтому хотя постмодернистские корни его идеи очевидны, это не постмодернизм как таковой. Это какое-то рубежное возрождение, возрождение того, что не развилось на грани между авангардом и новой волной классических форм.

Главная особенность направления состоит в том, что классические формы переосмысливаются как очень крупные. И таким образом переводятся из ранга декора в масштаб объема. Идея Лооса сделать небоскреб в виде колонны и идея Голосова превратить угловую ротонду дома в большую муфтированную колонну в этом отношении очень родственные. Это укрупнение обычно некрупных элементов до масштаба здания находит своего ближайшего родственника в «говорящей» архитектуре авангарда – в домах-звездах, домах-тракторах и прочих сооружениях, которые брали за образец укрупненную символику или увеличенную технику. У Алексея Бавыкина, кстати говоря, тоже ведь есть ресторан в виде сковородки.

Иными словами, когда архитекторы авангарда задумались о том, как бы примирить свои поиски чистой формы со своей академической выучкой, они вместо дома-танка попробовали сделать дом-колонну. Видя это, архитектор Алексей Бавыкин в свою очередь подумал – а может быть, это вообще принципиальный выход, разрешение антагонизма? У него уже есть как минимум два дома-колонны, навеянных Лоосом («стиль 2001 года») и Голосовым (здание в 3-м Автозаводском проезде, где голосовский угловой цилиндр снабжен каннелюрами, т.е. в нем проявлена его «колонная сущность»). А также у него есть дом-арка.

Таким образом, дом-арка – это вторая значительная попытка Алексея Бавыкина обыграть в своей архитектуре немирное сосуществование модернизма и переосмысленных классических архетипов. Была колонна, появилась арка – это похоже на второй, следующий шаг по теме. Ради справедливости надо сказать, что также как Лоос и Голосов переосмысливали тему колонны, также и архитекторы неоклассики 1910-х гг. нередко обращались к теме триумфальной арки, которую для европейской архитектуры, вообще говоря, надо признать одной из основополагающих хотя бы потому, что, помимо римских и прочих императоров, которые строили себе сооружения для военного триумфа, долгое время в виде триумфальных арок решалась архитектура алтарей христианских храмов. Арка – не меньший архетип, чем колонна. Здесь, «в борьбе с модернизмом», от нее отломалась половина, исчезла вся декорация, формы стали лаконичными, но смысл остался. Она даже подросла и обещает быть очень, очень заметной на Можайке.

Офисное здание на Можайском шоссе. Вариант 2008 года (второй вариант)
Офисное здание на Можайском шоссе. Вариант 2008 года (второй вариант)
Офисное здание на Можайском шоссе. Вариант 2008 года (второй вариант)
Офисное здание на Можайском шоссе. Вариант 2008 года (второй вариант)
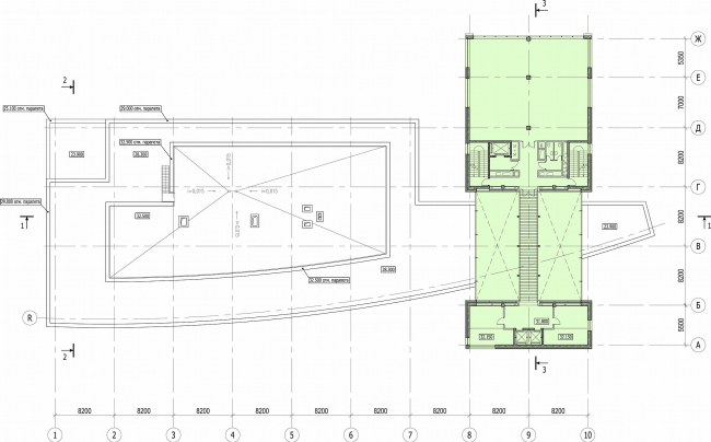
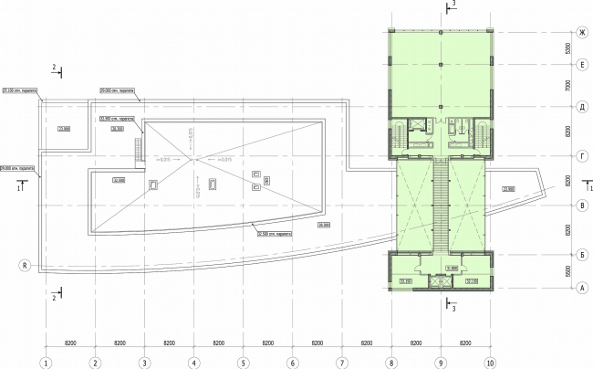
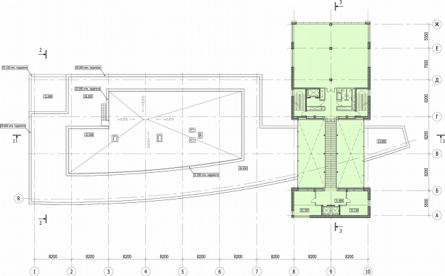
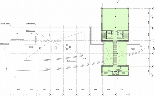
Окончательный вариант. 2008
Окончательный вариант. 2008
Офисное здание на Можайском шоссе. Вариант 2008 года (второй вариант). Интерьер атриума с бетонным сводом.
Офисное здание на Можайском шоссе. Вариант 2008 года (второй вариант). Интерьер атриума с бетонным сводом.
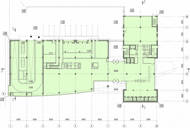
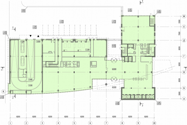
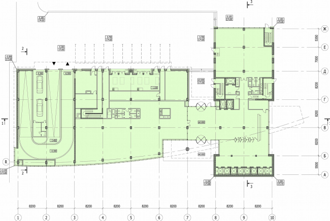
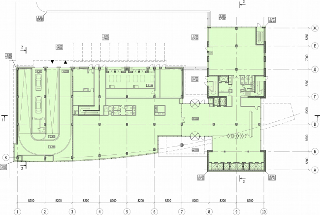
Офисное здание с подземной автостоянкой в 4-х уровнях на Можайском шоссе. ООО «А. Бавыкин и партнеры»
Офисное здание с подземной автостоянкой в 4-х уровнях на Можайском шоссе. ООО «А. Бавыкин и партнеры»
Триумфальная арка на Кутузовском проспекте
Триумфальная арка на Кутузовском проспекте
Остатки моста цензора Эмилия Лепида
Остатки моста цензора Эмилия Лепида
Окончательный вариант. 2008
Окончательный вариант. 2008
Окончательный вариант. 2008
Окончательный вариант. 2008
Дом-арка на Можайском шоссе. Проект. Эскиз. 2007 г. (первый вариант)
Дом-арка на Можайском шоссе. Проект. Эскиз. 2007 г. (первый вариант)