Размещено на портале Архи.ру (www.archi.ru)

06.02.2015

Раскрытие сути

Юлия Тарабарина
Объект:
«Электротеатр Станиславский»
Адрес:
Россия, Москва. Тверская ул., 23
Архитектор:
Дмитрий Ликин
Олег Шапиро
Мастерская:
WOWHAUS
Авторский коллектив:

Руководители мастерской: Дмитрий Ликин, Олег Шапиро. Ведущий архитектор проекта: Михаил Козлов. Архитекторы: Мария Гулида, Виктория Кудрявцева, Ольга Лебедева, Анастасия Маслова, Дарья Мельник, Мария Панова, Анна Прошкуратова, Ольга Рокаль, Александра Черткова

Реконструкция здания для театра, тем более нацеленного на синтез традиции и новации, – задача сложная и увлекательная, но вполне логичная для специализирующегося на общественных пространствах бюро Wowhaus.

Фойе. «Электротеатр Станиславский». Фотография © Илья Иванов, 2014
Фойе. «Электротеатр Станиславский». Фотография © Илья Иванов, 2014

26 января в Москве торжественно открыли «Электротеатр Станиславский». Архитектурное бюро Wowhaus реконструировало для театра комплекс зданий по адресу Тверская, 23 в сжатые сроки – приблизительно за год после прихода в Драматический театр имени К.С. Станиславского нового худрука – Бориса Юхананова, который затеял ребрендинг театра и обновление его помещений. Первая часть нового названия театра Юхананова заимствована от «Электротеатра АРС», устроенного в этом здании в 1915 году ювелиром Абрамом Гехтманом – в то время «электротеатрами» называли кинозалы. В новом названии слово «электротеатр» звучит не столько ретроспективно, сколько задиристо; столь же загадочное впечатление производит и логотип, с портретом Станиславского в электрической лампочке – по словам Юхананова, смысл в том, что обновленный театр «несёт свет». Одна из главных задач театра – «синтез радикального поиска <…> с классической театральной традицией», обновление «не ломает, а бережно сохраняет дух места» – говорится в пресс-релизе театра. Сказанное относится не только к труппе, из которой никто не ушел, но и к архитектурному проекту.

Здание было построено в 1874 году и поначалу в нем располагались «меблированные комнаты». В 1915–1916 архитектор Павел Заболоцкий перестроил его в стиле неоампир для «электротеатра» Гехтмана: фасад того времени сохранился почти целиком, а интерьеры фойе были переделаны в 1950-е годы, когда здание передвигали для расширения Тверской. Сейчас театр занимает несколько зданий: дом №23 1915 года, позднее достроенный длинным корпусом в глубину двора, соседний дом №25 по Тверской; ему также принадлежит несколько небольших корпусов, очень хозяйственного вида, во дворе.
Здания театра им. К.С. Станиславского (Тверская, 23-25). Предоставлено авторами проекта
Здания театра им. К.С. Станиславского (Тверская, 23-25). Предоставлено авторами проекта
Главный фасад. Проект. «Электротеатр Станиславский». 2014 © Wowhaus
Главный фасад. Проект. «Электротеатр Станиславский». 2014 © Wowhaus

Все это, состыкованное достаточно хаотично, к моменту обновления находилось в не слишком прочном состоянии – архитекторам и конструкторам пришлось уже после начала работ несколько раз корректировать проект, дополнительно укрепляя исторические конструкции, которые местами держались «на честном слове». Опять же в процессе работы выяснилось, что проложенные во дворе теплотрассы требуется убрать под землю силами городских властей, что замедлило реализацию проекта – обустройство двора и малой сцены пришлось отложить на вторую очередь работ. Между тем процесс реконструкции оказался хотя и сложным, но увлекательным, – признаются архитекторы: в частности, удалось обнаружить одну из рельс, с помощью которых здание передвигали при расширении Тверской улицы. Реконструкцию удалось провести быстро, как благодаря усилиям всех, кто работал над проектом, так и потому, что ее оплачивали из частных средств.
План. «Электротеатр Станиславский». 2014 © Wowhaus
План. «Электротеатр Станиславский». 2014 © Wowhaus

Главным сюжетом реконструкции, так как она предназначалась для вполне экспериментального театра, стала, конечно же, сцена. Из коробки главной сцены удалили все зрительские места, превратив ее в совершенно пустое, а точнее – открытое для разнообразных трансформаций пространство. Стулья для зрителей теперь можно расставлять как угодно; можно сидеть на деревянном полу.

«Зрительный зал как бы завис в пространстве, – рассказывает Олег Шапиро. – У него нет места для колосников: сверху расположен репетиционный зал и административные помещения, а снизу фойе и кафе. Поэтому мы поместили все конструкции, необходимые для подвешивания декораций, в верхней части существующего объема сцены; в частности, 120 лебедок, расположенных по сторонам от коробки зала, позволяют разместить сценические конструкции и декорации в любой части пространства. К этой же решетке крепится видео, аудио и прочая техника» – у этой сцены множество возможностей с точки зрения современного театра, предполагающего разнообразные нестандартные ходы, из которых соучастие зрителя в спектакле – наверное, самое простое из того, что приходит на ум.

Площадь коробки главной сцены – 423,9 м2, она протяженная и высокая. Стены покрыты белыми гипсовыми панелями зигзагообразной формы, идеальной для хорошей акустики; перед ними, с небольшим зазором – прямоугольная решетка тонких черных стоек; визуально она поддерживает тему столь же клетчатой конструкции потолка, а практически служит для крепления светильников, обращенных к белым стенам, чья ребристая форма добавляет бестелесной световой сети отчетливую нотку эксцентричности (предусмотрено более трехсот вариантов освещения, в том числе разного цвета с разной динамикой изменения подсветки).
Основной зал. «Электротеатр Станиславский». Фотография © Илья Иванов, 2014
Основной зал. «Электротеатр Станиславский». Фотография © Илья Иванов, 2014
Основной зал, проект. «Электротеатр Станиславский». 2014 © Wowhaus
Основной зал, проект. «Электротеатр Станиславский». 2014 © Wowhaus
Основная сцена (основной зал), с восстановленным балконом. «Электротеатр Станиславский». Фотография © Илья Иванов, 2014
Основная сцена (основной зал), с восстановленным балконом. «Электротеатр Станиславский». Фотография © Илья Иванов, 2014
Основной зал. Вид из-под балкона. «Электротеатр Станиславский». Фотография © Илья Иванов, 2014
Основной зал. Вид из-под балкона. «Электротеатр Станиславский». Фотография © Илья Иванов, 2014

Иными словами, инаковость пространства главной сцены зритель ощутит сразу, как только попадет внутрь. Входя, мы оказываемся внутри театральной машины: если Мейерхольд, к примеру, устанавливал свой круг с механизмами в центре сцены, то здесь зрители и актеры в центре, а машина вокруг, и все они играют какую-то, каждый свою, роль в режиссерском замысле. Не то чтобы этот эффект был абсолютно новым – он скорее следует за тенденциями современного театра; окружающая зрителей механизация театрального пространства может напомнить цирк, к примеру, на проспекте Вернадского. Не то чтобы все механизмы были открыты – вероятно, это будет зависеть от спектакля; но сама по себе черная решетка с подсветкой ребристых стен уже создает ощущение максимальной открытости, разоблаченности и минимальной декорированности театра – во многом противоположное классическому театру, построенному на маскировке. К примеру известно, что недавно восстановленный барочный гипсовый декор в зрительном зале Большого театра также служил и служит для улучшения акустики; здесь же вместо позолоченных завитков – белизна, геометрически простая, хотя сложно освещенная форма и нечто перед ней, отчасти похожее на строительные леса, на нестертые линии перспективного построения рисунка, а в сущности – проявляющее структурную основу театра, неизбежно привязанного к сетке пространственных конструкций. Попадая в зрительный зал – он же сцена, зрители оказываются внутри расчерченного и подготовленного для представления, освоенного человеческим воображением пространства, почти что внутри перспективного построения картины. Скажу больше того: зрители попадают внутрь этой структуры сразу, как только входят в театр, но об этом – чуть позже.

Единственный классический элемент в зале – балкон, предмет охраны; он красный с изысканным деревянным поручнем.
Основной зал. Вид с балкона, хорошо видны конструкции потолка. «Электротеатр Станиславский». Фотография © Илья Иванов, 2014
Основной зал. Вид с балкона, хорошо видны конструкции потолка. «Электротеатр Станиславский». Фотография © Илья Иванов, 2014

Всё остальное здание, точнее несколько зданий, выстроенных вокруг ядра сцены, существуют следующим образом. Фасад, разумеется, тщательно восстановлен, включая новые, имитирующие исторические, двери; стеклопакеты обрамлены деревянными рамами. Внутри, с одной стороны, повсеместно взаимодействуют между собой тщательно очищенные элементы старой архитектуры и подчеркнуто аккуратные новые включения. С другой стороны, архитекторы, по их собственным словам, смотрели на здание глазами актеров, которые называют нижние помещения гардеробов «адом», а сцену «раем». Действительно, устроенный в прежде пустовавшем подвале гардероб уже начиная с ведущей вниз лестницы не чужд «адского пламени»: стены покрыты панелями полированной меди (вспоминаем сковородки), свет в лампах точечного света – теплый. Впрочем, тонкий юмор под силу разглядеть разве что предупрежденному и внимательному зрителю; к тому же в театре он вполне уместен, настраивает на фантастический лад. Рассуждая дальше таким же образом можно представить черные пластиковые трубки перед входом как напоминание о трубах архангелов, хотя они больше похожи не флейту Пана – что тоже, строго говоря, не чуждо театру, особенно такому, который намерен соединять классику и современность. Не зря же первый спектакль в новом здании – «Вакханки» Еврипида в переводе Анненского и постановке грека Теодороса Терзопулоса.
Гардероб, -1 этаж. «Электротеатр Станиславский». Фотография © Илья Иванов, 2014
Гардероб, -1 этаж. «Электротеатр Станиславский». Фотография © Илья Иванов, 2014
Спуск в гардероб на -1 этаж; стены покрыты панелями красной меди. «Электротеатр Станиславский». Фотография © Илья Иванов, 2014
Спуск в гардероб на -1 этаж; стены покрыты панелями красной меди. «Электротеатр Станиславский». Фотография © Илья Иванов, 2014
Фойе. «Электротеатр Станиславский». Фотография © Илья Иванов, 2014
Фойе. «Электротеатр Станиславский». Фотография © Илья Иванов, 2014
Лестница, ведущая с первого этажа (уровень улицы и фойе) на второй этаж (уровень сцены). «Электротеатр Станиславский». Фотография © Илья Иванов, 2014
Лестница, ведущая с первого этажа (уровень улицы и фойе) на второй этаж (уровень сцены). «Электротеатр Станиславский». Фотография © Илья Иванов, 2014

Между тем с архитектурной точки зрения интересны не столько ссылки на дионисийские мистерии и их роль в образе рая равно как и ада, сколько – взаимодействие архитекторов Wowhaus с пространством и деталями исторического здания и города. Здесь прежде всего бросается в глаза то, что весь сохранившийся классицистический декор, а это кессоны с розетками на потолке и балюстрады лестниц, архитекторы отчистили от множества слоев краски полностью и снова не покрасили, а покрыли прозрачным лаком. Хорошо видно, что элементы декора слеплены из каменной крошки, довольно крупной, с чечевичное зерно – можно пощупать руками. Конечно же, первоначально эта фактура требовала хотя бы одного слоя краски, она не предназначалась для обозрения – архитекторы раскрывают ее, устраивая для зрителей своего рода «археологический театр» – и добиваются нужного эффекта: фойе, хотя и не буквально, стало похожим на музей, на античную руину, хотя весь декор не то чтобы очень ценный, сталинский. Зато классицизирующий, что пришлось очень кстати.
Вход в основной зал. «Электротеатр Станиславский». Фотография © Илья Иванов, 2014
Вход в основной зал. «Электротеатр Станиславский». Фотография © Илья Иванов, 2014
Лестница и вид на вход в основной зал. «Электротеатр Станиславский».Фотография © Илья Иванов, 2014
Лестница и вид на вход в основной зал. «Электротеатр Станиславский».Фотография © Илья Иванов, 2014

Второй похожий, и даже более радикальный жест раскрытия старого здания для зрителей – столбы в фойе первого этажа, в том самом здании-пристройке, примкнувшем в свое время к зданию Заболоцкого со стороны двора. Первоначально архитекторы планировали, буквально следуя образу «электротеатра», сделать столбы светящимися на всю высоту. В конечном счете они поступили иначе – полностью раздели металлические стержни опор и оставили их как есть, покрасив черной краской вместе с заклепками и припаянными кусками металла, призванными, собственно, поддерживать декоративную «кожу» столбов. Словом, совершеннейшее экорше. Благодаря которому пространство фойе, насытившись металлом, стало похоже на цех старинного завода, к примеру где-нибудь на Красном Октябре и возник опять же несколько театрализованный, усиленный неряшливостью сварки эффект промышленного помещения, превращенного в культурное.
Фойе. «Электротеатр Станиславский». Фотография © Илья Иванов, 2014
Фойе. «Электротеатр Станиславский». Фотография © Илья Иванов, 2014
Фойе и бар Noor. «Электротеатр Станиславский». Фотография © Илья Иванов, 2014
Фойе и бар Noor. «Электротеатр Станиславский». Фотография © Илья Иванов, 2014
Фойе (хорошо видны металлические столбы и подвижные перегородки). «Электротеатр Станиславский». Фотография © Илья Иванов, 2014
Фойе (хорошо видны металлические столбы и подвижные перегородки). «Электротеатр Станиславский». Фотография © Илья Иванов, 2014
Фойе. «Электротеатр Станиславский». Фотография © Илья Иванов, 2014
Фойе. «Электротеатр Станиславский». Фотография © Илья Иванов, 2014
Фойе. «Электротеатр Станиславский». Фотография © Илья Иванов, 2014
Фойе. «Электротеатр Станиславский». Фотография © Илья Иванов, 2014

Параллельно рядам опор в фойе движутся прикрепленные на направляющих к потолку автоматизированные перегородки, а освещенность варьируется в широком диапазоне. Все подготовлено для устройства здесь выставок, перформансов, мини-постановок, к примеру, подготавливающих зрителей к основному спектаклю или даже самостоятельных. Таким образом главное фойе не просто предваряет сцену как банальный вестибюль, а развивает и в чем-то повторяет ее возможности; оно само – тоже отчасти сцена. Есть и элемент почти буквального сходства: клетки кессонов дублированы сеткой металлических тяг с подсветкой, направленной на потолок и высвечивающей его геометрическую логику – похоже на черные полоски с отраженной стенами подсветкой в зале. Черная сетка – общий прием – объединяет доступные зрителям пространства в нечто целое, структурно единое – напоминает о том, что все мы находимся внутри трехмерного пространства, которое легче всего понять, расчертив на клетки. И одновременно противопоставляет пышный кессон простой и техничной современной тяге с ее простой и ясной задачей, прямо как у театра – нести свет.

Вестибюль первого этажа будет доступен для всех, не только для зрителей с билетами. Даже за посещение проводимых в нем выставок решено не брать билеты. Утрату двух ресторанов, раньше существовавших в первом этаже театра, компенсирует бар Noor; также уже открыт книжный магазин, которым занимается команда проекта «Порядок слов» из Петербурга. Еще из практического: в здании, вытянутом по Тверской к Мамоновскому переулку, разместились шесть репетиционных залов; театр получил собственные цеха по изготовлению декораций и костюмов; в здании провели систему вентиляции, которой не было, и полностью поменяли всю инженерию. Уютно оборудованы грим-уборные, где на потолках – с намеком, воспроизведена старая карта звездного неба, а в коридоре – укрупненный эскиз Юхананова к одному из спектаклей.

Но вернемся к проекту. Как уже было сказано, все сделанное – первая очередь. Вторая, реализация которой вынужденно задержалась, в частности, из-за теплотрассы во дворе, предполагает размещение в небольшом отдельном флигеле Малой сцены театра и полное благоустройство двора. Идеи те же: пространство будет разнообразным, автоматизировано-трансформируемым и многофункциональным. Сейчас небольшой двор театра – неряшливый (особенно его уродуют трубы теплотрассы), но характерный пример внутренних городских пространств московского центра. Пройти в него можно слева от главного входа в театр.
Фойе. «Электротеатр Станиславский». Фотография © Илья Иванов, 2014
Фойе. «Электротеатр Станиславский». Фотография © Илья Иванов, 2014
Фойе. Проект. «Электротеатр Станиславский». 2014 © Wowhaus
Фойе. Проект. «Электротеатр Станиславский». 2014 © Wowhaus
Театральный двор. Проект. «Электротеатр Станиславский». 2014 © Wowhaus
Театральный двор. Проект. «Электротеатр Станиславский». 2014 © Wowhaus

Двор планируется окружить несколькими ярусами металлических галерей – они напоминают одновременно пожарные лестницы, балконы южных городов и продолжают сетку черной металлической структуры, так понравившуюся нам внутри. Как будто каркас современного театра не только врос в здание, но и пророс наружу.
Взаимосвязь театральных пространств. «Электротеатр Станиславский» © Wowhaus
Взаимосвязь театральных пространств. «Электротеатр Станиславский» © Wowhaus

Длинную грань коробки Малой сцены планируется придвинуть к той стене реконструируемого во дворе сарайчика, которая примыкает к пространству двора. И сделать эту стену раскрывающейся. Таким образом зимой, когда во дворе холодно, Малая сцена будет небольшим закрытым пространством для небольшого числа зрителей, а летом зрительным залом станет двор, галереи – галеркой, а сцена окажется расположена более привычным образом. Во двор можно будет попасть как из фойе первого этажа, так и по улице.
Театральное пространство. Взаимосвязь общественных пространств. «Электротеатр Станиславский». 2014 © Wowhaus
Театральное пространство. Взаимосвязь общественных пространств. «Электротеатр Станиславский». 2014 © Wowhaus
Театральное пространство. Связь городского пространства и пространства театрального двора. «Электротеатр Станиславский». 2014 © Wowhaus
Театральное пространство. Связь городского пространства и пространства театрального двора. «Электротеатр Станиславский». 2014 © Wowhaus
Малая сцена с раскрытой южной стеной, обращенной ко двору. Проект. «Электротеатр Станиславский». 2014 © Wowhaus
Малая сцена с раскрытой южной стеной, обращенной ко двору. Проект. «Электротеатр Станиславский». 2014 © Wowhaus
Малая сцена. Проект. «Электротеатр Станиславский». 2014 © Wowhaus
Малая сцена. Проект. «Электротеатр Станиславский». 2014 © Wowhaus
«Электротеатр Станиславский». Малая сцена © Wowhaus
«Электротеатр Станиславский». Малая сцена © Wowhaus

Появление такого театра – вполне логичный шаг в развитии архитектурного бюро Wowhaus, которое не строит ни офисов, ни жилья, ни даже ТЦ, а специализируется на общественных пространствах разной степени сложности. Архитекторы начали свою карьеру с театра «Практика» на Патриарших; затем был двор «Стрелки», который стал одним из лучших пространств для концертов и лекций в Москве и, к сожалению, скоро будет закрыт; «Зеленый театр», и еще несколько амфитеатров, в частности, встроенный недавно в пространство берлинской архитектурной галереи. Словом, тема театра как апофеоза общественного пространства, о чем хорошо знали еще римляне, архитекторам Wowhaus близка и знакома. В данном случае мы, кроме того, имеем дело с реконструкцией исторического здания и здесь хотелось бы акцентировать несколько более глубокое, чем обычно, разоблачение элементов старой архитектуры здания, сознательное акцентирование «древности». Не имея в своем распоряжении милой сердцу современного театрала античной руины, архитекторы пошли по пути русского ампира: откопали древности среди Москвы, пусть ее там немного и она не очень древняя – но образ, сродни театральной декорации, получился.

К слову сказать, интерьеры непарадных, административных и технических помещений театра решены намного спокойнее: ровный цвет стен, уют и комфорт, стены изредка оживлены графикой; спокойная рабочая жизнь, место для отдыха. Пространства, предназначенные для показа – наоборот, обладают всеми признаками того, что в обыденном сознании связано с театральным закулисьем. Пустить зрителя за кулисы фактически или образно давно стало одним из любимых приемов театра – но в данном случае интересно то, что этот прием подхвачен и усилен архитектурой, которая начинает «раздевать» здание, снимая с него чуть больший, чем обыкновенно требуется при реставрации, слой штукатурки, позволяя зрителям наблюдать не только театр как бы изнутри, но и архитектуру – так же, до некоторой степени вывернутой наизнанку.
 
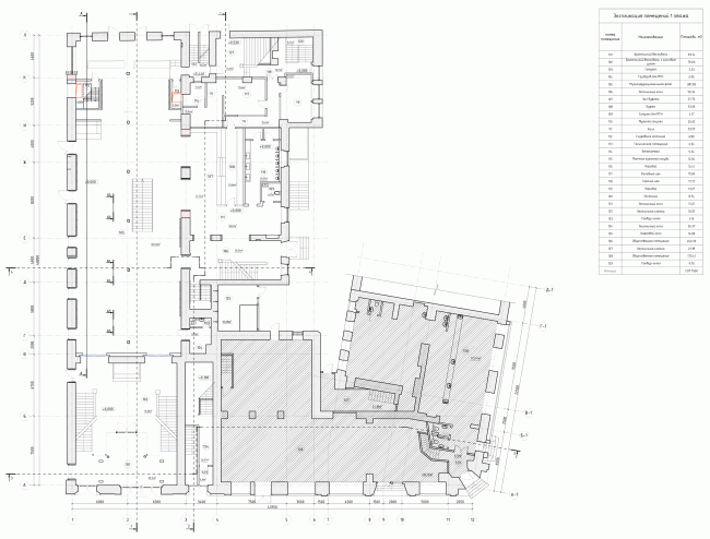
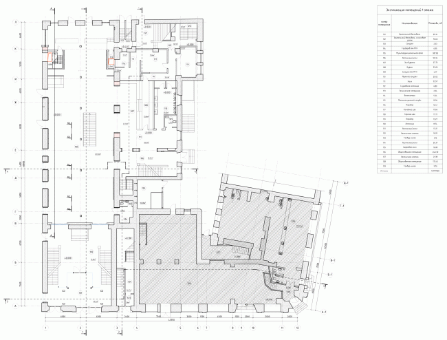
План 1 этажа. «Электротеатр Станиславский». 2014 © Wowhaus
План 1 этажа. «Электротеатр Станиславский». 2014 © Wowhaus
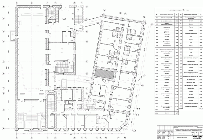
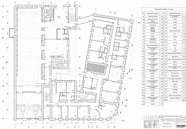
Планы 2 и 3 этажей. «Электротеатр Станиславский». 2014 © Wowhaus
Планы 2 и 3 этажей. «Электротеатр Станиславский». 2014 © Wowhaus
Фойе. «Электротеатр Станиславский». Фотография © Илья Иванов, 2014
Фойе. «Электротеатр Станиславский». Фотография © Илья Иванов, 2014
Фойе и спуск в гардероб. «Электротеатр Станиславский». Фотография © Илья Иванов, 2014
Фойе и спуск в гардероб. «Электротеатр Станиславский». Фотография © Илья Иванов, 2014
Фойе. «Электротеатр Станиславский». Фотография © Илья Иванов, 2014
Фойе. «Электротеатр Станиславский». Фотография © Илья Иванов, 2014
Лестница, из гардероба в фойе. «Электротеатр Станиславский». Фотография © Илья Иванов, 2014
Лестница, из гардероба в фойе. «Электротеатр Станиславский». Фотография © Илья Иванов, 2014
Лестница перед входом в основной зал, вид в сторону Тверской улицы. «Электротеатр Станиславский». Фотография © Илья Иванов, 2014
Лестница перед входом в основной зал, вид в сторону Тверской улицы. «Электротеатр Станиславский». Фотография © Илья Иванов, 2014
Вход в фойе 1 этажа с улицы. «Электротеатр Станиславский». Фотография © Илья Иванов, 2014
Вход в фойе 1 этажа с улицы. «Электротеатр Станиславский». Фотография © Илья Иванов, 2014
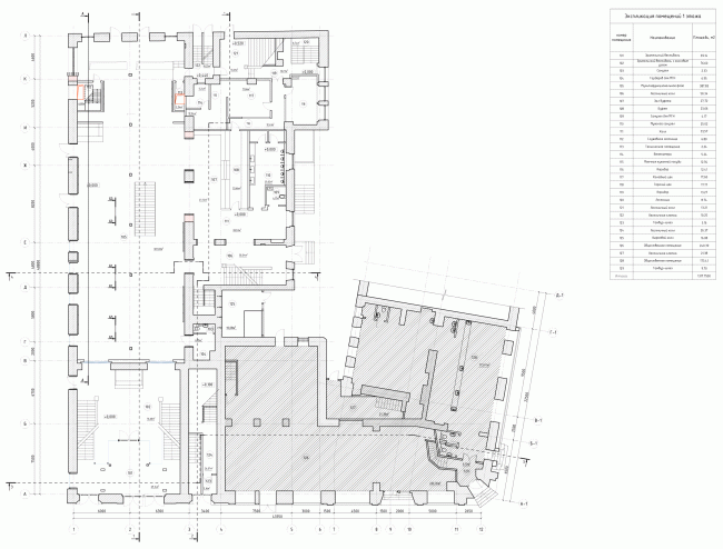
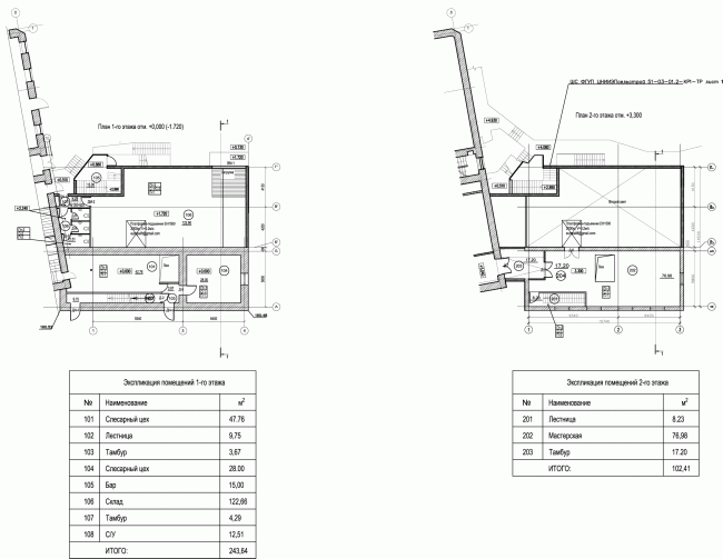
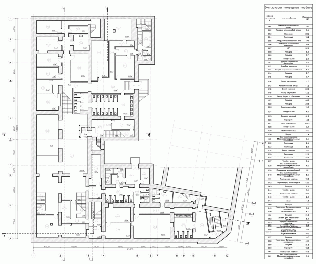
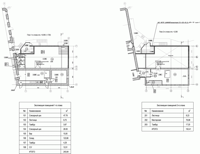
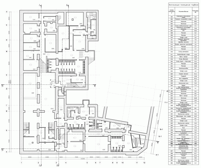
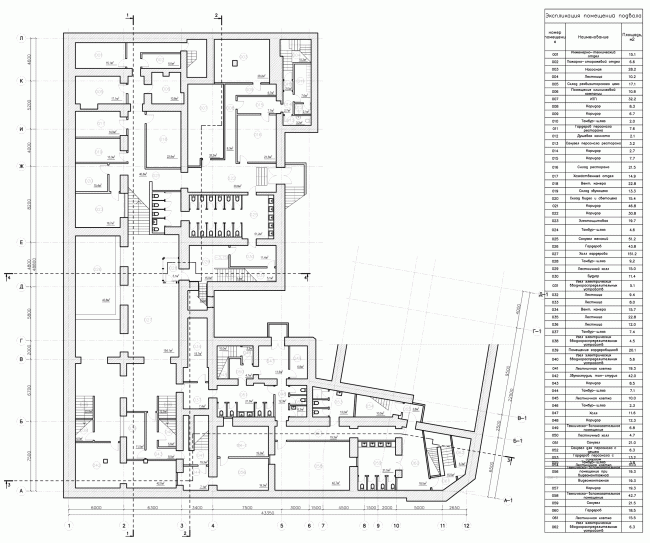
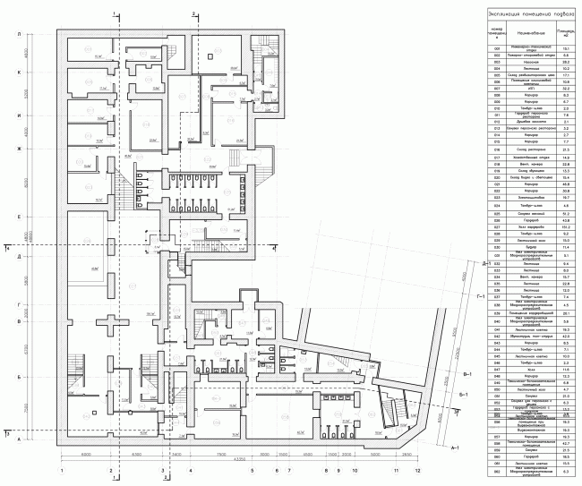
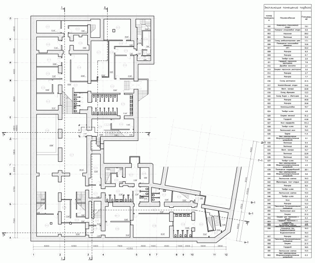
Строение 1, план подвала. «Электротеатр Станиславский». 2014 © Wowhaus
Строение 1, план подвала. «Электротеатр Станиславский». 2014 © Wowhaus
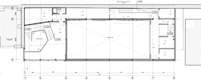
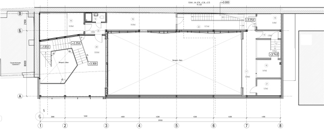
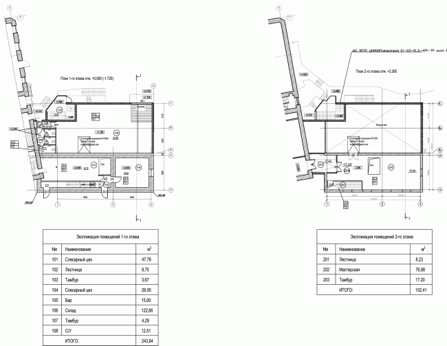
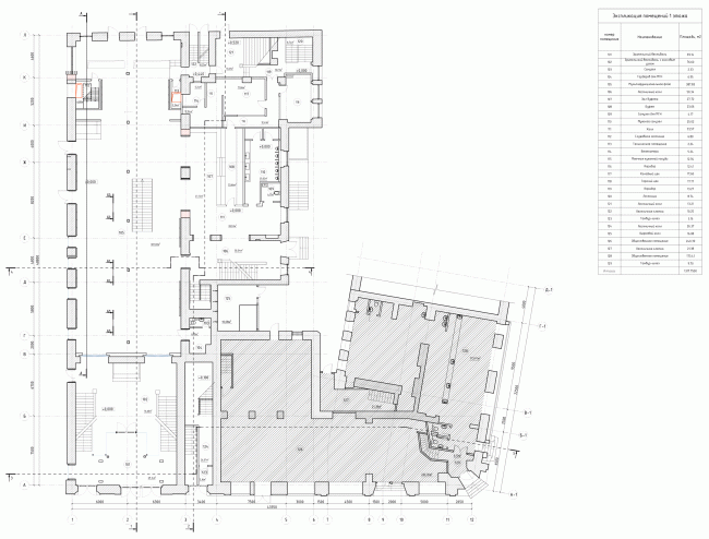
Строение 1, план 1 этажа. «Электротеатр Станиславский». 2014 © Wowhaus
Строение 1, план 1 этажа. «Электротеатр Станиславский». 2014 © Wowhaus
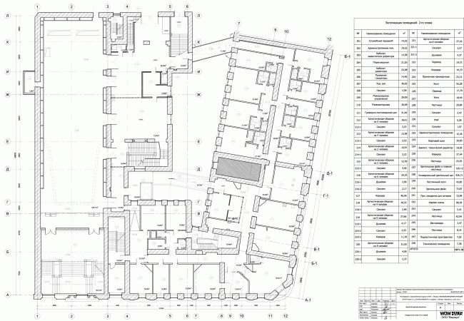
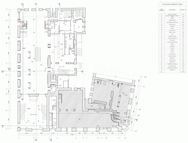
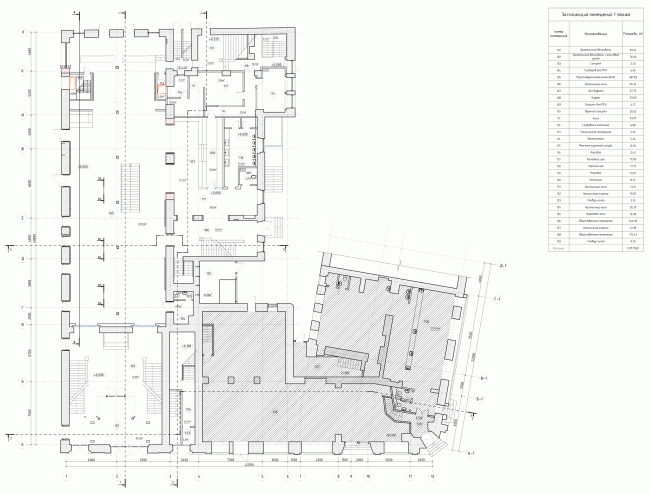
Строение 1, план 2 этажа. «Электротеатр Станиславский». 2014 © Wowhaus
Строение 1, план 2 этажа. «Электротеатр Станиславский». 2014 © Wowhaus
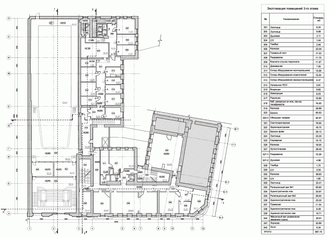
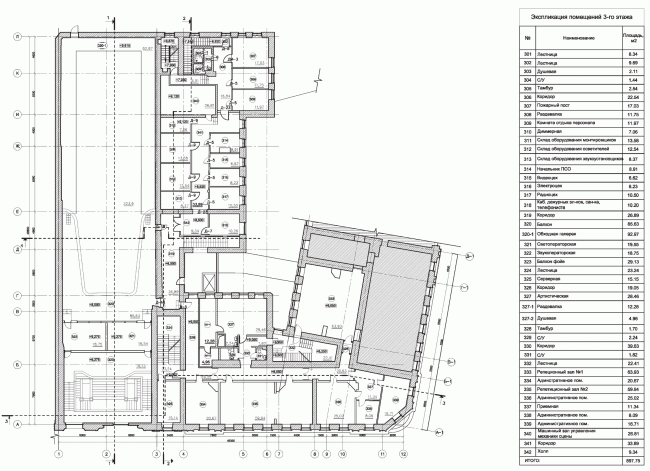
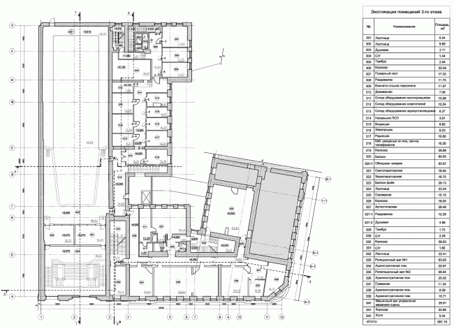
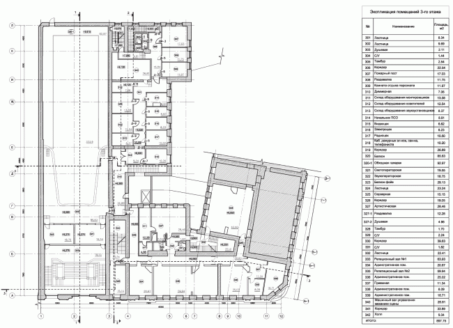
Строение 1, план 3 этажа. «Электротеатр Станиславский». 2014 © Wowhaus
Строение 1, план 3 этажа. «Электротеатр Станиславский». 2014 © Wowhaus
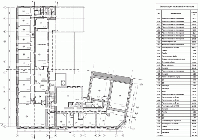
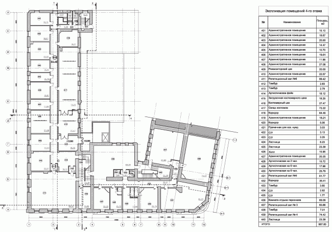
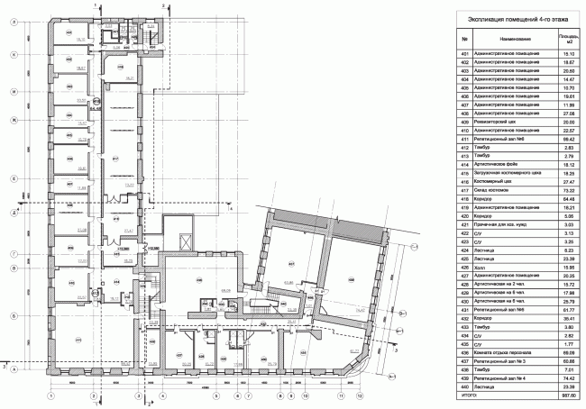
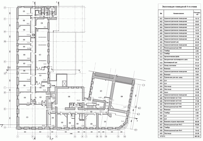
Строение 1, план 4 этажа. «Электротеатр Станиславский». 2014 © Wowhaus
Строение 1, план 4 этажа. «Электротеатр Станиславский». 2014 © Wowhaus
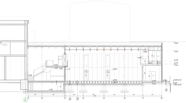
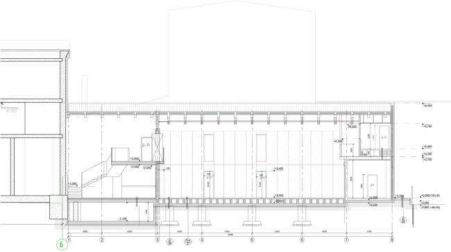
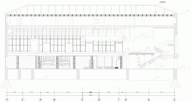
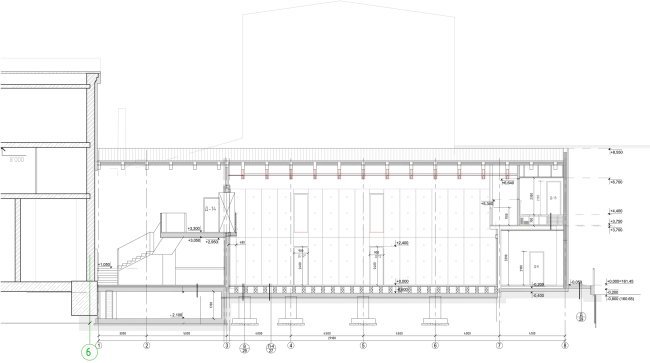
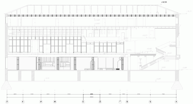
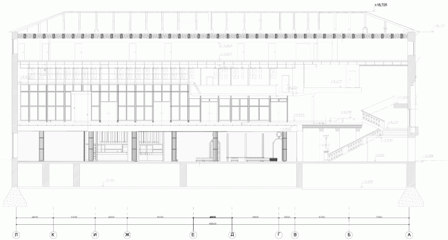
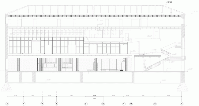
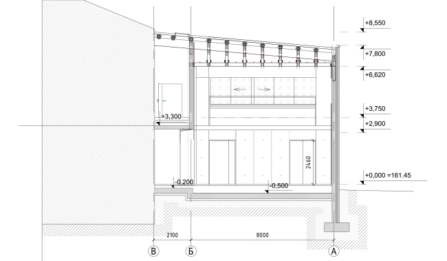
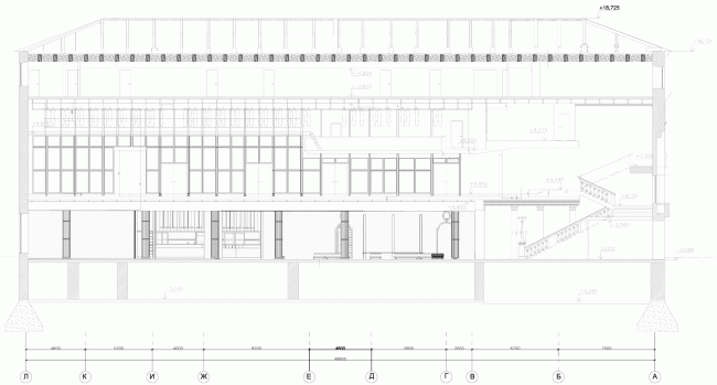
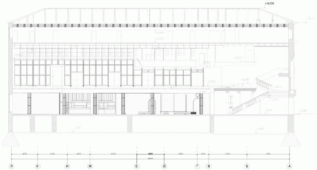
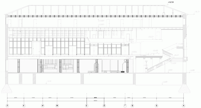
Строение 1, разрез. «Электротеатр Станиславский». 2014 © Wowhaus
Строение 1, разрез. «Электротеатр Станиславский». 2014 © Wowhaus
Схема внутренних связей. «Электротеатр Станиславский». 2014 © Wowhaus
Схема внутренних связей. «Электротеатр Станиславский». 2014 © Wowhaus
Основной зал. Проект. Перспектива и разрез. «Электротеатр Станиславский». 2014 © Wowhaus
Основной зал. Проект. Перспектива и разрез. «Электротеатр Станиславский». 2014 © Wowhaus
Зал Малой сцены, проект. «Электротеатр Станиславский». 2014 © Wowhaus
Зал Малой сцены, проект. «Электротеатр Станиславский». 2014 © Wowhaus
Фойе малой сцены, проект. «Электротеатр Станиславский». 2014 © Wowhaus
Фойе малой сцены, проект. «Электротеатр Станиславский». 2014 © Wowhaus
Планы строения 2, 3 и галерей двора. «Электротеатр Станиславский» © Wowhaus
Планы строения 2, 3 и галерей двора. «Электротеатр Станиславский» © Wowhaus
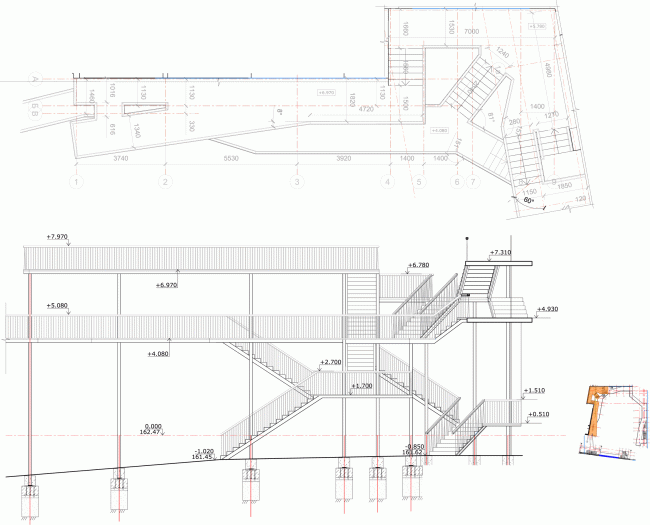
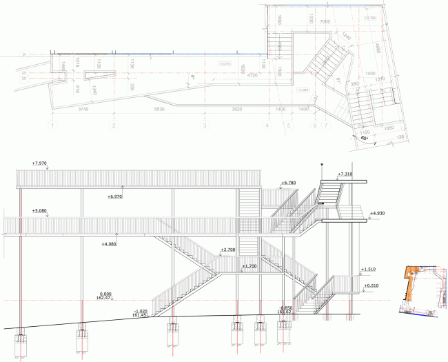
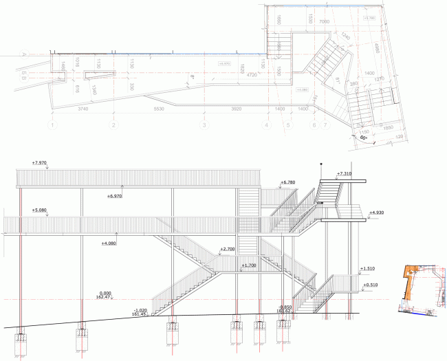
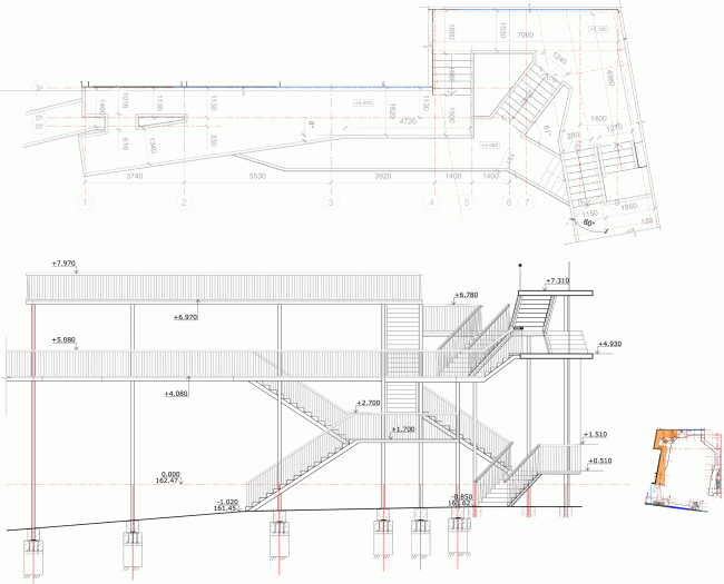
План и разрез западной части галерей двора. «Электротеатр Станиславский». 2014 © Wowhaus
План и разрез западной части галерей двора. «Электротеатр Станиславский». 2014 © Wowhaus
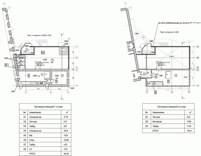
Строение 2, планы 1 и 2 этажей. «Электротеатр Станиславский». 2014 © Wowhaus
Строение 2, планы 1 и 2 этажей. «Электротеатр Станиславский». 2014 © Wowhaus
Строение 2, план на отметке +6,480 и разрез. «Электротеатр Станиславский». 2014 © Wowhaus
Строение 2, план на отметке +6,480 и разрез. «Электротеатр Станиславский». 2014 © Wowhaus
Строение 3 (Малая сцена), план по антресолям. «Электротеатр Станиславский» © Wowhaus
Строение 3 (Малая сцена), план по антресолям. «Электротеатр Станиславский» © Wowhaus
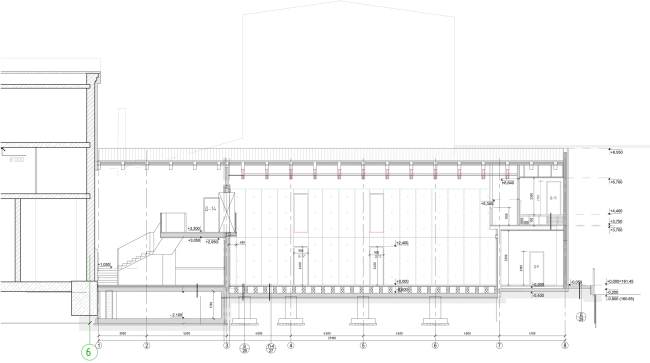
Строение 3 (Малая сцена), продольный разрез. «Электротеатр Станиславский» © Wowhaus
Строение 3 (Малая сцена), продольный разрез. «Электротеатр Станиславский» © Wowhaus
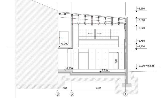
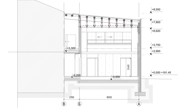
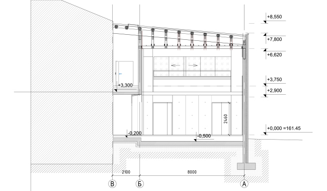
Малая сцена, поперечный разрез. «Электротеатр Станиславский» © Wowhaus
Малая сцена, поперечный разрез. «Электротеатр Станиславский» © Wowhaus