|
Продолжая изучать парадоксы классики Ильи Уткина, Анатолий Белов нашел в проекте виллы вблизи дачи Академии наук в Звенигороде «фасад без фасада»

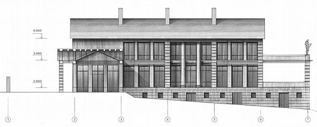
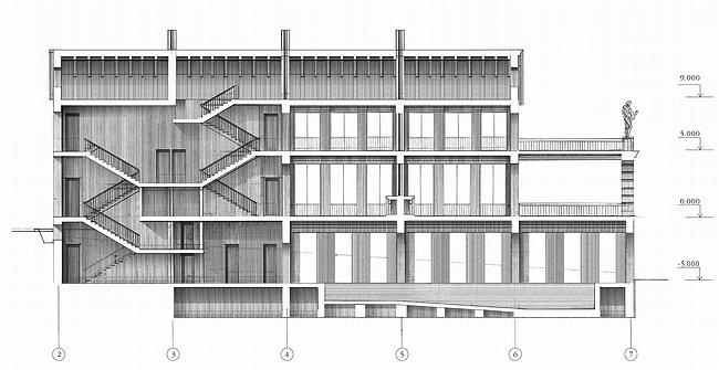
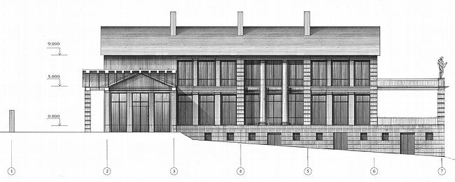
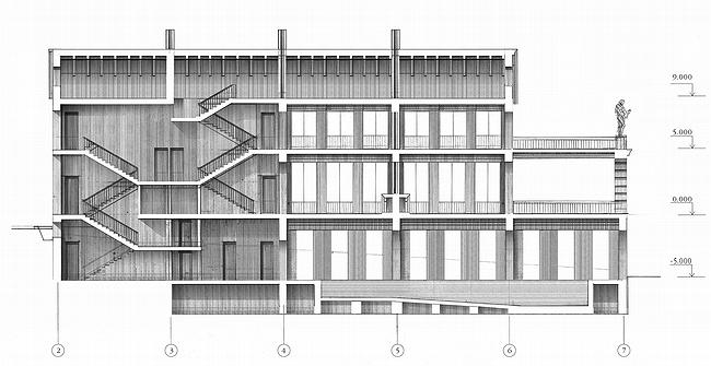
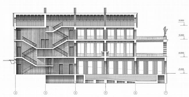
Илья Уткин вообще удивительный человек. Он мастер по преодолению трудностей, связанных с посадкой объекта на участок. Если в проекте «Горки-2» участок был дико узкий, в связи с чем Илье Уткину пришлось попрать канон и изловчиться, чтобы проект, несмотря на это, имел каноничный вид, то здесь из-за специфики рельефа – перепад там составляет более четырех метров – он был вынужден сделать парадный вход в дом сбоку. Но как парадный вход в загородную резиденцию такого размера – как никак 1500 квадратных метров – может быть сбоку? Особенно если по стилистике эта резиденция претендует на классичность. И Илья Уткин придумал следующую хитрость: центральная часть дома украшена портиком из четырех квадратных рустованных колонн, на которые опирается кровля. Все симметрично, как и полагается в классической архитектуре, но только у этой центральной части нет ни стен, ни нутра, это, по существу, открытая галерея и по совместимости видовая площадка. То есть место, которое должно было вмещать входную группу, общественную зону – полое, в нем гуляет ветер.
А жилая часть дома получается соподчиненной этому пустому пространству, она оттеснена к краю участка, равно как и корпус с гаражом и помещением охраны. Как в проекте «Горки-2» была ось несуществующей симметрии, вокруг которой выстраивался костяк дома, которая определяла его структуру, так и в этом случае мы имеем галерею-террасу, заменившую собой главный фасад, по отношению к которой остальные части сооружения второстепенны. Идея с фасадом-обманкой в принципе не нова. Например, в павильоне «Березовый домик» в Гатчинском парке использован тот же прием. Правда, в упомянутом павильоне это все же не совсем фасад-обманка, скорее это фасад-маска, ведь за ним скрывается уже реальный объект, а у Ильи Уткина за этой галереей ничего не скрывается, это такой прострел в сторону обрыва, с которым участок граничит на юго-западе.
Вообще, Илья Уткин по всем параметрам архитектор-иллюзионист. В большинстве его объектов словно бы содержится какая-то насмешка над основополагающими и общепринятыми законами формообразования. Илья Уткин эти законы зачастую просто игнорирует, впрочем, не в ущерб качеству производимой им продукции. Иными словами, структура у многих его объектов вроде бы абсолютно алогичная, но в массе все смотрится предельно рационально и уместно, как будто так и должно быть. У описываемой виллы нет фасада – по всем правилам это не фасад – но в то же время он есть. И никуда от этого не деться. Во всем этом есть некое волшебство. Конечно, это волшебство имеет вполне прагматическую природу – если бы не крутой рельеф, никакого фасада-обманки не было бы и в помине – но этого прагматизма как-то не замечаешь. Никакого обмана не чувствуется. Хотя это, безусловно, обман. Илья Уткин – это просто какой-то Гарри Гудини от архитектуры, честное слово. Фокусничать так изысканно и остроумно не получается ни у кого из современных отечественных архитекторов.
Его привычку делать архитектуру без как таковой архитектуры можно было бы даже приравнять к авторскому стилю, к его индивидуальной творческой манере. Вспомните знаменитый бумажный проект «Стеклянный замок», выполненный им в соавторстве с Александром Бродским, который получил первую премию на конкурсе Shinkenchiku в 1982 году. Это замок без замка – вместо замка там высоченные стеклянные пластины, поставленные параллельно друг другу, на которых нарисованы какие-то загогулинки – если смотреть на них фронтально и издалека, то изображения на этих пластинах накладываются друг на друга, и кажется, что перед вами возвышается реальный замок. При близком же рассмотрении этот оптический эффект как бы перестает действовать, чары рассеиваются. И что же мы в итоге имеем? Имитацию замка. Также как в проекте «Горки-2» мы имеем имитацию симметрии, также как здесь мы имеем имитацию фасада. Илья Уткин невероятно искусно сочетает то, что по всем правилам сочетать нельзя – традиционность с постмодернистским юмором, прагматику с фантазией. Удивительный он все-таки человек.
|